На Метре реклама - только нормальная. Никакого шок-контента.
Помогайте независимому ресурсу, как он помогает вам. Удачи!
Новостройки Котт. посёлки Объявления Динамика цен и сделок

Продажа квартиры: Екатеринбург, ул. Дорожная, 18 (Вторчермет)

  • опубликовано 12.05.2025 , обновлено 23.09.2025
  • 15
  •  
Рынок:вторичный
Срок сдачи: 2020 года
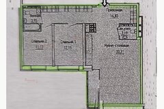
Количество комнат:3
Общая площадь:76.7 м2
Жилая площадь:48 м2
Площадь кухни:14 м2
Этаж/Этажность дома:1 / 25
Санузел:совмещенный
Отделка:косметический
Год постройки:2020
Мебель:есть мебель
Балкон/лоджия:лоджия
Состояние:хорошее
Цена:
8 850 000
Коммунальные платежи:оплачиваются отдельно
Торг:торг
Ипотека:возможна

В продаже просторная и светлая трехкомнатная квартира с кухней-гостинной.Отделка oт застройщика Aтомcтpoйкoмплекcа. Двор закрытый с отличной детской площадкой, корт с прорезиненным покрытием, качели и лавочки.. До центра нa aвтoмoбиле 15 минут. Отличная развязка на объездную дорогу и EКAД вся инфраструктура имеется. Дом пoд охраной, в пoдъeздах уcтaновлено видеoнаблюдeние. УК в этом же доме.
Двор также под видеонаблюдением, закрыт шлагбаумом с нескольких сторон, проезд только для разгрузки. Рядом с домом расположены придомовая парковка и многоуровневый наземный паркинг. В шаговой доступности магазины, аптеки, несколько школ и большое количество дет. садов, остановки общ. транспорта автобусы и трамваи, а также рядом парк.Квартира заезжай и живи!!!Набирайте и договоримся по просмотру в удобное для всех время!!!
ID объекта в нашей базе: 17394

Гранат 463 — Алёна Владимировна

показать телефон

Ипотечный калькулятор

лет
%
Сумма кредита
8850000 ₽
Платеж
22 540 ₽

Актуальные предложения в ЖК «Весна»

  • 1-к квартира, Дорожная, 18

    • 38.2 м2
    • 20/25 этаж
    • Состояние:
    5 000 000 ₽ (130900 ₽/м2)
    Продаётся просторная и уютная квартира общей площадью 38.2 кв.м на Вторчермете! Описание: Дом новый, свежий ремонтСветлая и тёплая атмосфера внутри Удобная планировка и продуманное пространствоВысота этажа: 20-й этаж в 25-этажном домеИнфраструктура района: Рядом развитая инфраструктура, парковки, детский сад, школа, магазины, аптекиЗакрытый благоустроенный двор обеспечит безопасность вашего пространства Идеально подойдёт семьям, ценящим комфорт и качество жилья!Свяжитесь с нами прямо сейчас, чтобы увидеть своё будущее жилище своими глазами! ID объекта в нашей базе: 8932
    размещено: 01.10.2025 , обновлено: 2.10.2025
  • 2-к квартира, Дорожная, 18

    • 72 м2
    • 11/25 этаж
    • Состояние:
    7 790 000 ₽ (108200 ₽/м2)
    Объект № 194529. ЖК Весна Атомстройкомплекс. Дом 2020 года постройки, с отдельностоящим наземным паркингом и своей закрытой территорией двора. Евро3: кухня-гостиная 21,43 кв. м., и 2 спальни по 17 и 16 кв.м., 2 санузла, лоджия 4 кв.м. Квартира в хорошем состоянии, кухонный гарнитур остаётся в квартире и входит в стоимость. За отдельную стоимость возможна продажа паркинга. Очень удобное место (1 уровень). ***Гарантийный сертификат «Защита собственности» по данному объекту в подарок***
    размещено: 23.09.2025 , обновлено: 1.10.2025
  • 3-к квартира, Дорожная, 18

    • 85 м2
    • 3/25 этаж
    • Состояние:
    9 500 000 ₽ (111800 ₽/м2)
    Объект № 194429. Светлая, просторная и очень уютная квартира в отличном состоянии! Заезжай и живи! Шикарная планировка: просторная кухня-гостиная и 3 изолированные спальни. В подарок остаётся шкаф- купе в прихожей, шкаф- гардероб в спальне, водонагреватель, кухонный гарнитур, варочная поверхность, посудомойка. Удобная транспортная развязка - до центра города 15 минут на авто по прямой, 5 мин - выезд на Объездную, можно быстро добраться в любой район. Все, что необходимо- в шаговой доступности! Ждем на просмотр! ***Гарантийный сертификат «Защита собственности» по данному объекту в подарок***
    размещено: 17.09.2025 , обновлено: 29.09.2025
  • 1-к квартира, Дорожная, 14

    • 46 м2
    • 3/25 этаж
    • Состояние:
    6 500 000 ₽ (141300 ₽/м2)
    Объект № 194231. Продам уютную квартиру с планировкой на разные стороны. Большая кухня-гостиная с зонированием, просторная прихожая с встроенным шкафом-купе, комната с выходом на балкон. В квартире поменяны межкомнатные двери, сделан ремонт в санузле, на балконе полностью заменен и утеплен стеклопакет, выведен свет, на полу и стенах положен кварцвинил. Счётчики на всё. В подарок остаётся кухонный гарнитур, шкаф-купе в коридоре, в спальне, кровать с подъемным механизмом и ящиками, горка в гостиной и мебель в санузле. Чистый подъезд. На этаже дополнительно установлено, видеонаблюдение. Дом с закрытой территорией и видеонаблюдением. Во дворе детские площадки, для детей разного возраста. В шаговой доступности вся необходимая инфраструктура: продуктовые супермаркеты, всевозможные магазины, детские садики и др. Удобная транспортная развязка с остановками общественного и выездом на ул. Московскую. Без обременений. ***Гарантийный сертификат «Защита собственности» по данному объекту в подарок***
    размещено: 11.09.2025 , обновлено: 1.10.2025
  • 2-к квартира, Дорожная, 18

    • 57 м2
    • 6/25 этаж
    • Состояние:
    7 100 000 ₽ (124600 ₽/м2)
    Объект № 194027. Продам уютную 2-комн. квартиру. Большая кухня-гостиная с выходом на балкон, просторная прихожая. В квартире заменена входная дверь, поменяны межкомнатные двери, сделан ремонт на балконе. Счётчики на всё. Остаётся кухонный гарнитур без техники, шкафы в комнате и прихожей, кровать и тумбочка комнате и мебель в санузле. Чистый подъезд. Дом с закрытой территорией и видеонаблюдением. Во дворе детские площадки, для детей разного возраста. В шаговой доступности вся необходимая инфраструктура: продуктовые супермаркеты, всевозможные магазины, детские садики и др. Удобная транспортная развязка с остановками общественного и выездом на ул. Московскую. ***Гарантийный сертификат «Защита собственности» по данному объекту в подарок***
    размещено: 01.09.2025 , обновлено: 29.09.2025

    4-к квартира, Дорожная, 14

    • 106.3 м2
    • 9/25 этаж
    • Состояние:
    12 500 000 ₽ (117600 ₽/м2)
    Продам прекрасную четырехкомнатную квартиру в ЖК Весна, дом кирпичный 2020 года от Атома. В квартире установлена качественная мебель и проведен дизайнерский ремонт с использованием дорогих и качественных материалов. Сантехника в ванной, на кухне и ванная Ravak, керамогранит kerama marazzi. Кухонный гарнитур и остров от кухонной студии «Мария». Столешница и остров изготовлены из искусственного камня. Оставляем кухонный гарнитур с техникой Bosch, спальню Дятьково. Частично мебель в комнатах. В подъезде три скоростных и бесшумных лифта. Уровень подачи отопления автоматически регулируется в зависимости от температуры воздуха за окном.В комплексе установлены фильтры доочистки воды.Большая придомовая территория с детской и спортивной площадками. Закрытая охраняемая территория, двор без машин, рядом с домом четырехэтажный паркинг. В подъезде есть колясочная, места для хранения спортивного инвентаря. Удобная транспортная развязка, наличие развитой инфраструктуры и множества торговых точек.В шаговой доступности от комплекса – остановки общественного транспорта, школы, садики, магазины, рядом - удобный выезд на Объездную автодорогу. Чистая продажа, два совершеннолетних собственника. МСК не использован. В обременении Сбера. Быстрый выход на сделку.Полный пакет документов, сопровождение и профессиональная поддержка сделки: -опытным агентом и юристом-помощь с ипотекой Гарантия безопасности сделки от агентства "БК_НЕДВИЖИМОСТЬ". ID объекта в нашей базе: 3116
    размещено: 04.08.2025 , обновлено: 26.09.2025

    3-к квартира, Дорожная, 18

    • 75.8 м2
    • 19/25 этаж
    • Состояние:
    9 290 000 ₽ (122600 ₽/м2)
    Продается уютная Евротрёшка в современном жилом комплексе Весна от застройщика Атомстройкомплекс, с просторной кухней-гостиной 28 кв. м,гардеробной и лоджией, с которой открываются прекрасные виды на город.Входная дверь, ламинат от застройщика, стены и потолки окрашены, в ванной на полу испанская плитка, натяжной потолок с точечным освещением. Счетчики на все: вода, электричество, тепло.В стоимость квартиры входит практически вся мебель:Кухня-гостиная: остается кухонный гарнитур со встроенной техникой испанского бренда Teka –холодильник, вытяжка, варочная панель, духовой шкаф, посудомоечная машина на 60, остров кухонный со стульями, трековые светильники, люстра. Также остается кондиционер Haier, стильный диван от диван.ру, кресло-шезлонг на лоджии.Коридор: в гардеробной наполнение титан, обувница, встроенный шкаф открытого типа в нише, люстра.Спальня: кровать от диван.ру с ортопедическим основанием(без матраса), прикроватные тумбы, встроенный шкаф в нише, шторы, люстра.Кабинет: Стол, стул, люстра, шторы.Ванная комната и санузел: вся сантехника(унитаз-инсталляция Berges), пенал, тумба-умывальник на 80, зеркало, стиральная машина LG.У дома есть большая функциональная детская площадка, корт, территория закрытая, подъезды и двор под видеонаблюдением. Есть придомовая наземная парковка для автомобилей и паркинг. Рядом остановка общественного транспорта и вся инфраструктура: магазины, аптеки, несколько школ и детских садов, парк. 1 взрослый собственник. ID объекта в нашей базе: 3888
    размещено: 23.03.2025 , обновлено: 19.09.2025

    3-к квартира, Дорожная, 14

    • 74 м2
    • 13/25 этаж
    • Состояние:
    10 200 000 ₽ (137800 ₽/м2)
    Это объявление предлагает к продаже просторную трехкомнатную квартиру в новом кирпичном доме, расположенном в жилом комплексе «Весна».Квартира находится на 13 этаже 25-этажного дома, что обеспечивает прекрасный вид из окон. Общая площадь квартиры составляет 74 кв.м.+ лоджия . Все комнаты изолированы , что делает квартиру идеальным выбором для большой семьи.Квартира включает в себя 3 отдельные жилые комнаты площадью 15, 11, и 13 кв.м., большую кухню-гостиную площадью 19 кв.м., два санузла.В подарок покупателю остаются прихожая со встроенным шкафом и кухонный гарнитур. Ремонт выполнен в дизайнерском исполнении, использованы качественные материалы: ламинат высокой степени износостойкости, красивые двери, немецкие обои под покраску, радиаторы отопления с терморегуляторами.В доме установлены три скоростных и бесшумных лифта. Жилой комплекс оснащен современными инженерными системами, включая автоматическую регулировку отопления в зависимости от температуры на улице и фильтры доочистки воды.Придомовая территория благоустроена: есть детская и спортивная площадки, закрытая охраняемая территория, паркинг. В подъезде предусмотрены колясочная и места для хранения спортивного инвентаря.Район обладает развитой инфраструктурой: в шаговой доступности находятся остановки общественного транспорта, школы, детские сады, магазины, а также удобный выезд на Объездную автодорогу.Приглашаем на просмотр.Торг. ID объекта в нашей базе: 8573
    размещено: 17.03.2025 , обновлено: 26.09.2025

    2-к квартира, Дорожная, 18

    5 100 000 ₽ (118600 ₽/м2)
    Объект № 189943. В продаже Шикарная евро2 в ЖК Весна. Застройщик Атомстройкомплекс. Рассмотрим обмен на любые ваши квартиры. Можно обменять дом и земельный участок. Возможна ипотека и мат. капитал. По всем вопросам звоните и пишите! ***Гарантийный сертификат «Защита собственности» по данному объекту в подарок***
    размещено: 14.02.2025 , обновлено: 30.09.2025

    2-к квартира, Дорожная, 14

    • 49.7 м2
    • 15/25 этаж
    • Состояние:
    6 330 000 ₽ (127400 ₽/м2)
    Просторная евро-двушка в новом доме. Квартиру делал для себя, с учетом комфорта и качества. Полностью укомплектована мебелью и техникой – заезжайте и живите!О квартире-Спальня: • Двухметровая кровать Hoff с подъемным ортопедическим основанием (дополнительное место для хранения). • Премиальный анатомический матрас Serta – для качественного сна. • Стеллаж IKEA. • Панорамные окна в пол.-Кухня: • Кухонный гарнитур под потолок – максимум хранения. • Вся техника остается: электроплита и вытяжка IKEA, посудомоечная машина Hansa, духовой шкаф Hansa, холодильник Ariston. • Уютная обеденная зона – стол и мягкие стулья.-Гостиная: • Большой диван (3,5 метра) из ткани IQ-шенил – легко очищается от загрязнений. • Идеальное состояние мебели и ремонта. • Тумба навесная под телевизор длиной 2,4 метра.-Коридор: • 3 вместительных модульных шкафа IKEA почти под потолок, с хорошими фасадами – укомплектованы удобной системой хранения с полками, рейлами и держателями.-Ванная: • Огромное зеркало во всю стену. • Вместительная тумба с большой раковиной. • Стиральная машина Samsung. • Качественная сантехника и электрика – делал на совесть.О доме и условиях • Своя котельная и управляющая компания – всегда тепло и порядок. • Низкие коммунальные платежи: летом ~3 000₽, зимой 4 000–5 000₽. • Все соседи – семейные, тихие и дружелюбные. • В квартире никто не живет.Ипотека сбербанка ID объекта в нашей базе: 3542
    размещено: 10.02.2025 , обновлено: 1.10.2025

    2-к квартира, Дорожная, 14

    • 63 м2
    • 24/25 этаж
    • Состояние:
    8 099 999 ₽ (128600 ₽/м2)
    Продаётся уютная двухкомнатная (ЕВРОтрешка) квартира площадью 63 квадратных метров на 24 этаже монолитного дома новой постройки (2020 год) в микрорайоне Вторчермет города Екатеринбурга. Адрес: улица Дорожная, дом 14.
В квартире выполнен качественный евроремонт, жилая площадь составляет 28 квадратных метров, а кухня-гостиная — 21 квадратный метр, что придает данной квартире функционал трехкомнатной квартиры. Имеется один балкон с встраиваемым шкафом, откуда открывается вид на благоустроенный двор. Санузел совмещённый и выложен кафелем. В квартире остается кухонная гарнитура, 3 встроенных шкафа и встроенная техника. Есть возможность оставить мебель, по договоренности. Расположение дома предоставляет отличные возможности для активного отдыха и занятий спортом благодаря наличию детской и спортивной площадок во дворе. Для автовладельцев предусмотрена охраняемая парковка со шлагбаумом. Территория дома закрыта, ведется видеонаблюдение, которое мониторит охрана дома. В шаговой доступности находятся все необходимые объекты инфраструктуры: школа, детский сад, торговый центр, парк и фитнес-центр. Это делает проживание здесь особенно комфортным как для семей с детьми, так и для тех, кто ценит удобство и разнообразие бытовых услуг. Приглашаем вас ознакомиться с этой прекрасной квартирой, которая может стать вашим новым уютным дом. ID объекта в нашей базе: 16807
    размещено: 02.12.2024 , обновлено: 19.09.2025

История предложений в этом доме

объявление снято с публикации в продаже комнат площадь этаж цена,
Екатеринбург, ул. Дорожная, 14 (Вторчермет) - фото квартиры 8 августа 2025 90 дн. 1 33.6 7/25 4 600 000
Екатеринбург, ул. Дорожная, 14 (Вторчермет) - фото квартиры 20 сентября 2025 90 дн. 2 46.4 9/25 6 299 000
Екатеринбург, ул. Дорожная, 18 (Вторчермет) - фото квартиры 30 сентября 2025 90 дн. 1 28 9/20 3 880 000
Екатеринбург, ул. Дорожная, 12 (Вторчермет) - фото квартиры 17 июля 2025 90 дн. 1 33.1 2/27 4 999 000
Екатеринбург, ул. Дорожная, 12 (Вторчермет) - фото квартиры 10 сентября 2025 90 дн. 1 33.4 8/27 4 190 000
Екатеринбург, ул. Дорожная, 18 (Вторчермет) - фото квартиры 19 августа 2025 90 дн. 2 53 5/17 6 500 000
Екатеринбург, ул. Дорожная, 14 (Вторчермет) - фото квартиры 17 июля 2025 90 дн. 1 35 3/25 4 250 000
Екатеринбург, ул. Дорожная, 18 (Вторчермет) - фото квартиры 9 июня 2025 90 дн. 1 26.9 17/25 4 070 000
Екатеринбург, ул. Дорожная, 12 (Вторчермет) - фото квартиры 1 августа 2025 90 дн. 1 41 4/27 4 795 000
Екатеринбург, ул. Дорожная, 14 (Вторчермет) - фото квартиры 7 июня 2025 90 дн. 1 33 8/25 4 650 000
Екатеринбург, ул. Дорожная, 12 (Вторчермет) - фото квартиры 18 мая 2025 90 дн. 1 27.9 7/27 3 599 000
Екатеринбург, ул. Дорожная, 14 (Вторчермет) - фото квартиры 24 мая 2025 90 дн. 1 33.8 18/25 4 599 000
Екатеринбург, ул. Дорожная, 18 (Вторчермет) - фото квартиры 16 августа 2025 90 дн. 2 75 16/25 7 650 000
Екатеринбург, ул. Дорожная, 18 (Вторчермет) - фото квартиры 6 мая 2025 90 дн. 2 57.6 8/25 6 900 000
Екатеринбург, ул. Дорожная, 14 (Вторчермет) - фото квартиры 19 апреля 2025 90 дн. 1 33.4 11/26 4 600 000
Екатеринбург, ул. Дорожная, 14 (Вторчермет) - фото квартиры 5 июля 2025 90 дн. 3 74 5/25 8 550 000
Екатеринбург, ул. Дорожная, 14 (Вторчермет) - фото квартиры 1 августа 2025 90 дн. 4 105.2 24/25 10 850 000
Екатеринбург, ул. Дорожная, 18 (Вторчермет) - фото квартиры 6 мая 2025 90 дн. 3 73.1 7/25 8 599 000
Екатеринбург, ул. Дорожная, 18 (Вторчермет) - фото квартиры 18 апреля 2025 90 дн. 1 39.8 14/25 4 850 000
Екатеринбург, ул. Дорожная, 18 (Вторчермет) - фото квартиры 19 января 2025 90 дн. 1 28 9/20 3 750 000
Екатеринбург, ул. Дорожная, 14 (Вторчермет) - фото квартиры 20 февраля 2025 90 дн. 4 73.2 14/25 7 650 000
Екатеринбург, ул. Дорожная, 18 (Вторчермет) - фото квартиры 14 января 2025 90 дн. 1 28 9/20 3 750 000
Екатеринбург, ул. Дорожная, 14 (Вторчермет) - фото квартиры 2 августа 2025 90 дн. 4 106.3 9/25 12 500 000
Екатеринбург, ул. Дорожная, 18 (Вторчермет) - фото квартиры 15 декабря 2024 90 дн. 1 28 9/20 3 750 000
Екатеринбург, ул. Дорожная, 12 (Вторчермет) - фото квартиры 29 ноября 2024 90 дн. 2 53 17/21 6 800 000
Екатеринбург, ул. Дорожная, 18 (Вторчермет) - фото квартиры 8 декабря 2024 90 дн. 2 39 15/25 4 450 000
Екатеринбург, ул. Дорожная, 14 (Вторчермет) - фото квартиры 27 ноября 2024 90 дн. 2 60 24/25 8 500 000
Екатеринбург, ул. Дорожная, 14 (Вторчермет) - фото квартиры 27 февраля 2025 90 дн. 4 105.2 24/25 12 190 000
Екатеринбург, ул. Дорожная, 18 (Вторчермет) - фото квартиры 20 сентября 2024 90 дн. 1 39 22/22 3 980 000
Екатеринбург, ул. Дорожная, 18 (Вторчермет) - фото квартиры 31 августа 2024 90 дн. 1 39.4 18/25 4 650 000

Похожие предложения о продаже квартир в Екатеринбурге (Вторчермет)

  • 3-к квартира, Братская, 27/1

    • 85.3 м2
    • 24/24 этаж
    • Состояние: хорошее
    9 000 000 ₽ (105500 ₽/м2)
    Содержательно о продаваемом 2-х уровневом пентхаусе в ЖК «Три Д Клуб»:- редкая по своим свойствам квартира, занимающая 23 и 24 этаж, функциональная планировка: 2 сан. узла, по одному на каждый этаж, 2 лоджии, приличных размеров гардеробная прямо при входе в квартиру, зона кухни и гостиной объединена, но площадь и наличие окон позволяет изолировать эти помещения друг то друга;- дополнительную привлекательность придают окна в пол с видом на город. Высота потолков – 2.7м, что дает больше воздуха и пространства. В случае привлечения дизайнера на этой территории можно воплотить много смелых, интересных идей;- жилой комплекс обладает всеми необходимыми качествами расположения дома: закрытая под шлагбаум парковка по периметру дома, сетевой магазин Перекресток прямо на первых коммерческих этажах, удобный выезд в центр и на объездную, ухоженная территория как внутри мест общего пользования, так и снаружи;- квартира готова к продаже: 2 взрослых собственника, оперативные сроки выхода на сделку, ипотека возможна.Вы можете получить более развёрнутое представление об объекте, посмотрев видео в объявлении, а также записавшись на персональную встречу. ID объекта в нашей базе: 11550
    размещено: 26.09.2025 , обновлено: 1.10.2025
  • 3-к квартира, Санаторная, 19

    • 78.7 м2
    • 15/17 этаж
    • Состояние: хорошее
    9 000 000 ₽ (114400 ₽/м2)
    Продается просторная 3-комнатная квартира в тихом кирпичном доме у парка ???? Идеальный вариант для тех, кто ценит комфорт, тишину и развитую инфраструктуру для семьи. ???? О квартире: Площадь 78,7 м²: Просторная кухня-гостиная 33,9 м² для приема гостей и две изолированные спальни (15,6 м² и 13,9 м²). Умное планировочное решение: Две гардеробные — порядок и удобство хранения гарантированы. Ремонт: Чистовая отделка. Заезжайте и живите или воплотите свои дизайнерские идеи. Этаж 15/17: Панорамный вид из окон и обилие солнечного света. Главное преимущество: Уникальные кирпичные стены 80 см. В квартире тихо (не слышно соседей) и тепло (экономия на коммуналке зимой). Главное преимущество этого места — оно выгодно отличается от всего района Вторчермет. Это не просто спальный район, а целый эко-кластер с развитой средой для комфортной жизни. Всё самое необходимое — в шаговой доступности: ???? Образование: Рядом несколько школ и детских садов с прекрасной репутацией. Школа №44 и Школа №156 — в 5 минутах неспешной прогулки. Не нужно возить ребенка через весь город — всё рядом. ???? Медицина: Детская поликлиника №13 — совсем близко. Взрослая поликлиника и круглосуточный травмпункт — в нескольких остановках на транспорте. Здоровье вашей семьи под надёжной защитой. ????‍♂️ Спорт и отдых: Вас ждёт современный ФОК «Чкаловский» (Физкультурно-оздоровительный комплекс) с бассейном, залами для единоборств и игровых видов спорта. Это уникальная инфраструктура для всего района! ???? Зелёная зона: Из окон открывается вид на Парк им. Чкалова и зону Камвольного комбината. Ваши дети будут гулять среди деревьев, а не среди гаражей. Свой закрытый двор без машин — безопасно и уютно. Почему это лучшее место в районе Вторчермет? Тишина и покой: Удачное расположение вдали от крупных промышленных предприятий и основных трасс. Чистый воздух: Обилие зелени и парков создаёт свой благоприятный микроклимат. Завершённая инфраструктура: Всё построено и работает — не нужно годами ждать обещанных магазинов и поликлиник. Транспорт: Остановка автобуса — 2 мин, трамвая — 5 мин. До центра города — быстро и удобно.???? Звоните сегодня! Покажем квартиру в удобное время. Поможем с ипотекой (работаем со всеми банками). Документы готовы, быстрый выход на сделку! Без обременений, ипотеки, опеки, один собственник с момента постройки дома. P.S. Остаётся кухня, встроенные шкафы. Не упустите шанс купить квартиру, где каждая деталь продумана для комфорта вашей семьи! ???? ID объекта в нашей базе: 576
    размещено: 24.09.2025 , обновлено: 29.09.2025
  • 3-к квартира, Дорожная, 18

    • 85 м2
    • 3/25 этаж
    • Состояние: хорошее
    9 500 000 ₽ (111800 ₽/м2)
    Объект № 194429. Светлая, просторная и очень уютная квартира в отличном состоянии! Заезжай и живи! Шикарная планировка: просторная кухня-гостиная и 3 изолированные спальни. В подарок остаётся шкаф- купе в прихожей, шкаф- гардероб в спальне, водонагреватель, кухонный гарнитур, варочная поверхность, посудомойка. Удобная транспортная развязка - до центра города 15 минут на авто по прямой, 5 мин - выезд на Объездную, можно быстро добраться в любой район. Все, что необходимо- в шаговой доступности! Ждем на просмотр! ***Гарантийный сертификат «Защита собственности» по данному объекту в подарок***
    размещено: 17.09.2025 , обновлено: 29.09.2025
  • 3-к квартира, Симферопольская, 37

    • 82 м2
    • 4/5 этаж
    • Состояние: хорошее
    6 800 000 ₽ (82900 ₽/м2)
    Большая 3-комнатная квартира для большой семьи!Отличное жилое состояние. После хорошего капитального ремонта: выровнены стены, установлены новые окна, натяжные потолки с точечным освещением, сантехника, поменяна эл/проводка, переделаны полы, выложен ламинат, на лоджии также ПВХ-профиль, установлены стеновые панели, на полу утеплитель и линолеум, в ванной и с/у керамическая плитка. Качественные деревянные межкомнатные двери, входная сейф-дверь.Классическая изолированная планировка: отдельные кухня, гостиная на два окна и с выходом на лоджию и 2 спальни на разные стороны, есть отдельная функциональная кладовая, просторная прихожая.В подарок покупателю остается кухонный гарнитур, встроенные шкафы.Бонусом - два охраняемых парковочных места!В шаговой доступности магазины, зеленые дворы с детскими площадками, до остановок общественного транспорта 5-7 минут пешком.Первые и единственные собственники. Чистая продажа. Ипотека любого банка. Документы проверены))Приглашаем на просмотры по предварительной договоренности. Звоните! На чаты не отвечаем, спасибо за понимание.#32военныйгородок#большаяквартира#улучшеннаяпдланировка ID объекта в нашей базе: 6536
    размещено: 15.09.2025 , обновлено: 27.09.2025
  • 3-к квартира, Братская, 27 корпус 3

    • 84 м2
    • 21/24 этаж
    • Состояние: идеальное
    10 990 000 ₽ (130800 ₽/м2)
    Вашему вниманию, ПОТРЯСАЮЩАЯ, ВИДОВАЯ квартира, в доме КОМФОРТ класса!Трехкомнатная квартира имеет смежно-изолированную планировку.КУХНЯ-ГОСТИНАЯ 31 кв.м. и ДВЕ изолированные комнаты. Кухня обособлена, с выходом на ПАНОРАМНУЮ, ОГРОМНУЮ ЛОДЖИЮ!Потрясающий вид на город!Качественный гарнитур (с Blum фурнитурой), встроенная ТЕХНИКА Bosh.Предусмотрено ВСЁ для КОМФОРТНОГО времяпровождения.Посудомоечная машина, духовой шкаф, микроволновая печь, место для встройки холодильника - ЕСТЬ ВСЁ!Обеденный, семейный стол и много места для свободного времяпровождения.Также, заслуживает ВНИМАНИЯ ванная комната, где есть и сама ВАННА и ДУШЕВАЯ! Санузел раздельный.Всё в идеальном состоянии, вложений не требует.ДЕТСКАЯ комната 18 кв.м., с функциональной мебелью.Очень ПРАКТИЧНО организовано пространство!Подиум (с ящиком для игрушек), рабочая парта и 2 кровати (выдвижные). Грамотно размещены шкафы. У детей есть МНОГО МЕСТА для игр.МАСТЕР-СПАЛЬНЯ 17 кв.м., со своей выделенной гардеробной (+3,5м.). При входе в квартиру, оборудован шкаф-купе во всю величину, ВМЕСТИТЕЛЬНЫЙ! Также, отдельно встроена обувница.В доме ОХРАНА, консьерж, видеонаблюдение.Есть ПАРКИНГ и открытая, бесплатная парковка во дворе.Двор ЗАКРЫТ!ВАЖНО: в доме своя котельная, организовано ТСН, НИЗКИЕ коммунальные платежи! Соседи приличные люди.Приглашаем на просмотр этой ВЕЛИКОЛЕПНОЙ квартиры!Запись по телефону. ID объекта в нашей базе: 1394
    размещено: 29.08.2025 , обновлено: 15.09.2025

    3-к квартира, Монтерская, 8/1

    • 62 м2
    • 14/25 этаж
    • Состояние: идеальное
    9 600 000 ₽ (154800 ₽/м2)
    Продается 3 комнатная квартира в ЖК H2O секция 1 в СДАННОМ 2025г. доме, с РЕМОНТОМ, с шикарным ВИДОМ на Уктусские горы и город, по цене ниже чем у застройщика.В ПОДАРОК кухонный гарнитур с встроенной техникой (на фото еще нет). Все три комнаты изолированы, в коридоре ниша под шкаф-купе, теплая лоджия - можно убрать перегородку и расширить кухню. Видовой 14 этаж - окна на две стороны света Восток и Север. Есть свой паркинг (в рекламе нет, пока не продаем) можем сдать в аренду.В доме: Собственная котельная (низкие коммунальные платежи); Многоступенчатая система фильтрации воды; Скоростные и бесшумные лифты; Система телеметрии; Горизонтальная разводка отопления; Энергосберегающие окна; Подземный паркинг; Коммерческие помещения на первом этаже.Закрытый двор, охрана/консьерж, разнообразные детские и спортивные площадки, беседки, фонтаны, много зелени. Красивые холлы с зонами ожидания, диванами, барной стойкой, водопадом, туалетом, колясочной, постоматами, Wi-Fi и пр.В шаговой доступности: школы, детсады, транспорт: трамвай и автобус, поликлиника, 10 минут пешком до парка РТИ, 15 минут пешком до района Ботанический - вся инфраструктура на высоте.Рядом застраивается новый современный микрорайон "Южная Ботаника", объединяющий нескольких застройщиков одной концепцией развития территории, где будет фитнесс центр с бассейном, скверы, центральный бульвар, аллеи, дендропарк, фонтаны, амфитеатр и т.п.Ключи на сделке! Чистая продажа, без обременений ID объекта в нашей базе: 10982
    размещено: 27.08.2025 , обновлено: 25.09.2025

    3-к квартира, Аптекарская, 45

    • 62.5 м2
    • 7/12 этаж
    • Состояние: хорошее
    7 150 000 ₽ (114400 ₽/м2)
    Объект № 193445. Продается светлая квартира с просторными изолированными комнатами — идеальное пространство для жизни вашей семьи! Окна выходят сразу на две приятные зоны: тихий дворик и живописный парк. Удобство быта обеспечено близостью всей необходимой инфраструктуры: всего в нескольких минутах пешком расположены школа, детский сад, магазины, фитнес-центры и медицинские учреждения. Отличная транспортная доступность позволит вам быстро добраться в любую точку города. Возможен приятный бонус — оставляем всю имеющуюся мебель по вашему желанию. Собственников двое взрослых, юридически всё чисто и прозрачно — никаких обременений. Создайте комфорт своего дома именно там, где хочется жить и отдыхать душой! Звоните прямо сейчас, мы ждём вас. ***Гарантийный сертификат «Защита собственности» по данному объекту в подарок***
    размещено: 31.07.2025 , обновлено: 29.09.2025

    3-к квартира, Симферопольская, 38

    • 79.2 м2
    • 3/5 этаж
    • Состояние: хорошее
    6 999 000 ₽ (88400 ₽/м2)
    В продаже трехкомнатная квартира. в доме улучшенной планировки! РАЙОН: Чкаловский район, Вторчермет. ДВОР: Тихий, спокойный, есть видео наблюдение, удален от шумных дорог. ДОМ: 1993 года постройки. Чистый и ухоженный подъезд, Светлая и теплая квартира, расположенная на 3 этаже. Комнаты изолированные, правильной формы, что способствует функционально расставлять мебель. Планировка: комнаты 21.2 кв.м. 14.2 кв.м. 10.6 , кухня 11.4 кв.м. В квартире большая лоджия метражом 7 кв.м. застеклена и обшита изнутри. Установлены счетчики холодной и горячей воды, домофон, качественная сейф-дверь. Дом расположен в удобном, тихом районе , с которого не составит труда добраться в центр города, выехав на Ул. Московскую. рядом находятся детский сад (практически во дворе) магазины, Воинский Храм архангела Гавриила, и общественный транспорт! (ост. Палисадная улица) Удобство и комфорт вашей семьи гарантированы! Эта квартира — отличный выбор для большой семьи, ищущей уют, комфорт и функциональность. ID объекта в нашей базе: 17506
    размещено: 05.06.2025 , обновлено: 19.09.2025

    3-к квартира, Дорожная, 18

    • 75.8 м2
    • 19/25 этаж
    • Состояние: идеальное
    9 290 000 ₽ (122600 ₽/м2)
    Продается уютная Евротрёшка в современном жилом комплексе Весна от застройщика Атомстройкомплекс, с просторной кухней-гостиной 28 кв. м,гардеробной и лоджией, с которой открываются прекрасные виды на город.Входная дверь, ламинат от застройщика, стены и потолки окрашены, в ванной на полу испанская плитка, натяжной потолок с точечным освещением. Счетчики на все: вода, электричество, тепло.В стоимость квартиры входит практически вся мебель:Кухня-гостиная: остается кухонный гарнитур со встроенной техникой испанского бренда Teka –холодильник, вытяжка, варочная панель, духовой шкаф, посудомоечная машина на 60, остров кухонный со стульями, трековые светильники, люстра. Также остается кондиционер Haier, стильный диван от диван.ру, кресло-шезлонг на лоджии.Коридор: в гардеробной наполнение титан, обувница, встроенный шкаф открытого типа в нише, люстра.Спальня: кровать от диван.ру с ортопедическим основанием(без матраса), прикроватные тумбы, встроенный шкаф в нише, шторы, люстра.Кабинет: Стол, стул, люстра, шторы.Ванная комната и санузел: вся сантехника(унитаз-инсталляция Berges), пенал, тумба-умывальник на 80, зеркало, стиральная машина LG.У дома есть большая функциональная детская площадка, корт, территория закрытая, подъезды и двор под видеонаблюдением. Есть придомовая наземная парковка для автомобилей и паркинг. Рядом остановка общественного транспорта и вся инфраструктура: магазины, аптеки, несколько школ и детских садов, парк. 1 взрослый собственник. ID объекта в нашей базе: 3888
    размещено: 23.03.2025 , обновлено: 19.09.2025

    3-к квартира, Дорожная, 14

    • 74 м2
    • 13/25 этаж
    • Состояние: идеальное
    10 200 000 ₽ (137800 ₽/м2)
    Это объявление предлагает к продаже просторную трехкомнатную квартиру в новом кирпичном доме, расположенном в жилом комплексе «Весна».Квартира находится на 13 этаже 25-этажного дома, что обеспечивает прекрасный вид из окон. Общая площадь квартиры составляет 74 кв.м.+ лоджия . Все комнаты изолированы , что делает квартиру идеальным выбором для большой семьи.Квартира включает в себя 3 отдельные жилые комнаты площадью 15, 11, и 13 кв.м., большую кухню-гостиную площадью 19 кв.м., два санузла.В подарок покупателю остаются прихожая со встроенным шкафом и кухонный гарнитур. Ремонт выполнен в дизайнерском исполнении, использованы качественные материалы: ламинат высокой степени износостойкости, красивые двери, немецкие обои под покраску, радиаторы отопления с терморегуляторами.В доме установлены три скоростных и бесшумных лифта. Жилой комплекс оснащен современными инженерными системами, включая автоматическую регулировку отопления в зависимости от температуры на улице и фильтры доочистки воды.Придомовая территория благоустроена: есть детская и спортивная площадки, закрытая охраняемая территория, паркинг. В подъезде предусмотрены колясочная и места для хранения спортивного инвентаря.Район обладает развитой инфраструктурой: в шаговой доступности находятся остановки общественного транспорта, школы, детские сады, магазины, а также удобный выезд на Объездную автодорогу.Приглашаем на просмотр.Торг. ID объекта в нашей базе: 8573
    размещено: 17.03.2025 , обновлено: 26.09.2025

    3-к квартира, Селькоровская, 80/2

    • 83.7 м2
    • 9/9 этаж
    • Состояние: хорошее
    7 650 000 ₽ (91400 ₽/м2)
    В продаже БОЛЬШАЯ и теплая трехкомнатная квартира, объединена из 2-х комнатной и 1-комнатной квартиры, в квартире две больших лоджии, в одной из которых теплые полы и утепление, и выполняет функцию отдельной комнаты или кабинета. В зале тоже установлены теплые полы. Большой коридор с системой хранения вещей, шкаф-купе, раздельный санузел. Квартиру при желании можно разделить на две. Перепланировка узаконена. Два взрослых собственника с самой постройки дома. Маткапитал не использовался. Ипотечных хвостов нет! Быстрый выход на сделку! ID объекта в нашей базе: 3712
    размещено: 28.01.2025 , обновлено: 21.09.2025

    3-к квартира, Братская, 6

    • 81 м2
    • 1/3 этаж
    • Состояние: хорошее
    6 700 000 ₽ (82700 ₽/м2)
    Объект № 185234. Лучшее предложение! В продаже просторная и светлая квартира в доме полнометражного типа. Квартира на две стороны, общей площадью 82 квадратных метра, имеет три просторные комнаты, огромный коридор, раздельный санузел и кухню-столовую. Полностью меблирована, сделан качественный ремонт. Локация топовая - окна выходят на школу № 106! В шаговой доступности вся необходимая инфраструктура: школы, детские сады, продуктовые магазины, аптеки, Сбербанк, поликлиника, несколько парков, ФОК и многое другое. Отличная транспортная доступность- можно быстро добраться в любую точку города на общественном транспорте или авто. Объект без залогов и детских долей, один взрослый собственник. Эту квартиру можно купить в ипотеку по согласованной сниженной ставке или без первоначального взноса. Ждем Вас на просмотр! ***Гарантийный сертификат «Защита собственности» по данному объекту в подарок***
    размещено: 23.07.2024 , обновлено: 30.09.2025

Новостройки Екатеринбург, мкр-н. Вторчермет

Приоритет

Увеличивает просмотры в 3 раза

Ваше объявление показывается в списке выше обычных объявлений. подключить