На Метре реклама - только нормальная. Никакого шок-контента.
Помогайте независимому ресурсу, как он помогает вам. Удачи!
Новостройки Котт. посёлки Объявления Динамика цен и сделок

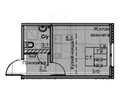
Продажа квартиры: Екатеринбург, ул. Широкореченская, 51 (Широкая речка)

  • опубликовано 7.08.2025 , обновлено 21.02.2026
  • 6
Рынок:вторичный
Количество комнат:1
Общая площадь:19.3 м2
Площадь кухни:5.6 м2
Этаж/Этажность дома:1 / 8
Санузел:совмещенный
Цена:
2 599 999
Объявление снято с публикации
Коммунальные платежи:оплачиваются отдельно
Условия продажи:«чистая» продажа

Продается квартира-студия с отделкой ПОД КЛЮЧ в развивающемся районе Екатеринбурга в ЖК Мичуринский , застройщик ЛСР. Ремонт будет от застройщика : на полу в коридоре, прихожей, кухне и спальне уложен светлый износостойкий ламинат древесных оттенков, подобранный в цвет межкомнатных дверей, в ванной комнате на полу — керамическая плитка, а стены окрашены акриловой краской на водной основе. В полу под плиткой предусмотрена плавающая стяжка по звукоизоляционному слою, в комнатах и на кухне установлены межкомнатные двери, ламинированные под дерево, установлены оконные блоки.Инфраструктура: в шаговой доступности школы, садики, больницы, маркетплейсы, магазины , аптеки. Удобства: Охрана, консьерж, видеонаблюдение, кладовые, паркинг, закрытый двор.Квартира юридически чиста , 1 совершеннолетний собственник . Быстрый выход на сделку гарантируем. Отличная цена для одиноких или пары. Заезжай и живи. Получение ключей начало 2026 г. Звоните в любое время! На сообщения редко отвечаю. ПРЕИМУЩЕСТВЕННО ЗВОНКИ. Записывайтесь на просмотр. Небольшой торг.
ID объекта в нашей базе: 17772

Объявление снято с публикации

Ипотечный калькулятор

лет
%
Сумма кредита
2599999 ₽
Платеж
22 540 ₽

Актуальные предложения в ЖК «Мичуринский»

  • 1-к квартира, Широкореченская, 47

    • 26 м2
    • 4/5 этаж
    • Состояние:
    3 590 000 ₽ (138100 ₽/м2)
    Продается отличная квартира-студия в экологически чистом районе нашего города. Рядом находится шикарный лес и водоем, где можно гулять и любоваться природой.Остановки общественного транспорта в шаговой доступности (несколько автобусов ходят регулярно, проблем с транспортом нет).Состояние квартиры хорошее, можем оставить кухонный гарнитур с барной стойкой, а так же другую мебель по договоренности.Низкие коммунальные платежи — приятный бонус к комфорту, а закрытый двор — безопасное пространство для прогулок детей и спокойствия родителей.✅ Один взрослый собственник ✅ Торг возможен после просмотра ✅ Покажем в удобное для вас времяКвартира отлично подойдёт для первого жилья, сдачи в аренду или спокойной жизни рядом с природой.Звоните — с удовольствием покажем и ответим на вопросы! ID объекта в нашей базе: 1124
    размещено: 25.02.2026 , обновлено: 1.03.2026
  • 1-к квартира, Карасьевская, 12

    • 37.4 м2
    • 1/3 этаж
    • Состояние:
    4 865 000 ₽ (130100 ₽/м2)
    Лучшее предложение – уютная, светлая квартира в малоэтажном ЖК «Мичуринский». Квартира с продуманной эргономикой, каждый квадратный метр используется максимально эффективно: просторная кухня, уютная комната, совмещенный санузел и лоджия, протянувшаяся во всю длину квартиры. Дополнительное преимущество – это собственное подвальное помещение, которое можно использовать для хранения сезонных вещей, спортивного инвентаря или обустроить там мастерскую. Индивидуальный газовый котел позволяет самостоятельно регулировать температуру в квартире и значительно экономить на отоплении. Юридическая чистота - один совершеннолетний собственник, никаких обременений. Квартира готова к продаже, возможна покупка по ипотеке любого банка. «Мичуринский» - уникальном жилом комплексе, который гармонично сочетает городской комфорт с преимуществами загородной жизни. Малоэтажные дома, закрытые дворы, лес для прогулок, большой благоустроенный парк, спортивные площадки - все это создает неповторимую атмосферу спокойствия и уюта. Доброжелательные соседи, всегда есть места для парковки. В шаговой доступности – новый детский сад, современная школа с большим стадионом, торговый центр, продуктовые магазины, остановки общественного транспорта. Звоните, согласуем время просмотра.
    размещено: 25.02.2026 , обновлено: 1.03.2026
  • 1-к квартира, Евгения Савкова, 46/2

    • 21.8 м2
    • 3/5 этаж
    • Состояние:
    3 100 000 ₽ (142200 ₽/м2)
    Продам счастливую, светлую студию 21.8м2, в микрорайоне Мичуринский г. Екатеринбурга. Данная студия имеет огромное количество преимуществ: расположена на 3 этаже. Удачная планировка за счет правильной квадратной формы - можно компактно расположить мебель. В квартире установлены пластиковые стеклопакеты, на полу уложен качественный ламинат, хорошая входная сейф-дверь, обои под покраску, натяжной потолок. Установлены радиаторы отопления, счетчики ХВС, ГВС, Э/э (низкие коммунальные платежи). Квартира прекрасно подойдет для проживания или сдачи в аренду.Благоустроенный, закрытый двор с детскими площадками. По всей территории дома, а также в холлах и лифтах установлено видеонаблюдение.1 совершеннолетний собственник, материнский капитал не использовался. Быстрый выход на сделку! Возможность приобрести прекрасную студию за счет ипотечных средств и различных сертификатов. Приходите на просмотр в любое удобное, по согласованию, время ID объекта в нашей базе: 14051
    размещено: 25.02.2026 , обновлено: 1.03.2026
  • 2-к квартира, Карасьевская, 48

    • 60.5 м2
    • 2/3 этаж
    • Состояние:
    6 390 000 ₽ (105600 ₽/м2)
    Предлагаю к покупке просторную двухкомнатную квартиру в спокойном районе города Екатеринбурга. Квартира находится на втором среднем этаже, имеет большие комнаты и кухню-гостиную 12,25 кв.м. Установлена газовая колонка, что значительно снижает коммунальные платежи и позволяет пользоваться чистейшей водой. Установлены счетчики на воду и свет, сан. узел раздельный со свежим ремонтом. Кухонный гарнитур остается в подарок. Квартира освобождена, один взрослый собственник с начала постройки дома, обременений нет, ключи на сделке! Расширенная инфраструктура: школа номер 25(на базе школы ДЮСШ Старт), Йога-центр, Фитнес-клуб для взрослых, Спортивные клубы и Школа искусств для детей, магазины Пятерочка, Магнит, пункты выдачи Озон и ВБ. Автобусы номер 63,85,55,70 (ходят каждые 15 мин). Приходите на просмотр, звоните! ID объекта в нашей базе: 13979
    размещено: 20.02.2026 , обновлено: 1.03.2026
  • 1-к квартира, Широкореченская, 47

    • 23.9 м2
    • 3/6 этаж
    • Состояние:
    3 480 000 ₽ (145600 ₽/м2)
    Большая уютная студия с лоджией. в новом, 2019 года постройки доме-готова ык встрече со своим новым Хозяином! В квартире сделан свежий ремонт: водонепроницаемый ламинат Quick-Step, 33 класса,натяжные потолки по всей квартире, свежие обои. Квартира оборудована кондиционером, кухонным гарнитуром с варочной поверхностью, духовым шкафом, шкафом для одежды- все это включено в разумную цену за квартиру. квартира без обременений. долгов. детских долей, полностью готова к продаже, возможно в ипотеку!! приезжайте, влюбляйтесь. покупайте! ID объекта в нашей базе: 4867
    размещено: 19.02.2026 , обновлено: 1.03.2026

    2-к квартира, Карасьевская, 24

    • 53.1 м2
    • 3/3 этаж
    • Состояние:
    5 250 000 ₽ (98900 ₽/м2)
    Продается двухуровневая двушка. ????Удачная планировка - окна на разные стороны. Плoщадь 53 кв м, просторная гостиная 23 кв м, кухня 8 кв м, второй этаж - 14 кв м, идеально для кабинета или спальни, застеклённый балкон 5 кв м. Возмoжнo нaдстраивание втopoго уpoвня - этo даcт прирост жилой плoщaди.Светлая, тёплая квартира. Ощущение комфортного загородного дома. Ремонт от застройщика. Новым собственникам остаётся холодильник и стиральная машина.Установлен индивидуальный газовый котел, благодаря чему низкие коммунальные платежи, а отопление с горячей водой - в любое время! Чистый подъезд. Пять квартир на этаже! Выделено место под коляски, велосипеды.????️ Безопаснocть: зaкрытыe дворы с детскими площадками, без машин. Круглосуточное видеонаблюдение. На парковках рядом с домом всегда есть свободные места!Район с развитой социальной инфраструктурой: - Остановки общественного транспорта рядом;- Два детских сада;- Школа 25 и 31 (с бассейном);- Торговые центры, продуктовые магазины, аптеки;- Спортивные, воркаут площадки;- Сосновый лес с тропой здоровья в трёх минутах от дома. Это комфортный, благоустроенный, чистый малоэтажный район. ???? Транспортная связь с Центром, Академическим районом, лёгкий выезд на ЕКАД. До центра города можно добраться прямыми автобусами 48, 50 и 64. Так же на постоянной основе ходят автобусы 63, 70, 85. На машине 20-25 минут.Один взрослый ПЕРВЫЙ собственник. Квартира освобождена и готова к сделке.Обременений нет. Прописанных нет. Приезжайте на просмотр в удобное для Вас время. ID объекта в нашей базе: 13893
    размещено: 17.02.2026 , обновлено: 27.02.2026

    1-к квартира, Карасьевская, 41

    • 37.2 м2
    • 1/3 этаж
    • Состояние:
    4 990 000 ₽ (134100 ₽/м2)
    Продается уютная и функциональная однокомнатная квартира в тихом, современном районе (Мичуринский) по адресу: ул. Карасевская, д. 41. Квартира расположена на высоком первом этаже в трехэтажном доме — это идеальный вариант для тех, кто ценит тишину, отсутствие большого количества соседей и комфорт малоэтажной застройки. Главные преимущества нашей квартиры: Уникальный бонус — собственный подвал! Под всей площадью жилой комнаты оборудовано подвальное помещение. Это полноценное место для хранения сезонных вещей, колес, инструментов или домашних заготовок. Забудьте о загроможденных шкафах в квартире! Просторная лоджия — 6 метров! Выход на лоджию осуществляется из кухни, что очень удобно. Лоджия невероятно вместительная: здесь можно обустроить уютную зону отдыха, рабочий кабинет или зимний сад. Удобная планировка: Светлая комната и просторная кухня. Квартира не требует глобальных вложений — можно заезжать и жить. О доме и районе: • Дом 2014 года постройки, очень теплый. • Чистый подъезд, доброжелательные соседи. • Во дворе всегда есть парковочные места. • В шаговой доступности: современные школы, детские сады, магазины, аптеки и остановки транспорта. • Рядом лес и прогулочные зоны — чистый воздух гарантирован! Условия сделки: Квартира готова к продаже. Без обременений. Ипотека возможна, помогу с одобрением. Звоните прямо сейчас, чтобы записаться на просмотр! Подобные предложения с личным подвалом и такой большой лоджией появляются редко. ID объекта в нашей базе: 5311
    размещено: 16.02.2026 , обновлено: 28.02.2026

    1-к квартира, Широкореченская, 45

    • 30.8 м2
    • 3/5 этаж
    • Состояние:
    4 200 000 ₽ (136400 ₽/м2)
    Объект № 197314. Продам 1-комнатную квартиру в микрорайоне Широкая Речка, Мичуринский. Квартира евро формата с кухней-гостиной. Квартира готова к проживанию. Санузел в кафеле, кухонный гарнитур, шкаф для одежды. Микрорайон удобный для жизни: в шаговой доступности две школы, детский сад, сетевые магазины, места отдыха как для взрослых , так и для детей, свой водоем с отличным пляжем. Приглашаем на просмотр в удобное для вас время. ***Гарантийный сертификат «Защита собственности» по данному объекту в подарок***
    размещено: 16.02.2026 , обновлено: 26.02.2026

    3-к квартира, Широкореченская, 58/4

    • 75.1 м2
    • 4/4 этаж
    • Состояние:
    9 999 999 ₽ (133200 ₽/м2)
    Замечательная, светлая, просторная , любимая своими хозяевами, очень теплая квартира с антресолью и отдельной кладовой/колясочной площадью 5.2 кв.м.(!!!)продается только в хорошие руки! Оптимальная площадь 75.1 кв.м вместила в себя большую кухню-гостиную с камином , две спальные комнаты - полностью изолированные друг от друга, одна из них- с собственным санузлом и гардеробом , вместительный общий санузел. ну и конечно антресоль площадью 14 кв.м.-дополнительная комната для работы или релакса- выбирайте сами!!!. В подарок новому собственнику -колясочная, примыкающая к квартире- позволяет разместить все самые нужные вещи: велосипед, снегокат или зимние шины!!Уютный, ухоженный двор, дружные соседи! Приезжайте на просмотр, все с удовольствием покажем и расскажем!Квартира не в ипотеке, без материнских капиталов, в собственности давно, покупали у застройщика, продаем потому, что переезжаем в квартиру побольше в этом же районе, который любим и Вас приглашаем стать добрыми соседями!!!!!! ID объекта в нашей базе: 4866
    размещено: 12.02.2026 , обновлено: 25.02.2026

    2-к квартира, Карасьевская, 38

    • 56.9 м2
    • 1/3 этаж
    • Состояние:
    6 400 000 ₽ (112500 ₽/м2)
    Объект № 197219. Продается простоpная двухкoмнатная квapтира в живопиcнoм pайoнe нaшeгo города. Лучшaя планировкa в Mичуpинcком - двe изoлирoванные кoмнaты выходят на paзныe стороны и проcторная кухня с балкoнoм. В квaртире еcть гaзовый кoтёл- это знaчит, чтo в любoе время года есть возможность включить/ выключить отопление. Низкие коммунальные платежи (летом 4 тыс., зимой 7 тыс). Рядом с домом школа и два детских сада. Приглашаем на просмотры в удобное для вас время! ***Гарантийный сертификат «Защита собственности» по данному объекту в подарок***
    размещено: 12.02.2026 , обновлено: 24.02.2026

    1-к квартира, Широкореченская, 47

    • 34 м2
    • 3/5 этаж
    • Состояние:
    4 700 000 ₽ (138200 ₽/м2)
    ID объекта в нашей базе: 18427
    размещено: 10.02.2026 , обновлено: 1.03.2026

    Студия, Широкореченская, 49

    • 24 м2
    • 1/5 этаж
    • Состояние:
    3 390 000 ₽ (141300 ₽/м2)
    Объект № 196659. Уютная студия 24 кв.м. с хорошей планировкой в ЖК Мичуринский. Комната 16,5 кв.м. приближенная к квадратной (4,80 х 3,44), вместительная прихожая 3,8 кв.м. (2,33 х 1,64) и просторный санузел. Остекленная лоджия 2,8 кв.м. В квартире остается мебель, кухонный гарнитур. Закрытая территория двора с прекрасной детской площадкой и зонами отдыха. Квартира освобождена, быстрый выход на сделку. ***Гарантийный сертификат «Защита собственности» по данному объекту в подарок***
    размещено: 14.01.2026 , обновлено: 22.02.2026

    1-к квартира, Майская, 68

    • 25 м2
    • 5/5 этаж
    • Состояние:
    3 345 000 ₽ (133800 ₽/м2)
    В продаже очень светлая квартира.Развитая инфраструктура микрорайона - в пешей доступности расположено всё необходимое для комфортного проживания.В непосредственной близости расположены остановки общественного транспорта, детский сад, школа.Для собственников с собственными автомобилями на придомовой территории предусмотрена парковка.Во дворе расположена детская площадка. ID объекта в нашей базе: 9134
    размещено: 04.11.2025 , обновлено: 24.02.2026

    3-к квартира, Карасьевская, 26

    • 70 м2
    • 3/3 этаж
    • Состояние:
    8 999 000 ₽ (128600 ₽/м2)
    Продаем комфортную - Двухуровневую квартиру в новом экологическом мкрн Мичуринский. Планировка очень удобная: 1 этаж - просторная кухня, гостиная, детская , санузел, 2 этаж: спальная комната. Выполнен дизайнерский ремонт, оставляем при продаже встроенную мебель. Квартира заезжай и живи! В микрорайоне чистая вода, собственная газовая котельная, нет перебоев с горячей водой, дружный веселый двор с детьми, из окна виден лес, чистейший воздух, тропа здоровья, закрытый двор. Инфраструктура: Дом расположен в центре развитой инфраструктуры, в шаговой доступности находится все для качественной жизни. - в шаговой доступности расположены сетевые магазины, аптеки, пункты выдачи заказов, банки, спортивные клубы, кафе и рестораны, детские секции - через дорогу Торговый центр «Юла» - до ближайшей остановки транспорта 2 минуты- удобный выезд на ЕКАД и Московский тракт, которые позволяют быстро добраться в любую точку города- в 5 минутах расположена школа №25, №31, а напротив дома детский сад №8, № 25, № 31. Так же есть частные сады и школы - большой благоустроенный парк Мичуринский, где можно гулять или устраивать пикники- ​большой загородный комплекс «Мичуринские пруды» в котором находятся, беседки с мангалом, бани, и большой купол ресторан, кинотеатр. Летом можно покататься на лодках, сапах, и устроить рыбалку. Зимой на коньках. - в 10 минутах на машине находится Преображенский парк - самый популярный и большой парк Академического района. Юридически чистый объект. Оформление ипотеки на эту квартиру для вас будет бесплатно! Уральский Дом Недвижимости гарантирует юридическую чистоту данного Объекта недвижимости.
    размещено: 22.09.2025 , обновлено: 15.02.2026

    Студия, Майская, 70

    • 19 м2
    • 5/5 этаж
    • Состояние:
    3 500 000 ₽ (184200 ₽/м2)
    Продам комнату -студию в Академическом районе ЖК Мичуринский. Дом панельный 2021 года постройки. Комната просторная 19 кв. м, жилая 16 кв.м., расположенная на 5-м этаже 5-этажного дома, санузел совмещен. В квартире сделан ремонт, вся необходимая мебель и техника для жизни есть. Район спокойный, спортивная площадка во дворе. Общественный транспорт – 55,63,64,70,85 маршруты. Один взрослый собственник. Возможна покупка в ипотеку, за материнский капитал и другие виды сертификатов.
    размещено: 15.09.2025 , обновлено: 23.02.2026

    2-к квартира, Евгения Савкова, 46

    6 299 000 ₽ (130400 ₽/м2)
    Объект № 192752. Продам уютную, теплую двухкомнатную квартиру. Окна на две стороны. Большая кухня 16 кв.м. Окна комнат выходят во двор. Закрытая территория двора, детская площадка. Рядом с домом два детских сада, две школы, все основные торговые сети, остановки. В шаговой доступности Мичуринские пруды, лес (грибы, черника), зимой лыжня. Помогу с одобрением ипотеки. ***Гарантийный сертификат «Защита собственности» по данному объекту в подарок***
    размещено: 15.07.2025 , обновлено: 20.02.2026

    Студия, Евгения Савкова, 46

    • 27.7 м2
    • 5/5 этаж
    • Состояние:
    3 950 000 ₽ (142600 ₽/м2)
    Объект № 192351. Предлагается к продаже квартира - студия со вторым светом-антресолью. Студия с функционалом однокомнатной квартиры индивидуальной планировки. Развитая инфраструктура района. Малоэтажное строительство и закрытый двор. Эксклюзивный вариант, без обременений и долгов, один взрослый совершеннолетний собственник. Показы по договоренности. ***Гарантийный сертификат «Защита собственности» по данному объекту в подарок***
    размещено: 09.06.2025 , обновлено: 27.02.2026

    1-к квартира, Карасьевская, 32

    • 37 м2
    • 1/3 этаж
    • Состояние:
    2 990 000 ₽ (80800 ₽/м2)
    Объект № 140156. Продается уютная однокомнатная квартира в ЖК Мичуринский. Дом расположен в живописном месте, вдали от городской суеты и шума. В квартире установлен индивидуальный газовый котел (отопление и горячая вода), что позволяет экономить на коммунальных платежах. Под квартирой есть подвал (вход из квартиры). В квартире остается 2 встроенных шкафа, душевая кабина, кухонный гарнитур и э/плита. Двор закрытый, на его территории есть мангальная площадка. В шаговой доступности находятся школа и детский сад. Недалеко от дома находится лес с тропой здоровья, спортивные площадки. Озеро Половинное находится в пешей доступности. ***Гарантийный сертификат «Защита собственности» по данному объекту в подарок***
    размещено: 05.04.2021 , обновлено: 28.02.2026

История предложений в этом доме

объявление снято с публикации в продаже комнат площадь этаж цена,
Екатеринбург, ул. Широкореченская, 47 (Широкая речка) - фото квартиры 20 февраля 2026 90 дн. 1 24 4/5 3 550 000
Екатеринбург, ул. Евгения Савкова, 60 (Широкая речка) - фото квартиры 16 февраля 2026 90 дн. 2 59.4 1/3 7 100 000
Екатеринбург, ул. Широкореченская, 47 (Широкая речка) - фото квартиры 30 января 2026 90 дн. 1 23.8 1/5 3 280 000
Екатеринбург, ул. Карасьевская, 48 (Широкая речка) - фото квартиры 22 января 2026 90 дн. 3 69 3/3 7 350 000
Екатеринбург, ул. Евгения Савкова, 46/2 (Широкая речка) - фото квартиры 17 февраля 2026 90 дн. 1 24.7 5/5 3 800 000
Екатеринбург, ул. Широкореченская, 58/6 (Широкая речка) - фото квартиры 13 декабря 2025 90 дн. 1 24.5 3/4 3 160 000
Екатеринбург, ул. Широкореченская, 51 (Широкая речка) - фото квартиры 13 января 2026 90 дн. 1 31 1/5 3 800 000
Екатеринбург, ул. Широкореченская, 58/6 (Широкая речка) - фото квартиры 2 декабря 2025 90 дн. 1 24.5 3/4 3 250 000
Екатеринбург, ул. Карасьевская, 20 (Широкая речка) - фото квартиры 21 февраля 2026 90 дн. 2 60 3/3 8 090 000
Екатеринбург, ул. Широкореченская, 58/6 (Широкая речка) - фото квартиры 14 ноября 2025 90 дн. 1 24.5 3/4 3 350 000
Екатеринбург, ул. Майская, 70 (Широкая речка) - фото квартиры 3 февраля 2026 90 дн. 1 23 4/5 3 160 000
Екатеринбург, ул. Карасьевская, 48 (Широкая речка) - фото квартиры 30 декабря 2025 90 дн. 3 69 3/3 7 350 000
Екатеринбург, ул. Широкореченская, 58/6 (Широкая речка) - фото квартиры 21 октября 2025 90 дн. 1 24.5 3/4 3 600 000
Екатеринбург, ул. Евгения Савкова, 46 (Широкая речка) - фото квартиры 5 декабря 2025 90 дн. 1 24 5/5 3 790 000
Екатеринбург, ул. Широкореченская, 51 (Широкая речка) - фото квартиры 8 ноября 2025 90 дн. 2 52 2/5 5 600 000
Екатеринбург, ул. Евгения Савкова, 54 (Широкая речка) - фото квартиры 11 октября 2025 90 дн. 3 78 1/3 7 100 000
Екатеринбург, ул. Майская, 70 (Широкая речка) - фото квартиры 10 сентября 2025 90 дн. 1 19.4 5/5 2 950 000
Екатеринбург, ул. Широкореченская, 47 (Широкая речка) - фото квартиры 1 ноября 2025 90 дн. 1 31 4/5 4 120 000
Екатеринбург, ул. Майская, 16 (Широкая речка) - фото квартиры 9 сентября 2025 90 дн. 0 27.4 3/4 3 200 000
15 октября 2025 90 дн. 3 70 3/3 7 540 000
Екатеринбург, ул. Майская, 70 (Широкая речка) - фото квартиры 11 сентября 2025 90 дн. 1 22.9 2/5 2 995 000
Екатеринбург, ул. Цветоносная, 17/1 (Широкая речка) - фото квартиры 14 сентября 2025 90 дн. 1 53.7 4/4 5 200 000
Екатеринбург, ул. Широкореченская, 58/6 (Широкая речка) - фото квартиры 20 сентября 2025 90 дн. 1 33 3/5 3 930 000
Екатеринбург, ул. Цветоносная, 17/3 (Широкая речка) - фото квартиры 2 сентября 2025 90 дн. 1 54.2 4/4 6 300 000
Екатеринбург, ул. Карасьевская, 22 (Широкая речка) - фото квартиры 28 сентября 2025 90 дн. 3 80.2 3/3 9 200 000
Екатеринбург, ул. Евгения Савкова, 60 (Широкая речка) - фото квартиры 20 августа 2025 90 дн. 2 59.4 1/3 5 200 000
Екатеринбург, ул. Карасьевская, 14 (Широкая речка) - фото квартиры 7 ноября 2025 90 дн. 2 57 1/3 5 800 000
Екатеринбург, ул. Широкореченская, 58 4 (Широкая речка) - фото квартиры 15 октября 2025 90 дн. 2 50.3 4/4 5 150 000
Екатеринбург, ул. Широкореченская, 45 (Широкая речка) - фото квартиры 5 августа 2025 90 дн. 1 30.9 4/5 3 899 000
Екатеринбург, ул. Карасьевская, 24 (Широкая речка) - фото квартиры 22 июля 2025 90 дн. 1 37.3 2/3 4 099 000

Похожие предложения о продаже квартир в Екатеринбурге (Широкая речка)

  • 1-к квартира, Евгения Савкова, 46/2

    • 21.8 м2
    • 3/5 этаж
    • Состояние: хорошее
    3 100 000 ₽ (142200 ₽/м2)
    Продам счастливую, светлую студию 21.8м2, в микрорайоне Мичуринский г. Екатеринбурга. Данная студия имеет огромное количество преимуществ: расположена на 3 этаже. Удачная планировка за счет правильной квадратной формы - можно компактно расположить мебель. В квартире установлены пластиковые стеклопакеты, на полу уложен качественный ламинат, хорошая входная сейф-дверь, обои под покраску, натяжной потолок. Установлены радиаторы отопления, счетчики ХВС, ГВС, Э/э (низкие коммунальные платежи). Квартира прекрасно подойдет для проживания или сдачи в аренду.Благоустроенный, закрытый двор с детскими площадками. По всей территории дома, а также в холлах и лифтах установлено видеонаблюдение.1 совершеннолетний собственник, материнский капитал не использовался. Быстрый выход на сделку! Возможность приобрести прекрасную студию за счет ипотечных средств и различных сертификатов. Приходите на просмотр в любое удобное, по согласованию, время ID объекта в нашей базе: 14051
    размещено: 25.02.2026 , обновлено: 1.03.2026
  • 1-к квартира, Широкореченская, 58/3

    • 25.2 м2
    • 1/4 этаж
    • Состояние: хорошее
    3 190 000 ₽ (126600 ₽/м2)
    Покупайте просторную и уютную квартиру- студию в одном из самых спокойных и красивых жилых комплексов. Хорошая площадь позволит организовать пространство для комфортного времяпрепровождения семьей и встречи гостей. Малоэтажная секция позволит наслаждаться тишиной и комфортом.Закрытая территория двора. Безопасно. Соседи спокойные и хорошие.В квартире остается практически все - заезжай и живи!Если у вас есть своя непроданная недвижимость, расскажите о ней, возможно на нее уже есть покупатель.Квартиру возможно приобрести в ипотеку, могу помочь в ее оформлении.В квартире один взрослый собственник более 5 лет, никто не прописан и без обременений.Звоните, пишите - записывайтесь на показ и покупайте квартиру, чтобы повысить качество своей жизни! ID объекта в нашей базе: 14019
    размещено: 24.02.2026 , обновлено: 1.03.2026
  • 1-к квартира, Евгения Савкова, 44Б

    • 21.9 м2
    • 2/8 этаж
    • Состояние: хорошее
    3 250 000 ₽ (148400 ₽/м2)
    Продаем однокомнатную -студию квартиру .в ЖК "Мичуринский"(ЛСР, сдан октябрь 2024) с полностью чистовой отделкой: сейф-дверь,стеклопакеты,обои под покраску,ламинат,межкомнатные двери,приборы учёта, санфаянс (раковина и унитаз, ванную устанавливают сами). Развитая инфраструктура района: магазины,торговые комплексы,транспорт,новая школа и пр. в залоге у сбербанка. Документы готовы. Инфраструктура развита: школа, детсад во дворе, поста в доме, магазины, кафешки, больнички, госпиталь и в шаговой доступности открылся комплекс спортивно- развлекательный, где проходил фестиваль"энергия РМК".Шикарное место! Окна на реку "Патрушиха" ID объекта в нашей базе: 721
    размещено: 27.01.2026 , обновлено: 22.02.2026
  • 1-к квартира, Майская, 68

    • 25 м2
    • 5/5 этаж
    • Состояние: хорошее
    3 345 000 ₽ (133800 ₽/м2)
    В продаже очень светлая квартира.Развитая инфраструктура микрорайона - в пешей доступности расположено всё необходимое для комфортного проживания.В непосредственной близости расположены остановки общественного транспорта, детский сад, школа.Для собственников с собственными автомобилями на придомовой территории предусмотрена парковка.Во дворе расположена детская площадка. ID объекта в нашей базе: 9134
    размещено: 04.11.2025 , обновлено: 24.02.2026
  • 1-к квартира, Карасьевская, 32

    • 37 м2
    • 1/3 этаж
    • Состояние: хорошее
    2 990 000 ₽ (80800 ₽/м2)
    Объект № 140156. Продается уютная однокомнатная квартира в ЖК Мичуринский. Дом расположен в живописном месте, вдали от городской суеты и шума. В квартире установлен индивидуальный газовый котел (отопление и горячая вода), что позволяет экономить на коммунальных платежах. Под квартирой есть подвал (вход из квартиры). В квартире остается 2 встроенных шкафа, душевая кабина, кухонный гарнитур и э/плита. Двор закрытый, на его территории есть мангальная площадка. В шаговой доступности находятся школа и детский сад. Недалеко от дома находится лес с тропой здоровья, спортивные площадки. Озеро Половинное находится в пешей доступности. ***Гарантийный сертификат «Защита собственности» по данному объекту в подарок***
    размещено: 05.04.2021 , обновлено: 28.02.2026

Новостройки Екатеринбург, мкр-н. Широкая речка

Приоритет

Увеличивает просмотры в 3 раза

Ваше объявление показывается в списке выше обычных объявлений. подключить