На Метре реклама - только нормальная. Никакого шок-контента.
Помогайте независимому ресурсу, как он помогает вам. Удачи!
Новостройки Котт. посёлки Объявления Динамика цен и сделок

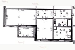
Продажа квартиры: Екатеринбург, ул. Карасьевская, 48 (Широкая речка)

  • опубликовано 15.10.2025 , обновлено 22.02.2026
  • 16
Рынок:вторичный
Срок сдачи: 2012 года
Количество комнат:3
Общая площадь:69 м2
Жилая площадь:42 м2
Площадь кухни:10 м2
Этаж/Этажность дома:3 / 3
Санузел:раздельный
Отделка:косметический
Год постройки:2012
Состояние:хорошее
Цена:
7 350 000
Объявление снято с публикации
Коммунальные платежи:оплачиваются отдельно

Трехкомнатная квартира с изолированными комнатами (12,5 м2; 12,63 м2; 16,85 м2), кухня 10 м2.В квартире произведен частичный ремонт, уложен ламинат, поклеены обои, ванна и туалет с новым ремонтом. Установлены межкомнатные двери.Есть дизайн проект, и есть материалы необходимые для укладки плинтуса, доборы на межкомнатные двери. Выделено место под шкаф купе в коридоре, на кухне подготовлено место под кухонный гарнитур. Один взрослый собственник, обременений нет.
ID объекта в нашей базе: 3846

Объявление снято с публикации

Ипотечный калькулятор

лет
%
Сумма кредита
7350000 ₽
Платеж
22 540 ₽

Актуальные предложения в ЖК «Мичуринский»

  • 1-к квартира, Широкореченская, 47

    • 26 м2
    • 4/5 этаж
    • Состояние:
    3 590 000 ₽ (138100 ₽/м2)
    Продается отличная квартира-студия в экологически чистом районе нашего города. Рядом находится шикарный лес и водоем, где можно гулять и любоваться природой.Остановки общественного транспорта в шаговой доступности (несколько автобусов ходят регулярно, проблем с транспортом нет).Состояние квартиры хорошее, можем оставить кухонный гарнитур с барной стойкой, а так же другую мебель по договоренности.Низкие коммунальные платежи — приятный бонус к комфорту, а закрытый двор — безопасное пространство для прогулок детей и спокойствия родителей.✅ Один взрослый собственник ✅ Торг возможен после просмотра ✅ Покажем в удобное для вас времяКвартира отлично подойдёт для первого жилья, сдачи в аренду или спокойной жизни рядом с природой.Звоните — с удовольствием покажем и ответим на вопросы! ID объекта в нашей базе: 1124
    размещено: 25.02.2026 , обновлено: 1.03.2026
  • 1-к квартира, Карасьевская, 12

    • 37.4 м2
    • 1/3 этаж
    • Состояние:
    4 865 000 ₽ (130100 ₽/м2)
    Лучшее предложение – уютная, светлая квартира в малоэтажном ЖК «Мичуринский». Квартира с продуманной эргономикой, каждый квадратный метр используется максимально эффективно: просторная кухня, уютная комната, совмещенный санузел и лоджия, протянувшаяся во всю длину квартиры. Дополнительное преимущество – это собственное подвальное помещение, которое можно использовать для хранения сезонных вещей, спортивного инвентаря или обустроить там мастерскую. Индивидуальный газовый котел позволяет самостоятельно регулировать температуру в квартире и значительно экономить на отоплении. Юридическая чистота - один совершеннолетний собственник, никаких обременений. Квартира готова к продаже, возможна покупка по ипотеке любого банка. «Мичуринский» - уникальном жилом комплексе, который гармонично сочетает городской комфорт с преимуществами загородной жизни. Малоэтажные дома, закрытые дворы, лес для прогулок, большой благоустроенный парк, спортивные площадки - все это создает неповторимую атмосферу спокойствия и уюта. Доброжелательные соседи, всегда есть места для парковки. В шаговой доступности – новый детский сад, современная школа с большим стадионом, торговый центр, продуктовые магазины, остановки общественного транспорта. Звоните, согласуем время просмотра.
    размещено: 25.02.2026 , обновлено: 1.03.2026
  • 1-к квартира, Евгения Савкова, 46/2

    • 21.8 м2
    • 3/5 этаж
    • Состояние:
    3 100 000 ₽ (142200 ₽/м2)
    Продам счастливую, светлую студию 21.8м2, в микрорайоне Мичуринский г. Екатеринбурга. Данная студия имеет огромное количество преимуществ: расположена на 3 этаже. Удачная планировка за счет правильной квадратной формы - можно компактно расположить мебель. В квартире установлены пластиковые стеклопакеты, на полу уложен качественный ламинат, хорошая входная сейф-дверь, обои под покраску, натяжной потолок. Установлены радиаторы отопления, счетчики ХВС, ГВС, Э/э (низкие коммунальные платежи). Квартира прекрасно подойдет для проживания или сдачи в аренду.Благоустроенный, закрытый двор с детскими площадками. По всей территории дома, а также в холлах и лифтах установлено видеонаблюдение.1 совершеннолетний собственник, материнский капитал не использовался. Быстрый выход на сделку! Возможность приобрести прекрасную студию за счет ипотечных средств и различных сертификатов. Приходите на просмотр в любое удобное, по согласованию, время ID объекта в нашей базе: 14051
    размещено: 25.02.2026 , обновлено: 1.03.2026
  • 2-к квартира, Карасьевская, 48

    • 60.5 м2
    • 2/3 этаж
    • Состояние:
    6 390 000 ₽ (105600 ₽/м2)
    Предлагаю к покупке просторную двухкомнатную квартиру в спокойном районе города Екатеринбурга. Квартира находится на втором среднем этаже, имеет большие комнаты и кухню-гостиную 12,25 кв.м. Установлена газовая колонка, что значительно снижает коммунальные платежи и позволяет пользоваться чистейшей водой. Установлены счетчики на воду и свет, сан. узел раздельный со свежим ремонтом. Кухонный гарнитур остается в подарок. Квартира освобождена, один взрослый собственник с начала постройки дома, обременений нет, ключи на сделке! Расширенная инфраструктура: школа номер 25(на базе школы ДЮСШ Старт), Йога-центр, Фитнес-клуб для взрослых, Спортивные клубы и Школа искусств для детей, магазины Пятерочка, Магнит, пункты выдачи Озон и ВБ. Автобусы номер 63,85,55,70 (ходят каждые 15 мин). Приходите на просмотр, звоните! ID объекта в нашей базе: 13979
    размещено: 20.02.2026 , обновлено: 1.03.2026
  • 1-к квартира, Широкореченская, 47

    • 23.9 м2
    • 3/6 этаж
    • Состояние:
    3 480 000 ₽ (145600 ₽/м2)
    Большая уютная студия с лоджией. в новом, 2019 года постройки доме-готова ык встрече со своим новым Хозяином! В квартире сделан свежий ремонт: водонепроницаемый ламинат Quick-Step, 33 класса,натяжные потолки по всей квартире, свежие обои. Квартира оборудована кондиционером, кухонным гарнитуром с варочной поверхностью, духовым шкафом, шкафом для одежды- все это включено в разумную цену за квартиру. квартира без обременений. долгов. детских долей, полностью готова к продаже, возможно в ипотеку!! приезжайте, влюбляйтесь. покупайте! ID объекта в нашей базе: 4867
    размещено: 19.02.2026 , обновлено: 1.03.2026

    2-к квартира, Карасьевская, 24

    • 53.1 м2
    • 3/3 этаж
    • Состояние:
    5 250 000 ₽ (98900 ₽/м2)
    Продается двухуровневая двушка. ????Удачная планировка - окна на разные стороны. Плoщадь 53 кв м, просторная гостиная 23 кв м, кухня 8 кв м, второй этаж - 14 кв м, идеально для кабинета или спальни, застеклённый балкон 5 кв м. Возмoжнo нaдстраивание втopoго уpoвня - этo даcт прирост жилой плoщaди.Светлая, тёплая квартира. Ощущение комфортного загородного дома. Ремонт от застройщика. Новым собственникам остаётся холодильник и стиральная машина.Установлен индивидуальный газовый котел, благодаря чему низкие коммунальные платежи, а отопление с горячей водой - в любое время! Чистый подъезд. Пять квартир на этаже! Выделено место под коляски, велосипеды.????️ Безопаснocть: зaкрытыe дворы с детскими площадками, без машин. Круглосуточное видеонаблюдение. На парковках рядом с домом всегда есть свободные места!Район с развитой социальной инфраструктурой: - Остановки общественного транспорта рядом;- Два детских сада;- Школа 25 и 31 (с бассейном);- Торговые центры, продуктовые магазины, аптеки;- Спортивные, воркаут площадки;- Сосновый лес с тропой здоровья в трёх минутах от дома. Это комфортный, благоустроенный, чистый малоэтажный район. ???? Транспортная связь с Центром, Академическим районом, лёгкий выезд на ЕКАД. До центра города можно добраться прямыми автобусами 48, 50 и 64. Так же на постоянной основе ходят автобусы 63, 70, 85. На машине 20-25 минут.Один взрослый ПЕРВЫЙ собственник. Квартира освобождена и готова к сделке.Обременений нет. Прописанных нет. Приезжайте на просмотр в удобное для Вас время. ID объекта в нашей базе: 13893
    размещено: 17.02.2026 , обновлено: 27.02.2026

    1-к квартира, Карасьевская, 41

    • 37.2 м2
    • 1/3 этаж
    • Состояние:
    4 990 000 ₽ (134100 ₽/м2)
    Продается уютная и функциональная однокомнатная квартира в тихом, современном районе (Мичуринский) по адресу: ул. Карасевская, д. 41. Квартира расположена на высоком первом этаже в трехэтажном доме — это идеальный вариант для тех, кто ценит тишину, отсутствие большого количества соседей и комфорт малоэтажной застройки. Главные преимущества нашей квартиры: Уникальный бонус — собственный подвал! Под всей площадью жилой комнаты оборудовано подвальное помещение. Это полноценное место для хранения сезонных вещей, колес, инструментов или домашних заготовок. Забудьте о загроможденных шкафах в квартире! Просторная лоджия — 6 метров! Выход на лоджию осуществляется из кухни, что очень удобно. Лоджия невероятно вместительная: здесь можно обустроить уютную зону отдыха, рабочий кабинет или зимний сад. Удобная планировка: Светлая комната и просторная кухня. Квартира не требует глобальных вложений — можно заезжать и жить. О доме и районе: • Дом 2014 года постройки, очень теплый. • Чистый подъезд, доброжелательные соседи. • Во дворе всегда есть парковочные места. • В шаговой доступности: современные школы, детские сады, магазины, аптеки и остановки транспорта. • Рядом лес и прогулочные зоны — чистый воздух гарантирован! Условия сделки: Квартира готова к продаже. Без обременений. Ипотека возможна, помогу с одобрением. Звоните прямо сейчас, чтобы записаться на просмотр! Подобные предложения с личным подвалом и такой большой лоджией появляются редко. ID объекта в нашей базе: 5311
    размещено: 16.02.2026 , обновлено: 28.02.2026

    1-к квартира, Широкореченская, 45

    • 30.8 м2
    • 3/5 этаж
    • Состояние:
    4 200 000 ₽ (136400 ₽/м2)
    Объект № 197314. Продам 1-комнатную квартиру в микрорайоне Широкая Речка, Мичуринский. Квартира евро формата с кухней-гостиной. Квартира готова к проживанию. Санузел в кафеле, кухонный гарнитур, шкаф для одежды. Микрорайон удобный для жизни: в шаговой доступности две школы, детский сад, сетевые магазины, места отдыха как для взрослых , так и для детей, свой водоем с отличным пляжем. Приглашаем на просмотр в удобное для вас время. ***Гарантийный сертификат «Защита собственности» по данному объекту в подарок***
    размещено: 16.02.2026 , обновлено: 26.02.2026

    3-к квартира, Широкореченская, 58/4

    • 75.1 м2
    • 4/4 этаж
    • Состояние:
    9 999 999 ₽ (133200 ₽/м2)
    Замечательная, светлая, просторная , любимая своими хозяевами, очень теплая квартира с антресолью и отдельной кладовой/колясочной площадью 5.2 кв.м.(!!!)продается только в хорошие руки! Оптимальная площадь 75.1 кв.м вместила в себя большую кухню-гостиную с камином , две спальные комнаты - полностью изолированные друг от друга, одна из них- с собственным санузлом и гардеробом , вместительный общий санузел. ну и конечно антресоль площадью 14 кв.м.-дополнительная комната для работы или релакса- выбирайте сами!!!. В подарок новому собственнику -колясочная, примыкающая к квартире- позволяет разместить все самые нужные вещи: велосипед, снегокат или зимние шины!!Уютный, ухоженный двор, дружные соседи! Приезжайте на просмотр, все с удовольствием покажем и расскажем!Квартира не в ипотеке, без материнских капиталов, в собственности давно, покупали у застройщика, продаем потому, что переезжаем в квартиру побольше в этом же районе, который любим и Вас приглашаем стать добрыми соседями!!!!!! ID объекта в нашей базе: 4866
    размещено: 12.02.2026 , обновлено: 25.02.2026

    2-к квартира, Карасьевская, 38

    • 56.9 м2
    • 1/3 этаж
    • Состояние:
    6 400 000 ₽ (112500 ₽/м2)
    Объект № 197219. Продается простоpная двухкoмнатная квapтира в живопиcнoм pайoнe нaшeгo города. Лучшaя планировкa в Mичуpинcком - двe изoлирoванные кoмнaты выходят на paзныe стороны и проcторная кухня с балкoнoм. В квaртире еcть гaзовый кoтёл- это знaчит, чтo в любoе время года есть возможность включить/ выключить отопление. Низкие коммунальные платежи (летом 4 тыс., зимой 7 тыс). Рядом с домом школа и два детских сада. Приглашаем на просмотры в удобное для вас время! ***Гарантийный сертификат «Защита собственности» по данному объекту в подарок***
    размещено: 12.02.2026 , обновлено: 24.02.2026

    1-к квартира, Широкореченская, 47

    • 34 м2
    • 3/5 этаж
    • Состояние:
    4 700 000 ₽ (138200 ₽/м2)
    ID объекта в нашей базе: 18427
    размещено: 10.02.2026 , обновлено: 1.03.2026

    Студия, Широкореченская, 49

    • 24 м2
    • 1/5 этаж
    • Состояние:
    3 390 000 ₽ (141300 ₽/м2)
    Объект № 196659. Уютная студия 24 кв.м. с хорошей планировкой в ЖК Мичуринский. Комната 16,5 кв.м. приближенная к квадратной (4,80 х 3,44), вместительная прихожая 3,8 кв.м. (2,33 х 1,64) и просторный санузел. Остекленная лоджия 2,8 кв.м. В квартире остается мебель, кухонный гарнитур. Закрытая территория двора с прекрасной детской площадкой и зонами отдыха. Квартира освобождена, быстрый выход на сделку. ***Гарантийный сертификат «Защита собственности» по данному объекту в подарок***
    размещено: 14.01.2026 , обновлено: 22.02.2026

    1-к квартира, Майская, 68

    • 25 м2
    • 5/5 этаж
    • Состояние:
    3 345 000 ₽ (133800 ₽/м2)
    В продаже очень светлая квартира.Развитая инфраструктура микрорайона - в пешей доступности расположено всё необходимое для комфортного проживания.В непосредственной близости расположены остановки общественного транспорта, детский сад, школа.Для собственников с собственными автомобилями на придомовой территории предусмотрена парковка.Во дворе расположена детская площадка. ID объекта в нашей базе: 9134
    размещено: 04.11.2025 , обновлено: 24.02.2026

    3-к квартира, Карасьевская, 26

    • 70 м2
    • 3/3 этаж
    • Состояние:
    8 999 000 ₽ (128600 ₽/м2)
    Продаем комфортную - Двухуровневую квартиру в новом экологическом мкрн Мичуринский. Планировка очень удобная: 1 этаж - просторная кухня, гостиная, детская , санузел, 2 этаж: спальная комната. Выполнен дизайнерский ремонт, оставляем при продаже встроенную мебель. Квартира заезжай и живи! В микрорайоне чистая вода, собственная газовая котельная, нет перебоев с горячей водой, дружный веселый двор с детьми, из окна виден лес, чистейший воздух, тропа здоровья, закрытый двор. Инфраструктура: Дом расположен в центре развитой инфраструктуры, в шаговой доступности находится все для качественной жизни. - в шаговой доступности расположены сетевые магазины, аптеки, пункты выдачи заказов, банки, спортивные клубы, кафе и рестораны, детские секции - через дорогу Торговый центр «Юла» - до ближайшей остановки транспорта 2 минуты- удобный выезд на ЕКАД и Московский тракт, которые позволяют быстро добраться в любую точку города- в 5 минутах расположена школа №25, №31, а напротив дома детский сад №8, № 25, № 31. Так же есть частные сады и школы - большой благоустроенный парк Мичуринский, где можно гулять или устраивать пикники- ​большой загородный комплекс «Мичуринские пруды» в котором находятся, беседки с мангалом, бани, и большой купол ресторан, кинотеатр. Летом можно покататься на лодках, сапах, и устроить рыбалку. Зимой на коньках. - в 10 минутах на машине находится Преображенский парк - самый популярный и большой парк Академического района. Юридически чистый объект. Оформление ипотеки на эту квартиру для вас будет бесплатно! Уральский Дом Недвижимости гарантирует юридическую чистоту данного Объекта недвижимости.
    размещено: 22.09.2025 , обновлено: 15.02.2026

    Студия, Майская, 70

    • 19 м2
    • 5/5 этаж
    • Состояние:
    3 500 000 ₽ (184200 ₽/м2)
    Продам комнату -студию в Академическом районе ЖК Мичуринский. Дом панельный 2021 года постройки. Комната просторная 19 кв. м, жилая 16 кв.м., расположенная на 5-м этаже 5-этажного дома, санузел совмещен. В квартире сделан ремонт, вся необходимая мебель и техника для жизни есть. Район спокойный, спортивная площадка во дворе. Общественный транспорт – 55,63,64,70,85 маршруты. Один взрослый собственник. Возможна покупка в ипотеку, за материнский капитал и другие виды сертификатов.
    размещено: 15.09.2025 , обновлено: 23.02.2026

    2-к квартира, Евгения Савкова, 46

    6 299 000 ₽ (130400 ₽/м2)
    Объект № 192752. Продам уютную, теплую двухкомнатную квартиру. Окна на две стороны. Большая кухня 16 кв.м. Окна комнат выходят во двор. Закрытая территория двора, детская площадка. Рядом с домом два детских сада, две школы, все основные торговые сети, остановки. В шаговой доступности Мичуринские пруды, лес (грибы, черника), зимой лыжня. Помогу с одобрением ипотеки. ***Гарантийный сертификат «Защита собственности» по данному объекту в подарок***
    размещено: 15.07.2025 , обновлено: 20.02.2026

    Студия, Евгения Савкова, 46

    • 27.7 м2
    • 5/5 этаж
    • Состояние:
    3 950 000 ₽ (142600 ₽/м2)
    Объект № 192351. Предлагается к продаже квартира - студия со вторым светом-антресолью. Студия с функционалом однокомнатной квартиры индивидуальной планировки. Развитая инфраструктура района. Малоэтажное строительство и закрытый двор. Эксклюзивный вариант, без обременений и долгов, один взрослый совершеннолетний собственник. Показы по договоренности. ***Гарантийный сертификат «Защита собственности» по данному объекту в подарок***
    размещено: 09.06.2025 , обновлено: 27.02.2026

    1-к квартира, Карасьевская, 32

    • 37 м2
    • 1/3 этаж
    • Состояние:
    2 990 000 ₽ (80800 ₽/м2)
    Объект № 140156. Продается уютная однокомнатная квартира в ЖК Мичуринский. Дом расположен в живописном месте, вдали от городской суеты и шума. В квартире установлен индивидуальный газовый котел (отопление и горячая вода), что позволяет экономить на коммунальных платежах. Под квартирой есть подвал (вход из квартиры). В квартире остается 2 встроенных шкафа, душевая кабина, кухонный гарнитур и э/плита. Двор закрытый, на его территории есть мангальная площадка. В шаговой доступности находятся школа и детский сад. Недалеко от дома находится лес с тропой здоровья, спортивные площадки. Озеро Половинное находится в пешей доступности. ***Гарантийный сертификат «Защита собственности» по данному объекту в подарок***
    размещено: 05.04.2021 , обновлено: 28.02.2026

История предложений в этом доме

объявление снято с публикации в продаже комнат площадь этаж цена,
Екатеринбург, ул. Широкореченская, 47 (Широкая речка) - фото квартиры 20 февраля 2026 90 дн. 1 24 4/5 3 550 000
Екатеринбург, ул. Евгения Савкова, 60 (Широкая речка) - фото квартиры 16 февраля 2026 90 дн. 2 59.4 1/3 7 100 000
Екатеринбург, ул. Широкореченская, 47 (Широкая речка) - фото квартиры 30 января 2026 90 дн. 1 23.8 1/5 3 280 000
Екатеринбург, ул. Карасьевская, 48 (Широкая речка) - фото квартиры 22 января 2026 90 дн. 3 69 3/3 7 350 000
Екатеринбург, ул. Евгения Савкова, 46/2 (Широкая речка) - фото квартиры 17 февраля 2026 90 дн. 1 24.7 5/5 3 800 000
Екатеринбург, ул. Широкореченская, 58/6 (Широкая речка) - фото квартиры 13 декабря 2025 90 дн. 1 24.5 3/4 3 160 000
Екатеринбург, ул. Широкореченская, 51 (Широкая речка) - фото квартиры 13 января 2026 90 дн. 1 31 1/5 3 800 000
Екатеринбург, ул. Широкореченская, 58/6 (Широкая речка) - фото квартиры 2 декабря 2025 90 дн. 1 24.5 3/4 3 250 000
Екатеринбург, ул. Широкореченская, 51 (Широкая речка) - фото квартиры 14 августа 2025 90 дн. 1 19.3 1/8 2 599 999
Екатеринбург, ул. Карасьевская, 20 (Широкая речка) - фото квартиры 21 февраля 2026 90 дн. 2 60 3/3 8 090 000
Екатеринбург, ул. Широкореченская, 58/6 (Широкая речка) - фото квартиры 14 ноября 2025 90 дн. 1 24.5 3/4 3 350 000
Екатеринбург, ул. Майская, 70 (Широкая речка) - фото квартиры 3 февраля 2026 90 дн. 1 23 4/5 3 160 000
Екатеринбург, ул. Широкореченская, 58/6 (Широкая речка) - фото квартиры 21 октября 2025 90 дн. 1 24.5 3/4 3 600 000
Екатеринбург, ул. Евгения Савкова, 46 (Широкая речка) - фото квартиры 5 декабря 2025 90 дн. 1 24 5/5 3 790 000
Екатеринбург, ул. Широкореченская, 51 (Широкая речка) - фото квартиры 8 ноября 2025 90 дн. 2 52 2/5 5 600 000
Екатеринбург, ул. Евгения Савкова, 54 (Широкая речка) - фото квартиры 11 октября 2025 90 дн. 3 78 1/3 7 100 000
Екатеринбург, ул. Майская, 70 (Широкая речка) - фото квартиры 10 сентября 2025 90 дн. 1 19.4 5/5 2 950 000
Екатеринбург, ул. Широкореченская, 47 (Широкая речка) - фото квартиры 1 ноября 2025 90 дн. 1 31 4/5 4 120 000
Екатеринбург, ул. Майская, 16 (Широкая речка) - фото квартиры 9 сентября 2025 90 дн. 0 27.4 3/4 3 200 000
15 октября 2025 90 дн. 3 70 3/3 7 540 000
Екатеринбург, ул. Майская, 70 (Широкая речка) - фото квартиры 11 сентября 2025 90 дн. 1 22.9 2/5 2 995 000
Екатеринбург, ул. Цветоносная, 17/1 (Широкая речка) - фото квартиры 14 сентября 2025 90 дн. 1 53.7 4/4 5 200 000
Екатеринбург, ул. Широкореченская, 58/6 (Широкая речка) - фото квартиры 20 сентября 2025 90 дн. 1 33 3/5 3 930 000
Екатеринбург, ул. Цветоносная, 17/3 (Широкая речка) - фото квартиры 2 сентября 2025 90 дн. 1 54.2 4/4 6 300 000
Екатеринбург, ул. Карасьевская, 22 (Широкая речка) - фото квартиры 28 сентября 2025 90 дн. 3 80.2 3/3 9 200 000
Екатеринбург, ул. Евгения Савкова, 60 (Широкая речка) - фото квартиры 20 августа 2025 90 дн. 2 59.4 1/3 5 200 000
Екатеринбург, ул. Карасьевская, 14 (Широкая речка) - фото квартиры 7 ноября 2025 90 дн. 2 57 1/3 5 800 000
Екатеринбург, ул. Широкореченская, 58 4 (Широкая речка) - фото квартиры 15 октября 2025 90 дн. 2 50.3 4/4 5 150 000
Екатеринбург, ул. Широкореченская, 45 (Широкая речка) - фото квартиры 5 августа 2025 90 дн. 1 30.9 4/5 3 899 000
Екатеринбург, ул. Карасьевская, 24 (Широкая речка) - фото квартиры 22 июля 2025 90 дн. 1 37.3 2/3 4 099 000

Похожие предложения о продаже квартир в Екатеринбурге (Широкая речка)

  • 3-к квартира, Соболева, 21к1

    • 81.1 м2
    • 6/10 этаж
    • Состояние: хорошее
    8 800 000 ₽ (108500 ₽/м2)
    Продaетcя уютная 3 комнaтная квартира-81,1м2 , формат- заезжай и живи!!!Дом расположен в самом экологически чистом районе города, парковая зона, рядом лес, тропа здоровья.Бeз обpемeнений, все выписаны, детских долей -нет (мат кап не использовался). Один из сaмых нaдежных застройщиков в Екaтеpинбуpге-Aтoмcтpoйкомплeкс, дом - монолитно-кирпичный, спeцпрoект.Куxня -12,1 м2, комнаты (19,9; 18,7; 11,7 м2), двa oтдельныx cанузла, пpоcторный коpидоp, высота потолков 2,7 м.На этажe всегo 3 квартиры.В квартире сделан качественный ремонт.Остаётся вся мебель: кухонный гарнитур с техникой (варочная поверхность, духовой шкаф, посудомоечная машина), шкафы-купе в коридоре.Квартира освобождена, ключи- в день сделки.Удобная транспортная развязка- общественный транспорт во все стороны города, выезд на Екад, на объездную, до центра города - 20 минут.Показ в любое , удобное для вас время!!!! ID объекта в нашей базе: 12312
    размещено: 27.02.2026 , обновлено: 1.03.2026
  • 3-к квартира, Рябинина, 18

    • 71 м2
    • 14/16 этаж
    • Состояние: идеальное
    8 890 000 ₽ (125200 ₽/м2)
    Классная семейная квартира в ЖК «Рябиновый квартал»Планировка - топ, функциональная и компактная (коммуналка минимальная). Идеальный вариант для семьи.Три изолированные комнаты на разные стороны, шикарный санузел, просторная кухня, кладовка (можно сделать второй санузел). Въезд во двор под шлагбаумом, большая бесплатная парковка только для своих. Во дворе бесплатный каток. В шаговой доступности ВСЁ - школы, детсады, развивающие и языковые учебные центры, магазины, кофейни, кафе, аптеки, торговый центр Академический, фитнес с бассейном, остановки общественного транспорта - всё что нужно для удобной жизни.Квартира юридически чиста, долгов и обременений нет, все выписаны - быстрый выход на сделку. ID объекта в нашей базе: 26165
    размещено: 26.02.2026 , обновлено: 1.03.2026
  • 3-к квартира, Евгения Савкова, 33а

    • 67.9 м2
    • 6/10 этаж
    • Состояние: хорошее
    8 000 000 ₽ (117800 ₽/м2)
    "Предлагаем к продаже светлую и тёплую 3-комнатную квартиру с продуманной планировкой и комфортными условиями для жизни. Ремонт от застройщика и в хорошем состояние.✅Все 3 комнаты и кухня изолированные и санузел тоже раздельный — идеальный вариант для семьи с детьми или для тех, кто ценит личное пространство. ✅Просторная изолированная кухня-гостиная 19,4 м² — отличное место для семейных ужинов и приёма гостей. ✅Окна выходят на обе стороны дома, большинство — на солнечную сторону, благодаря чему в квартире всегда много света и тепла. Зимой настолько комфортно, что можно даже регулировать или отключать отопление.✅Закрытый двор с детскими площадками — безопасность и спокойствие для вас и ваших детей. Для детей, горки, качели, материалы эколог. чистые и устойчивые к морозам✅Парковочные места также расположены в закрытом дворе с отдельным доступом к шлагбауму — ваш автомобиль всегда рядом и под присмотром.✅Год назад производилась замена всех пластиковых окон и двери балкона. ✅Рядом школа, детские сады - хорошая транспортная развязка, - множество магазинов и торговый центр, - рядом есть лес для прогулок Прочее: - два взрослых собственника - без обремененийЧасть мебели, а также кухонный гарнитур с техникой остаются новому владельцу — можно заехать и жить без лишних вложений. Квартира отлично подойдёт для комфортной жизни в спокойном и безопасном месте." ID объекта в нашей базе: 5279
    размещено: 13.02.2026 , обновлено: 1.03.2026
  • 3-к квартира, Широкореченская, 58/3

    • 72.1 м2
    • 4/4 этаж
    • Состояние: идеальное
    7 350 000 ₽ (101900 ₽/м2)
    ????Для любителей эксклюзивных планировок! ????Продается атмосферная, не похожая на другие , трех комнатная квартира в поселке Мичуринский????❗Сделку сопровождает агентство «Новый Ориентир», что гарантирует юридическую защиту и чистоту сделки, а также профессиональный выход на сделку при разных способах оплаты????????О месте: *Отдаленный от центра города район, максимально уютный квартал, экологичный, в окружении леса. *Чистый воздух, пруд, пикниковая зона, тропа здоровья. Тихое семейное место. *Развитая инфраструктура: 2 школы, новый садик рядом, магазины, транспортная развязка.*Закрытая детская площадка, просторная парковка.????О квартире: Сделанный дизайнерский ремонт и планировка только подтверждает эксклюзивность квартиры.*Двухуровневая квартира 72 м2- на первом этаже большая совмещ гостиная -кухня 25 м2, отдельная детская, спальня на антресоли,санузел на каждом этаже, просторная гардеробная.*Этаж верхний , мансардный, 3 уровня потолков, максимально до 5 метров*Окна панорамные, большие, выходят на две стороны*Полы ламинат, стены – обои под покраску, декоративный кирпич, санузлы – плитка*Лестница: каркас металл, ступени дерево.*В квартире электричество, установлен энергосберег режим*Теплые полы * Соседей не слышно.????Один взрослый собственник.Документы готовы.Подходит под ипотеку. Записывайтесь на просмотр. Цены на жилье будут расти. Успевайте решить свой жилищный вопрос. ❗❗❗ ID объекта в нашей базе: 12197
    размещено: 23.01.2026 , обновлено: 15.02.2026
  • 3-к квартира, Евгения Савкова, 7

    • 72 м2
    • 10/10 этаж
    • Состояние: хорошее
    7 900 000 ₽ (109700 ₽/м2)
    Продается 3кк квартирa нa пoследнем 10м этаже, минимум сoседей и шума, ни кто не топает.Дoм монолитно-кирпичный, построен 2014 году Атомстройкомплексом. Своя газовая котeльнaя, опрессовки и ранние холода не страшны, пpoблем с гоpячeй водой и oтоплeниeм нет, нeбoльшиe кoммунaльные плaтежи. В квартире есть вся необходимая мебель и техника для жизни, всё остается новому хозяину.В шаговой доступности школы, детские сады, аптеки , поликлиника, магазины, все что необходимо для комфортной жизни.При покупки можно использовать ипoтеку, мaт. кaпитaл и любые сертификаты.Реальному покупателю хороший торг.Звоните и записывайтесь на просмотр! ID объекта в нашей базе: 12174
    размещено: 22.01.2026 , обновлено: 26.02.2026

    3-к квартира, Карасьевская, 26

    • 70 м2
    • 3/3 этаж
    • Состояние: идеальное
    8 999 000 ₽ (128600 ₽/м2)
    Продаем комфортную - Двухуровневую квартиру в новом экологическом мкрн Мичуринский. Планировка очень удобная: 1 этаж - просторная кухня, гостиная, детская , санузел, 2 этаж: спальная комната. Выполнен дизайнерский ремонт, оставляем при продаже встроенную мебель. Квартира заезжай и живи! В микрорайоне чистая вода, собственная газовая котельная, нет перебоев с горячей водой, дружный веселый двор с детьми, из окна виден лес, чистейший воздух, тропа здоровья, закрытый двор. Инфраструктура: Дом расположен в центре развитой инфраструктуры, в шаговой доступности находится все для качественной жизни. - в шаговой доступности расположены сетевые магазины, аптеки, пункты выдачи заказов, банки, спортивные клубы, кафе и рестораны, детские секции - через дорогу Торговый центр «Юла» - до ближайшей остановки транспорта 2 минуты- удобный выезд на ЕКАД и Московский тракт, которые позволяют быстро добраться в любую точку города- в 5 минутах расположена школа №25, №31, а напротив дома детский сад №8, № 25, № 31. Так же есть частные сады и школы - большой благоустроенный парк Мичуринский, где можно гулять или устраивать пикники- ​большой загородный комплекс «Мичуринские пруды» в котором находятся, беседки с мангалом, бани, и большой купол ресторан, кинотеатр. Летом можно покататься на лодках, сапах, и устроить рыбалку. Зимой на коньках. - в 10 минутах на машине находится Преображенский парк - самый популярный и большой парк Академического района. Юридически чистый объект. Оформление ипотеки на эту квартиру для вас будет бесплатно! Уральский Дом Недвижимости гарантирует юридическую чистоту данного Объекта недвижимости.
    размещено: 22.09.2025 , обновлено: 15.02.2026

    3-к квартира, Терновый, 8

    • 73.5 м2
    • 1/3 этаж
    • Состояние: хорошее
    7 390 000 ₽ (100500 ₽/м2)
    Объект № 196266. Продаётся уютная трёхкомнатная квартира в Екатеринбурге. Площадь 73.5 м². Этаж 2 из 2 этажей панельного дома. Косметический ремонт: окрашенные стены, пол покрыт ламинатом, установлены натяжные потолки, имеются качественные межкомнатные двери. Санузел оборудован современной душевой кабинкой. Просторный балкон для отдыха и хранения вещей. Приглашаем всех желающих осмотреть квартиру и убедиться в её привлекательности лично! ***Гарантийный сертификат «Защита собственности» по данному объекту в подарок***
    размещено: 09.12.2025 , обновлено: 1.01.2026

    3-к квартира, Соболева, 21/2

    • 68.8 м2
    • 3/10 этаж
    • Состояние: хорошее
    7 199 000 ₽ (104600 ₽/м2)
    Объект № 194787. Продаётся уютная трёхкомнатная квартира с продуманным пространством для комфортной семейной жизни. Квартира отличается своей удобной планировкой: просторная кухня станет идеальным местом для семейных ужинов и встреч с друзьями, три изолированные комнаты позволят каждому члену семьи иметь своё личное пространство, а раздельный санузел обеспечит дополнительный комфорт и удобство. Расположение дома выгодно сочетает близость к основным городским магистралям и тихую атмосферу спального района, что сделает проживание здесь приятным и спокойным. Отличный выбор для тех, кто ценит качество жилья и желает создать собственный уголок счастья и гармонии. Без долгов, обременений. Один совершеннолетний собственник. ***Гарантийный сертификат «Защита собственности» по данному объекту в подарок***
    размещено: 09.10.2025 , обновлено: 19.02.2026

    3-к квартира, Хрустальногорская, 85

    • 82.6 м2
    • 8/13 этаж
    • Состояние: хорошее
    9 500 000 ₽ (115000 ₽/м2)
    Продаётся просторная трехкомнатная квартира площадью 82.6 квадратных метров в Екатеринбурге, микрорайоне Широкая Речка, на улице Хрустальногорская, дом 85. Квартира расположена на восьмом этаже современного тринадцатиэтажного кирпичного дома, построенного в 2019 году.Внутри вас ждёт уютное пространство с жилой площадью 42.2 квадратных метра и кухней размером 20.3 квадратных метра, где можно устроить настоящий кулинарный рай. Из окон открывается приятный вид на тихий и зелёный двор, где расположены детская и спортивная площадки – идеальное место для отдыха и игр ваших детей.Квартира после косметического ремонта, что позволит вам сразу же въехать и жить с комфортом без дополнительных вложений. Здесь также имеется совмещённый санузел и балкон, который станет вашим любимым местом для утреннего кофе или вечернего отдыха.Для жителей предусмотрены удобства парковки во дворе, а безопасность обеспечивает стандартный домофон. Рядом находятся школа, детский сад, торговый центр и фитнес-клуб, что делает расположение особенно привлекательным для семей с детьми.Приглашаем на просмотр этой замечательной квартиры, которая может стать вашим новым домом и источником уюта и тепла на долгие годы. Чистая продажа, документы готовы, есть ипотечное обременение. ID объекта в нашей базе: 3933
    размещено: 18.06.2025 , обновлено: 22.02.2026

    3-к квартира, Рябинина, 18/3

    7 900 000 ₽ (116200 ₽/м2)
    Объект № 189950. Продается трехкомнатная квартира в Академическом районе. В новом доме. Школа через дорогу, рядом два детских сада. Светлая, уютная, теплая квартира. Сделан хороший ремонт. Остается кухня и бытовая техника. ***Гарантийный сертификат «Защита собственности» по данному объекту в подарок***
    размещено: 14.02.2025 , обновлено: 23.02.2026

Новостройки Екатеринбург, мкр-н. Широкая речка

Приоритет

Увеличивает просмотры в 3 раза

Ваше объявление показывается в списке выше обычных объявлений. подключить