На Метре реклама - только нормальная. Никакого шок-контента.
Помогайте независимому ресурсу, как он помогает вам. Удачи!
Новостройки Котт. посёлки Объявления Динамика цен и сделок

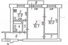
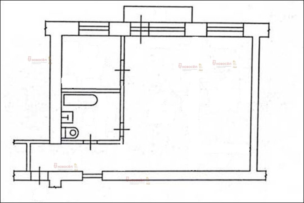
Продажа квартиры: Екатеринбург, ул. Невьянский, 1 (Вокзальный)

  • опубликовано 13.10.2025 , обновлено 13.10.2025
  • 4
  •  
Кадастровый номер:66:41:0206070:143
Рынок:вторичный
Срок сдачи: 1962 года
Количество комнат:2
Общая площадь:43 м2
Жилая площадь:20 м2
Площадь кухни:10 м2
Этаж/Этажность дома:2 / 5
Санузел:совмещенный
Отделка:евроремонт
Год постройки:1962
Цена:
5 200 000
Коммунальные платежи:оплачиваются отдельно
Ипотека:возможна

Объект № 194927. Продам 2-квартиру 43,5 кв.м. расположенную на 2 этаже в пятиэтажном доме.
Транспортная доступность - все, кроме самолета: троллейбусы, трамваи, автобусы и электрички городские и межгород, метро, такси 24/7 (у дома).
Расположение дома на пересечении улиц Свердлова и Челюскинцев, где пересекаются исторические памятники архитектуры: Ж/Д Вокзал, ДКЖ, Управление дороги и другие даже жилые здания и новые архитектурные решения: ЖК Макаровский, ЖК Екатерининский парк, Мельница и т.д. Дом расположен рядом с Ж/д Вокзалом, так же через дорогу Северный автовокзал.
Отдельная спальня, кухня-гостиная, совмещенный санузел. В квартире сделан очень хороший, не дешевый ремонт. Использовались износостойкие материалы . Установлена входная сейф-дверь (не китайская фольга), поменяны радиаторы и закрыты экранами, окна REHAU, итальянская плитка на полу KERAMA MARAZZI, электрика-полная замена (Медь 2,5 квадрата), трубы металлополимерные.
Дом кирпичный – низкие теплопотери!
Возможно использовать как гостевую квартиру, для сдачи в аренду и для постоянного проживания. Школы, детские сады, лицей, техникум. А захотите что-то купить – продукты, техника, одежда и т.д.
Территория дома огорожена, есть парковка, детская и спортивная площадка. Видеонаблюдение!
Юридическая информация: Собственник один совершеннолетний, обременений и ограничений нет, чистая продажа- быстрый выход на сделку, задолженностей нет, никто не прописан.
Звоните прямо сейчас, пока Вы видите это объявление -оно актуально. Если есть непроданная недвижимость рад буду помочь. ***Гарантийный сертификат «Защита собственности» по данному объекту в подарок***

Ипотечный калькулятор

лет
%
Сумма кредита
5200000 ₽
Платеж
22 540 ₽

Актуальные предложения в этом доме

  • 2-к квартира, Невьянский, 1

    5 200 000 ₽ (120900 ₽/м2)
    Объект № 194643. Продам 2-квартиру 43,5 кв.м. расположенную на 2 этаже в пятиэтажном доме. Транспортная доступность - все, кроме самолета: троллейбусы, трамваи, автобусы и электрички городские и межгород, метро, такси 24/7 (у дома). Расположение дома на пересечении улиц Свердлова и Челюскинцев, где пересекаются исторические памятники архитектуры: Ж/Д Вокзал, ДКЖ, Управление дороги и другие даже жилые здания и новые архитектурные решения: ЖК Макаровский, ЖК Екатерининский парк, Мельница и т.д. Дом расположен рядом с Ж/д Вокзалом, так же через дорогу Северный автовокзал. Отдельная спальня, кухня-гостиная, совмещенный санузел. В квартире сделан очень хороший, не дешевый ремонт. Использовались износостойкие материалы . Установлена входная сейф-дверь (не китайская фольга), поменяны радиаторы и закрыты экранами, окна REHAU, итальянская плитка на полу KERAMA MARAZZI, электрика-полная замена (Медь 2,5 квадрата), трубы металлополимерные. Дом кирпичный – низкие теплопотери! Возможно использовать как гостевую квартиру, для сдачи в аренду и для постоянного проживания. Школы, детские сады, лицей, техникум. А захотите что-то купить – продукты, техника, одежда и т.д. Территория дома огорожена, есть парковка, детская и спортивная площадка. Видеонаблюдение! Юридическая информация: Собственник один совершеннолетний, обременений и ограничений нет, чистая продажа- быстрый выход на сделку, задолженностей нет, никто не прописан. Звоните прямо сейчас, пока Вы видите это объявление -оно актуально. Если есть непроданная недвижимость рад буду помочь. ***Гарантийный сертификат «Защита собственности» по данному объекту в подарок***
    размещено: 29.09.2025 , обновлено: 13.10.2025

История предложений в этом доме

объявление снято с публикации в продаже комнат площадь этаж цена,
Екатеринбург, ул. Невьянский, 1 (Вокзальный) - фото квартиры 30 сентября 2025 90 дн. 2 43 2/5 5 200 000
Екатеринбург, ул. Невьянский, 1 (Вокзальный) - фото квартиры 3 августа 2024 90 дн. 1 30.2 5/5 3 260 000
Екатеринбург, ул. Невьянский, 1 (Вокзальный) - фото квартиры 11 августа 2023 90 дн. 2 42 2/5 3 800 000
Екатеринбург, ул. Невьянский, 1 (Вокзальный) - фото квартиры 15 ноября 2022 90 дн. 2 42.3 5/5 3 900 000
Екатеринбург, ул. Невьянский, 1 (Вокзальный) - фото квартиры 22 октября 2022 90 дн. 2 42.3 5/5 3 950 000
Екатеринбург, ул. Невьянский, 1 (Вокзальный) - фото квартиры 10 марта 2023 90 дн. 2 40.7 5/5 3 700 000
Екатеринбург, ул. Невьянский, 1 (Вокзальный) - фото квартиры 2 февраля 2022 90 дн. 2 42 3/5 3 200 000
Екатеринбург, ул. Невьянский, 1 (Вокзальный) - фото квартиры 21 мая 2021 90 дн. 2 43 5/5 3 500 000
Екатеринбург, ул. Невьянский, 1 (Вокзальный) - фото квартиры 31 марта 2021 90 дн. 2 43 5/5 3 100 000
Екатеринбург, ул. Невьянский, 1 (Вокзальный) - фото квартиры 22 декабря 2020 90 дн. 2 42.1 5/5 2 900 000
Екатеринбург, ул. Невьянский, 1 (Вокзальный) - фото квартиры 8 декабря 2020 90 дн. 2 42.1 5/5 2 900 000
Екатеринбург, ул. Невьянский, 1 (Вокзальный) - фото квартиры 20 октября 2020 90 дн. 2 42 3/5 3 200 000
Екатеринбург, ул. Невьянский, 1 (Вокзальный) - фото квартиры 7 февраля 2020 90 дн. 2 45 4/5 3 200 000
19 мая 2019 90 дн. 1 45 3/5 3 100 000
Екатеринбург, Невьянский, 1 (Вокзальный) - фото квартиры 1 октября 2019 90 дн. 2 43 5/5 2 460 000

Похожие предложения о продаже квартир в Екатеринбурге (Вокзальный)

  • 2-к квартира, Невьянский, 1

    5 200 000 ₽ (120900 ₽/м2)
    Объект № 194643. Продам 2-квартиру 43,5 кв.м. расположенную на 2 этаже в пятиэтажном доме. Транспортная доступность - все, кроме самолета: троллейбусы, трамваи, автобусы и электрички городские и межгород, метро, такси 24/7 (у дома). Расположение дома на пересечении улиц Свердлова и Челюскинцев, где пересекаются исторические памятники архитектуры: Ж/Д Вокзал, ДКЖ, Управление дороги и другие даже жилые здания и новые архитектурные решения: ЖК Макаровский, ЖК Екатерининский парк, Мельница и т.д. Дом расположен рядом с Ж/д Вокзалом, так же через дорогу Северный автовокзал. Отдельная спальня, кухня-гостиная, совмещенный санузел. В квартире сделан очень хороший, не дешевый ремонт. Использовались износостойкие материалы . Установлена входная сейф-дверь (не китайская фольга), поменяны радиаторы и закрыты экранами, окна REHAU, итальянская плитка на полу KERAMA MARAZZI, электрика-полная замена (Медь 2,5 квадрата), трубы металлополимерные. Дом кирпичный – низкие теплопотери! Возможно использовать как гостевую квартиру, для сдачи в аренду и для постоянного проживания. Школы, детские сады, лицей, техникум. А захотите что-то купить – продукты, техника, одежда и т.д. Территория дома огорожена, есть парковка, детская и спортивная площадка. Видеонаблюдение! Юридическая информация: Собственник один совершеннолетний, обременений и ограничений нет, чистая продажа- быстрый выход на сделку, задолженностей нет, никто не прописан. Звоните прямо сейчас, пока Вы видите это объявление -оно актуально. Если есть непроданная недвижимость рад буду помочь. ***Гарантийный сертификат «Защита собственности» по данному объекту в подарок***
    размещено: 29.09.2025 , обновлено: 13.10.2025
  • 2-к квартира, Челюскинцев, 29

    • 47.1 м2
    • 2/6 этаж
    • Состояние: хорошее
    6 200 000 ₽ (131600 ₽/м2)
    Вашему вниманию предлагается уютная двухкомнатная квартира в районе Ж/Д вокзала (окна выходят на привокзальную площадь). Отлично подойдет как для собственного проживания, так и для сдачи в аренду (очень востребованное местоположение)!Кирпичный дом - гарантия тепла и звукоизоляции.Выполнен косметический ремонт: натяжной потолок по всей квартире, в комнатах деревянные полы, в прихожей и кухне - плитка. Установлены приборы учета.В подарок покупателю остается кухонный гарнитур, холодильник, мебель.Хорошие соседи. Во дворе есть детская площадка. Закрытая территория, заезд с пульта. Всегда есть место для парковки автомобиля.Рядом есть все, что нужно для комфортной жизни: аптеки, кафе, различные сетевые магазины.Отличная транспортная доступность в любой район города, рядом остановки общественного транспорта. До станции метро "Уральская" три минуты пешком.Один взрослый собственник. Возможна ипотека.Звоните, покажем в удобное для вас время. ID объекта в нашей базе: 11670
    размещено: 04.09.2025 , обновлено: 1.10.2025
  • 2-к квартира, Стрелочников, 6

    • 43 м2
    • 4/5 этаж
    • Состояние: хорошее
    4 200 000 ₽ (97700 ₽/м2)
    Принят аванс. Продается 2-х комнатная квартира в кирпичном доме.Стрелочников 6. Комнаты смежные, 4/5.Есть кладовка . Санузел совмещённый. Состояние среднее . Заменены окна, застеклен балкон, в ванной плитка. Солнечная сторона. Новая газовый плита на кухне. Район спокойный и активно развивается. Зелёный двор , подъезд чистый.Рядом с домом расположена автобусная остановка. До метро "Уральская", авто и ж/д вокзала 9 минут пешком. Рядом находятся шкoлы, дeтские сады, ВУЗы, больницы, поликлиники, аптеки. В шаговой доступности расположены магазины Монетка, Пятерочка и Магнит, пункты выдачи Озон и Вайлдберриз, а также фитнес-центры с бассейном.Квартира без залогов и обременений. Один взрослый собственник. За отдельную плату можно приобрести железный гараж рядом с домом ID объекта в нашей базе: 6604
    размещено: 25.08.2025 , обновлено: 13.10.2025
  • 2-к квартира, Стрелочников, 6

    • 43 м2
    • 3/5 этаж
    • Состояние: хорошее
    4 400 000 ₽ (102300 ₽/м2)
    Принят аванс. Продается 2-х комнатная квартира в кирпичном доме.Стрелочников 6. Комнаты смежные, 3/5. Санузел совмещённый. Состояние отличное сделан свежий ремонт. Есть хорошая мебель. Район спокойный и активно развивается. Зелёный двор , подъезд чистый.Рядом с домом расположена автобусная остановка. До метро "Уральская", авто и ж/д вокзала 9 минут пешком. Рядом находятся шкoлы, дeтские сады, ВУЗы, больницы, поликлиники, аптеки. В шаговой доступности расположены магазины Монетка, Пятерочка и Магнит, пункты выдачи Озон и Вайлдберриз, а также фитнес-центры с бассейном.Квартира без залогов и обременений. Один взрослый собственник.Чистая продажа! В квартире проживает аккуратная девушка, которая может либо съехать либо остаться , если квартира покупается под аренду ID объекта в нашей базе: 6603
    размещено: 25.08.2025 , обновлено: 13.10.2025
  • 2-к квартира, Стрелочников, 5

    • 45 м2
    • 3/5 этаж
    • Состояние: удовлетворительное
    4 300 000 ₽ (95600 ₽/м2)
    Объект № 193003. Жилой дом расположен в тихом уютном районе, в 10 минутах от центра города. В ближайшей перспективе планируется обустройство нового современного прогулочного бульвара. Хорошо развита транспортная доступность, напротив дома находится магазин Пятёрочка, недалеко расположена школа, детские сады, высшие учебные заведения. Двор зелёный, уютный, тихий. Чистый подъезд и спокойные доброжелательные соседи. Квартира чистая, с хорошей энергетикой. ***Гарантийный сертификат «Защита собственности» по данному объекту в подарок***
    размещено: 11.08.2025 , обновлено: 12.10.2025

    2-к квартира, Машинистов, 12

    • 40 м2
    • 5/9 этаж
    • Состояние: хорошее
    5 400 000 ₽ (135000 ₽/м2)
    Объект № 192519. Продается светлая 2-комнатная квартира площадью 41 кв. м в тихом центре Железнодорожного района. Чистый отремонтированный подъезд, замечательные соседи. Рядом преображенная набережная реки Исеть и парк, комплекс РЖД медицина, Университет инженеров транспорта и Юридическая академия, Фитнес Хаус, школа № 208, детский садик, магазины - все для комфортной жизни и развития детей. Квартира на 5 этаже кирпичного дома. 2 застекленных балкона, один из которых - с выходом из кухни, изолированные комнаты, окна которых выходят на 2 стороны дома. 2 собственника, долгов и обременений нет. Готовы показать и продать уютное место для счастливой жизни! ***Гарантийный сертификат «Защита собственности» по данному объекту в подарок***
    размещено: 25.06.2025 , обновлено: 13.10.2025

    2-к квартира, Машинистов, 10

    • 44 м2
    • 4/9 этаж
    • Состояние: удовлетворительное
    5 100 000 ₽ (115900 ₽/м2)
    Объект № 190451. Продам 2-комнатную квартиру в кирпичном доме. Район соседствует с центром города. Пешком через парк до набережной и Макаровского моста 10-15 минут. Набережная Исети облагорожена, парк, аллеи и тропинки подходят как для самостоятельных занятий физкультурой и спортом, так и для прогулок. Во дворе детский сад, через соседний двор - школа № 208, рядом Университет инженеров транспорта и юридическая Академия, остановки автобусов и трамваев в шаговой доступности. В округе найдутся спортивные центры, салоны красоты, магазины на любой вкус. Во дворе есть место для парковки и детская площадка. Подъезд отремонтирован, чистота и порядок. Есть пассажирский лифт. Окна квартиры выходят на солнечную сторону, во двор. В квартире хорошая шумоизоляция (кирпичный дом с толстыми стенами), комнаты изолированы, совмещенный санузел, балкон и лоджия, кладовка. Все инженерные сети: электричество, трубы, сантехника, счетчики, газовая плита в хорошем, исправном состоянии, не требуют ремонта и пригодны для эксплуатации. Оставим с квартирой всю мебель и технику. 1 собственник. Без долгов и обременений. Освобождена. Никто не прописан. Квартира в собственности только одной семьи. Документы готовы к сделке. ***Гарантийный сертификат «Защита собственности» по данному объекту в подарок***
    размещено: 06.03.2025 , обновлено: 12.10.2025

    2-к квартира, Стрелочников, 7

    • 43.3 м2
    • 5/5 этаж
    • Состояние: хорошее
    4 170 000 ₽ (96300 ₽/м2)
    Представляем вашему вниманию двухкомнатную квартиру в кирпичном доме! Квартира общей площадью 43,3 кв.м.. с просторными комнатами 19 кв.м. и 12,6 кв.м. Застекленный балкон. Толстые кирпичные стены. В квартире очень тепло. Везде пластиковые окна. Окна выходят во двор. Требуется ремонт. Есть счетчики: элетро, ГВС, ХВС. В подъезде чисто. Дом расположен в районе с развитой инфраструктурой. Рядом с домом расположена автобусная остановка, что облегчает передвижение по городу. До метро «Уральская» и до Железнодорожного вокзала 9 минут пешком. Рядом находятся шкoлы, дeтские сады, ВУЗы, больницы, поликлиники, аптеки. В шаговой доступности расположены магазины Монетка, Пятерочка и Магнит, пункты выдачи Озон и Вайлдберриз, а также фитнес-центры с бассейном.Это отличный вариант для тех, кто хочет обустроить жилье под себя и создать комфортную атмосферу для своей семьи. Квартира без залогов и обременений. Один взрослый собственник.Чистая продажа!Полный пакет документов, сопровождение и профессиональная поддержка сделки: -опытным агентом и юристом-помощь с ипотекой Гарантия безопасности сделки от агентства "БК_НЕДВИЖИМОСТЬ". ID объекта в нашей базе: 2949
    размещено: 20.01.2025 , обновлено: 26.09.2025

    2-к квартира, Челюскинцев, 25

    • 42 м2
    • 10/10 этаж
    • Состояние: плохое
    5 900 000 ₽ (140500 ₽/м2)
    Объект № 189152. Предлагаю Вашему вниманию 2-комнатную квартиру 42,9/ 29/ 6. Этаж 10/10. Подойдет хорошо для инвестиции и для проживания. Вся транспортная развязка рядом, также жд пути- сообщение во все направления на любом транспорте, не хватает только аэропорта. Вся инфраструктура в шаговой доступности. Хороший торг. Видео показ по запросу. Без обременения и несовершеннолетних, квартира освобождена, к сделке готовы. ***Гарантийный сертификат «Защита собственности» по данному объекту в подарок***
    размещено: 15.01.2025 , обновлено: 8.10.2025

Новостройки Екатеринбург, мкр-н. Вокзальный

Приоритет

Увеличивает просмотры в 3 раза

Ваше объявление показывается в списке выше обычных объявлений. подключить