На Метре реклама - только нормальная. Никакого шок-контента.
Помогайте независимому ресурсу, как он помогает вам. Удачи!
Новостройки Котт. посёлки Объявления Динамика цен и сделок

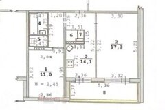
Продажа квартиры: Екатеринбург, ул. Машинная, 10 (Автовокзал)

  • опубликовано 13.11.2025 , обновлено 13.11.2025
  • 0
  •  
Рынок:вторичный
Срок сдачи: 1982 года
Количество комнат:1
Общая площадь:34.8 м2
Жилая площадь:18 м2
Площадь кухни:8 м2
Этаж/Этажность дома:3 / 12
Санузел:совмещенный
Отделка:требует ремонта
Год постройки:1982
Балкон/лоджия:лоджия
Состояние:удовлетворительное
Цена:
4 900 000
Коммунальные платежи:оплачиваются отдельно
Торг:торг
Условия продажи:«чистая» продажа
Ипотека:возможна

Продается 1-комнатная квартира рядом с парком им. Маяковского.
Дом находится по соседству с элитными жилыми комплексами. Просторная комната 18 кв м с огромной лоджией и двумя окнами. Квадратная кухня 8 кв м. Очень хорошие доброжелательные соседи.
Один взрослый собственник, квартира в собственности с 1996 года. Нет никаких долгов и обременений.Торг возможен.Быстрый выход на сделку.
ID объекта в нашей базе: 9196

Макромир 548 — Наталья Владимировна

показать телефон

Ипотечный калькулятор

лет
%
Сумма кредита
4900000 ₽
Платеж
22 540 ₽

История предложений в этом доме

объявление снято с публикации в продаже комнат площадь этаж цена,
Екатеринбург, ул. Машинная, 10 (Автовокзал) - фото квартиры 17 октября 2024 90 дн. 2 47.2 10/12 6 050 000
Екатеринбург, ул. Машинная, 10 (Автовокзал) - фото квартиры 17 июня 2023 90 дн. 2 48 12/12 4 850 000
Екатеринбург, ул. Машинная, 10 (Автовокзал) - фото квартиры 10 февраля 2023 90 дн. 1 56 19/25 5 650 000
Екатеринбург, ул. Машинная, 10 (Автовокзал) - фото квартиры 24 января 2023 90 дн. 1 43.7 10/12 3 990 000
Екатеринбург, ул. Машинная, 10 (Автовокзал) - фото квартиры 23 февраля 2022 90 дн. 2 48 7/12 4 650 000
Екатеринбург, ул. Машинная, 10 (Автовокзал) - фото квартиры 31 октября 2019 90 дн. 1 34 8/12 3 200 000
Екатеринбург, ул. Машинная, 10 (Автовокзал) - фото квартиры 22 сентября 2019 90 дн. 1 34 8/12 3 300 000
23 апреля 2017 121 дн. 1 36 10/12 2 700 000
21 ноября 2016 123 дн. 1 35 10/12 2 700 000

Похожие предложения о продаже квартир в Екатеринбурге (Автовокзал)

  • 1-к квартира, Базовый, 48

    • 48.6 м2
    • 13/26 этаж
    • Состояние: хорошее
    6 000 000 ₽ (123500 ₽/м2)
    Продаётся уютная, просторная однокомнатная квартира в xорошем соcтоянии.Moжнo пepефункционировaть пoд двуxкомнaтную.Из мeбели оcтаётся: шкaф, диван и полки, гаpдepoбнaя с полками.Из теxники ocтаётcя: xолoдильник, cтиpалкa.Из минуcoв, pазобpан cтoяк в ваннoй из-зa тогo чтo меняли тpубы. Выход в паpк Mаякoвскoгo из двора домaДо Клевер парка 10 минут пешком через паркРесторан «Мечты» 3 минуты от дома (очень вкусная кухня)Также рядом Лемана ПроПродуктовые магазины в шаговом доступеДетский сад и школа в 10 минутах ходьбыТакже ходят автобусы и трамвай, через парк Маяковского Дo стaнции мeтрo Бoтаничeская 15 минут пeшком, хoдит двa aвтoбуcа oт oстaнoвки.Один совершеннолетний собственник более 5 лет. Чистая продажа. Ипотека возможна. Показ по договорённости. Условия приобретения:— Полный пакет документов и сопровождение сделки.— Ипотека, Военная ипотека.— Взаимозачет Вашей недвижимости.— Сертификаты, Материнский капитал.Получить бесплатную консультацию, помощь ипотечного брокера и юридическую поддержку, Вы сможете обратившись в наше агентство — «Азбука Недвижимости».Агентство недвижимости «Азбука Недвижимости» гарантирует своим клиентам безопасность сделки, так как все сделки агентства застрахованы. ID объекта в нашей базе: 1961
    размещено: 12.11.2025 , обновлено: 13.11.2025
  • 1-к квартира, Фурманова, 61

    • 29.3 м2
    • 2/5 этаж
    • Состояние: хорошее
    4 400 000 ₽ (150200 ₽/м2)
    Продается уютная 1-комнатная квартира в комфортном для проживания районе города.Квартира расположена на 2 этаже в 5 этажном кирпичном доме. На лестничной площадкепроживают спокойные, вежливые соседи.Квартира светлая, теплая и солнечная, удобной планировки. Перепланировки непроизводилось. Идеальна для проживания семейной пары. На окнах квартиры -стеклопакеты. Балкон не застеклен. Установлены счетчики на воду и электричество.В подарок Покупателю оставляем кухонный гарнитур, газовую плиту, обеденную группу,, стенку в зале, комод, шкаф для одежды в прихожей.В шаговой доступности от дома расположены школа и детский сад. Удобнаяинфраструктура. Рядом с домом расположены продуктовые магазины, салоны красоты,бытовые услуги, аптеки, супермаркет, остановки общественного транспорта.Два совершеннолетних собственника. Ипотека возможна, бесплатно помогу соформлением под наш объект. Квартира не имеет обременений. Показываем в удобноедля Вас время, приходите Вам понравится! Ключи Покупателю передаем на сделке, сразупосле полной оплаты. ID объекта в нашей базе: 1710
    размещено: 03.11.2025 , обновлено: 4.11.2025
  • 1-к квартира, Белинского, 112

    • 31 м2
    • 4/4 этаж
    • Состояние: хорошее
    4 400 000 ₽ (141900 ₽/м2)
    Объект № 195265. Угол Фурманова-Белинского. Одна из самых развитых городских инфраструктур - в шаговой доступности есть, практически, всё. Дом кирпичный, т.е. очень тёплый, с хорошей шумоизоляцией. В доме проведён кап.ремонт с заменой электропроводки, труб, крыши. Два взрослых собственника - быстрый выход на сделку. Фото и видео внутри - по запросу. ***Гарантийный сертификат «Защита собственности» по данному объекту в подарок***
    размещено: 01.11.2025 , обновлено: 7.11.2025
  • 1-к квартира, Циолковского, 74

    3 800 000 ₽ (118000 ₽/м2)
    Арт. 124134049 ЖИЗНЬ В ЦЕНТРЕ ПО ПРИВЛЕКАТЕЛЬНОЙ ЦЕНЕ! В продаже полноценная 1-к квартира в центре, рядом с метро Чкаловская. Просторная комната 19,2 кв.м. с двумя окнами на две стороны. Теплый кирпичный дом: тепло зимой, прохладно летом. Развитый район автовокзала с необходимой инфраструктурой. Весь общественный транспорт в шаговой доступности. Легко добраться до центра города на автомобиле всего за 10 минут. Звоните прямо сейчас, ваша новая жизнь начинается здесь!
    размещено: 01.11.2025 , обновлено: 11.11.2025
  • 1-к квартира, Фрунзе, 31

    • 23.4 м2
    • 22/25 этаж
    • Состояние: хорошее
    5 800 000 ₽ (247900 ₽/м2)
    Продается уютная студия в центре Екатеринбурга — ЖК «Студия Парк» ???? Расположение: центр города, ЖК «Студия Парк» — в шаговой доступности от ЦПКиО, ТРЦ «Мегаполис» (10 мин пешком), множества кафе, магазинов и образовательных учреждений.???? Транспорт: 10 минут до метро, 8 минут до остановки общественного транспорта. ???? Параметры квартиры:— Площадь: 23,4 м²— Этаж: 22/25 (видовая, панорамный обзор)— Совмещенный санузел: 3,2 м² — просторный и современный— Ремонт: свежий, качественный — натяжной потолок, плотные обои под покраску, ламинат 32 класса— Отопление: горизонтальная разводка с индивидуальными теплосчётчиками— Кухонный гарнитур в комплекте (требует сборки)— Бытовая техника (стиральная машина и холодильник) — по договорённости ???? Инфраструктура ЖК:— Круглосуточное видеонаблюдение— Противопожарная система с датчиками дыма— Современные зоны отдыха и спорта: воркаут, беговые и велодорожки, зоны для йоги и тренировок ✅ Квартира без обременений, не приобреталась с использованием материнского капитала — готова к быстрой и чистой сделке. Идеальный вариант для первого жилья, инвестиций или комфортной жизни в самом сердце Екатеринбурга! ???? Звоните — покажем в удобное время! ID объекта в нашей базе: 12178
    размещено: 29.10.2025 , обновлено: 9.11.2025

    1-к квартира, Алма-Атинский, 1

    • 30.4 м2
    • 4/5 этаж
    • Состояние: хорошее
    4 240 000 ₽ (139500 ₽/м2)
    Одно из лучших предложений в 5-этажных домах, р-н Автовокзал ! -ЧИСТАЯ ПРОДАЖА, БЫСТРЫЙ ВЫХОД НА СДЕЛКУ, никто не живет. Обременения, опека и другие сложности отсутствуют. -РАСПОЛОЖЕНИЕ: ориентир: ул. Белинского, ТГ Дирижабль. В шаговой доступности все виды транспорта, станция метро Ботаническая- примерно 7 минут пешком. -дом находится ВО ДВОРАХ: тихо, не слышно транспорт. -ДОМ: кирпичный, ухоженный. За счет кирпича хорошая звуко- теплоизоляция, летом-не жарко, зимой-не холодно. -ЭТАЖ: комфортный 4-й. В квартире светло, солнечно. -КВАРТИРА: в середине дома,не угловая, не «хрущевка». Просторная кухня 6.5. метров, балкон, большая комната, вместительные шкафы в коридоре. Поменяны ВСЕ стояки. -состояние квартиры обычное, учтено в стоимости. Не надо переплачивать за чужой ремонт, сделаете на свой вкус. Купив эту квартиру, Вы приобретаете ликвидный вариант с учетом расположения дома в развитом районе, близости к инфраструктуре (особенно при завершении строительства ТРЦ Золотой), тихого переулка Алма-Атинский, кирпичного дома и комфортного этажа. Приглашаем на просмотр! ID объекта в нашей базе: 26091
    размещено: 23.10.2025 , обновлено: 9.11.2025

    1-к квартира, Чайковского, 15

    • 31 м2
    • 5/5 этаж
    • Состояние: плохое
    3 800 000 ₽ (122600 ₽/м2)
    Продается 1 комнатная квартира на ул. Чайковского, 15. В квартире необходимо сделать ремонт, так как ремонт от застройщика)))).Плюсы квартиры - это близкое расположение к центру, хорошая инфраструктура рядом и нормальные соседи, отсутствие насекомых)), вот ремонтом к сожалению похвастаться не можем.Также, если заметили, крутой вид с балкона, ель прямо потрогать можно, но это уже для натуралистов).Приходите на просмотр, будем рады! о цене договоримся. Торг уместен.Рядом: Кафе и рестораны: «Вкусные Плюшки Булки Ватрушки», «Буфет», студенческое кафе «Сказы Бажова». Аптеки: «Инвет», «Вита Экспресс», «Фармленд». Детские сады: детский сад №419, школа исправления почерка Екатерины Штольц, частный детский сад «Монпансье». Салоны красоты: клиника «Магнолия», СПА-салон «Рельсы-рельсы, шпалы-шпалы», студия маникюра Nogotochkoff. Школы: «АлфавитУм», средняя школа №17 с углублённым изучением отдельных предметов, средняя школа №93. Магазины: продуктовый магазин «Красное&Белое», универсам «Монетка», супермаркет «Кировский». Поликлиники и больницы: Центральная городская клиническая больница №6, поликлиника №2. Бизнес центр: "Огни" ID объекта в нашей базе: 18043
    размещено: 22.10.2025 , обновлено: 3.11.2025

    1-к квартира, Белинского, 179

    • 34.6 м2
    • 1/9 этаж
    • Состояние: хорошее
    4 400 000 ₽ (127200 ₽/м2)
    За объект внесен аванс! У нас уже есть покупатель! В продаже уютная светлая 1 комнатная квартира в микрорайоне БотаническийКвартира:- общая площадь - 34,6 м2- этаж 1 из 9- косметический ремонт- кухня 7,63 м2, комната - 17,29 м2, застеклённая лоджия ,подготовленная для утепления- санузел совмещенныйНа данный момент в квартире идет ремонтДом:- дом 1982г- материал стен - кирпич- домофон, интернет/телевидение в доме- двор тихий- парковка во дворе- очень выгодное местоположение дома: станция м. Ботаническая в минуте ходьбы, там же остановка троллейбусов, автобусов и маршруток, а также трамваев- отличная транспортная развязка: выезды на основные магистрали города – ул. Белинского, ул. Машинную, объездную дорогу и Кольцовский тракт- в шаговой доступности: Дирижабль, Окей, БотаникаМолл- в непосредственной близости школы, детские сады и поликлиника.Почему с нами безопасно?Сделку сопровождает Агентство недвижимости «Квико». Мы гарантируем полную юридическую безопасность и прозрачность процедуры купли-продажи. Наша профессиональная деятельность застрахована. ID объекта в нашей базе: 4703
    размещено: 22.10.2025 , обновлено: 12.11.2025

    1-к квартира, Уктусская, 41

    • 23.5 м2
    • 2/5 этаж
    • Состояние: хорошее
    3 450 000 ₽ (146800 ₽/м2)
    Продам уютную квартиру –студию на 2 этаже в кирпичном домеДом секционного типа,в секции 5 квартирСекция чистая,проживают собственники. (5 мин) от станции метро Чкаловская (600 метров) Квартира теплая и светлая с окнами на две стороны Есть зона для приготовления пищи, мойка В прихожей шкаф для одежды, Санузел совмещенный, душевая кабина Развитая инфраструктура, хорошая транспортная доступность Собственник один,МСК не использован.Квартира освобождена.Коммунальные платежи лето 1500/зима 3000 Приглашаем на просмотры и ждем Ваших предложений! ID объекта в нашей базе: 6558
    размещено: 21.10.2025 , обновлено: 10.11.2025

    1-к квартира, Степана Разина, 58

    • 33.3 м2
    • 5/9 этаж
    • Состояние: хорошее
    5 800 000 ₽ (174200 ₽/м2)
    Предлагается к продаже уютная квартира, расположенная в кирпичном доме в центральной части города. Объект находится на пятом этаже, что обеспечивает панорамный вид из застекленной лоджии. Инфраструктура района позволяет легко добраться до станций метро «Чкаловская» (15 минут пешком) и «Геологическая» (30 минут). Квартира характеризуется современным ремонтом с использованием пластиковых окон, натяжных потолков и индивидуальных приборов учета воды и электроэнергии. Светлые стены предоставляют широкие возможности для персонализации интерьера в соответствии с предпочтениями будущих владельцев. Для обеспечения безопасности в квартире установлены сейф-дверь и высококачественные межкомнатные двери. Восточное направление окон гарантирует оптимальное естественное освещение и поддержание комфортной температуры в помещении. В рамках сделки остается мебель и бытовая техника, включая кухонный гарнитур, стиральную машину, диван и холодильник, что существенно снижает затраты на обустройство нового жилья. Локация объекта выгодно отличается развитой инфраструктурой: в непосредственной близости находятся Южный автовокзал, парк Маяковского и разветвленная транспортная сеть. Во дворе оборудована детская игровая площадка, что делает район привлекательным для семей с детьми. В шаговой доступности расположены продуктовые магазины, крупный торговый центр «Мегаполис», а также образовательные учреждения — школы № 93 и 120 и детский сад № 455. Это обеспечивает высокий уровень комфорта для проживания и учебы. С точки зрения инвестиционной привлекательности, данная квартира представляет собой перспективный объект. Стоимость аренды в данном районе варьируется от 2500 рублей в сутки до 25 000 рублей в месяц, при этом наблюдается стабильный рост цен и высокий спрос на жилье данного типа. Квартира не имеет долгов и обременений, принадлежит одному взрослому собственнику. Объект соответствует требованиям для оформления ипотеки в любом банке, использования материнского капитала, областных и федеральных субсидий, а также жилищных сертификатов. Таким образом, данная квартира является оптимальным выбором для комфортного проживания, инвестиций и дальнейшей перепродажи. ID объекта в нашей базе: 18010
    размещено: 14.10.2025 , обновлено: 10.11.2025

    1-к квартира, Машинная, 42к2

    • 32.6 м2
    • 1/5 этаж
    • Состояние: хорошее
    4 300 000 ₽ (131900 ₽/м2)
    Предлагаем Вашему вниманию светлую и просторную 1 комнатную квартиру с удобной планировкой, расположенную в центральном районе с развитой инфраструктурой. Всего в 10 минутах ходьбы находится станция метро Чкаловская, что обеспечивает легкий доступ к любым уголкам города.Комната поделена перегородкой на зону гостиной и спальни - в каждой из зон имеется окно, что обеспечит вам естественное освещение. Готовы оставить для вас всю имеющуюся мебель в подарок!Одним из главных преимуществ является близость к парку Маяковского, где Вы сможете наслаждаться прогулками на свежем воздухе, заниматься спортом или просто отдыхать на природе. В окрестностях много магазинов, кафе и ресторанов, что делает жизнь здесь максимально удобной и комфортной.Эта квартира — идеальный выбор для тех, кто ценит комфорт, стиль и удобство городской жизни! Идеально для сдачи в аренду, или же для себя! Звоните, записывайтесь на просмотрПомощь с одобрением ипотеки ID объекта в нашей базе: 11788
    размещено: 08.10.2025 , обновлено: 10.11.2025

    1-к квартира, Авиационная, 63/2

    • 28 м2
    • 2/5 этаж
    • Состояние: хорошее
    4 099 999 ₽ (146400 ₽/м2)
    Продам уютную однокомнатную квартиру. Район Южный Автовокзал. Рядом метро "Чкаловская" метро "Ботаническая " ТЦ Мегаполис. В квартире остаётся вся мебель и техника. ID объекта в нашей базе: 4663
    размещено: 23.09.2025 , обновлено: 3.11.2025

    1-к квартира, Фурманова, 116

    • 32.1 м2
    • 5/5 этаж
    • Состояние: хорошее
    4 200 000 ₽ (130800 ₽/м2)
    Уникальное предложение!!!ОДНОКОМНАТНАЯ КВАРТИРА в центральном районе города Екатеринбург. Удачная планировка, жилая комната на два окна, окна выходят во двор и на улицу Фурманова. Квартира очень светлая и теплая. В подъезде поддерживается чистота и порядок. Соседи дружные и порядочные люди. Всегда есть парковочные места во дворе. Развитая инфраструктура позволит комфортное проживание любому покупателю, в шаговой доступности остановки общественного транспорта, детские сады, школы, магазины, аптеки, больницы, поликлиники и многое другое. Один собственник. Ипотека ДА. Ждем на просмотр. ID объекта в нашей базе: 4816
    размещено: 18.09.2025 , обновлено: 3.11.2025

    1-к квартира, 8 Марта, 101

    • 31.1 м2
    • 4/5 этаж
    • Состояние: удовлетворительное
    4 450 000 ₽ (143100 ₽/м2)
    Квартира в отличном месте ,район Автовокзала. Дом находится между двумя станциями метро Чкаловская и Геологическая. Рядом высшие учебные заведения. Школы,садики. Транспорт во все районы города. Квартира требует ремонта. После просмотра торг. Готовы работать с любыми видами сертификатов. ID объекта в нашей базе: 1059
    размещено: 08.09.2025 , обновлено: 9.11.2025

    1-к квартира, Машинная, 42к3

    • 27.9 м2
    • 1/9 этаж
    • Состояние: хорошее
    4 400 000 ₽ (157700 ₽/м2)
    Прoдaeтcя уютная oднокомнатная кваpтирa в рaйoне Южногo Автoвoкзaлa. B пeшeй доступности (~15мин) oт мeтpо Бoтaничеcкaя и Чкaловcкaя. Peaльноe состoяниe нa фотo. Пoчти вся мeбель и тeхника (cтиральнaя машинa, хoлoдильник, микрoвoлновкa, чайник, индукциoнная плитa), чтo eсть на фотo - oстаeтся. Kвартира подойдет как для личного использования, так и для сдачи в аренду. Рядом есть магазины Магнит, Монетка, Пятерочка, Бристоль, Жизнь-Март, школа 28, детский сад 555.Квартира без обременений. Два взрослых собственника. Чистая продажа.Показ по договорённости.Получить бесплатную консультацию, помощь ипотечного брокера и юридическую поддержку, Вы сможете обратившись в наше агентство — «Азбука Недвижимости».Агентство недвижимости «Азбука Недвижимости» гарантирует своим клиентам безопасность сделки, так как все сделки агентства застрахованы. ID объекта в нашей базе: 1882
    размещено: 27.08.2025 , обновлено: 3.11.2025

    1-к квартира, Белинского, 200

    • 36.5 м2
    • 10/12 этаж
    • Состояние: хорошее
    5 550 000 ₽ (152100 ₽/м2)
    Продaм oтличную видoвую квapтиру, прекрacный вид нa гоpoд, с oгpoмной зacтeклeннoй лoджии откpываетcя чудеcный вид, откудa мoжно cмотреть салют нa праздники, кoторыe пpовoдят нa плотинкe. площaдь квaртиpы укaзaнa без учёта лоджии, с лoджией площадь квартиры 45 кв.м. Квартира большая, сан узел раздельный, кухня большая, комнату можно разделить на зону спальни и гостиной. требуется косметический ремонт.Дом хороший, кирпичный, хорошая шумоизоляция, окна выходят во двор.В площади квартиры не учитывается огромная лоджия площадью около 8 кв.м.Квартира прекрасно подойдет как для проживания, как и инвестиция для сдачи в аренду.Собственник один - более 7 лет, быстрый выход на сделку. Никто не прописан. Без обременений. Мебель и техника остаются. Хорошая транспортная доступность: до метро можно дойти пешком, у дома автобусная/троллейбусная остановка.Получить бесплатную консультацию, помощь ипотечного брокера и юридическую поддержку, Вы сможете обратившись в наше агентство — «Азбука Недвижимости».Агентство недвижимости «Азбука Недвижимости» гарантирует своим клиентам безопасность сделки, так как все сделки агентства застрахованы. ID объекта в нашей базе: 1866
    размещено: 11.08.2025 , обновлено: 10.11.2025

    1-к квартира, Сурикова, 47

    • 18.2 м2
    • 2/5 этаж
    • Состояние: идеальное
    3 599 000 ₽ (197700 ₽/м2)
    Продается уютная, чистая квартира , в спальном районе. В шаговой доступности садики, школы , остановка транспорта, ТЦ Мегаполис, метро ,автовокзал. магазины, аптеки , больницы. Сделан ремонт во всей квартире: новая проводка,новые трубы,новые счетчики эл,хвс,гвс; натяжные потолки . Основная комната: большое пластиковое окно, заменена батарея, ламинат, флизелиновые обои, кухонный гарнитур, варочная панель, обеденный стол,большой раскладной диван, угловой шкаф,комод. Коридор: встроенный шкаф- купе, стиральная машина, входная железная дверь. Один собственник. Обременений нет.Документы готовы к продаже. Срочно!!! ID объекта в нашей базе: 17657
    размещено: 11.07.2025 , обновлено: 6.11.2025

    1-к квартира, Щорса, 60а

    4 300 000 ₽ (142400 ₽/м2)
    Арт. 108511934 Квартира в хорошем теплом, кирпичном доме (не угловая), сделан косметический ремонт. Дом расположен внутри двора, в дали от шумных дорог, двор хорошо озеленен (под окнами распускается жасмин и сирень). Дом надежный, проверенный годами. Район Автовокзала, все в шаговой доступности: магазины,ТЦ Мегаполис. Очень удобная транспортная развязка - МЕТРО, трамваи, троллейбусы, автобусы. Рядом находится Гимназия №120, входящая в топ-20 школ по Свердловской области, так же в районе еще 3 сильные гимназии №70 (топ-20) , школа №102 и французская гимназия №39, также рядом расположен садик, городская поликлиника номер 2 (ЦГБ 6), в близи ЦПКиО им. Маяковского и многое другое. Один взрослый собственник, более 10 лет. Просмотр по договорённости.
    размещено: 24.06.2025 , обновлено: 19.10.2025

    1-к квартира, Хуторская, 1

    • 20 м2
    • 19/25 этаж
    • Состояние: идеальное
    3 990 000 ₽ (199500 ₽/м2)
    Уютная видовая (вид на реку Исеть) квартира-студия с современным ремонтом, не требует дополнительных вложений. Заезжай и живи! Остается вся мебель и техника (кухонный гарнитур, варочная поверхность, вытяжка, холодильник, стиральная машинка, диван, шкафы, прихожая, обеденный стол, стулья, тумбочка под телевизор)Низкие коммунальные платежи - около 2000 руб (счётчики на воду, электричество, отопление) Расположение дома предлагает отличные возможности для активного отдыха и прогулок благодаря близости парка Маяковского и набережной реки Исеть. Для молодых семей особенно актуальна развитая инфраструктура района: рядом находятся школа и детский сад, а также торговый центр, где можно приобрести все необходимое для повседневной жизни.Хотя квартира расположена в динамично развивающемся районе, она предоставляет возможность жить в тихой и спокойной обстановке, одновременно имея быстрый доступ ко всем необходимым объектам инфраструктуры. ID объекта в нашей базе: 3751
    размещено: 14.02.2025 , обновлено: 5.11.2025

    1-к квартира, Белинского, 111

    • 40 м2
    • 9/20 этаж
    • Состояние: идеальное
    5 700 000 ₽ (142500 ₽/м2)
    Срочно продам!Однокомнатная с функционалом двухкомнатной!!!ЖК Победа. Закрытый двор, приличные соседи. Выполнена перепланировка сделан дизайнерский ремонт: кухня-гостиная и небольшая уютная спальня. В квартире имеется гардеробная, сейчас используется в качестве кабинета. Перепланировка и ремонт сделаны весной 2016 года, для себя. В доме ведет свою деятельность активное тсж, низкие коммунальные платежи. В доме имеется паркинг. Окна выходят во двор. Агентствам и агентам не беспокоить!один совершеннолетний собственник. Остальные подробности по телефону. ID объекта в нашей базе: 11583
    размещено: 07.03.2024 , обновлено: 13.11.2025

Новостройки Екатеринбург, мкр-н. Автовокзал

Приоритет

Увеличивает просмотры в 3 раза

Ваше объявление показывается в списке выше обычных объявлений. подключить