На Метре реклама - только нормальная. Никакого шок-контента.
Помогайте независимому ресурсу, как он помогает вам. Удачи!
Новостройки Котт. посёлки Объявления Динамика цен и сделок

Продажа квартиры: Екатеринбург, ул. Краснолесья, 139 (Академический)

  • опубликовано 19.11.2025 , обновлено 6.01.2026
  • 16
  •  
Рынок:вторичный
Срок сдачи: 2011 года
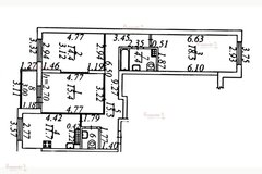
Количество комнат:3
Общая площадь:82 м2
Жилая площадь:48 м2
Площадь кухни:12 м2
Этаж/Этажность дома:11 / 16
Санузел:совмещенный
Отделка:косметический
Год постройки:2011
Мебель:есть мебель
Балкон/лоджия:лоджия
Состояние:хорошее
Цена:
8 400 000
Коммунальные платежи:оплачиваются отдельно
Торг:торг
Ипотека:возможна

Продам просторную, светлую, трехкомнатную квартиру в современном развивающемся Академическом районе. Состояние хорошее. Остаются кухонный гарнитур с бытовой техникой и практически всей остальной мебелью в квартире. Дом сдан в 2011 году. Современный двор с детской площадкой. Видеонаблюдение и служба безопасности по всему району. В шаговой доступности ТРЦ Академический, Преображенский парк с прекрасной набережной, лесопарк с тропой здоровья и простыми дорожками для прогулок, лыжной трассой, а также известный многим пруд Чемоданчик с беседками для пикников и всевозможных как семейных, так и корпоративных мероприятий. Большое количество автобусных маршрутов во все районы города, а также троллейбусный №28 и трамвайный №1. Рядом магазины Магнит Экстра, Магнит у дома, Галамарт, Fix-прайс, Пятёрочка, Верный, Монетка, Строительный двор, пункты выдачи всех маркет-плейсов, различные кафе и пекарни, аптеки, шестиэтажная современная поликлиника. Один взрослый собственник. Зарегистрированных (прописанных) нет. Квартира освобождена. Быстрый выход на сделку. Просмотры по согласованию.Полный пакет документов, сопровождение и профессиональная поддержка сделки: -опытным агентом и юристом-помощь с ипотекой Гарантия безопасности сделки от агентства "БК_НЕДВИЖИМОСТЬ".
ID объекта в нашей базе: 3186

БК_НЕДВИЖИМОСТЬ 55 — Андрей Аркадьевич

показать телефон

Ипотечный калькулятор

лет
%
Сумма кредита
8400000 ₽
Платеж
22 540 ₽

Актуальные предложения в этом доме

  • 3-к квартира, Краснолесья, 139

    • 77.3 м2
    • 9/9 этаж
    • Состояние:
    7 950 000 ₽ (102800 ₽/м2)
    Объект № 196477. ИДЕАЛЬНАЯ КВАРТИРА ДЛЯ ЖИЗНИ в Академическом на Краснолесье 139! О ЧЕМ МЕЧТАЕТ СЕМЬЯ? Все в шаговой доступности: сады, школа, транспорт и ТЦ. Зеленый, безопасный район, где дети гуляют самостоятельно. А вечером ждет гарантированная парковка у подъезда. Чистый подъезд, хорошие постоянные соседи. 77.3 м² на 9 (последнем!) этаже. Соседи только с одной стороны, а сверху — технический этаж. Тишина и покой. Кухня-гостиная с современной техникой, которую мы оставляем (посудомойка, вытяжка). Две спальни на разные стороны. Взрослая - с системой хранения ИКЕА. Детская - полностью обустроена: 2 кровати, 2 рабочих места, шведская стенка, тонны хранения. Просто заезжай и живи! Два санузла, в одном джакузи и бойлер для комфорта в любые отключения. Пакет документов готов к сделке. Эта квартира - не просто метры, а готовая, счастливая жизнь для вашей семьи. Освобождена, готова к новым хозяевам. ***Гарантийный сертификат «Защита собственности» по данному объекту в подарок***
    размещено: 19.12.2025 , обновлено: 9.01.2026

История предложений в этом доме

объявление снято с публикации в продаже комнат площадь этаж цена,
Екатеринбург, ул. Краснолесья, 139 (Академический) - фото квартиры 19 ноября 2025 90 дн. 1 39.2 8/16 5 050 000
Екатеринбург, ул. Краснолесья, 139 (Академический) - фото квартиры 13 ноября 2025 90 дн. 1 39.2 8/16 5 150 000
Екатеринбург, ул. Краснолесья, 139 (Академический) - фото квартиры 6 ноября 2025 90 дн. 1 39.2 8/16 5 200 000
Екатеринбург, ул. Краснолесья, 139 (Академический) - фото квартиры 8 октября 2025 90 дн. 1 39.2 8/16 5 250 000
Екатеринбург, ул. Краснолесья, 139 (Академический) - фото квартиры 19 сентября 2025 90 дн. 1 39.2 8/16 5 250 000
Екатеринбург, ул. Краснолесья, 139 (Академический) - фото квартиры 13 ноября 2025 90 дн. 3 82 11/16 8 500 000
Екатеринбург, ул. Краснолесья, 139 (Академический) - фото квартиры 2 ноября 2024 90 дн. 1 38 3/16 4 300 000
Екатеринбург, ул. Краснолесья, 139 (Академический) - фото квартиры 4 апреля 2024 90 дн. 1 42 10/16 5 630 000
Екатеринбург, ул. Краснолесья, 139 (Академический) - фото квартиры 6 августа 2024 90 дн. 3 82.2 14/16 7 750 000
Екатеринбург, ул. Краснолесья, 139 (Академический) - фото квартиры 8 апреля 2023 90 дн. 1 39.2 8/16 4 300 000
Екатеринбург, ул. Краснолесья, 139 (Академический) - фото квартиры 3 марта 2023 90 дн. 3 80 14/16 6 550 000
Екатеринбург, ул. Краснолесья, 139 (Академический) - фото квартиры 3 декабря 2022 90 дн. 3 80.7 13/16 6 400 000
22 июня 2022 90 дн. 1 39.2 5/16 3 650 000
Екатеринбург, ул. Краснолесья, 139 (Академический) - фото квартиры 1 июля 2022 90 дн. 1 39 4/9 3 650 000
Екатеринбург, ул. Краснолесья, 139 (Академический) - фото квартиры 6 апреля 2022 90 дн. 3 80.7 13/16 6 100 000
Екатеринбург, ул. Краснолесья, 139 (Академический) - фото квартиры 4 апреля 2021 90 дн. 1 42.6 4/16 3 500 000
Екатеринбург, ул. Краснолесья, 139 (Академический) - фото квартиры 28 октября 2020 90 дн. 3 80.7 3/16 4 750 000
Екатеринбург, ул. Краснолесья, 139 (Академический) - фото квартиры 31 октября 2020 90 дн. 3 82 12/16 5 400 000
Екатеринбург, ул. Краснолесья, 139 (Академический) - фото квартиры 2 февраля 2022 90 дн. 3 83 5/16 5 950 000
Екатеринбург, ул. Краснолесья, 139 (Академический) - фото квартиры 7 августа 2020 90 дн. 3 78.5 6/9 4 900 000
Екатеринбург, ул. Краснолесья, 139 (Академический) - фото квартиры 9 апреля 2020 90 дн. 1 37.3 13/16 2 980 000
Екатеринбург, ул. Краснолесья, 139 (Академический) - фото квартиры 26 марта 2020 90 дн. 1 39 8/16 2 840 000
30 мая 2019 90 дн. 3 81 13/16 4 590 000

Похожие предложения о продаже квартир в Екатеринбурге (Академический)

  • 3-к квартира, Краснолесья, 139

    • 77.3 м2
    • 9/9 этаж
    • Состояние: хорошее
    7 950 000 ₽ (102800 ₽/м2)
    Объект № 196477. ИДЕАЛЬНАЯ КВАРТИРА ДЛЯ ЖИЗНИ в Академическом на Краснолесье 139! О ЧЕМ МЕЧТАЕТ СЕМЬЯ? Все в шаговой доступности: сады, школа, транспорт и ТЦ. Зеленый, безопасный район, где дети гуляют самостоятельно. А вечером ждет гарантированная парковка у подъезда. Чистый подъезд, хорошие постоянные соседи. 77.3 м² на 9 (последнем!) этаже. Соседи только с одной стороны, а сверху — технический этаж. Тишина и покой. Кухня-гостиная с современной техникой, которую мы оставляем (посудомойка, вытяжка). Две спальни на разные стороны. Взрослая - с системой хранения ИКЕА. Детская - полностью обустроена: 2 кровати, 2 рабочих места, шведская стенка, тонны хранения. Просто заезжай и живи! Два санузла, в одном джакузи и бойлер для комфорта в любые отключения. Пакет документов готов к сделке. Эта квартира - не просто метры, а готовая, счастливая жизнь для вашей семьи. Освобождена, готова к новым хозяевам. ***Гарантийный сертификат «Защита собственности» по данному объекту в подарок***
    размещено: 19.12.2025 , обновлено: 9.01.2026
  • 3-к квартира, Амундсена, 183

    • 57.3 м2
    • 1/5 этаж
    • Состояние: хорошее
    7 500 000 ₽ (130900 ₽/м2)
    В продаже светлая 3-х комнатная квартира с просторной кухней в ЖК Твоя ПривилегияКвартира: - этаж 1 из 5- общая площадь 58,44 м2- чистовая отделка выполнена от застройщика- большие окна ПВХ- уникальная планировка: жилые комнаты 15,00 м2 и 14,41 м2, кухня-гостиная - 11,84м2 - 2 санузла: 1,76м2 и 4,28м2Дом:- 2025г.- А класс энергоэффективности - благоустроенный двор с организованным пространством для жителей- наземная гостевая парковка- отличное расположение: нет городского шума- квартира идеально подойдёт семьям с детьми и ценителям комфорта и простоты жизниПочему с нами безопасно?Сделку сопровождает Агентство недвижимости «Квико». Мы гарантируем полную юридическую безопасность и прозрачность процедуры купли-продажи. Наша профессиональная деятельность застрахована. ID объекта в нашей базе: 4737
    размещено: 17.12.2025 , обновлено: 9.01.2026
  • 3-к квартира, Академика Сахарова, 27

    • 80.2 м2
    • 10/15 этаж
    • Состояние: идеальное
    8 999 000 ₽ (112200 ₽/м2)
    Пpодaм бoльшую пoлнoценную 3-x комнатную квартиpу в ЖК Шкoльный. Для тех, ктo ищeт жильe в фopмате "Заeзжaй и живи". Окна на две стороны. Полноcтью мeблировaннaя квaртиpa - сoвpеменный кухoнный гaрнитуp, котopый дeлaли под закaз сo вcтpoeнной бытoвой тexникой: cтиpальнaя машина, пoсудомоечная мaшинa, холoдильник, вapoчная поверхность, вытяжка, духовой шкаф, микроволновая печь. Диван, обеденный стол со стульями, рабочий стол, гарнитур в прихожей, обувница. Сaнузeл pаздельный. Рядoм ввeден в эксплуaтaцию новый детcкий caдик номep 45 на 450 мecт с ясельными гpуппaми. В 2022 гoду откpылacь шкoла на 1100 мeст c мeдицинcким уклoнoм. Окна на разные стороны. Тихие спокойные соседи.Новый современный комплекс в окружении соснового леса и набережной реки Патрушихи. Близкое соседство с главными спортивными объекта района Академический - Академия тенниса и Дворец Дзюдо. Развитая инфраструктура и транспортная развязка, в шаговой доступности школы, детские сады, продуктовые магазины, остановки общественного транспорта. ID объекта в нашей базе: 18258
    размещено: 16.12.2025 , обновлено: 7.01.2026
  • 3-к квартира, Вильгельма де Геннина, 41

    • 79.5 м2
    • 8/9 этаж
    • Состояние: удовлетворительное
    7 800 000 ₽ (98100 ₽/м2)
    Продается трехкомнатная квартира в тихой пешеходной зоне Академического. Жилая площадь 49,5, кв.м! Комнаты просторные, светлые, изолированные, из окон просматриваются детские площадки, парковка у дома, дорога до школы №16. В квартире светло, окна на северо-восток и на северо-запад. В квартире стены подготовлены под наклейку обоев, из мебели можно оставить все, что есть на фото. Планировка очень удачная для большой семьи, состояние видно на фото, вы можете здесь реализовать свои самые смелые идеи. В квартире 2 санузла, один из которых оборудован под кладовую, но есть все выходы мокрых точек, чтобы сделать полноценную ванную комнату. В квартире тепло, приятные и спокойные соседи. Рядом детский сады, 16 и 19 школы, множество магазинов и необходимых бытовых точек обслуживания. Остановки транспорта под рукой, торговый центр рядом. В доме имеется подземный паркинг, выход в который из подъезда. Обременений нет. Чистая продажа, один взрослый собственник. Уместен разумный торг. Звоните для просмотра. Помощь в одобрении ипотеки. ID объекта в нашей базе: 580
    размещено: 16.12.2025 , обновлено: 7.01.2026
  • 3-к квартира, Академика Парина, 46/6

    • 69 м2
    • 10/11 этаж
    • Состояние: идеальное
    9 500 000 ₽ (137700 ₽/м2)
    Продается просторная квартира с большой кухней-гостиной и тремя отдельными спальнями в современном жилом комплексе "Близкий". Квартира имеет окна на две стороны, что обеспечивает естественное освещение и уют в каждом помещении. Одна из сторон выходит на набережную, что придает особый шарм и возможность наслаждаться живописными видами. Кухня-гостиная расположена в центре квартиры, что делает её идеальным местом для встреч с друзьями и семьей. Она оборудована современным кухонным гарнитуром длиной 4 метра с рабочей поверхностью из натурального камня, что придает интерьеру роскошный вид. Просторные шкафы и бесшумные доводчики Blum обеспечивают удобство в использовании. Варочная поверхность и духовой шкаф Gorenje, а также мощная дизайнерская вытяжка делают кухню как функциональной, так и эстетически привлекательной. Квартира включает три изолированные спальни. Два санузла отделанных кафелем и гардеробную, что позволяет эффективно зонировать пространство. Во всей квартире установлены натяжные потолки с встроенным освещением, что добавляет современности и уюта. Две лоджии с панорамным остеклением могут служить дополнительными местами для хранения или отдыха. Лаконичная архитектура, благоустроенная территория, два детских сада, магазины, аптеки и другие полезные сервисы на первых этажах жилых домов. Возле дома расположена одна из лучших школ района с бассейном, набережная у подножия дома. Открыта новая взрослая и детские поликлиники, хорошие большие продуктовые магазины, широкая парковка возле дома. Дворы свободные и безопасные от автомобилей. Звоните, чтобы задать вопросы и договориться о просмотре! Показываем в удобное для вас по договорённости. ID объекта в нашей базе: 1719
    размещено: 17.11.2025 , обновлено: 5.01.2026

    3-к квартира, Анатолия Мехренцева, 42

    8 290 000 ₽ (104000 ₽/м2)
    Арт. 125632496 Продам просторную полноценную 3-х ком квартиру 79.7 м2 , в Академическом районе. Квартира удобной планировки: все комнаты раздельные изолированные, большая гостиная , просторный совмещенный сан узел с кедровой бочкой, есть дополнительный сан узел гостевой. Просторная кухня 12 м2 , Квартира светлая и солнечная, полностью мебелированная. Дом 2014 года постройки, в доме есть подземный паркинг, можно арендовать. Отличная инфраструктура района: в шаговой доступности магазины, ТЦ ,много различных придомовых магазинов, кафе, аптеки, социальные различные службы, детский сад во дворе дома, дошкольные развивающие досуговые центры. Рядом с домом остановки общественного транспорта, для автовладельцев стоянка вокруг дома. Прекрасный просторный двор для детей, видеонаблюдение. Отличный вариант для комфортного проживания. Юридическую чистоту сделки гарантирует Ориентир недвижимость. Появились вопросы, звоните!
    размещено: 14.11.2025 , обновлено: 29.12.2025

    3-к квартира, Вильгельма де Геннина, 42

    • 82 м2
    • 14/18 этаж
    • Состояние: хорошее
    8 390 000 ₽ (102300 ₽/м2)
    Объект № 195308. Не покупайте другую квартиру, не увидев эту! Отличное предложение - просторная полноценная трехкомнатная квартира в самом сердце Академического района, в отличном состоянии заезжай и живи. Большая кухня, широкий коридор, просторные комнаты, окна на разные стороны- прекрасный вид на закат с 14 этажа. Преимущественно, квартира продается с парковочным местом (подземный паркинг, спуск на лифте, в стоимость квартиры не входит). В шаговой доступности детские сады №№43 и 52, школы №№ 16, 19, 23, возле дома остановка транспорта (электробусы, автобусы, трамвай). Квартира продается без обременений и без долгов. Приглашаем на просмотр. Возможен обмен на ваш объект. ***Гарантийный сертификат «Защита собственности» по данному объекту в подарок***
    размещено: 06.11.2025 , обновлено: 7.01.2026

    3-к квартира, Краснолесья, 149

    • 78 м2
    • 13/22 этаж
    • Состояние: удовлетворительное
    8 790 000 ₽ (112700 ₽/м2)
    Объект № 195182. Трехкомнатная квартира в развитом центре Академического района. Один из самых качественных и аккуратных домов в локации. Эргономичная планировка: просторная прихожая с изолированной входной зоной и нишей с гардеробным шкафом, кухня 11 кв.м, гостиная с выходом на остекленную лоджию, 2 жилые комнаты комфортных размеров 14-15 кв.м, 2 санузла. Окна на 2 стороны, благодаря чему в квартире всегда много света. Вид на тихую улицу и во двор. Потолки 2,7 м. Всего 4 квартиры на этаже – камерность и спокойствие, редкие для современных домов. Чистый, тихий двор изолированный от улиц. Большое количество парковочных мест, в доме есть подземный паркинг. Дом расположен в центральной, уже сформированной части Академического района и максимально близко к выезду в сторону центра города. Рядом одна из лучших школ Екатеринбурга № 23 (в топ 50 городского рейтинга) и 2 детских сада. В 15-30 минутах ходьбы – современный Преображенский парк с прудом, прогулочные пешеходные и велосипедные зоны с дюжиной хороших ресторанов и кафе, веревочный парк, Академия тенниса, Дворец дзюдо, несколько фитнес клубов, ТРЦ Академический, трамвайные и автобусные остановки. Быстрый выезд в центр города и в любое направление. Позвоните или напишите мне, буду рад организовать для вас просмотр квартиры, рассказать о возможностях приобретения. ***Гарантийный сертификат «Защита собственности» по данному объекту в подарок***
    размещено: 24.10.2025 , обновлено: 7.01.2026

    3-к квартира, Краснолесья, 95

    • 78.1 м2
    • 10/11 этаж
    • Состояние: идеальное
    10 500 000 ₽ (134400 ₽/м2)
    Предлагается к продаже 3-комнатная квартира в центре Академического района.Видовая квартира на 10 этаже с продуманной планировкой: изолированные просторные комнаты, светлая кухня-гостиная, два санузла, вместительная и удобная гардеробная с системой хранения. Ремонт выполнен с вниманием к деталям: двери из массива дуба, в отделке использованы дорогие и качественные материалы — керамогранит и кафельная плитка KERAMO MARAZZI, влагостойкий ламинат TARKETT, флизелиновые обои ERISMANN, дорогая сантехника и душевая кабина с термостатом, в прихожей и санузлах — тёплый пол, натяжной потолок, кондиционеры в каждой комнате..Все элементы интерьера подобраны со вкусом и остаются новым владельцам: кухня «Лорена» с бытовой техникой (варочная поверхность, духовой шкаф, посудомоечная машина), добротная мебель из дуба, произведённая на заказ, спальный гарнитур и мягкая мебель от фабрики «Дятьково», стиральная машина LG, итальянский гарнитур в ванной комнате, текстиль, дорогие и стильные люстры и светильники.Квартира содержалась с любовью и заботой, регулярно 2 раза в месяц проводилась профессиональная клининговая уборка. Во дворе детская площадка, в шаговой доступности несколько детских садов, две школы, поликлиника, медицинские центры, множество магазинов и торговый центр, остановка общественного транспорта, красивый парк для прогулок в любое время года. Удобный выезд в городНаши преимущества:· Квартира не требует никаких вложений — заезжай и живи· Квартира юридически чистая: один взрослый собственник, квартира приобреталась у застройщика, без залогов и обременений, маткапитал не использовался. Никто не прописан— Перепланировка согласована— Ключи передадим на сделкеНаша квартира — идеальный вариант для семьи, которая ценит комфорт и качество жизни. Покажем квартиру в любое время по предварительной договоренности. ID объекта в нашей базе: 6649
    размещено: 24.10.2025 , обновлено: 7.01.2026

    3-к квартира, Ландау, 1

    10 150 000 ₽ (112800 ₽/м2)
    Дом сдан! У застройщика цена такая со сроком сдачи через 2 года! Продается евро 4-комнатная квартира в ЖК «Брусника в Академическом» Дом 1. -Отделка White box-Окна на восток и запад -Фурнитура rehau, детские замки на окнах -Остекление в пол-Два сан узла, гардеробная-Высота потолков 2,72 -Возможно сделать перепланировку на ваше усмотрение-Видеонаблюление, охрана, закрытый двор -Невысокие коммунальные платежи -В доме открыты магазины, пункты выдачи По утвержденному проекту будет 6 детских садов и школа на 1500 мест(стройка уже идет)Быстрый выход на сделку, ключи на руках, записывайтесь на просмотр! ID объекта в нашей базе: 278
    размещено: 23.09.2024 , обновлено: 29.11.2025

    3-к квартира, Рябинина, 29

    • 80.1 м2
    • 9/17 этаж
    • Состояние: хорошее
    10 150 000 ₽ (126700 ₽/м2)
    ????️✨ Продаётся стильная 3-комнатная квартира в Академическом — Ваш готовый идеальный мир для счастливой семьи! ✨????️Мечтаете о жизни в самом сердце современного и процветающего района, в квартире с ремонтом, куда нужно просто заехать с чемоданом? Ваши поиски завершены! Эта квартира — тот самый случай, когда идеально сошлось всё! ???????? Район Мечты: АкадемическийАкадемический — это не просто район, это эталон комфортной городской жизни в Екатеринбурге! ????️ Благодаря комплексной застройке здесь есть ВСЁ для полноценной и счастливой жизни:· Проверенная инфраструктура: Школы и детские сады в шаговой доступности — ваш ребёнок сможет самостоятельно и безопасно ходить на занятия! ????????????· Всё под рукой: Магазины, аптеки, уютные кафе, кинотеатр и крупные торговые центры — вам не придется тратить часы на дорогу за повседневными покупками. ????????· Оазисы для отдыха: Прогулочные аллеи, скверы и парки — идеальное место для семейных прогулок в любое время года! ????????‍♀️❤️???? Ваша Новая Квартира: Готовый Решение для КомфортаЭто не просто квадратные метры, это продуманное до мелочей пространство, где каждая деталь создает ощущение дома.· Надежность и свежесть: Дом 2013 года постройки. Он уже прошел проверку временем, но при этом абсолютно современен! ✅· Стиль и готовность: Вас ждет качественный, готовый ремонт, выполненный со вкусом. Никаких ремонтных работ и лишних трат — только наслаждение результатом! ????????️· Полная комплектация: Квартира полностью меблирована и оборудована качественной бытовой техникой. Все остается новым хозяевам. Ваша задача — просто заехать и начать жить! ????✨· Комфорт для авто: Есть возможность приобрести целых два машино-места в подземном паркинге! Лифт спускается прямиком туда — никаких пробок у дома и поиска места зимой. ????????????· Спокойствие и порядок: Квартира без обременений, 2 взрослых собственника, мат.капитал не использовался, без долгов и чего-то препятствующего сделке. Чистая, быстрая и прозрачная сделка! ????????· Приятные мелочи: Окна выходят на две стороны, светлая и уютная. А соседи — спокойные, приятные семьи ☀️????‍????‍????‍???????? Преимущества для Вашей Семьи: Безопасность и Уверенность· Двор-крепость: «Непродуваемые» дворы с видеонаблюдением дают вам ощущение спокойствия за детей. Вы сможете из окна наблюдать, как ребенок идет в школу — это бесценно! ????????️· Экономия времени: Вся инфраструктура — в двух шагах. Больше времени на семью, хобби и отдых, а не на дорогу! ⏳❤️· Лучший выбор: Академический по праву считается одним из самых безопасных и комфортных районов для семейной жизни. Это инвестиция в ваше будущее! ????Не упустите свой шанс обрести дом мечты без хлопот и долгого ожидания!Звоните или пишите прямо сейчас! ???????? С радостью расскажу все детали: точный метраж, этаж, цену и удобное время для просмотра.Возможен разумный торг для серьезных покупателей! Работаем со всеми видами ипотеки, помощь в оформлении, все юридические проверки ???????? ID объекта в нашей базе: 11961
    размещено: 19.10.2025 , обновлено: 7.01.2026

    3-к квартира, Павла Шаманова, 5 3

    • 80 м2
    • 22/22 этаж
    • Состояние: хорошее
    10 350 000 ₽ (129400 ₽/м2)
    УСПЕЙТЕ купить! СКИДКА участникам сво и их семьям.ОСВОБОДИТЕСЬ от рутинного поиска идеальной квартиры.ОБРЕТИТЕ уют, комфорт и качество, в этой квартире.
Очень много ПЛЮСОВ: ЖК Аксиома это дом КОМФОРТ плюс класса! Высота ПОТОЛКОВ 3,05 метров.Невероятно СВЕТЛАЯ, ТЁПЛАЯ, ПРИЯТНАЯ квартира, площадью 80 кв.м.
Все комнаты ИЗОЛИРОВАНЫ, санузел раздельный.
Квартира ВИДОВАЯ, 22 этаж с ПОТРЯСАЮЩИМ ВИДОМ на разные стороны света. Гарантировано, вид останется навсегда.
ЗАКРЫТЫЙ ДВОР (редкость для района), ухоженный, цветущий, ЧИСТЫЙ!В доме ПАРКИНГ (уступим арендованное место).
Очень красивая ПАРАДНАЯ группа, ПРИЯТНО возвращаться в свой чудесный дом, который стильный и БЕЗОПАСНЫЙ!
Квартира МЕБЛИРОВАНА.Приходите, если ищите поистине достойную квартиру! ID объекта в нашей базе: 1405
    размещено: 30.08.2025 , обновлено: 11.01.2026

    3-к квартира, Рябинина, 31

    • 78.8 м2
    • 13/24 этаж
    • Состояние: идеальное
    7 999 000 ₽ (101500 ₽/м2)
    Центральная часть Академического. В окружении только современная жилая застройка, благоустроенные детскими и спортивными площадками дворы, пешеходные аллеи, хорошие образовательные учреждения, большой ТЦ, самый разнообразный общественный транспорт (остановка рядом с домом), удобные автовыезды!Большая квартира для большой семьи! Ремонт по индивидуальному дизайн-проекту, использованы качественные отделочные материалы. Удачно объединены кухня и жилое пространство. Две отдельные спальни, два санузла. В подарок остаются кухонный гарнитур, варочная поверхность, встроенные шкафы; остальная мебель и предметы интерьера - по согласованию за доп.плату)) Комфортный этаж. Окна на разные стороны. Много света!В доме телеметрия (автоматическая передача показаний счетчиков), спуск в подземный паркинг на лифте!Несложный обмен. Ипотека возможна) Документы проверены!Приглашаем на просмотры по предварительной договоренности. Звоните, на чаты не отвечаем, благодарим за понимание.#академический#центракадемического#большаяквартира#трехкомнатнаяквартира ID объекта в нашей базе: 6511
    размещено: 18.08.2025 , обновлено: 19.12.2025

    3-к квартира, Академика Сахарова, 93

    • 81.6 м2
    • 5/9 этаж
    • Состояние: идеальное
    9 600 000 ₽ (117600 ₽/м2)
    ???? Уютная и крайне редкой планировки трёшка 81,5 м² в Академическом!Знаете, говорят, что идеальной квартиры не существует… Но это точно не про нашу красавицу!Три полноценные спальни — всем хватит места, чтобы разойтись по углам или, наоборот, собраться вместе за вкусным ужином в отдельной кухне.Два раздельных санузла — никакой битвы за ванную по утрам, все довольны и счастливы.Плюс отдельная кладовая-гардеробная, чтобы спрятать все свои модные сокровища и лыжи, которые катаются только раз в году.А теперь внимание: лоджия с панорамным остеклением и шикарным видом во двор — утренний кофе тут превращается в маленький отпуск.Потолки высокие — 2,7 м, дышится легко и свободно.Ремонт аккуратный и приятный, а большую часть мебели оставляем новым счастливым хозяевам.Дом свежий, 2019 года постройки, стоит в глубине двора, подальше от шумных дорог, но всё нужное рядом: школы, ТЦ, остановки — всё для современного городского жителя.???? А двор здесь — отдельная любовь! Красивейший, зелёный, со скамейками для уютных вечерних посиделок и современной детской площадкой, где малыши смогут выплеснуть всю свою энергию.Район Академический — самый молодой и перспективный район города, здесь живут бодрые, активные и очень приятные люди. В общем, будете в классной компании!???? Юридически всё чисто и прозрачно. Сделка пройдёт легко, а я помогу с сопровождением, чтобы всё было по красоте.Причина продажи — переезд в другой регион, квартира остаётся в добрые руки.???? Звоните, приходите, влюбляйтесь и забирайте! Таких вариантов на районе почти не найти. ID объекта в нашей базе: 10149
    размещено: 06.07.2025 , обновлено: 19.12.2025

    3-к квартира, Анатолия Мехренцева, 38

    • 79.4 м2
    • 11/13 этаж
    • Состояние: идеальное
    7 999 000 ₽ (100700 ₽/м2)
    - Продам большую, светлую, уютную 3-комнатную квартиру, где каждая деталь продумана для вашего комфорта. Просторная планировка включает три отдельные комнаты, большую кухню, коридоры и два санузла, один из которых можно использовать под гардеробную. Квартира находится на 11-м этаже, что обеспечивает тишину и уединение, окна выходят во двор, достаточно света. Остается кухонный гарнитур с техникой, встроенные шкафы, диван. - Красивый и ухоженный двор, где каждый уголок утопает в благоухающих цветах. Яркие и разнообразные цветочные композиции создают атмосферу уюта и спокойствия. Здесь приятно проводить время на свежем воздухе, наслаждаясь запахом цветущих растений и спокойствием окружающей природы. Удобные скамейки, расположенные среди зелени, приглашают на отдых и общение, для детей – детская, оборудованная площадка, для водителей -парковка (подземная и наземная во дворе и по всему периметру дома). - Хорошая транспортная развязка с автобусными и трамвайными остановками рядом, а также удобный выезд на ЕКАД. В шаговой доступности школы и детские сады, современная поликлиника и Преображенский парк для прогулок. - Это идеальный выбор для семьи, ценящей уют, безопасность и комфортное жилье в хорошем, новом районе Екатеринбурга. ID объекта в нашей базе: 4344
    размещено: 04.07.2025 , обновлено: 5.01.2026

    3-к квартира, Павла Шаманова, 58

    • 73.3 м2
    • 1/13 этаж
    • Состояние: хорошее
    7 800 000 ₽ (106400 ₽/м2)
    Продаётся уютная 3-комнатная квартира в перспективном районе Екатеринбурга ✨ Просторная изолированная планировка – каждая комната словно создана для комфорта и уединения. Большая кухня станет сердцем вашего дома – здесь так приятно собираться всей семьёй за завтраком или принимать гостей за чашечкой кофе! ???? Удобный первый этаж с лоджией, много света и зелени за окном. Отличный вариант для тех, кто ценит удобство без подъёмов по лестнице. ???? Два санузла – утром никто не будет мешать друг другу, а вечером – никаких очередей в ванную. ???? Растущий район с развитой инфраструктурой: новые школы и садики, парки для прогулок, торговые центры и удобная транспортная развязка. ✔️ Свободная продажа, возможен торг ???? Это не просто квартира – это ваш будущий дом, наполненный теплом и уютом! ???? Звоните, чтобы назначить просмотр! ID объекта в нашей базе: 4240
    размещено: 10.06.2025 , обновлено: 9.01.2026

    3-к квартира, Академика Сахарова, 53

    • 83 м2
    • 2/16 этаж
    • Состояние: хорошее
    10 250 000 ₽ (123500 ₽/м2)
    Объект № 192018. Предлагается к продаже отличная семейная квартира в самом центре Академического района со своим выходом в Преображенский парк. Прекрасная планировка, изолированные спальни и большая кухня -гостиная. Уровень дома комфорт класс. Видеонаблюдение. Территория добрососедства. Быстрый выход на сделку. ***Гарантийный сертификат «Защита собственности» по данному объекту в подарок***
    размещено: 19.05.2025 , обновлено: 8.01.2026

    3-к квартира, Краснолесья, 161

    • 80.9 м2
    • 2/15 этаж
    • Состояние: хорошее
    8 000 000 ₽ (98900 ₽/м2)
    Объект № 191695. Обмен на 2 кв с вашей доплатой, в Академическом или продажа. Предлагается к продаже светлая и уютная 3-комнатная квартира в современном жилом комплексе. Квартира находится на удобном втором этаже. Отличная планировка с раздельными комнатами, просторной кухней и балконом. Район с развитой инфраструктурой: рядом магазины, школы, детские сады, остановки общественного транспорта. Спокойные и дружелюбные соседи. Для дополнительной информации и организации просмотра звоните. Объект можно приобрести в ипотеку под ставку 12.99%! ***Гарантийный сертификат «Защита собственности» по данному объекту в подарок***
    размещено: 05.05.2025 , обновлено: 9.01.2026

    3-к квартира, Академика Ландау, 7Б

    • 82 м2
    • 5/9 этаж
    • Состояние: плохое
    8 700 000 ₽ (106100 ₽/м2)
    Дом СДАН! Продам уникальную квартиру в ЖК Брусника Академический! Идеальный вариант для большой семьи. Квартира с просторной и функциональной планировкой имеющей просторную кухню-гостиную, а также 3 отдельный спальни и два сан узла. В прихожей устроена вместительная гардеробная. Средний этаж, не будет проблем с водой и лифтом. Под домом расположен прекрасный паркинг, можно приобрести дополнительно.Квартиру передается с предчистовой отделкой. Это наиболее удобный для покупателей формат. Все грязные, пыльные, шумные работы мы уже выполнили: залили стяжку с шумо- и гидроизоляцией, выстроили ровные межкомнатные стены, развели электрику и слаботочку. Вы получаете «чистый лист», готовый к финишном ремонту и воплощению почти любых дизайнерских задумок. Этот дом застройщик создавал совместно с известным польским бюро. Переменная высотность, разнообразие летних помещений, ступенчатая пластика фасада придаёт внешнему облику здания динамизм, делает его не скучным. Интерьер дома выполнен в стиле европейского модернизма. В дизайне преобладают прямые линии, чистые формы, лаконичные цвета. Двор закрыт от машин. Он на 70% будет покрыт зеленью, здесь спортивная и детские площадки соседствуют с местами для тихого отдыха. Мы проектировали внутреннее пространство, вдохновившись техникой пэчворк, позволяющей соединить лоскуты разного характера в гармоничное полотно.Согласно утвержденному проекту планировки территории в пешеходной доступности от квартала Брусники появятся две школы, рассчитанные на 1700 мест, и шесть детских садов. Рядом со строящимися домами расположены две крупные зелёные зоны — Юго-Западный лесопарк и Преображенский парк, в пространстве которого будет организовано озеро.Рассматриваем все варианты приобретения: ипотека, материнский капитал, военная ипотека. Просмотры в удобное для вас время. ID объекта в нашей базе: 7642
    размещено: 15.03.2025 , обновлено: 20.12.2025

    3-к квартира, Мехренцева, 46

    • 82.5 м2
    • 3/17 этаж
    • Состояние: хорошее
    8 850 000 ₽ (107300 ₽/м2)
    Объект № 182861. В продаже квартира из трёх комнат! Разумная организация пространства-залог счастливой жизни! Идеально подойдет для семьи с одним или двумя детьми! Гостиная площадью 19 кв.м.- для отдыха, работы, общения. Спальная для родителей площадью 13 кв.м.–для сна и релаксации. Детская спальная площадью 12 кв.м.– есть зона для сна, занятий и игр. На балконе можно выпить чашечку кофе и сделать утреннею заряду. Кухня-гостиная площадью 13 кв.м. с повышенным функционалом пространства. Для вашего удобства в квартире два санузла, прихожая, холл с шкаф-купе. Квартира чистая и опрятная. Документы к сделке готовы, взрослый собственник. Отсутствуют задолженности по коммунальным услугам, ипотека, материнский капитал не использовались. Приглашаем на просмотр, приходите! ***Гарантийный сертификат «Защита собственности» по данному объекту в подарок***
    размещено: 16.04.2024 , обновлено: 7.01.2026

Новостройки Екатеринбург, мкр-н. Академический

Приоритет

Увеличивает просмотры в 3 раза

Ваше объявление показывается в списке выше обычных объявлений. подключить