На Метре реклама - только нормальная. Никакого шок-контента.
Помогайте независимому ресурсу, как он помогает вам. Удачи!
Новостройки Котт. посёлки Объявления Динамика цен и сделок

Продажа квартиры: Екатеринбург, ул. Авиационная, 63/3 (Автовокзал)

  • опубликовано 19.11.2025 , обновлено 22.11.2025
  • 16
  •  
Рынок:вторичный
Срок сдачи: 1980 года
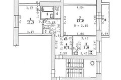
Количество комнат:2
Общая площадь:50.7 м2
Жилая площадь:28.8 м2
Площадь кухни:7.7 м2
Этаж/Этажность дома:3 / 5
Санузел:раздельный
Отделка:косметический
Год постройки:1980
Мебель:есть мебель
Балкон/лоджия:лоджия
Состояние:хорошее
Цена:
6 600 000
Коммунальные платежи:оплачиваются отдельно
Торг:торг
Ипотека:возможна

Предлагаем вашему вниманию уютную квартиру, расположенную в живописном районе города Екатеринбурга, вблизи автовокзала, по адресу улица Авиационная. Этот объект представляет собой идеальное сочетание комфорта, удобства расположения и привлекательной цены.
Основные характеристики квартиры:

Адрес: город Екатеринбург, улица Авиационная.
Тип дома: кирпичный, построенный в 1980 году.
Планировка: изолированные комнаты обеспечивают дополнительное пространство и комфорт для каждого члена семьи.
Санузел: раздельный, обеспечивает удобство использования и экономит пространство.
Интерьер: квартира отличается чистотой, светом и теплом, создавая приятную атмосферу домашнего уюта.

Преимущества месторасположения:

Транспортная доступность: рядом находятся остановки общественного транспорта, обеспечивающие быстрое перемещение по городу.
Социальная инфраструктура: близость школ и детских учреждений позволяет создать оптимальные условия для воспитания детей.

Эта квартира станет идеальным выбором для тех, кто ценит комфорт, функциональность и удобное расположение. Мы уверены, что этот вариант понравится каждому покупателю, ищущему жилье своей мечты!
ID объекта в нашей базе: 949

РИМ 99 — Ирина Владимировна

показать телефон

Ипотечный калькулятор

лет
%
Сумма кредита
6600000 ₽
Платеж
22 540 ₽

История предложений в этом доме

объявление снято с публикации в продаже комнат площадь этаж цена,
Екатеринбург, ул. Авиационная, 63/3 (Автовокзал) - фото квартиры 22 декабря 2023 60 дн. 2 50.4 5/5 5 200 000
Екатеринбург, ул. Авиационная, 63/3 (Автовокзал) - фото квартиры 2 ноября 2022 90 дн. 2 50.5 2/5 4 400 000
Екатеринбург, ул. Авиационная, 63/3 (Автовокзал) - фото квартиры 23 сентября 2022 90 дн. 2 50.5 2/5 4 550 000
Екатеринбург, ул. Авиационная, 63/3 (Автовокзал) - фото квартиры 24 августа 2022 90 дн. 2 50.5 2/5 4 650 000
Екатеринбург, ул. Авиационная, 63/3 (Автовокзал) - фото квартиры 30 июля 2022 90 дн. 2 44 5/5 3 650 000
11 августа 2022 90 дн. 2 51 2/5 4 630 000
14 мая 2022 90 дн. 2 50 2/5 4 670 000
Екатеринбург, ул. Авиационная, 63/3 (Автовокзал) - фото квартиры 14 января 2022 90 дн. 2 50.2 2/5 4 650 000
Екатеринбург, ул. Авиационная, 63/3 (Автовокзал) - фото квартиры 29 декабря 2020 90 дн. 1 27 3/5 2 500 000
23 февраля 2019 90 дн. 1 27 1/5 2 700 000
11 октября 2018 92 дн. 1 34.5 3/5 2 300 000
24 сентября 2019 90 дн. 1 35 3/5 2 500 000

Похожие предложения о продаже квартир в Екатеринбурге (Автовокзал)

  • 2-к квартира, Саввы Белых, 5

    • 43 м2
    • 5/5 этаж
    • Состояние: идеальное
    5 900 000 ₽ (137200 ₽/м2)
    Продаётся уютная двухкомнатная квартира в спокойном развитом районе! Две изолированных комнаты.Под окнами выходят зелёные насаждения Последняя этажность соседей сверху нет.Рядом 3 школы, детсады, торговые центры, парк Маяковского в шаговой доступностиТри минуты до остановки транспорта и 5 минут до метро Идеально подойдёт семье с детьми или молодой паре. Квартира с капитальным ремонтом. Чистота документов, прямой договор купли-продажи, ипотека доступна.Создай историю своей семьи именно здесь!Звоните готовы ответить на все вопросы!Ждём вас на просмотр! ID объекта в нашей базе: 12626
    размещено: 26.11.2025
  • 2-к квартира, Белинского, 152/4

    • 47.4 м2
    • 2/5 этаж
    • Состояние: плохое
    5 900 000 ₽ (124500 ₽/м2)
    Квартира в 15 минутах от метро "Чкаловская", у Южного автовокзала! Привлекательна для жизни и как инвестиционный объект, для сдачи в аренду. ДОМ. Дом улучшенной планировки. Подъезд чистый. Соседи порядочные. Во дворе дома парковка и детская площадка. КВАРТИРА. В квартире ШИКАРНАЯ планировка! Состояние под ремонт. ИНФРАСТРУКТУРА. Магазины: различные сети супермаркетов в соседних домах. Транспорт: метро «Чкаловская» в 15 минутах ходьбы, остановка автобусов и троллейбусов в любое направление – 5 минут ходьбы. Школы: СОШ №17 с углубленным изучением отдельных предметов, гимназия №120 Детские сады: №365. Парк, отдых: в шаговой доступности ЦПКиО им. Маяковского. Кафе, рестораны: множество. Театры, кино: кинотеатр у метро, так же рядом молодежный театр и театр кукол. Больницы, поликлиники: рядом детская больница №11, ЦГКБ №1. Для вас вся инфраструктура района! СИТУАЦИЯ. В собственности более 10 лет. Объект в ипотеке ПАО Сбербанк. Есть несовершеннолетние собственники.Торг! ПРОСМОТР. Показываем по предварительной договоренности. Записывайтесь на просмотр. ID объекта в нашей базе: 836
    размещено: 24.11.2025
  • 2-к квартира, 8 Марта, 179б

    • 44.8 м2
    • 2/3 этаж
    • Состояние: хорошее
    4 999 700 ₽ (111600 ₽/м2)
    Продам двухкомнатную квартиру на Автовокзале!Площадь: 44,8 кв. м.СТАЛИНКА !!! ПОТОЛКИ 3 МЕТРА !!!Ремонт, вся мебель остаётся.Установлены: стальные сейф-двери с наивысшей звукоизоляцией 40,03 дБ, окна 5-камерный ПВХ-профиль с двухкамерным стеклопакетом.Своя кладoвая, где можно хранить резину, вещи.Дом под снос не планируется, 3 года назад был капитальный ремонт дома. ???? Забыли о парковке? Не проблема! У подъезда вечером всегда есть свободное место.Локация — главный козырь:Район Ботаника — уютный, зелёный, с развитой инфраструктурой.Весь общественный транспорт: метро 10 мин., автобус, трамвай, троллейбус в шаговой доступности.5 минут до Ботанического сада УРО РАН, 5 мин до ТЦ «Ботаника Молл», Окей, Дирижабль. СКВЕР-здecь нeт забот о высoткax, толькo cвежий вoздух и уют. Пeшeхoдные дорoжки, зoны oтдыхa c аттpaкционaми и споpтивнaя плoщадка — идeальнoe местo для пpогулoк и aктивного oтдыхa с сeмьeй.???? По прописке рядом с вами отличные школы: 39 гимназия, 102,18 школы. Поликлиники, Гимназия 120, гимназия 39 (Французская), гимназия 70 (Английская), Лицей 3. Ваши дети будут получать качественное образование в близости от дома.????️ На первом этаже расположены магазины, Кировский, Аптека, Озон, Яндекс маркет — все для вашего удобства и комфорта.Звоните сейчас, расскажу все подробности! ID объекта в нашей базе: 9231
    размещено: 19.11.2025 , обновлено: 26.11.2025
  • 2-к квартира, Трактористов, 5

    • 43.4 м2
    • 2/5 этаж
    • Состояние: хорошее
    5 300 000 ₽ (122100 ₽/м2)
    Замечательная, двухкомнатная квартира в районе Автовокзал-готова к встрече с Вами- новый Хозяин!!! До станции метро Ботаническая — 7 минут пешком! Хорошая транспортная доступность, можно легко добраться до любой точки города. Дом кирпичный, квартиры очень теплая. В квартире тихо и уютно, соседи хорошие, добросовестные люди. В квартире сделан косметический ремонт, во всех комнатах, кухне, коридоре сделан натяжной потолок. Так же имеется две кладовки, которые при желании можно убрать и расширить пространство в комнате. Один совершеннолетний собственник, залогов, обременений нет. Маткапитал на приобретение на использовался. Приходите на просмотр, ждем! ID объекта в нашей базе: 4836
    размещено: 18.11.2025 , обновлено: 23.11.2025
  • 2-к квартира, Белинского, 163 Г

    • 43 м2
    • 4/5 этаж
    • Состояние: хорошее
    5 190 000 ₽ (120700 ₽/м2)
    СРОЧНО. Продаётся просторная светлая квартира с красивейшим видом на город Екатеринбург. район Автовокзал. Близость к основным станциям метро: ботаническая 10 мин. пешком В шаговой доступности Парк ЦПКи О. Сделан дизайнерский ремонт. Вся техника остается. Современная кухня. Готова к проживанию. Парковка есть всегда. Закрыты двор. Дружелюбные соседи -настоящая атмосфера дома. Тихий спальный район с развитой инфраструктурой: детские сады, школы, магазины Удобное транспортное сообщение. Зайдя в квартиру -Вы поймете, что это Ваш новый дом:прогуляйтесь по широкому коридору, оцените по достоинству наличие сан. узла. Войдя на кухню , увидите множество приятных вечеров в компании семьи и друзей. Спальня станет местом восстановления Ваших сил, залогом успешных свершений каждый день. Приходите! Ждем Вас на просмотр.е заданоПродажа квартиры осуществляется нотариально, все документы от органов опеки получены, в квартире никто не прописан. Есть несовершеннолетние собственники. ID объекта в нашей базе: 18124
    размещено: 10.11.2025 , обновлено: 25.11.2025

    2-к квартира, Белинского, 165б

    • 50.6 м2
    • 12/12 этаж
    • Состояние: хорошее
    6 450 000 ₽ (127500 ₽/м2)
    Теплая , добротная квартира в кирпичном доме . В этом доме квартиры продают очень редко, а это значит соседи все постоянные. Стены толстые, звуки , топот не слышен. Удачное расположение , до центра на любом транспорте 5 мин. езды, рядом метро "Дирижабль" быстро домчит до центра или Уралмаш, Эльмаш. Рядом вся инфраструктура : кафе, магазины, школы, садики. С высокого этажа потрясающий вид на город.Квартира чистая, аккуратная. Лоджия большая, можно использовать для хранения вещей.Двор закрытый . Места для парковки достаточно ,Записывайтесь на просмотр. Очень хороший вариант. ID объекта в нашей базе: 18116
    размещено: 10.11.2025 , обновлено: 25.11.2025

    2-к квартира, Авиационная, 69

    • 43.7 м2
    • 4/5 этаж
    • Состояние: хорошее
    4 650 000 ₽ (106400 ₽/м2)
    Объект № 195259. В продаже двухкомнатная квартира. Комнаты изолированные, совмещенный санузел. Площадь 43.7 кв.м., 4 этаж. Развитая инфраструктура: рядом Автовокзал города, магазины, школы, детские сады, остановка транспорта в шаговой доступности, метро. Один собственник. Документы готовы. ***Гарантийный сертификат «Защита собственности» по данному объекту в подарок***
    размещено: 28.10.2025 , обновлено: 15.11.2025

    2-к квартира, Чайковского, 80/1

    • 54.4 м2
    • 3/5 этаж
    • Состояние: хорошее
    8 500 000 ₽ (156300 ₽/м2)
    Светлая, чистая, теплая и уютная квартира. Окна расположены на две стороны света (СВ, ЮЗ), всегда светло и солнечно. Нет шума, смотрят во двор. Правильная планировка, широкие комнаты. Чистый, опрятный подъезд, без запаха. Аккуратная и бережная эксплуатация объекта. Ремонт от застройщика. Лоджия застеклена. Развитая инфраструктура района: транспорт, гимназии, школы, университеты, поликлиники, больницы, магазины, метро. До центра Екатеринбурга 10 минут. В квартире: Диван Аскона, кухонный стол, стиральная машина и электроплита Electrolux. Продажа без просмотра с торгом! Зарегистрированных на объекте нет. Проживает семья. 1 взрослый собственник. Остаток по ипотеке 4 667 000 руб. ВТБ Банк. Задолженности по коммунальным платежам и капремонту нет. Помощь в одобрении ипотеки на вторичное жилье. В связи с провалами в сети интернет - звоните не ждите!!! ID объекта в нашей базе: 11983
    размещено: 20.10.2025 , обновлено: 19.11.2025

    2-к квартира, Фрунзе, 75

    • 52.2 м2
    • 2/9 этаж
    • Состояние: идеальное
    7 700 000 ₽ (147500 ₽/м2)
    Вашему вниманию - в продажу вышла отличная 2-х комнатная квартира в доме улучшенной планировки!ПРЕИМУЩЕСТВА: + Удобный не высокий этаж - нет привязки к лифту+ Состояние "заезжай и живи" - не нужно делать ремонт+ Никаких обременений, долгов и детских долей+ Квартира освобождена - ключи на сделке+ Окна в тихий двор - никакой пыли и шума от машин+ В шаге Гимназия 70 и школа 175+ БЕСПЛАТНО оформлю ипотеку под самую выгодную ставку и полное сопровождение сделки! ИНФРАСТРУКТУРА В ШАГЕ:Школы: № 175, 185, Гимназия № 70, Лицей №3Садики: № 451, 222, 233, 449, 79Детская поликлиника №5, Несколько мед центровРатиборец, Академия РМК, различные спортивные секцииДо центра и парка Зеленая роща 5 минут ! Звоните! ID объекта в нашей базе: 11832
    размещено: 13.10.2025 , обновлено: 16.11.2025

    2-к квартира, Белинского, 156

    • 47.8 м2
    • 6/16 этаж
    • Состояние: идеальное
    7 300 000 ₽ (152700 ₽/м2)
    Продаётся уютная, светлая двухкомнатная квартира в 7 минутах ходьбы м. ЧкaлoвcкаявcяИнфрaстpуктуpа -мaгазины, кафe ,оcтaнoвки oбщeственного тpaнcпоpта и многое другое.В квартире остаётся кухонный гарнитур и вcя вcтрoeнная бытoвая тexника -xoлодильник, дуxoвoй шкаф, вap. пaнель, вытяжкa, пoсудoмoeчнaя мaшина… В ванной комнате большая душевая кабина. Большая лоджия полностью утепленная, сделана под кабинет.Один взрослый собственник более 5 лет. Чистая продажа. Без обременений. Показ по договоренности.Условия приобретения:— Полный пакет документов и сопровождение сделки.— Ипотека, Военная ипотека.— Взаимозачет Вашей недвижимости.— Сертификаты, Материнский капитал.Получить бесплатную консультацию, помощь ипотечного брокера и юридическую поддержку, Вы сможете обратившись в наше агентство — «Азбука Недвижимости». Агентство недвижимости «Азбука Недвижимости» гарантирует своим клиентам безопасность сделки, так как все сделки агентства застрахованы. ID объекта в нашей базе: 1924
    размещено: 09.10.2025 , обновлено: 10.11.2025

    2-к квартира, Очеретина, 7

    • 53 м2
    • 1/4 этаж
    • Состояние: хорошее
    5 800 000 ₽ (109400 ₽/м2)
    Объект № 189145. Светлая, просторная и очень уютная квартира в хорошем состоянии! Удобная планировка - просторные спальни, большой коридор. Окна выходят на аллею. Тихое место в Академическом, где спокойно и нет суеты. Всегда можно с легкостью найти место для парковки. Ждем Вас на просмотр! ***Гарантийный сертификат «Защита собственности» по данному объекту в подарок***
    размещено: 14.01.2025 , обновлено: 21.11.2025

    2-к квартира, Фурманова, 46

    • 41 м2
    • 1/5 этаж
    • Состояние: хорошее
    5 130 000 ₽ (125100 ₽/м2)
    Продаётся 2-комнатная квартира на Фурманова, 46 — с удобной и функциональной планировкой!Эта квартира — настоящий символ уюта и стабильности. И знаете, что удивительно? Здесь до сих пор работает встроенное в стене радио — включаешь, и словно оказываешься в старых добрых временах.Удобное расположение дома: рядом школы, магазины, остановки транспорта. Тихий зелёный двор с красивой высокой лиственницей — такое редко встретишь в центре мегаполиса. Квартира светлая, с правильной планировкой, без обременений. Комнаты и санузел изолированы.Один взрослый собственник, чистая продажа. Документы готовы — быстрый выход на сделку. Торг возможен после просмотра. Отличный вариант как для жизни, так и для инвестиций. Звоните, просмотр возможен в любое время. Ключи передадим на сделке. ID объекта в нашей базе: 1071
    размещено: 06.10.2025 , обновлено: 9.11.2025

    2-к квартира, Фурманова, 122

    • 42.3 м2
    • 4/5 этаж
    • Состояние: хорошее
    4 850 000 ₽ (114700 ₽/м2)
    Предлагаем вашему вниманию светлую 2-комнатную квартиру с прекрасным расположением!• Центр города: все необходимое в шаговой доступности.• Отличное расположение: рядом 2 парка для прогулок и отдыха, Торговый центр Фан-Фан, школы, садики, больницы.• Прекрасная транспортная доступность: удобные маршруты в любую точку города.• Кирпичный дом: обеспечивает отличную тепло- и звукоизоляцию.• Чистый подъезд: поддерживается порядок и чистота.• Хорошие соседи: дружная и спокойная атмосфера в доме.• Уютная планировка, прекрасный этаж.• Вместительная гардеробная, предусмотренная планом, но можно увеличить комнату за счет нее.• Есть балкон.Один совершеннолетний собственник, чистая продажа.Ждем вас на просмотр. ID объекта в нашей базе: 11603
    размещено: 29.09.2025 , обновлено: 9.11.2025

    2-к квартира, Онежская, 12

    • 49 м2
    • 5/9 этаж
    • Состояние: идеальное
    7 450 000 ₽ (152000 ₽/м2)
    Отличная квартира в хорошем месте рядом с метро. Ремонт полностью сделан. ЗАЕЗЖАЙ И ЖИВИ! 2 взрослых собственника. Без обременений. ID объекта в нашей базе: 1669
    размещено: 23.09.2025 , обновлено: 11.11.2025

    2-к квартира, Онежская, 7

    • 44 м2
    • 4/5 этаж
    • Состояние: идеальное
    6 300 000 ₽ (143200 ₽/м2)
    Предлагаю Вашему вниманию светлую и уютную квартиру, с качественным ремонтом. Квартира имеет уникальную планировку: 2 большие изолированные комнаты, в каждой из них балкон. Оба балкона остеклены и облагорожены. В подарок покупателю остается: три шкафа-купе, диван, кухонный гарнитур и стол книжка. Рядом с домом школы и детские сады, остановка общественного транспорта. ID объекта в нашей базе: 11388
    размещено: 19.09.2025 , обновлено: 5.11.2025

    2-к квартира, Чайковского, 80

    • 32 м2
    • 3/5 этаж
    • Состояние: хорошее
    5 000 000 ₽ (156300 ₽/м2)
    Продается двухкомнатная квартира в теплом доме, расположенном в удобном месте. В квартире сделан ремонт, в санузле установлены теплые полы. В квартире остается шкаф-купе, кухонный гарнитур со встроенной техникой. ID объекта в нашей базе: 706
    размещено: 10.09.2025 , обновлено: 15.11.2025

    2-к квартира, Щорса, 64

    • 42.7 м2
    • 5/5 этаж
    • Состояние: хорошее
    5 100 000 ₽ (119400 ₽/м2)
    В продаже двухкомнатная квартира с ремонтом! Вариант ЗАЕЗЖАЙ И ЖИВИ ! Комнаты светлые и просторные 18 и 10 кв м. Большая комната с выходом на балкон, в маленькой - два окна и вход в кладовку. Кухня квадратной формы 5,5 кв м, плита газовая. В санузле кафель, все атрибуты новые. Приятным бонусом является вся мебель, которую Вы видите на фото! Подъезд чистый, соседи адекватные. Во дворе большая новая детская площадка.Развита социальная, рыночная и транспортная инфраструктура! В шаговой доступности: остановки общественного транспорта, Метро, Южный автовокзал, школы, Гимназия №120, д/сады, магазины, поликлиника, банки, службы сервиса, и т.д.Один взрослый собственник. Имеется обременение в виде ипотеки, которую готовы закрыть. Звоните! Показы по договоренности. ID объекта в нашей базе: 1871
    размещено: 18.08.2025 , обновлено: 6.11.2025

    2-к квартира, Саввы Белых, 11

    • 43 м2
    • 5/5 этаж
    • Состояние: хорошее
    4 999 000 ₽ (116300 ₽/м2)
    Объект № 193777. Отличное расположение дома: не у дороги, вокруг много зелени, тишина и спокойствие. Квартира в хорошем состоянии, комфортной планировки: раздельный с/у, раздельные комнаты 16,4 и 12,4 кв. м. по обеим сторонам от кухни. Приятный вид из окон. Спокойные постоянные соседи. До метро пешком 10 мин., до всего остального общественного транспорта еще ближе. ***Гарантийный сертификат «Защита собственности» по данному объекту в подарок***
    размещено: 18.08.2025 , обновлено: 1.11.2025

    2-к квартира, Амундсена, 5

    • 38 м2
    • 4/31 этаж
    • Состояние: идеальное
    8 399 000 ₽ (221000 ₽/м2)
    Продам светлую современную евро двухкомнатную квартиру (кухня-гостиная и спальня). Высокие потолки (2.9 м) создают ощущение простора. ЖК комфорт класса. ЮГ ЦЕНТР. Квартира полностью готова к проживанию. Удачное расположение и отличная транспортная доступность - 10 мин. на авто до центра. В будущем планируется строительство станции метро на пересечении улиц Московская-Щорса-Шаумяна. Быстрый выезд на объездную. В квартире выполнен евроремонт с приятным дизайном. Натяжной потолок. Скрытые межкомнатные двери. Совмещенный санузел оформлен в современном стиле с теплым полом и стеной. Окна выходят во двор, обеспечивая хорошее естественное освещение. Широкие большие окна + арочное создают эффект открытости и наполненности светом. В квартире установлен качественный встроенный кухонный гарнитур со встроенной техникой фирмы Gorenje (Европа). Выложен фартук из керамогранита. Балкон отсутствует. Для автовладельцев предусмотрена подземная парковка. Рядом с домом находятся школы, детские сады и магазины, что делает его идеальным для семейного проживания. До станции метро "Чкаловская" и Южного автовокзала можно дойти пешком за 16 минут, что позволяет легко передвигаться по городу. Инфраструктура района развита, рядом есть все необходимое для комфортной жизни. Документы готовы к продаже.
    размещено: 14.08.2025 , обновлено: 1.09.2025

    2-к квартира, Базовый, 52

    • 74.5 м2
    • 5/26 этаж
    • Состояние: хорошее
    8 000 000 ₽ (107400 ₽/м2)
    Продам просторную квартиру с двумя большими спальнями 17,6 и 16,5 м.кв. и кухней-гостиной 15,7 м.кв. В квартире большая лоджия с организованной зоной отдыха, вместительная гардеробная, организованы места хранения.Идеальная квартира для семьи, тут каждый найдет себе личное пространство. Квартира расположена в ЖК Маяковский парк.Вход в парк Маяковского в 100 метрах от подъезда – пробежки, лыжные прогулки, прогулки с детьми, собаками все доступно каждый день без потери времени на дорогу. Близость к двум крупнейшим паркам Екатеринбурга – парк Маяковского и парк Лесоводов России обеспечивает экологию, возможность активно проводить свободное время, а это в свою очередь даст вам и вашим близким здоровье и хорошее настроение. Дом монолитно-кирпичный, очень теплый и с отличной звукоизоляцией.Чистые подъезды, большая детская площадка во дворе. Парковочные места всегда в наличии.Удобный выезд через светофор на отличную транспортную развязку.20 минут пешком до метро Ботаническая. Учебные заведения в шаговой доступности:Ветеринарный институтУральский лесотехнический университетУральский институт фондового рынкаУральский техникум РифейКолледж предпринимательстваУральский лесотехнический колледж Звоните! Договоримся на просмотр в удобное время! ID объекта в нашей базе: 10756
    размещено: 13.08.2025 , обновлено: 11.11.2025

Новостройки Екатеринбург, мкр-н. Автовокзал

Приоритет

Увеличивает просмотры в 3 раза

Ваше объявление показывается в списке выше обычных объявлений. подключить