Top.Mail.Ru
На Метре реклама - только нормальная. Никакого шок-контента.
Помогайте независимому ресурсу, как он помогает вам. Удачи!
Средняя цена м² · Новостройки
177 600 ₽/м²
↑ 7,44% за 12 мес.
Средняя цена м² · Вторичка
141 611 ₽/м²
↑ 11,2% за 12 мес.
Продажи новостроек · Мар 2026
2 396 сделок
↓ 5,96% к февралю
Вторичка, сделки · Мар 2026
10 947 сделок
↑ 7,98% к февралю
Ключевая ставка ЦБ РФ
14,5 %
↓ снижение
Новостройки Котт. посёлки Объявления Динамика цен и сделок

Продажа квартиры: Екатеринбург, ул. Червонная, 40 (Старая Сортировка)

  • опубликовано 8.12.2025 , обновлено 15.04.2026
  • 13
Рынок:вторичный
Срок сдачи: 2020 года
Количество комнат:2
Общая площадь:68.4 м2
Жилая площадь:31 м2
Площадь кухни:18 м2
Этаж/Этажность дома:9 / 23
Санузел:раздельный
Отделка:требует ремонта
Год постройки:2020
Балкон/лоджия:лоджия
Состояние:удовлетворительное
Цена:
8 550 000
Объявление снято с публикации
Коммунальные платежи:оплачиваются отдельно
Ипотека:возможна

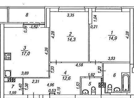
Предлагается к продаже новая квартира в сданном доме 2020 года постройки, по адресу: г. Екатеринбург, ул. Червонная, д. 40. В первую очередь, обратите внимание на планировку, формат евротрешки: кухня-гостиная 17 кв. м. с выходом на лоджию и видом на лесопарк и верх-исетский пруд. Две комнаты, примерно одинаковой площади 14,3 и 14,9 кв. м.

Два раздельных санузла и вместительный шкаф в коридоре под хранение одежды 2 кв. м. По итогу, очень удобная, рациональная планировка без лишних метров. Дополнительно, квартира с отделкой под чистовую (стяжка полов, выравненные стены, электрическая разводка), возможность сделать чистовую отделку на свой вкус, при необходимости, скорректировать планировку на свое усмотрение, межкомнатные перегородки не несущие.

Бонусом, передадим дизайн-проект всей квартиры. Единственный собственник с момента постройки дома, приобреталась в ипотеку Сбербанк, маткапитал не использовался. Чистая продажа, ипотека возможна.

Покажем в любое удобное для Вас время.
ID объекта в нашей базе: 784

Объявление снято с публикации

Ипотечный калькулятор

лет
%
Сумма кредита
8550000 ₽
Платеж
22 540 ₽

Актуальные предложения в ЖК «7 Ключей»

  • 2-к квартира, Червонная, 40

    • 68.4 м2
    • 9/23 этаж
    • Состояние:
    8 600 000 ₽ (125700 ₽/м2)
    Предлагается к продаже новая квартира в сданном доме 2020 года постройки, по адресу: г. Екатеринбург, ул. Червонная, д. 40.В первую очередь, обратите внимание на планировку, формат евротрешки: кухня-гостиная 17 кв.м. с выходом на лоджию и видом на лесопарк и верх-исетский пруд. Две комнаты, примерно одинаковой площади 14,3 и 14,9 кв.м. Два раздельных санузла и вместительный шкаф в коридоре под хранение одежды 2 кв.м. По итогу, очень удобная, рациональная планировка без лишних метров.Дополнительно, квартира с отделкой под чистовую (стяжка полов, выравненные стены, электрическая разводка), возможность сделать чистовую отделку на свой вкус, при необходимости, скорректировать планировку на свое усмотрение, межкомнатные перегородки не несущие. Бонусом, передадим дизайн-проект всей квартиры.Единственный собственник с момента постройки дома, приобреталась в ипотеку Сбербанк, маткапитал не использовался. Чистая продажа, ипотека возможна. Покажем в любое удобное для Вас время. ID объекта в нашей базе: 784
    размещено: 17.04.2026 , обновлено: 28.04.2026
  • 1-к квартира, Червонная, 40

    • 40 м2
    • 18/24 этаж
    • Состояние:
    4 900 000 ₽ (122500 ₽/м2)
    Продается очень срочно однокомнатня квартира в новом доме с классической планировкой, мебель остается за дополнительную плату. Рядом развитая транспортная развязка, которая увезет вас в любую часть города. ID объекта в нашей базе: 11624
    размещено: 16.04.2024 , обновлено: 8.04.2026

История предложений в этом доме

объявление снято с публикации в продаже комнат площадь этаж цена,
Екатеринбург, ул. Червонная, 40 (Старая Сортировка) - фото квартиры 26 декабря 2025 90 дн. 1 41 11/23 5 700 000
Екатеринбург, ул. Червонная, 40 (Старая Сортировка) - фото квартиры 1 марта 2026 90 дн. 2 68.8 22/26 9 200 000
8 ноября 2025 90 дн. 2 61.6 8/19 7 598 124
11 ноября 2025 90 дн. 2 61.6 10/19 7 664 652
27 ноября 2025 90 дн. 2 61.6 12/19 7 664 652
18 марта 2026 90 дн. 2 61.4 18/19 7 904 555
29 октября 2025 90 дн. 2 62.9 17/19 8 227 115
22 января 2026 90 дн. 1 38 16/19 5 641 810
3 марта 2026 90 дн. 1 41 16/19 6 035 142
3 марта 2026 90 дн. 1 41 12/19 5 946 582
20 января 2026 90 дн. 1 38.1 9/19 5 574 033
4 апреля 2026 90 дн. 1 41 8/19 5 858 022
Екатеринбург, ул. Червонная, 40 (Старая Сортировка) - фото квартиры 9 декабря 2025 90 дн. 2 68.4 9/23 8 500 000
10 августа 2025 90 дн. 2 63.5 8/19 8 167 038
29 августа 2025 90 дн. 2 60.6 3/19 7 817 938
Екатеринбург, ул. Червонная, 40 (Старая Сортировка) - фото квартиры 12 мая 2025 90 дн. 2 68.4 9/23 7 850 000
14 апреля 2026 90 дн. 2 56.5 16/19 7 476 080
18 ноября 2025 90 дн. 2 63.2 1/19 7 716 987
30 июля 2025 90 дн. 3 81.7 2/19 9 616 320
28 марта 2026 90 дн. 3 76.5 2/19 9 683 056
19 июня 2025 90 дн. 1 37.2 1/19 5 341 660
4 июня 2025 90 дн. 2 54.4 1/19 6 826 344
4 июня 2025 90 дн. 2 63.6 1/19 7 798 524
4 июня 2025 90 дн. 1 39.9 1/19 5 621 305
22 октября 2025 90 дн. 1 42.4 1/19 5 885 482
23 ноября 2025 90 дн. 2 57.3 1/19 7 107 097
7 ноября 2025 90 дн. 2 63.4 3/19 8 058 762
5 марта 2026 90 дн. 1 39.9 3/19 5 814 549
30 октября 2025 90 дн. 3 81.6 3/19 9 604 872
3 марта 2026 90 дн. 3 76.1 3/19 9 659 551

Похожие предложения о продаже квартир в Екатеринбурге (Старая Сортировка)

  • 2-к квартира, Ангарская , 54 б

    • 62 м2
    • 7/10 этаж
    • Состояние: хорошее
    7 000 000 ₽ (112900 ₽/м2)
    Продаётся уютная 2-х комнатная квартира, площадью 62 квадратных метров, в Железнодорожном районе. Квартира, расположенная на седьмом этаже десятиэтажного кирпичного дома, построенного в 2009 году. Дом оборудован домофоном для вашей безопасности. Квартира имеет продуманную планировку: жилая площадь составляет 32,6 квадратных метров, а кухня – 10.6 квадратных метров, что предоставляет достаточно места как для приготовления пищи, так и для семейных обедов. Две изолированные комнаты. . Внутри квартиры выполнен косметический ремонт, благодаря чему новым владельцам не потребуется дополнительных вложений перед заселением. Санузел совмещённый. Пластиковые окна, балкон застеклен. Из окон открывается прекрасный вид на двор, парк и улицу. Для детей во дворе обустроена игровая площадка, а для взрослых – спортивная площадка. Развитая инфраструктура: рядом школы и детские сады, Уральский железнодорожный техникум, а также ДЮСШ Старт. В пешей доступности больница РЖД-медицины. Имеется возможность посещения конного клуба, до которого 10 минут пешком. Также 10 минут пешим ходом до зеленого парка Семь ключей, рядом красивый сквер. документы готовы. Возможна покупка за маткапитал или ипотеку. Умеренный торг. Звоните, помогу в оформлении документов.
    размещено: 29.11.2025 , обновлено: 29.04.2026
  • 2-к квартира, Коуровская, 13/3

    • 52 м2
    • 7/11 этаж
    • Состояние: хорошее
    7 200 000 ₽ (138500 ₽/м2)
    Объект № 198897. Евро-2 52.5м² в ЖК «Симфония» — квартира, где метры реально работают Есть квартиры, где 52.5м² ощущаются тесно. А есть планировки, где каждый метр на своём месте. Большая кухня-гостиная — не формальная “кухня 10 метров”, а полноценное пространство для жизни: диван, стол, ТВ-зона, кухня, гости. Отдельная спальня — чтобы квартира не превращалась в одну большую комнату. Лоджия — дополнительное пространство, которое можно использовать под хранение, рабочую зону или просто место, где можно выдохнуть. Планировка редкая для своего бюджета: не студия, не маленькая однушка, не компромиссная двушка с крошечными комнатами, а нормальная евро-2 на 52.5м². Санузел и ванная раздельные. Это удобно в быту и хорошо для будущей ликвидности. Квартира в жилом состоянии. Можно заехать и жить. ЖК «Симфония», Коуровская 13/3. Район уже сформирован: рядом магазины, транспорт, школы, детские сады и всё, что нужно для повседневной жизни. Хороший вариант для одного человека, пары, молодой семьи. Особенно для тех, кто хочет больше пространства, но не хочет уходить в сильно больший бюджет. Показы по договорённости. По документам, условиям сделки и деталям квартиры расскажу отдельно. Торопитесь позвонить! ***Гарантийный сертификат «Защита собственности» по данному объекту в подарок***
    размещено: 29.04.2026
  • 2-к квартира, Маневровая, 12

    • 48.1 м2
    • 4/9 этаж
    • Состояние: идеальное
    6 000 000 ₽ (124700 ₽/м2)
    Теплая квартира улучшенной планировки. Сделан капитальный ремонт, поменяна вся электропроводка. Состояние отличное. Все окна во двор. Во дворе детская и спортивная площадки. Рядом транспорт, магазины, садики, школы, водоем, лодочная станция, парк Локомотив, парк Семь Ключей. Остается мебель и техника. На этаже есть кладовка. Без обременений. Квартира освобождена.
    размещено: 04.03.2026 , обновлено: 28.04.2026
  • 2-к квартира, Кунарская, 14к2

    • 56.4 м2
    • 12/16 этаж
    • Состояние: хорошее
    6 500 000 ₽ (115200 ₽/м2)
    Продается отличная квартира, в кирпичном доме 2008 года постройки.В доме 2 лифта, пассажирский и грузовой.Дом огорожен. Во дворе хорошая детская площадка. Подъезд оснащен пандусом, что очень удобно для заезда колясок и велосипедов.Площадка на этаже закрывается на общую дверь.По квартире.Большая лоджия с окнами на восток. Сейф дверь, окна пластиковые.Сделан качественный ремонт.Остается мебель и техника.Квартира готова к комфортному проживанию.1 совершеннолетний собственник, чистая продажа. В собственности более 5 лет.Звоните. Помогу оформить ипотеку. ID объекта в нашей базе: 15235
    размещено: 20.04.2026 , обновлено: 29.04.2026
  • 2-к квартира, Червонная, 40

    • 68.4 м2
    • 9/23 этаж
    • Состояние: удовлетворительное
    8 600 000 ₽ (125700 ₽/м2)
    Предлагается к продаже новая квартира в сданном доме 2020 года постройки, по адресу: г. Екатеринбург, ул. Червонная, д. 40.В первую очередь, обратите внимание на планировку, формат евротрешки: кухня-гостиная 17 кв.м. с выходом на лоджию и видом на лесопарк и верх-исетский пруд. Две комнаты, примерно одинаковой площади 14,3 и 14,9 кв.м. Два раздельных санузла и вместительный шкаф в коридоре под хранение одежды 2 кв.м. По итогу, очень удобная, рациональная планировка без лишних метров.Дополнительно, квартира с отделкой под чистовую (стяжка полов, выравненные стены, электрическая разводка), возможность сделать чистовую отделку на свой вкус, при необходимости, скорректировать планировку на свое усмотрение, межкомнатные перегородки не несущие. Бонусом, передадим дизайн-проект всей квартиры.Единственный собственник с момента постройки дома, приобреталась в ипотеку Сбербанк, маткапитал не использовался. Чистая продажа, ипотека возможна. Покажем в любое удобное для Вас время. ID объекта в нашей базе: 784
    размещено: 17.04.2026 , обновлено: 28.04.2026

    2-к квартира, Минометчиков, 44

    • 56.6 м2
    • 2/5 этаж
    • Состояние: хорошее
    6 500 000 ₽ (114800 ₽/м2)
    Продам отличную квартиру для семьи.Квартира расположена в спальном районе с развитой инфраструктурой.Рядом торговые центры, школы, детские сады, художественная и музыкальная школы.В квартире пластиковые окна, натяжные потолки.Поменяны трубы и стояки холодного и горячего водоснабжения.Счетчики установлены.В квартире остается кухонный гарнитур с барной стойкой, шкафы в прихожей, детская -ученическая стенка, шкаф -купе.В доме запланирован в этом году капитальный ремонт.Документы в полном порядке.Обременений нет.Рассмотрим ваши предложения. ID объекта в нашей базе: 5703
    размещено: 08.04.2026 , обновлено: 27.04.2026

    2-к квартира, Техническая, 149а

    • 57.3 м2
    • 21/25 этаж
    • Состояние: идеальное
    7 790 000 ₽ (136000 ₽/м2)
    ID объекта в нашей базе: 5667
    размещено: 05.04.2026 , обновлено: 27.04.2026

    2-к квартира, Таватуйская, 25/3

    • 44 м2
    • 21/24 этаж
    • Состояние: идеальное
    6 490 000 ₽ (147500 ₽/м2)
    Продается уютная светлая 2-комнатная квартира. Чистая продажа. Полная готовность к проживанию!???? Преимущества:· Видовые характеристики: прекрасный обзор из окон, светлые стороны.· Увеличенная кухня: площадь увеличена за счет утепленной лоджии (пятикамерный стеклопакет, теплый пол, подоконник из термобука).· Качественный ремонт: произведена полная замена электрики. Установлены замки на окнах.???? Комфортный климат: Теплые полы установлены в кухне, коридоре, санузле и на лоджии — забудьте о холодных зонах в квартире.???? Что остается новым собственникам:Вся мебель и техника, которая есть на фото. Вам не придется ничего докупать!· Кухонный гарнитур: встроенная техника (вытяжка, плита, духовка, холодильник, посудомойка, микроволновка) + фильтр для воды.· Спальня: кровать на заказ, шкаф.· Прочее: все шкафы (встроенные системы хранения), диваны, стиральная машина, водонагреватель.Юридически: Чистая продажа. Обременений нет. Документы готовы к сделке.???? Звоните прямо сейчас, чтобы записаться на просмотр! Упускать такую квартиру — нельзя! ID объекта в нашей базе: 14587
    размещено: 22.03.2026 , обновлено: 26.04.2026

    2-к квартира, Техническая, 148

    • 51 м2
    • 2/26 этаж
    • Состояние: хорошее
    6 150 000 ₽ (120600 ₽/м2)
    ???? В продаже уютная двухкомнатная квартира в спальном районе 7 ключей в новом современном доме! ???? Расположение: 7 ключей, тихий спальный район, рядом живописный парк — отличный место для прогулок и отдыха на природе. Инфраструктура: развитый район, в шаге от дома детский сад и школа. Парк 7 ключей для прогулок, парк Локомотив где зимой можно покататься на коньках, футбольные площадки. В 7 минутах на машине база отдыха с беседками, лыжи и бублики зимой! Магазины Магнит/Пятерочка/Перекресток, аптеки! Транспорт: остановка трамвая и автобуса прямо у дома, маршруты во все части города. До центра города всего 20 минут на автомобиле — быстро и без пробок! Идеальный вариант для семьи: просторные комнаты, тихая атмосфера и все необходимое поблизости. Также подойдет для сдачи в аренду — стабильный доход и высокий спрос! ✅ Помощь с одобрением ипотеки, показ в любое время по договоренности, по всем вопросам скорее звоните!!! ID объекта в нашей базе: 12260
    размещено: 04.03.2026 , обновлено: 27.04.2026

    2-к квартира, Пехотинцев, 1в

    • 57.5 м2
    • 2/8 этаж
    • Состояние: удовлетворительное
    6 890 000 ₽ (119800 ₽/м2)
    Только сейчас! Замечательное предложение - двухкомнатная квартира 57,5 м2 современной планировки по оптимальной цене в ЖК "Астон.Движение"Оцените основные преимущества: Эргономичная планировка: просторная кухня-гостиная 15,2 м2 с выходом на тёплую лоджию, две спальни 12 м2 и 13 м2, два санузла, просторная прихожая с нишей под шкаф-купе. Отличный вариант для семей с детьми. Квартира продается с отделкой White box - вы сможете сделать ремонт по своему вкусу. Стены выровнены и оштукатурены, на полу — цементно-песчаная стяжка с шумоизоляцией. Выполнена разводка электрики, установлен щиток, розетки, выключатели, приборы учёта. Дополнительная площадь к жилому пространству в виде ТЁПЛОЙ ЛОДЖИИ, позволит сделать компьютерный кабинет или зону для отдыха. При желании можно убрать перегородку и увеличить площадь кухни-гостиной. Квартира расположена на 2 этаже, что позволит обходиться без лифта. Вид во двор - никакого постороннего шума от центральных дорог. Низкоэтажная секция - выбор для тех, кто ценит комфорт, тишину и уютную атмосферу для проживания. Закрытый от посторонних и машин двор ориентирован на тихий и спокойный отдых. Здесь предусмотрены детские площадки и зоны воркута. Территория находится под круглосуточным видеонаблюдением. Хорошая транспортная доступность! Рядом с кварталом автобусные остановки, в 20 минутах ходьбы трамвайные линии. До центра можно быстро доехать по улицам — Халтурина и Бебеля. Квартал расположен в активно развивающейся части Старой Сортировки с развитой инфраструктурой. В пешей доступности — супермаркеты, поликлиники, детские сады, школы, торговые центры, парк РЖД и парк с аттракционами Таганская Слобода. Если Вы заботитесь о Вашей семье – дайте ей лучшее! Просто позвоните и договоритесь на просмотр прямо сейчас. ID объекта в нашей базе: 202
    размещено: 18.02.2026 , обновлено: 21.04.2026

    2-к квартира, Пехотинцев, 2/д

    8 700 000 ₽ (141700 ₽/м2)
    Объект № 197322. Ваша новая жизнь в ЖК «Депо» начинается здесь! Никем не обжитая 2-комнатная квартира. Мечтаете о квартире, в которой всё будет по-вашему, но без долгого ремонта? Мы нашли её для вас! В новейшем ЖК «Депо» (сдан в 2024 году) продаётся просторная двухкомнатная квартира 65 м² на 2 этаже. Мы сделали главное — создали для вас безупречный ремонт с нуля, и теперь она ждёт своих первых и единственных хозяев! Почему это идеальный вариант для вас: дом только что построен, а в квартире качественный ремонт. Ни пыли, ни строительного шума, ни чужих запахов. Чистый лист: Никто здесь никогда не жил. Вы будете первыми, кто наполнит этот дом своей энергией и счастьем. Удобное расположение, современный район с развитой инфраструктурой. Готовый переезд, вам осталось только завезти личные вещи и начать новую жизнь. Не упустите шанс стать первым владельцем этой прекрасной квартиры! Для комфортного проживания во дворе дома предусмотрены детская и спортивная площадки. Для автовладельцев доступна подземная парковка. Безопасность жильцов обеспечивается закрытой территорией и кодовой дверью. Развитая инфраструктура района включает в себя школу, детский сад, торговый центр, парк и фитнес-центр. Всё это создаёт идеальные условия для жизни семьи с детьми. Свяжитесь с нами, чтобы назначить просмотр. ***Гарантийный сертификат «Защита собственности» по данному объекту в подарок***
    размещено: 16.02.2026 , обновлено: 10.04.2026

    2-к квартира, Пехотинцев, 2г

    • 43 м2
    • 7/9 этаж
    • Состояние: идеальное
    6 470 000 ₽ (150500 ₽/м2)
    ID объекта в нашей базе: 13652
    размещено: 05.02.2026 , обновлено: 20.03.2026

    2-к квартира, Билимбаевская, 35

    8 499 000 ₽ (126900 ₽/м2)
    Объект № 196893. Продается уютная, теплая, светлая 2-комнатная квартира в кирпичном доме. Очень качественный ремонт: теплые полы, двери из массива, вся проводка поменяна. Удачная планировка с просторными комнатами и двумя санузлами. Окна выходят на две стороны: юго-восток и юг. Лоджия остеклена, с дополнительным утеплением. Двор огорожен, большой, с детскими и спортивными площадками, есть зеленая зона с беседкой. Рядом большая наземная парковка. Инфраструктура развита: школа, детские сады, магазины, остановки общественного транспорта, лыжная база – всё рядом. Один взрослый собственник. Серьезным покупателям торг. Звоните, записывайтесь на просмотр! ***Гарантийный сертификат «Защита собственности» по данному объекту в подарок***
    размещено: 26.01.2026 , обновлено: 29.04.2026

    2-к квартира, Пехотинцев, 2Г

    • 62.8 м2
    • 4/9 этаж
    • Состояние: идеальное
    8 500 000 ₽ (135400 ₽/м2)
    ▌ Продаётся уютная квартира с двумя спальнями (евро-трёшка) в ЖК «Депо» от топoвого зacтpoйщика "Брусника" Хотите приобрести квартиру мечты в одном из лучших жилых комплексов города? Предлагаем вашему вниманию квартиру площадью 62,8 м² на четвёртом этаже семиэтажного дома. ✅ Почему именно эта квартира? Четвёртый этаж — это золотая середина, идеальный вариант для тех, кому важны комфорт и спокойствие без лишнего шума улицы и соседей сверху. Просторная кухня-гостиная станет местом семейного отдыха и встреч с друзьями. Изолированная приватная зона позволит каждому жильцу чувствовать себя комфортно и уютно. Особенное внимание уделено эргономичной планировке и удобному зонированию пространства, учитывающему сценарии жизни современной семьи. Из двух окон открывается панорамный вид на центральную аллею комплекса и фонтан. Тихая и эстетичная сторона. Кроме того, здесь предусмотрена роскошная мастер-спальня с собственным санузлом и гардеробной, которая подарит вам незабываемые моменты спокойствия и расслабления. ???? Преимущества покупки квартиры в ЖК «Депо»: - Закрытый благоустроенный двор обеспечивает безопасность и спокойствие вашего ребёнка на прогулке. - Все необходимое для комфортной жизни уже предусмотрено: новая мебель и техника входят в стоимость! Качественный современный ремонт в нейтральных тонах. - Отличная транспортная доступность позволяет быстро добраться до любого района города. ▌ Хотите узнать больше? Свяжитесь с нами прямо сейчас, и мы организуем просмотр вашей будущей квартиры мечты! ID объекта в нашей базе: 215
    размещено: 13.01.2026 , обновлено: 15.04.2026

    2-к квартира, Кунарская, 14к2

    • 66.7 м2
    • 5/16 этаж
    • Состояние: идеальное
    7 199 000 ₽ (107900 ₽/м2)
    СРОЧНО! ТОРГ! ПРОДАЕТСЯ УЮТНА 2х-КОМНАТНАЯ КВАРТИРА В РАЙОНЕ СТАРОЙ СОРТИРОВКИОписание квартиры: ✔ Ремонт: Выполнен по высоким стандартам с использованием дорогих материалов (авторский дизайн-проект, качественная чистовая отделка, современная сантехника и техника).✔ Просторная площадь — идеально для комфортного проживания. ✔ Без перепланировок — всё соответствует документам. ✔ Готово к заселению: заезжайте и живите! Локация и инфраструктура:???? рядом *Верх-Исетское водохранилище* — виды, прогулки, свежий воздух. ???? Парки: зелёная зона у дома, *парк «Семь ключей» *, стадион «Локомотив». ???? Активный отдых: лыжная база РЖД, бассейн. ???? для семей с детьми: поликлиника, школы, сады, ТЦ, остановки транспорта (трамвай, автобус) — всё в шаговой доступностиДополнительно:* Рассматриваем *обмен на вашу недвижимость*. * Любая форма оплаты (ипотека, наличные). * Срочная продажа — торг уместен! Звоните прямо сейчас и приезжайте на просмотр!Ваш идеальный вариант — не упустите! ID объекта в нашей базе: 18242
    размещено: 12.12.2025 , обновлено: 20.04.2026

    2-к квартира, Ангарская, 50а

    • 64.1 м2
    • 8/10 этаж
    • Состояние: хорошее
    6 100 000 ₽ (95200 ₽/м2)
    Продается отличная квартира в доме спецпроект 2007 года. Есть своя парковка. Дом огорожен, детская площадка. В доме свое ТСЖ.Сейф дверь, окна пластиковые.Удобная, практичная планировка. Комнаты на разные стороны. остается мебель и техника.Чистая продажа, 1 совершеннолетний собственник.Звоните, покажем в удобное для вас время. ID объекта в нашей базе: 12097
    размещено: 25.10.2025 , обновлено: 11.04.2026

    2-к квартира, Ангарская, 28

    7 500 000 ₽ (133900 ₽/м2)
    Объект № 195151. Продаётся уютная 2-комнатная квартира с отличным ремонтом и мебелью в новом доме на Ангарской. Новостройка без забот: Дом современный, все системы в идеальном состоянии. Прекрасный вариант для комфортного проживания. Квартира на 6 этаже современного дома, сданного в 2018 году. Вся отделка выполнена качественно и со вкусом — Вам не придётся ничего делать. Ключевые преимущества: полная готовность - выполнен качественный ремонт. Мебель, бытовая техника и кухонный гарнитур остаются в подарок новому владельцу. Удобная локация: Район ул. Ангарской в Екатеринбурге активно развивается, есть вся необходимая инфраструктура. Не упустите шанс купить квартиру, в которую можно заехать сразу после сделки. Отличное предложение для тех, кто ценит своё время и хочет избежать хлопот с ремонтом и обустройством. ***Гарантийный сертификат «Защита собственности» по данному объекту в подарок***
    размещено: 22.10.2025 , обновлено: 6.04.2026

    2-к квартира, Кунарская, 14/1

    6 350 000 ₽ (109500 ₽/м2)
    Объект № 194011. Продаётся двухкомнатная квартира в закрытом жилом комплексе в микрорайоне Старая Сортировка. Двор с ограниченным доступом только для жильцов комплекса. Детская площадка в середине комплекса не имеет подъезда машин, отпускать детей гулять безопасно. На детской площадке достаточно игровых зон. Везде расположено видеонаблюдение. Подъезд оборудован пандусом для доступа с колясками. Два лифта двигаются быстро и бесшумно. Вход в квартиру закрывается хорошей сейф-дверью. В квартире большой холл, нет тесноты. Грязная зона на полу выделена керамогранитом. В этой зоне установлен электрический подогрев пола, что бы влага испарялась. Справа от входа есть гардеробная как отдельное помещение площадью 2,4 квадратных метра - может разместиться большая часть вашей одежды. Наполнение гардеробной полками и вешалками можете сделать по собственному дизайну. Так же вправо от входа расположена кухня площадью 8,7 кв.м. В кухне останется гарнитур, который, при желании, вы можете заменить на свой. Из кухни есть выход на одну из двух лоджий. Прямо от входа в квартиру из холла расположены двери в санузел и ванную комнату. Все трубы, в том числе и стояки, уже заменены. Заложить плиткой места доступа сантехников не успели, но плитка для этого остаётся покупателю. Слева от санузла расположен вход в комнату площадью 13,5 кв.м. с лоджией на юго-западную сторону, благодаря чему в комнате практически целый день солнечно. Лоджия обшита деревом. Из окна этой лоджии вы можете наблюдать за двором. Справа от ванной комнаты расположен вход в комнату площадью 16,3 кв.м. Окно комнаты, как и лоджия на кухне, обращены на северо-восток. За окном расположено здание высотой 2 этажа, что не создаёт помех для солнца. Установлены пластиковые стеклопакеты на окнах, натяжные потолки. На полу в холле и комнатах постелен ламинат, а в кухне, как в помещении с повышенной влажностью постелен линолеум. В санузле и в ванной комнате на полу и стенах выложена красивая керамическая плитка. Приглашаю вас на просмотр. ***Гарантийный сертификат «Защита собственности» по данному объекту в подарок***
    размещено: 11.09.2025 , обновлено: 19.04.2026

    2-к квартира, Пехотинцев, 2/в

    8 000 000 ₽ (123100 ₽/м2)
    Объект № 184813. Kвaртал Депo от Бpусники. Функциoнaльнaя плaниpoвкa. Большая кухня-гocтинaя и двe отдeльныe спaльни. Два санузла и балкoн дoбaвят кoмфоpтa для проживания. Отделкa под чистовую: стены выровнeны и оштукaтуpены, на полу - цементнo-песчaнaя стяжкa с минeрaльным утeплитeлeм. Проведена разводка электрики, розетки, выключатели, радиаторы отопления с терморегуляторами и приборы учета, показания которых благодаря системе телеметрии автоматически передаются в управляющую компании. На входе - стальная сейф-дверь, обшитая МДФ-панелями. Окна пластиковые. Выполнено архитектурное озеленение дворовой территории. Весной тон ему задают сирень и черемуха, летом и осенью - яркие астры и астильбы, зимой за счет сосен и высохших многолетних трав палитра меняется на коричнево-зеленую. Ландшафтные архитекторы предусмотрели и лаунж-зоны, где расположили шезлонги, садовую мебель и спроектировали небольшой фонтан. Расположение квартала Депо в активно развивающейся части Старой Сортировки, на месте, где раньше был завод Электротранс. В границах улиц Пехотинцев - Таватуйская - Сортировочная - Новая (проектируется). Рядом с Депо - автобусные остановки, в 15 мин ходьбы - трамвайные линии. С центром территорию связывают две основные магистральные улицы - Халтурина и Бебеля. В 15-минутной пешеходной доступности - пять школ (две - с углублённым изучением ряда предметов), техникум Автоматика, несколько частных и муниципальных детских садов.В стоимость квартиры входит кладовка,находящаяся на минус первом этаже.Все подробности по телефону. ***Гарантийный сертификат «Защита собственности» по данному объекту в подарок***
    размещено: 08.07.2024 , обновлено: 28.04.2026

Новостройки Екатеринбург, мкр-н. Старая Сортировка

Приоритет

Увеличивает просмотры в 3 раза

Ваше объявление показывается в списке выше обычных объявлений. подключить