Top.Mail.Ru
На Метре реклама - только нормальная. Никакого шок-контента.
Помогайте независимому ресурсу, как он помогает вам. Удачи!
Средняя цена м² · Новостройки
178 767 ₽/м²
↑ 8,1% за 12 мес.
Средняя цена м² · Вторичка
141 146 ₽/м²
↑ 11,5% за 12 мес.
Продажи новостроек · Мар 2026
2 396 сделок
↓ 5,96% к февралю
Вторичка, сделки · Мар 2026
10 947 сделок
↑ 7,98% к февралю
Ключевая ставка ЦБ РФ
15 %
↓ снижение
Новостройки Котт. посёлки Объявления Динамика цен и сделок

Продажа квартиры: Екатеринбург, ул. Заводская, 43/2 (ВИЗ)

  • опубликовано 24.02.2026 , обновлено 19.03.2026
  • 14
Рынок:вторичный
Срок сдачи: 1969 года
Количество комнат:3
Общая площадь:73.7 м2
Жилая площадь:52 м2
Площадь кухни:8.4 м2
Этаж/Этажность дома:1 / 5
Санузел:раздельный
Отделка:косметический
Год постройки:1969
Состояние:удовлетворительное
Цена:
6 900 000
Объявление снято с публикации
Коммунальные платежи:оплачиваются отдельно
Ипотека:возможна

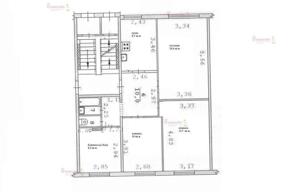
Объект № 197293. ПРИНЯТ АВАНС. Квартира в 15 минутах от центра города на Крауля - Заводской.

Дом во дворе, тихо, нет шума от дорог. Подъезд отремонтирован и в нем всего 10 квартир! В квартире требуется ремонт. Окна на две стороны.

Планировка: кухня - 8,5 кв. м., комнаты: 20,18,10 и есть 8-метровое помещение - может служить гардеробом, хоз. блоком, мастерской или кабинетом.
Квартира в собственности с 1998 года, продается в связи с покупкой другой недвижимости, встречный объект подобран. Без залогов, обременений, два взрослых собственника. ***Гарантийный сертификат «Защита собственности» по данному объекту в подарок***

Объявление снято с публикации

Ипотечный калькулятор

лет
%
Сумма кредита
6900000 ₽
Платеж
22 540 ₽

История предложений в этом доме

объявление снято с публикации в продаже комнат площадь этаж цена,
Екатеринбург, ул. Заводская, 43/2 (ВИЗ) - фото квартиры 1 апреля 2026 90 дн. 4 73 1/5 6 900 000
Екатеринбург, ул. Заводская, 43/2 (ВИЗ) - фото квартиры 26 августа 2025 90 дн. 1 29 4/5 4 000 000
Екатеринбург, ул. Заводская, 43/2 (ВИЗ) - фото квартиры 8 апреля 2023 90 дн. 4 71.5 4/5 5 700 000
Екатеринбург, ул. Заводская, 43/2 (ВИЗ) - фото квартиры 1 марта 2023 90 дн. 2 43 5/5 1 000 000
Екатеринбург, ул. Заводская, 43/2 (ВИЗ) - фото квартиры 9 сентября 2020 90 дн. 2 42.3 4/5 3 150 000
Екатеринбург, ул. Заводская, 43/2 - фото квартиры 26 августа 2020 90 дн. 2 43 5/5 1 100 000
22 ноября 2018 90 дн. 2 42 5/5 3 180 000

Похожие предложения о продаже квартир в Екатеринбурге (ВИЗ)

  • 3-к квартира, Токарей, 54/1

    • 59 м2
    • 2/5 этаж
    • Состояние: удовлетворительное
    6 100 000 ₽ (103400 ₽/м2)
    ID объекта в нашей базе: 12428
    размещено: 01.04.2026 , обновлено: 12.04.2026
  • 3-к квартира, Металлургов, 44

    • 70 м2
    • 8/9 этаж
    • Состояние: хорошее
    8 200 000 ₽ (117100 ₽/м2)
    Объект № 198176. Просторная квартира. Срочная продажа!!! Развитая транспортная логистика, удобно добираться на общественном и личном транспорте до всех районов города, до центра города 5-7 минут! Один взрослый собственник, без долгов и без обременений! Быстрый выход на сделку. ***Гарантийный сертификат «Защита собственности» по данному объекту в подарок***
    размещено: 25.03.2026 , обновлено: 16.04.2026
  • 3-к квартира, Крауля, 80/2

    • 57.5 м2
    • 4/9 этаж
    • Состояние: хорошее
    7 500 000 ₽ (130400 ₽/м2)
    Квартира под АВАНСОМ!Продается светлая, уютная 3-комнатная квартира площадью 57,5 м² в отличном районе города — ВИЗ. Удобная транспортная доступность: всего 10 минут до центра, 3 минуты до остановки трамвая, троллейбуса, маршрутного такси. Район с развитой инфраструктурой: парковочное место не нужно искать в подарок покупателю 2 железных гаража. Рядом современный футбольный корт и несколько детских площадок, детские сады, школы, а также магазины, аптеки, медицинские центры. Квартира полностью готова к проживанию без дополнительных вложений, изолированные комнаты. Большая кухня гостиная (все узаконено). Новым собственникам в подарок остается.КУХНЯ: дорогой кухонный гарнитур с каменной столешницей, варочная поверхность, духовой шкаф, вытяжка, посудомоечная машина,кондиционер, микроволновая печь, холодильник. Люстры по всей квартире.СПАЛЬНАЯ: Шкаф купе, кровать, телевизор. ДЕТСКАЯ: Шкаф купе большой, письменный стол с шкафчиками. КОРИДОР: Два больших вместительных шкафа купе. Вся мебель в отличном состоянии. ВАННАЯ: Стиральная машина, полочки. Ремонт делали для себя с использованием современных материалов. В доме в 2025 году заменены водостоки (стояки водоснабжения и канализация), БАЛКОН: Сделан в кафель полностью, окна пластик.Квартира без обременений, залогов и арестов. Один взрослый собственник.Позвольте реализовать свои планы и создать уютный дом в комфортном районе! Показ по договоренности. ТОРГ. ID объекта в нашей базе: 26364
    размещено: 09.03.2026 , обновлено: 16.04.2026
  • 3-к квартира, Татищева, 53

    • 60.5 м2
    • 8/9 этаж
    • Состояние: хорошее
    8 200 000 ₽ (135500 ₽/м2)
    Большая светлая и тёплая квартира в кирпичном доме. Один взрослый собственник В собственности больше 20 ти лет Чистая продажа Перепланировок нет Три изолированных комнаты Возможность сделать перепланировку (убрать стену между коридором и кухней, сделать небольшую прихожую) и у вас получится современная евротрешка, где две компактные спальни и большая кухня-гостиная (с документами по оформлению могут помочь специалисты нашей компании) Дом очень удобно расположен (три окна во двор и одно на улицу Красноуральскую), при этом в шаговой доступности до центра города. Состояние квартиры «под ремонт», при этом стоимость очень выигрышная, по отношению к другим предложениям в этом районе. Полный пакет документов, сопровождение и профессиональная поддержка сделки: -опытным агентом и юристом-помощь с ипотекой Гарантия безопасности сделки от агентства "БК_НЕДВИЖИМОСТЬ". ID объекта в нашей базе: 3247
    размещено: 06.03.2026 , обновлено: 10.04.2026
  • 3-к квартира, Токарей, 56/2

    • 56 м2
    • 5/5 этаж
    • Состояние: хорошее
    6 490 000 ₽ (115900 ₽/м2)
    Объект № 197628. Предлагаю большую квартиру в самом развитом районе города. Дом удачно расположен внутри двора, вдали от шума дорог. Квартира находится в середине дома, очень тёплая и светлая, окна на разные стороны дома. Все три комнаты-гостиная, спальня и детская-изолированные, выполнен косметический ремонт. Инфраструктура позволяет получать все необходимые услуги в шаговой доступности с домом. По прописке - три школы, три детских садика, Новая больница. Удачная локация - до остановки транспорта, в любое направление - 2 минуты, до центра города прогулочным шагом 20 минут, на транспорте - 7 минут. Рядом с подъездом открытая парковка для автомобилей. В подарок покупателю остаётся вся мебель. Покажу по договорённости в удобное для вас время. Документы готовы к сделке, обременений нет. Помогу с оформлением ипотеки, в том числе без первоначального взноса. ***Гарантийный сертификат «Защита собственности» по данному объекту в подарок***
    размещено: 26.02.2026 , обновлено: 15.04.2026

    3-к квартира, Крауля, 61/1

    • 57.9 м2
    • 9/9 этаж
    6 900 000 ₽ (119200 ₽/м2)
    ПРОДАЕТСЯ полноценная, теплая и очень уютная трехкомнатная квартира с капитальным ремонтом - заменены двери, окна пластиковые, балкон застеклён, полы залиты пенобетоном в комнатах ламинат на кухне и в коридоре плитка, натяжные потолки, стены выровнены гипсокартоном, заменена эл. проводка а также всё сантехника, остаётся мебель и бытовая техника. Квартира теплая, рядом магазины, почта, ЦГБ-33, 41, Сбербанк, д. сады, школы, остановки автобусы, троллейбусы, трамваи. Во дворе есть места для парковки машин, всегда свободно. Дом обслуживается в 33 больнице. Из основных ПРЕИМУЩЕСТВ дома и района: - максимально удобное расположение дома в центре ВИЗа позволит Вам за минимальное количество времени добраться до центра. Общественный транспорт на расстоянии 50 м от подъезда; - прекрасно развитая инфраструктура района (до ТЦ МЕГА/ТЦ Радуга Парк на автобусе 15-20 мин, на автомобиле с учётом новых развязок всего 7-10 мин. В шаговой доступности многочисленные продуктовые и продовольственные магазины, детские сады, школы). РЕАЛЬНЫМ ПОКУПАТЕЛЯМ НЕБОЛЬШОЙ ТОРГ! Приезжайте на просмотр!
    размещено: 02.02.2026 , обновлено: 16.04.2026

    3-к квартира, Репина, 99а

    • 69.6 м2
    • 10/10 этаж
    • Состояние: хорошее
    8 550 000 ₽ (122800 ₽/м2)
    Продается уютная и ухоженная 3-комнатная квартира в районе ВИЗ общей площадью 69,6 м². Основные преимущества: - Три изолированные комнаты с окнами на две стороны. - Косметический ремонт, обустроенная лоджия. - Просторный коридор с множеством мест для хранения. - Надежная сейф-дверь. - Новые окна и батареи. - Выделенная секция на две квартиры с дополнительным местом для хранения. - Остается кухонный гарнитур, шкафы в коридоре и мебель в детской комнате. Инфраструктура и удобства: - ТЦ «Радуга Парк» в шаговой доступности. - Остановка общественного транспорта в 3 минутах ходьбы. - Новый детский сад и школа №41 через дорогу. - Больница №40 в 5 минутах езды. - Достаточно мест на стоянке возле дома. Дополнительные преимущества: - Управляющая компания оперативно решает вопросы жильцов и следит за состоянием дома и придомовой территории. - Чистый подъезд и приятные соседи. - Юридически чистый объект, возможен обмен. Просмотр возможен в удобное для вас время. Звоните, с удовольствием отвечу на все ваши вопросы и запишемся на просмотр. ID объекта в нашей базе: 13665
    размещено: 06.02.2026 , обновлено: 11.04.2026

    3-к квартира, Крауля, 10

    • 54 м2
    • 1/9 этаж
    • Состояние: плохое
    6 190 000 ₽ (114600 ₽/м2)
    Объект № 179150. Трехкомнатная квартира в кирпичном доме. Эргономичная планировка: три отдельные комнаты, кухня 6 кв.м, раздельный санузел, прихожая с изолированной входной зоной. Окна выходят на тихое спокойное место. Аккуратное состояние: пластиковые окна, новые радиаторы отопления, отремонтированы санузлы, кухня и прихожая. Квартира внутри квартала и удалена от уличного шума. Рядом с домом расположены остановки транспорта, две хорошие школы, все необходимое для комфортной жизни, 10 минут до центра города. Один собственник. Без обременений. Позвоните или напишите мне, буду рад организовать для Вас просмотр квартиры, рассказать о возможностях приобретения. ***Гарантийный сертификат «Защита собственности» по данному объекту в подарок***
    размещено: 30.11.2023 , обновлено: 11.04.2026

Новостройки Екатеринбург, мкр-н. ВИЗ

Приоритет

Увеличивает просмотры в 3 раза

Ваше объявление показывается в списке выше обычных объявлений. подключить