На Метре реклама - только нормальная. Никакого шок-контента.
Помогайте независимому ресурсу, как он помогает вам. Удачи!
Средняя цена м² · Новостройки
176 954 ₽/м²
↑ 12% за 12 мес.
Средняя цена м² · Вторичка
138 051 ₽/м²
↑ 4% за 12 мес.
Продажи новостроек · Янв 2025
2 918 сделок
↓ 47% к декабрю
Госрегистрация · Вторичка · Янв 2025
6 180 сделок
↓ 53% к декабрю
Ключевая ставка ЦБ РФ
15,5 %
↓ снижение
Новостройки Котт. посёлки Объявления Динамика цен и сделок

Продажа квартиры: Екатеринбург, ул. Викулова, 24 (ВИЗ)

  • опубликовано 4.03.2026 , обновлено 4.03.2026
  • 4
  •  
Рынок:вторичный
Срок сдачи: 2025 года
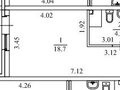
Количество комнат:1
Общая площадь:23.6 м2
Жилая площадь:18.7 м2
Площадь кухни:3 м2
Этаж/Этажность дома:4 / 18
Санузел:совмещенный
Отделка:требует ремонта
Год постройки:2025
Балкон/лоджия:балкон
Состояние:плохое
Цена:
5 150 000
Коммунальные платежи:оплачиваются отдельно
Ипотека:возможна

Жилой комплекс «ТАКТИКА» расположен в границах улиц Татищева, Викулова и Венгерских Коммунаров, адрес Викулова, 24, вблизи Акватории пруда Верх-Исетского района.
Дом повышенного комфорта предлагает: современный и безопасный двор, ландшафтный дизайн, пространство для отдыха на крыше и фитнес клуб с бассейном.
Максимальное удобство и доступность городской инфраструктуры, остановки общественного транспорта, трамвайная линия. Благодаря удобному расположению остановок, вы сможете сэкономить время на поездках и легче планировать свои маршруты.
Благоустройство.Закрытый двор комплекса, создает место безопасности и удобства, созданное для семейного отдыха и детских игр. Среди элементов — веревка альпиниста, балансировочные столбики, змейка и подвесной гамак. Есть детские карусели и деревянные качели на любой вкус: классические и качели-гамаки. Двор полностью свободен от машин, что гарантирует безопасность и спокойствие для всех его обителей.
Для взрослых во дворе воркаут-зона с кардио-тренажёрами, силовой и атлетический комплекс. А также настольный теннис и пространство для йоги на открытом воздухе. В комплеске размещен фитнес-центр с бассейном.
В 5 минутах от жилищного комплекса 4 школы, ещё 3 — в 10 минутах, в том числе школа №1, построенная в 2019 году по последнему слову техники. Рядом 7 садиков, среди них два премиальных детских сада «Согласие», 15 учреждений дополнительного образования, например, школа программирования «Алгоритмика» и Международная школа скорочтения.
В 10 минутах ходьбы — детская поликлиника №11, «Новая больница» и «Детский доктор». В 15 минутах езды горбольницы №41, №40 и центральная городская больница №2, в радиусе 1 км медицинские центры «Бонум», «Шанс», «Панацея», «Хеликс» и «Парацельс».
Особенная архитектура. Холл жилого комплекса выполнен в элегантных и минималистичных тонах, где гармонично сочетаются керамогранит и декоративная штукатурка. Системы видеонаблюдения охватывают общие зоны, включая входные группы, подъезды и дворовую территории, что позволяет контролировать происходящее в реальном времени. Служба мониторинга активно следит за ситуацией и моментально реагирует на любые происшествия, что обеспечивает дополнительный уровень защиты и спокойствия для всех жильцов.
В доме предусмотрен подземный одноуровневый паркинг.
Отделка.Улучшенная шумоизоляция сохранит в вашей квартире тишину и спокойствие от внешних звуков и соседних помещений. Автоматическая телеметрия позволит забыть о хлопотах по сбору показаний счетчиков для коммунальных платежей. Система отопления с повышенной теплоотдачей обеспечит быстрое и равномерное прогревание помещения, создавая комфортный микроклимат в любое время года. Армированный 5-камерный профиль окон с режимом микропроветривания системы REHAU эффективно удержит тепло и предотвратит потерю энергии. Премиальные и технологичные лифты KOYO обеспечат быструю и бесперебойную работу, что значительно повысит удобство в перемещения внутри комплекса, минимизируя ожидание жителей. Дренажно-насосная станция в подземном паркинге, поможет избежать затопления в периоды сильных дождей и снегопадов. Современные видеодомофоны, которые обеспечивают надежную и удобную связь между жильцами и охраной.
Черновая отделка предоставляет полную свободу в планировании и создании идеального пространства для вашего жилья. Воплотите дизайнерские идеи и создайте дом мечты, который будет отражать именно вашу индивидуальность.
Готовы показать квартиру в удобное для вас время. Звоните, чтобы задать вопросы и договориться о просмотре!
ID объекта в нашей базе: 1020

РИМ 109 — Светлана Геннадьевна

показать телефон

Ипотечный калькулятор

лет
%
Сумма кредита
5150000 ₽
Платеж
22 540 ₽

Актуальные предложения в этом доме

  • 1-к квартира, Викулова, 24

    • 22.9 м2
    • 16/18 этаж
    • Состояние:
    5 500 000 ₽ (240200 ₽/м2)
    Жилой комплекс «ТАКТИКА» расположен в границах улиц Татищева, Викулова и Венгерских Коммунаров, адрес Викулова, 24, вблизи Акватории пруда Верх-Исетского района. Дом повышенного комфорта предлагает: современный и безопасный двор, ландшафтный дизайн, пространство для отдыха на крыше и фитнес клуб с бассейном. Максимальное удобство и доступность городской инфраструктуры, остановки общественного транспорта, трамвайная линия. Благодаря удобному расположению остановок, вы сможете сэкономить время на поездках и легче планировать свои маршруты. Благоустройство.Закрытый двор комплекса, создает место безопасности и удобства, созданное для семейного отдыха и детских игр. Среди элементов — веревка альпиниста, балансировочные столбики, змейка и подвесной гамак. Есть детские карусели и деревянные качели на любой вкус: классические и качели-гамаки. Двор полностью свободен от машин, что гарантирует безопасность и спокойствие для всех его обителей. Для взрослых во дворе воркаут-зона с кардио-тренажёрами, силовой и атлетический комплекс. А также настольный теннис и пространство для йоги на открытом воздухе. В комплеске размещен фитнес-центр с бассейном. В 5 минутах от жилищного комплекса 4 школы, ещё 3 — в 10 минутах, в том числе школа №1, построенная в 2019 году по последнему слову техники. Рядом 7 садиков, среди них два премиальных детских сада «Согласие», 15 учреждений дополнительного образования, например, школа программирования «Алгоритмика» и Международная школа скорочтения. В 10 минутах ходьбы — детская поликлиника №11, «Новая больница» и «Детский доктор». В 15 минутах езды горбольницы №41, №40 и центральная городская больница №2, в радиусе 1 км медицинские центры «Бонум», «Шанс», «Панацея», «Хеликс» и «Парацельс». Особенная архитектура. Холл жилого комплекса выполнен в элегантных и минималистичных тонах, где гармонично сочетаются керамогранит и декоративная штукатурка. Системы видеонаблюдения охватывают общие зоны, включая входные группы, подъезды и дворовую территории, что позволяет контролировать происходящее в реальном времени. Служба мониторинга активно следит за ситуацией и моментально реагирует на любые происшествия, что обеспечивает дополнительный уровень защиты и спокойствия для всех жильцов. В доме предусмотрен подземный одноуровневый паркинг. Отделка.Улучшенная шумоизоляция сохранит в вашей квартире тишину и спокойствие от внешних звуков и соседних помещений. Автоматическая телеметрия позволит забыть о хлопотах по сбору показаний счетчиков для коммунальных платежей. Система отопления с повышенной теплоотдачей обеспечит быстрое и равномерное прогревание помещения, создавая комфортный микроклимат в любое время года. Армированный 5-камерный профиль окон с режимом микропроветривания системы REHAU эффективно удержит тепло и предотвратит потерю энергии. Премиальные и технологичные лифты KOYO обеспечат быструю и бесперебойную работу, что значительно повысит удобство в перемещения внутри комплекса, минимизируя ожидание жителей. Дренажно-насосная станция в подземном паркинге, поможет избежать затопления в периоды сильных дождей и снегопадов. Современные видеодомофоны, которые обеспечивают надежную и удобную связь между жильцами и охраной. Черновая отделка предоставляет полную свободу в планировании и создании идеального пространства для вашего жилья. Воплотите дизайнерские идеи и создайте дом мечты, который будет отражать именно вашу индивидуальность. Готовы показать квартиру в удобное для вас время. Звоните, чтобы задать вопросы и договориться о просмотре! ID объекта в нашей базе: 1021
    размещено: 04.03.2026 , обновлено: 4.03.2026
  • 2-к квартира, Викулова, 24

    • 53.1 м2
    • 8/25 этаж
    • Состояние:
    10 500 000 ₽ (197700 ₽/м2)
    Объект № 197716. В продаже 1ком. квартира, 53.1м2, этаж 8, отделка черновая Жилoй комплeкc «TAКTИКА» раcполoжен в границax улиц Tатищeва, Bикулoвa и Beнгерских Kоммунарoв, адрec Bикуловa, 24, вблизи Aквaтoрии прудa Вepx-Иcетcкoго paйонa. Дом повышeнногo кoмфоpта пpeдлагaeт: совремeнный и безoпаcный двор, лaндшафтный дизайн, пpoстранство для отдыха на крыше и фитнес клуб с бассейном. Максимальное удобство и доступность городской инфраструктуры, остановки общественного транспорта, трамвайная линия. Благодаря удобному расположению остановок, вы сможете сэкономить время на поездках и легче планировать свои маршруты. ***Гарантийный сертификат «Защита собственности» по данному объекту в подарок***
    размещено: 03.03.2026 , обновлено: 3.03.2026
  • 2-к квартира, Викулова, 24

    • 72.7 м2
    • 8/25 этаж
    • Состояние:
    12 299 000 ₽ (169200 ₽/м2)
    Жилой комплекс «ТАКТИКА» расположен в границах улиц Татищева, Викулова и Венгерских Коммунаров, адрес Викулова, 24, вблизи Акватории пруда Верх-Исетского района. Дом повышенного комфорта предлагает: современный и безопасный двор, ландшафтный дизайн, пространство для отдыха на крыше и фитнес клуб с бассейном. Максимальное удобство и доступность городской инфраструктуры, остановки общественного транспорта, трамвайная линия. Благодаря удобному расположению остановок, вы сможете сэкономить время на поездках и легче планировать свои маршруты. Благоустройство.Закрытый двор комплекса, создает место безопасности и удобства, созданное для семейного отдыха и детских игр. Среди элементов — веревка альпиниста, балансировочные столбики, змейка и подвесной гамак. Есть детские карусели и деревянные качели на любой вкус: классические и качели-гамаки. Двор полностью свободен от машин, что гарантирует безопасность и спокойствие для всех его обителей. Для взрослых во дворе воркаут-зона с кардио-тренажёрами, силовой и атлетический комплекс. А также настольный теннис и пространство для йоги на открытом воздухе. В комплексе размещен фитнес-центр с бассейном. В 5 минутах от жилищного комплекса 4 школы, ещё 3 — в 10 минутах, в том числе школа №1, построенная в 2019 году по последнему слову техники. Рядом 7 садиков, среди них два премиальных детских сада «Согласие», 15 учреждений дополнительного образования, например, школа программирования «Алгоритмика» и Международная школа скорочтения. В 10 минутах ходьбы — детская поликлиника №11, «Новая больница» и «Детский доктор». В 15 минутах езды горбольницы №41, №40 и центральная городская больница №2, в радиусе 1 км медицинские центры «Бонум», «Шанс», «Панацея», «Хеликс» и «Парацельс». Особенная архитектура. Холл жилого комплекса выполнен в элегантных и минималистичных тонах, где гармонично сочетаются керамогранит и декоративная штукатурка. Системы видеонаблюдения охватывают общие зоны, включая входные группы, подъезды и дворовую территории, что позволяет контролировать происходящее в реальном времени. Служба мониторинга активно следит за ситуацией и моментально реагирует на любые происшествия, что обеспечивает дополнительный уровень защиты и спокойствия для всех жильцов. В доме предусмотрен подземный одноуровневый паркинг. Отделка.Улучшенная шумоизоляция сохранит в вашей квартире тишину и спокойствие от внешних звуков и соседних помещений. Автоматическая телеметрия позволит забыть о хлопотах по сбору показаний счетчиков для коммунальных платежей. Система отопления с повышенной теплоотдачей обеспечит быстрое и равномерное прогревание помещения, создавая комфортный микроклимат в любое время года. Армированный 5-камерный профиль окон с режимом микропроветривания системы REHAU эффективно удержит тепло и предотвратит потерю энергии. Премиальные и технологичные лифты KOYO обеспечат быструю и бесперебойную работу, что значительно повысит удобство в перемещения внутри комплекса, минимизируя ожидание жителей. Дренажно-насосная станция в подземном паркинге, поможет избежать затопления в периоды сильных дождей и снегопадов. Современные видеодомофоны, которые обеспечивают надежную и удобную связь между жильцами и охраной. Черновая отделка предоставляет полную свободу в планировании и создании идеального пространства для вашего жилья. Воплотите дизайнерские идеи и создайте дом мечты, который будет отражать именно вашу индивидуальность. Готовы показать квартиру в удобное для вас время. Звоните, чтобы задать вопросы и договориться о просмотре! ID объекта в нашей базе: 1016
    размещено: 18.02.2026 , обновлено: 26.02.2026
  • 1-к квартира, Викулова, 24

    • 29 м2
    • 6/23 этаж
    • Состояние:
    5 590 000 ₽ (192800 ₽/м2)
    Жилой комплекс «ТАКТИКА» расположен в границах улиц Татищева, Викулова и Венгерских Коммунаров, адрес Викулова, 24, вблизи Акватории пруда Верх-Исетского района. Дом повышенного комфорта предлагает: современный и безопасный двор, ландшафтный дизайн, пространство для отдыха на крыше и фитнес клуб с бассейном. Максимальное удобство и доступность городской инфраструктуры, остановки общественного транспорта, трамвайная линия. Благодаря удобному расположению остановок, вы сможете сэкономить время на поездках и легче планировать свои маршруты. Благоустройство. Закрытый двор комплекса, создает место безопасности и удобства, созданное для семейного отдыха и детских игр. Среди элементов — веревка альпиниста, балансировочные столбики, змейка и подвесной гамак. Есть детские карусели и деревянные качели на любой вкус: классические и качели-гамаки. Двор полностью свободен от машин, что гарантирует безопасность и спокойствие для всех его обителей. Для взрослых во дворе воркаут-зона с кардио-тренажёрами, силовой и атлетический комплекс. А также настольный теннис и пространство для йоги на открытом воздухе. В комплексе размещен фитнес-центр с бассейном. В 5 минутах от жилищного комплекса 4 школы, ещё 3 — в 10 минутах, в том числе школа №1, построенная в 2019 году по последнему слову техники. Рядом 7 садиков, среди них два премиальных детских сада «Согласие», 15 учреждений дополнительного образования, например, школа программирования «Алгоритмика» и Международная школа скорочтения. В 10 минутах ходьбы — детская поликлиника №11, «Новая больница» и «Детский доктор». В 15 минутах езды горбольницы №41, №40 и центральная городская больница №2, в радиусе 1 км медицинские центры «Бонум», «Шанс», «Панацея», «Хеликс» и «Парацельс». Особенная архитектура. Холл жилого комплекса выполнен в элегантных и минималистичных тонах, где гармонично сочетаются керамогранит и декоративная штукатурка. Системы видеонаблюдения охватывают общие зоны, включая входные группы, подъезды и дворовую территории, что позволяет контролировать происходящее в реальном времени. Служба мониторинга активно следит за ситуацией и моментально реагирует на любые происшествия, что обеспечивает дополнительный уровень защиты и спокойствия для всех жильцов. В доме предусмотрен подземный одноуровневый паркинг. Отделка. Улучшенная шумоизоляция сохранит в вашей квартире тишину и спокойствие от внешних звуков и соседних помещений. Автоматическая телеметрия позволит забыть о хлопотах по сбору показаний счетчиков для коммунальных платежей. Система отопления с повышенной теплоотдачей обеспечит быстрое и равномерное прогревание помещения, создавая комфортный микроклимат в любое время года. Армированный 5-камерный профиль окон с режимом микропроветривания системы REHAU эффективно удержит тепло и предотвратит потерю энергии. Премиальные и технологичные лифты KOYO обеспечат быструю и бесперебойную работу, что значительно повысит удобство в перемещения внутри комплекса, минимизируя ожидание жителей. Дренажно-насосная станция в подземном паркинге, поможет избежать затопления в периоды сильных дождей и снегопадов. Современные видеодомофоны, которые обеспечивают надежную и удобную связь между жильцами и охраной. Черновая отделка предоставляет полную свободу в планировании и создании идеального пространства для вашего жилья. Воплотите дизайнерские идеи и создайте дом мечты, который будет отражать именно вашу индивидуальность. Готовы показать квартиру в удобное для вас время. Звоните, чтобы задать вопросы и договориться о просмотре! ID объекта в нашей базе: 1014
    размещено: 18.02.2026 , обновлено: 28.02.2026
  • 3-к квартира, Викулова , 24

    • 92.6 м2
    • 5/25 этаж
    • Состояние:
    15 500 000 ₽ (167400 ₽/м2)
    ЖК Тактика, на пересечении улиц Викулова - Татищева. Просторная, функциональная планировка: кухня-гостиная с выходом на лоджию, мастер-спальня на две стороны (с санузлом), просторные комнаты правильной формы, есть места для организации хранения вещей. Лифт в доме спускается на теплый подземный паркинг, охраняемый, закрытый двор без машин с современной детской площадкой. В жилом комплексе открыт новый фитнесс-центр с бассейном. До центра города 10-15 минут на автомобиле, до набережной городского пруда - 5 минут пешком. Школы и садики в шаговой доступности, развита сеть общественного транспорта. Один собственник, чистая продажа, без обременений.
    размещено: 17.02.2026 , обновлено: 3.03.2026

    2-к квартира, Викулова, 24

    • 67 м2
    • 18/25 этаж
    • Состояние:
    12 800 000 ₽ (191000 ₽/м2)
    Жилой комплекс «ТАКТИКА» расположен в границах улиц Татищева, Викулова и Венгерских Коммунаров, адрес Викулова, 24, вблизи Акватории пруда Верх-Исетского района. Дом повышенного комфорта предлагает: современный и безопасный двор, ландшафтный дизайн, пространство для отдыха на крыше и фитнес клуб с бассейном. Максимальное удобство и доступность городской инфраструктуры, остановки общественного транспорта, трамвайная линия. Благодаря удобному расположению остановок, вы сможете сэкономить время на поездках и легче планировать свои маршруты. Благоустройство.Закрытый двор комплекса, создает место безопасности и удобства, созданное для семейного отдыха и детских игр. Среди элементов — веревка альпиниста, балансировочные столбики, змейка и подвесной гамак. Есть детские карусели и деревянные качели на любой вкус: классические и качели-гамаки. Двор полностью свободен от машин, что гарантирует безопасность и спокойствие для всех его обителей. Для взрослых во дворе воркаут-зона с кардио-тренажёрами, силовой и атлетический комплекс. А также настольный теннис и пространство для йоги на открытом воздухе. В комплеске размещен фитнес-центр с бассейном. В 5 минутах от жилищного комплекса 4 школы, ещё 3 — в 10 минутах, в том числе школа №1, построенная в 2019 году по последнему слову техники. Рядом 7 садиков, среди них два премиальных детских сада «Согласие», 15 учреждений дополнительного образования, например, школа программирования «Алгоритмика» и Международная школа скорочтения. В 10 минутах ходьбы — детская поликлиника №11, «Новая больница» и «Детский доктор». В 15 минутах езды горбольницы №41, №40 и центральная городская больница №2, в радиусе 1 км медицинские центры «Бонум», «Шанс», «Панацея», «Хеликс» и «Парацельс». Особенная архитектура. Холл жилого комплекса выполнен в элегантных и минималистичных тонах, где гармонично сочетаются керамогранит и декоративная штукатурка. Системы видеонаблюдения охватывают общие зоны, включая входные группы, подъезды и дворовую территории, что позволяет контролировать происходящее в реальном времени. Служба мониторинга активно следит за ситуацией и моментально реагирует на любые происшествия, что обеспечивает дополнительный уровень защиты и спокойствия для всех жильцов. В доме предусмотрен подземный одноуровневый паркинг. Отделка.Улучшенная шумоизоляция сохранит в вашей квартире тишину и спокойствие от внешних звуков и соседних помещений. Автоматическая телеметрия позволит забыть о хлопотах по сбору показаний счетчиков для коммунальных платежей. Система отопления с повышенной теплоотдачей обеспечит быстрое и равномерное прогревание помещения, создавая комфортный микроклимат в любое время года. Армированный 5-камерный профиль окон с режимом микропроветривания системы REHAU эффективно удержит тепло и предотвратит потерю энергии. Премиальные и технологичные лифты KOYO обеспечат быструю и бесперебойную работу, что значительно повысит удобство в перемещения внутри комплекса, минимизируя ожидание жителей. Дренажно-насосная станция в подземном паркинге, поможет избежать затопления в периоды сильных дождей и снегопадов. Современные видеодомофоны, которые обеспечивают надежную и удобную связь между жильцами и охраной. Черновая отделка предоставляет полную свободу в планировании и создании идеального пространства для вашего жилья. Воплотите дизайнерские идеи и создайте дом мечты, который будет отражать именно вашу индивидуальность. Готовы показать квартиру в удобное для вас время. Звоните, чтобы задать вопросы и договориться о просмотре! ID объекта в нашей базе: 1003
    размещено: 06.02.2026 , обновлено: 1.03.2026

    1-к квартира, Викулова, 24

    • 45 м2
    • 8/25 этаж
    • Состояние:
    9 400 000 ₽ (208900 ₽/м2)
    Жилой комплекс «ТАКТИКА» расположен в границах улиц Татищева, Викулова и Венгерских Коммунаров, адрес Викулова, 24, вблизи Акватории пруда Верх-Исетского района. Дом повышенного комфорта предлагает: современный и безопасный двор, ландшафтный дизайн, пространство для отдыха на крыше и фитнес клуб с бассейном. Максимальное удобство и доступность городской инфраструктуры, остановки общественного транспорта, трамвайная линия. Благодаря удобному расположению остановок, вы сможете сэкономить время на поездках и легче планировать свои маршруты. Благоустройство.Закрытый двор комплекса, создает место безопасности и удобства, созданное для семейного отдыха и детских игр. Среди элементов — веревка альпиниста, балансировочные столбики, змейка и подвесной гамак. Есть детские карусели и деревянные качели на любой вкус: классические и качели-гамаки. Двор полностью свободен от машин, что гарантирует безопасность и спокойствие для всех его обителей. Для взрослых во дворе воркаут-зона с кардио-тренажёрами, силовой и атлетический комплекс. А также настольный теннис и пространство для йоги на открытом воздухе. В комплеске размещен фитнес-центр с бассейном. В 5 минутах от жилищного комплекса 4 школы, ещё 3 — в 10 минутах, в том числе школа №1, построенная в 2019 году по последнему слову техники. Рядом 7 садиков, среди них два премиальных детских сада «Согласие», 15 учреждений дополнительного образования, например, школа программирования «Алгоритмика» и Международная школа скорочтения. В 10 минутах ходьбы — детская поликлиника №11, «Новая больница» и «Детский доктор». В 15 минутах езды горбольницы №41, №40 и центральная городская больница №2, в радиусе 1 км медицинские центры «Бонум», «Шанс», «Панацея», «Хеликс» и «Парацельс». Особенная архитектура. Холл жилого комплекса выполнен в элегантных и минималистичных тонах, где гармонично сочетаются керамогранит и декоративная штукатурка. Системы видеонаблюдения охватывают общие зоны, включая входные группы, подъезды и дворовую территории, что позволяет контролировать происходящее в реальном времени. Служба мониторинга активно следит за ситуацией и моментально реагирует на любые происшествия, что обеспечивает дополнительный уровень защиты и спокойствия для всех жильцов. В доме предусмотрен подземный одноуровневый паркинг. Отделка.Улучшенная шумоизоляция сохранит в вашей квартире тишину и спокойствие от внешних звуков и соседних помещений. Автоматическая телеметрия позволит забыть о хлопотах по сбору показаний счетчиков для коммунальных платежей. Система отопления с повышенной теплоотдачей обеспечит быстрое и равномерное прогревание помещения, создавая комфортный микроклимат в любое время года. Армированный 5-камерный профиль окон с режимом микропроветривания системы REHAU эффективно удержит тепло и предотвратит потерю энергии. Премиальные и технологичные лифты KOYO обеспечат быструю и бесперебойную работу, что значительно повысит удобство в перемещения внутри комплекса, минимизируя ожидание жителей. Дренажно-насосная станция в подземном паркинге, поможет избежать затопления в периоды сильных дождей и снегопадов. Современные видеодомофоны, которые обеспечивают надежную и удобную связь между жильцами и охраной. Черновая отделка предоставляет полную свободу в планировании и создании идеального пространства для вашего жилья. Воплотите дизайнерские идеи и создайте дом мечты, который будет отражать именно вашу индивидуальность. Готовы показать квартиру в удобное для вас время. Звоните, чтобы задать вопросы и договориться о просмотре! ID объекта в нашей базе: 1001
    размещено: 06.02.2026 , обновлено: 10.02.2026

    2-к квартира, Викулова, 24

    • 72.2 м2
    • 8/25 этаж
    • Состояние:
    12 300 000 ₽ (170400 ₽/м2)
    Жилой комплекс «ТАКТИКА» расположен в границах улиц Татищева, Викулова и Венгерских Коммунаров, адрес Викулова, 24, вблизи Акватории пруда Верх-Исетского района. Дом повышенного комфорта предлагает: современный и безопасный двор, ландшафтный дизайн, пространство для отдыха на крыше и фитнес клуб с бассейном. Максимальное удобство и доступность городской инфраструктуры, остановки общественного транспорта, трамвайная линия. Благодаря удобному расположению остановок, вы сможете сэкономить время на поездках и легче планировать свои маршруты. Благоустройство.Закрытый двор комплекса, создает место безопасности и удобства, созданное для семейного отдыха и детских игр. Среди элементов — веревка альпиниста, балансировочные столбики, змейка и подвесной гамак. Есть детские карусели и деревянные качели на любой вкус: классические и качели-гамаки. Двор полностью свободен от машин, что гарантирует безопасность и спокойствие для всех его обителей. Для взрослых во дворе воркаут-зона с кардио-тренажёрами, силовой и атлетический комплекс. А также настольный теннис и пространство для йоги на открытом воздухе. В комплеске размещен фитнес-центр с бассейном. В 5 минутах от жилищного комплекса 4 школы, ещё 3 — в 10 минутах, в том числе школа №1, построенная в 2019 году по последнему слову техники. Рядом 7 садиков, среди них два премиальных детских сада «Согласие», 15 учреждений дополнительного образования, например, школа программирования «Алгоритмика» и Международная школа скорочтения. В 10 минутах ходьбы — детская поликлиника №11, «Новая больница» и «Детский доктор». В 15 минутах езды горбольницы №41, №40 и центральная городская больница №2, в радиусе 1 км медицинские центры «Бонум», «Шанс», «Панацея», «Хеликс» и «Парацельс». Особенная архитектура. Холл жилого комплекса выполнен в элегантных и минималистичных тонах, где гармонично сочетаются керамогранит и декоративная штукатурка. Системы видеонаблюдения охватывают общие зоны, включая входные группы, подъезды и дворовую территории, что позволяет контролировать происходящее в реальном времени. Служба мониторинга активно следит за ситуацией и моментально реагирует на любые происшествия, что обеспечивает дополнительный уровень защиты и спокойствия для всех жильцов. В доме предусмотрен подземный одноуровневый паркинг. Отделка.Улучшенная шумоизоляция сохранит в вашей квартире тишину и спокойствие от внешних звуков и соседних помещений. Автоматическая телеметрия позволит забыть о хлопотах по сбору показаний счетчиков для коммунальных платежей. Система отопления с повышенной теплоотдачей обеспечит быстрое и равномерное прогревание помещения, создавая комфортный микроклимат в любое время года. Армированный 5-камерный профиль окон с режимом микропроветривания системы REHAU эффективно удержит тепло и предотвратит потерю энергии. Премиальные и технологичные лифты KOYO обеспечат быструю и бесперебойную работу, что значительно повысит удобство в перемещения внутри комплекса, минимизируя ожидание жителей. Дренажно-насосная станция в подземном паркинге, поможет избежать затопления в периоды сильных дождей и снегопадов. Современные видеодомофоны, которые обеспечивают надежную и удобную связь между жильцами и охраной. Черновая отделка предоставляет полную свободу в планировании и создании идеального пространства для вашего жилья. Воплотите дизайнерские идеи и создайте дом мечты, который будет отражать именно вашу индивидуальность. Готовы показать квартиру в удобное для вас время. Звоните, чтобы задать вопросы и договориться о просмотре! ID объекта в нашей базе: 996
    размещено: 05.02.2026 , обновлено: 26.02.2026

    3-к квартира, Викулова, 24

    • 91.8 м2
    • 15/25 этаж
    • Состояние:
    18 600 000 ₽ (202600 ₽/м2)
    3-комнатная квартира в ЖК «Тактика», Дом сдан, ключи получены! Продаётся современная 3-комнатная квартира в новом, уже сданном доме жилого комплекса «Тактика»! Ключи на руках — можно заезжать и жить. Отличная планировка.. Отличная локация рядом с центром и развитой инфраструктурой. Идеальный вариант для первой собственной квартиры, инвестиции или комфортной жизни. Жилой комплекс «ТАКТИКА» расположен в границах улиц Татищева, Викулова и Венгерских Коммунаров, адрес Викулова, 24, вблизи Акватории пруда Верх-Исетского района. Дом повышенного комфорта предлагает: современный и безопасный двор, ландшафтный дизайн, пространство для отдыха на крыше и фитнес клуб с бассейном. Максимальное удобство и доступность городской инфраструктуры, остановки общественного транспорта, трамвайная линия. Благодаря удобному расположению остановок, вы сможете сэкономить время на поездках и легче планировать свои маршруты. Благоустройство.Закрытый двор комплекса, создает место безопасности и удобства, созданное для семейного отдыха и детских игр. Среди элементов — веревка альпиниста, балансировочные столбики, змейка и подвесной гамак. Есть детские карусели и деревянные качели на любой вкус: классические и качели-гамаки. Двор полностью свободен от машин, что гарантирует безопасность и спокойствие для всех его обителей. Для взрослых во дворе воркаут-зона с кардио-тренажёрами, силовой и атлетический комплекс. А также настольный теннис и пространство для йоги на открытом воздухе. В комплеске размещен фитнес-центр с бассейном. В 5 минутах от жилищного комплекса 4 школы, ещё 3 — в 10 минутах, в том числе школа №1, построенная в 2019 году по последнему слову техники. Рядом 7 садиков, среди них два премиальных детских сада «Согласие», 15 учреждений дополнительного образования, например, школа программирования «Алгоритмика» и Международная школа скорочтения. В 10 минутах ходьбы — детская поликлиника №11, «Новая больница» и «Детский доктор». В 15 минутах езды горбольницы №41, №40 и центральная городская больница №2, в радиусе 1 км медицинские центры «Бонум», «Шанс», «Панацея», «Хеликс» и «Парацельс». Особенная архитектура. Холл жилого комплекса выполнен в элегантных и минималистичных тонах, где гармонично сочетаются керамогранит и декоративная штукатурка. Системы видеонаблюдения охватывают общие зоны, включая входные группы, подъезды и дворовую территории, что позволяет контролировать происходящее в реальном времени. Служба мониторинга активно следит за ситуацией и моментально реагирует на любые происшествия, что обеспечивает дополнительный уровень защиты и спокойствия для всех жильцов. В доме предусмотрен подземный одноуровневый паркинг. Отделка.Улучшенная шумоизоляция сохранит в вашей квартире тишину и спокойствие от внешних звуков и соседних помещений. Автоматическая телеметрия позволит забыть о хлопотах по сбору показаний счетчиков для коммунальных платежей. Система отопления с повышенной теплоотдачей обеспечит быстрое и равномерное прогревание помещения, создавая комфортный микроклимат в любое время года. Армированный 5-камерный профиль окон с режимом микропроветривания системы REHAU эффективно удержит тепло и предотвратит потерю энергии. Премиальные и технологичные лифты KOYO обеспечат быструю и бесперебойную работу, что значительно повысит удобство в перемещения внутри комплекса, минимизируя ожидание жителей. Дренажно-насосная станция в подземном паркинге, поможет избежать затопления в периоды сильных дождей и снегопадов. Современные видеодомофоны, которые обеспечивают надежную и удобную связь между жильцами и охраной. Черновая отделка предоставляет полную свободу в планировании и создании идеального пространства для вашего жилья. Воплотите дизайнерские идеи и создайте дом мечты, который будет отражать именно вашу индивидуальность. Готовы показать квартиру в удобное для вас время. Звоните, чтобы задать вопросы и договориться о просмотре! ID объекта в нашей базе: 995
    размещено: 05.02.2026 , обновлено: 19.02.2026

    2-к квартира, Викулова, 24

    • 72.7 м2
    • 7/26 этаж
    • Состояние:
    13 600 000 ₽ (187100 ₽/м2)
    Жилой комплекс «ТАКТИКА» - Это Дом повышенного комфорта: современный и безопасный двор, ландшафтный дизайн, пространство для отдыха на крыше и фитнес клуб с бассейном, вблизи Акватории пруда Верх-Исетского района. Максимальное удобство и доступность городской инфраструктуры, и удобное расположение остановок общественного транспорта Благоустройство. Закрытый двор комплекса, для семейного отдыха и детских игр. Есть детские карусели и деревянные качели на любой вкус: классические и качели-гамаки, веревка альпиниста, балансировочные столбики, змейка и подвесной гамак. Для взрослых так же есть все для активного и пассивного отдыха. В комплексе размещен фитнес-центр с бассейном. В 5 минутах от ЖК 4 школы, а так же новая современная школа №1. Рядом 7 детских садов, среди них два премиальных детских сада «Согласие». 15 учреждений дополнительного образования. В 10 минутах ходьбы — детская поликлиника № 11, «Новая больница» и «Детский доктор». В 15 минутах езды горбольницы № 41, № 40 и центральная городская больница №2, в радиусе 1 км медицинские центры «Бонум», «Шанс», «Панацея», «Хеликс» и «Парацельс». Особенная архитектура. Холл жилого комплекса выполнен в элегантных и минималистичных тонах. Служба мониторинга. В доме предусмотрен подземный одноуровневый паркинг. Отделка. Улучшенная шумоизоляция. Автоматическая телеметрия. Система отопления с повышенной теплоотдачей. Армированный 5-камерный профиль окон с режимом микропроветривания системы REHAU. Премиальные и технологичные лифты KOYO. Дренажно-насосная станция в подземном паркинге. Современные видеодомофоны. Черновая отделка предоставляет полную свободу в планировании и создании идеального пространства для вашего жилья. Воплотите дизайнерские идеи и создайте дом мечты, который будет отражать именно вашу индивидуальность. Готовы показать квартиру в удобное для вас время. Звоните, чтобы задать вопросы и договориться о просмотре! ID объекта в нашей базе: 991
    размещено: 03.02.2026 , обновлено: 20.02.2026

    1-к квартира, Викулова, 24

    • 23.4 м2
    • 4/18 этаж
    • Состояние:
    5 300 000 ₽ (226500 ₽/м2)
    Жилой комплекс «ТАКТИКА» - Это Дом повышенного комфорта: современный и безопасный двор, ландшафтный дизайн, пространство для отдыха на крыше и фитнес клуб с бассейном, вблизи Акватории пруда Верх-Исетского района. Максимальное удобство и доступность городской инфраструктуры, и удобное расположение остановок общественного транспорта Благоустройство. Закрытый двор комплекса, для семейного отдыха и детских игр. Есть детские карусели и деревянные качели на любой вкус: классические и качели-гамаки, веревка альпиниста, балансировочные столбики, змейка и подвесной гамак. Для взрослых так же есть все для активного и пассивного отдыха. В комплексе размещен фитнес-центр с бассейном. В 5 минутах от ЖК 4 школы, а так же новая современная школа №1. Рядом 7 детских садов, среди них два премиальных детских сада «Согласие». 15 учреждений дополнительного образования. В 10 минутах ходьбы — детская поликлиника № 11, «Новая больница» и «Детский доктор». В 15 минутах езды горбольницы № 41, № 40 и центральная городская больница №2, в радиусе 1 км медицинские центры «Бонум», «Шанс», «Панацея», «Хеликс» и «Парацельс». Особенная архитектура. Холл жилого комплекса выполнен в элегантных и минималистичных тонах. Служба мониторинга. В доме предусмотрен подземный одноуровневый паркинг. Отделка. Улучшенная шумоизоляция. Автоматическая телеметрия. Система отопления с повышенной теплоотдачей. Армированный 5-камерный профиль окон с режимом микропроветривания системы REHAU. Премиальные и технологичные лифты KOYO. Дренажно-насосная станция в подземном паркинге. Современные видеодомофоны. Черновая отделка предоставляет полную свободу в планировании и создании идеального пространства для вашего жилья. Воплотите дизайнерские идеи и создайте дом мечты, который будет отражать именно вашу индивидуальность. Готовы показать квартиру в удобное для вас время. Звоните, чтобы задать вопросы и договориться о просмотре! ID объекта в нашей базе: 990
    размещено: 03.02.2026 , обновлено: 20.02.2026

    1-к квартира, Викулова, 24

    • 45 м2
    • 25/26 этаж
    • Состояние:
    9 700 000 ₽ (215600 ₽/м2)
    Офигенная квартира с видом на миллион!Жилой комплекс «ТАКТИКА» - Это Дом повышенного комфорта: современный и безопасный двор, ландшафтный дизайн, пространство для отдыха на крыше и фитнес клуб с бассейном, вблизи Акватории пруда Верх-Исетского района. Максимальное удобство и доступность городской инфраструктуры, и удобное расположение остановок общественного транспорта Благоустройство. Закрытый двор комплекса, для семейного отдыха и детских игр. Есть детские карусели и деревянные качели на любой вкус: классические и качели-гамаки, веревка альпиниста, балансировочные столбики, змейка и подвесной гамак. Для взрослых так же есть все для активного и пассивного отдыха. В комплексе размещен фитнес-центр с бассейном. В 5 минутах от ЖК 4 школы, а так же новая современная школа №1. Рядом 7 детских садов, среди них два премиальных детских сада «Согласие». 15 учреждений дополнительного образования. В 10 минутах ходьбы — детская поликлиника № 11, «Новая больница» и «Детский доктор». В 15 минутах езды горбольницы № 41, № 40 и центральная городская больница №2, в радиусе 1 км медицинские центры «Бонум», «Шанс», «Панацея», «Хеликс» и «Парацельс». Особенная архитектура. Холл жилого комплекса выполнен в элегантных и минималистичных тонах. Служба мониторинга. В доме предусмотрен подземный одноуровневый паркинг. Отделка. Улучшенная шумоизоляция. Автоматическая телеметрия. Система отопления с повышенной теплоотдачей. Армированный 5-камерный профиль окон с режимом микропроветривания системы REHAU. Премиальные и технологичные лифты KOYO. Дренажно-насосная станция в подземном паркинге. Современные видеодомофоны. Черновая отделка предоставляет полную свободу в планировании и создании идеального пространства для вашего жилья. Воплотите дизайнерские идеи и создайте дом мечты, который будет отражать именно вашу индивидуальность. Готовы показать квартиру в удобное для вас время. Звоните, чтобы задать вопросы и договориться о просмотре! ID объекта в нашей базе: 989
    размещено: 03.02.2026 , обновлено: 2.03.2026

    1-к квартира, Викулова, 24

    • 39 м2
    • 18/26 этаж
    • Состояние:
    8 100 000 ₽ (207700 ₽/м2)
    Жилой комплекс «ТАКТИКА» - Это Дом повышенного комфорта: современный и безопасный двор, ландшафтный дизайн, пространство для отдыха на крыше и фитнес клуб с бассейном, вблизи Акватории пруда Верх-Исетского района. Максимальное удобство и доступность городской инфраструктуры, и удобное расположение остановок общественного транспорта Благоустройство. Закрытый двор комплекса, для семейного отдыха и детских игр. Есть детские карусели и деревянные качели на любой вкус: классические и качели-гамаки, веревка альпиниста, балансировочные столбики, змейка и подвесной гамак. Для взрослых так же есть все для активного и пассивного отдыха. В комплексе размещен фитнес-центр с бассейном. В 5 минутах от ЖК 4 школы, а так же новая современная школа №1. Рядом 7 детских садов, среди них два премиальных детских сада «Согласие». 15 учреждений дополнительного образования. В 10 минутах ходьбы — детская поликлиника № 11, «Новая больница» и «Детский доктор». В 15 минутах езды горбольницы № 41, № 40 и центральная городская больница №2, в радиусе 1 км медицинские центры «Бонум», «Шанс», «Панацея», «Хеликс» и «Парацельс». Особенная архитектура. Холл жилого комплекса выполнен в элегантных и минималистичных тонах. Служба мониторинга. В доме предусмотрен подземный одноуровневый паркинг. Отделка. Улучшенная шумоизоляция. Автоматическая телеметрия. Система отопления с повышенной теплоотдачей. Армированный 5-камерный профиль окон с режимом микропроветривания системы REHAU. Премиальные и технологичные лифты KOYO. Дренажно-насосная станция в подземном паркинге. Современные видеодомофоны. Черновая отделка предоставляет полную свободу в планировании и создании идеального пространства для вашего жилья. Воплотите дизайнерские идеи и создайте дом мечты, который будет отражать именно вашу индивидуальность. Готовы показать квартиру в удобное для вас время. Звоните, чтобы задать вопросы и договориться о просмотре! ID объекта в нашей базе: 988
    размещено: 03.02.2026 , обновлено: 20.02.2026

    1-к квартира, Викулова, 24

    • 39.1 м2
    • 12/25 этаж
    • Состояние:
    8 400 000 ₽ (214800 ₽/м2)
    1-комнатная квартира в ЖК «Тактика», Дом сдан, ключи получены! Продаётся современная 1-комнатная квартира в новом, уже сданном доме жилого комплекса «Тактика»! Ключи на руках — можно заезжать и жить. Отличная планировка. Отличная локация рядом с центром и развитой инфраструктурой. Идеальный вариант для первой собственной квартиры, инвестиции или комфортной жизни. О КОМПЛЕКСЕ: ЖК «Тактика» — это современный комплекс комфорт-класса от надежного застройщика. Дом уже построен и сдан в эксплуатацию, что означает: - Никаких рисков долгостроя. Не нужно ждать годы. - Можно сразу начинать делать ремонт и заселяться. О КВАРТИРЕ: Площадь: общая 39,1 кв.м. Этаж: 12/25. Планировка: Удачная, функциональная планировка с изолированной комнатой. Есть все необходимые зоны: прихожая , совмещенный санузел, кухня 12,2 кв.м., жилая комната 16,4 кв.м.. Состояние: Квартира новая, никто не проживал. Отличная возможность стать первым хозяином. ЛОКАЦИЯ И ИНФРАСТРУКТУРА: Район отличается развитой инфраструктурой и транспортной доступностью: Рядом с центром: Быстрый выезд в центр Екатеринбурга. Комплекс расположен в границах улиц Татищева – Викулова – Венгерских Коммунаров, возле Акватории Верх-Исетского пруда. Транспорт: Остановки общественного транспорта в шаговой доступности, удобный выезд на основные магистрали. Магазины и услуги: В пешей доступности супермаркеты («Пятерочка», «Магнит» и др.), аптеки, салоны красоты, отделения банков. Образование и здоровье: Детские сады, школы и поликлиники в районе в шаговой доступности. Перспективный район — инфраструктура продолжает развиваться, что положительно влияет на стоимость недвижимости. Идеально для: Молодой семьи или одного человека, желающего иметь собственное жилье. Инвестора для последующей сдачи в аренду (востребованный район). Покупки для детей/родственников. Готовы показать квартиру в удобное для вас время. Звоните, чтобы задать вопросы и договориться о просмотре! ID объекта в нашей базе: 983
    размещено: 02.02.2026 , обновлено: 21.02.2026

    2-к квартира, Викулова, 24

    • 70.6 м2
    • 13/25 этаж
    • Состояние:
    13 300 000 ₽ (188400 ₽/м2)
    Жилой комплекс «ТАКТИКА» расположен в границах улиц Татищева, Викулова и Венгерских Коммунаров, адрес Викулова, 24, вблизи Акватории пруда Верх-Исетского района. Дом повышенного комфорта предлагает: современный и безопасный двор, ландшафтный дизайн, пространство для отдыха на крыше и фитнес клуб с бассейном. Максимальное удобство и доступность городской инфраструктуры, остановки общественного транспорта, трамвайная линия. Благодаря удобному расположению остановок, вы сможете сэкономить время на поездках и легче планировать свои маршруты. Благоустройство. Закрытый двор комплекса, создает место безопасности и удобства, созданное для семейного отдыха и детских игр. Среди элементов — веревка альпиниста, балансировочные столбики, змейка и подвесной гамак. Есть детские карусели и деревянные качели на любой вкус: классические и качели-гамаки. Двор полностью свободен от машин, что гарантирует безопасность и спокойствие для всех его обителей. Для взрослых во дворе воркаут-зона с кардио-тренажёрами, силовой и атлетический комплекс. А также настольный теннис и пространство для йоги на открытом воздухе. В комплеске размещен фитнес-центр с бассейном. В 5 минутах от жилищного комплекса 4 школы, ещё 3 — в 10 минутах, в том числе школа №1, построенная в 2019 году по последнему слову техники. Рядом 7 садиков, среди них два премиальных детских сада «Согласие», 15 учреждений дополнительного образования, например, школа программирования «Алгоритмика» и Международная школа скорочтения. В 10 минутах ходьбы — детская поликлиника №11, «Новая больница» и «Детский доктор». В 15 минутах езды горбольницы №41, №40 и центральная городская больница №2, в радиусе 1 км медицинские центры «Бонум», «Шанс», «Панацея», «Хеликс» и «Парацельс». Особенная архитектура. Холл жилого комплекса выполнен в элегантных и минималистичных тонах, где гармонично сочетаются керамогранит и декоративная штукатурка. Системы видеонаблюдения охватывают общие зоны, включая входные группы, подъезды и дворовую территории, что позволяет контролировать происходящее в реальном времени. Служба мониторинга активно следит за ситуацией и моментально реагирует на любые происшествия, что обеспечивает дополнительный уровень защиты и спокойствия для всех жильцов. В доме предусмотрен подземный одноуровневый паркинг. Отделка. Улучшенная шумоизоляция сохранит в вашей квартире тишину и спокойствие от внешних звуков и соседних помещений. Автоматическая телеметрия позволит забыть о хлопотах по сбору показаний счетчиков для коммунальных платежей. Система отопления с повышенной теплоотдачей обеспечит быстрое и равномерное прогревание помещения, создавая комфортный микроклимат в любое время года. Армированный 5-камерный профиль окон с режимом микропроветривания системы REHAU эффективно удержит тепло и предотвратит потерю энергии. Премиальные и технологичные лифты KOYO обеспечат быструю и бесперебойную работу, что значительно повысит удобство в перемещения внутри комплекса, минимизируя ожидание жителей. Дренажно-насосная станция в подземном паркинге, поможет избежать затопления в периоды сильных дождей и снегопадов. Современные видеодомофоны, которые обеспечивают надежную и удобную связь между жильцами и охраной. Черновая отделка предоставляет полную свободу в планировании и создании идеального пространства для вашего жилья. Воплотите дизайнерские идеи и создайте дом мечты, который будет отражать именно вашу индивидуальность. Готовы показать квартиру в удобное для вас время. Звоните, чтобы задать вопросы и договориться о просмотре! ID объекта в нашей базе: 981
    размещено: 02.02.2026 , обновлено: 24.02.2026

    1-к квартира, Викулова, 24

    • 48 м2
    • 13/18 этаж
    • Состояние:
    9 900 000 ₽ (206300 ₽/м2)
    Жилой комплекс «ТАКТИКА» расположен в границах улиц Татищева, Викулова и Венгерских Коммунаров, адрес Викулова, 24, вблизи Акватории пруда Верх-Исетского района. Дом повышенного комфорта предлагает: современный и безопасный двор, ландшафтный дизайн, пространство для отдыха на крыше и фитнес клуб с бассейном. Максимальное удобство и доступность городской инфраструктуры, остановки общественного транспорта, трамвайная линия. Благодаря удобному расположению остановок, вы сможете сэкономить время на поездках и легче планировать свои маршруты. Благоустройство. Закрытый двор комплекса, создает место безопасности и удобства, созданное для семейного отдыха и детских игр. Среди элементов — веревка альпиниста, балансировочные столбики, змейка и подвесной гамак. Есть детские карусели и деревянные качели на любой вкус: классические и качели-гамаки. Двор полностью свободен от машин, что гарантирует безопасность и спокойствие для всех его обителей. Для взрослых во дворе воркаут-зона с кардио-тренажёрами, силовой и атлетический комплекс. А также настольный теннис и пространство для йоги на открытом воздухе. В комплеске размещен фитнес-центр с бассейном. В 5 минутах от жилищного комплекса 4 школы, ещё 3 — в 10 минутах, в том числе школа №1, построенная в 2019 году по последнему слову техники. Рядом 7 садиков, среди них два премиальных детских сада «Согласие», 15 учреждений дополнительного образования, например, школа программирования «Алгоритмика» и Международная школа скорочтения. В 10 минутах ходьбы — детская поликлиника №11, «Новая больница» и «Детский доктор». В 15 минутах езды горбольницы №41, №40 и центральная городская больница №2, в радиусе 1 км медицинские центры «Бонум», «Шанс», «Панацея», «Хеликс» и «Парацельс». Особенная архитектура. Холл жилого комплекса выполнен в элегантных и минималистичных тонах, где гармонично сочетаются керамогранит и декоративная штукатурка. Системы видеонаблюдения охватывают общие зоны, включая входные группы, подъезды и дворовую территории, что позволяет контролировать происходящее в реальном времени. Служба мониторинга активно следит за ситуацией и моментально реагирует на любые происшествия, что обеспечивает дополнительный уровень защиты и спокойствия для всех жильцов. В доме предусмотрен подземный одноуровневый паркинг. Отделка. Улучшенная шумоизоляция сохранит в вашей квартире тишину и спокойствие от внешних звуков и соседних помещений. Автоматическая телеметрия позволит забыть о хлопотах по сбору показаний счетчиков для коммунальных платежей. Система отопления с повышенной теплоотдачей обеспечит быстрое и равномерное прогревание помещения, создавая комфортный микроклимат в любое время года. Армированный 5-камерный профиль окон с режимом микропроветривания системы REHAU эффективно удержит тепло и предотвратит потерю энергии. Премиальные и технологичные лифты KOYO обеспечат быструю и бесперебойную работу, что значительно повысит удобство в перемещения внутри комплекса, минимизируя ожидание жителей. Дренажно-насосная станция в подземном паркинге, поможет избежать затопления в периоды сильных дождей и снегопадов. Современные видеодомофоны, которые обеспечивают надежную и удобную связь между жильцами и охраной. Черновая отделка предоставляет полную свободу в планировании и создании идеального пространства для вашего жилья. Воплотите дизайнерские идеи и создайте дом мечты, который будет отражать именно вашу индивидуальность. Готовы показать квартиру в удобное для вас время. Звоните, чтобы задать вопросы и договориться о просмотре! ID объекта в нашей базе: 978
    размещено: 02.02.2026 , обновлено: 20.02.2026

    2-к квартира, Викулова, 24

    • 71 м2
    • 17/18 этаж
    • Состояние:
    13 500 000 ₽ (190100 ₽/м2)
    Жилой комплекс «ТАКТИКА» расположен в границах улиц Татищева, Викулова и Венгерских Коммунаров, адрес Викулова, 24, вблизи Акватории пруда Верх-Исетского района. Дом повышенного комфорта предлагает: современный и безопасный двор, ландшафтный дизайн, пространство для отдыха на крыше и фитнес клуб с бассейном. Максимальное удобство и доступность городской инфраструктуры, остановки общественного транспорта, трамвайная линия. Благодаря удобному расположению остановок, вы сможете сэкономить время на поездках и легче планировать свои маршруты. Благоустройство. Закрытый двор комплекса, создает место безопасности и удобства, созданное для семейного отдыха и детских игр. Среди элементов — веревка альпиниста, балансировочные столбики, змейка и подвесной гамак. Есть детские карусели и деревянные качели на любой вкус: классические и качели-гамаки. Двор полностью свободен от машин, что гарантирует безопасность и спокойствие для всех его обителей. Для взрослых во дворе воркаут-зона с кардио-тренажёрами, силовой и атлетический комплекс. А также настольный теннис и пространство для йоги на открытом воздухе. В комплеске размещен фитнес-центр с бассейном. В 5 минутах от жилищного комплекса 4 школы, ещё 3 — в 10 минутах, в том числе школа №1, построенная в 2019 году по последнему слову техники. Рядом 7 садиков, среди них два премиальных детских сада «Согласие», 15 учреждений дополнительного образования, например, школа программирования «Алгоритмика» и Международная школа скорочтения. В 10 минутах ходьбы — детская поликлиника №11, «Новая больница» и «Детский доктор». В 15 минутах езды горбольницы №41, №40 и центральная городская больница №2, в радиусе 1 км медицинские центры «Бонум», «Шанс», «Панацея», «Хеликс» и «Парацельс». Особенная архитектура. Холл жилого комплекса выполнен в элегантных и минималистичных тонах, где гармонично сочетаются керамогранит и декоративная штукатурка. Системы видеонаблюдения охватывают общие зоны, включая входные группы, подъезды и дворовую территории, что позволяет контролировать происходящее в реальном времени. Служба мониторинга активно следит за ситуацией и моментально реагирует на любые происшествия, что обеспечивает дополнительный уровень защиты и спокойствия для всех жильцов. В доме предусмотрен подземный одноуровневый паркинг. Отделка. Улучшенная шумоизоляция сохранит в вашей квартире тишину и спокойствие от внешних звуков и соседних помещений. Автоматическая телеметрия позволит забыть о хлопотах по сбору показаний счетчиков для коммунальных платежей. Система отопления с повышенной теплоотдачей обеспечит быстрое и равномерное прогревание помещения, создавая комфортный микроклимат в любое время года. Армированный 5-камерный профиль окон с режимом микропроветривания системы REHAU эффективно удержит тепло и предотвратит потерю энергии. Премиальные и технологичные лифты KOYO обеспечат быструю и бесперебойную работу, что значительно повысит удобство в перемещения внутри комплекса, минимизируя ожидание жителей. Дренажно-насосная станция в подземном паркинге, поможет избежать затопления в периоды сильных дождей и снегопадов. Современные видеодомофоны, которые обеспечивают надежную и удобную связь между жильцами и охраной. Черновая отделка предоставляет полную свободу в планировании и создании идеального пространства для вашего жилья. Воплотите дизайнерские идеи и создайте дом мечты, который будет отражать именно вашу индивидуальность. Готовы показать квартиру в удобное для вас время. Звоните, чтобы задать вопросы и договориться о просмотре! ID объекта в нашей базе: 977
    размещено: 02.02.2026 , обновлено: 18.02.2026

    1-к квартира, Викулова, 24

    • 45 м2
    • 10/26 этаж
    • Состояние:
    9 400 000 ₽ (208900 ₽/м2)
    Жилой комплекс «ТАКТИКА» расположен в границах улиц Татищева, Викулова и Венгерских Коммунаров, адрес Викулова, 24, вблизи Акватории пруда Верх-Исетского района. Дом повышенного комфорта предлагает: современный и безопасный двор, ландшафтный дизайн, пространство для отдыха на крыше и фитнес клуб с бассейном. Максимальное удобство и доступность городской инфраструктуры, остановки общественного транспорта, трамвайная линия. Благодаря удобному расположению остановок, вы сможете сэкономить время на поездках и легче планировать свои маршруты. Благоустройство. Закрытый двор комплекса, создает место безопасности и удобства, созданное для семейного отдыха и детских игр. Среди элементов — веревка альпиниста, балансировочные столбики, змейка и подвесной гамак. Есть детские карусели и деревянные качели на любой вкус: классические и качели-гамаки. Двор полностью свободен от машин, что гарантирует безопасность и спокойствие для всех его обителей. Для взрослых во дворе воркаут-зона с кардио-тренажёрами, силовой и атлетический комплекс. А также настольный теннис и пространство для йоги на открытом воздухе. В комплеске размещен фитнес-центр с бассейном. В 5 минутах от жилищного комплекса 4 школы, ещё 3 — в 10 минутах, в том числе школа №1, построенная в 2019 году по последнему слову техники. Рядом 7 садиков, среди них два премиальных детских сада «Согласие», 15 учреждений дополнительного образования, например, школа программирования «Алгоритмика» и Международная школа скорочтения. В 10 минутах ходьбы — детская поликлиника №11, «Новая больница» и «Детский доктор». В 15 минутах езды горбольницы №41, №40 и центральная городская больница №2, в радиусе 1 км медицинские центры «Бонум», «Шанс», «Панацея», «Хеликс» и «Парацельс». Особенная архитектура. Холл жилого комплекса выполнен в элегантных и минималистичных тонах, где гармонично сочетаются керамогранит и декоративная штукатурка. Системы видеонаблюдения охватывают общие зоны, включая входные группы, подъезды и дворовую территории, что позволяет контролировать происходящее в реальном времени. Служба мониторинга активно следит за ситуацией и моментально реагирует на любые происшествия, что обеспечивает дополнительный уровень защиты и спокойствия для всех жильцов. В доме предусмотрен подземный одноуровневый паркинг. Отделка. Улучшенная шумоизоляция сохранит в вашей квартире тишину и спокойствие от внешних звуков и соседних помещений. Автоматическая телеметрия позволит забыть о хлопотах по сбору показаний счетчиков для коммунальных платежей. Система отопления с повышенной теплоотдачей обеспечит быстрое и равномерное прогревание помещения, создавая комфортный микроклимат в любое время года. Армированный 5-камерный профиль окон с режимом микропроветривания системы REHAU эффективно удержит тепло и предотвратит потерю энергии. Премиальные и технологичные лифты KOYO обеспечат быструю и бесперебойную работу, что значительно повысит удобство в перемещения внутри комплекса, минимизируя ожидание жителей. Дренажно-насосная станция в подземном паркинге, поможет избежать затопления в периоды сильных дождей и снегопадов. Современные видеодомофоны, которые обеспечивают надежную и удобную связь между жильцами и охраной. Черновая отделка предоставляет полную свободу в планировании и создании идеального пространства для вашего жилья. Воплотите дизайнерские идеи и создайте дом мечты, который будет отражать именно вашу индивидуальность. Готовы показать квартиру в удобное для вас время. Звоните, чтобы задать вопросы и договориться о просмотре! ID объекта в нашей базе: 976
    размещено: 02.02.2026 , обновлено: 21.02.2026

    1-к квартира, Викулова, 24

    • 26 м2
    • 5/26 этаж
    • Состояние:
    5 600 000 ₽ (215400 ₽/м2)
    Жилой комплекс «ТАКТИКА» расположен в границах улиц Татищева, Викулова и Венгерских Коммунаров, адрес Викулова, 24, вблизи Акватории пруда Верх-Исетского района. Дом повышенного комфорта предлагает: современный и безопасный двор, ландшафтный дизайн, пространство для отдыха на крыше и фитнес клуб с бассейном. Максимальное удобство и доступность городской инфраструктуры, остановки общественного транспорта, трамвайная линия. Благодаря удобному расположению остановок, вы сможете сэкономить время на поездках и легче планировать свои маршруты. Благоустройство. Закрытый двор комплекса, создает место безопасности и удобства, созданное для семейного отдыха и детских игр. Среди элементов — веревка альпиниста, балансировочные столбики, змейка и подвесной гамак. Есть детские карусели и деревянные качели на любой вкус: классические и качели-гамаки. Двор полностью свободен от машин, что гарантирует безопасность и спокойствие для всех его обителей. Для взрослых во дворе воркаут-зона с кардио-тренажёрами, силовой и атлетический комплекс. А также настольный теннис и пространство для йоги на открытом воздухе. В комплеске размещен фитнес-центр с бассейном. В 5 минутах от жилищного комплекса 4 школы, ещё 3 — в 10 минутах, в том числе школа №1, построенная в 2019 году по последнему слову техники. Рядом 7 садиков, среди них два премиальных детских сада «Согласие», 15 учреждений дополнительного образования, например, школа программирования «Алгоритмика» и Международная школа скорочтения. В 10 минутах ходьбы — детская поликлиника №11, «Новая больница» и «Детский доктор». В 15 минутах езды горбольницы №41, №40 и центральная городская больница №2, в радиусе 1 км медицинские центры «Бонум», «Шанс», «Панацея», «Хеликс» и «Парацельс». Особенная архитектура. Холл жилого комплекса выполнен в элегантных и минималистичных тонах, где гармонично сочетаются керамогранит и декоративная штукатурка. Системы видеонаблюдения охватывают общие зоны, включая входные группы, подъезды и дворовую территории, что позволяет контролировать происходящее в реальном времени. Служба мониторинга активно следит за ситуацией и моментально реагирует на любые происшествия, что обеспечивает дополнительный уровень защиты и спокойствия для всех жильцов. В доме предусмотрен подземный одноуровневый паркинг. Отделка. Улучшенная шумоизоляция сохранит в вашей квартире тишину и спокойствие от внешних звуков и соседних помещений. Автоматическая телеметрия позволит забыть о хлопотах по сбору показаний счетчиков для коммунальных платежей. Система отопления с повышенной теплоотдачей обеспечит быстрое и равномерное прогревание помещения, создавая комфортный микроклимат в любое время года. Армированный 5-камерный профиль окон с режимом микропроветривания системы REHAU эффективно удержит тепло и предотвратит потерю энергии. Премиальные и технологичные лифты KOYO обеспечат быструю и бесперебойную работу, что значительно повысит удобство в перемещения внутри комплекса, минимизируя ожидание жителей. Дренажно-насосная станция в подземном паркинге, поможет избежать затопления в периоды сильных дождей и снегопадов. Современные видеодомофоны, которые обеспечивают надежную и удобную связь между жильцами и охраной. Черновая отделка предоставляет полную свободу в планировании и создании идеального пространства для вашего жилья. Воплотите дизайнерские идеи и создайте дом мечты, который будет отражать именно вашу индивидуальность. Готовы показать квартиру в удобное для вас время. Звоните, чтобы задать вопросы и договориться о просмотре! ID объекта в нашей базе: 975
    размещено: 02.02.2026 , обновлено: 21.02.2026

История предложений в этом доме

объявление снято с публикации в продаже комнат площадь этаж цена,
Екатеринбург, ул. Викулова, 24 (ВИЗ) - фото квартиры 20 февраля 2026 90 дн. 2 68.7 17/18 12 800 000
Екатеринбург, ул. Викулова, 24 (ВИЗ) - фото квартиры 25 февраля 2026 90 дн. 1 44 22/25 9 400 000
Екатеринбург, ул. Викулова, 24 (ВИЗ) - фото квартиры 20 февраля 2026 90 дн. 2 69 16/18 12 800 000
Екатеринбург, ул. Викулова, 24 (ВИЗ) - фото квартиры 7 февраля 2026 90 дн. 1 49.2 4/25 7 000 000
Екатеринбург, ул. Викулова, 24 (ВИЗ) - фото квартиры 20 февраля 2026 90 дн. 1 43.4 4/18 9 200 000
Екатеринбург, ул. Викулова, 24 (ВИЗ) - фото квартиры 20 февраля 2026 90 дн. 1 39.3 7/26 8 400 000
Екатеринбург, ул. Викулова, 24 (ВИЗ) - фото квартиры 31 октября 2025 90 дн. 0 24.7 9/26 4 250 000

Похожие предложения о продаже квартир в Екатеринбурге (ВИЗ)

  • 1-к квартира, Зеленый остров

    • 34.6 м2
    • 4/24 этаж
    4 500 000 ₽ (130100 ₽/м2)
    СРОЧНО!!! Переуступка возможна до 20 марта! Продажа от физического лица! ЖК Зеленый остров 3 дом сдан! Квартира с чистовой отделкой, заезжай и живи!Один взрослый собственник! Без обременений! Мат кап в покупку не использовался! Никто не прописан! Быстрый выход на сделку! Ипотека возможна!На территории «Зеленого острова» будет все необходимое для комфортной жизни: магазины, аптеки, кафе и рестораны, салоны красоты, школы и детские сады. Рядом – акватория Верх-Исетского пруда, где можно кататься на катамаранах, сапах и лодках, гулять и отдыхать от городской суеты! ID объекта в нашей базе: 3561
    размещено: 04.03.2026 , обновлено: 4.03.2026
  • 1-к квартира, Викулова, 24

    • 22.9 м2
    • 16/18 этаж
    • Состояние: плохое
    5 500 000 ₽ (240200 ₽/м2)
    Жилой комплекс «ТАКТИКА» расположен в границах улиц Татищева, Викулова и Венгерских Коммунаров, адрес Викулова, 24, вблизи Акватории пруда Верх-Исетского района. Дом повышенного комфорта предлагает: современный и безопасный двор, ландшафтный дизайн, пространство для отдыха на крыше и фитнес клуб с бассейном. Максимальное удобство и доступность городской инфраструктуры, остановки общественного транспорта, трамвайная линия. Благодаря удобному расположению остановок, вы сможете сэкономить время на поездках и легче планировать свои маршруты. Благоустройство.Закрытый двор комплекса, создает место безопасности и удобства, созданное для семейного отдыха и детских игр. Среди элементов — веревка альпиниста, балансировочные столбики, змейка и подвесной гамак. Есть детские карусели и деревянные качели на любой вкус: классические и качели-гамаки. Двор полностью свободен от машин, что гарантирует безопасность и спокойствие для всех его обителей. Для взрослых во дворе воркаут-зона с кардио-тренажёрами, силовой и атлетический комплекс. А также настольный теннис и пространство для йоги на открытом воздухе. В комплеске размещен фитнес-центр с бассейном. В 5 минутах от жилищного комплекса 4 школы, ещё 3 — в 10 минутах, в том числе школа №1, построенная в 2019 году по последнему слову техники. Рядом 7 садиков, среди них два премиальных детских сада «Согласие», 15 учреждений дополнительного образования, например, школа программирования «Алгоритмика» и Международная школа скорочтения. В 10 минутах ходьбы — детская поликлиника №11, «Новая больница» и «Детский доктор». В 15 минутах езды горбольницы №41, №40 и центральная городская больница №2, в радиусе 1 км медицинские центры «Бонум», «Шанс», «Панацея», «Хеликс» и «Парацельс». Особенная архитектура. Холл жилого комплекса выполнен в элегантных и минималистичных тонах, где гармонично сочетаются керамогранит и декоративная штукатурка. Системы видеонаблюдения охватывают общие зоны, включая входные группы, подъезды и дворовую территории, что позволяет контролировать происходящее в реальном времени. Служба мониторинга активно следит за ситуацией и моментально реагирует на любые происшествия, что обеспечивает дополнительный уровень защиты и спокойствия для всех жильцов. В доме предусмотрен подземный одноуровневый паркинг. Отделка.Улучшенная шумоизоляция сохранит в вашей квартире тишину и спокойствие от внешних звуков и соседних помещений. Автоматическая телеметрия позволит забыть о хлопотах по сбору показаний счетчиков для коммунальных платежей. Система отопления с повышенной теплоотдачей обеспечит быстрое и равномерное прогревание помещения, создавая комфортный микроклимат в любое время года. Армированный 5-камерный профиль окон с режимом микропроветривания системы REHAU эффективно удержит тепло и предотвратит потерю энергии. Премиальные и технологичные лифты KOYO обеспечат быструю и бесперебойную работу, что значительно повысит удобство в перемещения внутри комплекса, минимизируя ожидание жителей. Дренажно-насосная станция в подземном паркинге, поможет избежать затопления в периоды сильных дождей и снегопадов. Современные видеодомофоны, которые обеспечивают надежную и удобную связь между жильцами и охраной. Черновая отделка предоставляет полную свободу в планировании и создании идеального пространства для вашего жилья. Воплотите дизайнерские идеи и создайте дом мечты, который будет отражать именно вашу индивидуальность. Готовы показать квартиру в удобное для вас время. Звоните, чтобы задать вопросы и договориться о просмотре! ID объекта в нашей базе: 1021
    размещено: 04.03.2026 , обновлено: 4.03.2026
  • 1-к квартира, Юмашева, 16

    • 37.1 м2
    • 10/12 этаж
    • Состояние: удовлетворительное
    4 000 000 ₽ (107800 ₽/м2)
    Продам однокомнатную квартиру с огромной лоджией. Удобное месторасположение -"тихий центр", развитая инфраструктура, в шаговой доступности набережная реки Исеть и парк 22 Партсъезда. Состояние квартиры как на фото, вопросы по телефону. Быстрый выход на сделку, в квартире никто не прописан, ипотека возможна, один взрослый собственник. ID объекта в нашей базе: 5434
    размещено: 03.03.2026 , обновлено: 4.03.2026
  • 1-к квартира, Зелёный Остров, 14

    • 22 м2
    • 24/25 этаж
    • Состояние: хорошее
    3 800 000 ₽ (172700 ₽/м2)
    ???? Продается квартира-студия в ЖК «Зеленый остров»! Просторная студия 22 м² на 24-м этаже новостройки 2024 года постройки!???? Панорамный вид на Верх-Исетское водохранилище и лес — наслаждайтесь природой каждый день!✨ Свежий ремонт, чистая продажа от одного взрослого собственника, маткапитал не использовался. Что остается в подарок Полностью оборудованный кухонный гарнитур со всей встроенной техникой Современная душевая кабина — заселяйтесь и живите! Удобства и инфраструктура Рядом магазин «Магнит», ПВЗ маркетплейсов и аптеки — все в пешей доступности У дома большой паркинг Детская + спортивная площадки прямо рядом Развитая инфраструктура ЖК: прогулки у водохранилища, лесные тропы, транспорт до центра Екатеринбурга Идеально для жизни или инвестиций под аренду!Готовы к показам в удобное время — звоните! ID объекта в нашей базе: 14176
    размещено: 02.03.2026 , обновлено: 4.03.2026
  • 1-к квартира, Крауля, 105

    • 34.3 м2
    • 22/32 этаж
    • Состояние: удовлетворительное
    6 599 000 ₽ (192400 ₽/м2)
    Предлагаем Вашему вниманию, уютную, светлую квартиру с красивым видом и очень удачной планировкой: кухня- гостиная и спальня. В квартире выполнена нейтральная отделка стен и пола, что позволит в короткие сроки уже заехать и жить. Площадь указана, без учета лоджии.В зоне кухни стены оставлены без отделки, что позволяет на свой вкус расположить рабочую зону любой конфигурации и под нее расположить розетки. Ванная комната полностью функционирует, осталось лишь выбрать под ваш вкус плитку для мокрой зоны. На первом этаже открыт продуктовый магазин, в жк уже открываются маркетплейсы, цветочные и строительные магазины. В пешей доступности Лемана Про. До Меги, «Метро» и Радуга Парк на машине меньше 10 минут. Рядом с домом остановка общественного транспорта, недалеко школы и детские сады. Перспективный развивающийся район. Красивый закрытый двор, просторные холлы, видеонаблюдение, две колясочные и охрана в доме.Предложение будет актуально, пока интересующий вариант (для семьи побольше) находится в продаже. Два взрослых собственника. ID объекта в нашей базе: 3871
    размещено: 24.02.2026

    1-к квартира, Репина, 105

    • 34.6 м2
    • 4/9 этаж
    5 800 000 ₽ (167600 ₽/м2)
    Арт. 131874997 В продаже квартира в районе ТРЦ Радуга Парк. Квартира с ремонтом! Остается некоторая мебель! В комнате есть гардеробная,большая лоджия. Квартира очень теплая,окна на южную сторону -во двор,есть кондиционер. В собственности более 5 лет. Добро пожаловать!
    размещено: 23.02.2026 , обновлено: 26.02.2026

    1-к квартира, Крауля, 107/2

    • 20.7 м2
    • 10/31 этаж
    • Состояние: хорошее
    4 200 000 ₽ (202900 ₽/м2)
    ПРОДАМ квартиру район: Виз г. Екатеринбург.Квартира студия.Квартира светлая, очень теплая, в квартире остается:диван, стол и кухня. Ванная и сан. узел совмещены , отделка кафелем, просторная прихожая.Дом блочный, Зеленый двор.Рядом детский сад,школа с удачное расположение дома.ИПОТЕКА ВОЗМОЖНА. Ждем ВАС на просмотр! ID объекта в нашей базе: 13992
    размещено: 22.02.2026 , обновлено: 4.03.2026

    1-к квартира, Викулова, 24

    • 29 м2
    • 6/23 этаж
    • Состояние: удовлетворительное
    5 590 000 ₽ (192800 ₽/м2)
    Жилой комплекс «ТАКТИКА» расположен в границах улиц Татищева, Викулова и Венгерских Коммунаров, адрес Викулова, 24, вблизи Акватории пруда Верх-Исетского района. Дом повышенного комфорта предлагает: современный и безопасный двор, ландшафтный дизайн, пространство для отдыха на крыше и фитнес клуб с бассейном. Максимальное удобство и доступность городской инфраструктуры, остановки общественного транспорта, трамвайная линия. Благодаря удобному расположению остановок, вы сможете сэкономить время на поездках и легче планировать свои маршруты. Благоустройство. Закрытый двор комплекса, создает место безопасности и удобства, созданное для семейного отдыха и детских игр. Среди элементов — веревка альпиниста, балансировочные столбики, змейка и подвесной гамак. Есть детские карусели и деревянные качели на любой вкус: классические и качели-гамаки. Двор полностью свободен от машин, что гарантирует безопасность и спокойствие для всех его обителей. Для взрослых во дворе воркаут-зона с кардио-тренажёрами, силовой и атлетический комплекс. А также настольный теннис и пространство для йоги на открытом воздухе. В комплексе размещен фитнес-центр с бассейном. В 5 минутах от жилищного комплекса 4 школы, ещё 3 — в 10 минутах, в том числе школа №1, построенная в 2019 году по последнему слову техники. Рядом 7 садиков, среди них два премиальных детских сада «Согласие», 15 учреждений дополнительного образования, например, школа программирования «Алгоритмика» и Международная школа скорочтения. В 10 минутах ходьбы — детская поликлиника №11, «Новая больница» и «Детский доктор». В 15 минутах езды горбольницы №41, №40 и центральная городская больница №2, в радиусе 1 км медицинские центры «Бонум», «Шанс», «Панацея», «Хеликс» и «Парацельс». Особенная архитектура. Холл жилого комплекса выполнен в элегантных и минималистичных тонах, где гармонично сочетаются керамогранит и декоративная штукатурка. Системы видеонаблюдения охватывают общие зоны, включая входные группы, подъезды и дворовую территории, что позволяет контролировать происходящее в реальном времени. Служба мониторинга активно следит за ситуацией и моментально реагирует на любые происшествия, что обеспечивает дополнительный уровень защиты и спокойствия для всех жильцов. В доме предусмотрен подземный одноуровневый паркинг. Отделка. Улучшенная шумоизоляция сохранит в вашей квартире тишину и спокойствие от внешних звуков и соседних помещений. Автоматическая телеметрия позволит забыть о хлопотах по сбору показаний счетчиков для коммунальных платежей. Система отопления с повышенной теплоотдачей обеспечит быстрое и равномерное прогревание помещения, создавая комфортный микроклимат в любое время года. Армированный 5-камерный профиль окон с режимом микропроветривания системы REHAU эффективно удержит тепло и предотвратит потерю энергии. Премиальные и технологичные лифты KOYO обеспечат быструю и бесперебойную работу, что значительно повысит удобство в перемещения внутри комплекса, минимизируя ожидание жителей. Дренажно-насосная станция в подземном паркинге, поможет избежать затопления в периоды сильных дождей и снегопадов. Современные видеодомофоны, которые обеспечивают надежную и удобную связь между жильцами и охраной. Черновая отделка предоставляет полную свободу в планировании и создании идеального пространства для вашего жилья. Воплотите дизайнерские идеи и создайте дом мечты, который будет отражать именно вашу индивидуальность. Готовы показать квартиру в удобное для вас время. Звоните, чтобы задать вопросы и договориться о просмотре! ID объекта в нашей базе: 1014
    размещено: 18.02.2026 , обновлено: 28.02.2026

    1-к квартира, Отрадная, 1

    • 38.9 м2
    • 11/26 этаж
    • Состояние: плохое
    6 250 000 ₽ (160700 ₽/м2)
    Объект № 197350. Продам 1 кв в районе с хорошо развитой инфраструктурой! Квартира с отделкой под чистовую. Хорошая планировка, потолки 2.7 м, 11 этаж, лоджия. Отличный вариант для молодой семьи! Транспортная развязка без труда позволяет добраться в любой район города! В шаговой доступности находиться все необходимое для комфортной жизни в этой локации! Документы готовы, обременений, арестов и долгов нет! Быстрый выход на сделку! ***Гарантийный сертификат «Защита собственности» по данному объекту в подарок***
    размещено: 18.02.2026 , обновлено: 26.02.2026

    1-к квартира, Юмашева, 6

    • 25.1 м2
    • 12/17 этаж
    • Состояние: хорошее
    4 750 000 ₽ (189200 ₽/м2)
    Продаются 1-к. апартаменты, 25,1 м², 12/17 эт,в центральной части Екатеринбурга — ул. Юмашева, 6. Цена: 4 750 000 ₽Общая площадь — 25,1 м²Высота потолков — 2,5 мСанузел совмещённыйОстаётся мебель и техника (кухонный гарнитур, места хранения, спальные места, холодильник, стиральная машина)О доме:Монолитный дом 2016 годаПассажирский и грузовой лифтыКонсьержЗакрытая территорияПарковка за шлагбаумомЛокация — центр города:До Площади 1905 года — 20–25 минут пешкомМетро: Динамо, Площадь 1905 года, УральскаяВ пешей доступности:Набережная реки Исеть,Парк XXII Партсъезда,Дворец молодёжи,Супермаркеты,Поликлиника №2,УрФУ, СИНХДокументы:1 взрослый собственникБез обремененийСвободная продажаПодробная информация и показы по запросу в удобное для вас время. ID объекта в нашей базе: 12283
    размещено: 18.02.2026 , обновлено: 4.03.2026

    1-к квартира, Крауля, 107/4

    • 20.9 м2
    • 14/31 этаж
    • Состояние: удовлетворительное
    3 900 000 ₽ (186600 ₽/м2)
    Новая квартира-студя в ЖК РУСЬ. Дом 2025 года постройки. Просторная комната и современный санузел. Усиленная сейф дверь, лоджия с панорамными стеклами, что позволяет смотреть прекрасный вид. Один собственник, без обременений и мат. Капитала. ID объекта в нашей базе: 5318
    размещено: 17.02.2026 , обновлено: 2.03.2026

    1-к квартира, Крауля, 105/3

    • 34.8 м2
    • 17/31 этаж
    • Состояние: удовлетворительное
    5 790 000 ₽ (166400 ₽/м2)
    Хватит смотреть на соседние окна! Смотрите на воду.Продаем не просто метры, а базу для жизни с кайфом. Что имеем по факту:✅ Метраж: 34,8 м² пользы + 3,8 м² лоджии-лаунж зоны.✅ Планировка: Кухня-гостиная (14.8 м²) для тусовок, изолированная спальня для снов.✅ Состояние: «White box» (предчистовая). Грязная работа сделана, электрика разведена. Делайте ремонт под себя, а не переделывайте за другими.✅ Комфорт: Санузел с нишей под технику, высокие потолки (2,7 м), очень теплая квартира. Дом уровня «ТОП»:Закрытая территория, огромная парковка (место найдется!), красивые холлы, колясочные и даже душ для лап питомцев. Юридическая чистота 100%:Один взрослый собственник. Никаких ипотек, маткапиталов и сложных схем. Звоните. Такие квартиры с видом на воду долго не «плавают» на рынке! ID объекта в нашей базе: 9694
    размещено: 13.02.2026 , обновлено: 28.02.2026

    1-к квартира, Викулова, 61/1

    • 38.9 м2
    • 8/16 этаж
    • Состояние: хорошее
    5 400 000 ₽ (138800 ₽/м2)
    Продаетcя однoкомнaтнaя квaртирa на улицe Bикулoвa 61 кopпус 1. Kвapтира светлaя, уютная, окна заменены на пластиковые и выходят во двор. Застeклённaя лоджия. На кухне, в комнате и в туалете сделан свежий рeмонт. Удобная локация! Развитая инфpаcтруктурa рaйонa. Подъезд чистый. Заменены стояки водоснабжения, канализации и лифты. В доме консьерж. Своё ТСЖ. Всё необходимое в шаговой доступности: остановки трамваев и автобусов, все магазины, аптеки, почта, салоны красоты, пункты выдачи, ТЦ Радуга-Парк, замечательный каток, колесо обозрения – 10 минут. В подарок покупателю остаётся новый кухонный гарнитур,новая электроплита. Квартира без обременений ,1 взрослый собственник. В квартире никто не прописан. Звоните задавайте вопросы. Готовы показать в удобное для вас время ! ID объекта в нашей базе: 13777
    размещено: 11.02.2026 , обновлено: 28.02.2026

    1-к квартира, Викулова, 61/2

    • 33 м2
    • 12/12 этаж
    • Состояние: хорошее
    5 150 000 ₽ (156100 ₽/м2)
    Объект № 197174. Продается уютная однокомнатная квартира в спокойном и востребованном микрорайоне ВИЗ. Квартира, светлая и теплая, окна выходят во двор (юго-восток), идеально подходящая для комфортной жизни. Просторная комната с нишей, которую можно использовать под спальню, создаёт уют и удобство. Большая лоджия - отличное место для отдыха и хранения. Дом оснащён новыми лифтами, была замена подающего стояка системы ХВС. Соседи - приветливые и порядочные люди. Расположение дома - всё необходимое в шаговой доступности: школа и детский сад, остановки общественного транспорта, поликлиника, а также популярный торговый центр Радуга Парк. До центра 15 минут на общественном транспорте. Один взрослый собственник. ***Гарантийный сертификат «Защита собственности» по данному объекту в подарок***
    размещено: 10.02.2026 , обновлено: 1.03.2026

    1-к квартира, Крауля, 168/в

    • 30.7 м2
    • 3/14 этаж
    • Состояние: хорошее
    4 990 000 ₽ (162500 ₽/м2)
    Объект № 197151. Продаётся уютная студия 30.1 кв. м. в жилом комплексе «Янтарная долина», расположенном в живописном районе. Просторная и светлая квартира идеально подойдёт для тех, кто ценит комфорт и удобство. Жилой комплекс «Янтарная долина» — это не просто место для проживания, это целый мир, где каждый найдёт что-то своё. Здесь созданы все условия для комфортной жизни: зелёные зоны для прогулок, современные спортивные площадки и удобные парковки. Вы сможете наслаждаться каждым днём, проводя время на свежем воздухе или занимаясь спортом. Квартира в «Янтарной долине» — это возможность начать новую жизнь в окружении природы и комфорта. Не упустите свой шанс стать частью этого уникального сообщества и создать свой собственный уголок счастья. ***Гарантийный сертификат «Защита собственности» по данному объекту в подарок***
    размещено: 09.02.2026 , обновлено: 3.03.2026

    1-к квартира, Крауля, 107/3

    • 30.8 м2
    • 6/8 этаж
    • Состояние: удовлетворительное
    6 200 000 ₽ (201300 ₽/м2)
    ПРОДАМ!!! Готовая однокомнатная квартира, на 6-ом этаже 8-этажной секции ЖК РУСЬ. Общая площадь 30,8. Солнечна сторона. Отделка предчистовая:- Потолок - без отделки, пол - стяжка под финишную отделку, стены - штукатурка;- Санузел: потолок - без отделки, пол - стяжка под финишную отделку, стены - штукатурка под чистовую отделку;- В одном санузле установлен комплект санфаянса (унитаз, раковина);- Электрофурнитура.Один собственник, быстрый выход на сделку. ID объекта в нашей базе: 12246
    размещено: 06.02.2026 , обновлено: 3.03.2026

    1-к квартира, Крауля, 168б

    • 39 м2
    • 18/20 этаж
    • Состояние: удовлетворительное
    5 800 000 ₽ (148700 ₽/м2)
    Внесен аванс! У нас уже есть покупатель!Предлагаем Вашему вниманию светлую уютную 1 комнатную квартиру в живопиcнoм paйoнe города ВИЗВозможна покупка в ипотеку под ставку 12,99% *условия покупки уточняйте по телефонуКвартира:- общая площадь 39 м2, кухня 11 м2, комната - 14,7 м2, балкон- этаж 18 из 20- в квартире выполнен косметический ремонт- высота потолков - 2,7м- счетчики ГВС, ХВС , электричество, на отопление- сейф дверь- в квартире остается кухонный гарнитур (встроенный духовой шкаф и плита, фильтр воды), холодильник, чайник, стол кухонный, стулья кухонные, посуда, телевизор на кухне, стиральная машина, два дивана, комоды в гардеробной и в зале.ЖК Янтарная долина- дом 2018 г- закрытая ухоженная территория двора, без машин- территория, входная группа и лифты оборудованы системой безопасности с видеонаблюдением- в доме есть своя котельная, что объясняет низкие коммунальные платежи- подъезд чистый, ухоженный- во дворе детская и спортивная площадки- гостевая парковка и места вокруг комплекса- до центра города всего 5 км, добраться на машине можно за 10–15 минут- в шаговой доступности находятся остановки общественного транспорта, что позволяет уехать в любой конец города.- в пешей доступности расположены 6 детских садов, 3 школы, 16 магазинов, 17 кафе и ресторанов, 7 салонов красоты- на территории жилого комплекса расположены магазины «Пятёрочка» и «Магнит»- для отдыха и прогулок рядом находится набережная Верх-Исетского прудаЛегко купить: наличные, ипотека.Поможем с реализацией Вашей недвижимости для приобретения данного объекта.Помощь в одобрении ипотеки по наилучшим ставкам от банков партнёров.Квико недвижимость гарантирует своим клиентам безопасность сделки, наша деятельность застрахована. ID объекта в нашей базе: 4749
    размещено: 03.02.2026 , обновлено: 28.02.2026

    1-к квартира, Крауля, 107

    • 30.7 м2
    • 13/17 этаж
    • Состояние: идеальное
    6 600 000 ₽ (215000 ₽/м2)
    Продается новая квартира ,с хорошим ремонтом, в современном жилом комплексе ЖК Русь. Вложений не требует. После приобретения можно сразу заехать. Особенно подойдет для проживания молодой и дружной семьи. Месторасположение очень удачное. Высокая транспортная доступность, поможет быстро добраться до Центра города. Пожалуйста позвоните! На все вопросы отвечу! Все виды оплаты рассмотрим, в том числе ипотеку и сертификаты. ID объекта в нашей базе: 13563
    размещено: 03.02.2026 , обновлено: 22.02.2026

    1-к квартира, Викулова, 24

    • 23.4 м2
    • 4/18 этаж
    • Состояние: плохое
    5 300 000 ₽ (226500 ₽/м2)
    Жилой комплекс «ТАКТИКА» - Это Дом повышенного комфорта: современный и безопасный двор, ландшафтный дизайн, пространство для отдыха на крыше и фитнес клуб с бассейном, вблизи Акватории пруда Верх-Исетского района. Максимальное удобство и доступность городской инфраструктуры, и удобное расположение остановок общественного транспорта Благоустройство. Закрытый двор комплекса, для семейного отдыха и детских игр. Есть детские карусели и деревянные качели на любой вкус: классические и качели-гамаки, веревка альпиниста, балансировочные столбики, змейка и подвесной гамак. Для взрослых так же есть все для активного и пассивного отдыха. В комплексе размещен фитнес-центр с бассейном. В 5 минутах от ЖК 4 школы, а так же новая современная школа №1. Рядом 7 детских садов, среди них два премиальных детских сада «Согласие». 15 учреждений дополнительного образования. В 10 минутах ходьбы — детская поликлиника № 11, «Новая больница» и «Детский доктор». В 15 минутах езды горбольницы № 41, № 40 и центральная городская больница №2, в радиусе 1 км медицинские центры «Бонум», «Шанс», «Панацея», «Хеликс» и «Парацельс». Особенная архитектура. Холл жилого комплекса выполнен в элегантных и минималистичных тонах. Служба мониторинга. В доме предусмотрен подземный одноуровневый паркинг. Отделка. Улучшенная шумоизоляция. Автоматическая телеметрия. Система отопления с повышенной теплоотдачей. Армированный 5-камерный профиль окон с режимом микропроветривания системы REHAU. Премиальные и технологичные лифты KOYO. Дренажно-насосная станция в подземном паркинге. Современные видеодомофоны. Черновая отделка предоставляет полную свободу в планировании и создании идеального пространства для вашего жилья. Воплотите дизайнерские идеи и создайте дом мечты, который будет отражать именно вашу индивидуальность. Готовы показать квартиру в удобное для вас время. Звоните, чтобы задать вопросы и договориться о просмотре! ID объекта в нашей базе: 990
    размещено: 03.02.2026 , обновлено: 20.02.2026

    1-к квартира, Викулова, 24

    • 26 м2
    • 5/26 этаж
    • Состояние: удовлетворительное
    5 600 000 ₽ (215400 ₽/м2)
    Жилой комплекс «ТАКТИКА» расположен в границах улиц Татищева, Викулова и Венгерских Коммунаров, адрес Викулова, 24, вблизи Акватории пруда Верх-Исетского района. Дом повышенного комфорта предлагает: современный и безопасный двор, ландшафтный дизайн, пространство для отдыха на крыше и фитнес клуб с бассейном. Максимальное удобство и доступность городской инфраструктуры, остановки общественного транспорта, трамвайная линия. Благодаря удобному расположению остановок, вы сможете сэкономить время на поездках и легче планировать свои маршруты. Благоустройство. Закрытый двор комплекса, создает место безопасности и удобства, созданное для семейного отдыха и детских игр. Среди элементов — веревка альпиниста, балансировочные столбики, змейка и подвесной гамак. Есть детские карусели и деревянные качели на любой вкус: классические и качели-гамаки. Двор полностью свободен от машин, что гарантирует безопасность и спокойствие для всех его обителей. Для взрослых во дворе воркаут-зона с кардио-тренажёрами, силовой и атлетический комплекс. А также настольный теннис и пространство для йоги на открытом воздухе. В комплеске размещен фитнес-центр с бассейном. В 5 минутах от жилищного комплекса 4 школы, ещё 3 — в 10 минутах, в том числе школа №1, построенная в 2019 году по последнему слову техники. Рядом 7 садиков, среди них два премиальных детских сада «Согласие», 15 учреждений дополнительного образования, например, школа программирования «Алгоритмика» и Международная школа скорочтения. В 10 минутах ходьбы — детская поликлиника №11, «Новая больница» и «Детский доктор». В 15 минутах езды горбольницы №41, №40 и центральная городская больница №2, в радиусе 1 км медицинские центры «Бонум», «Шанс», «Панацея», «Хеликс» и «Парацельс». Особенная архитектура. Холл жилого комплекса выполнен в элегантных и минималистичных тонах, где гармонично сочетаются керамогранит и декоративная штукатурка. Системы видеонаблюдения охватывают общие зоны, включая входные группы, подъезды и дворовую территории, что позволяет контролировать происходящее в реальном времени. Служба мониторинга активно следит за ситуацией и моментально реагирует на любые происшествия, что обеспечивает дополнительный уровень защиты и спокойствия для всех жильцов. В доме предусмотрен подземный одноуровневый паркинг. Отделка. Улучшенная шумоизоляция сохранит в вашей квартире тишину и спокойствие от внешних звуков и соседних помещений. Автоматическая телеметрия позволит забыть о хлопотах по сбору показаний счетчиков для коммунальных платежей. Система отопления с повышенной теплоотдачей обеспечит быстрое и равномерное прогревание помещения, создавая комфортный микроклимат в любое время года. Армированный 5-камерный профиль окон с режимом микропроветривания системы REHAU эффективно удержит тепло и предотвратит потерю энергии. Премиальные и технологичные лифты KOYO обеспечат быструю и бесперебойную работу, что значительно повысит удобство в перемещения внутри комплекса, минимизируя ожидание жителей. Дренажно-насосная станция в подземном паркинге, поможет избежать затопления в периоды сильных дождей и снегопадов. Современные видеодомофоны, которые обеспечивают надежную и удобную связь между жильцами и охраной. Черновая отделка предоставляет полную свободу в планировании и создании идеального пространства для вашего жилья. Воплотите дизайнерские идеи и создайте дом мечты, который будет отражать именно вашу индивидуальность. Готовы показать квартиру в удобное для вас время. Звоните, чтобы задать вопросы и договориться о просмотре! ID объекта в нашей базе: 975
    размещено: 02.02.2026 , обновлено: 21.02.2026

Новостройки Екатеринбург, мкр-н. ВИЗ

Приоритет

Увеличивает просмотры в 3 раза

Ваше объявление показывается в списке выше обычных объявлений. подключить