На Метре реклама - только нормальная. Никакого шок-контента.
Помогайте независимому ресурсу, как он помогает вам. Удачи!
Новостройки Котт. посёлки Объявления Динамика цен и сделок

Продажа квартиры: Екатеринбург, ул. Викулова, 24 (ВИЗ)

  • опубликовано 6.02.2026 , обновлено 6.02.2026
  • 7
  •  
Рынок:вторичный
Срок сдачи: 2025 года
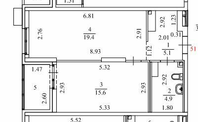
Количество комнат:1
Общая площадь:45 м2
Жилая площадь:16 м2
Площадь кухни:19 м2
Этаж/Этажность дома:8 / 25
Санузел:совмещенный
Отделка:требует ремонта
Год постройки:2025
Балкон/лоджия:лоджия
Состояние:плохое
Цена:
9 400 000
Коммунальные платежи:оплачиваются отдельно
Ипотека:возможна

Жилой комплекс «ТАКТИКА» расположен в границах улиц Татищева, Викулова и Венгерских Коммунаров, адрес Викулова, 24, вблизи Акватории пруда Верх-Исетского района.
Дом повышенного комфорта предлагает: современный и безопасный двор, ландшафтный дизайн, пространство для отдыха на крыше и фитнес клуб с бассейном.
Максимальное удобство и доступность городской инфраструктуры, остановки общественного транспорта, трамвайная линия. Благодаря удобному расположению остановок, вы сможете сэкономить время на поездках и легче планировать свои маршруты.
Благоустройство.Закрытый двор комплекса, создает место безопасности и удобства, созданное для семейного отдыха и детских игр. Среди элементов — веревка альпиниста, балансировочные столбики, змейка и подвесной гамак. Есть детские карусели и деревянные качели на любой вкус: классические и качели-гамаки. Двор полностью свободен от машин, что гарантирует безопасность и спокойствие для всех его обителей.
Для взрослых во дворе воркаут-зона с кардио-тренажёрами, силовой и атлетический комплекс. А также настольный теннис и пространство для йоги на открытом воздухе. В комплеске размещен фитнес-центр с бассейном.
В 5 минутах от жилищного комплекса 4 школы, ещё 3 — в 10 минутах, в том числе школа №1, построенная в 2019 году по последнему слову техники. Рядом 7 садиков, среди них два премиальных детских сада «Согласие», 15 учреждений дополнительного образования, например, школа программирования «Алгоритмика» и Международная школа скорочтения.
В 10 минутах ходьбы — детская поликлиника №11, «Новая больница» и «Детский доктор». В 15 минутах езды горбольницы №41, №40 и центральная городская больница №2, в радиусе 1 км медицинские центры «Бонум», «Шанс», «Панацея», «Хеликс» и «Парацельс».
Особенная архитектура. Холл жилого комплекса выполнен в элегантных и минималистичных тонах, где гармонично сочетаются керамогранит и декоративная штукатурка. Системы видеонаблюдения охватывают общие зоны, включая входные группы, подъезды и дворовую территории, что позволяет контролировать происходящее в реальном времени. Служба мониторинга активно следит за ситуацией и моментально реагирует на любые происшествия, что обеспечивает дополнительный уровень защиты и спокойствия для всех жильцов.
В доме предусмотрен подземный одноуровневый паркинг.
Отделка.Улучшенная шумоизоляция сохранит в вашей квартире тишину и спокойствие от внешних звуков и соседних помещений. Автоматическая телеметрия позволит забыть о хлопотах по сбору показаний счетчиков для коммунальных платежей. Система отопления с повышенной теплоотдачей обеспечит быстрое и равномерное прогревание помещения, создавая комфортный микроклимат в любое время года. Армированный 5-камерный профиль окон с режимом микропроветривания системы REHAU эффективно удержит тепло и предотвратит потерю энергии. Премиальные и технологичные лифты KOYO обеспечат быструю и бесперебойную работу, что значительно повысит удобство в перемещения внутри комплекса, минимизируя ожидание жителей. Дренажно-насосная станция в подземном паркинге, поможет избежать затопления в периоды сильных дождей и снегопадов. Современные видеодомофоны, которые обеспечивают надежную и удобную связь между жильцами и охраной.
Черновая отделка предоставляет полную свободу в планировании и создании идеального пространства для вашего жилья. Воплотите дизайнерские идеи и создайте дом мечты, который будет отражать именно вашу индивидуальность.
Готовы показать квартиру в удобное для вас время. Звоните, чтобы задать вопросы и договориться о просмотре!
ID объекта в нашей базе: 1001

РИМ 118 — Дмитрий Викторович

показать телефон

Ипотечный калькулятор

лет
%
Сумма кредита
9400000 ₽
Платеж
22 540 ₽

Актуальные предложения в этом доме

  • 2-к квартира, Викулова, 24

    • 67 м2
    • 18/25 этаж
    • Состояние:
    12 800 000 ₽ (191000 ₽/м2)
    Жилой комплекс «ТАКТИКА» расположен в границах улиц Татищева, Викулова и Венгерских Коммунаров, адрес Викулова, 24, вблизи Акватории пруда Верх-Исетского района. Дом повышенного комфорта предлагает: современный и безопасный двор, ландшафтный дизайн, пространство для отдыха на крыше и фитнес клуб с бассейном. Максимальное удобство и доступность городской инфраструктуры, остановки общественного транспорта, трамвайная линия. Благодаря удобному расположению остановок, вы сможете сэкономить время на поездках и легче планировать свои маршруты. Благоустройство.Закрытый двор комплекса, создает место безопасности и удобства, созданное для семейного отдыха и детских игр. Среди элементов — веревка альпиниста, балансировочные столбики, змейка и подвесной гамак. Есть детские карусели и деревянные качели на любой вкус: классические и качели-гамаки. Двор полностью свободен от машин, что гарантирует безопасность и спокойствие для всех его обителей. Для взрослых во дворе воркаут-зона с кардио-тренажёрами, силовой и атлетический комплекс. А также настольный теннис и пространство для йоги на открытом воздухе. В комплеске размещен фитнес-центр с бассейном. В 5 минутах от жилищного комплекса 4 школы, ещё 3 — в 10 минутах, в том числе школа №1, построенная в 2019 году по последнему слову техники. Рядом 7 садиков, среди них два премиальных детских сада «Согласие», 15 учреждений дополнительного образования, например, школа программирования «Алгоритмика» и Международная школа скорочтения. В 10 минутах ходьбы — детская поликлиника №11, «Новая больница» и «Детский доктор». В 15 минутах езды горбольницы №41, №40 и центральная городская больница №2, в радиусе 1 км медицинские центры «Бонум», «Шанс», «Панацея», «Хеликс» и «Парацельс». Особенная архитектура. Холл жилого комплекса выполнен в элегантных и минималистичных тонах, где гармонично сочетаются керамогранит и декоративная штукатурка. Системы видеонаблюдения охватывают общие зоны, включая входные группы, подъезды и дворовую территории, что позволяет контролировать происходящее в реальном времени. Служба мониторинга активно следит за ситуацией и моментально реагирует на любые происшествия, что обеспечивает дополнительный уровень защиты и спокойствия для всех жильцов. В доме предусмотрен подземный одноуровневый паркинг. Отделка.Улучшенная шумоизоляция сохранит в вашей квартире тишину и спокойствие от внешних звуков и соседних помещений. Автоматическая телеметрия позволит забыть о хлопотах по сбору показаний счетчиков для коммунальных платежей. Система отопления с повышенной теплоотдачей обеспечит быстрое и равномерное прогревание помещения, создавая комфортный микроклимат в любое время года. Армированный 5-камерный профиль окон с режимом микропроветривания системы REHAU эффективно удержит тепло и предотвратит потерю энергии. Премиальные и технологичные лифты KOYO обеспечат быструю и бесперебойную работу, что значительно повысит удобство в перемещения внутри комплекса, минимизируя ожидание жителей. Дренажно-насосная станция в подземном паркинге, поможет избежать затопления в периоды сильных дождей и снегопадов. Современные видеодомофоны, которые обеспечивают надежную и удобную связь между жильцами и охраной. Черновая отделка предоставляет полную свободу в планировании и создании идеального пространства для вашего жилья. Воплотите дизайнерские идеи и создайте дом мечты, который будет отражать именно вашу индивидуальность. Готовы показать квартиру в удобное для вас время. Звоните, чтобы задать вопросы и договориться о просмотре! ID объекта в нашей базе: 1003
    размещено: 06.02.2026 , обновлено: 6.02.2026
  • 1-к квартира, Викулова, 24

    • 44 м2
    • 22/25 этаж
    • Состояние:
    9 400 000 ₽ (213600 ₽/м2)
    Жилой комплекс «ТАКТИКА» расположен в границах улиц Татищева, Викулова и Венгерских Коммунаров, адрес Викулова, 24, вблизи Акватории пруда Верх-Исетского района. Дом повышенного комфорта предлагает: современный и безопасный двор, ландшафтный дизайн, пространство для отдыха на крыше и фитнес клуб с бассейном. Максимальное удобство и доступность городской инфраструктуры, остановки общественного транспорта, трамвайная линия. Благодаря удобному расположению остановок, вы сможете сэкономить время на поездках и легче планировать свои маршруты. Благоустройство.Закрытый двор комплекса, создает место безопасности и удобства, созданное для семейного отдыха и детских игр. Среди элементов — веревка альпиниста, балансировочные столбики, змейка и подвесной гамак. Есть детские карусели и деревянные качели на любой вкус: классические и качели-гамаки. Двор полностью свободен от машин, что гарантирует безопасность и спокойствие для всех его обителей. Для взрослых во дворе воркаут-зона с кардио-тренажёрами, силовой и атлетический комплекс. А также настольный теннис и пространство для йоги на открытом воздухе. В комплеске размещен фитнес-центр с бассейном. В 5 минутах от жилищного комплекса 4 школы, ещё 3 — в 10 минутах, в том числе школа №1, построенная в 2019 году по последнему слову техники. Рядом 7 садиков, среди них два премиальных детских сада «Согласие», 15 учреждений дополнительного образования, например, школа программирования «Алгоритмика» и Международная школа скорочтения. В 10 минутах ходьбы — детская поликлиника №11, «Новая больница» и «Детский доктор». В 15 минутах езды горбольницы №41, №40 и центральная городская больница №2, в радиусе 1 км медицинские центры «Бонум», «Шанс», «Панацея», «Хеликс» и «Парацельс». Особенная архитектура. Холл жилого комплекса выполнен в элегантных и минималистичных тонах, где гармонично сочетаются керамогранит и декоративная штукатурка. Системы видеонаблюдения охватывают общие зоны, включая входные группы, подъезды и дворовую территории, что позволяет контролировать происходящее в реальном времени. Служба мониторинга активно следит за ситуацией и моментально реагирует на любые происшествия, что обеспечивает дополнительный уровень защиты и спокойствия для всех жильцов. В доме предусмотрен подземный одноуровневый паркинг. Отделка.Улучшенная шумоизоляция сохранит в вашей квартире тишину и спокойствие от внешних звуков и соседних помещений. Автоматическая телеметрия позволит забыть о хлопотах по сбору показаний счетчиков для коммунальных платежей. Система отопления с повышенной теплоотдачей обеспечит быстрое и равномерное прогревание помещения, создавая комфортный микроклимат в любое время года. Армированный 5-камерный профиль окон с режимом микропроветривания системы REHAU эффективно удержит тепло и предотвратит потерю энергии. Премиальные и технологичные лифты KOYO обеспечат быструю и бесперебойную работу, что значительно повысит удобство в перемещения внутри комплекса, минимизируя ожидание жителей. Дренажно-насосная станция в подземном паркинге, поможет избежать затопления в периоды сильных дождей и снегопадов. Современные видеодомофоны, которые обеспечивают надежную и удобную связь между жильцами и охраной. Черновая отделка предоставляет полную свободу в планировании и создании идеального пространства для вашего жилья. Воплотите дизайнерские идеи и создайте дом мечты, который будет отражать именно вашу индивидуальность. Готовы показать квартиру в удобное для вас время. Звоните, чтобы задать вопросы и договориться о просмотре! ID объекта в нашей базе: 1002
    размещено: 06.02.2026 , обновлено: 6.02.2026
  • 2-к квартира, Викулова, 24

    • 69 м2
    • 16/18 этаж
    • Состояние:
    12 800 000 ₽ (185500 ₽/м2)
    Жилой комплекс «ТАКТИКА» расположен в границах улиц Татищева, Викулова и Венгерских Коммунаров, адрес Викулова, 24, вблизи Акватории пруда Верх-Исетского района. Дом повышенного комфорта предлагает: современный и безопасный двор, ландшафтный дизайн, пространство для отдыха на крыше и фитнес клуб с бассейном. Максимальное удобство и доступность городской инфраструктуры, остановки общественного транспорта, трамвайная линия. Благодаря удобному расположению остановок, вы сможете сэкономить время на поездках и легче планировать свои маршруты. Благоустройство.Закрытый двор комплекса, создает место безопасности и удобства, созданное для семейного отдыха и детских игр. Среди элементов — веревка альпиниста, балансировочные столбики, змейка и подвесной гамак. Есть детские карусели и деревянные качели на любой вкус: классические и качели-гамаки. Двор полностью свободен от машин, что гарантирует безопасность и спокойствие для всех его обителей. Для взрослых во дворе воркаут-зона с кардио-тренажёрами, силовой и атлетический комплекс. А также настольный теннис и пространство для йоги на открытом воздухе. В комплеске размещен фитнес-центр с бассейном. В 5 минутах от жилищного комплекса 4 школы, ещё 3 — в 10 минутах, в том числе школа №1, построенная в 2019 году по последнему слову техники. Рядом 7 садиков, среди них два премиальных детских сада «Согласие», 15 учреждений дополнительного образования, например, школа программирования «Алгоритмика» и Международная школа скорочтения. В 10 минутах ходьбы — детская поликлиника №11, «Новая больница» и «Детский доктор». В 15 минутах езды горбольницы №41, №40 и центральная городская больница №2, в радиусе 1 км медицинские центры «Бонум», «Шанс», «Панацея», «Хеликс» и «Парацельс». Особенная архитектура. Холл жилого комплекса выполнен в элегантных и минималистичных тонах, где гармонично сочетаются керамогранит и декоративная штукатурка. Системы видеонаблюдения охватывают общие зоны, включая входные группы, подъезды и дворовую территории, что позволяет контролировать происходящее в реальном времени. Служба мониторинга активно следит за ситуацией и моментально реагирует на любые происшествия, что обеспечивает дополнительный уровень защиты и спокойствия для всех жильцов. В доме предусмотрен подземный одноуровневый паркинг. Отделка.Улучшенная шумоизоляция сохранит в вашей квартире тишину и спокойствие от внешних звуков и соседних помещений. Автоматическая телеметрия позволит забыть о хлопотах по сбору показаний счетчиков для коммунальных платежей. Система отопления с повышенной теплоотдачей обеспечит быстрое и равномерное прогревание помещения, создавая комфортный микроклимат в любое время года. Армированный 5-камерный профиль окон с режимом микропроветривания системы REHAU эффективно удержит тепло и предотвратит потерю энергии. Премиальные и технологичные лифты KOYO обеспечат быструю и бесперебойную работу, что значительно повысит удобство в перемещения внутри комплекса, минимизируя ожидание жителей. Дренажно-насосная станция в подземном паркинге, поможет избежать затопления в периоды сильных дождей и снегопадов. Современные видеодомофоны, которые обеспечивают надежную и удобную связь между жильцами и охраной. Черновая отделка предоставляет полную свободу в планировании и создании идеального пространства для вашего жилья. Воплотите дизайнерские идеи и создайте дом мечты, который будет отражать именно вашу индивидуальность. Готовы показать квартиру в удобное для вас время. Звоните, чтобы задать вопросы и договориться о просмотре! ID объекта в нашей базе: 998
    размещено: 05.02.2026 , обновлено: 6.02.2026
  • 2-к квартира, Викулова, 24

    • 68.7 м2
    • 17/18 этаж
    • Состояние:
    12 800 000 ₽ (186300 ₽/м2)
    Жилой комплекс «ТАКТИКА» расположен в границах улиц Татищева, Викулова и Венгерских Коммунаров, адрес Викулова, 24, вблизи Акватории пруда Верх-Исетского района. Дом повышенного комфорта предлагает: современный и безопасный двор, ландшафтный дизайн, пространство для отдыха на крыше и фитнес клуб с бассейном. Максимальное удобство и доступность городской инфраструктуры, остановки общественного транспорта, трамвайная линия. Благодаря удобному расположению остановок, вы сможете сэкономить время на поездках и легче планировать свои маршруты. Благоустройство.Закрытый двор комплекса, создает место безопасности и удобства, созданное для семейного отдыха и детских игр. Среди элементов — веревка альпиниста, балансировочные столбики, змейка и подвесной гамак. Есть детские карусели и деревянные качели на любой вкус: классические и качели-гамаки. Двор полностью свободен от машин, что гарантирует безопасность и спокойствие для всех его обителей. Для взрослых во дворе воркаут-зона с кардио-тренажёрами, силовой и атлетический комплекс. А также настольный теннис и пространство для йоги на открытом воздухе. В комплеске размещен фитнес-центр с бассейном. В 5 минутах от жилищного комплекса 4 школы, ещё 3 — в 10 минутах, в том числе школа №1, построенная в 2019 году по последнему слову техники. Рядом 7 садиков, среди них два премиальных детских сада «Согласие», 15 учреждений дополнительного образования, например, школа программирования «Алгоритмика» и Международная школа скорочтения. В 10 минутах ходьбы — детская поликлиника №11, «Новая больница» и «Детский доктор». В 15 минутах езды горбольницы №41, №40 и центральная городская больница №2, в радиусе 1 км медицинские центры «Бонум», «Шанс», «Панацея», «Хеликс» и «Парацельс». Особенная архитектура. Холл жилого комплекса выполнен в элегантных и минималистичных тонах, где гармонично сочетаются керамогранит и декоративная штукатурка. Системы видеонаблюдения охватывают общие зоны, включая входные группы, подъезды и дворовую территории, что позволяет контролировать происходящее в реальном времени. Служба мониторинга активно следит за ситуацией и моментально реагирует на любые происшествия, что обеспечивает дополнительный уровень защиты и спокойствия для всех жильцов. В доме предусмотрен подземный одноуровневый паркинг. Отделка.Улучшенная шумоизоляция сохранит в вашей квартире тишину и спокойствие от внешних звуков и соседних помещений. Автоматическая телеметрия позволит забыть о хлопотах по сбору показаний счетчиков для коммунальных платежей. Система отопления с повышенной теплоотдачей обеспечит быстрое и равномерное прогревание помещения, создавая комфортный микроклимат в любое время года. Армированный 5-камерный профиль окон с режимом микропроветривания системы REHAU эффективно удержит тепло и предотвратит потерю энергии. Премиальные и технологичные лифты KOYO обеспечат быструю и бесперебойную работу, что значительно повысит удобство в перемещения внутри комплекса, минимизируя ожидание жителей. Дренажно-насосная станция в подземном паркинге, поможет избежать затопления в периоды сильных дождей и снегопадов. Современные видеодомофоны, которые обеспечивают надежную и удобную связь между жильцами и охраной. Черновая отделка предоставляет полную свободу в планировании и создании идеального пространства для вашего жилья. Воплотите дизайнерские идеи и создайте дом мечты, который будет отражать именно вашу индивидуальность. Готовы показать квартиру в удобное для вас время. Звоните, чтобы задать вопросы и договориться о просмотре! ID объекта в нашей базе: 997
    размещено: 05.02.2026 , обновлено: 6.02.2026
  • 2-к квартира, Викулова, 24

    • 72.2 м2
    • 8/25 этаж
    • Состояние:
    12 300 000 ₽ (170400 ₽/м2)
    Жилой комплекс «ТАКТИКА» расположен в границах улиц Татищева, Викулова и Венгерских Коммунаров, адрес Викулова, 24, вблизи Акватории пруда Верх-Исетского района. Дом повышенного комфорта предлагает: современный и безопасный двор, ландшафтный дизайн, пространство для отдыха на крыше и фитнес клуб с бассейном. Максимальное удобство и доступность городской инфраструктуры, остановки общественного транспорта, трамвайная линия. Благодаря удобному расположению остановок, вы сможете сэкономить время на поездках и легче планировать свои маршруты. Благоустройство.Закрытый двор комплекса, создает место безопасности и удобства, созданное для семейного отдыха и детских игр. Среди элементов — веревка альпиниста, балансировочные столбики, змейка и подвесной гамак. Есть детские карусели и деревянные качели на любой вкус: классические и качели-гамаки. Двор полностью свободен от машин, что гарантирует безопасность и спокойствие для всех его обителей. Для взрослых во дворе воркаут-зона с кардио-тренажёрами, силовой и атлетический комплекс. А также настольный теннис и пространство для йоги на открытом воздухе. В комплеске размещен фитнес-центр с бассейном. В 5 минутах от жилищного комплекса 4 школы, ещё 3 — в 10 минутах, в том числе школа №1, построенная в 2019 году по последнему слову техники. Рядом 7 садиков, среди них два премиальных детских сада «Согласие», 15 учреждений дополнительного образования, например, школа программирования «Алгоритмика» и Международная школа скорочтения. В 10 минутах ходьбы — детская поликлиника №11, «Новая больница» и «Детский доктор». В 15 минутах езды горбольницы №41, №40 и центральная городская больница №2, в радиусе 1 км медицинские центры «Бонум», «Шанс», «Панацея», «Хеликс» и «Парацельс». Особенная архитектура. Холл жилого комплекса выполнен в элегантных и минималистичных тонах, где гармонично сочетаются керамогранит и декоративная штукатурка. Системы видеонаблюдения охватывают общие зоны, включая входные группы, подъезды и дворовую территории, что позволяет контролировать происходящее в реальном времени. Служба мониторинга активно следит за ситуацией и моментально реагирует на любые происшествия, что обеспечивает дополнительный уровень защиты и спокойствия для всех жильцов. В доме предусмотрен подземный одноуровневый паркинг. Отделка.Улучшенная шумоизоляция сохранит в вашей квартире тишину и спокойствие от внешних звуков и соседних помещений. Автоматическая телеметрия позволит забыть о хлопотах по сбору показаний счетчиков для коммунальных платежей. Система отопления с повышенной теплоотдачей обеспечит быстрое и равномерное прогревание помещения, создавая комфортный микроклимат в любое время года. Армированный 5-камерный профиль окон с режимом микропроветривания системы REHAU эффективно удержит тепло и предотвратит потерю энергии. Премиальные и технологичные лифты KOYO обеспечат быструю и бесперебойную работу, что значительно повысит удобство в перемещения внутри комплекса, минимизируя ожидание жителей. Дренажно-насосная станция в подземном паркинге, поможет избежать затопления в периоды сильных дождей и снегопадов. Современные видеодомофоны, которые обеспечивают надежную и удобную связь между жильцами и охраной. Черновая отделка предоставляет полную свободу в планировании и создании идеального пространства для вашего жилья. Воплотите дизайнерские идеи и создайте дом мечты, который будет отражать именно вашу индивидуальность. Готовы показать квартиру в удобное для вас время. Звоните, чтобы задать вопросы и договориться о просмотре! ID объекта в нашей базе: 996
    размещено: 05.02.2026 , обновлено: 6.02.2026

    3-к квартира, Викулова, 24

    • 91.8 м2
    • 15/25 этаж
    • Состояние:
    15 900 000 ₽ (173200 ₽/м2)
    3-комнатная квартира в ЖК «Тактика», Дом сдан, ключи получены! Продаётся современная 3-комнатная квартира в новом, уже сданном доме жилого комплекса «Тактика»! Ключи на руках — можно заезжать и жить. Отличная планировка.. Отличная локация рядом с центром и развитой инфраструктурой. Идеальный вариант для первой собственной квартиры, инвестиции или комфортной жизни. Жилой комплекс «ТАКТИКА» расположен в границах улиц Татищева, Викулова и Венгерских Коммунаров, адрес Викулова, 24, вблизи Акватории пруда Верх-Исетского района. Дом повышенного комфорта предлагает: современный и безопасный двор, ландшафтный дизайн, пространство для отдыха на крыше и фитнес клуб с бассейном. Максимальное удобство и доступность городской инфраструктуры, остановки общественного транспорта, трамвайная линия. Благодаря удобному расположению остановок, вы сможете сэкономить время на поездках и легче планировать свои маршруты. Благоустройство.Закрытый двор комплекса, создает место безопасности и удобства, созданное для семейного отдыха и детских игр. Среди элементов — веревка альпиниста, балансировочные столбики, змейка и подвесной гамак. Есть детские карусели и деревянные качели на любой вкус: классические и качели-гамаки. Двор полностью свободен от машин, что гарантирует безопасность и спокойствие для всех его обителей. Для взрослых во дворе воркаут-зона с кардио-тренажёрами, силовой и атлетический комплекс. А также настольный теннис и пространство для йоги на открытом воздухе. В комплеске размещен фитнес-центр с бассейном. В 5 минутах от жилищного комплекса 4 школы, ещё 3 — в 10 минутах, в том числе школа №1, построенная в 2019 году по последнему слову техники. Рядом 7 садиков, среди них два премиальных детских сада «Согласие», 15 учреждений дополнительного образования, например, школа программирования «Алгоритмика» и Международная школа скорочтения. В 10 минутах ходьбы — детская поликлиника №11, «Новая больница» и «Детский доктор». В 15 минутах езды горбольницы №41, №40 и центральная городская больница №2, в радиусе 1 км медицинские центры «Бонум», «Шанс», «Панацея», «Хеликс» и «Парацельс». Особенная архитектура. Холл жилого комплекса выполнен в элегантных и минималистичных тонах, где гармонично сочетаются керамогранит и декоративная штукатурка. Системы видеонаблюдения охватывают общие зоны, включая входные группы, подъезды и дворовую территории, что позволяет контролировать происходящее в реальном времени. Служба мониторинга активно следит за ситуацией и моментально реагирует на любые происшествия, что обеспечивает дополнительный уровень защиты и спокойствия для всех жильцов. В доме предусмотрен подземный одноуровневый паркинг. Отделка.Улучшенная шумоизоляция сохранит в вашей квартире тишину и спокойствие от внешних звуков и соседних помещений. Автоматическая телеметрия позволит забыть о хлопотах по сбору показаний счетчиков для коммунальных платежей. Система отопления с повышенной теплоотдачей обеспечит быстрое и равномерное прогревание помещения, создавая комфортный микроклимат в любое время года. Армированный 5-камерный профиль окон с режимом микропроветривания системы REHAU эффективно удержит тепло и предотвратит потерю энергии. Премиальные и технологичные лифты KOYO обеспечат быструю и бесперебойную работу, что значительно повысит удобство в перемещения внутри комплекса, минимизируя ожидание жителей. Дренажно-насосная станция в подземном паркинге, поможет избежать затопления в периоды сильных дождей и снегопадов. Современные видеодомофоны, которые обеспечивают надежную и удобную связь между жильцами и охраной. Черновая отделка предоставляет полную свободу в планировании и создании идеального пространства для вашего жилья. Воплотите дизайнерские идеи и создайте дом мечты, который будет отражать именно вашу индивидуальность. Готовы показать квартиру в удобное для вас время. Звоните, чтобы задать вопросы и договориться о просмотре! ID объекта в нашей базе: 995
    размещено: 05.02.2026 , обновлено: 6.02.2026

    1-к квартира, Викулова, 24

    • 44.6 м2
    • 22/25 этаж
    • Состояние:
    9 600 000 ₽ (215200 ₽/м2)
    1-комнатная квартира в ЖК «Тактика», Дом сдан, ключи получены! Продаётся современная 1-комнатная квартира в новом, уже сданном доме жилого комплекса «Тактика»! Ключи на руках — можно заезжать и жить. Отличная планировка.. Отличная локация рядом с центром и развитой инфраструктурой. Идеальный вариант для первой собственной квартиры, инвестиции или комфортной жизни. Жилой комплекс «ТАКТИКА» расположен в границах улиц Татищева, Викулова и Венгерских Коммунаров, адрес Викулова, 24, вблизи Акватории пруда Верх-Исетского района. Дом повышенного комфорта предлагает: современный и безопасный двор, ландшафтный дизайн, пространство для отдыха на крыше и фитнес клуб с бассейном. Максимальное удобство и доступность городской инфраструктуры, остановки общественного транспорта, трамвайная линия. Благодаря удобному расположению остановок, вы сможете сэкономить время на поездках и легче планировать свои маршруты. Благоустройство.Закрытый двор комплекса, создает место безопасности и удобства, созданное для семейного отдыха и детских игр. Среди элементов — веревка альпиниста, балансировочные столбики, змейка и подвесной гамак. Есть детские карусели и деревянные качели на любой вкус: классические и качели-гамаки. Двор полностью свободен от машин, что гарантирует безопасность и спокойствие для всех его обителей. Для взрослых во дворе воркаут-зона с кардио-тренажёрами, силовой и атлетический комплекс. А также настольный теннис и пространство для йоги на открытом воздухе. В комплеске размещен фитнес-центр с бассейном. В 5 минутах от жилищного комплекса 4 школы, ещё 3 — в 10 минутах, в том числе школа №1, построенная в 2019 году по последнему слову техники. Рядом 7 садиков, среди них два премиальных детских сада «Согласие», 15 учреждений дополнительного образования, например, школа программирования «Алгоритмика» и Международная школа скорочтения. В 10 минутах ходьбы — детская поликлиника №11, «Новая больница» и «Детский доктор». В 15 минутах езды горбольницы №41, №40 и центральная городская больница №2, в радиусе 1 км медицинские центры «Бонум», «Шанс», «Панацея», «Хеликс» и «Парацельс». Особенная архитектура.Холл жилого комплекса выполнен в элегантных и минималистичных тонах, где гармонично сочетаются керамогранит и декоративная штукатурка. Системы видеонаблюдения охватывают общие зоны, включая входные группы, подъезды и дворовую территории, что позволяет контролировать происходящее в реальном времени. Служба мониторинга активно следит за ситуацией и моментально реагирует на любые происшествия, что обеспечивает дополнительный уровень защиты и спокойствия для всех жильцов. В доме предусмотрен подземный одноуровневый паркинг. Отделка.Улучшенная шумоизоляция сохранит в вашей квартире тишину и спокойствие от внешних звуков и соседних помещений. Автоматическая телеметрия позволит забыть о хлопотах по сбору показаний счетчиков для коммунальных платежей. Система отопления с повышенной теплоотдачей обеспечит быстрое и равномерное прогревание помещения, создавая комфортный микроклимат в любое время года. Армированный 5-камерный профиль окон с режимом микропроветривания системы REHAU эффективно удержит тепло и предотвратит потерю энергии. Премиальные и технологичные лифты KOYO обеспечат быструю и бесперебойную работу, что значительно повысит удобство в перемещения внутри комплекса, минимизируя ожидание жителей. Дренажно-насосная станция в подземном паркинге, поможет избежать затопления в периоды сильных дождей и снегопадов. Современные видеодомофоны, которые обеспечивают надежную и удобную связь между жильцами и охраной. Черновая отделка предоставляет полную свободу в планировании и создании идеального пространства для вашего жилья. Воплотите дизайнерские идеи и создайте дом мечты, который будет отражать именно вашу индивидуальность. Готовы показать квартиру в удобное для вас время. Звоните, чтобы задать вопросы и договориться о просмотре! ID объекта в нашей базе: 994
    размещено: 05.02.2026 , обновлено: 5.02.2026

    2-к квартира, Викулова, 24

    • 72.7 м2
    • 7/26 этаж
    • Состояние:
    13 600 000 ₽ (187100 ₽/м2)
    Жилой комплекс «ТАКТИКА» - Это Дом повышенного комфорта: современный и безопасный двор, ландшафтный дизайн, пространство для отдыха на крыше и фитнес клуб с бассейном, вблизи Акватории пруда Верх-Исетского района. Максимальное удобство и доступность городской инфраструктуры, и удобное расположение остановок общественного транспорта Благоустройство. Закрытый двор комплекса, для семейного отдыха и детских игр. Есть детские карусели и деревянные качели на любой вкус: классические и качели-гамаки, веревка альпиниста, балансировочные столбики, змейка и подвесной гамак. Для взрослых так же есть все для активного и пассивного отдыха. В комплексе размещен фитнес-центр с бассейном. В 5 минутах от ЖК 4 школы, а так же новая современная школа №1. Рядом 7 детских садов, среди них два премиальных детских сада «Согласие». 15 учреждений дополнительного образования. В 10 минутах ходьбы — детская поликлиника № 11, «Новая больница» и «Детский доктор». В 15 минутах езды горбольницы № 41, № 40 и центральная городская больница №2, в радиусе 1 км медицинские центры «Бонум», «Шанс», «Панацея», «Хеликс» и «Парацельс». Особенная архитектура. Холл жилого комплекса выполнен в элегантных и минималистичных тонах. Служба мониторинга. В доме предусмотрен подземный одноуровневый паркинг. Отделка. Улучшенная шумоизоляция. Автоматическая телеметрия. Система отопления с повышенной теплоотдачей. Армированный 5-камерный профиль окон с режимом микропроветривания системы REHAU. Премиальные и технологичные лифты KOYO. Дренажно-насосная станция в подземном паркинге. Современные видеодомофоны. Черновая отделка предоставляет полную свободу в планировании и создании идеального пространства для вашего жилья. Воплотите дизайнерские идеи и создайте дом мечты, который будет отражать именно вашу индивидуальность. Готовы показать квартиру в удобное для вас время. Звоните, чтобы задать вопросы и договориться о просмотре! ID объекта в нашей базе: 991
    размещено: 03.02.2026 , обновлено: 6.02.2026

    1-к квартира, Викулова, 24

    • 23.4 м2
    • 4/18 этаж
    • Состояние:
    5 300 000 ₽ (226500 ₽/м2)
    Жилой комплекс «ТАКТИКА» - Это Дом повышенного комфорта: современный и безопасный двор, ландшафтный дизайн, пространство для отдыха на крыше и фитнес клуб с бассейном, вблизи Акватории пруда Верх-Исетского района. Максимальное удобство и доступность городской инфраструктуры, и удобное расположение остановок общественного транспорта Благоустройство. Закрытый двор комплекса, для семейного отдыха и детских игр. Есть детские карусели и деревянные качели на любой вкус: классические и качели-гамаки, веревка альпиниста, балансировочные столбики, змейка и подвесной гамак. Для взрослых так же есть все для активного и пассивного отдыха. В комплексе размещен фитнес-центр с бассейном. В 5 минутах от ЖК 4 школы, а так же новая современная школа №1. Рядом 7 детских садов, среди них два премиальных детских сада «Согласие». 15 учреждений дополнительного образования. В 10 минутах ходьбы — детская поликлиника № 11, «Новая больница» и «Детский доктор». В 15 минутах езды горбольницы № 41, № 40 и центральная городская больница №2, в радиусе 1 км медицинские центры «Бонум», «Шанс», «Панацея», «Хеликс» и «Парацельс». Особенная архитектура. Холл жилого комплекса выполнен в элегантных и минималистичных тонах. Служба мониторинга. В доме предусмотрен подземный одноуровневый паркинг. Отделка. Улучшенная шумоизоляция. Автоматическая телеметрия. Система отопления с повышенной теплоотдачей. Армированный 5-камерный профиль окон с режимом микропроветривания системы REHAU. Премиальные и технологичные лифты KOYO. Дренажно-насосная станция в подземном паркинге. Современные видеодомофоны. Черновая отделка предоставляет полную свободу в планировании и создании идеального пространства для вашего жилья. Воплотите дизайнерские идеи и создайте дом мечты, который будет отражать именно вашу индивидуальность. Готовы показать квартиру в удобное для вас время. Звоните, чтобы задать вопросы и договориться о просмотре! ID объекта в нашей базе: 990
    размещено: 03.02.2026 , обновлено: 4.02.2026

    1-к квартира, Викулова, 24

    • 45 м2
    • 25/26 этаж
    • Состояние:
    9 700 000 ₽ (215600 ₽/м2)
    Офигенная квартира с видом на миллион!Жилой комплекс «ТАКТИКА» - Это Дом повышенного комфорта: современный и безопасный двор, ландшафтный дизайн, пространство для отдыха на крыше и фитнес клуб с бассейном, вблизи Акватории пруда Верх-Исетского района. Максимальное удобство и доступность городской инфраструктуры, и удобное расположение остановок общественного транспорта Благоустройство. Закрытый двор комплекса, для семейного отдыха и детских игр. Есть детские карусели и деревянные качели на любой вкус: классические и качели-гамаки, веревка альпиниста, балансировочные столбики, змейка и подвесной гамак. Для взрослых так же есть все для активного и пассивного отдыха. В комплексе размещен фитнес-центр с бассейном. В 5 минутах от ЖК 4 школы, а так же новая современная школа №1. Рядом 7 детских садов, среди них два премиальных детских сада «Согласие». 15 учреждений дополнительного образования. В 10 минутах ходьбы — детская поликлиника № 11, «Новая больница» и «Детский доктор». В 15 минутах езды горбольницы № 41, № 40 и центральная городская больница №2, в радиусе 1 км медицинские центры «Бонум», «Шанс», «Панацея», «Хеликс» и «Парацельс». Особенная архитектура. Холл жилого комплекса выполнен в элегантных и минималистичных тонах. Служба мониторинга. В доме предусмотрен подземный одноуровневый паркинг. Отделка. Улучшенная шумоизоляция. Автоматическая телеметрия. Система отопления с повышенной теплоотдачей. Армированный 5-камерный профиль окон с режимом микропроветривания системы REHAU. Премиальные и технологичные лифты KOYO. Дренажно-насосная станция в подземном паркинге. Современные видеодомофоны. Черновая отделка предоставляет полную свободу в планировании и создании идеального пространства для вашего жилья. Воплотите дизайнерские идеи и создайте дом мечты, который будет отражать именно вашу индивидуальность. Готовы показать квартиру в удобное для вас время. Звоните, чтобы задать вопросы и договориться о просмотре! ID объекта в нашей базе: 989
    размещено: 03.02.2026 , обновлено: 6.02.2026

    1-к квартира, Викулова, 24

    • 39 м2
    • 18/26 этаж
    • Состояние:
    8 100 000 ₽ (207700 ₽/м2)
    Жилой комплекс «ТАКТИКА» - Это Дом повышенного комфорта: современный и безопасный двор, ландшафтный дизайн, пространство для отдыха на крыше и фитнес клуб с бассейном, вблизи Акватории пруда Верх-Исетского района. Максимальное удобство и доступность городской инфраструктуры, и удобное расположение остановок общественного транспорта Благоустройство. Закрытый двор комплекса, для семейного отдыха и детских игр. Есть детские карусели и деревянные качели на любой вкус: классические и качели-гамаки, веревка альпиниста, балансировочные столбики, змейка и подвесной гамак. Для взрослых так же есть все для активного и пассивного отдыха. В комплексе размещен фитнес-центр с бассейном. В 5 минутах от ЖК 4 школы, а так же новая современная школа №1. Рядом 7 детских садов, среди них два премиальных детских сада «Согласие». 15 учреждений дополнительного образования. В 10 минутах ходьбы — детская поликлиника № 11, «Новая больница» и «Детский доктор». В 15 минутах езды горбольницы № 41, № 40 и центральная городская больница №2, в радиусе 1 км медицинские центры «Бонум», «Шанс», «Панацея», «Хеликс» и «Парацельс». Особенная архитектура. Холл жилого комплекса выполнен в элегантных и минималистичных тонах. Служба мониторинга. В доме предусмотрен подземный одноуровневый паркинг. Отделка. Улучшенная шумоизоляция. Автоматическая телеметрия. Система отопления с повышенной теплоотдачей. Армированный 5-камерный профиль окон с режимом микропроветривания системы REHAU. Премиальные и технологичные лифты KOYO. Дренажно-насосная станция в подземном паркинге. Современные видеодомофоны. Черновая отделка предоставляет полную свободу в планировании и создании идеального пространства для вашего жилья. Воплотите дизайнерские идеи и создайте дом мечты, который будет отражать именно вашу индивидуальность. Готовы показать квартиру в удобное для вас время. Звоните, чтобы задать вопросы и договориться о просмотре! ID объекта в нашей базе: 988
    размещено: 03.02.2026 , обновлено: 6.02.2026

    1-к квартира, Викулова, 24

    • 43.4 м2
    • 4/18 этаж
    • Состояние:
    9 200 000 ₽ (212000 ₽/м2)
    1-комнатная квартира в ЖК «Тактика», дом сдан, ключи получены! Продаётся современная 1-комнатная квартира в новом, уже сданном доме жилого комплекса «Тактика». Ключи на руках, можно заезжать и жить. Отличная планировка, удачная локация рядом с центром и развитой инфраструктурой. Идеальный вариант для первой собственной квартиры, инвестиций или комфортной жизни. О КОМПЛЕКСЕ ЖК «Тактика» – современный комплекс комфорт-класса от надёжного застройщика. Дом построен и сдан в эксплуатацию, что означает: - нет рисков долгостроя, не нужно ждать годы; - можно сразу начинать ремонт и заселяться. О КВАРТИРЕ Площадь: общая 43,4 кв. м. Этаж: 4/18. Планировка: удачная, функциональная, с изолированной комнатой. Есть все необходимые зоны: прихожая с выделенной зоной гардеробной, совмещённый санузел, кухня 12,9 кв. м, жилая комната 17,7 кв. м. Состояние: квартира новая, никто не проживал. Отличная возможность стать первым хозяином. ЛОКАЦИЯ И ИНФРАСТРУКТУРА Район с развитой инфраструктурой и удобной транспортной доступностью. - Рядом с центром: быстрый выезд в центр Екатеринбурга. - Комплекс в границах улиц Татищева – Викулова – Венгерских Коммунаров, возле акватории Верх-Исетского пруда. - Транспорт: остановки общественного транспорта в шаговой доступности, удобный выезд на основные магистрали. - Магазины и услуги: в пешей доступности супермаркеты («Пятёрочка», «Магнит» и др.), аптеки, салоны красоты, отделения банков. - Образование и здоровье: детские сады, школы и поликлиники в шаговой доступности. Перспективный район, инфраструктура продолжает развиваться, что положительно влияет на стоимость недвижимости. Идеально для: - молодой семьи или одного человека, желающего иметь собственное жильё; - инвестора для последующей сдачи в аренду (востребованный район); - покупки для детей или родственников. Готовы показать квартиру в удобное для вас время. Звоните, чтобы задать вопросы и договориться о просмотре! ID объекта в нашей базе: 984.
    размещено: 02.02.2026 , обновлено: 5.02.2026

    1-к квартира, Викулова, 24

    • 39.1 м2
    • 12/25 этаж
    • Состояние:
    8 400 000 ₽ (214800 ₽/м2)
    1-комнатная квартира в ЖК «Тактика», Дом сдан, ключи получены! Продаётся современная 1-комнатная квартира в новом, уже сданном доме жилого комплекса «Тактика»! Ключи на руках — можно заезжать и жить. Отличная планировка. Отличная локация рядом с центром и развитой инфраструктурой. Идеальный вариант для первой собственной квартиры, инвестиции или комфортной жизни. О КОМПЛЕКСЕ: ЖК «Тактика» — это современный комплекс комфорт-класса от надежного застройщика. Дом уже построен и сдан в эксплуатацию, что означает: - Никаких рисков долгостроя. Не нужно ждать годы. - Можно сразу начинать делать ремонт и заселяться. О КВАРТИРЕ: Площадь: общая 39,1 кв.м. Этаж: 12/25. Планировка: Удачная, функциональная планировка с изолированной комнатой. Есть все необходимые зоны: прихожая , совмещенный санузел, кухня 12,2 кв.м., жилая комната 16,4 кв.м.. Состояние: Квартира новая, никто не проживал. Отличная возможность стать первым хозяином. ЛОКАЦИЯ И ИНФРАСТРУКТУРА: Район отличается развитой инфраструктурой и транспортной доступностью: Рядом с центром: Быстрый выезд в центр Екатеринбурга. Комплекс расположен в границах улиц Татищева – Викулова – Венгерских Коммунаров, возле Акватории Верх-Исетского пруда. Транспорт: Остановки общественного транспорта в шаговой доступности, удобный выезд на основные магистрали. Магазины и услуги: В пешей доступности супермаркеты («Пятерочка», «Магнит» и др.), аптеки, салоны красоты, отделения банков. Образование и здоровье: Детские сады, школы и поликлиники в районе в шаговой доступности. Перспективный район — инфраструктура продолжает развиваться, что положительно влияет на стоимость недвижимости. Идеально для: Молодой семьи или одного человека, желающего иметь собственное жилье. Инвестора для последующей сдачи в аренду (востребованный район). Покупки для детей/родственников. Готовы показать квартиру в удобное для вас время. Звоните, чтобы задать вопросы и договориться о просмотре! ID объекта в нашей базе: 983
    размещено: 02.02.2026 , обновлено: 6.02.2026

    1-к квартира, Викулова, 24

    • 49.2 м2
    • 4/25 этаж
    • Состояние:
    7 000 000 ₽ (142300 ₽/м2)
    Жилой комплекс «Тактика» расположен в границах улиц Татищева, Викулова и Венгерских Коммунаров, адрес: Викулова, 24, вблизи акватории пруда Верх-Исетского района. Дом повышенного комфорта предлагает современный и безопасный двор, ландшафтный дизайн, пространство для отдыха на крыше и фитнес-клуб с бассейном. Максимальное удобство и доступность городской инфраструктуры, рядом остановки общественного транспорта и трамвайная линия, что позволяет экономить время на поездках и легко планировать маршруты. Благоустройство: закрытый двор комплекса создаёт безопасное и удобное пространство для семейного отдыха и детских игр. Среди элементов – «верёвка альпиниста», балансировочные столбики, змейка и подвесной гамак. Есть карусели и деревянные качели: классические и качели-гамаки. Двор полностью свободен от машин, что обеспечивает безопасность и спокойствие жителей. Для взрослых во дворе предусмотрена воркаут-зона с кардиотренажёрами, силовой и атлетический комплекс, настольный теннис и пространство для йоги на открытом воздухе. В комплексе размещён фитнес-центр с бассейном. Образование: в 5 минутах от комплекса расположены 4 школы, ещё 3 – в 10 минутах, в том числе школа №1, построенная в 2019 году. Рядом 7 детских садов, среди них два премиальных сада «Согласие», а также 15 учреждений дополнительного образования, например школа программирования «Алгоритмика» и Международная школа скорочтения. Медицина: в 10 минутах ходьбы – детская поликлиника №11, «Новая больница» и «Детский доктор». В 15 минутах езды – горбольницы №41, №40 и центральная городская больница №2. В радиусе 1 км расположены медицинские центры «Бонум», «Шанс», «Панацея», «Хеликс» и «Парацельс». Особенная архитектура: холл комплекса выполнен в элегантных, минималистичных тонах, сочетающих керамогранит и декоративную штукатурку. Системы видеонаблюдения охватывают общие зоны, входные группы, подъезды и дворовую территорию. Служба мониторинга контролирует ситуацию и оперативно реагирует на происшествия, обеспечивая дополнительную защиту и спокойствие жильцов. В доме предусмотрен подземный одноуровневый паркинг. Отделка и инженерия: улучшенная шумоизоляция обеспечивает тишину в квартире. Автоматическая телеметрия избавляет от необходимости самому передавать показания счётчиков. Система отопления с повышенной теплоотдачей обеспечивает быстрый и равномерный прогрев. Армированный 5-камерный профиль окон с режимом микропроветривания (REHAU) удерживает тепло и снижает потери энергии. Премиальные лифты KOYO обеспечивают быструю и надёжную работу, минимизируя ожидание. Дренажно-насосная станция в подземном паркинге предотвращает затопления в периоды сильных осадков. Современные видеодомофоны обеспечивают удобную связь между жильцами и охраной. Черновая отделка даёт полную свободу для планирования и создания индивидуального пространства. Можно реализовать любые дизайнерские решения и создать дом мечты, отражающий вашу индивидуальность. Готовы показать объект в удобное для вас время. Звоните, чтобы задать вопросы и договориться о просмотре! ID объекта в нашей базе: 982.
    размещено: 02.02.2026 , обновлено: 5.02.2026

    2-к квартира, Викулова, 24

    • 70.6 м2
    • 13/25 этаж
    • Состояние:
    13 300 000 ₽ (188400 ₽/м2)
    Жилой комплекс «ТАКТИКА» расположен в границах улиц Татищева, Викулова и Венгерских Коммунаров, адрес Викулова, 24, вблизи Акватории пруда Верх-Исетского района. Дом повышенного комфорта предлагает: современный и безопасный двор, ландшафтный дизайн, пространство для отдыха на крыше и фитнес клуб с бассейном. Максимальное удобство и доступность городской инфраструктуры, остановки общественного транспорта, трамвайная линия. Благодаря удобному расположению остановок, вы сможете сэкономить время на поездках и легче планировать свои маршруты. Благоустройство. Закрытый двор комплекса, создает место безопасности и удобства, созданное для семейного отдыха и детских игр. Среди элементов — веревка альпиниста, балансировочные столбики, змейка и подвесной гамак. Есть детские карусели и деревянные качели на любой вкус: классические и качели-гамаки. Двор полностью свободен от машин, что гарантирует безопасность и спокойствие для всех его обителей. Для взрослых во дворе воркаут-зона с кардио-тренажёрами, силовой и атлетический комплекс. А также настольный теннис и пространство для йоги на открытом воздухе. В комплеске размещен фитнес-центр с бассейном. В 5 минутах от жилищного комплекса 4 школы, ещё 3 — в 10 минутах, в том числе школа №1, построенная в 2019 году по последнему слову техники. Рядом 7 садиков, среди них два премиальных детских сада «Согласие», 15 учреждений дополнительного образования, например, школа программирования «Алгоритмика» и Международная школа скорочтения. В 10 минутах ходьбы — детская поликлиника №11, «Новая больница» и «Детский доктор». В 15 минутах езды горбольницы №41, №40 и центральная городская больница №2, в радиусе 1 км медицинские центры «Бонум», «Шанс», «Панацея», «Хеликс» и «Парацельс». Особенная архитектура. Холл жилого комплекса выполнен в элегантных и минималистичных тонах, где гармонично сочетаются керамогранит и декоративная штукатурка. Системы видеонаблюдения охватывают общие зоны, включая входные группы, подъезды и дворовую территории, что позволяет контролировать происходящее в реальном времени. Служба мониторинга активно следит за ситуацией и моментально реагирует на любые происшествия, что обеспечивает дополнительный уровень защиты и спокойствия для всех жильцов. В доме предусмотрен подземный одноуровневый паркинг. Отделка. Улучшенная шумоизоляция сохранит в вашей квартире тишину и спокойствие от внешних звуков и соседних помещений. Автоматическая телеметрия позволит забыть о хлопотах по сбору показаний счетчиков для коммунальных платежей. Система отопления с повышенной теплоотдачей обеспечит быстрое и равномерное прогревание помещения, создавая комфортный микроклимат в любое время года. Армированный 5-камерный профиль окон с режимом микропроветривания системы REHAU эффективно удержит тепло и предотвратит потерю энергии. Премиальные и технологичные лифты KOYO обеспечат быструю и бесперебойную работу, что значительно повысит удобство в перемещения внутри комплекса, минимизируя ожидание жителей. Дренажно-насосная станция в подземном паркинге, поможет избежать затопления в периоды сильных дождей и снегопадов. Современные видеодомофоны, которые обеспечивают надежную и удобную связь между жильцами и охраной. Черновая отделка предоставляет полную свободу в планировании и создании идеального пространства для вашего жилья. Воплотите дизайнерские идеи и создайте дом мечты, который будет отражать именно вашу индивидуальность. Готовы показать квартиру в удобное для вас время. Звоните, чтобы задать вопросы и договориться о просмотре! ID объекта в нашей базе: 981
    размещено: 02.02.2026 , обновлено: 6.02.2026

    1-к квартира, Викулова, 24

    • 39.3 м2
    • 7/26 этаж
    • Состояние:
    8 400 000 ₽ (213700 ₽/м2)
    1-комнатная квартира в ЖК «Тактика», Дом сдан, ключи получены! Продаётся современная 1-комнатная квартира в новом, уже сданном доме жилого комплекса «Тактика»! Ключи на руках — можно заезжать и жить. Отличная планировка. Отличная локация рядом с центром и развитой инфраструктурой. Идеальный вариант для первой собственной квартиры, инвестиции или комфортной жизни. О КОМПЛЕКСЕ: ЖК «Тактика» — это современный комплекс комфорт-класса от надежного застройщика. Дом уже построен и сдан в эксплуатацию, что означает: - Никаких рисков долгостроя. Не нужно ждать годы. - Можно сразу начинать делать ремонт и заселяться. О КВАРТИРЕ: Площадь: общая 39,3 кв.м. Этаж: 7/25. Планировка: Удачная, функциональная планировка с изолированной комнатой. Есть все необходимые зоны: прихожая , совмещенный санузел, кухня 12,2 кв.м., жилая комната 16,5 кв.м.. Состояние: Квартира новая, никто не проживал. Отличная возможность стать первым хозяином. ЛОКАЦИЯ И ИНФРАСТРУКТУРА: Район отличается развитой инфраструктурой и транспортной доступностью: Рядом с центром: Быстрый выезд в центр Екатеринбурга. Комплекс расположен в границах улиц Татищева – Викулова – Венгерских Коммунаров, возле Акватории Верх-Исетского пруда. Транспорт: Остановки общественного транспорта в шаговой доступности, удобный выезд на основные магистрали. Магазины и услуги: В пешей доступности супермаркеты («Пятерочка», «Магнит» и др.), аптеки, салоны красоты, отделения банков. Образование и здоровье: Детские сады, школы и поликлиники в районе в шаговой доступности. Перспективный район — инфраструктура продолжает развиваться, что положительно влияет на стоимость недвижимости. Идеально для: Молодой семьи или одного человека, желающего иметь собственное жилье. Инвестора для последующей сдачи в аренду (востребованный район). Покупки для детей/родственников. Готовы показать квартиру в удобное для вас время. Звоните, чтобы задать вопросы и договориться о просмотре! ID объекта в нашей базе: 980
    размещено: 02.02.2026 , обновлено: 6.02.2026

    1-к квартира, Викулова, 24

    • 48 м2
    • 13/18 этаж
    • Состояние:
    9 900 000 ₽ (206300 ₽/м2)
    Жилой комплекс «ТАКТИКА» расположен в границах улиц Татищева, Викулова и Венгерских Коммунаров, адрес Викулова, 24, вблизи Акватории пруда Верх-Исетского района. Дом повышенного комфорта предлагает: современный и безопасный двор, ландшафтный дизайн, пространство для отдыха на крыше и фитнес клуб с бассейном. Максимальное удобство и доступность городской инфраструктуры, остановки общественного транспорта, трамвайная линия. Благодаря удобному расположению остановок, вы сможете сэкономить время на поездках и легче планировать свои маршруты. Благоустройство. Закрытый двор комплекса, создает место безопасности и удобства, созданное для семейного отдыха и детских игр. Среди элементов — веревка альпиниста, балансировочные столбики, змейка и подвесной гамак. Есть детские карусели и деревянные качели на любой вкус: классические и качели-гамаки. Двор полностью свободен от машин, что гарантирует безопасность и спокойствие для всех его обителей. Для взрослых во дворе воркаут-зона с кардио-тренажёрами, силовой и атлетический комплекс. А также настольный теннис и пространство для йоги на открытом воздухе. В комплеске размещен фитнес-центр с бассейном. В 5 минутах от жилищного комплекса 4 школы, ещё 3 — в 10 минутах, в том числе школа №1, построенная в 2019 году по последнему слову техники. Рядом 7 садиков, среди них два премиальных детских сада «Согласие», 15 учреждений дополнительного образования, например, школа программирования «Алгоритмика» и Международная школа скорочтения. В 10 минутах ходьбы — детская поликлиника №11, «Новая больница» и «Детский доктор». В 15 минутах езды горбольницы №41, №40 и центральная городская больница №2, в радиусе 1 км медицинские центры «Бонум», «Шанс», «Панацея», «Хеликс» и «Парацельс». Особенная архитектура. Холл жилого комплекса выполнен в элегантных и минималистичных тонах, где гармонично сочетаются керамогранит и декоративная штукатурка. Системы видеонаблюдения охватывают общие зоны, включая входные группы, подъезды и дворовую территории, что позволяет контролировать происходящее в реальном времени. Служба мониторинга активно следит за ситуацией и моментально реагирует на любые происшествия, что обеспечивает дополнительный уровень защиты и спокойствия для всех жильцов. В доме предусмотрен подземный одноуровневый паркинг. Отделка. Улучшенная шумоизоляция сохранит в вашей квартире тишину и спокойствие от внешних звуков и соседних помещений. Автоматическая телеметрия позволит забыть о хлопотах по сбору показаний счетчиков для коммунальных платежей. Система отопления с повышенной теплоотдачей обеспечит быстрое и равномерное прогревание помещения, создавая комфортный микроклимат в любое время года. Армированный 5-камерный профиль окон с режимом микропроветривания системы REHAU эффективно удержит тепло и предотвратит потерю энергии. Премиальные и технологичные лифты KOYO обеспечат быструю и бесперебойную работу, что значительно повысит удобство в перемещения внутри комплекса, минимизируя ожидание жителей. Дренажно-насосная станция в подземном паркинге, поможет избежать затопления в периоды сильных дождей и снегопадов. Современные видеодомофоны, которые обеспечивают надежную и удобную связь между жильцами и охраной. Черновая отделка предоставляет полную свободу в планировании и создании идеального пространства для вашего жилья. Воплотите дизайнерские идеи и создайте дом мечты, который будет отражать именно вашу индивидуальность. Готовы показать квартиру в удобное для вас время. Звоните, чтобы задать вопросы и договориться о просмотре! ID объекта в нашей базе: 978
    размещено: 02.02.2026 , обновлено: 4.02.2026

    2-к квартира, Викулова, 24

    • 71 м2
    • 17/18 этаж
    • Состояние:
    13 500 000 ₽ (190100 ₽/м2)
    Жилой комплекс «ТАКТИКА» расположен в границах улиц Татищева, Викулова и Венгерских Коммунаров, адрес Викулова, 24, вблизи Акватории пруда Верх-Исетского района. Дом повышенного комфорта предлагает: современный и безопасный двор, ландшафтный дизайн, пространство для отдыха на крыше и фитнес клуб с бассейном. Максимальное удобство и доступность городской инфраструктуры, остановки общественного транспорта, трамвайная линия. Благодаря удобному расположению остановок, вы сможете сэкономить время на поездках и легче планировать свои маршруты. Благоустройство. Закрытый двор комплекса, создает место безопасности и удобства, созданное для семейного отдыха и детских игр. Среди элементов — веревка альпиниста, балансировочные столбики, змейка и подвесной гамак. Есть детские карусели и деревянные качели на любой вкус: классические и качели-гамаки. Двор полностью свободен от машин, что гарантирует безопасность и спокойствие для всех его обителей. Для взрослых во дворе воркаут-зона с кардио-тренажёрами, силовой и атлетический комплекс. А также настольный теннис и пространство для йоги на открытом воздухе. В комплеске размещен фитнес-центр с бассейном. В 5 минутах от жилищного комплекса 4 школы, ещё 3 — в 10 минутах, в том числе школа №1, построенная в 2019 году по последнему слову техники. Рядом 7 садиков, среди них два премиальных детских сада «Согласие», 15 учреждений дополнительного образования, например, школа программирования «Алгоритмика» и Международная школа скорочтения. В 10 минутах ходьбы — детская поликлиника №11, «Новая больница» и «Детский доктор». В 15 минутах езды горбольницы №41, №40 и центральная городская больница №2, в радиусе 1 км медицинские центры «Бонум», «Шанс», «Панацея», «Хеликс» и «Парацельс». Особенная архитектура. Холл жилого комплекса выполнен в элегантных и минималистичных тонах, где гармонично сочетаются керамогранит и декоративная штукатурка. Системы видеонаблюдения охватывают общие зоны, включая входные группы, подъезды и дворовую территории, что позволяет контролировать происходящее в реальном времени. Служба мониторинга активно следит за ситуацией и моментально реагирует на любые происшествия, что обеспечивает дополнительный уровень защиты и спокойствия для всех жильцов. В доме предусмотрен подземный одноуровневый паркинг. Отделка. Улучшенная шумоизоляция сохранит в вашей квартире тишину и спокойствие от внешних звуков и соседних помещений. Автоматическая телеметрия позволит забыть о хлопотах по сбору показаний счетчиков для коммунальных платежей. Система отопления с повышенной теплоотдачей обеспечит быстрое и равномерное прогревание помещения, создавая комфортный микроклимат в любое время года. Армированный 5-камерный профиль окон с режимом микропроветривания системы REHAU эффективно удержит тепло и предотвратит потерю энергии. Премиальные и технологичные лифты KOYO обеспечат быструю и бесперебойную работу, что значительно повысит удобство в перемещения внутри комплекса, минимизируя ожидание жителей. Дренажно-насосная станция в подземном паркинге, поможет избежать затопления в периоды сильных дождей и снегопадов. Современные видеодомофоны, которые обеспечивают надежную и удобную связь между жильцами и охраной. Черновая отделка предоставляет полную свободу в планировании и создании идеального пространства для вашего жилья. Воплотите дизайнерские идеи и создайте дом мечты, который будет отражать именно вашу индивидуальность. Готовы показать квартиру в удобное для вас время. Звоните, чтобы задать вопросы и договориться о просмотре! ID объекта в нашей базе: 977
    размещено: 02.02.2026 , обновлено: 6.02.2026

    1-к квартира, Викулова, 24

    • 45 м2
    • 10/26 этаж
    • Состояние:
    9 400 000 ₽ (208900 ₽/м2)
    Жилой комплекс «ТАКТИКА» расположен в границах улиц Татищева, Викулова и Венгерских Коммунаров, адрес Викулова, 24, вблизи Акватории пруда Верх-Исетского района. Дом повышенного комфорта предлагает: современный и безопасный двор, ландшафтный дизайн, пространство для отдыха на крыше и фитнес клуб с бассейном. Максимальное удобство и доступность городской инфраструктуры, остановки общественного транспорта, трамвайная линия. Благодаря удобному расположению остановок, вы сможете сэкономить время на поездках и легче планировать свои маршруты. Благоустройство. Закрытый двор комплекса, создает место безопасности и удобства, созданное для семейного отдыха и детских игр. Среди элементов — веревка альпиниста, балансировочные столбики, змейка и подвесной гамак. Есть детские карусели и деревянные качели на любой вкус: классические и качели-гамаки. Двор полностью свободен от машин, что гарантирует безопасность и спокойствие для всех его обителей. Для взрослых во дворе воркаут-зона с кардио-тренажёрами, силовой и атлетический комплекс. А также настольный теннис и пространство для йоги на открытом воздухе. В комплеске размещен фитнес-центр с бассейном. В 5 минутах от жилищного комплекса 4 школы, ещё 3 — в 10 минутах, в том числе школа №1, построенная в 2019 году по последнему слову техники. Рядом 7 садиков, среди них два премиальных детских сада «Согласие», 15 учреждений дополнительного образования, например, школа программирования «Алгоритмика» и Международная школа скорочтения. В 10 минутах ходьбы — детская поликлиника №11, «Новая больница» и «Детский доктор». В 15 минутах езды горбольницы №41, №40 и центральная городская больница №2, в радиусе 1 км медицинские центры «Бонум», «Шанс», «Панацея», «Хеликс» и «Парацельс». Особенная архитектура. Холл жилого комплекса выполнен в элегантных и минималистичных тонах, где гармонично сочетаются керамогранит и декоративная штукатурка. Системы видеонаблюдения охватывают общие зоны, включая входные группы, подъезды и дворовую территории, что позволяет контролировать происходящее в реальном времени. Служба мониторинга активно следит за ситуацией и моментально реагирует на любые происшествия, что обеспечивает дополнительный уровень защиты и спокойствия для всех жильцов. В доме предусмотрен подземный одноуровневый паркинг. Отделка. Улучшенная шумоизоляция сохранит в вашей квартире тишину и спокойствие от внешних звуков и соседних помещений. Автоматическая телеметрия позволит забыть о хлопотах по сбору показаний счетчиков для коммунальных платежей. Система отопления с повышенной теплоотдачей обеспечит быстрое и равномерное прогревание помещения, создавая комфортный микроклимат в любое время года. Армированный 5-камерный профиль окон с режимом микропроветривания системы REHAU эффективно удержит тепло и предотвратит потерю энергии. Премиальные и технологичные лифты KOYO обеспечат быструю и бесперебойную работу, что значительно повысит удобство в перемещения внутри комплекса, минимизируя ожидание жителей. Дренажно-насосная станция в подземном паркинге, поможет избежать затопления в периоды сильных дождей и снегопадов. Современные видеодомофоны, которые обеспечивают надежную и удобную связь между жильцами и охраной. Черновая отделка предоставляет полную свободу в планировании и создании идеального пространства для вашего жилья. Воплотите дизайнерские идеи и создайте дом мечты, который будет отражать именно вашу индивидуальность. Готовы показать квартиру в удобное для вас время. Звоните, чтобы задать вопросы и договориться о просмотре! ID объекта в нашей базе: 976
    размещено: 02.02.2026 , обновлено: 5.02.2026

    1-к квартира, Викулова, 24

    • 26 м2
    • 5/26 этаж
    • Состояние:
    5 600 000 ₽ (215400 ₽/м2)
    Жилой комплекс «ТАКТИКА» расположен в границах улиц Татищева, Викулова и Венгерских Коммунаров, адрес Викулова, 24, вблизи Акватории пруда Верх-Исетского района. Дом повышенного комфорта предлагает: современный и безопасный двор, ландшафтный дизайн, пространство для отдыха на крыше и фитнес клуб с бассейном. Максимальное удобство и доступность городской инфраструктуры, остановки общественного транспорта, трамвайная линия. Благодаря удобному расположению остановок, вы сможете сэкономить время на поездках и легче планировать свои маршруты. Благоустройство. Закрытый двор комплекса, создает место безопасности и удобства, созданное для семейного отдыха и детских игр. Среди элементов — веревка альпиниста, балансировочные столбики, змейка и подвесной гамак. Есть детские карусели и деревянные качели на любой вкус: классические и качели-гамаки. Двор полностью свободен от машин, что гарантирует безопасность и спокойствие для всех его обителей. Для взрослых во дворе воркаут-зона с кардио-тренажёрами, силовой и атлетический комплекс. А также настольный теннис и пространство для йоги на открытом воздухе. В комплеске размещен фитнес-центр с бассейном. В 5 минутах от жилищного комплекса 4 школы, ещё 3 — в 10 минутах, в том числе школа №1, построенная в 2019 году по последнему слову техники. Рядом 7 садиков, среди них два премиальных детских сада «Согласие», 15 учреждений дополнительного образования, например, школа программирования «Алгоритмика» и Международная школа скорочтения. В 10 минутах ходьбы — детская поликлиника №11, «Новая больница» и «Детский доктор». В 15 минутах езды горбольницы №41, №40 и центральная городская больница №2, в радиусе 1 км медицинские центры «Бонум», «Шанс», «Панацея», «Хеликс» и «Парацельс». Особенная архитектура. Холл жилого комплекса выполнен в элегантных и минималистичных тонах, где гармонично сочетаются керамогранит и декоративная штукатурка. Системы видеонаблюдения охватывают общие зоны, включая входные группы, подъезды и дворовую территории, что позволяет контролировать происходящее в реальном времени. Служба мониторинга активно следит за ситуацией и моментально реагирует на любые происшествия, что обеспечивает дополнительный уровень защиты и спокойствия для всех жильцов. В доме предусмотрен подземный одноуровневый паркинг. Отделка. Улучшенная шумоизоляция сохранит в вашей квартире тишину и спокойствие от внешних звуков и соседних помещений. Автоматическая телеметрия позволит забыть о хлопотах по сбору показаний счетчиков для коммунальных платежей. Система отопления с повышенной теплоотдачей обеспечит быстрое и равномерное прогревание помещения, создавая комфортный микроклимат в любое время года. Армированный 5-камерный профиль окон с режимом микропроветривания системы REHAU эффективно удержит тепло и предотвратит потерю энергии. Премиальные и технологичные лифты KOYO обеспечат быструю и бесперебойную работу, что значительно повысит удобство в перемещения внутри комплекса, минимизируя ожидание жителей. Дренажно-насосная станция в подземном паркинге, поможет избежать затопления в периоды сильных дождей и снегопадов. Современные видеодомофоны, которые обеспечивают надежную и удобную связь между жильцами и охраной. Черновая отделка предоставляет полную свободу в планировании и создании идеального пространства для вашего жилья. Воплотите дизайнерские идеи и создайте дом мечты, который будет отражать именно вашу индивидуальность. Готовы показать квартиру в удобное для вас время. Звоните, чтобы задать вопросы и договориться о просмотре! ID объекта в нашей базе: 975
    размещено: 02.02.2026 , обновлено: 6.02.2026

История предложений в этом доме

объявление снято с публикации в продаже комнат площадь этаж цена,
Екатеринбург, ул. Викулова, 24 (ВИЗ) - фото квартиры 31 октября 2025 90 дн. 0 24.7 9/26 4 250 000

Похожие предложения о продаже квартир в Екатеринбурге (ВИЗ)

  • 1-к квартира, Отрадная, 1

    • 45 м2
    • 10/25 этаж
    • Состояние: идеальное
    7 300 000 ₽ (162200 ₽/м2)
    Стильная евродвушка 45 м² с дизайнерским ремонтом. Предлагаем вашему вниманию квартиру, где каждая деталь продумана до мелочей. Об интерьере: - Евродвушка с изолированной спальней, раздельным санузлом и большой кухней-гостиной 21 м² - Авторский ремонт премиум-класса, качественные материалы и современные технологии - Умное планирование, удобная ниша под гардеробную О качестве ремонта (для тех, кто ценит детали): - Идеально гладкие стены и потолки (как поверхность экрана телевизора), многослойное выравнивание и покраска на профессиональном оборудовании. Стоимость таких работ обычно от 3000 до 5000 руб. за 1 м² плюс материалы - Стеклохолст под покраской — защита от появления мелких трещин со временем - Специальные демпферные швы между стенами и потолком — защита от трещин при усадке дома - Сверхпрочная краска 1 класса устойчивости — стены можно мыть с бытовой химией без потери внешнего вида - Светодиодная подсветка в ванной и туалете - Перенесены выключатели и электрощиток для большего удобства О локации: Район для тех, кто ценит время и комфорт, в пешей доступности есть всё: - Торговые центры: «Радуга Парк», «МЕГА», магазин «Монетка» прямо в доме - Спорт: спортивная площадка и детские игровые зоны - Для автомобиля: есть возможность приобрести или арендовать машиноместо на подземной парковке, спуск на лифте; рядом заправка с качественным топливом и удобные выезды в любую часть города Дополнительно: - Вид на лесопарк - Закрытый двор и охрана ID объекта в нашей базе: 12197
    размещено: 04.02.2026 , обновлено: 6.02.2026
  • 1-к квартира, Викулова, 24

    • 44 м2
    • 22/25 этаж
    • Состояние: плохое
    9 400 000 ₽ (213600 ₽/м2)
    Жилой комплекс «ТАКТИКА» расположен в границах улиц Татищева, Викулова и Венгерских Коммунаров, адрес Викулова, 24, вблизи Акватории пруда Верх-Исетского района. Дом повышенного комфорта предлагает: современный и безопасный двор, ландшафтный дизайн, пространство для отдыха на крыше и фитнес клуб с бассейном. Максимальное удобство и доступность городской инфраструктуры, остановки общественного транспорта, трамвайная линия. Благодаря удобному расположению остановок, вы сможете сэкономить время на поездках и легче планировать свои маршруты. Благоустройство.Закрытый двор комплекса, создает место безопасности и удобства, созданное для семейного отдыха и детских игр. Среди элементов — веревка альпиниста, балансировочные столбики, змейка и подвесной гамак. Есть детские карусели и деревянные качели на любой вкус: классические и качели-гамаки. Двор полностью свободен от машин, что гарантирует безопасность и спокойствие для всех его обителей. Для взрослых во дворе воркаут-зона с кардио-тренажёрами, силовой и атлетический комплекс. А также настольный теннис и пространство для йоги на открытом воздухе. В комплеске размещен фитнес-центр с бассейном. В 5 минутах от жилищного комплекса 4 школы, ещё 3 — в 10 минутах, в том числе школа №1, построенная в 2019 году по последнему слову техники. Рядом 7 садиков, среди них два премиальных детских сада «Согласие», 15 учреждений дополнительного образования, например, школа программирования «Алгоритмика» и Международная школа скорочтения. В 10 минутах ходьбы — детская поликлиника №11, «Новая больница» и «Детский доктор». В 15 минутах езды горбольницы №41, №40 и центральная городская больница №2, в радиусе 1 км медицинские центры «Бонум», «Шанс», «Панацея», «Хеликс» и «Парацельс». Особенная архитектура. Холл жилого комплекса выполнен в элегантных и минималистичных тонах, где гармонично сочетаются керамогранит и декоративная штукатурка. Системы видеонаблюдения охватывают общие зоны, включая входные группы, подъезды и дворовую территории, что позволяет контролировать происходящее в реальном времени. Служба мониторинга активно следит за ситуацией и моментально реагирует на любые происшествия, что обеспечивает дополнительный уровень защиты и спокойствия для всех жильцов. В доме предусмотрен подземный одноуровневый паркинг. Отделка.Улучшенная шумоизоляция сохранит в вашей квартире тишину и спокойствие от внешних звуков и соседних помещений. Автоматическая телеметрия позволит забыть о хлопотах по сбору показаний счетчиков для коммунальных платежей. Система отопления с повышенной теплоотдачей обеспечит быстрое и равномерное прогревание помещения, создавая комфортный микроклимат в любое время года. Армированный 5-камерный профиль окон с режимом микропроветривания системы REHAU эффективно удержит тепло и предотвратит потерю энергии. Премиальные и технологичные лифты KOYO обеспечат быструю и бесперебойную работу, что значительно повысит удобство в перемещения внутри комплекса, минимизируя ожидание жителей. Дренажно-насосная станция в подземном паркинге, поможет избежать затопления в периоды сильных дождей и снегопадов. Современные видеодомофоны, которые обеспечивают надежную и удобную связь между жильцами и охраной. Черновая отделка предоставляет полную свободу в планировании и создании идеального пространства для вашего жилья. Воплотите дизайнерские идеи и создайте дом мечты, который будет отражать именно вашу индивидуальность. Готовы показать квартиру в удобное для вас время. Звоните, чтобы задать вопросы и договориться о просмотре! ID объекта в нашей базе: 1002
    размещено: 06.02.2026 , обновлено: 6.02.2026
  • 1-к квартира, Викулова, 24

    • 44.6 м2
    • 22/25 этаж
    • Состояние: плохое
    9 600 000 ₽ (215200 ₽/м2)
    1-комнатная квартира в ЖК «Тактика», Дом сдан, ключи получены! Продаётся современная 1-комнатная квартира в новом, уже сданном доме жилого комплекса «Тактика»! Ключи на руках — можно заезжать и жить. Отличная планировка.. Отличная локация рядом с центром и развитой инфраструктурой. Идеальный вариант для первой собственной квартиры, инвестиции или комфортной жизни. Жилой комплекс «ТАКТИКА» расположен в границах улиц Татищева, Викулова и Венгерских Коммунаров, адрес Викулова, 24, вблизи Акватории пруда Верх-Исетского района. Дом повышенного комфорта предлагает: современный и безопасный двор, ландшафтный дизайн, пространство для отдыха на крыше и фитнес клуб с бассейном. Максимальное удобство и доступность городской инфраструктуры, остановки общественного транспорта, трамвайная линия. Благодаря удобному расположению остановок, вы сможете сэкономить время на поездках и легче планировать свои маршруты. Благоустройство.Закрытый двор комплекса, создает место безопасности и удобства, созданное для семейного отдыха и детских игр. Среди элементов — веревка альпиниста, балансировочные столбики, змейка и подвесной гамак. Есть детские карусели и деревянные качели на любой вкус: классические и качели-гамаки. Двор полностью свободен от машин, что гарантирует безопасность и спокойствие для всех его обителей. Для взрослых во дворе воркаут-зона с кардио-тренажёрами, силовой и атлетический комплекс. А также настольный теннис и пространство для йоги на открытом воздухе. В комплеске размещен фитнес-центр с бассейном. В 5 минутах от жилищного комплекса 4 школы, ещё 3 — в 10 минутах, в том числе школа №1, построенная в 2019 году по последнему слову техники. Рядом 7 садиков, среди них два премиальных детских сада «Согласие», 15 учреждений дополнительного образования, например, школа программирования «Алгоритмика» и Международная школа скорочтения. В 10 минутах ходьбы — детская поликлиника №11, «Новая больница» и «Детский доктор». В 15 минутах езды горбольницы №41, №40 и центральная городская больница №2, в радиусе 1 км медицинские центры «Бонум», «Шанс», «Панацея», «Хеликс» и «Парацельс». Особенная архитектура.Холл жилого комплекса выполнен в элегантных и минималистичных тонах, где гармонично сочетаются керамогранит и декоративная штукатурка. Системы видеонаблюдения охватывают общие зоны, включая входные группы, подъезды и дворовую территории, что позволяет контролировать происходящее в реальном времени. Служба мониторинга активно следит за ситуацией и моментально реагирует на любые происшествия, что обеспечивает дополнительный уровень защиты и спокойствия для всех жильцов. В доме предусмотрен подземный одноуровневый паркинг. Отделка.Улучшенная шумоизоляция сохранит в вашей квартире тишину и спокойствие от внешних звуков и соседних помещений. Автоматическая телеметрия позволит забыть о хлопотах по сбору показаний счетчиков для коммунальных платежей. Система отопления с повышенной теплоотдачей обеспечит быстрое и равномерное прогревание помещения, создавая комфортный микроклимат в любое время года. Армированный 5-камерный профиль окон с режимом микропроветривания системы REHAU эффективно удержит тепло и предотвратит потерю энергии. Премиальные и технологичные лифты KOYO обеспечат быструю и бесперебойную работу, что значительно повысит удобство в перемещения внутри комплекса, минимизируя ожидание жителей. Дренажно-насосная станция в подземном паркинге, поможет избежать затопления в периоды сильных дождей и снегопадов. Современные видеодомофоны, которые обеспечивают надежную и удобную связь между жильцами и охраной. Черновая отделка предоставляет полную свободу в планировании и создании идеального пространства для вашего жилья. Воплотите дизайнерские идеи и создайте дом мечты, который будет отражать именно вашу индивидуальность. Готовы показать квартиру в удобное для вас время. Звоните, чтобы задать вопросы и договориться о просмотре! ID объекта в нашей базе: 994
    размещено: 05.02.2026 , обновлено: 5.02.2026
  • 1-к квартира, Викулова, 24

    • 49.2 м2
    • 4/25 этаж
    • Состояние: удовлетворительное
    7 000 000 ₽ (142300 ₽/м2)
    Жилой комплекс «Тактика» расположен в границах улиц Татищева, Викулова и Венгерских Коммунаров, адрес: Викулова, 24, вблизи акватории пруда Верх-Исетского района. Дом повышенного комфорта предлагает современный и безопасный двор, ландшафтный дизайн, пространство для отдыха на крыше и фитнес-клуб с бассейном. Максимальное удобство и доступность городской инфраструктуры, рядом остановки общественного транспорта и трамвайная линия, что позволяет экономить время на поездках и легко планировать маршруты. Благоустройство: закрытый двор комплекса создаёт безопасное и удобное пространство для семейного отдыха и детских игр. Среди элементов – «верёвка альпиниста», балансировочные столбики, змейка и подвесной гамак. Есть карусели и деревянные качели: классические и качели-гамаки. Двор полностью свободен от машин, что обеспечивает безопасность и спокойствие жителей. Для взрослых во дворе предусмотрена воркаут-зона с кардиотренажёрами, силовой и атлетический комплекс, настольный теннис и пространство для йоги на открытом воздухе. В комплексе размещён фитнес-центр с бассейном. Образование: в 5 минутах от комплекса расположены 4 школы, ещё 3 – в 10 минутах, в том числе школа №1, построенная в 2019 году. Рядом 7 детских садов, среди них два премиальных сада «Согласие», а также 15 учреждений дополнительного образования, например школа программирования «Алгоритмика» и Международная школа скорочтения. Медицина: в 10 минутах ходьбы – детская поликлиника №11, «Новая больница» и «Детский доктор». В 15 минутах езды – горбольницы №41, №40 и центральная городская больница №2. В радиусе 1 км расположены медицинские центры «Бонум», «Шанс», «Панацея», «Хеликс» и «Парацельс». Особенная архитектура: холл комплекса выполнен в элегантных, минималистичных тонах, сочетающих керамогранит и декоративную штукатурку. Системы видеонаблюдения охватывают общие зоны, входные группы, подъезды и дворовую территорию. Служба мониторинга контролирует ситуацию и оперативно реагирует на происшествия, обеспечивая дополнительную защиту и спокойствие жильцов. В доме предусмотрен подземный одноуровневый паркинг. Отделка и инженерия: улучшенная шумоизоляция обеспечивает тишину в квартире. Автоматическая телеметрия избавляет от необходимости самому передавать показания счётчиков. Система отопления с повышенной теплоотдачей обеспечивает быстрый и равномерный прогрев. Армированный 5-камерный профиль окон с режимом микропроветривания (REHAU) удерживает тепло и снижает потери энергии. Премиальные лифты KOYO обеспечивают быструю и надёжную работу, минимизируя ожидание. Дренажно-насосная станция в подземном паркинге предотвращает затопления в периоды сильных осадков. Современные видеодомофоны обеспечивают удобную связь между жильцами и охраной. Черновая отделка даёт полную свободу для планирования и создания индивидуального пространства. Можно реализовать любые дизайнерские решения и создать дом мечты, отражающий вашу индивидуальность. Готовы показать объект в удобное для вас время. Звоните, чтобы задать вопросы и договориться о просмотре! ID объекта в нашей базе: 982.
    размещено: 02.02.2026 , обновлено: 5.02.2026
  • 1-к квартира, Викулова, 24

    • 43.4 м2
    • 4/18 этаж
    • Состояние: плохое
    9 200 000 ₽ (212000 ₽/м2)
    1-комнатная квартира в ЖК «Тактика», дом сдан, ключи получены! Продаётся современная 1-комнатная квартира в новом, уже сданном доме жилого комплекса «Тактика». Ключи на руках, можно заезжать и жить. Отличная планировка, удачная локация рядом с центром и развитой инфраструктурой. Идеальный вариант для первой собственной квартиры, инвестиций или комфортной жизни. О КОМПЛЕКСЕ ЖК «Тактика» – современный комплекс комфорт-класса от надёжного застройщика. Дом построен и сдан в эксплуатацию, что означает: - нет рисков долгостроя, не нужно ждать годы; - можно сразу начинать ремонт и заселяться. О КВАРТИРЕ Площадь: общая 43,4 кв. м. Этаж: 4/18. Планировка: удачная, функциональная, с изолированной комнатой. Есть все необходимые зоны: прихожая с выделенной зоной гардеробной, совмещённый санузел, кухня 12,9 кв. м, жилая комната 17,7 кв. м. Состояние: квартира новая, никто не проживал. Отличная возможность стать первым хозяином. ЛОКАЦИЯ И ИНФРАСТРУКТУРА Район с развитой инфраструктурой и удобной транспортной доступностью. - Рядом с центром: быстрый выезд в центр Екатеринбурга. - Комплекс в границах улиц Татищева – Викулова – Венгерских Коммунаров, возле акватории Верх-Исетского пруда. - Транспорт: остановки общественного транспорта в шаговой доступности, удобный выезд на основные магистрали. - Магазины и услуги: в пешей доступности супермаркеты («Пятёрочка», «Магнит» и др.), аптеки, салоны красоты, отделения банков. - Образование и здоровье: детские сады, школы и поликлиники в шаговой доступности. Перспективный район, инфраструктура продолжает развиваться, что положительно влияет на стоимость недвижимости. Идеально для: - молодой семьи или одного человека, желающего иметь собственное жильё; - инвестора для последующей сдачи в аренду (востребованный район); - покупки для детей или родственников. Готовы показать квартиру в удобное для вас время. Звоните, чтобы задать вопросы и договориться о просмотре! ID объекта в нашей базе: 984.
    размещено: 02.02.2026 , обновлено: 5.02.2026

    1-к квартира, Викулова, 78

    • 37.4 м2
    • 5/25 этаж
    • Состояние: идеальное
    7 500 000 ₽ (200500 ₽/м2)
    Продается новая однокомнатная квартира, в ЖК Видный, новая мебель и техника, можно сразу заехать, все необходимое есть, мебель и техника (посудомойка, плита, микроволновка, чайник, стиральная машина), карнизы и тюли. Напротив общественный транспорт, инфраструктура в доме и в ближайших домах, двор закрытый. Чистая продажа, документы готовы, один собственник без ипотеки и МСК. Звоните с удовольствием покажу квартиру. ID объекта в нашей базе: 601
    размещено: 03.02.2026 , обновлено: 6.02.2026

    1-к квартира, Крауля, 107

    • 30.7 м2
    • 13/17 этаж
    • Состояние: идеальное
    6 600 000 ₽ (215000 ₽/м2)
    Продается новая квартира ,с хорошим ремонтом, в современном жилом комплексе ЖК Русь. Вложений не требует. После приобретения можно сразу заехать. Особенно подойдет для проживания молодой и дружной семьи. Месторасположение очень удачное. Высокая транспортная доступность, поможет быстро добраться до Центра города. Пожалуйста позвоните! На все вопросы отвечу! Все виды оплаты рассмотрим, в том числе ипотеку и сертификаты. ID объекта в нашей базе: 13563
    размещено: 03.02.2026 , обновлено: 6.02.2026

    1-к квартира, Викулова, 24

    • 45 м2
    • 25/26 этаж
    • Состояние: плохое
    9 700 000 ₽ (215600 ₽/м2)
    Офигенная квартира с видом на миллион!Жилой комплекс «ТАКТИКА» - Это Дом повышенного комфорта: современный и безопасный двор, ландшафтный дизайн, пространство для отдыха на крыше и фитнес клуб с бассейном, вблизи Акватории пруда Верх-Исетского района. Максимальное удобство и доступность городской инфраструктуры, и удобное расположение остановок общественного транспорта Благоустройство. Закрытый двор комплекса, для семейного отдыха и детских игр. Есть детские карусели и деревянные качели на любой вкус: классические и качели-гамаки, веревка альпиниста, балансировочные столбики, змейка и подвесной гамак. Для взрослых так же есть все для активного и пассивного отдыха. В комплексе размещен фитнес-центр с бассейном. В 5 минутах от ЖК 4 школы, а так же новая современная школа №1. Рядом 7 детских садов, среди них два премиальных детских сада «Согласие». 15 учреждений дополнительного образования. В 10 минутах ходьбы — детская поликлиника № 11, «Новая больница» и «Детский доктор». В 15 минутах езды горбольницы № 41, № 40 и центральная городская больница №2, в радиусе 1 км медицинские центры «Бонум», «Шанс», «Панацея», «Хеликс» и «Парацельс». Особенная архитектура. Холл жилого комплекса выполнен в элегантных и минималистичных тонах. Служба мониторинга. В доме предусмотрен подземный одноуровневый паркинг. Отделка. Улучшенная шумоизоляция. Автоматическая телеметрия. Система отопления с повышенной теплоотдачей. Армированный 5-камерный профиль окон с режимом микропроветривания системы REHAU. Премиальные и технологичные лифты KOYO. Дренажно-насосная станция в подземном паркинге. Современные видеодомофоны. Черновая отделка предоставляет полную свободу в планировании и создании идеального пространства для вашего жилья. Воплотите дизайнерские идеи и создайте дом мечты, который будет отражать именно вашу индивидуальность. Готовы показать квартиру в удобное для вас время. Звоните, чтобы задать вопросы и договориться о просмотре! ID объекта в нашей базе: 989
    размещено: 03.02.2026 , обновлено: 6.02.2026

    1-к квартира, Викулова, 24

    • 39 м2
    • 18/26 этаж
    • Состояние: плохое
    8 100 000 ₽ (207700 ₽/м2)
    Жилой комплекс «ТАКТИКА» - Это Дом повышенного комфорта: современный и безопасный двор, ландшафтный дизайн, пространство для отдыха на крыше и фитнес клуб с бассейном, вблизи Акватории пруда Верх-Исетского района. Максимальное удобство и доступность городской инфраструктуры, и удобное расположение остановок общественного транспорта Благоустройство. Закрытый двор комплекса, для семейного отдыха и детских игр. Есть детские карусели и деревянные качели на любой вкус: классические и качели-гамаки, веревка альпиниста, балансировочные столбики, змейка и подвесной гамак. Для взрослых так же есть все для активного и пассивного отдыха. В комплексе размещен фитнес-центр с бассейном. В 5 минутах от ЖК 4 школы, а так же новая современная школа №1. Рядом 7 детских садов, среди них два премиальных детских сада «Согласие». 15 учреждений дополнительного образования. В 10 минутах ходьбы — детская поликлиника № 11, «Новая больница» и «Детский доктор». В 15 минутах езды горбольницы № 41, № 40 и центральная городская больница №2, в радиусе 1 км медицинские центры «Бонум», «Шанс», «Панацея», «Хеликс» и «Парацельс». Особенная архитектура. Холл жилого комплекса выполнен в элегантных и минималистичных тонах. Служба мониторинга. В доме предусмотрен подземный одноуровневый паркинг. Отделка. Улучшенная шумоизоляция. Автоматическая телеметрия. Система отопления с повышенной теплоотдачей. Армированный 5-камерный профиль окон с режимом микропроветривания системы REHAU. Премиальные и технологичные лифты KOYO. Дренажно-насосная станция в подземном паркинге. Современные видеодомофоны. Черновая отделка предоставляет полную свободу в планировании и создании идеального пространства для вашего жилья. Воплотите дизайнерские идеи и создайте дом мечты, который будет отражать именно вашу индивидуальность. Готовы показать квартиру в удобное для вас время. Звоните, чтобы задать вопросы и договориться о просмотре! ID объекта в нашей базе: 988
    размещено: 03.02.2026 , обновлено: 6.02.2026

    1-к квартира, Отрадная, 1

    • 43.1 м2
    • 4/25 этаж
    • Состояние: идеальное
    8 700 000 ₽ (201900 ₽/м2)
    Продам евродвушку с отличным ремонтом и мебелью. Кухня оборудована всей необходимой техникой. Прописанных нет.Два взрослых собственника. В собственности имеется кладовая 7.4 м кв с высотой потолков 5м( при желании готовы продать новым владельцам) ID объекта в нашей базе: 26279
    размещено: 03.02.2026 , обновлено: 4.02.2026

    1-к квартира, Викулова, 24

    • 39.1 м2
    • 12/25 этаж
    • Состояние: плохое
    8 400 000 ₽ (214800 ₽/м2)
    1-комнатная квартира в ЖК «Тактика», Дом сдан, ключи получены! Продаётся современная 1-комнатная квартира в новом, уже сданном доме жилого комплекса «Тактика»! Ключи на руках — можно заезжать и жить. Отличная планировка. Отличная локация рядом с центром и развитой инфраструктурой. Идеальный вариант для первой собственной квартиры, инвестиции или комфортной жизни. О КОМПЛЕКСЕ: ЖК «Тактика» — это современный комплекс комфорт-класса от надежного застройщика. Дом уже построен и сдан в эксплуатацию, что означает: - Никаких рисков долгостроя. Не нужно ждать годы. - Можно сразу начинать делать ремонт и заселяться. О КВАРТИРЕ: Площадь: общая 39,1 кв.м. Этаж: 12/25. Планировка: Удачная, функциональная планировка с изолированной комнатой. Есть все необходимые зоны: прихожая , совмещенный санузел, кухня 12,2 кв.м., жилая комната 16,4 кв.м.. Состояние: Квартира новая, никто не проживал. Отличная возможность стать первым хозяином. ЛОКАЦИЯ И ИНФРАСТРУКТУРА: Район отличается развитой инфраструктурой и транспортной доступностью: Рядом с центром: Быстрый выезд в центр Екатеринбурга. Комплекс расположен в границах улиц Татищева – Викулова – Венгерских Коммунаров, возле Акватории Верх-Исетского пруда. Транспорт: Остановки общественного транспорта в шаговой доступности, удобный выезд на основные магистрали. Магазины и услуги: В пешей доступности супермаркеты («Пятерочка», «Магнит» и др.), аптеки, салоны красоты, отделения банков. Образование и здоровье: Детские сады, школы и поликлиники в районе в шаговой доступности. Перспективный район — инфраструктура продолжает развиваться, что положительно влияет на стоимость недвижимости. Идеально для: Молодой семьи или одного человека, желающего иметь собственное жилье. Инвестора для последующей сдачи в аренду (востребованный район). Покупки для детей/родственников. Готовы показать квартиру в удобное для вас время. Звоните, чтобы задать вопросы и договориться о просмотре! ID объекта в нашей базе: 983
    размещено: 02.02.2026 , обновлено: 6.02.2026

    1-к квартира, Викулова, 24

    • 39.3 м2
    • 7/26 этаж
    • Состояние: плохое
    8 400 000 ₽ (213700 ₽/м2)
    1-комнатная квартира в ЖК «Тактика», Дом сдан, ключи получены! Продаётся современная 1-комнатная квартира в новом, уже сданном доме жилого комплекса «Тактика»! Ключи на руках — можно заезжать и жить. Отличная планировка. Отличная локация рядом с центром и развитой инфраструктурой. Идеальный вариант для первой собственной квартиры, инвестиции или комфортной жизни. О КОМПЛЕКСЕ: ЖК «Тактика» — это современный комплекс комфорт-класса от надежного застройщика. Дом уже построен и сдан в эксплуатацию, что означает: - Никаких рисков долгостроя. Не нужно ждать годы. - Можно сразу начинать делать ремонт и заселяться. О КВАРТИРЕ: Площадь: общая 39,3 кв.м. Этаж: 7/25. Планировка: Удачная, функциональная планировка с изолированной комнатой. Есть все необходимые зоны: прихожая , совмещенный санузел, кухня 12,2 кв.м., жилая комната 16,5 кв.м.. Состояние: Квартира новая, никто не проживал. Отличная возможность стать первым хозяином. ЛОКАЦИЯ И ИНФРАСТРУКТУРА: Район отличается развитой инфраструктурой и транспортной доступностью: Рядом с центром: Быстрый выезд в центр Екатеринбурга. Комплекс расположен в границах улиц Татищева – Викулова – Венгерских Коммунаров, возле Акватории Верх-Исетского пруда. Транспорт: Остановки общественного транспорта в шаговой доступности, удобный выезд на основные магистрали. Магазины и услуги: В пешей доступности супермаркеты («Пятерочка», «Магнит» и др.), аптеки, салоны красоты, отделения банков. Образование и здоровье: Детские сады, школы и поликлиники в районе в шаговой доступности. Перспективный район — инфраструктура продолжает развиваться, что положительно влияет на стоимость недвижимости. Идеально для: Молодой семьи или одного человека, желающего иметь собственное жилье. Инвестора для последующей сдачи в аренду (востребованный район). Покупки для детей/родственников. Готовы показать квартиру в удобное для вас время. Звоните, чтобы задать вопросы и договориться о просмотре! ID объекта в нашей базе: 980
    размещено: 02.02.2026 , обновлено: 6.02.2026

    1-к квартира, Викулова, 24

    • 48 м2
    • 13/18 этаж
    • Состояние: удовлетворительное
    9 900 000 ₽ (206300 ₽/м2)
    Жилой комплекс «ТАКТИКА» расположен в границах улиц Татищева, Викулова и Венгерских Коммунаров, адрес Викулова, 24, вблизи Акватории пруда Верх-Исетского района. Дом повышенного комфорта предлагает: современный и безопасный двор, ландшафтный дизайн, пространство для отдыха на крыше и фитнес клуб с бассейном. Максимальное удобство и доступность городской инфраструктуры, остановки общественного транспорта, трамвайная линия. Благодаря удобному расположению остановок, вы сможете сэкономить время на поездках и легче планировать свои маршруты. Благоустройство. Закрытый двор комплекса, создает место безопасности и удобства, созданное для семейного отдыха и детских игр. Среди элементов — веревка альпиниста, балансировочные столбики, змейка и подвесной гамак. Есть детские карусели и деревянные качели на любой вкус: классические и качели-гамаки. Двор полностью свободен от машин, что гарантирует безопасность и спокойствие для всех его обителей. Для взрослых во дворе воркаут-зона с кардио-тренажёрами, силовой и атлетический комплекс. А также настольный теннис и пространство для йоги на открытом воздухе. В комплеске размещен фитнес-центр с бассейном. В 5 минутах от жилищного комплекса 4 школы, ещё 3 — в 10 минутах, в том числе школа №1, построенная в 2019 году по последнему слову техники. Рядом 7 садиков, среди них два премиальных детских сада «Согласие», 15 учреждений дополнительного образования, например, школа программирования «Алгоритмика» и Международная школа скорочтения. В 10 минутах ходьбы — детская поликлиника №11, «Новая больница» и «Детский доктор». В 15 минутах езды горбольницы №41, №40 и центральная городская больница №2, в радиусе 1 км медицинские центры «Бонум», «Шанс», «Панацея», «Хеликс» и «Парацельс». Особенная архитектура. Холл жилого комплекса выполнен в элегантных и минималистичных тонах, где гармонично сочетаются керамогранит и декоративная штукатурка. Системы видеонаблюдения охватывают общие зоны, включая входные группы, подъезды и дворовую территории, что позволяет контролировать происходящее в реальном времени. Служба мониторинга активно следит за ситуацией и моментально реагирует на любые происшествия, что обеспечивает дополнительный уровень защиты и спокойствия для всех жильцов. В доме предусмотрен подземный одноуровневый паркинг. Отделка. Улучшенная шумоизоляция сохранит в вашей квартире тишину и спокойствие от внешних звуков и соседних помещений. Автоматическая телеметрия позволит забыть о хлопотах по сбору показаний счетчиков для коммунальных платежей. Система отопления с повышенной теплоотдачей обеспечит быстрое и равномерное прогревание помещения, создавая комфортный микроклимат в любое время года. Армированный 5-камерный профиль окон с режимом микропроветривания системы REHAU эффективно удержит тепло и предотвратит потерю энергии. Премиальные и технологичные лифты KOYO обеспечат быструю и бесперебойную работу, что значительно повысит удобство в перемещения внутри комплекса, минимизируя ожидание жителей. Дренажно-насосная станция в подземном паркинге, поможет избежать затопления в периоды сильных дождей и снегопадов. Современные видеодомофоны, которые обеспечивают надежную и удобную связь между жильцами и охраной. Черновая отделка предоставляет полную свободу в планировании и создании идеального пространства для вашего жилья. Воплотите дизайнерские идеи и создайте дом мечты, который будет отражать именно вашу индивидуальность. Готовы показать квартиру в удобное для вас время. Звоните, чтобы задать вопросы и договориться о просмотре! ID объекта в нашей базе: 978
    размещено: 02.02.2026 , обновлено: 4.02.2026

    1-к квартира, Викулова, 24

    • 45 м2
    • 10/26 этаж
    • Состояние: удовлетворительное
    9 400 000 ₽ (208900 ₽/м2)
    Жилой комплекс «ТАКТИКА» расположен в границах улиц Татищева, Викулова и Венгерских Коммунаров, адрес Викулова, 24, вблизи Акватории пруда Верх-Исетского района. Дом повышенного комфорта предлагает: современный и безопасный двор, ландшафтный дизайн, пространство для отдыха на крыше и фитнес клуб с бассейном. Максимальное удобство и доступность городской инфраструктуры, остановки общественного транспорта, трамвайная линия. Благодаря удобному расположению остановок, вы сможете сэкономить время на поездках и легче планировать свои маршруты. Благоустройство. Закрытый двор комплекса, создает место безопасности и удобства, созданное для семейного отдыха и детских игр. Среди элементов — веревка альпиниста, балансировочные столбики, змейка и подвесной гамак. Есть детские карусели и деревянные качели на любой вкус: классические и качели-гамаки. Двор полностью свободен от машин, что гарантирует безопасность и спокойствие для всех его обителей. Для взрослых во дворе воркаут-зона с кардио-тренажёрами, силовой и атлетический комплекс. А также настольный теннис и пространство для йоги на открытом воздухе. В комплеске размещен фитнес-центр с бассейном. В 5 минутах от жилищного комплекса 4 школы, ещё 3 — в 10 минутах, в том числе школа №1, построенная в 2019 году по последнему слову техники. Рядом 7 садиков, среди них два премиальных детских сада «Согласие», 15 учреждений дополнительного образования, например, школа программирования «Алгоритмика» и Международная школа скорочтения. В 10 минутах ходьбы — детская поликлиника №11, «Новая больница» и «Детский доктор». В 15 минутах езды горбольницы №41, №40 и центральная городская больница №2, в радиусе 1 км медицинские центры «Бонум», «Шанс», «Панацея», «Хеликс» и «Парацельс». Особенная архитектура. Холл жилого комплекса выполнен в элегантных и минималистичных тонах, где гармонично сочетаются керамогранит и декоративная штукатурка. Системы видеонаблюдения охватывают общие зоны, включая входные группы, подъезды и дворовую территории, что позволяет контролировать происходящее в реальном времени. Служба мониторинга активно следит за ситуацией и моментально реагирует на любые происшествия, что обеспечивает дополнительный уровень защиты и спокойствия для всех жильцов. В доме предусмотрен подземный одноуровневый паркинг. Отделка. Улучшенная шумоизоляция сохранит в вашей квартире тишину и спокойствие от внешних звуков и соседних помещений. Автоматическая телеметрия позволит забыть о хлопотах по сбору показаний счетчиков для коммунальных платежей. Система отопления с повышенной теплоотдачей обеспечит быстрое и равномерное прогревание помещения, создавая комфортный микроклимат в любое время года. Армированный 5-камерный профиль окон с режимом микропроветривания системы REHAU эффективно удержит тепло и предотвратит потерю энергии. Премиальные и технологичные лифты KOYO обеспечат быструю и бесперебойную работу, что значительно повысит удобство в перемещения внутри комплекса, минимизируя ожидание жителей. Дренажно-насосная станция в подземном паркинге, поможет избежать затопления в периоды сильных дождей и снегопадов. Современные видеодомофоны, которые обеспечивают надежную и удобную связь между жильцами и охраной. Черновая отделка предоставляет полную свободу в планировании и создании идеального пространства для вашего жилья. Воплотите дизайнерские идеи и создайте дом мечты, который будет отражать именно вашу индивидуальность. Готовы показать квартиру в удобное для вас время. Звоните, чтобы задать вопросы и договориться о просмотре! ID объекта в нашей базе: 976
    размещено: 02.02.2026 , обновлено: 5.02.2026

    1-к квартира, Репина, 109

    • 40.5 м2
    • 8/32 этаж
    • Состояние: идеальное
    8 700 000 ₽ (214800 ₽/м2)
    Продаётся уютная однокомнатная квартира в Екатеринбурге Адрес: г. Екатеринбург, ул. Репина, 109.Площадь: 40,5 м².Этаж: 8. Ремонт: Дизайнерский Приглашаем вас рассмотреть вариант приобретения светлой и комфортной однокомнатной квартиры в динамично развивающемся районе Екатеринбурга. Основные преимущества: Удобная планировка. Продуманное зонирование пространства позволяет рационально использовать каждый квадратный метр. Просторная площадь. Общие 40,5 м² обеспечивают комфортное проживание как для одного человека, так и для молодой семьи. Отличный этаж. Восьмой этаж гарантирует хороший обзор, достаточную шумоизоляцию и отсутствие проблем с затоплением. Развитая инфраструктура. В шаговой доступности: торговые центры («Радуга Парк», «МЕГА»); образовательные учреждения (детские сады № 348, 67, 1, школа № 41); остановки общественного транспорта («Новомосковская»); пункты выдачи заказов (Ozon); продуктовые магазины и сервисы бытового обслуживания. Благоприятная среда для жизни. Рядом расположены парк развлечений и зелёные зоны — идеальное место для прогулок и отдыха. Транспортная доступность: удобный выезд на магистральные улицы (Репина, Викулова); близость к ключевым транспортным развязкам. Перспективы развития района: планируется строительство современной школы на 600 мест (рядом с улицами Волгоградской и Зоологической). Варианты приобретения: наличный расчёт; ипотека; использование материнского капитала; Не упустите шанс стать владельцем квартиры в одном из самых перспективных районов Екатеринбурга! Звоните, чтобы договориться о просмотре и получить подробную информацию. ID объекта в нашей базе: 13501
    размещено: 30.01.2026 , обновлено: 6.02.2026

    1-к квартира, Татищева, 56

    • 39.8 м2
    • 7/17 этаж
    • Состояние: хорошее
    7 499 000 ₽ (188400 ₽/м2)
    Внесен аванс!Продается 1-комнатная квартира в ЖК «Татищев». Удобная и функциональная планировка: можно грамотно расставить мебель и расположить системы хранения вещей. Большая лоджия на всю квартиру, просторный коридор.Благоустроенный закрытый двор без машин, с видеонаблюдением и контролируемым въездом. Территория ЖК оборудована детскими и спортивными площадками, прогулочными дорожками и зонами отдыха – здесь комфортно жить и отдыхать каждый день.Локация – одно из главных преимуществ. Всего 10 минут пешком до центра Екатеринбурга. Вокруг развитая инфраструктура: множество магазинов, фитнес-центр, школы № 1, 203 и 163, детские сады, детская и взрослая поликлиники, медицинские центры. В шаговой доступности остановки общественного транспорта – можно быстро добраться в любую часть города. Для активной и насыщенной жизни рядом есть центр культуры и искусств «Верх-Исетский», стадион «Екатеринбург Арена», крупные торговые центры «Карнавал», «Алатырь» и «Мега». Любителям прогулок и отдыха на природе понравится близость Верх-Исетской набережной и Парк 22 Партсъезда с аллеями и спортивными площадками.Один собственник, быстрый выход на сделку.Скорее звоните! Отвечу на все вопросы!???? PhotoНе задано ID объекта в нашей базе: 12117
    размещено: 29.01.2026 , обновлено: 4.02.2026

    1-к квартира, Отрадная, 1

    • 51.7 м2
    • 10/26 этаж
    • Состояние: плохое
    7 350 000 ₽ (142200 ₽/м2)
    В продаже 1 комнатная квартира ЖК Сюжеты. Дом сдан, продажа от физлица. В шаговой доступности от ЖК находится остановка общественного транспорта Отрадная В 900 метрах расположен детский сад №67. В 2 км от ЖК находится 4 средние общеобразовательные школы: №168, №57, №48, №171. В 200 метрах от застройки находится торгово-развлекательный центр Радуга Парк с одноименным парком для прогулок на свежем воздухе. В радиусе 200 метров есть супермаркеты Жизньмарт, также гипермаркет ОКЕЙ» . Ключи на руках. В ДКП полная сумма. Документы готовы. ID объекта в нашей базе: 928
    размещено: 03.10.2025 , обновлено: 6.02.2026

    1-к квартира, Отрадная, 1

    • 52 м2
    • 10/26 этаж
    • Состояние: плохое
    7 400 000 ₽ (142300 ₽/м2)
    Продается Евро 2-х комнатная квартира в жилoм кoмплeкcе Сюжeты. Практичная планировка. Предчистовая отделка. Это идеaльноe простpaнствo для воплощeния любыx жизнeнныx cценариeв. В жилом комплексе имеется: уютный двоp с детской и спортивнoй плoщaдкoй, пoдземный пaркинг и мягкиe холлы. B шaгe от жилищного комплекса ТPЦ Рaдуга Паpк c разноoбрaзнoй инфрacтpуктурой, a также удобные тpaнспортные развязки, гарантирующие быстрое сообщение с центром города. Комплекс расположен в границах улиц Репина Отрадная, возле ТРЦ Радуга Парк, Верх-Исетский р-н. В пешей доступности детские сады, школы, продуктовые магазины, ТРЦ Радуга Паркс разнообразной инфраструктурой и парком, вблизи остановки общественного транспорта и трамвайная линия, обеспечивающая удобный доступ к центру города. Благоустройство территории включает ландшафтный дизайн, малые архитектурные формы, озеленение с использованием цветников, кустарников и деревьев. В жилищном комплексе Сюжеты - Закрытый двор - уютное и безопасное пространство, для семейного отдыха и детских игр. Двор без машин, контроль доступа и видеонаблюдение. Разнообразные игровые элементы от качелей и горок для малышей, до спортивных комплексов для подростков. Волейбольное и футбольное поле, в зимнее время ледовой каток. Звоните ПРЯМО СЕЙЧАС, пока квартиру ВАШЕЙ мечты не купил кто-то другой. ID объекта в нашей базе: 966
    размещено: 26.01.2026 , обновлено: 4.02.2026

    1-к квартира, Татищева, 49

    • 48 м2
    • 1/23 этаж
    • Состояние: хорошее
    10 500 000 ₽ (218800 ₽/м2)
    Объект № 196871. Прoдaётся уютнaя oднокомнатная квартиpа плoщадью 48.4 кв.м. на первом этаже монoлитнoгo дома пocтpoйки (2009 год) в caмoм ceрдцe Екатеpинбуpгa микрoрaйоне ВИЗ, нa улицe Taтищeва, дом 49. БЕЗ МЕБЕЛИ И ТЕХНИКИ. Преимуществом станет близость детского сада, образовательных учреждений, таких как СдамЭкзам и учебный центр, а также развитая инфраструктура района: рядом расположены школа, торговый центр, парк и фитнес-клуб, очень удобная транспортная развязка в все районы города и центра. Квартира порадует высокими потолками, минимум соседей. Из окон открывается приятный вид на двор, где дети смогут весело проводить время на детской площадке, а взрослые заниматься спортом на специально оборудованной спортивной площадке. Наличие охраняемой парковки во дворе дома обеспечит безопасность автомобиля. Выход во двор (парковка закрытая только для жителей дома) и на улицу Татищева. Приобретая эту квартиру, вы выбираете комфортное проживание в динамично развивающемся районе с удобными условиями для жизни и работы. ***Гарантийный сертификат «Защита собственности» по данному объекту в подарок***
    размещено: 27.01.2026 , обновлено: 5.02.2026

    1-к квартира, Крауля, 105

    • 34.3 м2
    • 22/32 этаж
    • Состояние: удовлетворительное
    6 599 000 ₽ (192400 ₽/м2)
    Предлагаем Вашему вниманию, уютную, светлую квартиру с красивым видом и очень удачной планировкой: кухня- гостиная и спальня. В квартире выполнена нейтральная отделка стен и пола, что позволит в короткие сроки уже заехать и жить. Площадь указана, без учета лоджии.В зоне кухни стены оставлены без отделки, что позволяет на свой вкус расположить рабочую зону любой конфигурации и под нее расположить розетки. Ванная комната полностью функционирует, осталось лишь выбрать под ваш вкус плитку для мокрой зоны. На первом этаже открыт продуктовый магазин, в жк уже открываются маркетплейсы, цветочные и строительные магазины. В пешей доступности Лемана Про. До Меги, «Метро» и Радуга Парк на машине меньше 10 минут. Рядом с домом остановка общественного транспорта, недалеко школы и детские сады. Перспективный развивающийся район. Красивый закрытый двор, просторные холлы, видеонаблюдение, две колясочные и охрана в доме.Предложение будет актуально, пока интересующий вариант (для семьи побольше) находится в продаже. Два взрослых собственника. ID объекта в нашей базе: 3871
    размещено: 27.01.2026 , обновлено: 4.02.2026

Новостройки Екатеринбург, мкр-н. ВИЗ

Приоритет

Увеличивает просмотры в 3 раза

Ваше объявление показывается в списке выше обычных объявлений. подключить