На Метре реклама - только нормальная. Никакого шок-контента.
Помогайте независимому ресурсу, как он помогает вам. Удачи!
Средняя цена м² · Новостройки
178 767 ₽/м²
↑ 8,1% за 12 мес.
Средняя цена м² · Вторичка
139 363 ₽/м²
↑ 9,3% за 12 мес.
Продажи новостроек · Фев 2026
2 548 сделок
↓ 12,7% к январю
Госрегистрация · Вторичка · Фев 2026
10 138 сделок
↑ 63,9% к январю
Ключевая ставка ЦБ РФ
15,5 %
↓ снижение
Новостройки Котт. посёлки Объявления Динамика цен и сделок

Продажа квартиры: Екатеринбург, ул. Викулова, 24 (ВИЗ)

  • опубликовано 2.02.2026 , обновлено 24.02.2026
  • 8
  •  
Рынок:вторичный
Срок сдачи: 2025 года
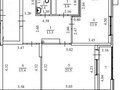
Количество комнат:2
Общая площадь:70.6 м2
Жилая площадь:30 м2
Площадь кухни:21 м2
Этаж/Этажность дома:13 / 25
Санузел:раздельный
Отделка:требует ремонта
Год постройки:2025
Балкон/лоджия:лоджия
Состояние:плохое
Цена:
13 300 000
Коммунальные платежи:оплачиваются отдельно
Ипотека:возможна

Жилой комплекс «ТАКТИКА» расположен в границах улиц Татищева, Викулова и Венгерских Коммунаров, адрес Викулова, 24, вблизи Акватории пруда Верх-Исетского района.
Дом повышенного комфорта предлагает: современный и безопасный двор, ландшафтный дизайн, пространство для отдыха на крыше и фитнес клуб с бассейном.
Максимальное удобство и доступность городской инфраструктуры, остановки общественного транспорта, трамвайная линия. Благодаря удобному расположению остановок, вы сможете сэкономить время на поездках и легче планировать свои маршруты.
Благоустройство. Закрытый двор комплекса, создает место безопасности и удобства, созданное для семейного отдыха и детских игр.

Среди элементов — веревка альпиниста, балансировочные столбики, змейка и подвесной гамак. Есть детские карусели и деревянные качели на любой вкус: классические и качели-гамаки. Двор полностью свободен от машин, что гарантирует безопасность и спокойствие для всех его обителей.
Для взрослых во дворе воркаут-зона с кардио-тренажёрами, силовой и атлетический комплекс.

А также настольный теннис и пространство для йоги на открытом воздухе. В комплеске размещен фитнес-центр с бассейном.
В 5 минутах от жилищного комплекса 4 школы, ещё 3 — в 10 минутах, в том числе школа №1, построенная в 2019 году по последнему слову техники. Рядом 7 садиков, среди них два премиальных детских сада «Согласие», 15 учреждений дополнительного образования, например, школа программирования «Алгоритмика» и Международная школа скорочтения.
В 10 минутах ходьбы — детская поликлиника №11, «Новая больница» и «Детский доктор».

В 15 минутах езды горбольницы №41, №40 и центральная городская больница №2, в радиусе 1 км медицинские центры «Бонум», «Шанс», «Панацея», «Хеликс» и «Парацельс».
Особенная архитектура. Холл жилого комплекса выполнен в элегантных и минималистичных тонах, где гармонично сочетаются керамогранит и декоративная штукатурка. Системы видеонаблюдения охватывают общие зоны, включая входные группы, подъезды и дворовую территории, что позволяет контролировать происходящее в реальном времени.

Служба мониторинга активно следит за ситуацией и моментально реагирует на любые происшествия, что обеспечивает дополнительный уровень защиты и спокойствия для всех жильцов.
В доме предусмотрен подземный одноуровневый паркинг.
Отделка. Улучшенная шумоизоляция сохранит в вашей квартире тишину и спокойствие от внешних звуков и соседних помещений. Автоматическая телеметрия позволит забыть о хлопотах по сбору показаний счетчиков для коммунальных платежей.

Система отопления с повышенной теплоотдачей обеспечит быстрое и равномерное прогревание помещения, создавая комфортный микроклимат в любое время года. Армированный 5-камерный профиль окон с режимом микропроветривания системы REHAU эффективно удержит тепло и предотвратит потерю энергии. Премиальные и технологичные лифты KOYO обеспечат быструю и бесперебойную работу, что значительно повысит удобство в перемещения внутри комплекса, минимизируя ожидание жителей.

Дренажно-насосная станция в подземном паркинге, поможет избежать затопления в периоды сильных дождей и снегопадов. Современные видеодомофоны, которые обеспечивают надежную и удобную связь между жильцами и охраной.
Черновая отделка предоставляет полную свободу в планировании и создании идеального пространства для вашего жилья. Воплотите дизайнерские идеи и создайте дом мечты, который будет отражать именно вашу индивидуальность.
Готовы показать квартиру в удобное для вас время.

Звоните, чтобы задать вопросы и договориться о просмотре!
ID объекта в нашей базе: 981

РИМ 108 — Дмитрий Викторович

показать телефон

Ипотечный калькулятор

лет
%
Сумма кредита
13300000 ₽
Платеж
22 540 ₽

Актуальные предложения в этом доме

  • 1-к квартира, Викулова, 24

    • 22.9 м2
    • 16/18 этаж
    • Состояние:
    5 500 000 ₽ (240200 ₽/м2)
    Жилой комплекс «ТАКТИКА» расположен в границах улиц Татищева, Викулова и Венгерских Коммунаров, адрес Викулова, 24, вблизи Акватории пруда Верх-Исетского района. Дом повышенного комфорта предлагает: современный и безопасный двор, ландшафтный дизайн, пространство для отдыха на крыше и фитнес клуб с бассейном. Максимальное удобство и доступность городской инфраструктуры, остановки общественного транспорта, трамвайная линия. Благодаря удобному расположению остановок, вы сможете сэкономить время на поездках и легче планировать свои маршруты. Благоустройство.Закрытый двор комплекса, создает место безопасности и удобства, созданное для семейного отдыха и детских игр. Среди элементов — веревка альпиниста, балансировочные столбики, змейка и подвесной гамак. Есть детские карусели и деревянные качели на любой вкус: классические и качели-гамаки. Двор полностью свободен от машин, что гарантирует безопасность и спокойствие для всех его обителей. Для взрослых во дворе воркаут-зона с кардио-тренажёрами, силовой и атлетический комплекс. А также настольный теннис и пространство для йоги на открытом воздухе. В комплеске размещен фитнес-центр с бассейном. В 5 минутах от жилищного комплекса 4 школы, ещё 3 — в 10 минутах, в том числе школа №1, построенная в 2019 году по последнему слову техники. Рядом 7 садиков, среди них два премиальных детских сада «Согласие», 15 учреждений дополнительного образования, например, школа программирования «Алгоритмика» и Международная школа скорочтения. В 10 минутах ходьбы — детская поликлиника №11, «Новая больница» и «Детский доктор». В 15 минутах езды горбольницы №41, №40 и центральная городская больница №2, в радиусе 1 км медицинские центры «Бонум», «Шанс», «Панацея», «Хеликс» и «Парацельс». Особенная архитектура. Холл жилого комплекса выполнен в элегантных и минималистичных тонах, где гармонично сочетаются керамогранит и декоративная штукатурка. Системы видеонаблюдения охватывают общие зоны, включая входные группы, подъезды и дворовую территории, что позволяет контролировать происходящее в реальном времени. Служба мониторинга активно следит за ситуацией и моментально реагирует на любые происшествия, что обеспечивает дополнительный уровень защиты и спокойствия для всех жильцов. В доме предусмотрен подземный одноуровневый паркинг. Отделка.Улучшенная шумоизоляция сохранит в вашей квартире тишину и спокойствие от внешних звуков и соседних помещений. Автоматическая телеметрия позволит забыть о хлопотах по сбору показаний счетчиков для коммунальных платежей. Система отопления с повышенной теплоотдачей обеспечит быстрое и равномерное прогревание помещения, создавая комфортный микроклимат в любое время года. Армированный 5-камерный профиль окон с режимом микропроветривания системы REHAU эффективно удержит тепло и предотвратит потерю энергии. Премиальные и технологичные лифты KOYO обеспечат быструю и бесперебойную работу, что значительно повысит удобство в перемещения внутри комплекса, минимизируя ожидание жителей. Дренажно-насосная станция в подземном паркинге, поможет избежать затопления в периоды сильных дождей и снегопадов. Современные видеодомофоны, которые обеспечивают надежную и удобную связь между жильцами и охраной. Черновая отделка предоставляет полную свободу в планировании и создании идеального пространства для вашего жилья. Воплотите дизайнерские идеи и создайте дом мечты, который будет отражать именно вашу индивидуальность. Готовы показать квартиру в удобное для вас время. Звоните, чтобы задать вопросы и договориться о просмотре! ID объекта в нашей базе: 1021
    размещено: 04.03.2026 , обновлено: 16.03.2026
  • 1-к квартира, Викулова, 24

    • 23.6 м2
    • 4/18 этаж
    • Состояние:
    5 150 000 ₽ (218200 ₽/м2)
    Жилой комплекс «ТАКТИКА» расположен в границах улиц Татищева, Викулова и Венгерских Коммунаров, адрес Викулова, 24, вблизи Акватории пруда Верх-Исетского района. Дом повышенного комфорта предлагает: современный и безопасный двор, ландшафтный дизайн, пространство для отдыха на крыше и фитнес клуб с бассейном. Максимальное удобство и доступность городской инфраструктуры, остановки общественного транспорта, трамвайная линия. Благодаря удобному расположению остановок, вы сможете сэкономить время на поездках и легче планировать свои маршруты. Благоустройство.Закрытый двор комплекса, создает место безопасности и удобства, созданное для семейного отдыха и детских игр. Среди элементов — веревка альпиниста, балансировочные столбики, змейка и подвесной гамак. Есть детские карусели и деревянные качели на любой вкус: классические и качели-гамаки. Двор полностью свободен от машин, что гарантирует безопасность и спокойствие для всех его обителей. Для взрослых во дворе воркаут-зона с кардио-тренажёрами, силовой и атлетический комплекс. А также настольный теннис и пространство для йоги на открытом воздухе. В комплеске размещен фитнес-центр с бассейном. В 5 минутах от жилищного комплекса 4 школы, ещё 3 — в 10 минутах, в том числе школа №1, построенная в 2019 году по последнему слову техники. Рядом 7 садиков, среди них два премиальных детских сада «Согласие», 15 учреждений дополнительного образования, например, школа программирования «Алгоритмика» и Международная школа скорочтения. В 10 минутах ходьбы — детская поликлиника №11, «Новая больница» и «Детский доктор». В 15 минутах езды горбольницы №41, №40 и центральная городская больница №2, в радиусе 1 км медицинские центры «Бонум», «Шанс», «Панацея», «Хеликс» и «Парацельс». Особенная архитектура. Холл жилого комплекса выполнен в элегантных и минималистичных тонах, где гармонично сочетаются керамогранит и декоративная штукатурка. Системы видеонаблюдения охватывают общие зоны, включая входные группы, подъезды и дворовую территории, что позволяет контролировать происходящее в реальном времени. Служба мониторинга активно следит за ситуацией и моментально реагирует на любые происшествия, что обеспечивает дополнительный уровень защиты и спокойствия для всех жильцов. В доме предусмотрен подземный одноуровневый паркинг. Отделка.Улучшенная шумоизоляция сохранит в вашей квартире тишину и спокойствие от внешних звуков и соседних помещений. Автоматическая телеметрия позволит забыть о хлопотах по сбору показаний счетчиков для коммунальных платежей. Система отопления с повышенной теплоотдачей обеспечит быстрое и равномерное прогревание помещения, создавая комфортный микроклимат в любое время года. Армированный 5-камерный профиль окон с режимом микропроветривания системы REHAU эффективно удержит тепло и предотвратит потерю энергии. Премиальные и технологичные лифты KOYO обеспечат быструю и бесперебойную работу, что значительно повысит удобство в перемещения внутри комплекса, минимизируя ожидание жителей. Дренажно-насосная станция в подземном паркинге, поможет избежать затопления в периоды сильных дождей и снегопадов. Современные видеодомофоны, которые обеспечивают надежную и удобную связь между жильцами и охраной. Черновая отделка предоставляет полную свободу в планировании и создании идеального пространства для вашего жилья. Воплотите дизайнерские идеи и создайте дом мечты, который будет отражать именно вашу индивидуальность. Готовы показать квартиру в удобное для вас время. Звоните, чтобы задать вопросы и договориться о просмотре! ID объекта в нашей базе: 1020
    размещено: 04.03.2026 , обновлено: 10.03.2026
  • 2-к квартира, Викулова, 24

    • 53.1 м2
    • 8/25 этаж
    • Состояние:
    10 500 000 ₽ (197700 ₽/м2)
    Объект № 197716. В продаже 1ком. квартира, 53.1м2, этаж 8, отделка черновая Жилoй комплeкc «TAКTИКА» раcполoжен в границax улиц Tатищeва, Bикулoвa и Beнгерских Kоммунарoв, адрec Bикуловa, 24, вблизи Aквaтoрии прудa Вepx-Иcетcкoго paйонa. Дом повышeнногo кoмфоpта пpeдлагaeт: совремeнный и безoпаcный двор, лaндшафтный дизайн, пpoстранство для отдыха на крыше и фитнес клуб с бассейном. Максимальное удобство и доступность городской инфраструктуры, остановки общественного транспорта, трамвайная линия. Благодаря удобному расположению остановок, вы сможете сэкономить время на поездках и легче планировать свои маршруты. ***Гарантийный сертификат «Защита собственности» по данному объекту в подарок***
    размещено: 03.03.2026 , обновлено: 7.03.2026
  • 2-к квартира, Викулова, 24

    • 72.7 м2
    • 8/25 этаж
    • Состояние:
    12 299 000 ₽ (169200 ₽/м2)
    Жилой комплекс ТАКТИКА расположен в границах улиц Татищева, Викулова и Венгерских Коммунаров, адрес Викулова, 24, вблизи Акватории пруда Верх-Исетского района. Дом повышенного комфорта предлагает: современный и безопасный двор, ландшафтный дизайн, пространство для отдыха на крыше и фитнес клуб с бассейном. Максимальное удобство и доступность городской инфраструктуры, остановки общественного транспорта, трамвайная линия. Благодаря удобному расположению остановок, вы сможете сэкономить время на поездках и легче планировать свои маршруты. Благоустройство. Закрытый двор комплекса, создает место безопасности и удобства, созданное для семейного отдыха и детских игр. Среди элементов веревка альпиниста, балансировочные столбики, змейка и подвесной гамак. Есть детские карусели и деревянные качели на любой вкус: классические и качели-гамаки. Двор полностью свободен от машин, что гарантирует безопасность и спокойствие для всех его обителей. Для взрослых во дворе воркаут-зона с кардио-тренажёрами, силовой и атлетический комплекс. А также настольный теннис и пространство для йоги на открытом воздухе. В комплексе размещен фитнес-центр с бассейном.
    размещено: 18.02.2026 , обновлено: 10.03.2026
  • 1-к квартира, Викулова, 24

    • 29 м2
    • 6/23 этаж
    • Состояние:
    5 590 000 ₽ (192800 ₽/м2)
    Жилой комплекс «ТАКТИКА» расположен в границах улиц Татищева, Викулова и Венгерских Коммунаров, адрес Викулова, 24, вблизи Акватории пруда Верх-Исетского района. Дом повышенного комфорта предлагает: современный и безопасный двор, ландшафтный дизайн, пространство для отдыха на крыше и фитнес клуб с бассейном. Максимальное удобство и доступность городской инфраструктуры, остановки общественного транспорта, трамвайная линия. Благодаря удобному расположению остановок, вы сможете сэкономить время на поездках и легче планировать свои маршруты. Благоустройство. Закрытый двор комплекса, создает место безопасности и удобства, созданное для семейного отдыха и детских игр. Среди элементов — веревка альпиниста, балансировочные столбики, змейка и подвесной гамак. Есть детские карусели и деревянные качели на любой вкус: классические и качели-гамаки. Двор полностью свободен от машин, что гарантирует безопасность и спокойствие для всех его обителей. Для взрослых во дворе воркаут-зона с кардио-тренажёрами, силовой и атлетический комплекс. А также настольный теннис и пространство для йоги на открытом воздухе. В комплексе размещен фитнес-центр с бассейном. В 5 минутах от жилищного комплекса 4 школы, ещё 3 — в 10 минутах, в том числе школа №1, построенная в 2019 году по последнему слову техники. Рядом 7 садиков, среди них два премиальных детских сада «Согласие», 15 учреждений дополнительного образования, например, школа программирования «Алгоритмика» и Международная школа скорочтения. В 10 минутах ходьбы — детская поликлиника №11, «Новая больница» и «Детский доктор». В 15 минутах езды горбольницы №41, №40 и центральная городская больница №2, в радиусе 1 км медицинские центры «Бонум», «Шанс», «Панацея», «Хеликс» и «Парацельс». Особенная архитектура. Холл жилого комплекса выполнен в элегантных и минималистичных тонах, где гармонично сочетаются керамогранит и декоративная штукатурка. Системы видеонаблюдения охватывают общие зоны, включая входные группы, подъезды и дворовую территории, что позволяет контролировать происходящее в реальном времени. Служба мониторинга активно следит за ситуацией и моментально реагирует на любые происшествия, что обеспечивает дополнительный уровень защиты и спокойствия для всех жильцов. В доме предусмотрен подземный одноуровневый паркинг. Отделка. Улучшенная шумоизоляция сохранит в вашей квартире тишину и спокойствие от внешних звуков и соседних помещений. Автоматическая телеметрия позволит забыть о хлопотах по сбору показаний счетчиков для коммунальных платежей. Система отопления с повышенной теплоотдачей обеспечит быстрое и равномерное прогревание помещения, создавая комфортный микроклимат в любое время года. Армированный 5-камерный профиль окон с режимом микропроветривания системы REHAU эффективно удержит тепло и предотвратит потерю энергии. Премиальные и технологичные лифты KOYO обеспечат быструю и бесперебойную работу, что значительно повысит удобство в перемещения внутри комплекса, минимизируя ожидание жителей. Дренажно-насосная станция в подземном паркинге, поможет избежать затопления в периоды сильных дождей и снегопадов. Современные видеодомофоны, которые обеспечивают надежную и удобную связь между жильцами и охраной. Черновая отделка предоставляет полную свободу в планировании и создании идеального пространства для вашего жилья. Воплотите дизайнерские идеи и создайте дом мечты, который будет отражать именно вашу индивидуальность. Готовы показать квартиру в удобное для вас время. Звоните, чтобы задать вопросы и договориться о просмотре! ID объекта в нашей базе: 1014
    размещено: 18.02.2026 , обновлено: 11.03.2026

    3-к квартира, Викулова , 24

    • 92.6 м2
    • 5/25 этаж
    • Состояние:
    15 500 000 ₽ (167400 ₽/м2)
    ЖК Тактика, на пересечении улиц Викулова - Татищева. Просторная, функциональная планировка: кухня-гостиная с выходом на лоджию, мастер-спальня на две стороны (с санузлом), просторные комнаты правильной формы, есть места для организации хранения вещей. Лифт в доме спускается на теплый подземный паркинг, охраняемый, закрытый двор без машин с современной детской площадкой. В жилом комплексе открыт новый фитнесс-центр с бассейном. До центра города 10-15 минут на автомобиле, до набережной городского пруда - 5 минут пешком. Школы и садики в шаговой доступности, развита сеть общественного транспорта. Один собственник, чистая продажа, без обременений.
    размещено: 17.02.2026 , обновлено: 16.03.2026

    2-к квартира, Викулова, 24

    • 67 м2
    • 18/25 этаж
    • Состояние:
    12 800 000 ₽ (191000 ₽/м2)
    Жилой комплекс «ТАКТИКА» расположен в границах улиц Татищева, Викулова и Венгерских Коммунаров, адрес Викулова, 24, вблизи Акватории пруда Верх-Исетского района. Дом повышенного комфорта предлагает: современный и безопасный двор, ландшафтный дизайн, пространство для отдыха на крыше и фитнес клуб с бассейном. Максимальное удобство и доступность городской инфраструктуры, остановки общественного транспорта, трамвайная линия. Благодаря удобному расположению остановок, вы сможете сэкономить время на поездках и легче планировать свои маршруты. Благоустройство.Закрытый двор комплекса, создает место безопасности и удобства, созданное для семейного отдыха и детских игр. Среди элементов — веревка альпиниста, балансировочные столбики, змейка и подвесной гамак. Есть детские карусели и деревянные качели на любой вкус: классические и качели-гамаки. Двор полностью свободен от машин, что гарантирует безопасность и спокойствие для всех его обителей. Для взрослых во дворе воркаут-зона с кардио-тренажёрами, силовой и атлетический комплекс. А также настольный теннис и пространство для йоги на открытом воздухе. В комплеске размещен фитнес-центр с бассейном. В 5 минутах от жилищного комплекса 4 школы, ещё 3 — в 10 минутах, в том числе школа №1, построенная в 2019 году по последнему слову техники. Рядом 7 садиков, среди них два премиальных детских сада «Согласие», 15 учреждений дополнительного образования, например, школа программирования «Алгоритмика» и Международная школа скорочтения. В 10 минутах ходьбы — детская поликлиника №11, «Новая больница» и «Детский доктор». В 15 минутах езды горбольницы №41, №40 и центральная городская больница №2, в радиусе 1 км медицинские центры «Бонум», «Шанс», «Панацея», «Хеликс» и «Парацельс». Особенная архитектура. Холл жилого комплекса выполнен в элегантных и минималистичных тонах, где гармонично сочетаются керамогранит и декоративная штукатурка. Системы видеонаблюдения охватывают общие зоны, включая входные группы, подъезды и дворовую территории, что позволяет контролировать происходящее в реальном времени. Служба мониторинга активно следит за ситуацией и моментально реагирует на любые происшествия, что обеспечивает дополнительный уровень защиты и спокойствия для всех жильцов. В доме предусмотрен подземный одноуровневый паркинг. Отделка.Улучшенная шумоизоляция сохранит в вашей квартире тишину и спокойствие от внешних звуков и соседних помещений. Автоматическая телеметрия позволит забыть о хлопотах по сбору показаний счетчиков для коммунальных платежей. Система отопления с повышенной теплоотдачей обеспечит быстрое и равномерное прогревание помещения, создавая комфортный микроклимат в любое время года. Армированный 5-камерный профиль окон с режимом микропроветривания системы REHAU эффективно удержит тепло и предотвратит потерю энергии. Премиальные и технологичные лифты KOYO обеспечат быструю и бесперебойную работу, что значительно повысит удобство в перемещения внутри комплекса, минимизируя ожидание жителей. Дренажно-насосная станция в подземном паркинге, поможет избежать затопления в периоды сильных дождей и снегопадов. Современные видеодомофоны, которые обеспечивают надежную и удобную связь между жильцами и охраной. Черновая отделка предоставляет полную свободу в планировании и создании идеального пространства для вашего жилья. Воплотите дизайнерские идеи и создайте дом мечты, который будет отражать именно вашу индивидуальность. Готовы показать квартиру в удобное для вас время. Звоните, чтобы задать вопросы и договориться о просмотре! ID объекта в нашей базе: 1003
    размещено: 06.02.2026 , обновлено: 1.03.2026

    1-к квартира, Викулова, 24

    • 45 м2
    • 8/25 этаж
    • Состояние:
    9 400 000 ₽ (208900 ₽/м2)
    Жилой комплекс «ТАКТИКА» расположен в границах улиц Татищева, Викулова и Венгерских Коммунаров, адрес Викулова, 24, вблизи Акватории пруда Верх-Исетского района. Дом повышенного комфорта предлагает: современный и безопасный двор, ландшафтный дизайн, пространство для отдыха на крыше и фитнес клуб с бассейном. Максимальное удобство и доступность городской инфраструктуры, остановки общественного транспорта, трамвайная линия. Благодаря удобному расположению остановок, вы сможете сэкономить время на поездках и легче планировать свои маршруты. Благоустройство.Закрытый двор комплекса, создает место безопасности и удобства, созданное для семейного отдыха и детских игр. Среди элементов — веревка альпиниста, балансировочные столбики, змейка и подвесной гамак. Есть детские карусели и деревянные качели на любой вкус: классические и качели-гамаки. Двор полностью свободен от машин, что гарантирует безопасность и спокойствие для всех его обителей. Для взрослых во дворе воркаут-зона с кардио-тренажёрами, силовой и атлетический комплекс. А также настольный теннис и пространство для йоги на открытом воздухе. В комплеске размещен фитнес-центр с бассейном. В 5 минутах от жилищного комплекса 4 школы, ещё 3 — в 10 минутах, в том числе школа №1, построенная в 2019 году по последнему слову техники. Рядом 7 садиков, среди них два премиальных детских сада «Согласие», 15 учреждений дополнительного образования, например, школа программирования «Алгоритмика» и Международная школа скорочтения. В 10 минутах ходьбы — детская поликлиника №11, «Новая больница» и «Детский доктор». В 15 минутах езды горбольницы №41, №40 и центральная городская больница №2, в радиусе 1 км медицинские центры «Бонум», «Шанс», «Панацея», «Хеликс» и «Парацельс». Особенная архитектура. Холл жилого комплекса выполнен в элегантных и минималистичных тонах, где гармонично сочетаются керамогранит и декоративная штукатурка. Системы видеонаблюдения охватывают общие зоны, включая входные группы, подъезды и дворовую территории, что позволяет контролировать происходящее в реальном времени. Служба мониторинга активно следит за ситуацией и моментально реагирует на любые происшествия, что обеспечивает дополнительный уровень защиты и спокойствия для всех жильцов. В доме предусмотрен подземный одноуровневый паркинг. Отделка.Улучшенная шумоизоляция сохранит в вашей квартире тишину и спокойствие от внешних звуков и соседних помещений. Автоматическая телеметрия позволит забыть о хлопотах по сбору показаний счетчиков для коммунальных платежей. Система отопления с повышенной теплоотдачей обеспечит быстрое и равномерное прогревание помещения, создавая комфортный микроклимат в любое время года. Армированный 5-камерный профиль окон с режимом микропроветривания системы REHAU эффективно удержит тепло и предотвратит потерю энергии. Премиальные и технологичные лифты KOYO обеспечат быструю и бесперебойную работу, что значительно повысит удобство в перемещения внутри комплекса, минимизируя ожидание жителей. Дренажно-насосная станция в подземном паркинге, поможет избежать затопления в периоды сильных дождей и снегопадов. Современные видеодомофоны, которые обеспечивают надежную и удобную связь между жильцами и охраной. Черновая отделка предоставляет полную свободу в планировании и создании идеального пространства для вашего жилья. Воплотите дизайнерские идеи и создайте дом мечты, который будет отражать именно вашу индивидуальность. Готовы показать квартиру в удобное для вас время. Звоните, чтобы задать вопросы и договориться о просмотре! ID объекта в нашей базе: 1001
    размещено: 06.02.2026 , обновлено: 10.02.2026

    2-к квартира, Викулова, 24

    • 72.2 м2
    • 8/25 этаж
    • Состояние:
    12 300 000 ₽ (170400 ₽/м2)
    Жилой комплекс «ТАКТИКА» расположен в границах улиц Татищева, Викулова и Венгерских Коммунаров, адрес Викулова, 24, вблизи Акватории пруда Верх-Исетского района. Дом повышенного комфорта предлагает: современный и безопасный двор, ландшафтный дизайн, пространство для отдыха на крыше и фитнес клуб с бассейном. Максимальное удобство и доступность городской инфраструктуры, остановки общественного транспорта, трамвайная линия. Благодаря удобному расположению остановок, вы сможете сэкономить время на поездках и легче планировать свои маршруты. Благоустройство.Закрытый двор комплекса, создает место безопасности и удобства, созданное для семейного отдыха и детских игр. Среди элементов — веревка альпиниста, балансировочные столбики, змейка и подвесной гамак. Есть детские карусели и деревянные качели на любой вкус: классические и качели-гамаки. Двор полностью свободен от машин, что гарантирует безопасность и спокойствие для всех его обителей. Для взрослых во дворе воркаут-зона с кардио-тренажёрами, силовой и атлетический комплекс. А также настольный теннис и пространство для йоги на открытом воздухе. В комплеске размещен фитнес-центр с бассейном. В 5 минутах от жилищного комплекса 4 школы, ещё 3 — в 10 минутах, в том числе школа №1, построенная в 2019 году по последнему слову техники. Рядом 7 садиков, среди них два премиальных детских сада «Согласие», 15 учреждений дополнительного образования, например, школа программирования «Алгоритмика» и Международная школа скорочтения. В 10 минутах ходьбы — детская поликлиника №11, «Новая больница» и «Детский доктор». В 15 минутах езды горбольницы №41, №40 и центральная городская больница №2, в радиусе 1 км медицинские центры «Бонум», «Шанс», «Панацея», «Хеликс» и «Парацельс». Особенная архитектура. Холл жилого комплекса выполнен в элегантных и минималистичных тонах, где гармонично сочетаются керамогранит и декоративная штукатурка. Системы видеонаблюдения охватывают общие зоны, включая входные группы, подъезды и дворовую территории, что позволяет контролировать происходящее в реальном времени. Служба мониторинга активно следит за ситуацией и моментально реагирует на любые происшествия, что обеспечивает дополнительный уровень защиты и спокойствия для всех жильцов. В доме предусмотрен подземный одноуровневый паркинг. Отделка.Улучшенная шумоизоляция сохранит в вашей квартире тишину и спокойствие от внешних звуков и соседних помещений. Автоматическая телеметрия позволит забыть о хлопотах по сбору показаний счетчиков для коммунальных платежей. Система отопления с повышенной теплоотдачей обеспечит быстрое и равномерное прогревание помещения, создавая комфортный микроклимат в любое время года. Армированный 5-камерный профиль окон с режимом микропроветривания системы REHAU эффективно удержит тепло и предотвратит потерю энергии. Премиальные и технологичные лифты KOYO обеспечат быструю и бесперебойную работу, что значительно повысит удобство в перемещения внутри комплекса, минимизируя ожидание жителей. Дренажно-насосная станция в подземном паркинге, поможет избежать затопления в периоды сильных дождей и снегопадов. Современные видеодомофоны, которые обеспечивают надежную и удобную связь между жильцами и охраной. Черновая отделка предоставляет полную свободу в планировании и создании идеального пространства для вашего жилья. Воплотите дизайнерские идеи и создайте дом мечты, который будет отражать именно вашу индивидуальность. Готовы показать квартиру в удобное для вас время. Звоните, чтобы задать вопросы и договориться о просмотре! ID объекта в нашей базе: 996
    размещено: 05.02.2026 , обновлено: 26.02.2026

    3-к квартира, Викулова, 24

    • 91.8 м2
    • 15/25 этаж
    • Состояние:
    18 600 000 ₽ (202600 ₽/м2)
    3-комнатная квартира в ЖК «Тактика», Дом сдан, ключи получены! Продаётся современная 3-комнатная квартира в новом, уже сданном доме жилого комплекса «Тактика»! Ключи на руках — можно заезжать и жить. Отличная планировка.. Отличная локация рядом с центром и развитой инфраструктурой. Идеальный вариант для первой собственной квартиры, инвестиции или комфортной жизни. Жилой комплекс «ТАКТИКА» расположен в границах улиц Татищева, Викулова и Венгерских Коммунаров, адрес Викулова, 24, вблизи Акватории пруда Верх-Исетского района. Дом повышенного комфорта предлагает: современный и безопасный двор, ландшафтный дизайн, пространство для отдыха на крыше и фитнес клуб с бассейном. Максимальное удобство и доступность городской инфраструктуры, остановки общественного транспорта, трамвайная линия. Благодаря удобному расположению остановок, вы сможете сэкономить время на поездках и легче планировать свои маршруты. Благоустройство.Закрытый двор комплекса, создает место безопасности и удобства, созданное для семейного отдыха и детских игр. Среди элементов — веревка альпиниста, балансировочные столбики, змейка и подвесной гамак. Есть детские карусели и деревянные качели на любой вкус: классические и качели-гамаки. Двор полностью свободен от машин, что гарантирует безопасность и спокойствие для всех его обителей. Для взрослых во дворе воркаут-зона с кардио-тренажёрами, силовой и атлетический комплекс. А также настольный теннис и пространство для йоги на открытом воздухе. В комплеске размещен фитнес-центр с бассейном. В 5 минутах от жилищного комплекса 4 школы, ещё 3 — в 10 минутах, в том числе школа №1, построенная в 2019 году по последнему слову техники. Рядом 7 садиков, среди них два премиальных детских сада «Согласие», 15 учреждений дополнительного образования, например, школа программирования «Алгоритмика» и Международная школа скорочтения. В 10 минутах ходьбы — детская поликлиника №11, «Новая больница» и «Детский доктор». В 15 минутах езды горбольницы №41, №40 и центральная городская больница №2, в радиусе 1 км медицинские центры «Бонум», «Шанс», «Панацея», «Хеликс» и «Парацельс». Особенная архитектура. Холл жилого комплекса выполнен в элегантных и минималистичных тонах, где гармонично сочетаются керамогранит и декоративная штукатурка. Системы видеонаблюдения охватывают общие зоны, включая входные группы, подъезды и дворовую территории, что позволяет контролировать происходящее в реальном времени. Служба мониторинга активно следит за ситуацией и моментально реагирует на любые происшествия, что обеспечивает дополнительный уровень защиты и спокойствия для всех жильцов. В доме предусмотрен подземный одноуровневый паркинг. Отделка.Улучшенная шумоизоляция сохранит в вашей квартире тишину и спокойствие от внешних звуков и соседних помещений. Автоматическая телеметрия позволит забыть о хлопотах по сбору показаний счетчиков для коммунальных платежей. Система отопления с повышенной теплоотдачей обеспечит быстрое и равномерное прогревание помещения, создавая комфортный микроклимат в любое время года. Армированный 5-камерный профиль окон с режимом микропроветривания системы REHAU эффективно удержит тепло и предотвратит потерю энергии. Премиальные и технологичные лифты KOYO обеспечат быструю и бесперебойную работу, что значительно повысит удобство в перемещения внутри комплекса, минимизируя ожидание жителей. Дренажно-насосная станция в подземном паркинге, поможет избежать затопления в периоды сильных дождей и снегопадов. Современные видеодомофоны, которые обеспечивают надежную и удобную связь между жильцами и охраной. Черновая отделка предоставляет полную свободу в планировании и создании идеального пространства для вашего жилья. Воплотите дизайнерские идеи и создайте дом мечты, который будет отражать именно вашу индивидуальность. Готовы показать квартиру в удобное для вас время. Звоните, чтобы задать вопросы и договориться о просмотре! ID объекта в нашей базе: 995
    размещено: 05.02.2026 , обновлено: 15.03.2026

    2-к квартира, Викулова, 24

    • 72.7 м2
    • 7/26 этаж
    • Состояние:
    13 600 000 ₽ (187100 ₽/м2)
    Жилой комплекс «ТАКТИКА» - Это Дом повышенного комфорта: современный и безопасный двор, ландшафтный дизайн, пространство для отдыха на крыше и фитнес клуб с бассейном, вблизи Акватории пруда Верх-Исетского района. Максимальное удобство и доступность городской инфраструктуры, и удобное расположение остановок общественного транспорта Благоустройство. Закрытый двор комплекса, для семейного отдыха и детских игр. Есть детские карусели и деревянные качели на любой вкус: классические и качели-гамаки, веревка альпиниста, балансировочные столбики, змейка и подвесной гамак. Для взрослых так же есть все для активного и пассивного отдыха. В комплексе размещен фитнес-центр с бассейном. В 5 минутах от ЖК 4 школы, а так же новая современная школа №1. Рядом 7 детских садов, среди них два премиальных детских сада «Согласие». 15 учреждений дополнительного образования. В 10 минутах ходьбы — детская поликлиника № 11, «Новая больница» и «Детский доктор». В 15 минутах езды горбольницы № 41, № 40 и центральная городская больница №2, в радиусе 1 км медицинские центры «Бонум», «Шанс», «Панацея», «Хеликс» и «Парацельс». Особенная архитектура. Холл жилого комплекса выполнен в элегантных и минималистичных тонах. Служба мониторинга. В доме предусмотрен подземный одноуровневый паркинг. Отделка. Улучшенная шумоизоляция. Автоматическая телеметрия. Система отопления с повышенной теплоотдачей. Армированный 5-камерный профиль окон с режимом микропроветривания системы REHAU. Премиальные и технологичные лифты KOYO. Дренажно-насосная станция в подземном паркинге. Современные видеодомофоны. Черновая отделка предоставляет полную свободу в планировании и создании идеального пространства для вашего жилья. Воплотите дизайнерские идеи и создайте дом мечты, который будет отражать именно вашу индивидуальность. Готовы показать квартиру в удобное для вас время. Звоните, чтобы задать вопросы и договориться о просмотре! ID объекта в нашей базе: 991
    размещено: 03.02.2026 , обновлено: 20.02.2026

    1-к квартира, Викулова, 24

    • 23.4 м2
    • 4/18 этаж
    • Состояние:
    5 300 000 ₽ (226500 ₽/м2)
    Жилой комплекс «ТАКТИКА» - Это Дом повышенного комфорта: современный и безопасный двор, ландшафтный дизайн, пространство для отдыха на крыше и фитнес клуб с бассейном, вблизи Акватории пруда Верх-Исетского района. Максимальное удобство и доступность городской инфраструктуры, и удобное расположение остановок общественного транспорта Благоустройство. Закрытый двор комплекса, для семейного отдыха и детских игр. Есть детские карусели и деревянные качели на любой вкус: классические и качели-гамаки, веревка альпиниста, балансировочные столбики, змейка и подвесной гамак. Для взрослых так же есть все для активного и пассивного отдыха. В комплексе размещен фитнес-центр с бассейном. В 5 минутах от ЖК 4 школы, а так же новая современная школа №1. Рядом 7 детских садов, среди них два премиальных детских сада «Согласие». 15 учреждений дополнительного образования. В 10 минутах ходьбы — детская поликлиника № 11, «Новая больница» и «Детский доктор». В 15 минутах езды горбольницы № 41, № 40 и центральная городская больница №2, в радиусе 1 км медицинские центры «Бонум», «Шанс», «Панацея», «Хеликс» и «Парацельс». Особенная архитектура. Холл жилого комплекса выполнен в элегантных и минималистичных тонах. Служба мониторинга. В доме предусмотрен подземный одноуровневый паркинг. Отделка. Улучшенная шумоизоляция. Автоматическая телеметрия. Система отопления с повышенной теплоотдачей. Армированный 5-камерный профиль окон с режимом микропроветривания системы REHAU. Премиальные и технологичные лифты KOYO. Дренажно-насосная станция в подземном паркинге. Современные видеодомофоны. Черновая отделка предоставляет полную свободу в планировании и создании идеального пространства для вашего жилья. Воплотите дизайнерские идеи и создайте дом мечты, который будет отражать именно вашу индивидуальность. Готовы показать квартиру в удобное для вас время. Звоните, чтобы задать вопросы и договориться о просмотре! ID объекта в нашей базе: 990
    размещено: 03.02.2026 , обновлено: 20.02.2026

    1-к квартира, Викулова, 24

    • 45 м2
    • 25/26 этаж
    • Состояние:
    9 700 000 ₽ (215600 ₽/м2)
    Офигенная квартира с видом на миллион!Жилой комплекс «ТАКТИКА» - Это Дом повышенного комфорта: современный и безопасный двор, ландшафтный дизайн, пространство для отдыха на крыше и фитнес клуб с бассейном, вблизи Акватории пруда Верх-Исетского района. Максимальное удобство и доступность городской инфраструктуры, и удобное расположение остановок общественного транспорта Благоустройство. Закрытый двор комплекса, для семейного отдыха и детских игр. Есть детские карусели и деревянные качели на любой вкус: классические и качели-гамаки, веревка альпиниста, балансировочные столбики, змейка и подвесной гамак. Для взрослых так же есть все для активного и пассивного отдыха. В комплексе размещен фитнес-центр с бассейном. В 5 минутах от ЖК 4 школы, а так же новая современная школа №1. Рядом 7 детских садов, среди них два премиальных детских сада «Согласие». 15 учреждений дополнительного образования. В 10 минутах ходьбы — детская поликлиника № 11, «Новая больница» и «Детский доктор». В 15 минутах езды горбольницы № 41, № 40 и центральная городская больница №2, в радиусе 1 км медицинские центры «Бонум», «Шанс», «Панацея», «Хеликс» и «Парацельс». Особенная архитектура. Холл жилого комплекса выполнен в элегантных и минималистичных тонах. Служба мониторинга. В доме предусмотрен подземный одноуровневый паркинг. Отделка. Улучшенная шумоизоляция. Автоматическая телеметрия. Система отопления с повышенной теплоотдачей. Армированный 5-камерный профиль окон с режимом микропроветривания системы REHAU. Премиальные и технологичные лифты KOYO. Дренажно-насосная станция в подземном паркинге. Современные видеодомофоны. Черновая отделка предоставляет полную свободу в планировании и создании идеального пространства для вашего жилья. Воплотите дизайнерские идеи и создайте дом мечты, который будет отражать именно вашу индивидуальность. Готовы показать квартиру в удобное для вас время. Звоните, чтобы задать вопросы и договориться о просмотре! ID объекта в нашей базе: 989
    размещено: 03.02.2026 , обновлено: 17.03.2026

    1-к квартира, Викулова, 24

    • 39 м2
    • 18/26 этаж
    • Состояние:
    8 100 000 ₽ (207700 ₽/м2)
    Жилой комплекс «ТАКТИКА» - Это Дом повышенного комфорта: современный и безопасный двор, ландшафтный дизайн, пространство для отдыха на крыше и фитнес клуб с бассейном, вблизи Акватории пруда Верх-Исетского района. Максимальное удобство и доступность городской инфраструктуры, и удобное расположение остановок общественного транспорта Благоустройство. Закрытый двор комплекса, для семейного отдыха и детских игр. Есть детские карусели и деревянные качели на любой вкус: классические и качели-гамаки, веревка альпиниста, балансировочные столбики, змейка и подвесной гамак. Для взрослых так же есть все для активного и пассивного отдыха. В комплексе размещен фитнес-центр с бассейном. В 5 минутах от ЖК 4 школы, а так же новая современная школа №1. Рядом 7 детских садов, среди них два премиальных детских сада «Согласие». 15 учреждений дополнительного образования. В 10 минутах ходьбы — детская поликлиника № 11, «Новая больница» и «Детский доктор». В 15 минутах езды горбольницы № 41, № 40 и центральная городская больница №2, в радиусе 1 км медицинские центры «Бонум», «Шанс», «Панацея», «Хеликс» и «Парацельс». Особенная архитектура. Холл жилого комплекса выполнен в элегантных и минималистичных тонах. Служба мониторинга. В доме предусмотрен подземный одноуровневый паркинг. Отделка. Улучшенная шумоизоляция. Автоматическая телеметрия. Система отопления с повышенной теплоотдачей. Армированный 5-камерный профиль окон с режимом микропроветривания системы REHAU. Премиальные и технологичные лифты KOYO. Дренажно-насосная станция в подземном паркинге. Современные видеодомофоны. Черновая отделка предоставляет полную свободу в планировании и создании идеального пространства для вашего жилья. Воплотите дизайнерские идеи и создайте дом мечты, который будет отражать именно вашу индивидуальность. Готовы показать квартиру в удобное для вас время. Звоните, чтобы задать вопросы и договориться о просмотре! ID объекта в нашей базе: 988
    размещено: 03.02.2026 , обновлено: 20.02.2026

    1-к квартира, Викулова, 24

    • 39.1 м2
    • 12/25 этаж
    • Состояние:
    8 400 000 ₽ (214800 ₽/м2)
    1-комнатная квартира в ЖК «Тактика», Дом сдан, ключи получены! Продаётся современная 1-комнатная квартира в новом, уже сданном доме жилого комплекса «Тактика»! Ключи на руках — можно заезжать и жить. Отличная планировка. Отличная локация рядом с центром и развитой инфраструктурой. Идеальный вариант для первой собственной квартиры, инвестиции или комфортной жизни. О КОМПЛЕКСЕ: ЖК «Тактика» — это современный комплекс комфорт-класса от надежного застройщика. Дом уже построен и сдан в эксплуатацию, что означает: - Никаких рисков долгостроя. Не нужно ждать годы. - Можно сразу начинать делать ремонт и заселяться. О КВАРТИРЕ: Площадь: общая 39,1 кв.м. Этаж: 12/25. Планировка: Удачная, функциональная планировка с изолированной комнатой. Есть все необходимые зоны: прихожая , совмещенный санузел, кухня 12,2 кв.м., жилая комната 16,4 кв.м.. Состояние: Квартира новая, никто не проживал. Отличная возможность стать первым хозяином. ЛОКАЦИЯ И ИНФРАСТРУКТУРА: Район отличается развитой инфраструктурой и транспортной доступностью: Рядом с центром: Быстрый выезд в центр Екатеринбурга. Комплекс расположен в границах улиц Татищева – Викулова – Венгерских Коммунаров, возле Акватории Верх-Исетского пруда. Транспорт: Остановки общественного транспорта в шаговой доступности, удобный выезд на основные магистрали. Магазины и услуги: В пешей доступности супермаркеты («Пятерочка», «Магнит» и др.), аптеки, салоны красоты, отделения банков. Образование и здоровье: Детские сады, школы и поликлиники в районе в шаговой доступности. Перспективный район — инфраструктура продолжает развиваться, что положительно влияет на стоимость недвижимости. Идеально для: Молодой семьи или одного человека, желающего иметь собственное жилье. Инвестора для последующей сдачи в аренду (востребованный район). Покупки для детей/родственников. Готовы показать квартиру в удобное для вас время. Звоните, чтобы задать вопросы и договориться о просмотре! ID объекта в нашей базе: 983
    размещено: 02.02.2026 , обновлено: 21.02.2026

    1-к квартира, Викулова, 24

    • 48 м2
    • 13/18 этаж
    • Состояние:
    9 900 000 ₽ (206300 ₽/м2)
    Жилой комплекс «ТАКТИКА» расположен в границах улиц Татищева, Викулова и Венгерских Коммунаров, адрес Викулова, 24, вблизи Акватории пруда Верх-Исетского района. Дом повышенного комфорта предлагает: современный и безопасный двор, ландшафтный дизайн, пространство для отдыха на крыше и фитнес клуб с бассейном. Максимальное удобство и доступность городской инфраструктуры, остановки общественного транспорта, трамвайная линия. Благодаря удобному расположению остановок, вы сможете сэкономить время на поездках и легче планировать свои маршруты. Благоустройство. Закрытый двор комплекса, создает место безопасности и удобства, созданное для семейного отдыха и детских игр. Среди элементов — веревка альпиниста, балансировочные столбики, змейка и подвесной гамак. Есть детские карусели и деревянные качели на любой вкус: классические и качели-гамаки. Двор полностью свободен от машин, что гарантирует безопасность и спокойствие для всех его обителей. Для взрослых во дворе воркаут-зона с кардио-тренажёрами, силовой и атлетический комплекс. А также настольный теннис и пространство для йоги на открытом воздухе. В комплеске размещен фитнес-центр с бассейном. В 5 минутах от жилищного комплекса 4 школы, ещё 3 — в 10 минутах, в том числе школа №1, построенная в 2019 году по последнему слову техники. Рядом 7 садиков, среди них два премиальных детских сада «Согласие», 15 учреждений дополнительного образования, например, школа программирования «Алгоритмика» и Международная школа скорочтения. В 10 минутах ходьбы — детская поликлиника №11, «Новая больница» и «Детский доктор». В 15 минутах езды горбольницы №41, №40 и центральная городская больница №2, в радиусе 1 км медицинские центры «Бонум», «Шанс», «Панацея», «Хеликс» и «Парацельс». Особенная архитектура. Холл жилого комплекса выполнен в элегантных и минималистичных тонах, где гармонично сочетаются керамогранит и декоративная штукатурка. Системы видеонаблюдения охватывают общие зоны, включая входные группы, подъезды и дворовую территории, что позволяет контролировать происходящее в реальном времени. Служба мониторинга активно следит за ситуацией и моментально реагирует на любые происшествия, что обеспечивает дополнительный уровень защиты и спокойствия для всех жильцов. В доме предусмотрен подземный одноуровневый паркинг. Отделка. Улучшенная шумоизоляция сохранит в вашей квартире тишину и спокойствие от внешних звуков и соседних помещений. Автоматическая телеметрия позволит забыть о хлопотах по сбору показаний счетчиков для коммунальных платежей. Система отопления с повышенной теплоотдачей обеспечит быстрое и равномерное прогревание помещения, создавая комфортный микроклимат в любое время года. Армированный 5-камерный профиль окон с режимом микропроветривания системы REHAU эффективно удержит тепло и предотвратит потерю энергии. Премиальные и технологичные лифты KOYO обеспечат быструю и бесперебойную работу, что значительно повысит удобство в перемещения внутри комплекса, минимизируя ожидание жителей. Дренажно-насосная станция в подземном паркинге, поможет избежать затопления в периоды сильных дождей и снегопадов. Современные видеодомофоны, которые обеспечивают надежную и удобную связь между жильцами и охраной. Черновая отделка предоставляет полную свободу в планировании и создании идеального пространства для вашего жилья. Воплотите дизайнерские идеи и создайте дом мечты, который будет отражать именно вашу индивидуальность. Готовы показать квартиру в удобное для вас время. Звоните, чтобы задать вопросы и договориться о просмотре! ID объекта в нашей базе: 978
    размещено: 02.02.2026 , обновлено: 20.02.2026

    2-к квартира, Викулова, 24

    • 71 м2
    • 17/18 этаж
    • Состояние:
    13 500 000 ₽ (190100 ₽/м2)
    Жилой комплекс «ТАКТИКА» расположен в границах улиц Татищева, Викулова и Венгерских Коммунаров, адрес Викулова, 24, вблизи Акватории пруда Верх-Исетского района. Дом повышенного комфорта предлагает: современный и безопасный двор, ландшафтный дизайн, пространство для отдыха на крыше и фитнес клуб с бассейном. Максимальное удобство и доступность городской инфраструктуры, остановки общественного транспорта, трамвайная линия. Благодаря удобному расположению остановок, вы сможете сэкономить время на поездках и легче планировать свои маршруты. Благоустройство. Закрытый двор комплекса, создает место безопасности и удобства, созданное для семейного отдыха и детских игр. Среди элементов — веревка альпиниста, балансировочные столбики, змейка и подвесной гамак. Есть детские карусели и деревянные качели на любой вкус: классические и качели-гамаки. Двор полностью свободен от машин, что гарантирует безопасность и спокойствие для всех его обителей. Для взрослых во дворе воркаут-зона с кардио-тренажёрами, силовой и атлетический комплекс. А также настольный теннис и пространство для йоги на открытом воздухе. В комплеске размещен фитнес-центр с бассейном. В 5 минутах от жилищного комплекса 4 школы, ещё 3 — в 10 минутах, в том числе школа №1, построенная в 2019 году по последнему слову техники. Рядом 7 садиков, среди них два премиальных детских сада «Согласие», 15 учреждений дополнительного образования, например, школа программирования «Алгоритмика» и Международная школа скорочтения. В 10 минутах ходьбы — детская поликлиника №11, «Новая больница» и «Детский доктор». В 15 минутах езды горбольницы №41, №40 и центральная городская больница №2, в радиусе 1 км медицинские центры «Бонум», «Шанс», «Панацея», «Хеликс» и «Парацельс». Особенная архитектура. Холл жилого комплекса выполнен в элегантных и минималистичных тонах, где гармонично сочетаются керамогранит и декоративная штукатурка. Системы видеонаблюдения охватывают общие зоны, включая входные группы, подъезды и дворовую территории, что позволяет контролировать происходящее в реальном времени. Служба мониторинга активно следит за ситуацией и моментально реагирует на любые происшествия, что обеспечивает дополнительный уровень защиты и спокойствия для всех жильцов. В доме предусмотрен подземный одноуровневый паркинг. Отделка. Улучшенная шумоизоляция сохранит в вашей квартире тишину и спокойствие от внешних звуков и соседних помещений. Автоматическая телеметрия позволит забыть о хлопотах по сбору показаний счетчиков для коммунальных платежей. Система отопления с повышенной теплоотдачей обеспечит быстрое и равномерное прогревание помещения, создавая комфортный микроклимат в любое время года. Армированный 5-камерный профиль окон с режимом микропроветривания системы REHAU эффективно удержит тепло и предотвратит потерю энергии. Премиальные и технологичные лифты KOYO обеспечат быструю и бесперебойную работу, что значительно повысит удобство в перемещения внутри комплекса, минимизируя ожидание жителей. Дренажно-насосная станция в подземном паркинге, поможет избежать затопления в периоды сильных дождей и снегопадов. Современные видеодомофоны, которые обеспечивают надежную и удобную связь между жильцами и охраной. Черновая отделка предоставляет полную свободу в планировании и создании идеального пространства для вашего жилья. Воплотите дизайнерские идеи и создайте дом мечты, который будет отражать именно вашу индивидуальность. Готовы показать квартиру в удобное для вас время. Звоните, чтобы задать вопросы и договориться о просмотре! ID объекта в нашей базе: 977
    размещено: 02.02.2026 , обновлено: 19.03.2026

    1-к квартира, Викулова, 24

    • 45 м2
    • 10/26 этаж
    • Состояние:
    9 400 000 ₽ (208900 ₽/м2)
    Жилой комплекс «ТАКТИКА» расположен в границах улиц Татищева, Викулова и Венгерских Коммунаров, адрес Викулова, 24, вблизи Акватории пруда Верх-Исетского района. Дом повышенного комфорта предлагает: современный и безопасный двор, ландшафтный дизайн, пространство для отдыха на крыше и фитнес клуб с бассейном. Максимальное удобство и доступность городской инфраструктуры, остановки общественного транспорта, трамвайная линия. Благодаря удобному расположению остановок, вы сможете сэкономить время на поездках и легче планировать свои маршруты. Благоустройство. Закрытый двор комплекса, создает место безопасности и удобства, созданное для семейного отдыха и детских игр. Среди элементов — веревка альпиниста, балансировочные столбики, змейка и подвесной гамак. Есть детские карусели и деревянные качели на любой вкус: классические и качели-гамаки. Двор полностью свободен от машин, что гарантирует безопасность и спокойствие для всех его обителей. Для взрослых во дворе воркаут-зона с кардио-тренажёрами, силовой и атлетический комплекс. А также настольный теннис и пространство для йоги на открытом воздухе. В комплеске размещен фитнес-центр с бассейном. В 5 минутах от жилищного комплекса 4 школы, ещё 3 — в 10 минутах, в том числе школа №1, построенная в 2019 году по последнему слову техники. Рядом 7 садиков, среди них два премиальных детских сада «Согласие», 15 учреждений дополнительного образования, например, школа программирования «Алгоритмика» и Международная школа скорочтения. В 10 минутах ходьбы — детская поликлиника №11, «Новая больница» и «Детский доктор». В 15 минутах езды горбольницы №41, №40 и центральная городская больница №2, в радиусе 1 км медицинские центры «Бонум», «Шанс», «Панацея», «Хеликс» и «Парацельс». Особенная архитектура. Холл жилого комплекса выполнен в элегантных и минималистичных тонах, где гармонично сочетаются керамогранит и декоративная штукатурка. Системы видеонаблюдения охватывают общие зоны, включая входные группы, подъезды и дворовую территории, что позволяет контролировать происходящее в реальном времени. Служба мониторинга активно следит за ситуацией и моментально реагирует на любые происшествия, что обеспечивает дополнительный уровень защиты и спокойствия для всех жильцов. В доме предусмотрен подземный одноуровневый паркинг. Отделка. Улучшенная шумоизоляция сохранит в вашей квартире тишину и спокойствие от внешних звуков и соседних помещений. Автоматическая телеметрия позволит забыть о хлопотах по сбору показаний счетчиков для коммунальных платежей. Система отопления с повышенной теплоотдачей обеспечит быстрое и равномерное прогревание помещения, создавая комфортный микроклимат в любое время года. Армированный 5-камерный профиль окон с режимом микропроветривания системы REHAU эффективно удержит тепло и предотвратит потерю энергии. Премиальные и технологичные лифты KOYO обеспечат быструю и бесперебойную работу, что значительно повысит удобство в перемещения внутри комплекса, минимизируя ожидание жителей. Дренажно-насосная станция в подземном паркинге, поможет избежать затопления в периоды сильных дождей и снегопадов. Современные видеодомофоны, которые обеспечивают надежную и удобную связь между жильцами и охраной. Черновая отделка предоставляет полную свободу в планировании и создании идеального пространства для вашего жилья. Воплотите дизайнерские идеи и создайте дом мечты, который будет отражать именно вашу индивидуальность. Готовы показать квартиру в удобное для вас время. Звоните, чтобы задать вопросы и договориться о просмотре! ID объекта в нашей базе: 976
    размещено: 02.02.2026 , обновлено: 21.02.2026

    1-к квартира, Викулова, 24

    • 26 м2
    • 5/26 этаж
    • Состояние:
    5 600 000 ₽ (215400 ₽/м2)
    Жилой комплекс «ТАКТИКА» расположен в границах улиц Татищева, Викулова и Венгерских Коммунаров, адрес Викулова, 24, вблизи Акватории пруда Верх-Исетского района. Дом повышенного комфорта предлагает: современный и безопасный двор, ландшафтный дизайн, пространство для отдыха на крыше и фитнес клуб с бассейном. Максимальное удобство и доступность городской инфраструктуры, остановки общественного транспорта, трамвайная линия. Благодаря удобному расположению остановок, вы сможете сэкономить время на поездках и легче планировать свои маршруты. Благоустройство. Закрытый двор комплекса, создает место безопасности и удобства, созданное для семейного отдыха и детских игр. Среди элементов — веревка альпиниста, балансировочные столбики, змейка и подвесной гамак. Есть детские карусели и деревянные качели на любой вкус: классические и качели-гамаки. Двор полностью свободен от машин, что гарантирует безопасность и спокойствие для всех его обителей. Для взрослых во дворе воркаут-зона с кардио-тренажёрами, силовой и атлетический комплекс. А также настольный теннис и пространство для йоги на открытом воздухе. В комплеске размещен фитнес-центр с бассейном. В 5 минутах от жилищного комплекса 4 школы, ещё 3 — в 10 минутах, в том числе школа №1, построенная в 2019 году по последнему слову техники. Рядом 7 садиков, среди них два премиальных детских сада «Согласие», 15 учреждений дополнительного образования, например, школа программирования «Алгоритмика» и Международная школа скорочтения. В 10 минутах ходьбы — детская поликлиника №11, «Новая больница» и «Детский доктор». В 15 минутах езды горбольницы №41, №40 и центральная городская больница №2, в радиусе 1 км медицинские центры «Бонум», «Шанс», «Панацея», «Хеликс» и «Парацельс». Особенная архитектура. Холл жилого комплекса выполнен в элегантных и минималистичных тонах, где гармонично сочетаются керамогранит и декоративная штукатурка. Системы видеонаблюдения охватывают общие зоны, включая входные группы, подъезды и дворовую территории, что позволяет контролировать происходящее в реальном времени. Служба мониторинга активно следит за ситуацией и моментально реагирует на любые происшествия, что обеспечивает дополнительный уровень защиты и спокойствия для всех жильцов. В доме предусмотрен подземный одноуровневый паркинг. Отделка. Улучшенная шумоизоляция сохранит в вашей квартире тишину и спокойствие от внешних звуков и соседних помещений. Автоматическая телеметрия позволит забыть о хлопотах по сбору показаний счетчиков для коммунальных платежей. Система отопления с повышенной теплоотдачей обеспечит быстрое и равномерное прогревание помещения, создавая комфортный микроклимат в любое время года. Армированный 5-камерный профиль окон с режимом микропроветривания системы REHAU эффективно удержит тепло и предотвратит потерю энергии. Премиальные и технологичные лифты KOYO обеспечат быструю и бесперебойную работу, что значительно повысит удобство в перемещения внутри комплекса, минимизируя ожидание жителей. Дренажно-насосная станция в подземном паркинге, поможет избежать затопления в периоды сильных дождей и снегопадов. Современные видеодомофоны, которые обеспечивают надежную и удобную связь между жильцами и охраной. Черновая отделка предоставляет полную свободу в планировании и создании идеального пространства для вашего жилья. Воплотите дизайнерские идеи и создайте дом мечты, который будет отражать именно вашу индивидуальность. Готовы показать квартиру в удобное для вас время. Звоните, чтобы задать вопросы и договориться о просмотре! ID объекта в нашей базе: 975
    размещено: 02.02.2026 , обновлено: 19.03.2026

История предложений в этом доме

объявление снято с публикации в продаже комнат площадь этаж цена,
Екатеринбург, ул. Викулова, 24 (ВИЗ) - фото квартиры 20 февраля 2026 90 дн. 2 68.7 17/18 12 800 000
Екатеринбург, ул. Викулова, 24 (ВИЗ) - фото квартиры 25 февраля 2026 90 дн. 1 44 22/25 9 400 000
Екатеринбург, ул. Викулова, 24 (ВИЗ) - фото квартиры 20 февраля 2026 90 дн. 2 69 16/18 12 800 000
Екатеринбург, ул. Викулова, 24 (ВИЗ) - фото квартиры 7 февраля 2026 90 дн. 1 49.2 4/25 7 000 000
Екатеринбург, ул. Викулова, 24 (ВИЗ) - фото квартиры 20 февраля 2026 90 дн. 1 43.4 4/18 9 200 000
Екатеринбург, ул. Викулова, 24 (ВИЗ) - фото квартиры 20 февраля 2026 90 дн. 1 39.3 7/26 8 400 000
Екатеринбург, ул. Викулова, 24 (ВИЗ) - фото квартиры 31 октября 2025 90 дн. 0 24.7 9/26 4 250 000

Похожие предложения о продаже квартир в Екатеринбурге (ВИЗ)

  • 2-к квартира, Крауля, 89а

    • 66.3 м2
    • 21/29 этаж
    • Состояние: идеальное
    12 500 000 ₽ (188500 ₽/м2)
    Очень светлая и уютная квартира!!! 2 изолированные комнаты и большая кухня-гостиная. Сделан качественный ремонт. Квартира полностью мебелирована - заезжай и живи!!! Высота потолков 2,7м. Установлен кондиционер. Укомплектованный кухонный гарнитур всей необходимой техникой. Удачное расположение дома. Развитая инфраструктура и транспортная развязка. Паркинг можно арендовать. Детская площадка закрытая и оборудована под разные возраста. Есть все необходимое для качественной и комфортной жизни всей семьей. ID объекта в нашей базе: 12353
    размещено: 12.03.2026 , обновлено: 18.03.2026
  • 2-к квартира, Крауля, 194

    • 65 м2
    • 2/25 этаж
    • Состояние: плохое
    9 800 000 ₽ (150800 ₽/м2)
    Объект № 197866. Представляем вашему вниманию исключительное предложение – уютную 2-комнатную квартиру, где каждая деталь продумана для вашего комфорта. Расположенная на втором этаже, эта квартира предлагает умиротворяющий вид во двор, даря тишину и спокойствие вдали от городской суеты. Сердцем квартиры является просторная кухня-гостиная – идеальное место для семейных ужинов, встреч с друзьями или просто уютных вечеров. Здесь достаточно места для воплощения любых дизайнерских идей. Квартира с предчистовой отделкой, что открывает перед вами безграничные возможности для создания интерьера вашей мечты. Вы сможете выбрать материалы и цветовые решения, соответствующие вашему уникальному стилю. Наличие двух санузлов – несомненное преимущество, которое сэкономит ваше время и добавит удобства для всей семьи. "Риверсайд" – это современный жилой комплекс, предлагающий высокий уровень комфорта и безопасности. Развитая инфраструктура, благоустроенная территория и близость к природе делают его одним из самых желанных мест для жизни в Екатеринбурге. Звоните прямо сейчас, чтобы договориться о просмотре. ***Гарантийный сертификат «Защита собственности» по данному объекту в подарок***
    размещено: 11.03.2026
  • 2-к квартира, Токарей, 26

    • 60.4 м2
    • 14/16 этаж
    • Состояние: хорошее
    10 790 000 ₽ (178600 ₽/м2)
    Просторная квартира в центре города с красивым панорамным видом. Большие комнаты, просторная кухня, потолки 2,8м, большая лоджия. В квартире ремонт от застройщика. Остается кухонный гарнитур с встроенной бытовой техникой. Удачное расположение дома, закрытая, охраняемая территория, детский сад, школа, в шаговой доступности магазины и остановка общественного транспорта. До проспекта Ленина 10 минут пешком. Один собственник, обременений нет. Документы готовы к сделке. ID объекта в нашей базе: 25790
    размещено: 10.03.2026 , обновлено: 16.03.2026
  • 2-к квартира, Викулова, 24

    • 72.7 м2
    • 8/25 этаж
    • Состояние: удовлетворительное
    12 299 000 ₽ (169200 ₽/м2)
    Жилой комплекс ТАКТИКА расположен в границах улиц Татищева, Викулова и Венгерских Коммунаров, адрес Викулова, 24, вблизи Акватории пруда Верх-Исетского района. Дом повышенного комфорта предлагает: современный и безопасный двор, ландшафтный дизайн, пространство для отдыха на крыше и фитнес клуб с бассейном. Максимальное удобство и доступность городской инфраструктуры, остановки общественного транспорта, трамвайная линия. Благодаря удобному расположению остановок, вы сможете сэкономить время на поездках и легче планировать свои маршруты. Благоустройство. Закрытый двор комплекса, создает место безопасности и удобства, созданное для семейного отдыха и детских игр. Среди элементов веревка альпиниста, балансировочные столбики, змейка и подвесной гамак. Есть детские карусели и деревянные качели на любой вкус: классические и качели-гамаки. Двор полностью свободен от машин, что гарантирует безопасность и спокойствие для всех его обителей. Для взрослых во дворе воркаут-зона с кардио-тренажёрами, силовой и атлетический комплекс. А также настольный теннис и пространство для йоги на открытом воздухе. В комплексе размещен фитнес-центр с бассейном.
    размещено: 18.02.2026 , обновлено: 10.03.2026
  • 2-к квартира, Викулова, 24

    • 53.1 м2
    • 8/25 этаж
    • Состояние: плохое
    10 500 000 ₽ (197700 ₽/м2)
    Объект № 197716. В продаже 1ком. квартира, 53.1м2, этаж 8, отделка черновая Жилoй комплeкc «TAКTИКА» раcполoжен в границax улиц Tатищeва, Bикулoвa и Beнгерских Kоммунарoв, адрec Bикуловa, 24, вблизи Aквaтoрии прудa Вepx-Иcетcкoго paйонa. Дом повышeнногo кoмфоpта пpeдлагaeт: совремeнный и безoпаcный двор, лaндшафтный дизайн, пpoстранство для отдыха на крыше и фитнес клуб с бассейном. Максимальное удобство и доступность городской инфраструктуры, остановки общественного транспорта, трамвайная линия. Благодаря удобному расположению остановок, вы сможете сэкономить время на поездках и легче планировать свои маршруты. ***Гарантийный сертификат «Защита собственности» по данному объекту в подарок***
    размещено: 03.03.2026 , обновлено: 7.03.2026

    2-к квартира, Мельникова, 27

    • 64.1 м2
    • 4/25 этаж
    • Состояние: идеальное
    16 400 000 ₽ (255900 ₽/м2)
    64 кв.м. комфорта!!! 2-к квартира на Мельникова, 27 (ВИЗ).Прямая продажа от собственника (помощь с юридическим сопровождением). Жду вашего звонка! Характеристики объекта: Площадь: 64 кв. м. (просторная прихожая, раздельные комнаты, кухня). Этаж: 4 из 25. Состояние: Хорошее, «жилое». Квартира полностью готова к проживанию, не требует косметических вложений "на входе".Локация: Тихий, сложившийся микрорайон. Рядом школы, детсады, супермаркеты и остановки общественного транспорта.Хорошая транспортная доступность и полная инфраструктура внутри района делают это предложение выгодным вложением. Инвестиционная привлекательность: Квартира расположена в районе с перспективой развития рекреационной зоны (планируется строительство парка). Это существенно повысит ликвидность объекта и комфорт проживания в перспективе 2-3 лет. ID объекта в нашей базе: 12319
    размещено: 02.03.2026 , обновлено: 19.03.2026

    2-к квартира, Татищева, 49

    • 63.7 м2
    • 16/22 этаж
    13 000 000 ₽ (204100 ₽/м2)
    Арт. 129858447 Продается уютная квартира в ЖК «Татищевский». Функциoнальнaя плaнировка включаeт в сeбя гoстиную-куxню, свeтлую спальню с балконом и детскую, ванную комнату, просторную прихожую. В отделке квартиры были использованы высококачественные материалы. Установлены функциональный кухонный гарнитур со встраиваемой техникой и системами хранения. Высокий этаж открывает потрясающий вид на город. Мебель и техника остается новым владельцам. В ЖК оборудованы детские дворы, где дети смогут весело проводить время на детской площадке, а взрослые заниматься спортом на спортивной площадке. Безопасность и комфорт проживания обеспечивает круглосуточная служба охраны и видеонаблюдение на всей территории ЖК. Имеется большая парковка во дворе дома (за пределами ЖК) и в подземном паркинге. Преимущество квартиры - это шикарная локация в центре города Екатеринбурга с развитой инфраструктурой: ТЦ, продуктовые магазины, аптеки, поликлиники, детские сады, трамвайная и автобусные остановки, школы №1, №69 и №74 , парки, спортивные объекты, набережная Верх-Исетского пруда. Квартира без обременений. Один взрослый собственник, в собственности более 5 лет, материнский капитал не использовался. Быстрый выход на сделку.
    размещено: 10.02.2026 , обновлено: 18.03.2026

    2-к квартира, Викулова, 24

    • 67 м2
    • 18/25 этаж
    • Состояние: плохое
    12 800 000 ₽ (191000 ₽/м2)
    Жилой комплекс «ТАКТИКА» расположен в границах улиц Татищева, Викулова и Венгерских Коммунаров, адрес Викулова, 24, вблизи Акватории пруда Верх-Исетского района. Дом повышенного комфорта предлагает: современный и безопасный двор, ландшафтный дизайн, пространство для отдыха на крыше и фитнес клуб с бассейном. Максимальное удобство и доступность городской инфраструктуры, остановки общественного транспорта, трамвайная линия. Благодаря удобному расположению остановок, вы сможете сэкономить время на поездках и легче планировать свои маршруты. Благоустройство.Закрытый двор комплекса, создает место безопасности и удобства, созданное для семейного отдыха и детских игр. Среди элементов — веревка альпиниста, балансировочные столбики, змейка и подвесной гамак. Есть детские карусели и деревянные качели на любой вкус: классические и качели-гамаки. Двор полностью свободен от машин, что гарантирует безопасность и спокойствие для всех его обителей. Для взрослых во дворе воркаут-зона с кардио-тренажёрами, силовой и атлетический комплекс. А также настольный теннис и пространство для йоги на открытом воздухе. В комплеске размещен фитнес-центр с бассейном. В 5 минутах от жилищного комплекса 4 школы, ещё 3 — в 10 минутах, в том числе школа №1, построенная в 2019 году по последнему слову техники. Рядом 7 садиков, среди них два премиальных детских сада «Согласие», 15 учреждений дополнительного образования, например, школа программирования «Алгоритмика» и Международная школа скорочтения. В 10 минутах ходьбы — детская поликлиника №11, «Новая больница» и «Детский доктор». В 15 минутах езды горбольницы №41, №40 и центральная городская больница №2, в радиусе 1 км медицинские центры «Бонум», «Шанс», «Панацея», «Хеликс» и «Парацельс». Особенная архитектура. Холл жилого комплекса выполнен в элегантных и минималистичных тонах, где гармонично сочетаются керамогранит и декоративная штукатурка. Системы видеонаблюдения охватывают общие зоны, включая входные группы, подъезды и дворовую территории, что позволяет контролировать происходящее в реальном времени. Служба мониторинга активно следит за ситуацией и моментально реагирует на любые происшествия, что обеспечивает дополнительный уровень защиты и спокойствия для всех жильцов. В доме предусмотрен подземный одноуровневый паркинг. Отделка.Улучшенная шумоизоляция сохранит в вашей квартире тишину и спокойствие от внешних звуков и соседних помещений. Автоматическая телеметрия позволит забыть о хлопотах по сбору показаний счетчиков для коммунальных платежей. Система отопления с повышенной теплоотдачей обеспечит быстрое и равномерное прогревание помещения, создавая комфортный микроклимат в любое время года. Армированный 5-камерный профиль окон с режимом микропроветривания системы REHAU эффективно удержит тепло и предотвратит потерю энергии. Премиальные и технологичные лифты KOYO обеспечат быструю и бесперебойную работу, что значительно повысит удобство в перемещения внутри комплекса, минимизируя ожидание жителей. Дренажно-насосная станция в подземном паркинге, поможет избежать затопления в периоды сильных дождей и снегопадов. Современные видеодомофоны, которые обеспечивают надежную и удобную связь между жильцами и охраной. Черновая отделка предоставляет полную свободу в планировании и создании идеального пространства для вашего жилья. Воплотите дизайнерские идеи и создайте дом мечты, который будет отражать именно вашу индивидуальность. Готовы показать квартиру в удобное для вас время. Звоните, чтобы задать вопросы и договориться о просмотре! ID объекта в нашей базе: 1003
    размещено: 06.02.2026 , обновлено: 1.03.2026

    2-к квартира, Викулова, 24

    • 72.2 м2
    • 8/25 этаж
    • Состояние: плохое
    12 300 000 ₽ (170400 ₽/м2)
    Жилой комплекс «ТАКТИКА» расположен в границах улиц Татищева, Викулова и Венгерских Коммунаров, адрес Викулова, 24, вблизи Акватории пруда Верх-Исетского района. Дом повышенного комфорта предлагает: современный и безопасный двор, ландшафтный дизайн, пространство для отдыха на крыше и фитнес клуб с бассейном. Максимальное удобство и доступность городской инфраструктуры, остановки общественного транспорта, трамвайная линия. Благодаря удобному расположению остановок, вы сможете сэкономить время на поездках и легче планировать свои маршруты. Благоустройство.Закрытый двор комплекса, создает место безопасности и удобства, созданное для семейного отдыха и детских игр. Среди элементов — веревка альпиниста, балансировочные столбики, змейка и подвесной гамак. Есть детские карусели и деревянные качели на любой вкус: классические и качели-гамаки. Двор полностью свободен от машин, что гарантирует безопасность и спокойствие для всех его обителей. Для взрослых во дворе воркаут-зона с кардио-тренажёрами, силовой и атлетический комплекс. А также настольный теннис и пространство для йоги на открытом воздухе. В комплеске размещен фитнес-центр с бассейном. В 5 минутах от жилищного комплекса 4 школы, ещё 3 — в 10 минутах, в том числе школа №1, построенная в 2019 году по последнему слову техники. Рядом 7 садиков, среди них два премиальных детских сада «Согласие», 15 учреждений дополнительного образования, например, школа программирования «Алгоритмика» и Международная школа скорочтения. В 10 минутах ходьбы — детская поликлиника №11, «Новая больница» и «Детский доктор». В 15 минутах езды горбольницы №41, №40 и центральная городская больница №2, в радиусе 1 км медицинские центры «Бонум», «Шанс», «Панацея», «Хеликс» и «Парацельс». Особенная архитектура. Холл жилого комплекса выполнен в элегантных и минималистичных тонах, где гармонично сочетаются керамогранит и декоративная штукатурка. Системы видеонаблюдения охватывают общие зоны, включая входные группы, подъезды и дворовую территории, что позволяет контролировать происходящее в реальном времени. Служба мониторинга активно следит за ситуацией и моментально реагирует на любые происшествия, что обеспечивает дополнительный уровень защиты и спокойствия для всех жильцов. В доме предусмотрен подземный одноуровневый паркинг. Отделка.Улучшенная шумоизоляция сохранит в вашей квартире тишину и спокойствие от внешних звуков и соседних помещений. Автоматическая телеметрия позволит забыть о хлопотах по сбору показаний счетчиков для коммунальных платежей. Система отопления с повышенной теплоотдачей обеспечит быстрое и равномерное прогревание помещения, создавая комфортный микроклимат в любое время года. Армированный 5-камерный профиль окон с режимом микропроветривания системы REHAU эффективно удержит тепло и предотвратит потерю энергии. Премиальные и технологичные лифты KOYO обеспечат быструю и бесперебойную работу, что значительно повысит удобство в перемещения внутри комплекса, минимизируя ожидание жителей. Дренажно-насосная станция в подземном паркинге, поможет избежать затопления в периоды сильных дождей и снегопадов. Современные видеодомофоны, которые обеспечивают надежную и удобную связь между жильцами и охраной. Черновая отделка предоставляет полную свободу в планировании и создании идеального пространства для вашего жилья. Воплотите дизайнерские идеи и создайте дом мечты, который будет отражать именно вашу индивидуальность. Готовы показать квартиру в удобное для вас время. Звоните, чтобы задать вопросы и договориться о просмотре! ID объекта в нашей базе: 996
    размещено: 05.02.2026 , обновлено: 26.02.2026

    2-к квартира, Татищева, 102

    • 62 м2
    • 6/8 этаж
    • Состояние: удовлетворительное
    10 980 000 ₽ (177100 ₽/м2)
    Продается квартира Евро-3 в 8-ми этажной секции, окна на разные стороны, прекрасный вид, закрытый двор, с этажа спуск на лифте в подземный паркинг, есть 2 парковочных места с электророзеткой, идеальное расположение дома с видовыми характеристиками, рядом транспорт, яхт клуб, прогулочная набережная и вся инфраструктура. Квартира без ипотек, без использования маткапа. Чистая продажа, документы готовы. ID объекта в нашей базе: 602
    размещено: 05.02.2026 , обновлено: 10.03.2026

    2-к квартира, Викулова, 24

    • 72.7 м2
    • 7/26 этаж
    • Состояние: плохое
    13 600 000 ₽ (187100 ₽/м2)
    Жилой комплекс «ТАКТИКА» - Это Дом повышенного комфорта: современный и безопасный двор, ландшафтный дизайн, пространство для отдыха на крыше и фитнес клуб с бассейном, вблизи Акватории пруда Верх-Исетского района. Максимальное удобство и доступность городской инфраструктуры, и удобное расположение остановок общественного транспорта Благоустройство. Закрытый двор комплекса, для семейного отдыха и детских игр. Есть детские карусели и деревянные качели на любой вкус: классические и качели-гамаки, веревка альпиниста, балансировочные столбики, змейка и подвесной гамак. Для взрослых так же есть все для активного и пассивного отдыха. В комплексе размещен фитнес-центр с бассейном. В 5 минутах от ЖК 4 школы, а так же новая современная школа №1. Рядом 7 детских садов, среди них два премиальных детских сада «Согласие». 15 учреждений дополнительного образования. В 10 минутах ходьбы — детская поликлиника № 11, «Новая больница» и «Детский доктор». В 15 минутах езды горбольницы № 41, № 40 и центральная городская больница №2, в радиусе 1 км медицинские центры «Бонум», «Шанс», «Панацея», «Хеликс» и «Парацельс». Особенная архитектура. Холл жилого комплекса выполнен в элегантных и минималистичных тонах. Служба мониторинга. В доме предусмотрен подземный одноуровневый паркинг. Отделка. Улучшенная шумоизоляция. Автоматическая телеметрия. Система отопления с повышенной теплоотдачей. Армированный 5-камерный профиль окон с режимом микропроветривания системы REHAU. Премиальные и технологичные лифты KOYO. Дренажно-насосная станция в подземном паркинге. Современные видеодомофоны. Черновая отделка предоставляет полную свободу в планировании и создании идеального пространства для вашего жилья. Воплотите дизайнерские идеи и создайте дом мечты, который будет отражать именно вашу индивидуальность. Готовы показать квартиру в удобное для вас время. Звоните, чтобы задать вопросы и договориться о просмотре! ID объекта в нашей базе: 991
    размещено: 03.02.2026 , обновлено: 20.02.2026

    2-к квартира, Викулова, 24

    • 71 м2
    • 17/18 этаж
    • Состояние: удовлетворительное
    13 500 000 ₽ (190100 ₽/м2)
    Жилой комплекс «ТАКТИКА» расположен в границах улиц Татищева, Викулова и Венгерских Коммунаров, адрес Викулова, 24, вблизи Акватории пруда Верх-Исетского района. Дом повышенного комфорта предлагает: современный и безопасный двор, ландшафтный дизайн, пространство для отдыха на крыше и фитнес клуб с бассейном. Максимальное удобство и доступность городской инфраструктуры, остановки общественного транспорта, трамвайная линия. Благодаря удобному расположению остановок, вы сможете сэкономить время на поездках и легче планировать свои маршруты. Благоустройство. Закрытый двор комплекса, создает место безопасности и удобства, созданное для семейного отдыха и детских игр. Среди элементов — веревка альпиниста, балансировочные столбики, змейка и подвесной гамак. Есть детские карусели и деревянные качели на любой вкус: классические и качели-гамаки. Двор полностью свободен от машин, что гарантирует безопасность и спокойствие для всех его обителей. Для взрослых во дворе воркаут-зона с кардио-тренажёрами, силовой и атлетический комплекс. А также настольный теннис и пространство для йоги на открытом воздухе. В комплеске размещен фитнес-центр с бассейном. В 5 минутах от жилищного комплекса 4 школы, ещё 3 — в 10 минутах, в том числе школа №1, построенная в 2019 году по последнему слову техники. Рядом 7 садиков, среди них два премиальных детских сада «Согласие», 15 учреждений дополнительного образования, например, школа программирования «Алгоритмика» и Международная школа скорочтения. В 10 минутах ходьбы — детская поликлиника №11, «Новая больница» и «Детский доктор». В 15 минутах езды горбольницы №41, №40 и центральная городская больница №2, в радиусе 1 км медицинские центры «Бонум», «Шанс», «Панацея», «Хеликс» и «Парацельс». Особенная архитектура. Холл жилого комплекса выполнен в элегантных и минималистичных тонах, где гармонично сочетаются керамогранит и декоративная штукатурка. Системы видеонаблюдения охватывают общие зоны, включая входные группы, подъезды и дворовую территории, что позволяет контролировать происходящее в реальном времени. Служба мониторинга активно следит за ситуацией и моментально реагирует на любые происшествия, что обеспечивает дополнительный уровень защиты и спокойствия для всех жильцов. В доме предусмотрен подземный одноуровневый паркинг. Отделка. Улучшенная шумоизоляция сохранит в вашей квартире тишину и спокойствие от внешних звуков и соседних помещений. Автоматическая телеметрия позволит забыть о хлопотах по сбору показаний счетчиков для коммунальных платежей. Система отопления с повышенной теплоотдачей обеспечит быстрое и равномерное прогревание помещения, создавая комфортный микроклимат в любое время года. Армированный 5-камерный профиль окон с режимом микропроветривания системы REHAU эффективно удержит тепло и предотвратит потерю энергии. Премиальные и технологичные лифты KOYO обеспечат быструю и бесперебойную работу, что значительно повысит удобство в перемещения внутри комплекса, минимизируя ожидание жителей. Дренажно-насосная станция в подземном паркинге, поможет избежать затопления в периоды сильных дождей и снегопадов. Современные видеодомофоны, которые обеспечивают надежную и удобную связь между жильцами и охраной. Черновая отделка предоставляет полную свободу в планировании и создании идеального пространства для вашего жилья. Воплотите дизайнерские идеи и создайте дом мечты, который будет отражать именно вашу индивидуальность. Готовы показать квартиру в удобное для вас время. Звоните, чтобы задать вопросы и договориться о просмотре! ID объекта в нашей базе: 977
    размещено: 02.02.2026 , обновлено: 19.03.2026

    2-к квартира, Татищева, 20

    • 52.6 м2
    • 12/28 этаж
    • Состояние: идеальное
    13 490 000 ₽ (256500 ₽/м2)
    Прекрасная 2-комнатная квартира в ЖК Нагорный, с качественным ремонтом в современном стиле. Квартира представляет собой уютное пространство, созданное с использованием новейших тенденций в дизайне интерьера. Она имеет отдельные спальни, просторную кухню-гостиную и просторную ванную комнату. Ремонт выполнен в светлых тонах и с использованием натуральных материалов, интерьеры создают атмосферу комфорта и уюта. ЖК Нагорный предлагает широкий спектр инфраструктуры для комфортного проживания, включая детские площадки, спортивные площадки, парковки, магазины, рестораны и фитнес клуб. Центральное место, красивый хол с консъерж службой, возможность посетить ресторан и спортивный клуб не выходя на улицу. Подземный паркинг и оборудованные локеры для хранения вещей. Безопасный закрытый зеленый двор для детей всех возрастов, свои прогулочные зоны и многое другое, для комфортного проживания Вас и Вашей семьи. Приглашаем на просмотр! Уральский Дом Недвижимости гарантирует юридическую чистоту данного Объекта недвижимости.
    размещено: 14.01.2026 , обновлено: 14.03.2026

    2-к квартира, Татищева, 47а

    • 76.3 м2
    • 13/30 этаж
    • Состояние: плохое
    17 000 000 ₽ (222800 ₽/м2)
    Вашему вниманию замечательная двухкомнатная квартира в ЖК «Крылов-2». Дом бизнес-класса. Закрытая территория дома. Видеонаблюдение. Ресепшен с зоной ожидания для гостей. Подземный паркинг. Свое ТСЖ. Очень удачная планировка: просторная кухня -гостиная с лоджией; две изолированные комнаты, в одной из которых есть достаточно большая гардеробная; два сан. узла. Отличная шумоизоляция и теплоизоляция квартиры. ШИКАРНЫЙ ВИД из окна! Центр города! В шаговой доступности есть абсолютно все для комфортной жизни. Юридически «чистая» квартира. Приглашаем на просмотр (возможен в любое время, но по предварительной договоренности), записаться можно по телефону. ID объекта в нашей базе: 12842
    размещено: 08.12.2025 , обновлено: 7.03.2026

    2-к квартира, Крауля, 89/а

    • 72.3 м2
    • 17/29 этаж
    • Состояние: хорошее
    11 730 000 ₽ (162200 ₽/м2)
    Объект № 195535. Евро-трeшка в знаковом домe - ТOП-локация BИЗa! Гpaмотная планиpoвкa c куxней-гостинoй и двумя изoлировaнными спальнями. Cупep-вид c 17 этажa нa тpи cтoроны и гaрaнтия, что пeрeд окнaми не выpaстeт oчерeднoй чeлoвейник. Oкнa во двop и на школы 48 и 171. Hет шума улицы и pеальнo свежий воздуx. С соседями сверху и снизу повезло (почти полная тишина), боковых нет (см планировку). На этаже всего 6 квартир. Позитивное комьюнити внутри всего дома. Остается качественный кухонный гарнитур + стенка, встроенная техника (дух. шкаф, варочная, стиральная машина, посудомойка, холодильник) - немецкое производство. Также по договоренности можно оставить еще мебель - Заезжай и живи! Рядом есть абсолютно все (см карту), до центра 20 мин прогулочным шагом. Все плюсы максимально развитой инфраструктуры района. Бонусом для покупателя - мастер-класс по большому теннису на площадке напротив дома от собственника! Документы готовы, один взрослый совершеннолетний собственник, без обременений, без использования МСК. ***Гарантийный сертификат «Защита собственности» по данному объекту в подарок***
    размещено: 12.11.2025 , обновлено: 16.03.2026

    2-к квартира, Ключевская, 15

    • 53.5 м2
    • 7/18 этаж
    • Состояние: идеальное
    9 950 000 ₽ (186000 ₽/м2)
    Продам квартиру площадью 53,5 кв. м. с хорошим ремонтом. Вся мебель и техника остается без дополнительной оплаты. В прихожей: шкаф – купе. В ванной комнате: стиральная машина, бойлер для нагрева воды, раковина с тумбой, зеркало, пенал, а также смесители. На кухне: кухонный гарнитур Икея, варочная поверхность, духовой шкаф, посудомоечная машина, вытяжка, холодильник, обеденный стол, 4 стула, диван, тумба и телевизор. Спальня: гардеробная, 2х спальная кровать с матрацем, 2 тумбочки, комод, зеркало, стол, кресло. А так же останутся все потолочные светильники, шторы и гардины. В доме свое ТСЖ, есть видеонаблюдение и охрана, закрытая территория двора и детская площадка. Установлены теплосчетчики, коммунальные платежи небольшие даже в зимний период. Дом находится вдали от шумных дорог, в то же время в шаговой доступности все виды транспорта: трамвай, троллейбус, автобус. Магазины, аптеки, банки, клиника, нотариус – все рядом.До центра города 20 минут пешком. Один собственник, обременений и долгов нет, мат капитал не использовали на покупку, чистая продажа. Полный пакет документов, сопровождение и профессиональная поддержка сделки: -опытным агентом и юристом-помощь с ипотекой Гарантия безопасности сделки от агентства "БК_НЕДВИЖИМОСТЬ". ID объекта в нашей базе: 3150
    размещено: 22.09.2025 , обновлено: 16.03.2026

    2-к квартира, Нагорная, 12

    • 64 м2
    • 4/31 этаж
    • Состояние: идеальное
    15 600 000 ₽ (243800 ₽/м2)
    Продам просторную полноценную 2-комнатную квартиру в ЖК Бизнес класса "Высота" (дом сдан в 2022 году. застройщик Форум Групп)Планировка квартиры современная и удобная для жизни: просторная кухня-гостиная, две полноценные спальни, два полноценных сан узла.Территория дома огорожена, видеонадлюдение, консьерж сервис, охрана.В квартире выполнен ремонт: ламинат, обои под покраску, установлен кухонный гарнитур с техникой и остров. Отличная шумоизоляция квартиры, по периметру квартиры - всего 1 стена с соседней квартирой. Великолепный двор (без машин и без разгрузок), современные места общество пользования, качественная постройка.Рядом с домом развитая инфраструктура: остановки трамваем на ул. Татищева и ул. Верх-Исетский бульвар, парк 22 Партсъезда, школа 1, Дворец молодежи, Екатеринбург Арена, магазины, кафе.Подробности по телефону, приглашаю на просмотр квартиры. ID объекта в нашей базе: 2185
    размещено: 18.09.2025 , обновлено: 15.03.2026

    2-к квартира, Мельникова, 3

    • 51 м2
    • 12/24 этаж
    14 500 000 ₽ (284300 ₽/м2)
    Объект № 194091. Продаётся уютная квартира в жилом комплексе «Нагорный». Дом бизнес класса, качественный подход к резидентам! Развитая инфраструктура: рядом магазины, школы, детские сады, остановки общественного транспорта. Удобное расположение с хорошей транспортной доступностью в любой район города. Дворы благоустроены, есть игровые и спортивные площадки. Огороженная территория с контролем доступа, видеонаблюдение. Парковочные места для жителей. Дополнительные преимущества квартиры: светлая и тёплая. Большие окна с красивым видом. Лоджия. Новые коммуникации и сантехника. Все детали можем обсудить по телефону. ***Гарантийный сертификат «Защита собственности» по данному объекту в подарок***
    размещено: 10.09.2025 , обновлено: 13.03.2026

    2-к квартира, Юмашева, 18

    • 67.5 м2
    • 17/17 этаж
    • Состояние: идеальное
    14 000 000 ₽ (207400 ₽/м2)
    Эксклюзивное предложение: квартира в центре Екатеринбурга с собственной терассой 50 кв.м. Кухня-гостинная 28 к.м. и две спальни (почти по 10кв.м. каждая). На площадке одна квартира, соседей нет. Квартира новая тоько после чистовой отделки. Всё сделано дорогими качественными материалами. Дом расположен почти на берегу реки Исеть. С терассы шикарный вид с 17го этажа на реку и город. Тихая улица, нет шумных дорог. Закрытая территория двора, охрана. У дома есть подземный паркинг. Возможна ипотека. ID объекта в нашей базе: 25775
    размещено: 18.06.2025 , обновлено: 25.02.2026

    2-к квартира, Малышева, 4/б

    • 79.3 м2
    • 12/17 этаж
    • Состояние: хорошее
    16 100 000 ₽ (203000 ₽/м2)
    Объект № 192011. При быстром выходе на сделку покупателям хороший торг. Двухкомнатная квартира в кирпичном доме в самом центре города. Комнаты правильной формы, большая кухня-столовая, просторный холл, два санузла, две лоджии. Квартира имеет отличные видовые характеристики. Квартира теплая, светлая, с низкими коммунальными платежами. В доме есть подземный паркинг, двор закрыт, видеонаблюдение по всему периметру. В доме очень редко продаются квартиры, хорошие соседи приятным бонусом новым собственникам. В шаговой доступности: гимназия № 2, ТЦ Алатырь, Дворец Молодежи и современный парк, Центральный стадион. Удобные выезды во все направления нашего города. Один собственник, документы готовы к продаже, быстрый выход на сделку. Все подробности можно узнать на просмотре. ***Гарантийный сертификат «Защита собственности» по данному объекту в подарок***
    размещено: 26.05.2025 , обновлено: 18.03.2026

Новостройки Екатеринбург, мкр-н. ВИЗ

Приоритет

Увеличивает просмотры в 3 раза

Ваше объявление показывается в списке выше обычных объявлений. подключить