На Метре реклама - только нормальная. Никакого шок-контента.
Помогайте независимому ресурсу, как он помогает вам. Удачи!
Новостройки Котт. посёлки Объявления Динамика цен и сделок

Продажа дома: д. Крутиха, ул. Станционная, 16б (городской округ Режевской)

  • опубликовано 13.03.2025 , обновлено 21.11.2025
  • 16
Направление, расстояние: Режевское направление, 57 км. от центра Екатеринбурга
Тип объекта:дом
Состояние объекта:жилой
Год постройки:2025
S участка:5.69 соток
Общая площадь дома:45 м2
Жилая площадь:10 м2
Этажность:1
Электричество:есть
Водоснабжение:есть
Канализация:есть
Отопление:есть
Наличие водоема:Нет
Цена:
4 990 000
Объявление снято с публикации
Условия продажи:«чистая» продажа

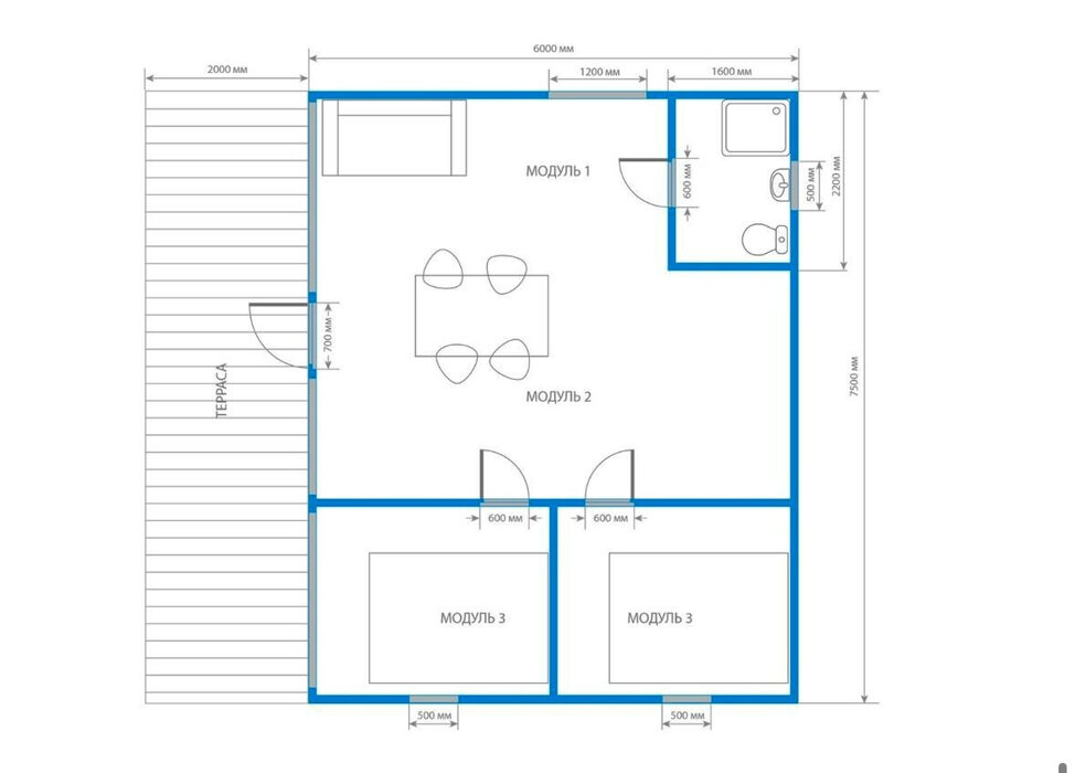
???? Продается участок с подрядом на строительсто каркасно-модульного дома!
Идеальное жилье площадью 60 кв.м.
???? Характеристики:

Каркас из калиброванной доски с огнебиозащитой
Утепление Knauf insulation (150 мм)
Пятикамерные окна с энергосберегающим стеклопакетом
Входные двери из трехкамерного профиля
Внутренняя отделка с имитацией бруса
Эффективное отопление и принудительная вентиляция
Открытая терраса из лиственницы
Срок строительства 100 дней с момента подписания договора подряда

Указанная цена включает стоимость указанного земельного участка, доставку и сборку дома с отделкой "Под ключ", свайный фундамент, подключение электричества 15кВт 380в, скважина и кессон.Построить дом по таким же характеристикам можно и на вашем участке.
Не упустите шанс на комфортное жилье! Звоните для подробностей! ????????
Цена указана за участок с домом по таким характеристикам с чистовой отделкой.
ID объекта в нашей базе: 1636

Объявление снято с публикации

История предложений

объявление снято с публикации в продаже адрес S дома / S участка цена,
д. Крутиха, ул. Станционная, 16б (городской округ Режевской) - фото дома 13 мая 2025 90 дн. д. Крутиха, ул. Станционная, 16б (городской округ Режевской) 45 4 990 000
д. Крутиха, ул. Станционная, 18 (городской округ Режевской) - фото дома 19 марта 2022 90 дн. д. Крутиха, ул. Станционная, 18 (городской округ Режевской) 54 4 650 000
д. Крутиха, ул. Станционная, 16 (городской округ Режевской) - фото дома 21 октября 2021 90 дн. д. Крутиха, ул. Станционная, 16 (городской округ Режевской) 51.4 4 500 000
д. Крутиха, ул. Станционная, 28 (городской округ Режевской) - фото дома 14 августа 2019 90 дн. д. Крутиха, ул. Станционная, 28 (городской округ Режевской) 39 1 390 000

Предложения о продаже земельных участков в д. Крутиха

Внимание! Данная рубрика предназначена для лотов по жилой недвижимости. Коммерческая недвижимость здесь.

  • Участок в д. Крутиха, ул. Дачная, 4б

    городской округ Режевской (Режевское направление)
    Центр Екатеринбурга → 57 км
    • 9 соток
    300 000 ₽
    Продаётся земельный участок площадью 9,4 соток в посёлке Крутиха, Режевского района. Предназначение участка — ведение личного подсобного хозяйства и индивидуальное жилищное строительство. Оптимальная логистика позволяет комфортно перемещаться: всего 57 километров до Екатеринбурга и 25 километров до города Реж. Прекрасный выбор для тех, кто ценит природу и спокойствие пригородной зоны. ID объекта в нашей базе: 25997
    размещено: 22.09.2025 , обновлено: 17.11.2025
  • Участок в д. Крутиха, ул. Мира, 3а

    городской округ Режевской (Режевское направление)
    Центр Екатеринбурга → 57 км
    • 7 соток
    300 000 ₽
    Продаётся земельный участок площадью 7 соток в посёлке Крутиха, Режевского района. Предназначение участка — ведение личного подсобного хозяйства и индивидуальное жилищное строительство. Оптимальная логистика позволяет комфортно перемещаться: всего 57 километров до Екатеринбурга и 25 километров до города Реж. Прекрасный выбор для тех, кто ценит природу и спокойствие пригородной зоны. ID объекта в нашей базе: 25998
    размещено: 22.09.2025 , обновлено: 12.11.2025

Приоритет

Увеличивает просмотры в 3 раза

Ваше объявление показывается в списке выше обычных объявлений. подключить