Дом - с. Курганово, ул. Александровские дачи,
городской округ Полевской
(Полевское направление)
Центр Екатеринбурга → 31 км
Центр Екатеринбурга → 31 км
Объект №601.
Продаётся новый одноэтажный дом в КП «Александровские дачи»
Уютный и современный дом для комфортной жизни за городом, в спокойной и зелёной локации. Продуманная планировка и готовность к проживанию делают этот вариант особенно удобным.
Основные характеристики:
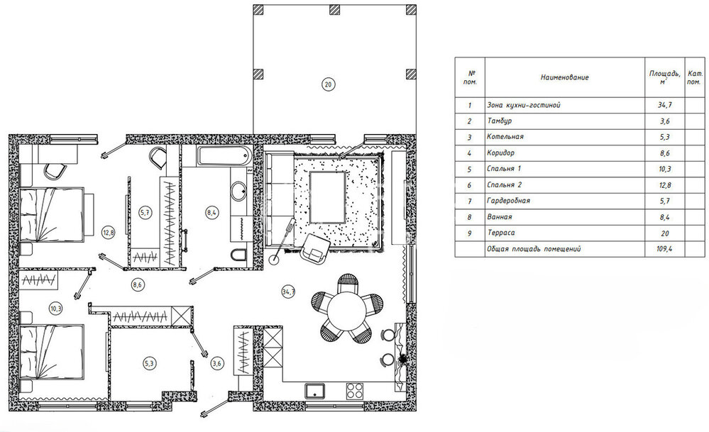
— площадь дома 109,4 м²
— участок 10,21 сотки
— 2 спальни
— просторная кухня-гостиная
— санузел
— котельная
— терраса
Преимущества дома:
— предчистовая отделка
— автономное электрическое отопление
— собственная скважина
— терраса для отдыха на свежем воздухе
Локация и окружение:
— коттеджный посёлок «Александровские дачи»
— тихое, экологически чистое место
— вся необходимая инфраструктура в 6 минутах
Финансовые возможности:
— подходит под семейную ипотеку
— материнский капитал можно использовать в первоначальный взнос
Отличный вариант для тех, кто ищет готовый дом с участком, комфортом и спокойной загородной атмосферой.
размещено: 15.04.2026













