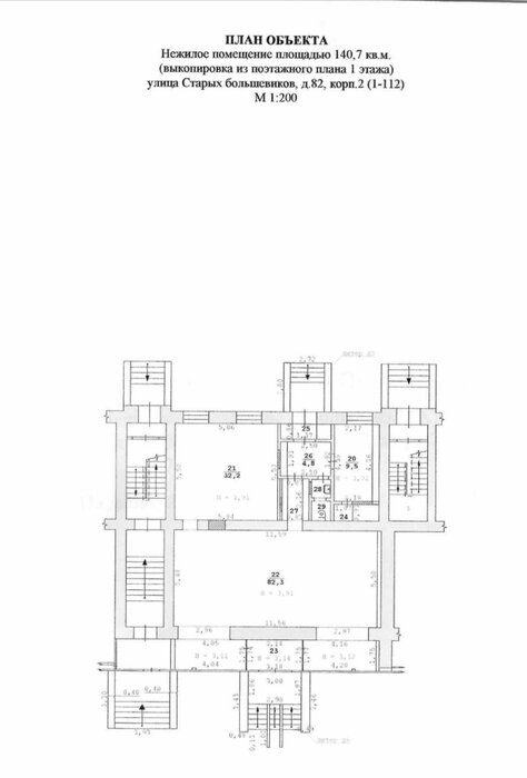
Торговая площадь 83.2 м2 – Баумана, 5
Продаётся отдельное нежилое помещение на 1 этаже кирпичного дома (сталинка). Вход с подъезда, дверь выходит на улицу — удобно для вывески и отдельного режима работы.
Параметры:
4 отдельных кабинета
2 санузла
Хороший ремонт (состояние отличное, можно использовать без вложений)
Расположение:Рядом с метро Уралмаш (пешком 3–5 минут). Высокая проходимость, транспортная доступность.
Юридически чисто:
1 взрослый собственник
Без долгов, обременений, арестов
Полная подготовка к сделке
Подходит для любых коммерческих целей (офис, медцентр, студии, услуги). Показ по договорённости.
ID объекта в нашей базе: 14871
размещено: 02.04.2026
, обновлено: 27.04.2026






