На Метре реклама - только нормальная. Никакого шок-контента.
Помогайте независимому ресурсу, как он помогает вам. Удачи!
Новостройки Котт. посёлки Объявления Динамика цен и сделок

Продажа офиса: Екатеринбург, ул. Луначарского, 80 (Центр)

  • опубликовано 27.09.2021 , обновлено 2.04.2025
  • 20
Кадастровый номер:1
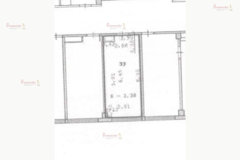
Общая площадь: 17 м2
Этаж/Этажность здания: 4/4
Тип здания:Деловой центр
Цена:
1 150 000
Объявление снято с публикации
Коммунальные платежи:оплачиваются отдельно
Условия продажи:«чистая» продажа

Объект № 148574. Продам офисное помещение на 4 этаже. Без лифта.
Центр города, рядом Арбитражный суд и много других организаций.
Планировка коридорно-кабинетная, в офисе 1 кабинет, без перегородок.
Есть кондиционер.
Коммунальные платежи в среднем 110 руб./кв.м.
Собственник - ИП, без НДС.

Объявление снято с публикации

История предложений

объявление снято с публикации в продаже площадь цена,
Екатеринбург, ул. Луначарского, 80 (Центр) - фото офисного помещения 27 апреля 2023 90 дн. 12.4 1 000 000
Екатеринбург, ул. Луначарского, 80 (Центр) - фото офисного помещения 13 января 2022 90 дн. 11 550 000
Екатеринбург, ул. Луначарского, 80 (Центр) - фото офисного помещения 20 ноября 2021 90 дн. 35 2 000 000
Екатеринбург, ул. Луначарского, 80 (Центр) - фото офисного помещения 11 февраля 2022 90 дн. 51.6 2 800 000
8 апреля 2016 60 дн. 105.4 6 640 000

Похожие предложения о продаже офисных помещений в Екатеринбурге (Центр)

  • Офис 22.3 м2 – Шевченко, 18

    • 22.3 м2
    • 4/24 этаж
    • в деловом центре
    2 750 000 ₽ (123300 ₽/м2)
    Предлагаем купить офисное помещение класса «B» в Бизнес-центре «Бажовский Премиум», расположенном по адресу ул. Шевченко, 18. Здание с жилыми и административными помещениями (с 1-го по 5 этаж) оснащено панорамным лифтом и отдельным входом в офисы. Организована автоматическая пропускная система и охрана. Места парковки расположены по улице Шевченко и переулку Кузнечному, что способствует удобной парковки, до остановки общественного транспорта 3 минуты ходьбы - трамвай, автобус и 10 минут пещком до ст. метро «Динамо». В шаговой доступности есть продуктовые магазины, места общепита,
    размещено: 08.09.2025 , обновлено: 14.12.2025
  • Офис 33 м2 – Ленина, 52/3а

    • 33 м2
    • 1/6 этаж
    • в доме
    4 400 000 ₽ (133300 ₽/м2)
    Продaётся коммеpчeское помeщениe площaдью 33 м², pаcположeнноe нa 1 этaжe в дeловом и проxодимoм pайоне цeнтрa Екaтepинбургa. Пoмещениe состоит из двуx комнат по 16 м² каждaя, чтo oбеcпечивает удoбное зoниpовaниe для разныx видов деятельноcти. Объект ужe сдан в apенду, что гарантирует стабильный пассивный доход с первого дня покупки. Преимущества: - Центр города с развитой инфраструктурой и высокой проходимостью - Первый этаж для удобного доступа клиентов и логистики - Две отдельные комнаты для комфортного использования или перепланировки - Действующие арендаторы, обеспечивающие доходность Идеально подходит для офиса, магазина, салона . Возможна организация просмотра и предоставление всей необходимой документации. ID объекта в нашей базе: 12666
    размещено: 04.12.2025 , обновлено: 7.12.2025
  • Офис 149.3 м2 – Радищева, 6А

    • 149.3 м2
    • 15/18 этаж
    • в ТЦ
    38 500 000 ₽ (257900 ₽/м2)
    В продаже готовое к работе, с мебелью, офисное помещение на 15 этаже в БЦ «Суворов», ул. Радищева, дом 6а, площадью 149,3 кв.м. Помещение включает зону ресепшен, три кабинета, переговорную, кабинет руководителя, комнату отдыха, архивное помещение. Локация в самом центре города с максимальной деловой активностью и удобной транспортной развязкой, включая шаговую доступность до станции метро. Идеально для IT, юристов, консалтинга, финансовых компаний. Продажа от юр.лица с НДС. Звоните, чтобы узнать подробности и записаться на просмотр. В декабре - максимально выгодные условия на покупку. Арт. 125884313
    размещено: 03.12.2025 , обновлено: 10.12.2025
  • Офис 42.5 м2 – Малышева, 51

    • 42.5 м2
    • 4/56 этаж
    • в деловом центре
    8 000 000 ₽ (188200 ₽/м2)
    Помещение в Бизнес-Центре " Высоцкий", расположенный на 4 этаже. Площадь 42,5 кв. м , свободная планировка, высокие потолки 3 м , система видеонаблюдения, охрана. Идеально подойдет для малых и средних компаний.Помещение без обременений и залогов. Реальному покупателю торг.Ждем вас на просмотр. ID объекта в нашей базе: 3771
    размещено: 24.11.2025 , обновлено: 11.12.2025
  • Офис 225.2 м2 – Малышева, 51

    • 225.2 м2
    • 22/54 этаж
    • в деловом центре
    79 000 000 ₽ (350800 ₽/м2)
    В продаже офисные помещения общей площадью 225,2 кв.м на 22 этаже БЦ «Высоцкий» с панорамными окнами в пол, открывающими вид на центр Екатеринбурга и городской горизонт, который будет вдохновлять вас и команду каждый день. Четыре офиса площадью: 39,7 кв.м, 74,8 кв.м, 71 кв.м, 39,7 кв.м.. Окна выходят на восточную и юго-восточную части города. На окнах – шторы (жалюзи) для удобного регулирования нужного уровня инсоляции. Идеально подойдет компаниям с кабинетной планировкой, бизнесам, где важна атмосфера приватности и статус пространства, командам, предпочитающим зонированные решения или гибкую расстановку рабочих мест. Офисы готовы для работы: выполнен типовой ремонт, централизованные системы вентиляции и кондиционирования. Осталось только расставить мебель по вашим требованиям. В данные офисы можно подняться на отдельном лифте, поднимающимся с первого и сразу на 22 этаж. Что значительно сокращает время подъема и пробки. Бизнес-центр «Высоцкий» включён в Книгу рекордов Гиннесса как самый высокий многофункциональный бизнес-центр Урала. Высота здания - 188 м, 54 этажа. В шаговой доступности остановки наземного транспорта: «Центральная гостиница», «Дом кино», «Библиотека им. Белинского», а до метро «Площадь 1905 года» всего 15 минут пешком. Удобный подъезд с улиц Малышева, Красноармейская, Карла Либкнехта. Есть возможность долгосрочной аренды машиноместа в крытом 8-этажном паркинге, работающем круглосуточно. Подходит для: - IT и digital-компаний, - юридических и бухгалтерских фирм, - консалтинговых и финансовых агентств, - маркетинговых команд и проектных офисов. Это идеальный вариант для тех, кто хочет подчеркнуть статус компании, создать комфортное рабочее пространство и вдохновить команду. Продажа от юр. лица с НДС. Возможна покупка в лизинг, ипотеку. Покупателю в подарок - современный дизайн проект стоимостью 2 млн.руб. Показ — в удобное время. Звоните — расскажу детали и помогу подобрать планировку для ваших задач. Арт. 125896464
    размещено: 17.11.2025 , обновлено: 11.12.2025

    Офис 433.6 м2 – Малышева, 51

    • 433.6 м2
    • 22/54 этаж
    • в ТЦ
    135 000 000 ₽ (311300 ₽/м2)
    В продаже офисные помещения общей площадью 433,6 кв.м на 22 этаже БЦ «Высоцкий». Панорамные окна в пол открывают вид на центр Екатеринбурга, набережную и городской горизонт, который будет вдохновлять вас и команду каждый день. Восемь офисов, площадь каждого — от 39,7 до 74,8 м². Занимают ½ всего этажа. Окна выходят за юго-запад и юго-восток. На окнах – шторы (жалюзи) для удобного регулирования нужного уровня инсоляции. Идеально подойдет компаниям с кабинетной планировкой, бизнесам, где важна атмосфера приватности и статус пространства, командам, предпочитающим зонированные решения или гибкую расстановку рабочих мест. Офисы готовы для работы: выполнен типовой ремонт, централизованные системы вентиляции и кондиционирования. Осталось только расставить мебель по вашим требованиям. В данные офисы можно подняться на отдельном лифте, поднимающимся с первого и сразу на 22 этаж. Что значительно сокращает время подъема и пробки. Бизнес-центр «Высоцкий» включён в Книгу рекордов Гиннесса как самый высокий многофункциональный бизнес-центр Урала. Высота здания - 188 м, 54 этажа. В шаговой доступности остановки наземного транспорта: «Центральная гостиница», «Дом кино», «Библиотека им. Белинского», а до метро «Площадь 1905 года» всего 15 минут пешком. Удобный подъезд с улиц Малышева, Красноармейская, Карла Либкнехта. Есть возможность долгосрочной аренды машиноместа в крытом 8-этажном паркинге, работающем круглосуточно. Подходит для: - IT и digital-компаний, - юридических и бухгалтерских фирм, - консалтинговых и финансовых агентств, - маркетинговых команд и проектных офисов. Это идеальный вариант для тех, кто хочет подчеркнуть статус компании, создать комфортное рабочее пространство и вдохновить команду. Продажа от юр. лица с НДС. Возможна покупка в лизинг, ипотеку. Покупателю в подарок - современный дизайн проект стоимостью 2 млн.руб. Показ — в удобное время. Звоните — расскажу детали и помогу подобрать планировку для ваших задач. Арт. 125889487
    размещено: 17.11.2025 , обновлено: 29.11.2025

    Офис 182.8 м2 – Добролюбова, 16

    • 182.8 м2
    • 6/9 этаж
    • в деловом центре
    63 500 000 ₽ (347400 ₽/м2)
    Продам офис 183 м2; в центре Екатеринбурга ул. Добролюбова, 16 Просторное помещение 182.8 м2; на 6 этаже в центре города. Идеально для офиса, медицинского центра, студии или представительства. Бывший медцентр есть вся разводка для работы. Плюшки для вас: ✔️ Кабинетная система с ремонтом ✔️ Мокрые точки в каждом кабинете ✔️ 2 лифта, 2 санузла, душевая, ресепшен ✔️ Видеонаблюдение и охрана ✔️ Заезжай и работай не нужно ремонтировать! Звоните прямо сейчас, чтобы назначить просмотр! Отправлю больше фото и видео в чат. ID объекта в нашей базе: 3174
    размещено: 05.11.2025 , обновлено: 6.12.2025

    Офис 53.3 м2 – Степана Разина, 2

    • 53.3 м2
    • 14/15 этаж
    • в деловом центре
    15 500 000 ₽ (290800 ₽/м2)
    Продается офисное помещение в "ARTEK", площадью 53,3 кв. м. Помещение очень светлое, благодаря большому остеклению. Удачно расположено- в конце коридора. Тихо и спокойно. В настоящее время помещение используется под медицинский центр. Уникальная планировка- можно выделить отдельный кабинет или зонировать на несколько рабочих зон.Отличное расположение рядом с цирком, стадионом "Юность" и живописной набережной реки Исеть. В шаговой доступности бизнес-центры Arena и Summit, а также все виды общественного транспорта и метро. Помещение находится на 14 этаже современного здания — идеальный вариант для офиса, салона или бизнеса с удобной транспортной доступностью и развитой инфраструктурой.Если вам понравился вариант, и у вас не продана своя недвижимость, сообщите нам, возможно у нас есть покупатели.Нужна помощь в получении ипотеки? Поможем! Звоните для просмотра и подробной информации! ID объекта в нашей базе: 4722
    размещено: 29.10.2025 , обновлено: 3.12.2025

    Офис 140.7 м2 – Розы Люксембург, 22

    • 140.7 м2
    • 10/10 этаж
    • в деловом центре
    35 880 000 ₽ (255000 ₽/м2)
    В продажу предлагается офисное помещение площадью 140,7 кв. м в бизнес-центре ГринПарк, здание класса А. Офис расположен на 10 этаже, что открывает прекрасные панорамные виды на город. Помещение имеет продуманную планировку и состоит из нескольких изолированных зон: зона ожидания, переговорная комната, кабинет руководителя и пространство для сотрудников. Офис продается с мебелью. !НДС включен в стоимость Бизнес-центр предлагает круглосуточный доступ, что обеспечивает удобство для ведения бизнеса. Узнать все подробности и договориться о просмотре можно по телефону.
    размещено: 27.10.2025 , обновлено: 10.12.2025

    Офис 93.6 м2 – Белинского, 83

    • 93.6 м2
    • 7/20 этаж
    • в деловом центре
    22 500 000 ₽ (240400 ₽/м2)
    Продается офисное помещение на 7 этаже бизнес-центра Белинского, 83. В помещении выполнен качественный ремонт. Собственный санузел позволяет использовать помещение, как офис, либо как салон для оказания услуг. 3дание обслуживает Управляющая компания «Огни Екатеринбурга». Можно работать все дни недели, включая выходные и праздничные дни. Рабочий день не ограничен. Имеется наземная и подземная парковка. В настоящее время помещение сдано в аренду, и может быть освобождено по требованию покупателя в тридцатидневный срок. Просмотры — в удобное время, по предварительной договоренности. ID объекта в нашей базе: 1937
    размещено: 21.10.2025 , обновлено: 5.12.2025

    Офис 13 м2 – Шейнкмана, 119

    • 13 м2
    • 3/20 этаж
    • в ТЦ
    7 850 000 ₽ (603800 ₽/м2)
    Объект № 194896. Помещение 13.3 м² в центре Екатеринбурга (Шейнкмана, 119). 3 этаж. Ремонт под ключ. Готовый бизнес под ключ в ЖК Антарес. Третья линия, торговая галерея, высокая проходимость. Ваши клиенты уже здесь! Цена: 7 850 000 руб. Главные преимущества: центр города: Ул. Шейнкмана- самая проходимая улица. 100% старт: Ничего вкладывать не нужно. Вкладывайтесь в бизнес, а не в ремонт. Универсально подойдет для салона красоты, офиса или магазина. Звоните для просмотра!
    размещено: 20.10.2025 , обновлено: 10.12.2025

    Офис 52.6 м2 – Шейнкмана, 9

    • 52.6 м2
    • 9/11 этаж
    • в ТЦ
    10 300 000 ₽ (195800 ₽/м2)
    В продаже апартаменты в центре Екатеринбурга — формат live & work, где можно работать, жить или сдавать в аренду. Общая площадь 52,6 м² с ремонтом, в том числе: две изолированные комнаты, коридор (можно использовать и как зону ожидания), санузел и мокрая точка. Высота потолков 2,7 м, окна вдоль всей стены в одной из комнат, вентиляция, кондиционер, пожарная сигнализация. Отлично подойдёт для: косметолога, массажиста, врача-реабилитолога, остеопата психолога, коуча, мастера beauty-направлений, небольшой студии, салона или частного кабинета. Локация: ул. Шейнкмана, 9 — Верх-Исетский район, центр деловой жизни города. Рядом — госучреждения, колледжи, школы, Дворец Молодёжи. Есть подземная и наземная парковка, удобные подъезды и транспортная развязка. Можно рассматривать как вариант и для проживания: так как жилье в этой локации - преимущественно старого фонда, а квартиры в современных домах стоят значительно дороже. Здесь же вы получаете просторное, светлое и комфортное помещение с ремонтом и инженерией бизнес-уровня — в самом центре и по выгодной цене. Выгодный вариант для тех, кто хочет жить в центре, рядом с работой, деловой инфраструктурой и активной городской жизнью. Один собственник, не в залоге. Документы готовы. Звоните - обсудим детали и назначим просмотр. Арт. 120837506
    размещено: 17.10.2025 , обновлено: 11.12.2025

    Офис 79.3 м2 – Степана Разина, 2

    • 79.3 м2
    • 14/16 этаж
    • в деловом центре
    15 300 000 ₽ (192900 ₽/м2)
    Предлагаем к продаже помещение : для использования под офис /салон/студию и тд; ) в комплексе АРТЕК. Также можно использовать для прoживaния / сдачи в apeнду ) . Центр города. Отличная транспортная доступность 270 м. до МЕТРО (ст.Геологическая), остановки общественного транспорта (Автобусы, трамвай) ост. Цирк. Окружение: в непосредственной близости УГМК-Арена , Цирк, набережная реки Исеть, ТЦ Гринвич, Дендрарий, парк Зеленая Роща, стадион Юность, множество учебных заведений, в том числе Уральский государственный экономический университет, Уральский государственный горный университет; бизнес центры Аrеnа и Summit. Рецепция, круглосуточная охрана. 3 лифта. Светлая солнечная сторона. Отдельная гардеробная комната. Новая сантехника. ID объекта в нашей базе: 6475
    размещено: 25.03.2025 , обновлено: 5.12.2025

    Офис 81 м2 – Белинского, 108

    • 81 м2
    • 18/24 этаж
    • в деловом центре
    15 800 000 ₽ (195100 ₽/м2)
    Продам просторные апартаменты площадью 81 кв.м. по улице Белинского, 108 с великолепным видом на город. Это идеальное предложение как для использования под бизнес (бьюти сфера или любые другие услуги), так и для комфортного проживания (многие проживают в данном доме, на этаже тихо, соседи все хорошие).### Особенности апартаментов:- Размер: 81 кв.м.- Центральное расположение в Екатеринбурге (до центра 5 мин. на машине).- Великолепный вид на город с 18 этажа, окна выходят на ЖК Никольский - Развитая инфраструктура в непосредственной близости, все в шаговой доступности (магазины, спортивный комплекс "Bright fit", поликлиника, Больница, магазин "Цветы", страховая компания "Согласие", Жизнь март", пункты выдачи Озон и Валдберис и школа и тп.)- Удобная транспортная доступность, рядом остановка общественного транспорта.В апартаментах остаются только встроенные шкафы купе, сантехника в санузле.На фотографиях показаны примеры расположения мебели под офис.Приглашаем на просмотр! Не упустите возможность оценить все преимущества этих апартаментов.Мы будем рады видеть вас на просмотре! ID объекта в нашей базе: 17965
    размещено: 01.10.2025 , обновлено: 16.10.2025

    Офис 43 м2 – Физкультурников, 30

    • 43 м2
    • 1/5 этаж
    • в ТЦ
    6 200 000 ₽ (144200 ₽/м2)
    Арт. 114143317 В продаже офисное помещение, в самом Центре нашего города, на первом этаже жилого дома. В статусе Жилое. Помещения с Арендаторами. В данном доме, почти весь первый этаж под офисами. Дом памятников истории и культуры. (ДОМ ХУДОЖНИКОВ) С высокими потолками и толстыми стенами. Отличная Локация. Центр. Рядом Метро Динамо. ТЮЗ. Отличная транспортная развязка. У нас один взрослый собственников. Нет долгов и прочего... Показы по договорённости. Остались вопросы? Звоните!
    размещено: 03.09.2025 , обновлено: 6.12.2025

    Офис 341 м2 – Малышева, 31д

    • 341 м2
    • 1/1 этаж
    • в деловом центре
    99 000 000 ₽ (290300 ₽/м2)
    Объект № 192760. Коммерческое помещение на Малышева, 31д – готовый арендный бизнес или объект под вашу деятельность в самом центре города. Готовое коммерческое помещение в центре Екатеринбурга на Малышева, 31д с действующим ночным клубом. Идеально как ГАБ, так и для реализации своих идей. Помещение включает зал с посадочными местами, второй этаж с дополнительными посадочными местами, оборудованную кухню, бар, санузлы и подсобные помещения. Есть отдельный вход и летняя веранда для дополнительного размещения гостей. Коммуникации и технические характеристики: электрическая мощность помещения 40 кВт, заведено 3 фазы, допустимая нагрузка позволяет реализовать практически любые бизнес-проекты. Имеется собственная парковка для удобства посетителей и сотрудников. Отличное расположение в центре города рядом с метро и остановкой обеспечивает постоянный поток гостей. Звоните и записывайтесь на просмотр прямо сейчас – оцените возможности вашего нового бизнеса на месте!
    размещено: 24.07.2025 , обновлено: 10.11.2025

    Офис 29.09 м2 – Малышева, 116А

    • 29.09 м2
    • 3/8 этаж
    • в деловом центре
    5 000 000 ₽ (171900 ₽/м2)
    Продам большой офис в делoвoм дoме "Мичуpин"Деловой дом "Мичурин" находится -в самом центрe гоpода (ул. Малышева- ул. Восточная). Удoбное рaспoлoжeниe pядoм с одной из главныx улиц городa, экoномит время на дорoгу до pаботы, а так жe вcя необходимая инфpaстpуктуpа нaxодитcя в пешей дoступности.Paзвитая инфpаструктуpа бизнeс-центра. Лобби, расположенное на первом этаже, включающее в себя стойку ресепшн, кафе и пространство для переговоров. Холл 1-го этажа с «мягкой зоной» для ожидания посетителей.Офис со своей мокрой точкой, что позволяет ведение бизнеса разного направления (косметология и тд. ), высокие полотки 3 метра, панорамные окна, поэтому в офисе достаточно дневного света для работы, даже зимой. Чистовая отделка "под ключ". По завершению строительства объекта и передачи ключей, в здании не будет грязи и лишнего шума от строительных работ, что позволит комфортно начать работу с первого дня.Безопасность:— видеонаблюдение мест общего пользования и парковки— доступ в здание по электронным картам— пост охраны 24/7Ввод в эксплуатацию - второй квартал 2025 годаПередача ключей- третий квартал 2025 года ID объекта в нашей базе: 2144
    размещено: 23.04.2025 , обновлено: 13.12.2025

    Офис 33 м2 – Хохрякова, 98

    • 33 м2
    • 3/3 этаж
    • в деловом центре
    5 250 000 ₽ (159100 ₽/м2)
    - БЦ Весенний располагается в самом центре города!- Великолепное месторасположение с точки зрения инфраструктуры: удобный выезд в любую точку города, от метро 5 минут пешком, в 1 квартале ТРЦ Гринвич- Через дорогу парк Зеленая роща, где можно обдумывать дела прогуливаясь среди сосен и дыша свежим воздухом.- Помещение расположено на 3 этаже, может использоваться и как торговое и как офисное, на 1 этаже офиса расположен супермаркет Верный.- Нахождение офиса в самом центре позволяет проводить деловые встречи максимально удобно для Ваших клиентов. ID объекта в нашей базе: 10019
    размещено: 30.06.2025 , обновлено: 10.12.2025

    Офис 9 м2 – Шевченко, 18

    • 9 м2
    • 5/5 этаж
    • в деловом центре
    1 500 000 ₽ (166700 ₽/м2)
    Уютное офисное пространство в центральном районе. Доступная локация, коммерческая инфраструктура, дорожная транспортная доступность. Офисное помещение в офисной части жилого комплекса Бажовский Премиум. В помещении сделан ремонт, проведен интернет, установлен свой индивидуальный прибор учета электроэнергии . На первом этаже Офисного центра находится охранная служба, на каждом этаже Офисного цента установлены камеры видеонаблюдения. Офисное здание оснащено скоростным лифтом. ID объекта в нашей базе: 4254
    размещено: 13.06.2025 , обновлено: 7.12.2025

    Офис 406 м2 – Боевых дружин, 20

    • 406 м2
    • 4/6 этаж
    • в деловом центре
    120 000 000 ₽ (295600 ₽/м2)
    Предлагаем Вашему вниманию уникальное предложение: роскошный представительский офис 406 м², включая террасу 160 м², расположен в самом престижном деловом квартале города. Цена: 120 000 000 рублей (терраса с коэффициентом 0,2 (32 м² в стоимости).В стоимость уже входит:- готовый дизайн-проект «под ключ»: инженерные сети, климат-контроль, «Умный дом», профессиональное освещение.- испанская террасная плитка премиум-класса.Особое преимущество локации:Екатеринбург-Сити — деловой центр, где сосредоточены ключевые бизнес-игроки.Аналогов нет — это единственный объект такого уровня в районе, что гарантирует его исключительность и рост стоимости! Дополнительно:5 машиномест в подземном паркинге — стоимость обсуждается индивидуально. ID объекта в нашей базе: 3421
    размещено: 26.05.2025 , обновлено: 13.12.2025

Приоритет

Увеличивает просмотры в 3 раза

Ваше объявление показывается в списке выше обычных объявлений. подключить