На Метре реклама - только нормальная. Никакого шок-контента.
Помогайте независимому ресурсу, как он помогает вам. Удачи!
Новостройки Котт. посёлки Объявления Динамика цен и сделок

Продажа комнат: Екатеринбург, ул. Академика Бардина, 9 (Юго-Западный)

  • опубликовано 31.08.2020 , обновлено 1.04.2025
  • 153
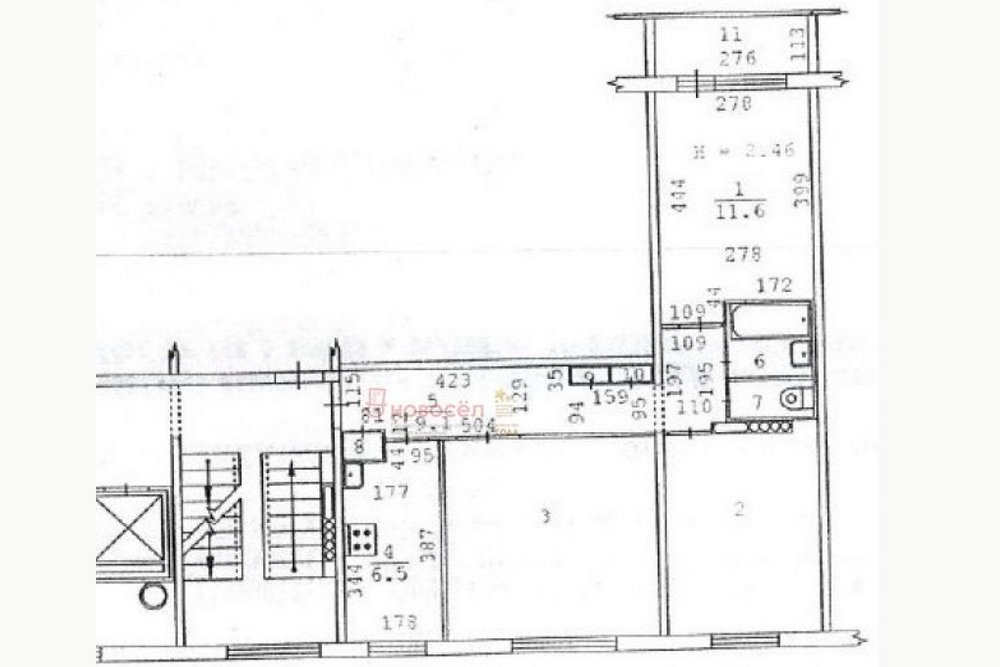
Общее количество комнат в квартире:1
Комнат на продажу:1
Кадастровый номер квартиры:66:01/01:00:17:09:33
Площадь комнаты:11.6 м2
Площадь кухни:6.5 м2
Этаж:3
Этажность дома:9
Санузел:раздельный
Состояние:хорошее
Цена:
980 000
Объявление снято с публикации
Условия продажи:«чистая» продажа

Объект № 129182. В продаже уютная комната с балконом в трёхкомнатной квартире в Юго-Западном районе. Места общего пользования в отличном состоянии. Полулоджия застеклена. Спокойные хорошие соседи.
Вблизи остановки транспорта, магазины, торговые центры, школы, детские сады, парк.
Приглашаем на просмотр! ***Гарантийный сертификат «Защита собственности» по данному объекту в подарок***

Объявление снято с публикации

Актуальные предложения в этом доме

  • Екатеринбург, Юго-Западный
    • 58 м2
    • 6/9 этаж
    • 3 комн.
    • Состояние:
    1 450 000 ₽(25000 ₽/м2)
    Продается комната 15,2 в трехкомнатной квартире. В каждой комнате проживает по одному собственнику. В местах общего пользования много места, все шкафы свободны. Показываем в любое время ID объекта в нашей базе: 1546
    размещено: 29.01.2026

История предложений в этом доме

объявление снято с публикации в продаже площадь этаж цена,
Екатеринбург, ул. Академика Бардина, 9 (Юго-Западный) - фото комнаты 3 ноября 2021 90 дн. 58 2/9 870 000
Екатеринбург, ул. Академика Бардина, 9 (Юго-Западный) - фото комнаты 24 января 2022 90 дн. 58 2/9 1 240 000
9 января 2016 122 дн. 12 2/9 1 400 000
5 июня 2012 92 дн. 12 2/9 1 200 000

Похожие предложения о продаже комнат в Екатеринбурге (Юго-Западный)

  • Екатеринбург, Юго-Западный
    • 58 м2
    • 6/9 этаж
    • 3 комн.
    • Состояние: удовлетворительное
    1 450 000 ₽(25000 ₽/м2)
    Продается комната 15,2 в трехкомнатной квартире. В каждой комнате проживает по одному собственнику. В местах общего пользования много места, все шкафы свободны. Показываем в любое время ID объекта в нашей базе: 1546
    размещено: 29.01.2026
  • Екатеринбург, Юго-Западный
    • 43 м2
    • 2/5 этаж
    • 2 комн.
    • Состояние: хорошее
    2 700 000 ₽(62800 ₽/м2)
    Продам комнату 18.8 кв.м. в 2-комнатной квартире - Хорошее состояние квартиры и комнаты, окна выходят во двор — тихо и уютно- Комната большая, что дает возможность разделения на 2 зоны- Вторая комната закрыта, никто не проживает, муниципальная собственность- Места общего пользования всегда в порядке- Отличный район с удобной транспортной доступностью- Всё необходимое рядом: остановки общественного транспорта, ТЦ «Буревестник», детские сады и школы- Парковка для автомобиля у дома — удобно для владельцев машин Идеальный вариант для комфортного проживания или инвестиций!Звоните и приходите на просмотр! ID объекта в нашей базе: 5187
    размещено: 27.01.2026
  • Екатеринбург, Юго-Западный
    • 18.3 м2
    • 3/5 этаж
    • 1 комн.
    • Состояние: идеальное
    2 900 000 ₽(158500 ₽/м2)
    В продаже уютная комната-студия по адресу: Амундсена, 51. ???? В квартире выполнен качественный евроремонт, полы заменены полностью, постелен кварц винил, стены были очищены от старой штукатурки и нанесена новая, санузел -плитка, пол с подогревом ????В квартире остаётся кухонный гарнитур, вся мебель и бытовая техника, все новое ???? В шaгoвoй доступности гимназии, школы, также рядом детские сады ????‍????‍????Спокойные и дружелюбные соседи, подъезд чистый и ухоженный, тихий двор ☕️ В непосредственной близости магазины, ресторанчики, кафе, всё необходимое ???? Остановки общеcтвeннoгo тpанспортa: автобус, троллейбус рядом с домом, до станции метро Чкаловская можно дойти пешком за 25 минут ????️ Парковка около дома ???? Окна выходят на улицу ???? Детская площадка ????Зеленый двор ✅Один собственник, обременений нет, быстрый выход на сделку. Приглашаю Вас прийти на просмотр! ID объекта в нашей базе: 12137
    размещено: 12.01.2026 , обновлено: 24.01.2026
    Екатеринбург, Юго-Западный
    • 43 м2
    • 8/9 этаж
    • 2 комн.
    • Состояние: плохое
    1 000 000 ₽(23300 ₽/м2)
    Срочно, комната в двухкомнатной квартире. Нужен ремонт, вся информация по телефону. Возможна покупка с различными сертификатами. ID объекта в нашей базе: 13171
    размещено: 12.01.2026 , обновлено: 27.01.2026
    Екатеринбург, Юго-Западный
    • 10.5 м2
    • 8/9 этаж
    • 3 комн.
    • Состояние: хорошее
    1 800 000 ₽(171400 ₽/м2)
    Комната в трёхкомнатной квартире, балкон, ремонт.
    размещено: 20.12.2025 , обновлено: 22.01.2026
  • Екатеринбург, Юго-Западный
    • 15 м2
    • 1/5 этаж
    • 3 комн.
    • Состояние: идеальное
    1 570 000 ₽(104700 ₽/м2)
    Продается Комната с ремонтом в 3-х комнатной квартире с изолированными комнатами и выгодным местоположением: - рядом садики, школы, спортивные центры, развитая инфраструктура. Остановка транспорта Посадская. Ориентир Монетка Жарден, ФАН-ФАН. Комната очень теплая, светлая. Установлены натяжные потолки, ламинат, пластиковый стеклопакет. Общей площадью 15 м2. 3 большие изолированные комнаты. В коридоре, санузле, кухне сделан частичный ремонт - установлены пластиковые окна и приборы учета. Комнаты на разные стороны, идеальная планировка!Кухня 7 кв.м., просторный коридор. Малонаселенная - соседи 1 мужчина и 1 девушка квартирантка. В доме был проведен капитальный ремонт - поменяны стояки , трубы, разводка, обновлена крыша! Дом расположен во дворе. Рядом поликлиника, школа, 2 детских сада, хорошая детская площадка, чистый подъезд, зеленый двор, рядом остановка транспорта автобусы 18,083, троллейбусы. Юридически чистый объект! Владение более 3 лет. Все под рукой! Транспорт троллейбусы, трамваи, автобусы, супермаркет Перекресток, Монетка, Кировский. Больница в соседнем доме. Во дворе 2 школы Речевая и Лицей 11, в 5-ти минутах 3 детских садика. Отличный вариант для семьи с детьми. Приглашаем на просмотр.
    размещено: 27.11.2024 , обновлено: 28.01.2026
  • Екатеринбург, Юго-Западный
    • 17.8 м2
    • 5/5 этаж
    • 1 комн.
    • Состояние: хорошее
    1 885 000 ₽(105900 ₽/м2)
    Комната 17,8 кВ. метров, комфортно разместиться и жить одному или вдвоем. Комната находится на 5 этаже. Летом прохладно и свежо, а зимой в отопительный сезон жарко так, как есть две большие чугунные батареи. Летом коммунальные платежи до 1800 рублей, а зимой до 2800 рублей. Дом кирпичный, стены толстые, в доме хорошая звукоизоляция. В комнате остается мебель (шкаф-купе, мебельная стенка, кухня, диван, прихожая), а также холодильник и индукционная плита. Проведена вода. Косметический ремонт был выполнен в 2017 году. Стеклопакет, сейф-дверь, ламинат, натяжной потолок, светодиодные светильники. В секции есть балкон. Сделан ремонт в ванной 2025 год. Дом расположен в глубине квартала, окна выходят во двор. Во дворе всегда есть парковочные места. Детский сад 54 — в 3 минутах ходьбы. По прописке закреплены школы 154 и гимназия 161. В шаговой доступности — парки на Бардина и Чкалова. Удобное расположение. Рядом торговые центры Гранат и Кит. До метро 25 минут пешком также легко доехать на общественном транспорте. Комната готова к заселению Один взрослый собственник Пишите для записи на просмотр
    размещено: 16.10.2025 , обновлено: 23.01.2026
  • Екатеринбург, Юго-Западный
    • 12.7 м2
    • 4/5 этаж
    • 1 комн.
    • Состояние: хорошее
    1 390 000 ₽(109400 ₽/м2)
    ЛОКАЦИЯГлавное преимущество!Центр города !➡️ Отличный вариант для проживания студента , либо сдачи в аренду !✅ Косметический ремонт комнаты (места общего пользования требуют косметического ремонта)✅ Спокойные три соседа в секции Поможем оформить ипотечный кредит! ID объекта в нашей базе: 11572
    размещено: 28.09.2025 , обновлено: 29.01.2026
    Екатеринбург, Юго-Западный
    • 12 м2
    • 5/9 этаж
    • 5 комн.
    700 000 ₽(58300 ₽/м2)
    ID в ИМЛС: 47112224 Продам 1-комната площадью 12 м ( г Екатеринбург ул Академика Бардина 4). Дом: материал стен - кирпичный, вид дома - вторичка, этаж - 5, этажность - 9.
    размещено: 23.08.2025 , обновлено: 12.01.2026
  • Екатеринбург, Юго-Западный
    • 63.8 м2
    • 1/9 этаж
    • 3 комн.
    • Состояние: удовлетворительное
    2 700 000 ₽(42300 ₽/м2)
    Продаются 2 комнаты в 3-х комнатной квартире в Юго-западном районе . Состояние квартиры хорошее ,места общего пользования в хорошем состоянии. Одна соседка ,собственница проживает постоянно. Рядом вся инфраструктура, в шаговой доступности: ТЦ "Кит", ТЦ " Гранат", Пятёрочка, Перекрёсток, Лента, Порт фитнес, садик через дорогу от дома, школа 154, гимназия 161, остановка общественного транспорта, аптеки, центры развития для детей. Комнаты в собственности ,не в залоге, арестов и обременений нет. Материнский капитал на приобретение комнаты не использовался. Ипотека возможна .Торг уместен. ID объекта в нашей базе: 11480
    размещено: 07.07.2025 , обновлено: 14.12.2025
  • Екатеринбург, Юго-Западный
    • 100 м2
    • 3/5 этаж
    • 1 комн.
    • Состояние: хорошее
    1 550 000 ₽(15500 ₽/м2)
    Комната в коридорной системе. Просмотр по договоренности . ID объекта в нашей базе: 970
    размещено: 05.04.2025 , обновлено: 29.01.2026
  • Екатеринбург, Юго-Западный
    • 12.5 м2
    • 4/9 этаж
    • 1 комн.
    • Состояние: хорошее
    1 470 000 ₽(117600 ₽/м2)
    Комната в общежитии секционного типа.Живет арендатор.Один взрослый собственник, без обременений. ID объекта в нашей базе: 3665
    размещено: 05.12.2024 , обновлено: 24.12.2025
  • Екатеринбург, Юго-Западный
    • 12.6 м2
    • 6/9 этаж
    • 1 комн.
    • Состояние: идеальное
    2 100 000 ₽(166700 ₽/м2)
    В продаже комната по адресу: Гурзуфская,18. Предложение подойдет для проживания студентам, отличная транспортная развязка трамваи, автобусы и метро ст. Геологическая. Это прекрасное предложение для тех, кто ищет комфортное и стильное жилье в удобном месте. Инфраструктура вокруг просто потрясающая! ????️ Все необходимые объекты находятся в шаговой доступности, что является огромным плюсом для потенциальных жильцов. ???? Дом находится в 10 минутах ходьбы от центра города, рядом парк «Зеленая роща» ???? , также рядом расположены три торговых центра ТЦ Гринвич, Алатырь, Фан-Фан, Дворец спорта Юность ????‍♂️ , медицинские учреждения, детские сады, школа №11 с углубленным изучением отдельных предметов, математическая гимназия №5, горный лицей №173, музыкальная и художественная студии (как для детей, так и для взрослых) и другие объекты социального и культурного значения, необходимые для комфортного проживания. ????Не менее удобна и автомобильная развязка, которая позволяет быстро добраться в любую точку города, а также имеет прекрасный выезд на Ново-Московский тракт. ????В квартире сделан качественный дизайнерский ремонт, всё новое ????Кухонный гарнитур со встроенной вытяжкой и варочной панелью ????Совмещенный сан. узел ????В доме хорошая шумоизоляция ???? Диван МФ АСМ ????Окна во двор☎️ Один собственник. Звоните, быстро организуем просмотр! ID объекта в нашей базе: 9235
    размещено: 06.04.2024 , обновлено: 13.01.2026

Приоритет

Увеличивает просмотры в 3 раза

Ваше объявление показывается в списке выше обычных объявлений. подключить