Дом с участком в п. Бобровский, СНТ Бобровские дачи, ул. Грушевая, 12
городской округ Сысертский
(Тюменское направление)
Центр Екатеринбурга → 38 км
Центр Екатеринбурга → 38 км
Не дом, а произведение искусства. Ваш будущий семейный очаг.
Представьте: раннее утро, вы пьете кофе у камина в огромной гостиной с панорамными окнами в пол. Солнце заливает светом комнаты с потолками до 4.5 метров. За окном — свой лес и запах хвои. Вечером вы отдыхаете на собственной террасе, а завтра будет баня с барбекю. Это не сон ; это ваш новый дом в Бобровских дачах.
Строили дом для себя (своя строительная компания), поэтому здесь все продумано до мелочей и сделано на совесть:
Фундамент: Утепленная шведская плита с готовым теплым полом по всему дому.
Стены: Газоблок 400мм + утеплитель каменная вата
. Дом теплый, тихий и энергоэффективный.
Крыша: Профлист с утеплением 150 мм.
Окна: Пятикамерные, с качественной фурнитурой. На террасе — распашные панорамные створки.
Коммуникации: Своя скважина (47 м) и двойной септик с переливом.
Почему этот дом уникален?
???? Эксклюзивный архитектурный и дизайн-проект. Это не «шаблонная коробка», второго такого дома нет.
☀️ Фирменная фишка: Панорамное остекление и высоченные потолки создают невероятное ощущение простора и света.
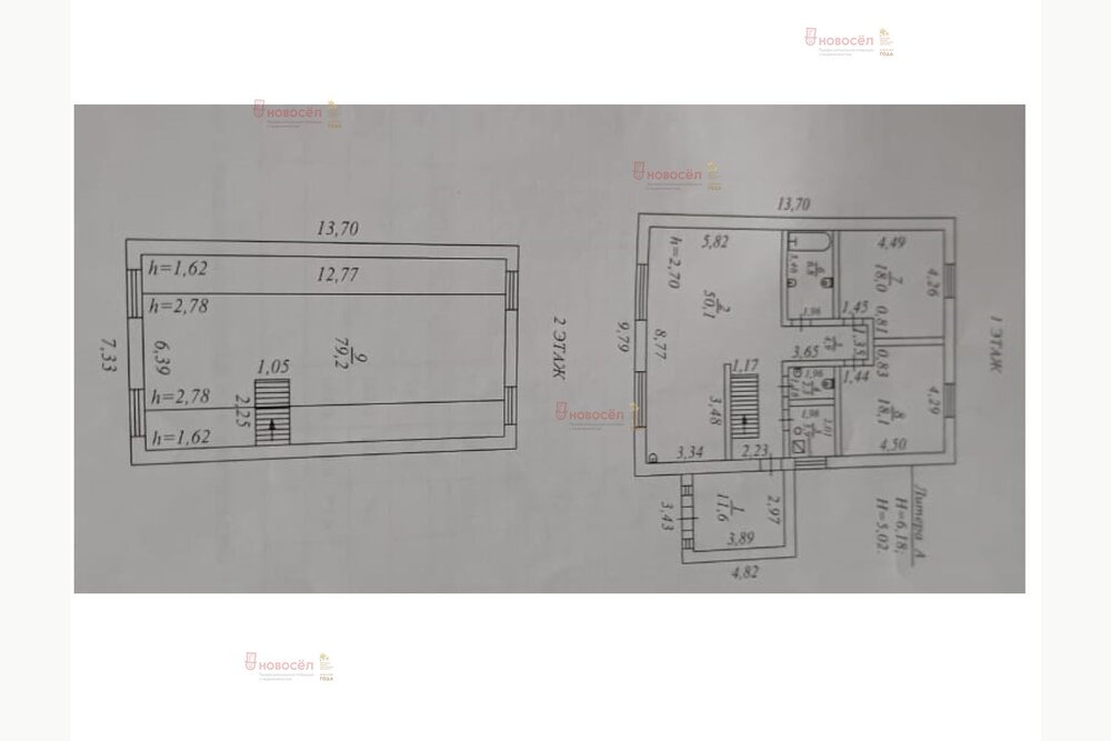
???? Продуманная планировка на 93 м²:
2 спальни (мастер-спальня с гардеробом)
Огромная кухня-гостиная с выходом на террасу
2 санузла
Котельная, гардеробная, кладовая/прачечная
Просторная прихожая
???? Участок 6.9 соток: Молодые сосны, земляника, суглинок. Уже залит фундамент под баню с барбекю-зоной и есть место под 2 машины.
Поселок «Бобровские дачи» — безопасная среда для жизни:
Охрана, шлагбаум, видеонаблюдение
Собственная детская площадка
Подземное электричество (15 кВт), уличное освещение
Чистая площадка с контейнерами
Дружное сообщество, общий чат, дни поселка
Как мы предлагаем завершить сделку?
Вариант «Для себя» (Цена как в объявлении): Купить дом на текущей стадии (80% готовности) и самостоятельно завершить отделку по своему вкусу.
Вариант «Под ключ» (Цена обсуждается): Мы берем на себя субподряд и finishing touch. Вы получите дом с дизайнерским ремонтом, мебелью, техникой и санфаянсом — заезжайте и живите! Реализуем наш готовый дизайн-проект или учтем ваши пожелания.
Это не просто инвестиция в недвижимость. Это инвестиция в качество вашей жизни.
Готовы стать владельцами дома мечты? Звоните прямо сейчас! Ответим на все вопросы, организуем просмотр в удобное время и, при необходимости, поможем с ипотекой.
ID объекта в нашей базе: 3304
размещено: 19.05.2026
, обновлено: 25.05.2026








