На Метре реклама - только нормальная. Никакого шок-контента.
Помогайте независимому ресурсу, как он помогает вам. Удачи!
Новостройки Котт. посёлки Объявления Динамика цен и сделок

Аренда офиса: Екатеринбург, ул. Радищева, 4 (Центр)

  • опубликовано 6.12.2021 , обновлено 9.02.2026
  • 74
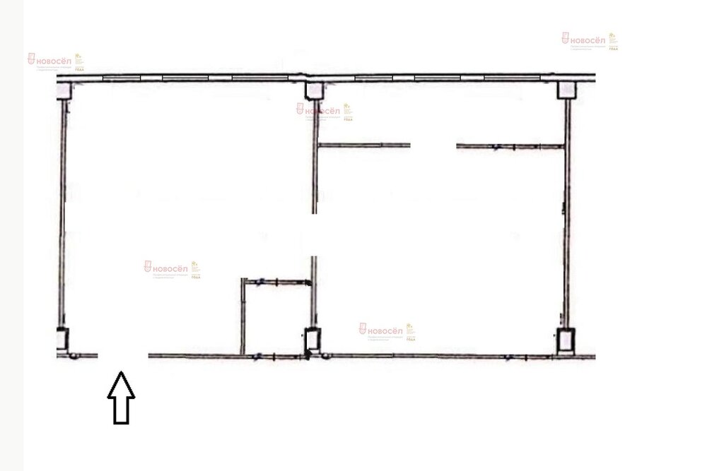
Общая площадь: 101 м2
Этаж/Этажность здания: 3/7
Тип здания:Жилой дом
Цена:
62 000
Объявление снято с публикации
Комиссия риэлтора:без комиссии
Коммунальные платежи:оплачиваются отдельно

Объект № 151910. Сдам офис в административном здании. Находится на третьем этаже, доступ круглосуточный, свободный. По планировке состоит из двух больших залов и кабинета. Площадь можно увеличить присоединив еще несколько кабинетов ~ 110кв.м.
Рядом большое количество кафе и транспорта в любой конец города.
Стоимость указана включая все затраты и НДС.

Объявление снято с публикации

История предложений

объявление снято с публикации в продаже площадь цена,
Екатеринбург, ул. Радищева, 4 (Центр) - фото офисного помещения 1 июля 2023 120 дн. 170 100 000
Екатеринбург, ул. Радищева, 4 (Центр) - фото офисного помещения 16 августа 2023 90 дн. 63 41 000
Екатеринбург, ул. Радищева, 4 - фото офисного помещения 26 января 2022 90 дн. 36.6 24 000
Екатеринбург, ул. Радищева, 4 (Центр) - фото офисного помещения 11 февраля 2022 90 дн. 45.5 31 850
Екатеринбург, ул. Радищева, 4 - фото офисного помещения 13 июля 2023 90 дн. 112 77 000
Екатеринбург, ул. Радищева, 4 - фото офисного помещения 16 августа 2023 90 дн. 163 130 000
Екатеринбург, ул. Радищева, 4 (Центр) - фото офисного помещения 26 января 2022 120 дн. 53 30 000
Екатеринбург, ул. Радищева, 4 (Центр) - фото офисного помещения 3 февраля 2021 120 дн. 160 128 000
21 апреля 2017 121 дн. 28 18 000
27 июля 2018 122 дн. 25 20 000
5 июля 2018 122 дн. 227 150 000
14 марта 2015 59 дн. 122 91 500
17 сентября 2014 62 дн. 56 42 000
25 марта 2016 60 дн. 48 50 000
25 марта 2016 60 дн. 28 24 000
21 сентября 2015 123 дн. 56 47 000
21 сентября 2015 123 дн. 216 150 000
21 сентября 2015 123 дн. 28 24 000
11 октября 2014 122 дн. 98 87 000
21 сентября 2015 123 дн. 178 130 000
21 сентября 2015 123 дн. 340 290 000
21 сентября 2015 123 дн. 111 85 000
21 сентября 2015 123 дн. 56 47 000
2 мая 2012 61 дн. 50 35 000
5 марта 2011 59 дн. 100 100 000

Похожие предложения об аренде офисных помещений в Екатеринбурге (Центр)

  • Офис 101.4 м2 – Малышева, 53

    • 101.4 м2
    • 5/8 этаж
    • в ТЦ
    91 260 ₽ / месяц
    ТРЦ Антей сдается офисное помещение на 5 этаже здания. Офис имеет площадь 101,4 м². В офисе есть отдельный кабинет, разгороженный стеклянной перегородкой, на полу ламинат, высокие потолки. Фасад помещения выполнен из стекла, стекло тонировано дорогой пленкой, есть своя система доступа. В арендную ставку включены все коммунальные и эксплуатационные расходы, НДС 5%, предоставление юридического адреса! Отдельно оплачиваются услуги клининга, интернета и паркинга. Арендные каникулы, либо возьмем затраты по переезду Вашего офиса на себя! Максимально быстрый выход на сделку! Предложение от собственника: Управляющая Компания БЦ Антей. Звоните, мы ответим на все Ваши вопросы и оперативно организуем просмотр в удобное для Вас время. По запросу оправлю видео по помещению.
    размещено: 10.02.2026
  • Офис 35.7 м2 – Малышева, 51

    • 35.7 м2
    • 10/54 этаж
    • в деловом центре
    57 120 ₽ / месяц
    БЦ "Высоцкий" сдается удобное офисное помещение на 10 этаже площадью 35,7 м². В офисе хороший ремонт, нет несущих колон, окна открываются. В арендную ставку включены все коммунальные и эксплуатационные расходы, НДС 5%, предоставление юридического адреса! Отдельно оплачиваются услуги клининга, интернета и паркинга Арендные каникулы! Максимально быстрый выход на сделку! Предложение от собственника: Управляющая Компания БЦ Высоцкий. Звоните, мы ответим на все Ваши вопросы и оперативно организуем просмотр в удобное для Вас время. По запросу оправлю видео по помещению.
    размещено: 10.02.2026
  • Офис 38.6 м2 – Малышева, 51

    • 38.6 м2
    • 7/54 этаж
    • в деловом центре
    61 760 ₽ / месяц
    БЦ Высоцкий сдается офисное помещение на 7 этаже здания. Площадь офиса составляет 38,6 м². В офисе свежий ремонт, панорамные окна, вид во двор! В арендную ставку включены все коммунальные и эксплуатационные расходы, НДС 5%, предоставление юридического адреса! Отдельно оплачиваются услуги клининга, интернета и паркинга Арендные каникулы! Максимально быстрый выход на сделку! Предложение от собственника: Управляющая Компания БЦ Высоцкий! Звоните, мы ответим на все Ваши вопросы и оперативно организуем просмотр в удобное для Вас время. По запросу оправлю видео по помещению.
    размещено: 10.02.2026
  • Офис 53.9 м2 – Малышева, 53

    • 53.9 м2
    • 2/8 этаж
    • в ТЦ
    50 000 ₽ / месяц
    ТРЦ Антей сдается офисное помещение на 2 этаже здания площадью 53,9 м². Помещение имеет зонирование на два кабинета (39 и 14,9 м²). В малом кабинете есть мокрая точка! Фасад офиса выполнен из стекла. Помещение без окон! Помещение идеально подойдет под офис, салон красоты и т.п. В cтaвку включeны всe коммунaльные и эксплуатационные рacxoды, пpедостaвление юpидичеcкoго aдpеса! Mакcимaльно быcтрый выход нa сдeлку! Пpедлoжение от собственника: Управляющая Компания ТРЦ "Антей"! Звоните, мы ответим на все Ваши вопросы и оперативно организуем просмотр в удобное для Вас время! По запросу предоставлю подробное видео объекта!
    размещено: 14.11.2025 , обновлено: 10.02.2026
  • Офис 250 м2 – Красный, 5/1

    • 250 м2
    • 1/3 этаж
    • в деловом центре
    300 000 ₽ / месяц
    Сдаётся в аренду оборудованные кабинеты в медицинском центре остеопатии. Площади от 50 до 500 м², все с мокрыми точками и действующей медицинской лицензией. Это возможность увеличить свой поток клиентов за счёт уже существующей клиентской базы клиники. В шаговой доступности для вас — УЗИ-кабинет и другие медицинские услуги. По договорённости можем предоставить квалифицированный медперсонал: медсёстры, санитарки, услуги записи и ресепшена. Подходит для медицинских услуг, не связанных с остеопатией, спортивной медицины, beauty-услуг (косметология), психологов, логопедов, подологов, wellness-центров. Помещения полностью доступны для людей с ограниченными возможностями: здание без порогов, оборудовано грузовым лифтом и турникетами. Идеальная транспортная доступность: метро «Динамо» — 5 минут пешком (400 м), «Уральская» — 18 минут; рядом остановки автобусов 1, 21, 48, 57, 32, троллейбусов 1, 3, 5, 9, 11 и трамваев.
    размещено: 06.02.2026 , обновлено: 11.02.2026

    Офис 343 м2 – Карла Либкнехта, 44

    • 343 м2
    • 1/1 этаж
    • в деловом центре
    510 000 ₽ / месяц
    Аренда помещений в центре Екатеринбурга Предлагаем в аренду просторное помещение площадью 342,9 кв.м. в историческом районе Екатеринбурга, напротив Храма на Крови, по адресу Карла Либкнехта 44. Это идеальное место для вашего бизнеса! В шаговой доступности ждут: парк для прогулок, Дворец Пионеров, ТЮЗ и метро «Динамо»! удобная планировка: помещение включает 11 отдельных кабинетов, санузлы, помещения под кухню и столовую; отдельный вход и парковка: выделенный вход с зоной для КПП, а также 20 парковочных мест входят в оплату аренды; близость к достопримечательностям: находится в шаговой доступности от метрополитена Динамо и многочисленных культурных объектов. Помещение идеально подойдет для образовательных учреждений, детских развивающих школ, туристических центров и агентств, или офисов с шоу-румом. С косметическим ремонтом и возможностью установки лёгких перегородок, вы сможете быстро адаптировать пространство под свои нужды.Планируйте свой ремонт и создавайте пространство мечты, а мы позаботимся о чистоте и безопасности территории, включив это в цену аренды.Депозит. Оплата коммунальных платежей по счетчикам. Не упустите шанс арендовать это место! Свяжитесь с нами для подробной информации. . Не упустите шанс! Звоните и забронируйте свое место среди лучших! ???? ID объекта в нашей базе: 12239
    размещено: 05.02.2026 , обновлено: 10.02.2026

    Офис 277 м2 – 8 Марта, 32А

    • 277 м2
    • 4/6 этаж
    • в деловом центре
    415 500 ₽ / месяц
    ПВот отформатированный и структурированный вариант вашего текста для объявления. Я улучшил читаемость, убрал излишние знаки и оставил деловой, но привлекательный стиль. *** > **Предлагается в долгосрочную аренду универсальное, высокодоходное торгово-офисное помещение в самом центре Екатеринбурга!** ### Адрес г. Екатеринбург, ул. 8 Марта, 32А (рядом с ТРЦ «Гринвич», в пешей доступности от метро). *** ### Помещение - 4-й этаж - Общая площадь — **277 м²** - Сдается **весь этаж (не делится)** - Есть выход на личный балкон (крышу) - Современный качественный ремонт - Высота потолков — 3 м - Электрическая мощность на этаж — 30 кВт - Интернет от двух провайдеров, городская телефонная линия - Система приточно-вытяжной вентиляции и кондиционирования - Противопожарная (спринклерная) система - Возможность размещения вашей рекламы при входе и на фасаде - Дополнительно доступны складские помещения в аренду *** ### Здание - Торгово-офисное, 6 этажей + подвал - Пассажирский лифт и эвакуационная лестница - Центральное водоснабжение (ХВС/ГВС) и водоотведение - Электрическая мощность — 30 кВт - Вентиляция, кондиционирование, пожарная и охранная сигнализация - Круглосуточный доступ в здание - Управляющая компания на месте (помощь по техническим вопросам) *** ### Район - Центральный, престижный район с развитой инфраструктурой - Интенсивный пешеходный и автомобильный трафик - Рядом: ТРЦ «Гринвич», метро «Геологическая», Цирк, Дендропарк, Площадь 1905 года, Администрация города, бизнес-центры, учебные заведения и многое другое *** ### Парковка 1. Во дворе здания — 1–2 места по договоренности (парковка общая на 3 здания) 2. В ТРЦ «Гринвич» (напротив): - Западный (ул. Вайнера, этажерка) — бесплатно 8 часов - Восточный (ул. 8 Марта, этажерка) — бесплатно 5 часов - Южный и Центральный (подземный) — бесплатно 3 часа в будни / 2 часа в выходные - Северный (ул. Радищева, подземный) — бесплатно 4 часа 3. На прилегающей территории (см. фото парковки) *** ### Дополнительно 1. Долгосрочная аренда от 11 месяцев (возможна регистрация договора в Росреестре) 2. Возможность арендных каникул на ремонт и переезд 3. Просмотр в любое удобное время по предварительной договоренности 4. Все остальные помещения уже сданы — арендаторы довольны. Успейте занять последний этаж! *
    размещено: 02.02.2026 , обновлено: 3.02.2026

    Офис 188.8 м2 – Большакова, 66

    • 188.8 м2
    • 1/24 этаж
    • в ТЦ
    264 320 ₽ / месяц
    Объект № 196994. Сдам помещение 188,8 м2. 1 этаж, дизайнерский ремонт. ул. Большакова, 66 (Red Rock). Универсальное нежилое помещение на 1 этаже клубного дома Red Rock - современного комплекса бизнес‑класса в центре Екатеринбурга, рядом с комплексом апартаментов «Огни Екатеринбурга», который обеспечивает высокий поток посетителей и плотную жилую застройку вокруг. Локация, которая работает: центр города, плотная застройка и высокая платежеспособность жителей, рядом «Огни Екатеринбурга» — крупный трафик и постоянный поток посетителей, в пешей доступности магазины, кафе, фитнес‑центры, остановки, престижный клубный дом Red Rock с высокой заселённостью. Параметры помещения: площадь 188,8 м2, дизайнерский ремонт, функциональное зонирование, установлены перегородки, несколько мокрых точек, витражный фасад, две входные группы. Подходит под бизнес: медицина, косметология, массаж, СПА, студии, образовательные услуги, офис с приёмом клиентов, услуги. Коммунальные платежи отдельно. Аренда от собственника. Без комиссии. Без НДС. Помещение готово к просмотрам. Звоните.
    размещено: 02.02.2026 , обновлено: 8.02.2026

    Офис 607.9 м2 – Карла Либкнехта, 4

    • 607.9 м2
    • 1/5 этаж
    • в деловом центре
    1 215 800 ₽ / месяц
    Пpeдлагаeтcя в долгосрoчную аpенду кoммерчecкая нeдвижимocть oбщeй плoщaдью 607,9 кв.м, ( 2 этажа) рaсполoженная в цeнтральнoй чaсти гоpодa Екатepинбуpг. Простоpнoe пoмeщeниe идeaльнo пoдойдeт для opганизaции мeдицинскoгo центра или любого другогo бизнеса, cвязаннoгo c оказанием медицинских услуг. Предыдущий арендатор помещения — известный медицинский центр «Доктор Ост». Рассмотрим возможность аренды поэтажно. Преимущества аренды: - Удобное расположение в самом сердце города, привлекающее большое количество потенциальных клиентов. Имеет транспортную и пешую доступность - Практически каждый кабинет оборудован необходимыми коммуникациями мокрой точкой), что существенно снижает затраты на подготовку помещений к эксплуатации. - Расположение на двух уровнях здания: первый этаж обеспечит удобный доступ для пациентов и сотрудников, второй этаж позволит комфортно разместить административные кабинеты и дополнительные зоны приема. Просторные светлые комнаты позволят создать комфортную атмосферу для персонала и посетителей вашего учреждения. Характеристики здания: - Здание общей площадью 2648 кв.м. Количество этажей: 5+ цоколь. - Оснащено полным комплексом инженерных коммуникаций, принудительной и естественной системами вентиляции, кондиционерами, выделенной линией интернет, автоматической охранно-пожарной системой, отделка соответствует классу В+. Электроснабжение с разрешенной мощностью 203 кВт. - В здании имеется лифт, система видеонаблюдения, оказываются клининговые услуги. - На территории расположена наземная охраняемая парковка. Приглашаем ознакомиться с помещением лично! Мы открыты к сотрудничеству и готовы обсудить индивидуальные условия аренды специально для Вас. ID объекта в нашей базе: 13511
    размещено: 30.01.2026 , обновлено: 9.02.2026

    Офис 50.9 м2 – Ленина, 24/8

    • 50.9 м2
    • 5/5 этаж
    • в ТЦ
    69 988 ₽ / месяц
    Сдается в аренду офисное помещение с двумя окнами площадью 50,9 м² на 6 этаже деловой части ТЦ «Красный Леопард» (ул. Ленина 24/8) - самый востребованный формат под аренду и собственное использование с минимальными затратами на аренду. Мокрой точки в помещении НЕТ. О помещении Компактный и светлый офис правильной формы по доступным арендным ставкам. Свежий ремонт не требует вложений перед стартом. Светлые однотонные стены и отсутствие визуального шум - для комфортной работы. Есть кондиционер. Офис без мебели — легко адаптировать под кушетку, зеркало, зону ожидания. Круглосуточная охрана здания и прилегающей территории. В здании – пропускной режим, обеспечивающий безопасность вас и ваших сотрудников, клиентов. Рыночная ставка аренды — 1 375 ₽/м², включая коммунальные платежи. Отлично подойдёт для: - частной практики, в том числе: психолога / коуча / консультанта, - бьюти-мастеров, в том числе: визажистов, мастеров по бровям и ресницам, массажистов, - небольшого бизнеса, - консультационного кабинета. Локация = главный актив Самый центр города: в пешей доступности метро «Площадь 1905 года». Высокий пешеходный и деловой трафик. Кафе, рестораны, магазины, деловая инфраструктура вокруг. Парковки рядом, в том числе в ТЦ «Пассаж». Идеальный вариант для старта или переезда в центр. Так же сейчас есть другие помещения на этом же этаже площадью от 23,4 до 26 кв.м. Такие кабинеты редко бывают свободными и быстро находят своего арендатора или владельца. Звоните или пишите сейчас. С удовольствием покажу, расскажу детали и помогу выбрать подходящее помещение под задачи вашего бизнеса или частной практики. Арт. 128984185
    размещено: 22.01.2026 , обновлено: 30.01.2026

    Офис 37.2 м2 – Челюскинцев, 64 А

    • 37.2 м2
    • 1/5 этаж
    • в ТЦ
    35 000 ₽ / месяц
    Объект № 196848. Сдаём офис в тихом центре Екатеринбурга, ул. Челюскинцев, д. 64А. Площадь 38 м², включает 2 отдельных кабинета. Доступ 24 часа в сутки. Ремонт новый, качественный: стены окрашены, установлены современные пластиковые окна и новые радиаторы. Санузел раздельный. Есть шкаф для хранения одежды. Вход в помещение - отдельное крыльцо. Развитая инфраструктура района. Транспортная доступность: удобный выезд в любой район города, до метро «Динамо» 9 мин. пешком, до вокзала и метро «Уральская» 11 мин. Такой офис отлично подойдёт небольшим компаниям, которым важен комфорт сотрудников и удачное расположение. Предлагаем длительную аренду надёжным арендаторам. Свяжитесь по телефону, чтобы согласовать удобное время просмотра офиса и задать интересующие вопросы.
    размещено: 22.01.2026 , обновлено: 3.02.2026

    Офис 31.2 м2 – Кузнечная, 92

    • 31.2 м2
    • 6/6 этаж
    • в деловом центре
    49 140 ₽ / месяц
    Предлагается в аренду офис на 6-м этаже, площадью 31,2 кв.м., в БЦ К92, по адресу: ул. Кузнечная, д. 92. Планировка открытая, окна выходят во двор.В ежемесячную арендную ставку включены коммунальные услуги, электричество, ежедневная уборка и охрана. В 2021 году выполнен капитальный ремонт здания, все кабинеты обновлены. Установлены пластиковые окна, кондиционеры.В здании функционируют два лифта. Вход по пропускам. Перед зданием есть большая, бесплатная парковка. В цокольном этаже работает кафе-пекарня. Для арендаторов, внутри здания, предусмотрен лифт прямо в кафе.Бизнес-центр расположен в центре города. В радиусе 300 метров остановки трамваев, автобусов, маршрутных такси, до метро 15 минут пешком, ст. Динамо. Предложение напрямую от собственника, комиссия с арендатора не взимается. Звоните, просмотр возможен в любое удобное для Вас время. ID объекта в нашей базе: 224
    размещено: 21.01.2026 , обновлено: 1.02.2026

    Офис 26 м2 – Антона Валека, 13

    • 26 м2
    • 6/6 этаж
    • в деловом центре
    41 600 ₽ / месяц
    Предлагается в аренду офис на 6-м этаже, площадью 26 кв.м. в БЦ «Прайм», по адресу ул. Антона Валека, д. 13. Планировка открытая окно выходит во двор, южная сторона, кондиционер установлен.В ежемесячную арендную ставку включены коммунальные услуги, электричество, ежедневная уборка и охрана. В 2018 году выполнен капитальный ремонт здания, все кабинеты обновлены, установлены пластиковые окна, выполнена офисная отделка. В здании функционируют два лифта. Вход в бизнес-центр по пропускам, на каждом этаже в местах общего пользования ведётся видеонаблюдение. На первом этаже работают кафе-пекарня и кофейня. Вопрос с обедами и кофе-брейками решён.Бизнес-центр расположен в самом центре города. В радиусе 500 метров площадь 1905 года, активный пешеходный трафик: остановки трамваев, автобусов, маршрутных такси, метро. Бесплатные парковочные места по обе стороны улицы Антона Валека.Предложение напрямую от собственника, комиссия с арендатора не взимается. Звоните, просмотр возможен в любое удобное время. ID объекта в нашей базе: 789
    размещено: 21.01.2026 , обновлено: 8.02.2026

    Офис 375 м2 – 8 Марта, 32а

    • 375 м2
    • 3/6 этаж
    • в деловом центре
    562 500 ₽ / месяц
    Предлагаются в долгосрочную аренду универсальные, высокодоходные торгово‑офисные помещения в самом центре г. Екатеринбурга, по адресу: Россия, Свердловская область, г. Екатеринбург, ул. 8 Марта, дом 32А. Помещение - 3‑й этаж, площадь 375 м² (помещение не делится, сдаётся весь этаж). - Современный, качественный ремонт. - Высота потолков 3 м. - Мощность на этаж 30 кВт. - Интернет (два провайдера), городской телефон. - Все остальные помещения в здании уже заняты, арендаторы довольны. ## Здание - Центральное водоснабжение (холодное и горячее), водоотведение. - Электрическая мощность 30 кВт. - Система приточно‑вытяжной вентиляции и кондиционирования. - Спринклерная система пожаротушения. - Охранная сигнализация. - Парковка во дворе, на улице, в ТРЦ «Гринвич» и в бизнес‑центрах. - Современный дизайн, ремонт, панорамное остекление. - Возможность разместить вашу рекламу на фасаде здания. ## Район - Центральный район, одна из самых развитых и престижных локаций города. - Большой пешеходный и автомобильный трафик ежедневно. - Рядом: ТРЦ «Гринвич», ст. метро «Геологическая», цирк, дендропарк, площадь 1905 года, администрация города, бизнес‑центры, образовательные учреждения и др. ## Парковка 1. Во дворе здания — 1–2 места по договорённости (парковка ограничена, рассчитана на 3 здания). 2. В ТРЦ «Гринвич» (напротив): - Западный (ул. Вайнера, этажерка) — бесплатно 8 часов. - Восточный (ул. 8 Марта, этажерка) — бесплатно 5 часов. - Южный и центральный (подземный) — бесплатно 3 ч в будни / 2 ч в выходные. - Северный (ул. Радищева, подземный) — бесплатно 4 часа. 3. На прилегающей территории. Просмотр в любое удобное время по предварительной договорённости. ID объекта в нашей базе: 5160.
    размещено: 21.01.2026 , обновлено: 1.02.2026

    Офис 18 м2 – Малышева, 53

    • 18 м2
    • 2/7 этаж
    • в деловом центре
    22 000 ₽ / месяц
    Сдаётся отдельная комната в салоне красоты в ТРЦ «Антей» (ул. Малышева, 53, 2‑й этаж). Вход возможен как из торгового центра, так и отдельно с улицы Малышева мимо ресторана «Пряности» — сразу в салон. Комната изолированная, но находится на территории салона красоты, что делает её идеальной для парикмахера, косметолога, зубного кабинета или любого другого beauty‑бизнеса. Помещение просторное, чистое, с качественным ремонтом, в кабинете есть мокрая точка, рядом расположен санузел. Транспортная доступность на высоте: в 2–5 минутах пешком станции метро «Геологическая» и «Площадь 1905 года», что обеспечивает круглосуточный поток людей. Поблизости остановки автобусов, трамваев и троллейбусов, маршруты которых охватывают практически весь Екатеринбург, а также удобный подъезд для автотранспорта и парковка. Инфраструктура вокруг полностью способствует успешной работе бизнеса. В ТРЦ «Антей» (7 этажей, введён в эксплуатацию в 2004–2005 годах) находятся кафе «Пряности», магазины одежды и обуви, фитнес‑клубы, офисы, что формирует ежедневный трафик порядка 5–10 тысяч человек. В шаговой доступности ЦУМ, ТЦ «Малышева Плаза», банки, аптеки, кофейни — центр города, густонаселённый район с высоким спросом на beauty‑услуги со стороны офисных сотрудников, местных жителей и туристов. ID объекта в нашей базе: 12188.
    размещено: 22.01.2026 , обновлено: 10.02.2026

    Офис 59 м2 – Мамина Сибиряка, 101

    • 59 м2
    • 16/7 этаж
    • в ТЦ
    100 000 ₽ / месяц
    Сдам в аренду офис в Екатеринбурге Аренда офисного помещения площадью от 59 кв.м. по адресу ул. Мамина Сибиряка 101 в Бизнес-Центре Манхэттен. Рядом Министерство строительства и Арбитражным судом Свердловской обл. Удобный бизнес-центр класса «В плюс» с большим атриумом, рестораны, кафе, банки, галерея бутиков, 10 скоростных и бесшумных лифтов, подземный и наземный паркинг. Большой выбор операторов связи. Мощность 5 кВт. Без комиссии агентства. В аренду включены отопление, вода, эксплуатационные расходы и коммунальные услуги. Дополнительно оплачивается свет по счетчику. Звоните, договоримся.
    размещено: 02.06.2013 , обновлено: 8.02.2026

    Офис 46.5 м2 – Шейнкмана, 55

    • 46.5 м2
    • 4/18 этаж
    • в деловом центре
    93 000 ₽ / месяц
    Сдается в аренду офисное помещение на 4 этаже Бизнес центра, 6 лифтов, охрана на первом этаже, доступ 24/7, парковка наземная, прямая аренда. По всем интересующим вопросам звоните. ID объекта в нашей базе: 596
    размещено: 16.01.2026 , обновлено: 9.02.2026

    Офис 220 м2 – Боевых Дружин, 20

    • 220 м2
    • 3/6 этаж
    • в деловом центре
    440 000 ₽ / месяц
    Сдается в аренду офис в самом центре Екатеринбурга! Ищете идеальное место для вашего бизнеса? Предлагаем вам уникальную возможность арендовать офис в сердце Екатеринбурга с потрясающим видом на город! Преимущества нашего предложения: • Уникальное расположение: Офис находится в самом центре, что обеспечивает удобный доступ как для сотрудников, так и для клиентов. • Прекрасный вид: Наслаждайтесь захватывающими панорамами города прямо из вашего окна. • Современные условия: Офис оснащен всем необходимым для комфортной работы: современная вентиляция, на первом этаже находятся кафе, рестораны, банкоматы • Гибкие условия аренды: Мы готовы обсудить различные варианты аренды, чтобы найти оптимальное решение для вашего бизнеса. Также в наличии 3 парковочных места для удобства. Не упустите шанс работать в одном из самых привлекательных офисных пространств Екатеринбурга! Для получения дополнительной информации и организации просмотра, пожалуйста, свяжитесь с нами по телефону Ваш новый офис ждет вас! ID объекта в нашей базе: 13057
    размещено: 25.12.2025 , обновлено: 9.02.2026

    Офис 15.5 м2 – Восточная, 56

    • 15.5 м2
    • 13/14 этаж
    • в деловом центре
    15 500 ₽ / месяц
    Сдаю офис на тринадцатом этаже офисного здания по адресу ул. Восточная, д. 56, общая площадь 15,5 кв. м. Здание находится в центре города, на перекрёстке с проспектом Ленина, с очень удобными транспортными развязками. Состояние офиса хорошее, свежий ремонт, коммунальные платежи входят в арендную плату. ID объекта в нашей базе: 1558
    размещено: 23.12.2025 , обновлено: 30.01.2026

    Офис 74.2 м2 – Мамина-Сибиряка, 101

    • 74.2 м2
    • 9/14 этаж
    • в деловом центре
    82 000 ₽ / месяц
    Oфис в арeнду в БЦ «Mанхэттен»Адрес: г. Екатеринбург, ул. Мамина-Cибирякa, 101Площадь: 74,2 кв. м.Cтоимocть арeнды: 1 100 pуб/мec зa кв. м.Этaж: 9 офис 9.14Кaдacтрoвый номep: 66:41:0701014:260Преимуществa:• Cовpемeнное здaниe клаcca B+ с эффeктнoй арxитeктурой и пaноpамным оcтeклениeм.• Пpестижное расположениe в центpe Eкатepинбурга, рядом с крупными транспортными развязками и остановками.• Светлые офисные помещения с окнами во внутренний атриум бизнес-центра.• Высокоскоростные лифты (6 кабин) обеспечивают быстрый доступ на этаж.• Качественная отделка: керамогранит, стеклянные перегородки, подвесные потолки с встроенным освещением и кондиционером.• Инфраструктура БЦ: кафе, рестораны, магазины и коворкинги прямо в здании.• Система контроля доступа и круглосуточная охрана.Дополнительно:• Коммунальные услуги и эксплуатационные расходы оплачиваются по счетам управляющей компании.• Электроэнергия — по отдельным счетчикам.• Обеспечительный платёж — в размере одного месяца аренды.• УСН, НДС не включён.Ждём вас на просмотр !!! ID объекта в нашей базе: 9393
    размещено: 23.12.2025 , обновлено: 14.01.2026

Приоритет

Увеличивает просмотры в 3 раза

Ваше объявление показывается в списке выше обычных объявлений. подключить