п. Полевой
городской округ Сысертский
(Челябинское направление)
Центр Екатеринбурга → 26 км
Центр Екатеринбурга → 26 км
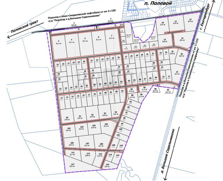
Последние участки 0,6 га в индустриальном парке — уникальная инвестиционная возможность!Продаются последние земельные участки площадью 60 соток в современном индустриальном парке рядом с Екатеринбургом. Это крайне выгодное вложение: стоимость земли сейчас очень привлекательна, а её цена стабильно растёт благодаря удачному расположению и развитию района.Идеально подходит для организации автосервиса, малого производства, склада, техцентра или логистического комплекса.???? Преимущества расположения- 3 км до ЕКАД — быстрый выезд на федеральные трассы.- 12 км до центра Екатеринбурга — удобно для сотрудников и клиентов.- 8 км до аэропорта Кольцово — оптимально для бизнеса с авиаперевозками.- Выезды на Челябинский и Полевской тракты — отличная транспортная доступность.???? Транспорт и подъезд- Широкие подъездные пути (25–30 м) — подходят для фур и большегрузного транспорта.- Асфальтированный и грунтовый подъезд — круглогодичный доступ.⚡ Коммуникации- Электричество подведено к территории парка.- Получены технические условия (ТУ) на подключение участка.- Ведётся проектирование центральной ливневой канализации.???? Возможности использования- Производственные цеха (в том числе пищевые, фармацевтические, лёгкая промышленность).- Складские и логистические комплексы.- Автосервис, техцентр, автомойка.- Сельхозпереработка и хранение.- Торгово-оптовая база.???? Для кого подойдёт- Для бизнеса: запуск производства или склада рядом с Екатеринбургом.- Для инвестиций: индустриальная земля вблизи ЕКАД стабильно дорожает. Сейчас — самая выгодная цена!???? Документы- Чистое право собственности.- Быстрый выход на сделку.Не упустите шанс приобрести последний участок по привлекательной цене! Звоните или пишите в сообщения Авито для получения подробной информации и организации показа
ID объекта в нашей базе: 14381
размещено: 12.03.2026
, обновлено: 13.04.2026


