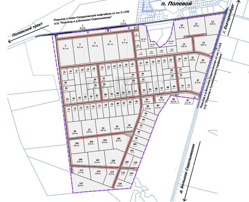
п. Полевой
городской округ Сысертский
(Челябинское направление)
Центр Екатеринбурга → 26 км
Центр Екатеринбурга → 26 км
Участок под склад или производство — с возможностью быстрого запуска проекта.
Подойдёт для:— логистического комплекса— склада (в т.ч. под аренду)— производственного объекта— инвестиционного проекта с доходностью
???? Основные параметры:
— Категория: земли промышленности— ВРИ: под склад / производство— Площадь: 1 Га— Локация: ✔ 3 км до ЕКАД✔ 12 км до центра Екатеринбурга✔ 8 км до аэропорта Кольцово✔ Выезды на Челябинский и Полевской тракты— Удобная логистика для сотрудников, клиентов и грузового транспорта.
⚡ Коммуникации:
— Электричество: возможность подключения, сети проложены— Газ: возможность подключения, сети уже проектируются— Вода / канализация: автономное
???? Почему это выгодно:
— Возможность быстрого старта строительства— Минимальные риски по документам— Подходит под аренду (высокий спрос на склады)— Можно рассчитать проект под доходность
???? Могу дополнительно:
— Рассчитать экономику проекта (склад / производство)— Подсказать по получению разрешения на строительство— Оценить сроки запуска— Помочь с подбором подрядчиков
???? Свяжитесь со мной:
Напишите в чат, отвечу на вопросы и отправлю подробную информацию по участку.При необходимости — подберу альтернативные варианты под ваш проект.
По запросу отправлю кадастровый номер и дополнительные материалы
ID объекта в нашей базе: 13764
размещено: 10.02.2026
, обновлено: 1.04.2026



