п. Полевой
городской округ Сысертский
(Челябинское направление)
Центр Екатеринбурга → 26 км
Центр Екатеринбурга → 26 км
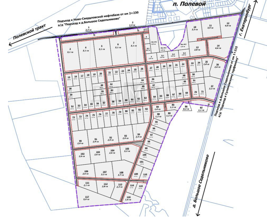
Участок 1,37 ГА под производство / склад | 3 км до ЕКАД | ТУ на электричествоПродаётся земельный участок 1,37 га в индустриальном парке рядом с Екатеринбургом.Отлично подойдёт для производства, склада, логистики, автосервиса или инвестиций.???? Локация✔ 3 км до ЕКАД✔ 12 км до центра Екатеринбурга✔ 8 км до аэропорта Кольцово✔ Выезды на Челябинский и Полевской трактыУдобная логистика для сотрудников, клиентов и грузового транспорта.???? Подъезд и транспорт✔ Широкие подъездные пути 25–30 м✔ Подходит для фур и большегрузов✔ Асфальтированный/грунтовый подъезд⚡ Коммуникации✔ Электричество подведено к территории парка✔ Получены ТУ на подключение участка✔ Проектируется центральная ливневая канализация???? Разрешённое использование• Производственные цеха (пищевые, фармацевтические, лёгкая промышленность и др.)• Складские и логистические комплексы• Автосервис, техцентр• Сельхозпереработка и хранение• Торгово-оптовая база???? Подойдёт:✔ Для бизнеса — запуск производства или склада вблизи города✔ Для инвестиций — индустриальная земля рядом с ЕКАД стабильно растёт в цене???? Документы✔ Чистое право собственности✔ Быстрый выход на сделку???? Звоните или пишите в сообщения Авито.По запросу отправлю кадастровый номер и дополнительные материалы.
ID объекта в нашей базе: 14380
размещено: 12.03.2026
, обновлено: 1.05.2026



