На Метре реклама - только нормальная. Никакого шок-контента.
Помогайте независимому ресурсу, как он помогает вам. Удачи!
Новостройки Котт. посёлки Объявления Динамика цен и сделок

Продажа квартиры: Екатеринбург, ул. Крауля, 8 (ВИЗ)

  • опубликовано 17.12.2018 , обновлено 5.11.2025
  • 179
Рынок:вторичный
Срок сдачи: 1972 года
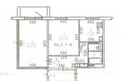
Количество комнат:3
Общая площадь:58.4 м2
Жилая площадь:44 м2
Площадь кухни:7 м2
Этаж/Этажность дома:5 / 5
Материал стен:панель
Санузел:раздельный
Отделка:частичный ремонт
Год постройки:1972
Цена:
3 100 000
Объявление снято с публикации
Ипотека:возможна

Продается хорошая 3-комнатная квартира площадью 58,4 м2 + балкон
РАЙОН: Верх-Исетский
ДВОР: есть детская площадка, свободные парковочные места. Дом расположен не у дороги, в то же время практически в самом центре.
ДОМ: 1972 г. постройки, панель. Достаточно теплый дом.
КВАРТИРА: Удобная кухня 7 м2, комнаты 16,6 - 14,8 - 12,8 м2. Туалет раздельный (возможно совмещение). Окна ПВХ.
ИНФРАСТРУКТУРА:
- Детский сад 28 через дорогу !!!
- Уральский государственный медицинский университет в соседнем дворе.
- Центральный стадион в 5-ти минутах!!!
- Магазины в 200 метрах от дома: Магнит, Минимарт, Елисей, Монетка, Пятерочка, Верный.
- остановки общественного транспорта (автобус, троллейбус, маршрутки) в шаговой доступности, остановки на главных магистралях по улицам Репина, Крауля, Токарей.
ЮРИДИЧЕСКАЯ ЧИСТОТА:
- Квартира без обременений, залогов, арестов.
- Собственник один, совершеннолетний, не имеет исполнительных листов, банкротом не является, паспорт действительный. Всё проверено!

ДОПОЛНИТЕЛЬНАЯ ИНФОРМАЦИЯ:
Понравился наш вариант, а на покупку не хватает средств? Мы согласуем ипотеку дешевле, чем в банке. За счет партнерской программы, более 10 банков снижают ставку для наших клиентов.
У Вас обмен и своя недвижимость еще не продана? Предложите её, у нас более 100 агентов и чаще всего, покупатель уже есть.

Никакой комиссии при покупке данной квартиры!

Звоните и приходите на просмотр!!!

#объект в нашей базе №5908965#

Объявление снято с публикации

Ипотечный калькулятор

лет
%
Сумма кредита
3100000 ₽
Платеж
22 540 ₽

История предложений в этом доме

объявление снято с публикации в продаже комнат площадь этаж цена,
Екатеринбург, ул. Крауля, 8 (ВИЗ) - фото квартиры 10 сентября 2025 90 дн. 2 44 4/5 4 500 000
Екатеринбург, ул. Крауля, 8 (ВИЗ) - фото квартиры 11 ноября 2024 90 дн. 3 59 3/5 5 500 000
Екатеринбург, ул. Крауля, 8 (ВИЗ) - фото квартиры 17 октября 2024 90 дн. 3 59 3/5 5 500 000
Екатеринбург, ул. Крауля, 8 (ВИЗ) - фото квартиры 9 октября 2024 90 дн. 3 59 3/5 5 500 000
Екатеринбург, ул. Крауля, 8 (ВИЗ) - фото квартиры 1 октября 2024 90 дн. 3 59 3/5 5 500 000
Екатеринбург, ул. Крауля, 8 (ВИЗ) - фото квартиры 15 сентября 2024 90 дн. 3 59 3/5 5 500 000
Екатеринбург, ул. Крауля, 8 (ВИЗ) - фото квартиры 6 сентября 2024 90 дн. 3 59 3/5 5 500 000
Екатеринбург, ул. Крауля, 8 (ВИЗ) - фото квартиры 23 августа 2024 90 дн. 3 59 3/5 5 500 000
Екатеринбург, ул. Крауля, 8 (ВИЗ) - фото квартиры 13 июня 2024 90 дн. 2 42 4/5 4 700 000
Екатеринбург, ул. Крауля, 8 (ВИЗ) - фото квартиры 23 мая 2024 90 дн. 2 42.8 5/5 5 050 000
Екатеринбург, ул. Крауля, 8 (ВИЗ) - фото квартиры 1 июля 2023 90 дн. 2 43.6 4/5 4 490 000
Екатеринбург, ул. Крауля, 8 (ВИЗ) - фото квартиры 29 апреля 2023 90 дн. 2 45 3/5 5 300 000
Екатеринбург, ул. Крауля, 8 (ВИЗ) - фото квартиры 24 сентября 2022 90 дн. 2 44.9 3/5 4 390 000
Екатеринбург, ул. Крауля, 8 (ВИЗ) - фото квартиры 18 августа 2022 90 дн. 3 60 2/5 5 000 000
Екатеринбург, ул. Крауля, 8 (ВИЗ) - фото квартиры 17 августа 2022 90 дн. 2 43 5/5 4 430 000
Екатеринбург, ул. Крауля, 8 (ВИЗ) - фото квартиры 21 июня 2022 90 дн. 2 43 5/5 4 499 000
Екатеринбург, ул. Крауля, 8 (ВИЗ) - фото квартиры 21 мая 2021 90 дн. 2 44.5 3/5 4 100 000
Екатеринбург, ул. Крауля, 8 - фото квартиры 18 декабря 2019 90 дн. 2 43.5 5/5 3 099 000
Екатеринбург, ул. Крауля, 8 (ВИЗ) - фото квартиры 9 августа 2019 90 дн. 2 43 5/5 3 150 000
5 апреля 2016 60 дн. 2 44 5/5 3 400 000

Новостройки Екатеринбург, мкр-н. ВИЗ

Приоритет

Увеличивает просмотры в 3 раза

Ваше объявление показывается в списке выше обычных объявлений. подключить