На Метре реклама - только нормальная. Никакого шок-контента.
Помогайте независимому ресурсу, как он помогает вам. Удачи!
Новостройки Котт. посёлки Объявления Динамика цен и сделок

Продажа квартиры: Екатеринбург, ул. Заводская, 47/1 (ВИЗ)

  • опубликовано 25.03.2019 , обновлено 24.04.2025
  • 242
Рынок:вторичный
Срок сдачи: 1970 года
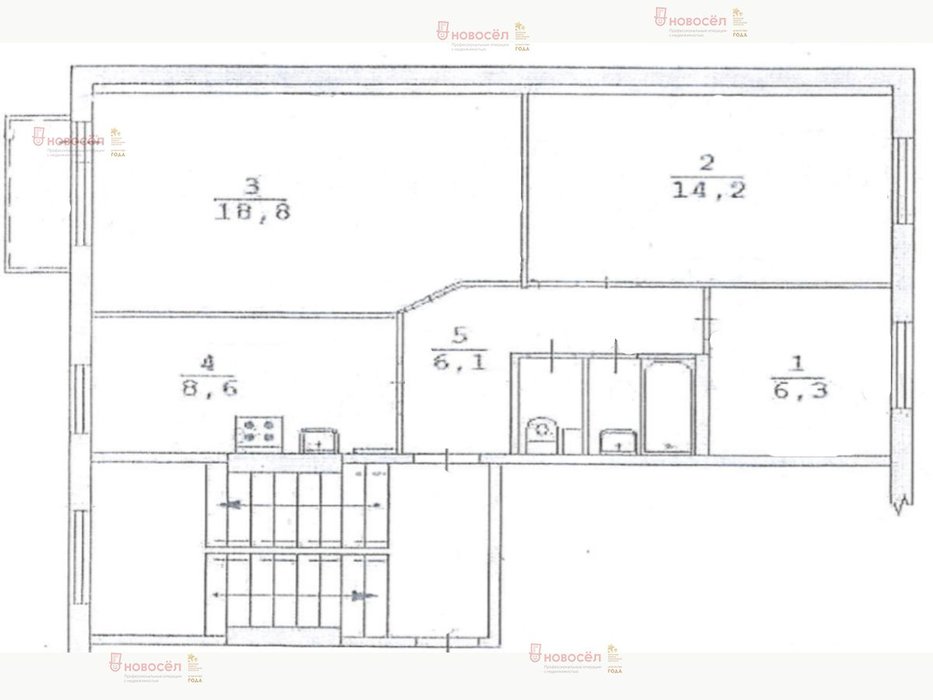
Количество комнат:3
Из них изолированных:1
Общая площадь:57 м2
Жилая площадь:39 м2
Площадь кухни:8 м2
Этаж/Этажность дома:4 / 5
Санузел:раздельный
Отделка:евроремонт
Год постройки:1970
Состояние:хорошее
Цена:
4 300 000
Объявление снято с публикации
Условия продажи:«чистая» продажа
Ипотека:возможна

Объект № 106388. Продается уютная трехкомнатная квартира, светлая, с хорошим ремонтом: натяжной потолок во всех комнатах, на стенах флизелиновые обои, спокойных тонов, на полу ламинат, качественные межкомнатные двери, пластиковые окна, сейф-дверь. В ванной и туалете кафель.
Удачная планировка: комнаты правильной прямоугольной формы, окна выходят на две стороны, все комнаты раздельные, кухня увеличена до 9 кв.м. Перепланировка узаконена. Квартира не требует никаких вложений. Заезжай и живи!
Вся инфраструктура в шаговой доступности. Рядом школа, несколько детских садов, больница для взрослых, детская больница. Хорошая транспортная развязка, можно уехать в любой район города. В 10 минутах езды ТЦ Мега, ТЦ Леруа Мерлен, ТЦ Радуга Парк.
Если Вам понравился наш вариант, мы поможем согласовать ипотеку без первоначального взноса по сниженной процентной ставке. Если у Вас еще не продана своя недвижимость, предложите нам, возможно у нас прямо сейчас есть на нее покупатель. ***Гарантийный сертификат «Защита собственности» по данному объекту в подарок***

Объявление снято с публикации

Ипотечный калькулятор

лет
%
Сумма кредита
4300000 ₽
Платеж
22 540 ₽

Актуальные предложения в этом доме

  • 2-к квартира, Заводская, 47/1

    • 43 м2
    • 1/5 этаж
    • Состояние:
    3 999 000 ₽ (93000 ₽/м2)
    Объект № 195531. КВАРТИРА ТРЕБУЕТ РЕМОНТА! Будет возможность сделать все по своему вкусу и желанию. Дом находится вдали от шумных и пыльных дорог. Рядом расположена гимназия Менталитет. В шаговой доступности детский сад. Один взрослый собственник. Обременений нет. ***Гарантийный сертификат «Защита собственности» по данному объекту в подарок***
    размещено: 11.11.2025

История предложений в этом доме

объявление снято с публикации в продаже комнат площадь этаж цена,
Екатеринбург, ул. Заводская, 47/1 (ВИЗ) - фото квартиры 19 января 2021 90 дн. 1 28.7 4/5 2 600 000
Екатеринбург, ул. Заводская, 47/1 (ВИЗ) - фото квартиры 13 октября 2020 90 дн. 2 42 1/5 2 690 000
Екатеринбург, ул. Заводская, 47/1 (ВИЗ) - фото квартиры 28 августа 2019 90 дн. 2 43 2/5 2 700 000
7 декабря 2018 90 дн. 2 42 3/5 3 000 000

Похожие предложения о продаже квартир в Екатеринбурге (ВИЗ)

  • 3-к квартира, Токарей, 50к1

    • 59.3 м2
    • 2/5 этаж
    • Состояние: хорошее
    5 490 000 ₽ (92600 ₽/м2)
    Продаётся просторная 3х комнатная кваpтиpa 59,3 кв.м. на ВИЗе, в 10 минутах от Центра города. В квартире выполнен косметический ремонт. Удачная планировка включает три раздельные комнаты прямоугольной формы и раздельный санузел.Из гостиной удобный вход на кухню и на балкон. Окна выходят во двор и на улицу. От проезжей части дом находится в удалении за деревьями, шум дороги не слышен.Большой зеленый тихий двор с кортом. Во дворе всегда есть парковочные места. Сложившаяся инфраструктура:Школы, детские сады;Взрослая и детская поликлиника, Новая больница;Екатеринбург Арена;Продуктовые магазины, аптеки, торговые центры;Удобная транспортная развязка, можно быстро добраться до любого района города;До Центра города 10 минут.Возможна ипотека.Один взрослый собственник.Обременений нет.Быстрый выход на сделку.Приглашаем Вас на просмотр! ID объекта в нашей базе: 10858
    размещено: 20.08.2025 , обновлено: 4.11.2025

Новостройки Екатеринбург, мкр-н. ВИЗ

Приоритет

Увеличивает просмотры в 3 раза

Ваше объявление показывается в списке выше обычных объявлений. подключить