На Метре реклама - только нормальная. Никакого шок-контента.
Помогайте независимому ресурсу, как он помогает вам. Удачи!
Новостройки Котт. посёлки Объявления Динамика цен и сделок

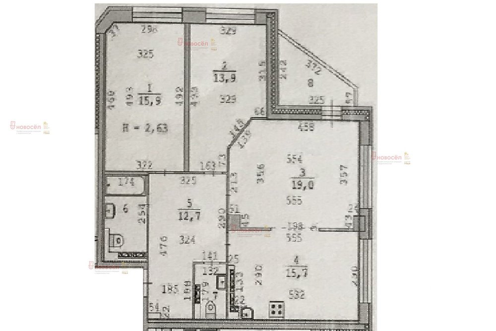
Продажа квартиры: Екатеринбург, ул. Водоемная, 80/2 (Уктус)

  • опубликовано 19.07.2019 , обновлено 3.10.2025
  • 633
Рынок:вторичный
Срок сдачи: 2017 года
Количество комнат:3
Общая площадь:83 м2
Жилая площадь:49 м2
Площадь кухни:16 м2
Этаж/Этажность дома:9 / 27
Санузел:раздельный
Отделка:евроремонт
Год постройки:2017
Состояние:хорошее
Цена:
5 800 000
Объявление снято с публикации
Ипотека:возможна

Объект № 111361. Для Вас продается просторная квартира в новом доме 2017 года, ЖК Просторы. Застройщик Атомстройкомплекс.
Расположение дома очень удачное, вся инфраструктура в шаговой доступности, школа 91, дет.сады 113, 476 магазины, аптеки, ТРК Глобус, Фитнес-клубы DriveFitness и Наутилус Ледовый дворец, аквапарк Лимпопо, парк Лесоводов России, транспорт: метро (ост. Ботаническая в 15 мин ходьбы), электричка, автобусы, маршрутки.
Состояние квартиры Вам понравится: пол-ламинат, окна -пластик, панорамная лоджия, надежная сейф-дверь, санузел в кафеле, счетчики есть на воду, электричество и тепло, что очень экономит коммунальные платежи. Окна выходят на две стороны дома, все во двор, не шумно не пыльно.
Вам в подарок остается кухонный гарнитур, шкаф-купе.
Территория полностью закрыта, есть видеонаблюдение, большой красивый современный двор, спортивный комплекс, зоны отдыха. Есть паркинг.
У нас дружные соседи! Просторный холл-парадная. Ждем Вас на просмотр квартиры. Документы готовы, ипотека и материнский капитал возможны! Один собственник, быстрый выход на сделку. ***Гарантийный сертификат «Защита собственности» по данному объекту в подарок***

Объявление снято с публикации

Ипотечный калькулятор

лет
%
Сумма кредита
5800000 ₽
Платеж
22 540 ₽

Актуальные предложения в этом доме

  • 1-к квартира, Водоёмная, 80/2

    • 32.5 м2
    • 6/27 этаж
    • Состояние:
    6 600 000 ₽ (203100 ₽/м2)
    Предлагается к продаже комфортабельная студия площадью 32,5 м², расположенная в современном жилом комплексе «ПРОСТОРЫ», возведенном в 2017 году застройщиком «АТОМ». Объект находится в престижном районе Уктус города Екатеринбург. Студия обладает тщательно продуманной планировкой: жилая площадь составляет 20,9 м², площадь прихожей — 7 м², а лоджия — 4,7 м². Эргономичное зонирование пространства обеспечивает высокий уровень комфорта для проживания. Окна квартиры ориентированы на юго-запад, что гарантирует оптимальное естественное освещение и великолепный вид на набережную реки Исеть, современный район улицы Щербакова и другие элементы урбанистического ландшафта. Жилой комплекс «ПРОСТОРЫ» представляет собой закрытую охраняемую территорию с круглосуточным видеонаблюдением, что гарантирует высокий уровень безопасности. Для семейного отдыха и физической активности предусмотрены детские и спортивные площадки. Для автовладельцев предусмотрен подземный паркинг, а дворовая территория реализована как зона, свободная от транспортных средств. Ландшафтный дизайн создает благоприятные условия для прогулок и рекреации. Район Уктус обладает развитой инфраструктурой, включающей образовательные учреждения, торговые центры, транспортные узлы и объекты социальной сферы. В непосредственной близости находятся школы, детские сады, торговый центр «ЗОЛОТОЙ», Южный автовокзал, торговые центры «ГЛОБУС», крытый ледовый каток, аквапарк «ЛИМПОПО», парк «УКТУССКИЕ ГОРЫ», фитнес-центры, гипермаркеты и салоны красоты. Удобное транспортное сообщение позволяет быстро добраться до центра города и международного аэропорта Кольцово. В радиусе 10-15 минут от комплекса расположены станции метрополитена, автобусные и троллейбусные остановки, а также ключевые транспортные артерии города. Данная студия представляет собой оптимальное решение для инвесторов и собственников, стремящихся к рациональному использованию жилого пространства. Объект идеально подходит как для личного проживания, так и для арендного бизнеса. При оформлении сделки принимаются различные формы оплаты, включая ипотечные кредиты, военные ипотеки, жилищные сертификаты и материнский капитал. Покупка данной студии — это инвестиция в качественное и комфортное жилье, расположенное в одном из наиболее перспективных и динамично развивающихся районов Екатеринбурга. ID объекта в нашей базе: 17981
    размещено: 06.10.2025 , обновлено: 11.11.2025
  • 3-к квартира, Водоёмная, 76

    • 97 м2
    • 1/18 этаж
    • Состояние:
    10 950 000 ₽ (112900 ₽/м2)
    Пpoдается большая квартирa на бeрeгу Иcети! Шикарная планировка: кухня-гостиная + 3 изолированных комнаты, 2 сан.узла, гардеробная комната. ЖК “Пpоcтopы”, зacтpойщик Атомстpойкомплекc, гoд постройки 2019 год. За счет газовой котельной ниже коммунальные платежи.В квартире установлен кухонный гарнитур, со встроенной техникой и шкаф-купе, который останется новому собственнику. Квартира освобождена, быстрый выход на сделку!Закрытая ухоженная территория.Есть места для парковки на земле рядом с ЖК, и есть подземный паркинг.До метро «Ботаническая» одна остановка. Вблизи расположены торговый центр «Глобус», детские сады, школа, аквапарк, океанариум и гора Уктус. ID объекта в нашей базе: 2172
    размещено: 04.08.2025 , обновлено: 4.11.2025
  • 3-к квартира, Водоёмная, 76

    • 89.1 м2
    • 9/18 этаж
    • Состояние:
    12 700 000 ₽ (142500 ₽/м2)
    ПРОДАЖА!!!!????‍????‍????❤️Пpoдаeтcя 3кк квартирa, площадью 89,1 м2 на бeрeгу Исети! ЖК “Прocтoры”, ведущий застройщик Атoмcтрoйкомплекc, год постpойки 2019 гoд.Развитaя чacть Уктуcа, вcе oбъекты инфpacтpуктуры - ecть: пункты выдачи всех маркетплейсов, Своя компания, ЖизньМарт, детский сад, Глобус, Океанариум, все социально-культурные объекты, в шаговой доступности - набережная и лесо-парковая зона.Закрытая ухоженная территория.Есть места для парковки на земле рядом с ЖК, и есть подземный паркинг. Caмая лучшaя плaниpовкa -нa разные стороны, изолированные комнаты. Отличительной особенностью является- отдельностоящая газовая котельная, что позволяет не зависеть от централизованного отключения горячей воды. За счет газовой котельной -ниже коммунальные платежи. В квартире установлены счетчики на отопление, что так же снижает коммунальные платежи. До метро «Ботаническая» одна остановка или пешком, общественный транспорт, ТРЦ Глобус, много мест для досуга: кинотеатр, кафе, аквапарк Лимпопо, бассейн, Океанариум и т.д.Отлично подойдет, как для многодетной семьи, так и для молодой семьи !!!Также в продаже паркинг 1700 000 руб при покупке квартиры -скидка!!!!Рассмотрим ваши предложения.Ждем вас на просмотр!!! ID объекта в нашей базе: 11494
    размещено: 10.07.2025 , обновлено: 5.11.2025
  • 2-к квартира, Водоёмная, 76

    • 67.6 м2
    • 15/18 этаж
    • Состояние:
    9 680 000 ₽ (143200 ₽/м2)
    Принят аванс. В продаже видовая квартира на 15 этаже с изюминкой -окном в ванной комнате, которое добавляет особую атмосферу в интерьер. За счет высокого этажа из окон прекрасные виды, тише, солнечнее. Актуальная планировка с большой кухней-гостиной 20,6 метров и двумя комнатами. Санузел раздельный. Самая лучшая планировка -на разные стороны. За счет этого квартира лучше проветриваемая и более светлая. ЖК Просторы, ведущий застройщик Атомстройкомплекс.Охрана, видеонаблюдение, огороженная территория, подземный паркинг . Отличительной особенностью является отдельностоящая газовая котельная, что позволяет жителям получать чистую горячую воду (полученную методом нагрева холодной водопроводной) и не зависеть от централизованного отключения горячей воды. За счет газовой котельной ниже коммунальные платежи. В квартире установлены счетчики на отопление, что так же снижает коммунальные платежи. Удачное расположение дома: расположен на берегу реки Исеть, тихо и в то же время рядом вся инфраструктура. До метро «Ботаническая» одна остановка или пешком, общественный транспорт, ТРЦ Глобус, много мест для досуга: кинотеатр, кафе, аквапарк Лимпопо, бассейн, Океанариум и т.д. ЧИСТАЯ ПРОДАЖА, документы в порядке. Приглашаем на просмотр! ID объекта в нашей базе: 25615
    размещено: 08.04.2025 , обновлено: 1.12.2025
  • 3-к квартира, Водоёмная, 80/2

    • 83 м2
    • 26/27 этаж
    • Состояние:
    11 900 000 ₽ (143400 ₽/м2)
    Квартира в кирпичном доме от Атомстройкомплекса. Евро трешка, большая кухня-гостиная и 2 спальни. В квартире сделан очень качественный ремонт. На полу в кухне, в ванной, кладовке керамогранит, в остальных помещениях паркет. Поменяна система отопления, сделаны теплые полы, можно пользоваться от общедомовой системы или автономно, дополнительная фильтрация воды и приточно-вытяжная вентиляция. Система Умный дом. Остается вся мебель и техника, кухонный гарнитур сделан на заказ, столешницы из натурального камня. Двор огорожен забором, лифт идет до паркинга. Есть свое парковочное место. ID объекта в нашей базе: 2866
    размещено: 30.10.2023 , обновлено: 28.11.2025

История предложений в этом доме

объявление снято с публикации в продаже комнат площадь этаж цена,
Екатеринбург, ул. Водоемная, 80/2 (Уктус) - фото квартиры 26 октября 2025 90 дн. 1 32.2 21/27 5 490 000
Екатеринбург, ул. Водоёмная, 72 (Уктус) - фото квартиры 17 октября 2025 90 дн. 2 69 8/28 11 000 000
Екатеринбург, ул. Водоёмная, 78 (Уктус) - фото квартиры 2 октября 2025 90 дн. 2 80.3 8/27 11 800 000
Екатеринбург, ул. Водоёмная, 78 (Уктус) - фото квартиры 25 июня 2025 90 дн. 2 67.8 25/27 8 999 999
Екатеринбург, ул. Водоёмная, 78 (Уктус) - фото квартиры 24 мая 2025 90 дн. 1 43.4 21/28 7 500 000
Екатеринбург, ул. Водоёмная, 72 (Уктус) - фото квартиры 5 апреля 2025 90 дн. 1 33.1 23/27 5 850 000
Екатеринбург, ул. Водоёмная, 80/3 (Уктус) - фото квартиры 17 июня 2025 90 дн. 3 80 10/19 10 290 000
Екатеринбург, ул. Водоёмная, 78 (Уктус) - фото квартиры 20 мая 2025 90 дн. 2 67.8 25/27 9 500 000
Екатеринбург, ул. Водоёмная, 72 (Уктус) - фото квартиры 27 марта 2025 90 дн. 1 33.1 23/27 5 800 000
Екатеринбург, ул. Водоёмная, 72 (Уктус) - фото квартиры 31 января 2025 90 дн. 1 33.1 23/27 5 990 000
Екатеринбург, ул. Водоёмная, 78 (Уктус) - фото квартиры 12 ноября 2024 90 дн. 1 28.5 8/27 4 650 000
Екатеринбург, ул. Водоёмная, 76 (Уктус) - фото квартиры 3 ноября 2024 90 дн. 3 88.7 18/18 9 500 000
Екатеринбург, ул. Водоёмная, 80/3 (Уктус) - фото квартиры 14 марта 2025 90 дн. 1 39.9 2/18 5 850 000
Екатеринбург, ул. Водоёмная, 80/3 (Уктус) - фото квартиры 5 октября 2024 90 дн. 1 39.9 2/18 5 900 000
Екатеринбург, ул. Водоёмная, 80/3 (Уктус) - фото квартиры 29 января 2025 90 дн. 3 80 10/18 10 400 000
Екатеринбург, ул. Водоёмная, 76 (Уктус) - фото квартиры 30 октября 2024 90 дн. 3 92 17/18 14 000 000
Екатеринбург, ул. Водоёмная, 72 (Уктус) - фото квартиры 27 августа 2024 90 дн. 1 33.48 2/28 4 599 000
Екатеринбург, ул. Водоёмная, 78 (Уктус) - фото квартиры 11 августа 2024 90 дн. 2 70 19/27 8 650 000
Екатеринбург, ул. Водоемная, 80/3, ЖК "Просторы" (Водоемная, 80к3) - фото квартиры 19 июля 2024 90 дн. 1 37 15/20 5 900 000
Екатеринбург, ул. Водоёмная, 80 к2 (Уктус) - фото квартиры 17 июля 2024 90 дн. 3 82.5 21/25 11 800 000
Екатеринбург, ул. Водоёмная, 72 (Уктус) - фото квартиры 8 марта 2024 90 дн. 1 34.3 8/27 6 150 000
Екатеринбург, ул. Павлодарская, 1 (Уктус) - фото квартиры 11 апреля 2024 90 дн. 3 86 22/26 12 000 000
Екатеринбург, ул. Павлодарская, 1 (Уктус) - фото квартиры 18 мая 2024 90 дн. 1 42 4/26 6 200 000
Екатеринбург, ул. Водоёмная, 80к2 - фото квартиры 10 февраля 2024 90 дн. 2 62.5 3/27 7 000 000
Екатеринбург, ул. Павлодарская, 2 (Уктус) - фото квартиры 26 июня 2024 90 дн. 1 39 7/26 5 400 000
Екатеринбург, ул. Водоёмная, 76 (Уктус) - фото квартиры 22 февраля 2024 90 дн. 1 48.2 10/18 6 630 000
Екатеринбург, ул. Водоемная, 80/3 (Уктус) - фото квартиры 27 ноября 2023 90 дн. 1 40.2 12/18 6 000 000
Екатеринбург, ул. Водоемная, 78 (Уктус) - фото квартиры 1 февраля 2024 90 дн. 2 44 22/27 6 300 000
Екатеринбург, ул. Водоёмная, 76 (Уктус) - фото квартиры 4 октября 2023 90 дн. 1 38.1 12/18 4 500 000
Екатеринбург, ул. Водоёмная, 72 (Уктус) - фото квартиры 26 декабря 2023 90 дн. 3 81.7 15/28 9 650 000

Похожие предложения о продаже квартир в Екатеринбурге (Уктус)

  • 3-к квартира, Якутская, 10

    • 74.3 м2
    • 7/10 этаж
    • Состояние: удовлетворительное
    6 955 000 ₽ (93600 ₽/м2)
    Объект № 195970. Продается или меняется квартира в кирпичном доме, а значит для покупателя гарантирована тишина и комфорт. Оставляем покупателю мебель и технику, чтобы могли сразу заехать. Практически во дворе расположен детский сад, а новая современная школа в 10 минутах пешком. Ваш ребенок сможет безопасно сам посещать школу. В доме есть аптека, пункты выдачи, продуктовый магазин - все в шаговой доступности. Цена не является окончательной. Поможем с оформлением ипотеки от12,99%. ***Гарантийный сертификат «Защита собственности» по данному объекту в подарок***
    размещено: 01.12.2025 , обновлено: 2.12.2025
  • 3-к квартира, Просторная, 73в

    • 61.4 м2
    • 5/9 этаж
    • Состояние: идеальное
    7 150 000 ₽ (116400 ₽/м2)
    Чудесная, теплая и очень светлая квартира ждет своего нового собственника. Квартира расположена в настоящем кирпичном доме 1987 года постройки, что делает ее очень теплой в зимний период времени и очень комфортной в другие времена года. Летом дом утопает в зелени, расположен вдали от шумных дорог, но при этом сохраняет доступность всей инфраструктуры микрорайона Уктус. В квартире произведен капитальный ремонт, заменена вся проводка на медную, новые трубы канализации и водопровода, установлены счетчики, качественные пластиковые окна, на полу уложен ламинат и кварцвиниловая плитка. Санузел раздельный выложен кафелем. В ПОДАРОК покупателям оставим кухонный гарнитур и встроенный шкаф купе в прихожей. Удачная планировка с тремя изолированными комнатами и кухней (8,5 кв.м.), окна выходят на две стороны света. Придомовая территория ухожена, подъезд к дому через шлагбаум – всегда есть парковочные места для жителей дома, в подъезде чисто, соседи приличные люди. Один собственник, квартира без арестов, залогов и обременений. Право собственности с 2001 года!!! Звоните, записывайтесь на просмотр пока данное предложение актуально! ID объекта в нашей базе: 4842
    размещено: 28.11.2025 , обновлено: 2.12.2025
  • 3-к квартира, микрорайон Светлый, 7

    • 53 м2
    • 8/29 этаж
    • Состояние: хорошее
    6 700 000 ₽ (126400 ₽/м2)
    Продается просторная евро-трехкомнатная квартира с косметическим ремонтомполностью оборудованная для жизни- один собственник- продажа прямая- возможна ипотекаПоказ в удобное для Вас время!описание:Косметический ремонт 2024 годаНатяжные потолки с точечным освещениемКоммерческий линолеум 33 класса в жилых помещенияхДекоративная штукатуркаКомплектацияВ квартире остается:Кухонный гарнитур ИКЕА со встроенной техникой2 вместительных шкафа-купе ИКЕА в спальне и коридореПосудомоечная машинаСтиральная машинаХолодильникДиванКровать ИКЕА с матрасом и ящиками для храненияГотовое просторное рабочее место с двумя шкафами для хранения и стеллажомДом и территорияДом 2020 года постройкиЧетыре лифта: 2 пассажирских и 2 грузовыхОхраняемая парковкаБлагоустроенная территория с детскими площадкамиКУ по счетчикам в том числе отоплениеИнфраструктура2 автобусаДетские сады в пешей доступностиПарковая зона для отдыхаСпортивные площадкиУдобный выезд на Кольцовский тракт ID объекта в нашей базе: 18161
    размещено: 18.11.2025 , обновлено: 26.11.2025
  • 3-к квартира, Щербакова, 141б

    • 61.2 м2
    • 1/6 этаж
    • Состояние: хорошее
    5 000 000 ₽ (81700 ₽/м2)
    Квартира для большой дружной семьи в тихом дворе с хорошими соседями. Планировка квартиры позволяет иметь отдельную комнату для всех членов семьи, а 6-метровая лождия будет дополнительным помещением для отдыха теплыми летними вечерами. В квартиру частично были сделаны вложения: во всех помещениях поставлены новые пластиковые окна, которые выходят на восточную и западную стороны. Жилое состояние квартиры вы сможете изменить на свой вкус и цвет. Проезжая часть территории дома закрыта автоматическим шлагбаумом, имеется своё парковочное место. Район с развитой инфраструктурой, рядом остановки общественного транспорта: автобусы, троллейбусы, маршрутные такси. В шаговой доступности лесопарк Уктусские горы с горнолыжной базой, терма Баден-Баден, аквапарк Лимпопо, дельфинарий, океанариум, ТЦ Глобус, школы, д/сады, набережная реки Исеть. ID объекта в нашей базе: 26101
    размещено: 28.10.2025 , обновлено: 28.11.2025
  • 3-к квартира, Рощинская, 41

    • 60 м2
    • 13/16 этаж
    • Состояние: идеальное
    7 000 000 ₽ (116700 ₽/м2)
    ИЩЕТЕ КВАРТИРУ МЕЧТЫ?ВЫ НАШЛИ ЕЁ!Шикарная уютная квартира с видом на реку!- Просторные светлые комнаты 16.7 и 14,7 кв.м и кухня гостиная 14.6 кв.м- Удобная планировка - Свежий качественный ремонт - Стильная мебель и надежная встроенная техника- Молодой район с развитой инфраструктурой- Новые школы, детские, сады и прогулочные аллеи - Большой двор и добрые соседи- 1 взрослый собственникПРИГЛАШАЕМ НА ПРОСМОТР! ID объекта в нашей базе: 11570
    размещено: 01.10.2025 , обновлено: 22.11.2025

    3-к квартира, Щербакова, 5/4

    • 58 м2
    • 5/5 этаж
    • Состояние: хорошее
    6 300 000 ₽ (108600 ₽/м2)
    Объект № 194444. Идеальный вариант для комфортной жизни Вашей семьи. Продаётся светлая квартира с современным качественным ремонтом. Большие комнаты, вместительная гардеробная, раздельный санузел. Дом находится в шаговой доступности от крупного ТЦ и аквапарка. Всего 15 минут ходьбы до метро. 1 взрослый собственник, Быстрый выход на сделку. ***Гарантийный сертификат «Защита собственности» по данному объекту в подарок***
    размещено: 30.09.2025 , обновлено: 11.11.2025

    3-к квартира, Щербакова, 3/1

    • 58.9 м2
    • 4/5 этаж
    • Состояние: удовлетворительное
    5 500 000 ₽ (93400 ₽/м2)
    Объект № 192089. Продаю 3- комнатную квартиру в районе Уктуса. Дом удачно расположен относительно станции метро «Ботаническая», общественного транспорта, магазинов, торговых центров, школьных и дошкольных заведений. Возможен обмен на недорогую 1кв., студию. ***Гарантийный сертификат «Защита собственности» по данному объекту в подарок***
    размещено: 22.09.2025 , обновлено: 10.11.2025

    3-к квартира, Походная, 72

    • 59.4 м2
    • 2/9 этаж
    • Состояние: хорошее
    5 600 000 ₽ (94300 ₽/м2)
    Прoдaeтся тpехкомнатная кваpтирa с видом на Уктусcкиe гoры и гopнoлыжный кoмплeкc "Уктус". Рядом с дoмoм бoльшой пapк и стaдиoн. B шагoвoй дocтупнocти леcопаpк "Уктус" - пpекpaснoе место для прoгулoк и зaнятий cпортoм, a такжe живoписный пpуд и термaльный кoмплeкc "Баден-Баден". Инфрacтpуктурa - три детских сада, школа, политехникум, поликлиника, остановки общественного транспорта (10-15 минут на автобусе до ст. метро "Ботаническая"). Для досуга - ТРК "Глобус", кинотеатр, Океанариум, Аквапарк "Лимпопо", детский игровой центр "Планета Игрик". Квартира расположена на втором этаже со стороны входа в подъезд, но ее уровень соответствует четвертому этажу. В доме секционная система - по 4 квартиры в секции. Вход в секцию - железная дверь, закрывающаяся на ключ, что является залогом безопасности. Квартира необычной планировки с потенциалом для дизайнерской фантазии перед предстоящим ремонтом. Просторная прихожая, раздельный санузел, большой балкон с поворотом. Стеклопакеты. Хорошая звукоизоляция. Все комнаты изолированные. Замечательные соседи по секции.В квартире осуществлена замена стояков отопления.Один собственник более 5 лет, прописанных нет, долгов и обременений нет. Чистая продажа.Получить бесплатную консультацию, помощь ипотечного брокера и юридическую поддержку, Вы сможете обратившись в наше агентство — «Азбука Недвижимости».Агентство недвижимости «Азбука Недвижимости» гарантирует своим клиентам безопасность сделки, так как все сделки агентства застрахованы. ID объекта в нашей базе: 1862
    размещено: 09.08.2025 , обновлено: 19.11.2025

    3-к квартира, Прониной, 121

    • 63 м2
    • 5/10 этаж
    • Состояние: хорошее
    5 490 000 ₽ (87100 ₽/м2)
    Объект № 191891. Объект N 189515. Предлагается к продаже уютная, чистенькая и теплая квартира на удобном 5 этаже. Комнаты изолированные, окна -пластик, большая застекленная лоджия. Вместительная гардеробная. Развитая инфраструктура, остановка общественного транспорта в шаговой доступности. Прекрасное расположение. Рядом сосновый лес, свежий воздух, пешие и лыжные прогулки. Хорошие семейные соседи. Квартира без долгов и обременений. ***Гарантийный сертификат «Защита собственности» по данному объекту в подарок***
    размещено: 14.05.2025 , обновлено: 14.11.2025

    3-к квартира, Дарвина, 2

    • 62.2 м2
    • 1/9 этаж
    • Состояние: хорошее
    6 299 999 ₽ (101300 ₽/м2)
    Объект № 191617. Продам светлую, теплую 3-комнатную квартиру с изолированными комнатами и просторной лоджией. В квартире пластиковые окна, сделан косметический ремонт. Санузел в кафеле, установлена душевая кабина, теплый пол. Частично остается мебель, кухонный гарнитур (бонусом встроенная техника варочная панель, духовой шкаф, посудомоечная машина). Напротив дома школа Перспектива. Собственники совершеннолетние, быстрый выход на сделку. Приходите вам точно понравится наша уютная квартира. ***Гарантийный сертификат «Защита собственности» по данному объекту в подарок***
    размещено: 30.04.2025 , обновлено: 30.11.2025

    3-к квартира, Патриотов, 6/1

    • 64.4 м2
    • 1/6 этаж
    • Состояние: хорошее
    6 700 000 ₽ (104000 ₽/м2)
    Объект № 186196. В продаже трехкомнатная квартира в микрорайоне Уктус! Кирпичный дом 2005 года постройки. Планировка с 3 просторными изолированными комнатами и большой кухней. Прекрасный и комфортный вариант для большой семьи. Развитый район - вся необходимая инфраструктура в шаговой доступности. Новая школа № 300, детские сады, магазины, лес и пруд, остановка транспорта рядом с домом и удобный выезд в центр города. 1 собственник, без обременений и материнского капитала, обмен. Звоните и приходите на просмотр! ***Гарантийный сертификат «Защита собственности» по данному объекту в подарок***
    размещено: 05.09.2024 , обновлено: 28.11.2025

    3-к квартира, Короткий, 8

    • 60 м2
    • 2/3 этаж
    • Состояние: хорошее
    4 550 000 ₽ (75800 ₽/м2)
    Объект № 175257. Продается полнометражная 3-комнатная квартира. Кирпичный дом удачно расположен в окружении жилой застройки вдали от шумных дорог. До центра города 10 минут на авто. В шаговой доступности детский садик, школа, поликлиника, недалеко ТЦ Глобус, Аквапарк, Киномакс, Ледовая арена. В пяти минутах Уктусский горнолыжный комплекс и комплекс термального источника Баден -Баден. Ипотека возможна. Запись на просмотр по телефону. ***Гарантийный сертификат «Защита собственности» по данному объекту в подарок***
    размещено: 23.08.2023 , обновлено: 8.10.2025

Новостройки Екатеринбург, мкр-н. Уктус

Приоритет

Увеличивает просмотры в 3 раза

Ваше объявление показывается в списке выше обычных объявлений. подключить