На Метре реклама - только нормальная. Никакого шок-контента.
Помогайте независимому ресурсу, как он помогает вам. Удачи!
Новостройки Котт. посёлки Объявления Динамика цен и сделок

Продажа квартиры: Екатеринбург, ул. Уральская, 6 (Пионерский)

  • опубликовано 20.01.2020 , обновлено 3.09.2025
  • 101
Рынок:вторичный
Срок сдачи: 1985 года
Количество комнат:1
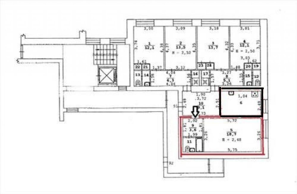
Общая площадь:23 м2
Жилая площадь:19 м2
Площадь кухни:0.00 м2
Этаж/Этажность дома:5 / 9
Год постройки:1985
Состояние:удовлетворительное
Цена:
1 580 000
Объявление снято с публикации
Торг:торг
Ипотека:возможна

Предлагаем вашему вниманию однокомнатную светлую квартиру на 5 этаже 9-ти этажного кирпичного дома, (площадь 23 кв.м.), жилая 19 м2, развитом районе города Екатеринбурга, микрорайоне Пионерский.
В доме всегда поддерживается порядок и чистота. Двор дома просторный и удобный для прогулок с детьми. Парковочные места всегда есть. Рядом находятся детский сад, школа, торговый центр, рядом поликлиника. До метро 10 минут ходьбы.
Вблизи дома магазины и остановки общественного транспорта в любую часть города.
Есть возможность приобретения в ипотеку.
ID объекта в нашей базе: 1151

Объявление снято с публикации

Ипотечный калькулятор

лет
%
Сумма кредита
1580000 ₽
Платеж
22 540 ₽

История предложений в этом доме

объявление снято с публикации в продаже комнат площадь этаж цена,
Екатеринбург, ул. Уральская, 6 (Пионерский) - фото квартиры 7 мая 2024 90 дн. 1 34 4/9 4 100 000
Екатеринбург, ул. Уральская, 6 (Пионерский) - фото квартиры 25 июня 2023 90 дн. 2 40 9/9 3 200 000
Екатеринбург, ул. Уральская, 6 (Пионерский) - фото квартиры 24 мая 2023 90 дн. 2 40 9/9 3 150 000
28 июня 2023 90 дн. 2 27 8/9 3 200 000
22 августа 2020 90 дн. 1 33 8/9 2 150 000
Екатеринбург, ул. Уральская, 6 (Пионерский) - фото квартиры 3 июня 2020 90 дн. 1 32 7/9 2 490 000
Екатеринбург, ул. Уральская, 6 (Пионерский) - фото квартиры 26 февраля 2020 90 дн. 2 41 8/9 3 290 000
Екатеринбург, ул. Уральская, 6 (Пионерский) - фото квартиры 11 февраля 2020 90 дн. 1 32.5 3/9 2 570 000
Екатеринбург, ул. Уральская, 6 (Пионерский) - фото квартиры 3 апреля 2020 90 дн. 1 32.5 3/9 2 650 000
Екатеринбург, ул. Уральская, 6 (Пионерский) - фото квартиры 15 декабря 2019 90 дн. 1 25 5/9 1 800 000
23 апреля 2019 90 дн. 2 40.3 6/9 2 770 000
27 августа 2017 122 дн. 2 39 9/9 2 140 000

Новостройки Екатеринбург, мкр-н. Пионерский

Приоритет

Увеличивает просмотры в 3 раза

Ваше объявление показывается в списке выше обычных объявлений. подключить