На Метре реклама - только нормальная. Никакого шок-контента.
Помогайте независимому ресурсу, как он помогает вам. Удачи!
Новостройки Котт. посёлки Объявления Динамика цен и сделок

Продажа квартиры: Екатеринбург, ул. Ломоносова, 22 (Уралмаш)

  • опубликовано 13.05.2020 , обновлено 27.11.2025
  • 90
Кадастровый номер:66:41:0106108:1700
Рынок:вторичный
Срок сдачи: 1951 года
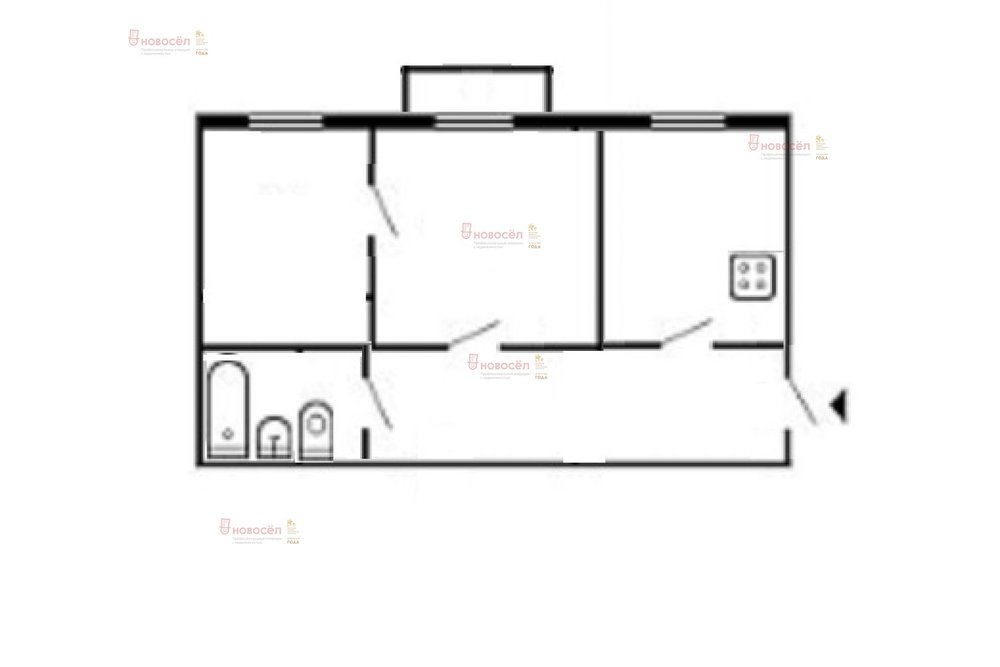
Количество комнат:2
Общая площадь:48 м2
Жилая площадь:26 м2
Площадь кухни:8 м2
Этаж/Этажность дома:3 / 3
Санузел:совмещенный
Отделка:евроремонт
Год постройки:1951
Состояние:хорошее
Цена:
2 780 000
Объявление снято с публикации
Коммунальные платежи:оплачиваются отдельно
Ипотека:возможна

Объект № 124535. Отличная двухкомнатная квартира хорошей площади, две смежные комнаты, большая кухня, просторный совмещенный санузел с огромной угловой ванной.
Кирпичный дом, поэтому квартира очень теплая. Дружные хорошие соседи
В квартире сделан капитальный ремонт, выровнены все стены, поменяна вся сантехника, трубы, установлены качественные стеклопакеты, новая сейф-дверь. Есть балкон выходящий во двор.
Спокойный район Уралмаша, весь транспорт, рядом садики, школы, ТЦ «Дом».
Обременений нет, ипотека возможна. Если Ваша недвижимость не продана, быстро найдем покупателя!
***Гарантийный сертификат «Защита собственности» по данному объекту в подарок***

Объявление снято с публикации

Ипотечный калькулятор

лет
%
Сумма кредита
2780000 ₽
Платеж
22 540 ₽

Актуальные предложения в этом доме

  • 2-к квартира, Ломоносова, 22

    • 47.7 м2
    • 3/3 этаж
    • Состояние:
    4 500 000 ₽ (94300 ₽/м2)
    Объект № 195930. Окна квартиры выходят во двор. Этаж последний и, при этом, есть еще технический этаж сверху. Установлены счетчики на воду и электричество. Стояки водоснабжения и канализации заменены. Окна пластиковые. Радиаторы отопления заменены на современные. В собственности квартира более 5 лет. Приобреталась за наличные по договору купли продажи. Зарегистрированные лица отсутствуют. Показываем по договоренности. ***Гарантийный сертификат «Защита собственности» по данному объекту в подарок***
    размещено: 26.11.2025

История предложений в этом доме

объявление снято с публикации в продаже комнат площадь этаж цена,
Екатеринбург, ул. Ломоносова, 22 (Уралмаш) - фото квартиры 1 февраля 2023 90 дн. 1 35 2/3 2 990 000
Екатеринбург, ул. Ломоносова, 22 (Уралмаш) - фото квартиры 25 марта 2021 90 дн. 2 46.3 2/3 3 000 000
Екатеринбург, ул. Ломоносова, 22 (Уралмаш) - фото квартиры 3 августа 2021 90 дн. 2 48 3/3 2 650 000
Екатеринбург, ул. Ломоносова, 22 (Уралмаш) - фото квартиры 21 декабря 2020 90 дн. 2 51 2/3 2 780 000
Екатеринбург, ул. Ломоносова, 22 (Уралмаш) - фото квартиры 2 февраля 2022 90 дн. 2 51 2/3 2 850 000
2 мая 2019 90 дн. 2 46 1/3 2 650 000

Похожие предложения о продаже квартир в Екатеринбурге (Уралмаш)

  • 2-к квартира, Молодежи, 48

    • 40.2 м2
    • 1/3 этаж
    • Состояние: хорошее
    3 600 000 ₽ (89600 ₽/м2)
    Продаётся двухкомнатная квартира , в районе Уралмаша. Частично выполнен косметический ремонт. Комнаты на разные стороны дома. В квартире - установлены натяжные потолки. Низкие коммунальные платежи. ID объекта в нашей базе: 12290
    размещено: 05.11.2025 , обновлено: 22.11.2025
  • 2-к квартира, Машиностроителей, 59

    • 44 м2
    • 2/5 этаж
    • Состояние: удовлетворительное
    3 600 000 ₽ (81800 ₽/м2)
    Продаем Двухкомнатную квартиру в кирпичном доме второй этаж балкон. Квартира подготовлена под капитальный ремонт. Везде установлены пластиковые окна и качественная сейф дверь. Обои сняты. Отличный вариант кто планирует сделать ремонт по себя. ID объекта в нашей базе: 4806
    размещено: 27.10.2025 , обновлено: 26.11.2025
  • 2-к квартира, Кировградская, 51/а

    • 46 м2
    • 3/5 этаж
    • Состояние: удовлетворительное
    3 300 000 ₽ (71700 ₽/м2)
    Объект № 192451. Срочно продам двухкомнатную квартиру на Уралмаше. Квартира теплая, светлая, с изолированными комнатами на разные стороны. Комфортный 3 этаж. Рядом с домом расположены магазины, детский сад во дворе, в шаговой доступности школа, остановки общественного транспорта, парк Победы, лыжная база. ***Гарантийный сертификат «Защита собственности» по данному объекту в подарок***
    размещено: 16.06.2025 , обновлено: 26.11.2025
  • 2-к квартира, Ломоносова, 157

    • 40.6 м2
    • 1/4 этаж
    • Состояние: удовлетворительное
    3 480 000 ₽ (85700 ₽/м2)
    Теплая, светлая квартира, высокий этаж, чистый подъезд, после кап ремонта, хорошие соседи. Удачное расположение дома, до метро 10 мин, ост транспорта рядом, школа, детский сад, торговые центры МЕТРО, ВЕЕРМОЛ, фитнес, спортивные комплексы. ID объекта в нашей базе: 959
    размещено: 13.03.2025 , обновлено: 17.11.2025
  • 2-к квартира, Ильича, 71Б

    3 350 000 ₽ (77900 ₽/м2)
    Срочно продаётся 2х комнатная квартира у метро. Вы всегда сможете легко передвигаться по городу. Также рядом остановки другого вида транспорта. Рядом находится ТЦ Омега, а также всё что нужно для комфортной и активной жизни. Тихий двор, наличие детской площадки и наземной парковки. Квартира в удовлетворительном состоянии. Но и продаётся не ремонт а квадратные метры. Записывайтесь на просмотр и увидите сами. Ипотеку рассматриваем. Помогу одобрить ипотеку под выгодный процент и продать вашу недвижимость. Звоните!!!
    размещено: 02.10.2021 , обновлено: 24.11.2025

Новостройки Екатеринбург, мкр-н. Уралмаш

Приоритет

Увеличивает просмотры в 3 раза

Ваше объявление показывается в списке выше обычных объявлений. подключить