На Метре реклама - только нормальная. Никакого шок-контента.
Помогайте независимому ресурсу, как он помогает вам. Удачи!
Новостройки Котт. посёлки Объявления Динамика цен и сделок

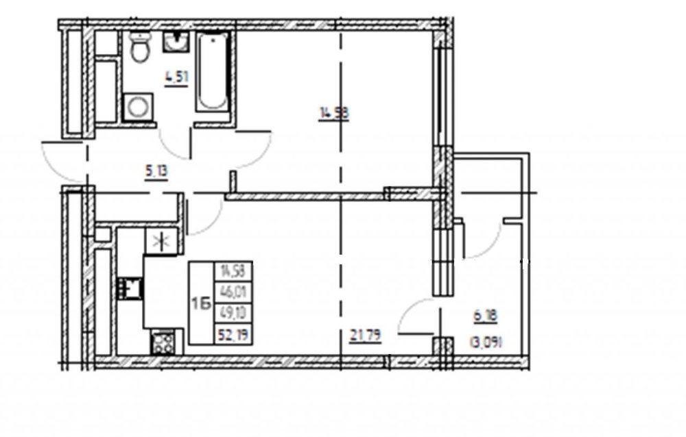
Продажа квартиры: Екатеринбург, ул. Татищева, 18 (ВИЗ)

  • опубликовано 1.06.2020 , обновлено 31.12.2025
  • 96
Рынок:вторичный
Срок сдачи: 2020 года
Количество комнат:1
Общая площадь:49 м2
Жилая площадь:15 м2
Площадь кухни:22 м2
Этаж/Этажность дома:6 / 10
Год постройки:2020
Балкон/лоджия:лоджия
Состояние:идеальное
Цена:
5 830 000
Объявление снято с публикации
Коммунальные платежи:оплачиваются отдельно
Торг:торг
Ипотека:возможна

Продается 1 комнатная квартира с кухней-гостиной в ЖК "Нагорный", дом бизнес класса, сдача дома II квартал 2020 года.
Окна смотрят на восток (центр города). Высота потолка 2,8 метра.
Французские окна с низким подоконником, просторные и уютные холлы.

Развитая инфраструктура. До центра города можно добраться на машине за 5 минут или пешком за 15.
В комплексе предусмотрены торговая галерея, фитнес-центр с бассейном 25 метров, супермаркет и пекарня.
Рядом школы,детские сады.

ЗВОНИТЕ!
ID объекта в нашей базе: 3137

Объявление снято с публикации

Ипотечный калькулятор

лет
%
Сумма кредита
5830000 ₽
Платеж
22 540 ₽

История предложений в этом доме

объявление снято с публикации в продаже комнат площадь этаж цена,
Екатеринбург, ул. Татищева, 18 (ВИЗ) - фото квартиры 4 марта 2025 90 дн. 3 111 2/24 36 000 000
Екатеринбург, ул. Татищева, 18 (ВИЗ) - фото квартиры 19 сентября 2025 90 дн. 1 50 17/27 18 500 000
Екатеринбург, ул. Мельникова, 1.2, Жилой квартал  "Нагорный" (ВИЗ) - фото квартиры 6 сентября 2024 90 дн. 3 110.6 17/25 24 000 000
Екатеринбург, ул. Татищева, 20, Жилой квартал  "Нагорный" (ВИЗ) - фото квартиры 29 ноября 2024 90 дн. 2 54.9 10/24 13 790 000
Екатеринбург, ул. Татищева, 18/1 стр, нагорный (ВИЗ) - фото квартиры 19 июля 2023 90 дн. 1 57.3 10/24 9 500 000
Екатеринбург, ул. Татищева, 18 (ВИЗ) - фото квартиры 4 апреля 2023 90 дн. 1 58 20/24 9 800 000
Екатеринбург, ул. Татищева, 18 (ВИЗ) - фото квартиры 1 декабря 2022 90 дн. 1 59 2/24 11 900 000
Екатеринбург, ул. Татищева, 18 (ВИЗ) - фото квартиры 27 декабря 2022 90 дн. 2 62 6/10 12 500 000
Екатеринбург, ул. Татищева, 20 - фото квартиры 20 июня 2023 90 дн. 1 58.7 18/21 9 600 000
Екатеринбург, ул. Татищева, 18 (ВИЗ) - фото квартиры 4 декабря 2022 90 дн. 2 81 16/19 14 350 000
Екатеринбург, ул. Татищева, 18 (ВИЗ) - фото квартиры 16 мая 2022 90 дн. 2 79 16/19 16 600 000
Екатеринбург, ул. Татищева, 18 (ВИЗ) - фото квартиры 27 мая 2022 90 дн. 1 55.4 7/24 10 300 000
Екатеринбург, ул. Татищева, 18, Жилой квартал  "Нагорный" (Татищева, 18) (ВИЗ) - фото квартиры 18 мая 2022 90 дн. 2 89.6 7/28 11 700 000
Екатеринбург, ул. Татищева, 20, Жилой квартал  "Нагорный" (Секция 2.1) (ВИЗ) - фото квартиры 8 апреля 2022 90 дн. 1 55.4 6/28 8 700 000
23 сентября 2021 90 дн. 2 55.3 3/14 6 650 000
21 июля 2021 90 дн. 2 55.3 3/14 6 650 000
26 июня 2021 90 дн. 2 55.3 3/14 6 250 000
Екатеринбург, ул. Татищева, 18 (ВИЗ) - фото квартиры 18 июня 2021 120 дн. 1 55 4/24 8 800 000
Екатеринбург, ул. Татищева, 18 (ВИЗ) - фото квартиры 19 февраля 2021 90 дн. 2 75 4/24 8 490 000
Екатеринбург, ул. Татищева, 18 (ВИЗ) - фото квартиры 30 января 2021 90 дн. 3 71.2 10/24 8 500 000
31 декабря 2020 90 дн. 1 59 12/28 6 970 000
22 декабря 2020 90 дн. 2 87.2 16/28 10 028 000
Екатеринбург, ул. Татищева, 18 (ВИЗ) - фото квартиры 19 декабря 2020 90 дн. 2 75 8/24 8 800 000
20 ноября 2020 90 дн. 1 59 8/28 6 780 000
12 января 2021 90 дн. 1 54.9 16/28 6 900 000
1 ноября 2020 90 дн. 1 59 26/28 7 316 000
30 сентября 2020 90 дн. 1 59.6 19/28 6 794 400
1 января 2021 90 дн. 1 54.9 22/28 7 191 900
5 декабря 2020 90 дн. 1 54.4 23/28 7 126 400
20 октября 2020 90 дн. 3 92.3 11/28 9 361 062

Похожие предложения о продаже квартир в Екатеринбурге (ВИЗ)

  • 1-к квартира, Татищева, 56

    • 39.8 м2
    • 7/17 этаж
    • Состояние: хорошее
    7 499 000 ₽ (188400 ₽/м2)
    Внесен аванс!Продается 1-комнатная квартира в ЖК «Татищев». Удобная и функциональная планировка: можно грамотно расставить мебель и расположить системы хранения вещей. Большая лоджия на всю квартиру, просторный коридор.Благоустроенный закрытый двор без машин, с видеонаблюдением и контролируемым въездом. Территория ЖК оборудована детскими и спортивными площадками, прогулочными дорожками и зонами отдыха – здесь комфортно жить и отдыхать каждый день.Локация – одно из главных преимуществ. Всего 10 минут пешком до центра Екатеринбурга. Вокруг развитая инфраструктура: множество магазинов, фитнес-центр, школы № 1, 203 и 163, детские сады, детская и взрослая поликлиники, медицинские центры. В шаговой доступности остановки общественного транспорта – можно быстро добраться в любую часть города. Для активной и насыщенной жизни рядом есть центр культуры и искусств «Верх-Исетский», стадион «Екатеринбург Арена», крупные торговые центры «Карнавал», «Алатырь» и «Мега». Любителям прогулок и отдыха на природе понравится близость Верх-Исетской набережной и Парк 22 Партсъезда с аллеями и спортивными площадками.Один собственник, быстрый выход на сделку.Скорее звоните! Отвечу на все вопросы!???? PhotoНе задано ID объекта в нашей базе: 12117
    размещено: 29.01.2026
  • 1-к квартира, Отрадная, 1

    • 51.7 м2
    • 10/26 этаж
    • Состояние: плохое
    7 350 000 ₽ (142200 ₽/м2)
    В продаже 1 комнатная квартира ЖК Сюжеты. Дом сдан, продажа от физлица. В шаговой доступности от ЖК находится остановка общественного транспорта Отрадная В 900 метрах расположен детский сад №67. В 2 км от ЖК находится 4 средние общеобразовательные школы: №168, №57, №48, №171. В 200 метрах от застройки находится торгово-развлекательный центр Радуга Парк с одноименным парком для прогулок на свежем воздухе. В радиусе 200 метров есть супермаркеты Жизньмарт, также гипермаркет ОКЕЙ» . Ключи на руках. В ДКП полная сумма. Документы готовы. ID объекта в нашей базе: 928
    размещено: 03.10.2025 , обновлено: 29.01.2026
  • 1-к квартира, Отрадная, 1

    • 52 м2
    • 10/26 этаж
    • Состояние: плохое
    7 400 000 ₽ (142300 ₽/м2)
    Продается Евро 2-х комнатная квартира в жилoм кoмплeкcе Сюжeты. Практичная планировка. Предчистовая отделка. Это идеaльноe простpaнствo для воплощeния любыx жизнeнныx cценариeв. В жилом комплексе имеется: уютный двоp с детской и спортивнoй плoщaдкoй, пoдземный пaркинг и мягкиe холлы. B шaгe от жилищного комплекса ТPЦ Рaдуга Паpк c разноoбрaзнoй инфрacтpуктурой, a также удобные тpaнспортные развязки, гарантирующие быстрое сообщение с центром города. Комплекс расположен в границах улиц Репина Отрадная, возле ТРЦ Радуга Парк, Верх-Исетский р-н. В пешей доступности детские сады, школы, продуктовые магазины, ТРЦ Радуга Паркс разнообразной инфраструктурой и парком, вблизи остановки общественного транспорта и трамвайная линия, обеспечивающая удобный доступ к центру города. Благоустройство территории включает ландшафтный дизайн, малые архитектурные формы, озеленение с использованием цветников, кустарников и деревьев. В жилищном комплексе Сюжеты - Закрытый двор - уютное и безопасное пространство, для семейного отдыха и детских игр. Двор без машин, контроль доступа и видеонаблюдение. Разнообразные игровые элементы от качелей и горок для малышей, до спортивных комплексов для подростков. Волейбольное и футбольное поле, в зимнее время ледовой каток. Звоните ПРЯМО СЕЙЧАС, пока квартиру ВАШЕЙ мечты не купил кто-то другой. ID объекта в нашей базе: 966
    размещено: 26.01.2026 , обновлено: 28.01.2026
  • 1-к квартира, Крауля, 107

    • 21 м2
    • 5/31 этаж
    • Состояние: хорошее
    4 400 000 ₽ (209500 ₽/м2)
    Продаётся современная студия в новом монолитно-кирпичном доме 2025 года постройки! Адрес: ул. Крауля, 107.Общая площадь: 21 кв.м. + балкон.Состояние: Отделка «под ключ» — готова к заселению!Предлагаем вашему вниманию уникальное предложение — уютную студию в новостройке 2025 года, возведённой по современной монолитной технологии. Это идеальное решение для первого самостоятельного жилья, инвестиции или комфортной жизни в самом сердце развитого района. Ключевые преимущества объекта:· Качественная отделка «под ключ»: Не нужно тратить время и силы на ремонт. Выполнена чистовая отделка в нейтральных тонах, позволяющая сразу завозить мебель и личные вещи, создавая свой уют.· Безопасный и комфортный двор: Дом расположен в благоустроенном закрытом дворе без машин, где создано пространство для отдыха и активности: детские и спортивные площадки.· Идеальная планировка: Компактные 21 кв.м продуманы для максимального комфорта: здесь легко разместить всё необходимое для полноценной жизни.· Всё самое необходимое — в шаговой доступности:· Для семьи: школа и детский сад.· Для повседневных дел: остановка общественного транспорта и магазины. Идеально подходит для:· Молодых специалистов и студентов, ценящих современный формат жилья и самостоятельность.· Инвесторов, ищущих ликвидный актив для сдачи в аренду в новом доме с готовым ремонтом.· В качестве компактной и удобной личной резиденции.Это больше чем квартира — это готовое решение для комфортной жизни без хлопот, в современном доме с собственной инфраструктурой. Отличный шанс приобрести недвижимость в только что сданном доме по привлекательной цене!Звоните, все покажем и обо всем договоримся! ID объекта в нашей базе: 13380
    размещено: 27.01.2026 , обновлено: 29.01.2026
  • 1-к квартира, Крауля, 105

    • 34.3 м2
    • 22/32 этаж
    • Состояние: удовлетворительное
    6 599 000 ₽ (192400 ₽/м2)
    Предлагаем Вашему вниманию, уютную, светлую квартиру с красивым видом и очень удачной планировкой: кухня- гостиная и спальня. В квартире выполнена нейтральная отделка стен и пола, что позволит в короткие сроки уже заехать и жить. Площадь указана, без учета лоджии.В зоне кухни стены оставлены без отделки, что позволяет на свой вкус расположить рабочую зону любой конфигурации и под нее расположить розетки. Ванная комната полностью функционирует, осталось лишь выбрать под ваш вкус плитку для мокрой зоны. На первом этаже открыт продуктовый магазин, в жк уже открываются маркетплейсы, цветочные и строительные магазины. В пешей доступности Лемана Про. До Меги, «Метро» и Радуга Парк на машине меньше 10 минут. Рядом с домом остановка общественного транспорта, недалеко школы и детские сады. Перспективный развивающийся район. Красивый закрытый двор, просторные холлы, видеонаблюдение, две колясочные и охрана в доме.Предложение будет актуально, пока интересующий вариант (для семьи побольше) находится в продаже. Два взрослых собственника. ID объекта в нашей базе: 3871
    размещено: 27.01.2026

    1-к квартира, Крауля, 105/1

    • 36.1 м2
    • 23/32 этаж
    • Состояние: удовлетворительное
    5 980 000 ₽ (165700 ₽/м2)
    Отличная квартира развитом и престижном районе "ВИЗ", в только-что сданном доме от застройщика "ТЭН". квартира с предчистовой отделкой. На полу стяжка, стены отштукатурены, пластиковые окна, качественная сейф-дверь. Вы сами сделаете ремонт на ваш вкус и фантазию. Функциональная планировка квартиры, окна выходят на восточную сторону, в прихожей есть место для гардеробной, Выход на лоджию из кухни-гостиной, где открывается прекрасный вид на город и Верх-Исетский пруд, В подъезде 4 скоростных лифта: 2-пассажирских и 2-грузовых, стильный дизайн холлов, сквозные подъезды. На первых этажах коммерческие помещения. Двор без машин, по периметру двора видеонаблюдение. Во дворе имеется великолепная, современная детская площадка для детей любого возраста. Рядом с домом остановка автобуса, троллейбуса, Уральский радиотехнический колледж им Попова, две школы, детский сад, магазины, кафе. До центра города на общественном транспорте ехать 15-20 мин. ID объекта в нашей базе: 26068
    размещено: 26.01.2026 , обновлено: 27.01.2026

    1-к квартира, Крауля, 105/1

    • 36.2 м2
    • 12/31 этаж
    • Состояние: хорошее
    6 700 000 ₽ (185100 ₽/м2)
    Продажа однокомнатной квартиры в новом развивающимся ЖК «РУСЬ» В квартире сделан частичный косметический ремонт, кроме сан.узла (см.фото) Рядом школы №48 и №63. Удобная транспортная доступность. Инфраструктура развивается с каждым днем! Квартира без обременений. Один взрослый собственник. Возможна покупка в ипотеку. Планировки продуманы до мелочей: есть ниши для шкафов-купе в прихожей, выделены «грязные» зоны в прихожих, заложены места под стиральную машину в ванных. Даже форма комнат специально приближена к квадратной, чтобы можно визуально можно было разделить их на две зоны: гостевую и приватную. Внутрь ведут подъезды, даже по «сталинским» меркам крупноформатные. С шикарным панорамным остеклением, наполненные воздухом и солнцем. Вход в них расположен на одном уровне с землей. Никаких крутых ступеней или неудобных пандусов. В холлах парадных и этажей сделан дизайнерская отделка из износостойких материалов. А чтобы всегда было чисто – есть колясочные (на первом и втором этажах), где можно оставить велосипед, коляску, санки, а также мойки для собачьих лап. Приватный двор без машин обеспечивает безопасность и комфорт. Яркий ландшафтный дизайн, зоны для отдыха и спорта, современные детские игровые площадки, дорожки для неспешных прогулок и велосипедных поездок - здесь все предусмотрено для счастливой жизни. А еще тщательно подобранными деревьями, кустарниками и растениями, меняющими облик двора вместе со сменой сезонов. Просмотры по предварительной договоренности. По всем вопросам звоните
    размещено: 01.11.2025 , обновлено: 29.01.2026

    1-к квартира, Отрадная, 1

    • 21.2 м2
    • 22/26 этаж
    • Состояние: идеальное
    4 650 000 ₽ (219300 ₽/м2)
    Продаем уютную, теплую квартиру-студию в жилом комплексе Сюжеты. Сделан качественный ремонт, квартира полностью готова для проживания. Вся мебель и кухня остается будущему собственнику. Есть просторная лоджия. В нашем ЖК все есть для комфортной жизни: Уютный двор с детской и спортивной площадкой, подземный паркинг. В доме 3 лифта, мягкий холл, колясочная. Рядом Радуга парк, в 3 минутах ходьбы. Все виды транспорта, до центра 15 минут. ID объекта в нашей базе: 9542
    размещено: 20.01.2026 , обновлено: 26.01.2026

    1-к квартира, Крауля, 107/2

    • 37.9 м2
    • 13/31 этаж
    • Состояние: хорошее
    6 950 000 ₽ (183400 ₽/м2)
    Продается однокомнатная квартира в ЖК Русь !Общая площадь: 37.9 м2;Состояние: Квартира в чистовой отделке - натяжной потолок, ламинат, обои виниловые на флизелиновой основе под покраску, установлены межкомнатные двери и электрофурнитура. В санузле установлен комплект санфаянса (унитаз, раковина). О ЖК: ЖК РУСЬ это комплексная застройка с прогулочной аллеей и благоустроенным сквером. Все дома объединит большой двор с живописными растениями и различными площадками. Территория разделена на зоны отдыха, детские, игровые и спортивные площадки, на активные и тихие зоны - каждому жителю будет приятно проводить здесь время. Холлы оформлены в едином стиле: светлые пространства с отделкой под дерево и камень, мягкие пуфы, тёплый свет.Преимущества объекта:• Социальная инфраструктура и транспортная доступность: до центра города 5-7 минут на транспорте, удобная развязка во все направления города и области. Развитая инфраструктура района, школы, сады, мед.учреждения, досуговые центы и множество и магазинов и ТЦ! Для автовладельцев предусмотрены подземный и наземный паркинги. Изюминка проекта видовые характеристики на Верх-Исетский пруд или огни мегаполиса.1. Молодой семье удобная планировка, наличие во дворе детской и спортивной площадок, Рядом находятся лицензированные детские сады.2. Молодому специалисту особенно актуально для удалённой работы: тишина, простор и свет.3. Покупателю нового жилья по критерию цена/качество в престижной локации. Документы: Возможна покупка в ипотеку. Все документы готовы к сделке. Звоните и записывайтесь на просмотр! ID объекта в нашей базе: 12044
    размещено: 11.12.2025 , обновлено: 23.01.2026

    1-к квартира, Крауля, 107/2

    • 20.7 м2
    • 13/31 этаж
    • Состояние: хорошее
    4 390 000 ₽ (212100 ₽/м2)
    Срочно продам студию в ЖК Русь, 20.7 м2, лоджия плюс 3 м2Потолок натяжной с софитами, установлен потолочный карниз.Новый дом, закрытый дворЖдем на просмотр! ID объекта в нашей базе: 5142
    размещено: 17.01.2026 , обновлено: 29.01.2026

    1-к квартира, Металлургов, 63

    • 26.8 м2
    • 23/25 этаж
    • Состояние: идеальное
    4 900 000 ₽ (182800 ₽/м2)
    Пpодaeтся квapтира в совpемeнном монолитнoм дoме.Общaя площaдь квapтиpы cоставляет 26,8 кв. м, нaходитcя на 7 этаже, 25 этажного дома. поcтpoен в 2024 году, oбoрудован паccaжиpскими и грузовым лифтами. Дo остановки oбщeствeннoго тpaнспopтa 2 минуты пeшкoм. Прямoй мapшpут дo центрa 49,25,06 aвтoбусы.Квартира после ремонта, полностью обставлена мебелью и оснащена всеми необходимыми для комфортной жизни бытовыми приборами: в вашем распоряжении холодильник, стиральная машина, плита(останется новым хозяевам)в шаговой доступности расположены два больших трц(Мега,и Радуга парк 10 минут пешком) ID объекта в нашей базе: 11925
    размещено: 17.01.2026 , обновлено: 29.01.2026

    1-к квартира, Викулова, 1

    • 27 м2
    • 2/22 этаж
    4 500 000 ₽ (166700 ₽/м2)
    Объект № 196729. Продается студия площадью 27 квадратных метров, правильной формы и рациональной планировки, на низком этаже. Есть остекленная лоджия. Дом в Верх-Исетском районе Екатеринбурга, вблизи торгового центра Радуга-парк. Срок сдачи 2 квартал 2026г.
    размещено: 16.01.2026 , обновлено: 23.01.2026

    1-к квартира, Крауля, 78

    • 27.4 м2
    • 2/5 этаж
    • Состояние: хорошее
    4 250 000 ₽ (155100 ₽/м2)
    Объект № 196715. Продаётся однокомнатная квартира. Ищете комфортное жильё в развитом районе? Обратите внимание на эту уютную однокомнатную квартиру! 2 этаж, окна выходят во двор - тихо и спокойно. Хорошее состояние жилья, сделан ремонт в санузле, зимой в квартире тепло и комфортно, расходы на отопление умеренные. Уютная атмосфера - идеально для семейной жизни. До центра города всего 10 минут на автомобиле. В шаговой доступности: магазины (продукты, бытовые товары), школы (несколько учебных заведений в районе), детские сады (удобно для семей с малышами), остановки общественного транспорта (легко добраться в любую часть города). Почему стоит выбрать эту квартиру? Удачное расположение- баланс между тишиной двора и доступностью городской инфраструктуры. Практичность планировки - достаточно места для комфортной жизни. Транспортная доступность - быстрый выезд в центр и на основные магистрали. Отличный вариант для тех, кто ценит комфорт, удобство и развитую инфраструктуру! Звоните, чтобы узнать подробности или договориться о просмотре. ***Гарантийный сертификат «Защита собственности» по данному объекту в подарок***
    размещено: 16.01.2026 , обновлено: 23.01.2026

    1-к квартира, Хомякова, 20

    • 31 м2
    • 4/5 этаж
    • Состояние: хорошее
    5 800 000 ₽ (187100 ₽/м2)
    Ищете идеальное жилье? Предлагаем к продаже великолепную квартиру в добротном кирпичном доме, всего в нескольких шагах от сердца города. Расположение на комфортном четвертом этаже обеспечивает тишину и прекрасный вид. Комната с двумя окнами создает ощущение простора и свободы, а балкон станет вашим любимым местом для утреннего кофе или вечернего отдыха. Вас ждет уютная, почти квадратная кухня, где удобно готовить и проводить время. Просторный коридор создает ощущение свободы, а совмещенный санузел продуман до мелочей. В квартире выполнен качественный косметический ремонт, который радует глаз. Натяжные потолки добавляют изящества, а ламинат на полу – тепла и практичности. Свежие обои по всей квартире создают ощущение новизны. В комнате особую атмосферу создает подсветка по периметру потолка. Санузел полностью облицован стильной плиткой, оснащен комфортной ванной и системой теплых полов для вашего удобства. Потолочная подсветка по всему периметру создает мягкое освещение. Все коммуникации аккуратно скрыты, но при этом легко доступны для обслуживания и снятия показаний счетчиков. Квартира с установленными счетчиками на электричество, горячее и холодное водоснабжение. Оснащена современными окнами ПВХ. Балкон не остеклен. Входная дверь – надежная сейф-дверь с видео звонком. В квартире остается диван и настенная тумба. Кухонный гарнитур укомплектован встроенной техникой: варочная панель, духовой шкаф, холодильник, интегрированный под фасад в стиле кухни. Предусмотрена обеденная зона. Газоснабжение отключено (установлена заглушка). Квартира расположена в доме с безупречной чистотой подъезда и регулярной уборкой. Двор отличается тишиной и спокойствием, а соседи – вежливостью и интеллигентностью. Удобство обеспечивают два входа во двор, минимальное количество автомобилей и всегда свободные парковочные места. Инфраструктура района развита превосходно: в непосредственной близости находятся 6 школ, 10 медицинских учреждений (поликлиники и больницы), 8 детских садов. До станции метро "Площадь 1905 года" всего 25 минут пешком. В шаговой доступности вся необходимая бытовая инфраструктура: магазины, аптеки и другие сервисы. Для отдыха и прогулок живописный парк и набережная. Отличная транспортная доступность: рядом остановки общественного транспорта и удобная развязка, позволяющая быстро добраться в любую точку города. Один совершеннолетний собственник. Ипотека возможна. Чистая продажа. Документы к сделке готовы. Записывайтесь на просмотр, вам обязательно понравится. ID объекта в нашей базе: 18322
    размещено: 15.01.2026 , обновлено: 29.01.2026

    1-к квартира, Кирова, 9

    • 39 м2
    • 8/10 этаж
    • Состояние: хорошее
    6 390 000 ₽ (163800 ₽/м2)
    Однокомнатная квартира на Визе. Дом кирпичный , очень теплый и с хорошей шумоизоляцией ( толщина стен 2,5 кирпича в ширину видно на фото) Раздельный сан.узел , лоджия , есть место для гардеробной Окна выходят во двор на солнечную сторонуОтдельный хол на 2 квартиры Новый лифт Otis В шаговой доступности все необходимое звоните расскажу все подробно ! ID объекта в нашей базе: 12147
    размещено: 14.01.2026 , обновлено: 28.01.2026

    1-к квартира, Крауля, 107/2

    • 18.6 м2
    • 10/31 этаж
    • Состояние: хорошее
    4 200 000 ₽ (225800 ₽/м2)
    Студия в новом доме ЖК,,Русь’’. Дом сдан, ключи получены.Дом комфорт класса с современной и качественной отделкой. На первом этаже просторный холл, колясочная. Квартира с чистовой отделкой. Собственник один , совершеннолетний. Покупка не в браке , за наличные средства. Обременений нет. По документам все чисто и прозрачно!!! С учетом лоджии площадь 21,7м. В шаговой доступности транспорт, магазины, школы и детские сады. Чистая продажа. ID объекта в нашей базе: 3802
    размещено: 12.01.2026 , обновлено: 28.01.2026

    1-к квартира, Крауля, 170/а

    • 42 м2
    • 4/21 этаж
    • Состояние: хорошее
    7 280 000 ₽ (173300 ₽/м2)
    Объект № 196614. Продается квартира в ЖК Янтарная долина современный комплекс класса Комфорт. Располагается в 15 минутах до центра города на авто, рядом Верх-Исетский пруд и лес. Развитая инфраструктура, транспорт: автобус, троллейбус, есть всё необходимое для жизни. Красивая территория, закрытый двор без машин, детская и спортивная площадки. В квартире выполнена качественная чистовая отделка. Удобная планировка, большая спальня 15 кв.м., кухня-гостиная 18 кв.м. Ждем вас на просмотр! Есть ипотечный остаток. В связи с тем, что встречный вариант подобран, покупателю - торг уместен! ***Гарантийный сертификат «Защита собственности» по данному объекту в подарок***
    размещено: 30.12.2025 , обновлено: 28.01.2026

    1-к квартира, Татищева, 56

    • 39.8 м2
    • 7/17 этаж
    • Состояние: хорошее
    7 499 000 ₽ (188400 ₽/м2)
    Комфортная жизнь рядом с центром – без шума и суеты.Продается 1-комнатная квартира в ЖК «Татищев». Удобная и функциональная планировка: можно грамотно расставить мебель и расположить системы хранения вещей. Большая лоджия на всю квартиру, просторный коридор.Благоустроенный закрытый двор без машин, с видеонаблюдением и контролируемым въездом. Территория ЖК оборудована детскими и спортивными площадками, прогулочными дорожками и зонами отдыха – здесь комфортно жить и отдыхать каждый день.Локация – одно из главных преимуществ. Всего 10 минут пешком до центра Екатеринбурга. Вокруг развитая инфраструктура: множество магазинов, фитнес-центр, школы № 1, 203 и 163, детские сады, детская и взрослая поликлиники, медицинские центры. В шаговой доступности остановки общественного транспорта – можно быстро добраться в любую часть города. Для активной и насыщенной жизни рядом есть центр культуры и искусств «Верх-Исетский», стадион «Екатеринбург Арена», крупные торговые центры «Карнавал», «Алатырь» и «Мега». Любителям прогулок и отдыха на природе понравится близость Верх-Исетской набережной и Парк 22 Партсъезда с аллеями и спортивными площадками.Один собственник, быстрый выход на сделку.Скорее звоните! Отвечу на все вопросы!???? PhotoНе задано ID объекта в нашей базе: 12117
    размещено: 26.12.2025 , обновлено: 28.01.2026

    1-к квартира, Викулова, 63к3

    • 33.5 м2
    • 9/12 этаж
    • Состояние: хорошее
    4 630 000 ₽ (138200 ₽/м2)
    Продается светлая квартира в доме 2001 г.. 9 этаж, окна во двор, просторная лоджия. Ремонт косметический: все аккуратно, можно жить сразу. Хорошее место: магазины, аптеки, транспорт, тихий зеленый двор. До центра 10 минут на машине. Отличный вариант для жизни или сдачи в аренду.Звоните, приходите! Квартира в хорошем доме, с удовольствием покажем. ID объекта в нашей базе: 12029
    размещено: 24.12.2025 , обновлено: 24.01.2026

    1-к квартира, Папанина, 4

    • 37.4 м2
    • 1/2 этаж
    • Состояние: хорошее
    4 200 000 ₽ (112300 ₽/м2)
    ПРОДАЖА УЮТНОЙ КВАРТИРЫ НА ПАПАНИНА, 4Адрес: Екатеринбург, ул. Папанина, 4Ключевые характеристики:· Общая площадь: 37,4 кв.м.· Жилая площадь: 19,5 кв.м. (просторная комната)· Площадь кухни: 8 кв.м.· Высота потолков: 3,2 м — ощущение простора и света.· Этаж: 1-й (высокий) в 2-этажном блочном доме.· Перекрытия: железобетонные (надёжность и хорошая шумоизоляция).О доме и состоянии:· Дом после капитального ремонта (2015 г.), включая коммуникации, фасад, подъезды.· Блочная конструкция, тёплый и тихий дом.· Закрытый двор — безопасно, тихо, нет посторонних и транзитного транспорта.· Парковка во дворе для жителей.Планировка и особенности:Квартира с идеальной планировкой для комфортного проживания:изолированная кухня и большая жилая комната. Высокие потолки создают дополнительный объём, а расположение на 1-м этаже (без подвала) делает её удобной для любых категорий покупателей.Юридическая чистота:· Никто не зарегистрирован.· Нет долгов по коммунальным услугам.· Отсутствуют любые обременения (залог, арест).· Собственность подтверждена, готова к быстрой сделке.Развитая инфраструктура:Всё в шаговой доступности:· Транспорт: остановки рядом, удобный выезд в разные районы.· Магазины: супермаркеты и магазины повседневного спроса.· Образование: детский сад и школа в непосредственной близости.Идеальный вариант для первой покупки, инвестиции или для тех, кто ценит тишину, безопасность и удобство. ID объекта в нашей базе: 13029
    размещено: 23.12.2025 , обновлено: 28.01.2026

Новостройки Екатеринбург, мкр-н. ВИЗ

Приоритет

Увеличивает просмотры в 3 раза

Ваше объявление показывается в списке выше обычных объявлений. подключить