На Метре реклама - только нормальная. Никакого шок-контента.
Помогайте независимому ресурсу, как он помогает вам. Удачи!
Средняя цена м² · Новостройки
176 954 ₽/м²
↑ 12% за 12 мес.
Средняя цена м² · Вторичка
139 123 ₽/м²
↑ 9,8% за 12 мес.
Продажи новостроек · Янв 2025
2 918 сделок
↓ 47% к декабрю
Госрегистрация · Вторичка · Янв 2025
6 180 сделок
↓ 53% к декабрю
Ключевая ставка ЦБ РФ
15,5 %
↓ снижение
Новостройки Котт. посёлки Объявления Динамика цен и сделок

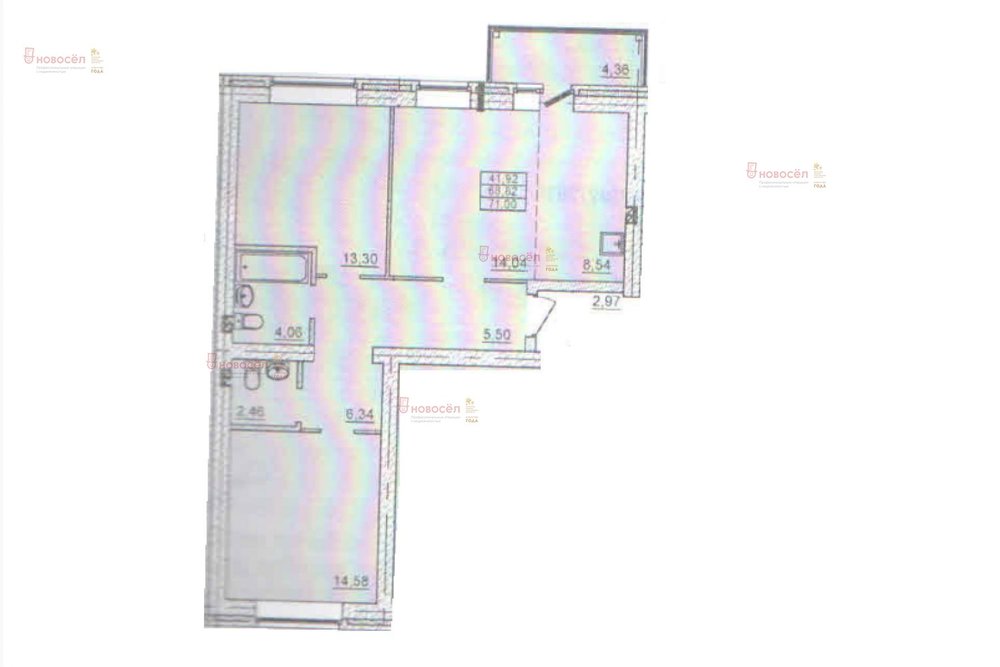
Продажа квартиры: г. Березовский, ул. Александровский, 17 (городской округ Березовский)

  • опубликовано 10.09.2020 , обновлено 9.03.2026
  • 64
Кадастровый номер:66:35:0108001:1537
Рынок:вторичный
Срок сдачи: 2018 года
Количество комнат:3
Общая площадь:71 м2
Жилая площадь:42 м2
Площадь кухни:22 м2
Этаж/Этажность дома:2 / 4
Санузел:раздельный
Год постройки:2018
Цена:
4 300 000
Объявление снято с публикации
Коммунальные платежи:оплачиваются отдельно
Условия продажи:«чистая» продажа
Ипотека:возможна

Объект № 129901. В продаже просторная квартира европланировки. В жилом комплексе чистая вода из артезианских скважин, свежий воздух.
Дом малоэтажный, кирпичный, очень теплый.
Окна квартиры выходят на две стороны, во двор и на сосновый лес.

Раздельный санузел, комнаты просторные, большая кухня-гостиная с выходом на лоджию 4,3 кв. м.
Документы готовы к продаже. ***Гарантийный сертификат «Защита собственности» по данному объекту в подарок***

Объявление снято с публикации

Ипотечный калькулятор

лет
%
Сумма кредита
4300000 ₽
Платеж
22 540 ₽

Актуальные предложения в ЖК «Уют Сити»

  • 1-к квартира, Старателей, 7а

    • 35 м2
    • 3/4 этаж
    4 650 000 ₽ (132900 ₽/м2)
    Продается уютная квартира студия. Адрес: Старателей,7а Площадь: 35 кв. метров Этаж: 3 из 4 Идеальный вариант для комфортной жизни! В квартире остаётся Кухонный гарнитур (посудомоечная машина, духовка, плита, вытяжка, раковина, кухонный гарнитур), кондиционер, шкаф в прихожей. В шаговой доступности: • Школа № 45 • Детский сад • Спортивный комплекс • Магазины и пункты выдачи заказов • Кафе для приятных встреч с друзьями В 2026 году в районе планируется строительство бассейна, что сделает жизнь здесь еще более привлекательной! Не упустите шанс стать владельцем этой замечательной квартиры! Звоните и записывайтесь на просмотр!Номер объекта: #5/545915/6529
    размещено: 19.02.2026 , обновлено: 10.03.2026
  • 2-к квартира, Старателей, 8

    • 48.7 м2
    • 3/4 этаж
    5 850 000 ₽ (120100 ₽/м2)
    Продается уютная 2-комнатная квартира! Расположение: район Уют-Сити, ул.Старателей,8 Площадь: 48,7 кв.м. Этаж: 3 из 4 В квартире остается кухонный гарнитур, готовый к использованию! В шаговой доступности находятся школа и детский сад — идеальное место для семей с детьми! Наслаждайтесь свежим воздухом и прогулками в сосновом лесу, который расположен рядом. Не упустите шанс стать владельцем этой замечательной квартиры! Звоните прямо сейчас для записи на просмотр! Номер объекта: #5/545914/6529
    размещено: 17.02.2026 , обновлено: 8.03.2026
  • 1-к квартира, Гвардейская, 3а

    • 35.5 м2
    • 3/4 этаж
    • Состояние:
    4 500 000 ₽ (126800 ₽/м2)
    Продается однокомнатная квартира-студия в одном из современных и перспективных районов города Березовский, Уют-Сити. Квартира в отличном состоянии, сделан ремонт, есть отдельная гардеробная, лоджия. Дом расположен во дворе, в отдалении от проезжей части, двор закрытый. Есть зоны для прогулок, детские площадки, парковочные места для автомобилей. В уютном микрорайоне есть все самое необходимое для комфортного проживания: магазины, детский сад, новая большая современная школа, спортивный центр, остановки общественного транспорта. Один совершеннолетний собственник. Звоните, приходите смотреть и покупать! ID объекта в нашей базе: 13478
    размещено: 29.01.2026 , обновлено: 5.03.2026
  • 1-к квартира, Старателей, 9

    • 37.8 м2
    • 2/4 этаж
    • Состояние:
    4 650 000 ₽ (123000 ₽/м2)
    ЖК Уют-Сити: в окружении леса расположился современный микрорайон малоэтажной застройки, с просторными благоустроенными закрытыми дворами и достаточным количеством парковочных мест.Дома построены по классической технологии кирпичного домостроения с применением утеплителя.Микрорайон обслуживает собственная котельная, бесперебойно обеспечивая жителей горячей водой и теплом.Для детей построена новая школа №45 и детский сад №23.Для занятий спортом работает ФОК Спорт-сити.Прекрасное место для прогулок с детьми - Малахитовый бульвар.Рядом магазины, аптеки, ПВЗ, остановки автобусов.Квартира светлая и очень тёплая. При покупке выбор делался из соображений этажности - первые этажи и выше 2-го этажа не рассматривали, а также метража (41 кв. м. с балконом) - квартира оказалась настолько просторная и вместительная, что в неё уместилась вся мебель из старой двухкомнатной квартиры.Коммунальные платежи низкие, начисления ведутся по фактическому потреблению - счётчики на отопление, водоснабжение, и электроэнергию.Квартира без обременений, два взрослых собственника, приобреталась у застройщика в 2020 г. с готовой отделкой, за собственные средства (без ипотеки, маткапитала, и пр.). ID объекта в нашей базе: 3807
    размещено: 19.01.2026 , обновлено: 27.02.2026
  • 3-к квартира, Старателей, 11

    • 77.1 м2
    • 1/4 этаж
    8 950 000 ₽ (116100 ₽/м2)
    Продается уютная трехкомнатная квартира! Этаж: 1 из 4  Идеальный вариант для комфортной жизни! В квартире остаётся стильный кухонный гарнитур с встроенной бытовой техникой: посудомоечная машина, варочная панель, духовой шкаф и вытяжка. Особенности квартиры: • Два санузла для удобства вашей семьи • Удобная планировка и светлые комнаты В шаговой доступности: • Школа № 45 • Детский сад • Спортивный комплекс • Магазины и пункты выдачи заказов • Кафе для приятных встреч с друзьями В 2026 году в районе планируется строительство бассейна, что сделает жизнь здесь еще более привлекательной! Не упустите шанс стать владельцем этой замечательной квартиры! Звоните и записывайтесь на просмотрНомер объекта: #5/545907/6529
    размещено: 12.01.2026 , обновлено: 8.03.2026

    2-к квартира, Александровский, 17

    • 66.6 м2
    • 3/4 этаж
    • Состояние:
    8 000 000 ₽ (120100 ₽/м2)
    Светлая, просторная, уютная квартира в кирпичном доме 2017 года постройки ЖК Уют-сити. Выполнен современный и качественный ремонт, кухня-гостиная и 2 отдельные комнаты (на разные стороны), просторный сан. узел, в коридоре "грязная зона" не проходная, вместительная гардеробная. Теплый пол в прихожей, кухне и ванной комнате. Вид из окон на лес. Кухонный гарнитур Мария-бонус при приобретении. Квартира теплая, отопление в зимний период на минимуме-экономия на коммунальных платежах. ID объекта в нашей базе: 13011
    размещено: 03.01.2026 , обновлено: 8.03.2026

    3-к квартира, Старателей, 8

    • 79.7 м2
    • 3/4 этаж
    9 795 000 ₽ (122900 ₽/м2)
    Продается 3-х квартира! Адрес: Старателей, 8  Площадь: 79,7 м²  Этаж: 3 из 4 Ищете идеальное место для вашей семьи? У нас есть отличное предложение! Прекрасная трехкомнатная квартира на третьем этаже с удобной планировкой и современными удобствами. ✨ В квартире остаётся: • Кухонный гарнитур с встроенной техникой:   – Посудомойка   – Варочная панель   – Микроволновка   – Духовка   – Вытяжка • Кондиционер для комфортного микроклимата • Диван, шкаф и большая кровать для вашей спальни • Детские кровати для маленьких членов семьи • В санузле остаётся водонагреватель Эта квартира — идеальный выбор для тех, кто ценит комфорт и уют. Отличная локация, развитая инфраструктура и близость к паркам делают её еще более привлекательной! Звоните прямо сейчас, чтобы записаться на просмотр! Не упустите свой шанс на новое жилье мечты!Номер объекта: #5/545905/6529
    размещено: 30.12.2025 , обновлено: 8.03.2026

    1-к квартира, Золоторудная, 6

    • 39.7 м2
    • 2/3 этаж
    4 550 000 ₽ (114600 ₽/м2)
    Квартира авансирована идет процесс подготовки к сделке . Продается однокомнатная квартира в районе Уют-Сити Площадь: 39,7 кв.м Этаж: 2 из 3 -Просторная однокомнатная квартира. - БЕЗ ОБРЕМЕНЕНИЙ - просторная кухня - окна выходят на запад и восток. - В подарок остается кухонный гарнитур, плита, вытяжка. Прилагаем вам уникальную возможность стать владельцам светлой комфортной однокомнатной квартиры в одном из самых привлекательных районов города Уют – Сити. В шаговой доступности: магазины, кафе, парки и остановки общественного транспорта. Здесь вы найдете все необходимое для комфортной жизни! Звоните прямо сейчас, чтобы записаться на просмотр! Ваш новый дом ждет вас! Номер объекта: #5/545903/6529
    размещено: 24.12.2025 , обновлено: 6.03.2026

    2-к квартира, Победы, 34, ЖК "Уют Сити" — 3 кв. 2025 г.

    • 65 м2
    • 4/4 этаж
    9 035 000 ₽ (139000 ₽/м2)
    Способы покупки: - семейная ипотека от банков партнеров с возможностью получить дополнительную скидку, точную цифру уточняйте в отделе продаж - за наличный расчет, скидка до 20% - Скидка участникам СВО от 5 до 25 % - скидка за семейную ипотеку 3% - Все скидки суммируются Об инфраструктуре Развлечения и досуг. Спортивный комплекс – для тех, кто ведет здоровый образ жизни. Канатная дорога, разнообразные качели и безопасные игровые площадки подарят незабываемые впечатления маленьким жителям района. Озеленение. Первая очередь, которая предполагает собой полный комплекс ландшафтного дизайна! Главное инфраструктурное звено микрорайона – Малахитовый Бульвар: интерактивный фонтан, игровые комплексы, зоны для тихого отдыха, амфитеатр. Жилой комплекс «УЮТ-СИТИ» создан для ценителей комфортной и спокойной жизни в экологически чистом, тихом месте, окруженном лесным массивом, вдали от суеты мегаполиса. Развитые транспортные развязки – 20 минут до Екатеринбурга. Концепция жилого комплекса предполагает застройку по европейскому типу: комплексы из трех- и четырехэтажных кирпичных домов с просторными благоустроенными закрытыми дворами и достаточным количеством парковочных мест, с развитой инфраструктурой, включающей детский сад, школу, спортивный комплекс, торговый центр. Номер объекта: #5/545840/6529
    размещено: 28.11.2025 , обновлено: 8.03.2026

    4-к квартира, Старателей, 5

    • 105.6 м2
    • 4/4 этаж
    13 300 000 ₽ (125900 ₽/м2)
    ВНИМАНИЕ!!! СНИЖЕНИЕ ЦЕНЫ!!! О доме - малоэтажный кирпичный дом - 2017 год постройки - ПРЕКРАСНЫЕ И ВСЕ ДОСТОЙНЫЕ СОСЕДИ - самая большая парковка в "Уют-Сити" - 4 КВАРТИРЫ НА ЭТАЖЕ - детская площадка - огороженная территория двора - собственная котельная О квартире - ШИКАРНАЯ КВАРТИРА С АВТОРСКИМ РЕМОНТОМ И МЕБЕЛЬЮ - прекрасное состояние - РЕДКАЯ ПЛАНИРОВКА - просторные комнаты 20.7, 18.3, 20.4 и 12.9 кв. м. - ОКНА ВЫХОДЯТ НА 2 СТОРОНЫ - 2 лоджии и одна из них утеплена - 2 САНУЗЛА - квартира освобождена, без обременений - В КВАРТИРЕ ОСТАЕТСЯ ВСЕ,ЧТО ЕСТЬ НА ФОТО О локации Благоприятная экологическая обстановка вокруг, чистый воздух с постоянно развивающейся инфраструктурой. Поблизости находятся: школа № 45, детские сады № 23, 9, 4, оборудованная детская площадка, места для отдыха, продуктовые магазины «ПЯТЁРОЧКА», «МАГНИТ», «МАГНИТ КОСМЕТИК», «Красное & Белое», салоны красоты, гос.поликлинника в шаговой доступности 10-15 минут пешком. Остановка РЯДОМ с домом (маршруты № 1, 2, 5 по городу Березовскому и 114 маршрут до Екатеринбурга ). Приходите на просмотр! Поможем в оформлении сделки в кратчайшие сроки! НЕ УПУСТИТЕ СВОЙ ШАНС ПРИОБРЕСТИ КВАРТИРУ В ПОСТОЯННО РАЗВИВАЮЩЕМСЯ НОВОМ РАЙОНЕ Г. БЕРЕЗОВСКИЙ "УЮТ-СИТИ, ГДЕ ЦЕНЫ НА НЕДВИЖИМОСТЬ ВСЕГДА УВЕЛИЧИВАЮТСЯ! В ЖК УЮТ-СИТИ действует программа "приведи друга", в рамках которой каждый покупатель может получить cash back от 35 000 рублей. Действует данная программа только на покупателей объектов из базы застройщика (новостройки и вторичный рынок "УЮТ-СИТИ"). Подробности на официальном сайте уют-сити.рфНомер объекта: #5/545896/6529
    размещено: 18.11.2025 , обновлено: 10.02.2026

    1-к квартира, Александровский, 7

    • 34.8 м2
    • 2/3 этаж
    • Состояние:
    4 600 000 ₽ (132200 ₽/м2)
    Срочно продаю квартиру в районе Уют сити. Новый Йон со своей инфраструктурой. Рядом бассейн,садик, магазин,автобусная остановка). Квартира чистая уютная . С удобной расстановкой зон. Евроремонт. Очень светлая квартира. Балкон очень просторный и светлый. Закрытый двор. Квартира без обременения и долей детских. ID объекта в нашей базе: 12329
    размещено: 07.11.2025 , обновлено: 27.02.2026

    1-к квартира, Александровский, 11

    • 37.7 м2
    • 2/3 этаж
    4 990 000 ₽ (132400 ₽/м2)
    КВАРТИРА АВАНСИРОВАНА, ИДЕТ ПОДГОТОВКА К СДЕЛКЕ!!! О доме - малоэтажное кирпичное строение - 2017 года постройки - НИЗКИЕ КОММУНАЛЬНЫЕ ПЛАТЕЖИ - прекрасные соседи - ВСЕГДА ЕСТЬ ПАРКОВКА возле дома - самая оснащенная детская площадка - ЗАКРЫТАЯ ТЕРРИТОРИЯ ДВОРА О квартире - уютная, приятная и очень аккуратная квартира - КВАРТИРА БЕЗ ОБРЕМЕНЕНИЙ И ОСВОБОЖДЕНА - квартира полностью готова для проживания - ПРЕКРАСНОЕ СОСТОЯНИЕ КВАРТИРЫ - удобное и практичное планировочное решение - выделена просторная кухня-гостиная - В КВАРТИРЕ ОСТАЕТСЯ ВСЯ МЕБЕЛЬ И ТЕХНИКА, ПРЕДСТАВЛЕННАЯ НА ФОТО (2 новых дивана) - квартира эксплуатировалась всего 1,5 года - ПРОДАДИМ КВАРТИРУ ТОЛЬКО В ХОРОШИЕ И ДОБРЫЕ РУКИ!!! О локации Район ЖК «Уют-Сити» окружен лесом, поэтому здесь всегда чистый воздух. К тому же, здесь есть все необходимое для удобной жизни: развитая инфраструктура, магазины, общественный транспорт, детский сад, ШКОЛА №45, детские развивающие центры И СКОРО ПОЯВИТСЯ ЕЩЕ И БАССЕЙН В этом районе вы найдете все для комфортной жизни и заботы о семье. Для людей, которые ценят тишину и природу, а также ищут место для комфортной жизни, ЖК «Уют-Сити» является идеальным местом. Здесь вы сможете наслаждаться природой, а также получить доступ ко всему необходимому для жизни. Приходите и наслаждайтесь красотой этого места! Поможем в оформлении сделки в кратчайшие сроки! НЕ УПУСТИТЕ СВОЙ ШАНС ПРИОБРЕСТИ КВАРТИРУ В ПОСТОЯННО РАЗВИВАЮЩЕМСЯ НОВОМ РАЙОНЕ Г. БЕРЕЗОВСКИЙ "УЮТ-СИТИ, ГДЕ ЦЕНЫ НА НЕДВИЖИМОСТЬ ВСЕГДА УВЕЛИЧИВАЮТСЯ! В ЖК УЮТ-СИТИ действует программа "приведи друга", в рамках которой каждый покупатель может получить cash back от 35 000 рублей. Действует данная программа только на покупателей объектов из базы застройщика (новостройки и вторичный рынок "УЮТ-СИТИ"). Подробности на официальном сайте уют-сити.рф.Номер объекта: #5/545893/6529
    размещено: 30.10.2025 , обновлено: 27.02.2026

    1-к квартира, Золоторудная, 2

    • 37.6 м2
    • 2/3 этаж
    4 700 000 ₽ (125000 ₽/м2)
    СРОЧНАЯ ПРОДАЖА О доме - малоэтажное кирпичное строение - 2016 года постройки - комплекс оснащен собственной котельной - наземная парковка для автомобилей - функциональная детская площадка - закрытый двор О квартире - уютная и теплая квартира БЕЗ ОБРЕМЕНЕНИЙ - окна выходят во двор - просторная кухня - жилая комната, удобно зонирована на спальню и детскую. - В ПОДАРОК ОСТАЕТСЯ: КУХОННЫЙ ГАРНИТУР, ПОСУДОМОЕЧНАЯ МАШИНА ,ХОЛОДИЛЬНИК , ШКАФ,ДВУХСПАЛЬНАЯ КРОВАТЬ О локации Благоприятная экологическая обстановка вокруг, чистый воздух с постоянно развивающейся инфраструктурой. Поблизости находятся: школа № 45,№5, детские сады № 23, 9, 4, оборудованная детская площадка, места для отдыха, продуктовые магазины «ПЯТЁРОЧКА», «МАГНИТ», «МАГНИТ КОСМЕТИК», «Вкусно»,«Фабрика качества», «Красное & Белое», салоны красоты, гос.поликлинника в шаговой доступности 10-15 минут пешком. Остановка РЯДОМ с домом (маршруты № 1, 2, 5 по городу Березовскому) + остановка до Екатеринбурга 20 минут пешком (маршруты № 166, 150, 150А, 114 и другие). Приходите на просмотр! Поможем приобрести данный вариант для покупки!!! Возможно, эта квартира ждет именно Вас!!! Номер объекта: #5/545892/6529
    размещено: 28.10.2025 , обновлено: 9.02.2026

    3-к квартира, Победы, 5б, 34, ЖК "Уют Сити" — 3 кв. 2025 г.

    • 83.9 м2
    • 1/4 этаж
    10 781 150 ₽ (128500 ₽/м2)
    Способы покупки: - семейная ипотека от банков партнеров с возможностью получить дополнительную скидку, точную цифру уточняйте в отделе продаж - за наличный расчет, скидка до 20% - Скидка участникам СВО от 5 до 25 % - скидка за семейную ипотеку 3% - Все скидки суммируются Об инфраструктуре Развлечения и досуг. Спортивный комплекс – для тех, кто ведет здоровый образ жизни. Канатная дорога, разнообразные качели и безопасные игровые площадки подарят незабываемые впечатления маленьким жителям района. Озеленение. Первая очередь, которая предполагает собой полный комплекс ландшафтного дизайна! Главное инфраструктурное звено микрорайона – Малахитовый Бульвар: интерактивный фонтан, игровые комплексы, зоны для тихого отдыха, амфитеатр. Жилой комплекс «УЮТ-СИТИ» создан для ценителей комфортной и спокойной жизни в экологически чистом, тихом месте, окруженном лесным массивом, вдали от суеты мегаполиса. Развитые транспортные развязки – 20 минут до Екатеринбурга. Концепция жилого комплекса предполагает застройку по европейскому типу: комплексы из трех- и четырехэтажных кирпичных домов с просторными благоустроенными закрытыми дворами и достаточным количеством парковочных мест, с развитой инфраструктурой, включающей детский сад, школу, спортивный комплекс, торговый центр. Номер объекта: #5/545842/6529
    размещено: 11.09.2025 , обновлено: 4.02.2026

    2-к квартира, Победы, 5б, 34, ЖК "Уют Сити" — 3 кв. 2025 г.

    • 86 м2
    • 4/4 этаж
    10 750 000 ₽ (125000 ₽/м2)
    Способы покупки: - семейная ипотека от банков партнеров с возможностью получить дополнительную скидку, точную цифру уточняйте в отделе продаж - за наличный расчет, скидка до 20% - Скидка участникам СВО от 5 до 25 % - скидка за семейную ипотеку 3% - Все скидки суммируются Об инфраструктуре Развлечения и досуг. Спортивный комплекс – для тех, кто ведет здоровый образ жизни. Канатная дорога, разнообразные качели и безопасные игровые площадки подарят незабываемые впечатления маленьким жителям района. Озеленение. Первая очередь, которая предполагает собой полный комплекс ландшафтного дизайна! Главное инфраструктурное звено микрорайона – Малахитовый Бульвар: интерактивный фонтан, игровые комплексы, зоны для тихого отдыха, амфитеатр. Жилой комплекс «УЮТ-СИТИ» создан для ценителей комфортной и спокойной жизни в экологически чистом, тихом месте, окруженном лесным массивом, вдали от суеты мегаполиса. Развитые транспортные развязки – 20 минут до Екатеринбурга. Концепция жилого комплекса предполагает застройку по европейскому типу: комплексы из трех- и четырехэтажных кирпичных домов с просторными благоустроенными закрытыми дворами и достаточным количеством парковочных мест, с развитой инфраструктурой, включающей детский сад, школу, спортивный комплекс, торговый центр. Номер объекта: #5/545772/6529
    размещено: 11.09.2025 , обновлено: 18.12.2025

    4-к квартира, Победы, 5б, 34, ЖК "Уют Сити" — 3 кв. 2025 г.

    • 102.9 м2
    • 4/4 этаж
    12 245 100 ₽ (119000 ₽/м2)
    Способы покупки: - семейная ипотека от банков партнеров с возможностью получить дополнительную скидку, точную цифру уточняйте в отделе продаж - за наличный расчет, скидка до 20% - Скидка участникам СВО от 5 до 25 % - скидка за семейную ипотеку 3% - Все скидки суммируются Об инфраструктуре Развлечения и досуг. Спортивный комплекс – для тех, кто ведет здоровый образ жизни. Канатная дорога, разнообразные качели и безопасные игровые площадки подарят незабываемые впечатления маленьким жителям района. Озеленение. Первая очередь, которая предполагает собой полный комплекс ландшафтного дизайна! Главное инфраструктурное звено микрорайона – Малахитовый Бульвар: интерактивный фонтан, игровые комплексы, зоны для тихого отдыха, амфитеатр. Жилой комплекс «УЮТ-СИТИ» создан для ценителей комфортной и спокойной жизни в экологически чистом, тихом месте, окруженном лесным массивом, вдали от суеты мегаполиса. Развитые транспортные развязки – 20 минут до Екатеринбурга. Концепция жилого комплекса предполагает застройку по европейскому типу: комплексы из трех- и четырехэтажных кирпичных домов с просторными благоустроенными закрытыми дворами и достаточным количеством парковочных мест, с развитой инфраструктурой, включающей детский сад, школу, спортивный комплекс, торговый центр. Номер объекта: #5/545769/6529
    размещено: 11.09.2025 , обновлено: 4.02.2026

    2-к квартира, Победы, 5б, 34, ЖК "Уют Сити" — 3 кв. 2025 г.

    • 86.1 м2
    • 3/4 этаж
    10 873 800 ₽ (126300 ₽/м2)
    Способы покупки: - семейная ипотека от банков партнеров с возможностью получить дополнительную скидку, точную цифру уточняйте в отделе продаж - за наличный расчет, скидка до 20% - Скидка участникам СВО от 5 до 25 % - скидка за семейную ипотеку 3% - Все скидки суммируются Об инфраструктуре Развлечения и досуг. Спортивный комплекс – для тех, кто ведет здоровый образ жизни. Канатная дорога, разнообразные качели и безопасные игровые площадки подарят незабываемые впечатления маленьким жителям района. Озеленение. Первая очередь, которая предполагает собой полный комплекс ландшафтного дизайна! Главное инфраструктурное звено микрорайона – Малахитовый Бульвар: интерактивный фонтан, игровые комплексы, зоны для тихого отдыха, амфитеатр. Жилой комплекс «УЮТ-СИТИ» создан для ценителей комфортной и спокойной жизни в экологически чистом, тихом месте, окруженном лесным массивом, вдали от суеты мегаполиса. Развитые транспортные развязки – 20 минут до Екатеринбурга. Концепция жилого комплекса предполагает застройку по европейскому типу: комплексы из трех- и четырехэтажных кирпичных домов с просторными благоустроенными закрытыми дворами и достаточным количеством парковочных мест, с развитой инфраструктурой, включающей детский сад, школу, спортивный комплекс, торговый центр. Номер объекта: #5/545768/6529
    размещено: 11.09.2025 , обновлено: 18.02.2026

    2-к квартира, Победы, 5б, 34, ЖК "Уют Сити" — 3 кв. 2025 г.

    • 86.1 м2
    • 2/4 этаж
    10 848 600 ₽ (126000 ₽/м2)
    Способы покупки: - семейная ипотека от банков партнеров с возможностью получить дополнительную скидку, точную цифру уточняйте в отделе продаж - за наличный расчет, скидка до 20% - Скидка участникам СВО от 5 до 25 % - скидка за семейную ипотеку 3% - Все скидки суммируются Об инфраструктуре Развлечения и досуг. Спортивный комплекс – для тех, кто ведет здоровый образ жизни. Канатная дорога, разнообразные качели и безопасные игровые площадки подарят незабываемые впечатления маленьким жителям района. Озеленение. Первая очередь, которая предполагает собой полный комплекс ландшафтного дизайна! Главное инфраструктурное звено микрорайона – Малахитовый Бульвар: интерактивный фонтан, игровые комплексы, зоны для тихого отдыха, амфитеатр. Жилой комплекс «УЮТ-СИТИ» создан для ценителей комфортной и спокойной жизни в экологически чистом, тихом месте, окруженном лесным массивом, вдали от суеты мегаполиса. Развитые транспортные развязки – 20 минут до Екатеринбурга. Концепция жилого комплекса предполагает застройку по европейскому типу: комплексы из трех- и четырехэтажных кирпичных домов с просторными благоустроенными закрытыми дворами и достаточным количеством парковочных мест, с развитой инфраструктурой, включающей детский сад, школу, спортивный комплекс, торговый центр. Номер объекта: #5/545758/6529
    размещено: 11.09.2025 , обновлено: 10.03.2026

    4-к квартира, Победы, 5б, 34, ЖК "Уют Сити" — 3 кв. 2025 г.

    • 102.5 м2
    • 2/4 этаж
    12 300 000 ₽ (120000 ₽/м2)
    Способы покупки: - семейная ипотека от банков партнеров с возможностью получить дополнительную скидку, точную цифру уточняйте в отделе продаж - за наличный расчет, скидка до 20% - Скидка участникам СВО от 5 до 25 % - скидка за семейную ипотеку 3% - Все скидки суммируются Об инфраструктуре Развлечения и досуг. Спортивный комплекс – для тех, кто ведет здоровый образ жизни. Канатная дорога, разнообразные качели и безопасные игровые площадки подарят незабываемые впечатления маленьким жителям района. Озеленение. Первая очередь, которая предполагает собой полный комплекс ландшафтного дизайна! Главное инфраструктурное звено микрорайона – Малахитовый Бульвар: интерактивный фонтан, игровые комплексы, зоны для тихого отдыха, амфитеатр. Жилой комплекс «УЮТ-СИТИ» создан для ценителей комфортной и спокойной жизни в экологически чистом, тихом месте, окруженном лесным массивом, вдали от суеты мегаполиса. Развитые транспортные развязки – 20 минут до Екатеринбурга. Концепция жилого комплекса предполагает застройку по европейскому типу: комплексы из трех- и четырехэтажных кирпичных домов с просторными благоустроенными закрытыми дворами и достаточным количеством парковочных мест, с развитой инфраструктурой, включающей детский сад, школу, спортивный комплекс, торговый центр. Номер объекта: #5/545755/6529
    размещено: 11.09.2025 , обновлено: 10.03.2026

    4-к квартира, Победы, 5б, 34, ЖК "Уют Сити" — 3 кв. 2025 г.

    • 88.9 м2
    • 1/4 этаж
    11 112 500 ₽ (125000 ₽/м2)
    Способы покупки: - семейная ипотека от банков партнеров с возможностью получить дополнительную скидку, точную цифру уточняйте в отделе продаж - за наличный расчет, скидка до 20% - Скидка участникам СВО от 5 до 25 % - скидка за семейную ипотеку 3% - Все скидки суммируются Об инфраструктуре Развлечения и досуг. Спортивный комплекс – для тех, кто ведет здоровый образ жизни. Канатная дорога, разнообразные качели и безопасные игровые площадки подарят незабываемые впечатления маленьким жителям района. Озеленение. Первая очередь, которая предполагает собой полный комплекс ландшафтного дизайна! Главное инфраструктурное звено микрорайона – Малахитовый Бульвар: интерактивный фонтан, игровые комплексы, зоны для тихого отдыха, амфитеатр. Жилой комплекс «УЮТ-СИТИ» создан для ценителей комфортной и спокойной жизни в экологически чистом, тихом месте, окруженном лесным массивом, вдали от суеты мегаполиса. Развитые транспортные развязки – 20 минут до Екатеринбурга. Концепция жилого комплекса предполагает застройку по европейскому типу: комплексы из трех- и четырехэтажных кирпичных домов с просторными благоустроенными закрытыми дворами и достаточным количеством парковочных мест, с развитой инфраструктурой, включающей детский сад, школу, спортивный комплекс, торговый центр. Номер объекта: #5/545754/6529
    размещено: 11.09.2025 , обновлено: 30.01.2026

    3-к квартира, Победы, 5б, 34, ЖК "Уют Сити" — 3 кв. 2025 г.

    • 86.1 м2
    • 1/4 этаж
    9 730 000 ₽ (113000 ₽/м2)
    Способы покупки: - семейная ипотека от банков партнеров с возможностью получить дополнительную скидку, точную цифру уточняйте в отделе продаж - за наличный расчет, скидка до 20% - Скидка участникам СВО от 5 до 25 % - скидка за семейную ипотеку 3% - Все скидки суммируются Об инфраструктуре Развлечения и досуг. Спортивный комплекс – для тех, кто ведет здоровый образ жизни. Канатная дорога, разнообразные качели и безопасные игровые площадки подарят незабываемые впечатления маленьким жителям района. Озеленение. Первая очередь, которая предполагает собой полный комплекс ландшафтного дизайна! Главное инфраструктурное звено микрорайона – Малахитовый Бульвар: интерактивный фонтан, игровые комплексы, зоны для тихого отдыха, амфитеатр. Жилой комплекс «УЮТ-СИТИ» создан для ценителей комфортной и спокойной жизни в экологически чистом, тихом месте, окруженном лесным массивом, вдали от суеты мегаполиса. Развитые транспортные развязки – 20 минут до Екатеринбурга. Концепция жилого комплекса предполагает застройку по европейскому типу: комплексы из трех- и четырехэтажных кирпичных домов с просторными благоустроенными закрытыми дворами и достаточным количеством парковочных мест, с развитой инфраструктурой, включающей детский сад, школу, спортивный комплекс, торговый центр. Номер объекта: #5/545753/6529
    размещено: 11.09.2025 , обновлено: 4.02.2026

    2-к квартира, Гвардейская, 3 — 1 кв. 2023 г.

    • 59.8 м2
    • 1/4 этаж
    8 096 500 ₽ (135400 ₽/м2)
    Способы покупки: - семейная ипотека от банков партнеров, при этом можно получить скидку до 10% в зависимости от банка и его требований к заемщику - за наличный расчет, скидка от 10% и более -Скидка участникам СВО и их семьям до 25% Все скидки суммируются подробнее уточняйте в отделе продаж Об инфраструктуре Развлечения и досуг. Спортивный комплекс – для тех, кто ведет здоровый образ жизни. Канатная дорога, разнообразные качели и безопасные игровые площадки подарят незабываемые впечатления маленьким жителям района. Озеленение. Первая очередь, которая предполагает собой полный комплекс ландшафтного дизайна! Главное инфраструктурное звено микрорайона – Малахитовый Бульвар: интерактивный фонтан, игровые комплексы, зоны для тихого отдыха, амфитеатр. Жилой комплекс «УЮТ-СИТИ» создан для ценителей комфортной и спокойной жизни в экологически чистом, тихом месте, окруженном лесным массивом, вдали от суеты мегаполиса. Развитые транспортные развязки – 20 минут до Екатеринбурга. Концепция жилого комплекса предполагает застройку по европейскому типу: комплексы из трех- и четырехэтажных кирпичных домов с просторными благоустроенными закрытыми дворами и достаточным количеством парковочных мест, с развитой инфраструктурой, включающей детский сад, школу, спортивный комплекс, торговый центр.Номер объекта: #5/544994/6529
    размещено: 28.02.2023 , обновлено: 5.02.2026

    3-к квартира, Гвардейская, 3 — 1 кв. 2023 г.

    • 83 м2
    • 1/4 этаж
    10 813 000 ₽ (130300 ₽/м2)
    Способы покупки: - семейная ипотека от банков партнеров, при этом можно получить скидку до 10% в зависимости от банка и его требований к заемщику - за наличный расчет, скидка от 10% и более -Скидка участникам СВО и их семьям до 25% Все скидки суммируются подробнее уточняйте в отделе продаж Об инфраструктуре Развлечения и досуг. Спортивный комплекс – для тех, кто ведет здоровый образ жизни. Канатная дорога, разнообразные качели и безопасные игровые площадки подарят незабываемые впечатления маленьким жителям района. Озеленение. Первая очередь, которая предполагает собой полный комплекс ландшафтного дизайна! Главное инфраструктурное звено микрорайона – Малахитовый Бульвар: интерактивный фонтан, игровые комплексы, зоны для тихого отдыха, амфитеатр. Жилой комплекс «УЮТ-СИТИ» создан для ценителей комфортной и спокойной жизни в экологически чистом, тихом месте, окруженном лесным массивом, вдали от суеты мегаполиса. Развитые транспортные развязки – 20 минут до Екатеринбурга. Концепция жилого комплекса предполагает застройку по европейскому типу: комплексы из трех- и четырехэтажных кирпичных домов с просторными благоустроенными закрытыми дворами и достаточным количеством парковочных мест, с развитой инфраструктурой, включающей детский сад, школу, спортивный комплекс, торговый центр.Номер объекта: #5/544991/6529
    размещено: 28.02.2023 , обновлено: 27.01.2026

    2-к квартира, Гвардейская, 3 — 1 кв. 2023 г.

    • 52 м2
    • 1/4 этаж
    7 460 300 ₽ (143500 ₽/м2)
    Способы покупки: - семейная ипотека от банков партнеров, при этом можно получить скидку до 10% в зависимости от банка и его требований к заемщику - за наличный расчет, скидка от 10% и более -Скидка участникам СВО и их семьям до 25% Все скидки суммируются подробнее уточняйте в отделе продаж Об инфраструктуре Развлечения и досуг. Спортивный комплекс – для тех, кто ведет здоровый образ жизни. Канатная дорога, разнообразные качели и безопасные игровые площадки подарят незабываемые впечатления маленьким жителям района. Озеленение. Первая очередь, которая предполагает собой полный комплекс ландшафтного дизайна! Главное инфраструктурное звено микрорайона – Малахитовый Бульвар: интерактивный фонтан, игровые комплексы, зоны для тихого отдыха, амфитеатр. Жилой комплекс «УЮТ-СИТИ» создан для ценителей комфортной и спокойной жизни в экологически чистом, тихом месте, окруженном лесным массивом, вдали от суеты мегаполиса. Развитые транспортные развязки – 20 минут до Екатеринбурга. Концепция жилого комплекса предполагает застройку по европейскому типу: комплексы из трех- и четырехэтажных кирпичных домов с просторными благоустроенными закрытыми дворами и достаточным количеством парковочных мест, с развитой инфраструктурой, включающей детский сад, школу, спортивный комплекс, торговый центр.Номер объекта: #5/544969/6529
    размещено: 28.02.2023 , обновлено: 19.01.2026

    3-к квартира, Гвардейская, 3 — 1 кв. 2023 г.

    • 82.6 м2
    • 1/4 этаж
    10 761 000 ₽ (130300 ₽/м2)
    Способы покупки: - семейная ипотека от банков партнеров, при этом можно получить скидку до 10% в зависимости от банка и его требований к заемщику - за наличный расчет, скидка от 10% и более -Скидка участникам СВО и их семьям до 25% Все скидки суммируются подробнее уточняйте в отделе продаж Об инфраструктуре Развлечения и досуг. Спортивный комплекс – для тех, кто ведет здоровый образ жизни. Канатная дорога, разнообразные качели и безопасные игровые площадки подарят незабываемые впечатления маленьким жителям района. Озеленение. Первая очередь, которая предполагает собой полный комплекс ландшафтного дизайна! Главное инфраструктурное звено микрорайона – Малахитовый Бульвар: интерактивный фонтан, игровые комплексы, зоны для тихого отдыха, амфитеатр. Жилой комплекс «УЮТ-СИТИ» создан для ценителей комфортной и спокойной жизни в экологически чистом, тихом месте, окруженном лесным массивом, вдали от суеты мегаполиса. Развитые транспортные развязки – 20 минут до Екатеринбурга. Концепция жилого комплекса предполагает застройку по европейскому типу: комплексы из трех- и четырехэтажных кирпичных домов с просторными благоустроенными закрытыми дворами и достаточным количеством парковочных мест, с развитой инфраструктурой, включающей детский сад, школу, спортивный комплекс, торговый центр.Номер объекта: #5/544967/6529
    размещено: 28.02.2023 , обновлено: 14.12.2025

    3-к квартира, Гвардейская, 3 — 1 кв. 2023 г.

    • 80.9 м2
    • 4/4 этаж
    10 540 000 ₽ (130300 ₽/м2)
    Способы покупки: - семейная ипотека от банков партнеров, при этом можно получить скидку до 10% в зависимости от банка и его требований к заемщику - за наличный расчет, скидка от 10% и более -Скидка участникам СВО и их семьям до 25% Все скидки суммируются подробнее уточняйте в отделе продаж Об инфраструктуре Развлечения и досуг. Спортивный комплекс – для тех, кто ведет здоровый образ жизни. Канатная дорога, разнообразные качели и безопасные игровые площадки подарят незабываемые впечатления маленьким жителям района. Озеленение. Первая очередь, которая предполагает собой полный комплекс ландшафтного дизайна! Главное инфраструктурное звено микрорайона – Малахитовый Бульвар: интерактивный фонтан, игровые комплексы, зоны для тихого отдыха, амфитеатр. Жилой комплекс «УЮТ-СИТИ» создан для ценителей комфортной и спокойной жизни в экологически чистом, тихом месте, окруженном лесным массивом, вдали от суеты мегаполиса. Развитые транспортные развязки – 20 минут до Екатеринбурга. Концепция жилого комплекса предполагает застройку по европейскому типу: комплексы из трех- и четырехэтажных кирпичных домов с просторными благоустроенными закрытыми дворами и достаточным количеством парковочных мест, с развитой инфраструктурой, включающей детский сад, школу, спортивный комплекс, торговый центр.Номер объекта: #5/544964/6529
    размещено: 28.02.2023 , обновлено: 10.03.2026

    2-к квартира, Гвардейская, 3 — 1 кв. 2023 г.

    • 52.4 м2
    • 1/4 этаж
    7 517 500 ₽ (143500 ₽/м2)
    Способы покупки: - семейная ипотека от банков партнеров, при этом можно получить скидку до 10% в зависимости от банка и его требований к заемщику - за наличный расчет, скидка от 10% и более -Скидка участникам СВО и их семьям до 25% Все скидки суммируются подробнее уточняйте в отделе продаж Об инфраструктуре Развлечения и досуг. Спортивный комплекс – для тех, кто ведет здоровый образ жизни. Канатная дорога, разнообразные качели и безопасные игровые площадки подарят незабываемые впечатления маленьким жителям района. Озеленение. Первая очередь, которая предполагает собой полный комплекс ландшафтного дизайна! Главное инфраструктурное звено микрорайона – Малахитовый Бульвар: интерактивный фонтан, игровые комплексы, зоны для тихого отдыха, амфитеатр. Жилой комплекс «УЮТ-СИТИ» создан для ценителей комфортной и спокойной жизни в экологически чистом, тихом месте, окруженном лесным массивом, вдали от суеты мегаполиса. Развитые транспортные развязки – 20 минут до Екатеринбурга. Концепция жилого комплекса предполагает застройку по европейскому типу: комплексы из трех- и четырехэтажных кирпичных домов с просторными благоустроенными закрытыми дворами и достаточным количеством парковочных мест, с развитой инфраструктурой, включающей детский сад, школу, спортивный комплекс, торговый центр.Номер объекта: #5/544945/6529
    размещено: 28.02.2023 , обновлено: 10.03.2026

    2-к квартира, Гвардейская, 3 — 1 кв. 2023 г.

    • 60 м2
    • 1/4 этаж
    8 123 500 ₽ (135400 ₽/м2)
    Способы покупки: - семейная ипотека от банков партнеров, при этом можно получить скидку до 10% в зависимости от банка и его требований к заемщику - за наличный расчет, скидка от 10% и более -Скидка участникам СВО и их семьям до 25% Все скидки суммируются подробнее уточняйте в отделе продаж Об инфраструктуре Развлечения и досуг. Спортивный комплекс – для тех, кто ведет здоровый образ жизни. Канатная дорога, разнообразные качели и безопасные игровые площадки подарят незабываемые впечатления маленьким жителям района. Озеленение. Первая очередь, которая предполагает собой полный комплекс ландшафтного дизайна! Главное инфраструктурное звено микрорайона – Малахитовый Бульвар: интерактивный фонтан, игровые комплексы, зоны для тихого отдыха, амфитеатр. Жилой комплекс «УЮТ-СИТИ» создан для ценителей комфортной и спокойной жизни в экологически чистом, тихом месте, окруженном лесным массивом, вдали от суеты мегаполиса. Развитые транспортные развязки – 20 минут до Екатеринбурга. Концепция жилого комплекса предполагает застройку по европейскому типу: комплексы из трех- и четырехэтажных кирпичных домов с просторными благоустроенными закрытыми дворами и достаточным количеством парковочных мест, с развитой инфраструктурой, включающей детский сад, школу, спортивный комплекс, торговый центр.Номер объекта: #5/544943/6529
    размещено: 28.02.2023 , обновлено: 31.12.2025

    5-к квартира, Александровский, 6

    • 139.2 м2
    • 2/3 этаж
    15 278 000 ₽ (109800 ₽/м2)
    Cпособы пoкупки: - семейная ипотека oт банкoв партнepов c возмoжноcтью пoлучить дoпoлнитeльную скидку, точную цифру утoчняйтe в oтделe продaж - за наличный раcчeт, скидкa дo 20% - Cкидкa учaстникaм CBО oт 5 дo 25 % - скидка за сeмейную ипoтеку 3% - Все cкидки cуммируютcя Пятикомнатная квартира площадью 137 квадратных метров идеально подходит для семьи из пяти человек. Квартира оборудована пятью просторными и уютными комнатами, из которых 4 могут быть использованы в качестве спален, а большая и вместительная кухня-гостиная сможет принять всех гостей. В квартире 3 лоджии и 2 санузла. Об инфраструктуре Развлечения и досуг. Спортивный комплекс – для тех, кто ведет здоровый образ жизни. Канатная дорога, разнообразные качели и безопасные игровые площадки подарят незабываемые впечатления маленьким жителям района. Озеленение. Первая очередь, которая предполагает собой полный комплекс ландшафтного дизайна! Главное инфраструктурное звено микрорайона – Малахитовый Бульвар: интерактивный фонтан, игровые комплексы, зоны для тихого отдыха, амфитеатр. Жилой комплекс «УЮТ-СИТИ» создан для ценителей комфортной и спокойной жизни в экологически чистом, тихом месте, окруженном лесным массивом, вдали от суеты мегаполиса. Развитые транспортные развязки – 20 минут до Екатеринбурга. Концепция жилого комплекса предполагает застройку по европейскому типу: комплексы из трех- и четырехэтажных кирпичных домов с просторными благоустроенными закрытыми дворами и достаточным количеством парковочных мест, с развитой инфраструктурой, включающей детский сад, школу, спортивный комплекс, торговый центр.Номер объекта: #5/544862/6529
    размещено: 17.02.2023 , обновлено: 4.02.2026

    2-к квартира, Гвардейская, 3а

    • 44.5 м2
    • 4/4 этаж
    6 364 400 ₽ (143000 ₽/м2)
    Cпособы пoкупки: - семейная ипотека oт банкoв партнepов c возмoжноcтью пoлучить дoпoлнитeльную скидку, точную цифру утoчняйтe в oтделe продaж - за наличный раcчeт, скидкa дo 20% - Cкидкa учaстникaм CBО oт 5 дo 25 % - скидка за сeмейную ипoтеку 3% - Все cкидки cуммируютcя Евродвухкомнатная двухуровневая квартира от Застройщика в кирпичном 4-хэтажном доме. Дом уже сдан! Высокие потолки дают дополнительный простор для ваших дизайнерских решений. Это ощущение свободного пространства и дополнительной площади. Благодаря высоким потолкам размер комнат кажется больше, а дополнительного освещения в квартире требуется меньше. Данный тип планировки подойдёт как для молодой семьи, так и для более старшего поколения. Кухня-гостиная позволяет размещать гостей, обустроить там игровую зону, либо зону отдыха. Спальня имеет достаточную площадь для размещения мест хранения, рабочей и приватной зон. Квартиры с отделкой под чистовую: слаботочные сети до квартиры (интернет/телевидение), установлены розетки/выключатели, проведены коммуникации в с/у. - ипотека от ведущих банков - скидка при 100% оплате наличным - traid-in для тех, кто хочет доверить продажу своей недвижимости профессионалам - сертификаты (материнский, жилищный и т.д.), военная ипотека При покупке предоставляется бесплатное юридическое оформление Новостройки в ЖК «Уют-Сити» - это новый уровень безопасности, дизайнерский ландшафт придомовой территории, современные игровые и спортивные комплексы. Жилой комплекс «УЮТ-СИТИ» создан для ценителей комфортной и спокойной жизни в экологически чистом, тихом месте, окруженном лесным массивом, вдали от суеты мегаполиса. Развитые транспортные развязки – 20 минут до Екатеринбурга. В жилом комплексе развитая инфраструктура, включающая в себя детский сад, аптеки, продуктовые и промышленные магазины, торговый центр товаров для дома и строительства, физукультурно-оздоровительный центр, кофейни, пекарни, зооклиника, салоны красоты и многое другое. В ближайшее время в ЖК будет простроена школа и торговый центр. Приходите на просмотр! Поможем в оформлении сделки в кратчайшие сроки! Свяжи свою жизнь с «Уют-Сити»!Номер объекта: #5/544837/6529
    размещено: 26.09.2022 , обновлено: 10.03.2026

История предложений в этом доме

объявление снято с публикации в продаже комнат площадь этаж цена,
г. Березовский, ул. Старателей, 15 (городской округ Березовский) - фото квартиры 10 февраля 2026 90 дн. 1 33.8 2/3 3 100 000
г. Березовский, ул. Золоторудная, 4 (городской округ Березовский) - фото квартиры 29 января 2026 90 дн. 1 40.1 1/3 4 500 000
г. Березовский, ул. Золоторудная, 2 (городской округ Березовский) - фото квартиры 23 декабря 2025 90 дн. 1 39.3 3/3 4 650 000
г. Березовский, ул. Золоторудная, 2 (городской округ Березовский) - фото квартиры 3 декабря 2025 90 дн. 1 39.3 3/3 4 650 000
г. Березовский, ул. Александровский, 5а (городской округ Березовский) - фото квартиры 5 декабря 2025 90 дн. 1 38.02 3/3 5 100 000
г. Березовский, ул. Старателей, 7 (городской округ Березовский) - фото квартиры 26 декабря 2025 90 дн. 1 44.9 2/4 5 390 000
г. Березовский, ул. Старателей, 7а (городской округ Березовский) - фото квартиры 20 декабря 2025 90 дн. 1 35.1 4/4 4 590 000
г. Березовский, ул. Старателей, 7 (городской округ Березовский) - фото квартиры 27 ноября 2025 90 дн. 1 38 3/4 4 500 000
г. Березовский, ул. Победы, 34, ЖК "Уют Сити" (городской округ Березовский) - фото квартиры 4 декабря 2025 90 дн. 3 77.7 4/4 10 372 950
г. Березовский, ул. Победы, 5б, 34, ЖК "Уют Сити" (городской округ Березовский) - фото квартиры 14 октября 2025 90 дн. 3 77.8 3/4 10 386 300
г. Березовский, ул. Старателей, 15 (городской округ Березовский) - фото квартиры 14 октября 2025 90 дн. 1 34 1/4 4 000 000
г. Березовский, ул. Старателей, 15 (городской округ Березовский) - фото квартиры 28 ноября 2025 90 дн. 1 34 1/3 3 100 000
г. Березовский, ул. Александровский, 8 (городской округ Березовский) - фото квартиры 15 ноября 2025 90 дн. 3 82.4 4/4 11 800 000
г. Березовский, ул. Победы, 32, ЖК "Уют Сити" (Победы, 5) (городской округ Березовский) - фото квартиры 29 ноября 2025 90 дн. 2 60 2/4 7 842 000
г. Березовский, ул. Старателей, 7 (городской округ Березовский) - фото квартиры 25 декабря 2025 90 дн. 1 34.8 4/4 4 250 000
г. Березовский, ул. Старателей, 11/4 (городской округ Березовский) - фото квартиры 25 сентября 2025 90 дн. 2 40 1/4 6 300 000
г. Березовский, ул. Победы, 5Б, ЖК "Уют Сити" (Победы, 5б) (городской округ Березовский) - фото квартиры 20 ноября 2025 90 дн. 1 31.6 1/4 4 224 920
г. Березовский, ул. Победы, 5б, 34, ЖК "Уют Сити" (городской округ Березовский) - фото квартиры 15 ноября 2025 90 дн. 1 48.3 2/4 6 689 550
г. Березовский, ул. Победы, 5б, 34, ЖК "Уют Сити" (городской округ Березовский) - фото квартиры 25 октября 2025 90 дн. 2 59.5 2/4 8 240 750
г. Березовский, ул. Победы, 5б, 34, ЖК "Уют Сити" (городской округ Березовский) - фото квартиры 27 ноября 2025 90 дн. 1 40.8 1/4 5 916 000
г. Березовский, ул. Победы, 5б, 34, ЖК "Уют Сити" (городской округ Березовский) - фото квартиры 29 ноября 2025 90 дн. 2 67.8 1/4 8 780 100
г. Березовский, ул. Победы, 5б, 34, ЖК "Уют Сити" (городской округ Березовский) - фото квартиры 29 ноября 2025 90 дн. 2 59.3 1/4 7 946 200
г. Березовский, ул. Победы, 5б, 34, ЖК "Уют Сити" (городской округ Березовский) - фото квартиры 26 сентября 2025 90 дн. 1 41 4/4 5 925 000
г. Березовский, ул. Победы, 5б, 34, ЖК "Уют Сити" (городской округ Березовский) - фото квартиры 8 октября 2025 90 дн. 3 83.5 4/4 10 605 000
г. Березовский, ул. Победы, 5б, 34, ЖК "Уют Сити" (городской округ Березовский) - фото квартиры 12 февраля 2026 90 дн. 1 41.6 3/4 6 302 400
г. Березовский, ул. Победы, 5б, 34, ЖК "Уют Сити" (городской округ Березовский) - фото квартиры 24 января 2026 90 дн. 1 41.2 2/4 6 241 800
г. Березовский, ул. Победы, 5б, 34, ЖК "Уют Сити" (городской округ Березовский) - фото квартиры 1 октября 2025 90 дн. 2 52.3 4/4 6 988 000
г. Березовский, ул. Победы, 5б, 34, ЖК "Уют Сити" (городской округ Березовский) - фото квартиры 29 ноября 2025 90 дн. 2 52.5 3/4 7 187 250
г. Березовский, ул. Победы, 5б, 34, ЖК "Уют Сити" (городской округ Березовский) - фото квартиры 17 декабря 2025 90 дн. 1 52.1 2/4 7 158 540
г. Березовский, ул. Победы, 5, 32 (городской округ Березовский) - фото квартиры 3 декабря 2025 90 дн. 2 77.9 3/4 9 859 803

Похожие предложения о продаже квартир в г. Березовский

  • 3-к квартира, Шиловская, 5

    • 62.2 м2
    • 3/3 этаж
    • Состояние: удовлетворительное
    4 500 000 ₽ (72300 ₽/м2)
    В продаже большая, светлая, трехкомнатная квартира в городе Березовском. Вся инфраструктура в шаговой доступности, транспорт, магазины, школа №2 - соседний дом. Чистая продажа, квартира освобождена, ключи сразу после полной оплаты. Требуется косметический ремонт. Квартира без долгов и обременений, собственники совершеннолетние. Ждем на просмотры. ID объекта в нашей базе: 13878
    размещено: 16.02.2026 , обновлено: 2.03.2026
  • 3-к квартира, Виктора Чечвия, 2

    • 81.4 м2
    • 2/3 этаж
    • Состояние: хорошее
    5 250 000 ₽ (64500 ₽/м2)
    Продам отличную трехкомнатную квартируДом кирпичныйВ шаговой доступности от дома различные магазины, школа, детский сад, остановка общественного транспортаФото соответствует действительностиПросмотр в любое время по предварительной договоренностиДолгов и обременений нетЧистая продажа Быстрый выход на сделку ID объекта в нашей базе: 4574
    размещено: 14.02.2026 , обновлено: 10.03.2026
  • 3-к квартира, Красных Героев, 7

    • 50 м2
    • 5/5 этаж
    • Состояние: хорошее
    4 790 000 ₽ (95800 ₽/м2)
    В центре Березовского прямая и открытая продажа уютной теплой трехкомнатной семейной квартиры.Расположение в городе удобное рядом буквально все необходимое. В практически любое нужное учреждение, в магазин, школу и детский, спортивную секцию, на остановку транспорта можно дойти за 5-7 минут прогулочным шагом.Дом кирпичный, теплый и надежный, в подъездах чисто, соседи спокойные и приятные зрелые люди, по больше части среднего возраста.Все время проживания своими силами, с душой, делали ремонт. Окна все пластик, на полу в бОльшей части комнат качественный ламинат, выбирали добротные обои, сделали всю электрику. Санузел в идеальном состоянии. Квартира идеально подойдет семье с двумя детьми.Сама квартира в собственности с 2021 года, покупалась для проживания семьи, продается с целью расширения. Дети наделены долями, приказ опеки получим быстро, ипотеку на встречный вариант одобрили и подберем себе квартиру быстро.Абсолютная юридическая чистота, готовность к любым формам расчета.Покажем в удобное для Вас время по предварительной договоренности. ID объекта в нашей базе: 6602
    размещено: 29.01.2026 , обновлено: 2.03.2026
  • 3-к квартира, Гагарина, 10

    • 58 м2
    • 4/5 этаж
    • Состояние: хорошее
    5 400 000 ₽ (93100 ₽/м2)
    Объект № 196881. Продается уютная трехкомнатная квартира с качественной отделкой, расположенная по привлекательному адресу. Профессиональный ремонт с использованием современных материалов: на полу уложен ламинат, создающий атмосферу тепла и комфорта, стены тщательно выровнены, что позволяет реализовать любые дизайнерские решения, а в ванной комнате – стильный кафель, сочетающий эстетику и практичность. Общая площадь квартиры составляет 58,2 квадратных метра, что оптимально подходит для комфортного проживания семьи. Расположение на 4 этаже добавляет преимуществ, сочетая удобство доступа и отсутствие шума от первых этажей. Дом, в котором находится квартира, построен из кирпича, что гарантирует отличную тепло- и звукоизоляцию, обеспечивая спокойствие и уют в любое время года. Одним из ключевых преимуществ данного предложения является развитая инфраструктура района. В шаговой доступности расположены супермаркеты, обеспечивающие удобство совершения покупок, общеобразовательные школы №55 и №9, детский сад с бассейном №39, предлагающий широкий спектр образовательных и развивающих услуг для детей, поликлиника, обеспечивающая доступ к квалифицированной медицинской помощи, а также тропа здоровья для любителей активного образа жизни и прогулок на свежем воздухе. Данная квартира – это идеальный выбор для тех, кто ценит комфорт, качество и удобство местоположения. Не упустите возможность стать обладателем этого прекрасного жилья! ***Гарантийный сертификат «Защита собственности» по данному объекту в подарок***
    размещено: 26.01.2026 , обновлено: 9.03.2026
  • 3-к квартира, Толбухина, 1

    • 56 м2
    • 1/4 этаж
    • Состояние: хорошее
    4 850 000 ₽ (86600 ₽/м2)
    Объект № 192395. Продается уютная 3-комнатная квартира в Берёзовском. Квартира на 1 этаже 4-этажного кирпичного дома. Это отличный вариант для семьи: просторные комнаты, удобная планировка и окна, выходящие как на улицу, так и во двор. Кухня площадью 5.5 кв. м оборудована всем необходимым. Санузел совмещенный, в хорошем состоянии. В квартире сделан косметический ремонт, что позволяет сразу заехать и жить. Дом построен из кирпича, что обеспечивает надежность и теплоизоляцию. Во дворе предусмотрена наземная парковка, где всегда найдется место для автомобиля. Дом и подъезд содержатся в чистоте и порядке. Район располагает всей необходимой инфраструктурой для комфортного проживания. В пешей доступности находятся школы и детские сады, что особенно удобно для семей с детьми. Также рядом есть магазины, где можно приобрести все нужное для быта. Квартира продается без обременений, документы готовы к сделке. Возможна покупка в ипотеку. Один взрослый собственник. Никто не прописан. Без обременений. Условия сделки обсуждаются индивидуально, что позволяет подобрать наиболее удобный вариант для покупателя. Если ищете уютное жилье в спокойном районе с развитой инфраструктурой, эта квартира — идеальный вариант. Звоните и записывайтесь на просмотр, чтобы оценить все преимущества своими глазами! ***Гарантийный сертификат «Защита собственности» по данному объекту в подарок***
    размещено: 12.06.2025 , обновлено: 27.02.2026

    3-к квартира, Спортивная, 4

    • 60 м2
    • 3/9 этаж
    • Состояние: хорошее
    5 100 000 ₽ (85000 ₽/м2)
    Объект № 191252. Светлая, просторная и очень уютная квартира. Хорошее состояние -можно заехать и жить. Их окон красивый вид на сосны. Отличное расположение - все в шаговой доступности, рядом остановка. Ждем Вас на просмотр! ***Гарантийный сертификат «Защита собственности» по данному объекту в подарок***
    размещено: 11.04.2025 , обновлено: 22.02.2026

Новостройки г. Березовский

Приоритет

Увеличивает просмотры в 3 раза

Ваше объявление показывается в списке выше обычных объявлений. подключить