На Метре реклама - только нормальная. Никакого шок-контента.
Помогайте независимому ресурсу, как он помогает вам. Удачи!
Новостройки Котт. посёлки Объявления Динамика цен и сделок

Продажа квартиры: Екатеринбург, ул. Автомагистральная, 5 (Новая Сортировка)

  • опубликовано 29.10.2020 , обновлено 24.08.2025
  • 84
Кадастровый номер:66:41:0204037:789
Рынок:вторичный
Срок сдачи: 1977 года
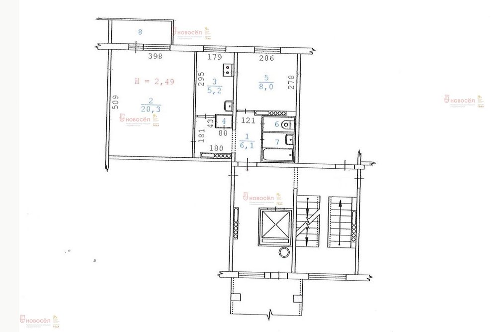
Количество комнат:2
Общая площадь:44 м2
Жилая площадь:28 м2
Площадь кухни:5 м2
Этаж/Этажность дома:4 / 9
Санузел:раздельный
Отделка:косметический
Год постройки:1977
Состояние:удовлетворительное
Цена:
2 870 000
Объявление снято с публикации
Коммунальные платежи:оплачиваются отдельно
Ипотека:возможна

Объект № 132517. Продам двухкомнатную квартиру с отличным расположением в районе. Все окна квартиры на юго-восток.
Абсолютно чистая юридически и полностью готова к продаже с любыми формами расчета. Помогу согласовать ипотеку бесплатно по выгодной ставке.
В доме поменяны стояки и водопроводные трубы, новый лифт. Установлены счетчики.
Приятный бонус -переходная лоджия, которую можно использовать- это дополнительные 20 м2 для хранения сезонных вещей, колясок, велосипедов, автошин и других нужных вещей. Выход на эту лоджию из секции на две квартиры, хорошие спокойные соседи.
Квартира освобождена, есть торг.
Рядом два детских сада и школа. ***Гарантийный сертификат «Защита собственности» по данному объекту в подарок***

Объявление снято с публикации

Ипотечный калькулятор

лет
%
Сумма кредита
2870000 ₽
Платеж
22 540 ₽

Актуальные предложения в этом доме

История предложений в этом доме

объявление снято с публикации в продаже комнат площадь этаж цена,
Екатеринбург, ул. Автомагистральная, 5 (Новая Сортировка) - фото квартиры 15 апреля 2025 90 дн. 3 57.4 4/9 4 890 000
Екатеринбург, ул. Автомагистральная, 5 (Новая Сортировка) - фото квартиры 10 декабря 2024 90 дн. 1 28 4/9 3 099 000
Екатеринбург, ул. Автомагистральная, 5 (Новая Сортировка) - фото квартиры 7 ноября 2024 90 дн. 1 28 4/9 3 200 000
Екатеринбург, ул. Автомагистральная, 5 (Новая Сортировка) - фото квартиры 1 октября 2024 90 дн. 3 59 6/9 4 900 000
Екатеринбург, ул. Автомагистральная, 5 (Новая Сортировка) - фото квартиры 12 января 2025 90 дн. 3 57.4 4/9 4 790 000
Екатеринбург, ул. Автомагистральная, 5 (Новая Сортировка) - фото квартиры 7 июля 2024 90 дн. 2 42.42 6/9 4 200 000
Екатеринбург, ул. Автомагистральная, 5 (Новая Сортировка) - фото квартиры 12 июля 2024 90 дн. 3 57.4 4/9 5 100 000
Екатеринбург, ул. Автомагистральная, 5 (Новая Сортировка) - фото квартиры 11 сентября 2024 90 дн. 2 57.9 4/9 5 900 000
Екатеринбург, ул. Автомагистральная, 5 (Новая Сортировка) - фото квартиры 6 февраля 2024 90 дн. 3 57.9 8/9 5 100 000
Екатеринбург, ул. Автомагистральная, 5 (Новая Сортировка) - фото квартиры 11 июня 2024 90 дн. 1 28.4 1/9 3 100 000
Екатеринбург, ул. Автомагистральная, 5 (Новая Сортировка) - фото квартиры 7 июля 2023 90 дн. 3 58.2 2/9 4 190 000
Екатеринбург, ул. Автомагистральная, 5 (Новая Сортировка) - фото квартиры 7 июля 2023 90 дн. 2 43 3/9 3 960 000
Екатеринбург, ул. Автомагистральная, 5 (Новая Сортировка) - фото квартиры 4 ноября 2023 90 дн. 1 28.4 1/9 3 200 000
Екатеринбург, ул. Автомагистральная, 5 (Новая Сортировка) - фото квартиры 6 сентября 2022 90 дн. 3 64 3/9 4 990 000
Екатеринбург, ул. Автомагистральная, 5 (Новая Сортировка) - фото квартиры 2 августа 2022 90 дн. 3 64 3/9 5 190 000
Екатеринбург, ул. Автомагистральная, 5 (Новая Сортировка) - фото квартиры 22 июля 2022 90 дн. 3 64 3/9 5 190 000
Екатеринбург, ул. Автомагистральная, 5 (Новая Сортировка) - фото квартиры 28 июня 2022 90 дн. 3 64 3/9 5 220 000
Екатеринбург, ул. Автомагистральная, 5 (Новая Сортировка) - фото квартиры 15 июня 2022 90 дн. 4 64 3/9 5 220 000
Екатеринбург, ул. Автомагистральная, 5 (Новая Сортировка) - фото квартиры 25 июля 2022 90 дн. 2 42.6 9/9 3 400 000
Екатеринбург, ул. Автомагистральная, 5 (Новая Сортировка) - фото квартиры 7 июня 2022 90 дн. 4 64 3/9 5 200 000
Екатеринбург, ул. Автомагистральная, 5 (Новая Сортировка) - фото квартиры 26 мая 2022 90 дн. 3 64 3/9 5 200 000
Екатеринбург, ул. Автомагистральная, 5 (Новая Сортировка) - фото квартиры 17 сентября 2022 90 дн. 3 58 8/9 4 700 000
Екатеринбург, ул. Автомагистральная, 5 (Новая Сортировка) - фото квартиры 12 мая 2022 90 дн. 3 64 3/9 5 200 000
Екатеринбург, ул. Автомагистральная, 5 (Новая Сортировка) - фото квартиры 13 апреля 2022 90 дн. 4 64 3/9 5 300 000
Екатеринбург, ул. Автомагистральная, 5 (Новая Сортировка) - фото квартиры 7 апреля 2022 90 дн. 2 42.6 9/9 3 990 000
Екатеринбург, ул. Автомагистральная, 5 (Новая Сортировка) - фото квартиры 26 января 2022 90 дн. 3 62 5/9 5 050 000
Екатеринбург, ул. Автомагистральная, 5 (Новая Сортировка) - фото квартиры 9 октября 2021 90 дн. 4 64 5/9 3 990 000
Екатеринбург, ул. Автомагистральная, 5 (Новая Сортировка) - фото квартиры 26 августа 2021 90 дн. 2 43 1/9 3 370 000
Екатеринбург, ул. Автомагистральная, 5 (Новая Сортировка) - фото квартиры 30 сентября 2021 90 дн. 2 43 1/9 3 240 000
Екатеринбург, ул. Автомагистральная, 5 (Новая Сортировка) - фото квартиры 26 июня 2021 90 дн. 4 64 5/9 3 900 000

Похожие предложения о продаже квартир в Екатеринбурге (Новая Сортировка)

  • 2-к квартира, Пехотинцев, 9

    • 36.6 м2
    • 9/9 этаж
    • Состояние: плохое
    3 720 000 ₽ (101600 ₽/м2)
    Объект № 195255. Продается уютная 2-комнатная квартира в районе Новая Сортировка, на улице Пехотинцев. Квартира на 9 этаже, от этого в квартире очень светло, а из окон открывается прекрасный вид на город. Есть кладовка для хранения вещей, застекленный балкон. Развитая инфраструктура - магазины, садики, школы, аптеки, остановки общественного транспорта - в пешей доступности. Один взрослый собственник. Перепланировок и обременений нет. Документы готовы. ***Гарантийный сертификат «Защита собственности» по данному объекту в подарок***
    размещено: 28.10.2025 , обновлено: 1.12.2025
  • 2-к квартира, Бебеля, 148

    • 36 м2
    • 9/9 этаж
    • Состояние: удовлетворительное
    3 700 000 ₽ (102800 ₽/м2)
    Объект № 193762. Уютная, компактная 2-комнатная квартира 36 кв.м. - идеальный вариант для первого собственного жилья или выгодных инвестиций! Пластиковые окна, сейф-дверь, сантехника заменена, установлены счетчики ХВС/ ГВС и электроэнергии. Есть небольшая кладовка. Отличный вид из окон! Чистый подъезд, места общего пользования содержатся в порядке, новый лифт. Вся инфраструктура под рукой: детские сады и школы, детская и взрослая поликлиника, остановки общественного транспорта, магазины разной направленности, парк отдыха с аттракционами - всё это делает проживание комфортным! Квартира без обременений и без долгов, перепланировок нет, один взрослый собственник. Ипотека возможна, рассмотрим любые сертификаты! Не упустите шанс стать владельцем прекрасной квартиры, звоните, чтобы записаться на просмотр! ***Гарантийный сертификат «Защита собственности» по данному объекту в подарок***
    размещено: 19.08.2025 , обновлено: 17.11.2025
  • 2-к квартира, Софьи Перовской, 117

    • 36.5 м2
    • 4/9 этаж
    • Состояние: хорошее
    3 570 000 ₽ (97800 ₽/м2)
    Объект № 193198. В продаже двухкомнатная квартира 36.5м2 в районе Новая Сортировка. Комнаты смежные. Установлены пластиковые окна, приборы учёта. Во дворе детская и спортивная площадки. В доме сделан капитальный ремонт, новый пассажирский лифт. Район с развитой инфраструктурой, все необходимое в шаговой доступности: магазины, торговые центры, школы (148,149), детские сады 175, 186, 196, 197, 254, детская спортивная школа: Академия спорта, Клуб детского хоккея Фотон. Удобная транспортная развязка: общественный транспорт в любую часть города. Квартира без обременений, быстрый выход на сделку. ***Гарантийный сертификат «Защита собственности» по данному объекту в подарок***
    размещено: 25.07.2025 , обновлено: 5.12.2025
  • 2-к квартира, Софьи Перовской, 103

    • 36.4 м2
    • 1/9 этаж
    • Состояние: хорошее
    3 700 000 ₽ (101600 ₽/м2)
    Предлагаем вашему вниманию двухкомнатную квартиру в доме улучшенной планировки. Несмотря на то что квартира расположена на первом этаже, у нее есть балкон. Балкон застеклен. Все окна поменяны на пластиковые. В квартире выполнен косметический свежий ремонт, натяжные потолки по всей квартире, точеные светильники. Установлены счетчики на воду. Так же в квартире есть кладовка, можно использовать как шкаф для вещей, либо по желанию можно расширить ванную комнату. Рассматриваем любые варианты оплаты, помогу одобрить ипотеку! ID объекта в нашей базе: 4432
    размещено: 15.08.2023 , обновлено: 9.11.2025

Новостройки Екатеринбург, мкр-н. Новая Сортировка

Приоритет

Увеличивает просмотры в 3 раза

Ваше объявление показывается в списке выше обычных объявлений. подключить