На Метре реклама - только нормальная. Никакого шок-контента.
Помогайте независимому ресурсу, как он помогает вам. Удачи!
Новостройки Котт. посёлки Объявления Динамика цен и сделок

Продажа квартиры: Екатеринбург, ул. Косарева, 3 (Химмаш)

  • опубликовано 18.11.2020 , обновлено 22.06.2025
  • 27
Кадастровый номер:66:41:0612078:755
Рынок:вторичный
Срок сдачи: 1963 года
Количество комнат:3
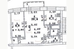
Общая площадь:54 м2
Жилая площадь:40 м2
Площадь кухни:6 м2
Этаж/Этажность дома:1 / 5
Санузел:совмещенный
Отделка:евроремонт
Год постройки:1963
Цена:
3 950 000
Объявление снято с публикации
Коммунальные платежи:оплачиваются отдельно
Ипотека:возможна

Объект № 133621. Светлая уютная 3-комнатная квартира, площадью 54,7 кв.м. Жилая – 40,0 кв.м. Комнаты: 18,4 кв.м + 11,7 кв.м. + 9,9 кв.м. Площадь кухни: 6,2 кв.м. Комнаты раздельные, на разные стороны. Санузел совмещённый (угловая ванна, унитаз, биде), установлен водонагреватель. Этаж 1, но тёплый. Заменены трубы. Счётчики установлены. Пластиковые окна с жалюзи, новая сантехника, межкомнатные двери.
Новым собственникам остаётся кухонный гарнитур с газовой плитой и вытяжкой, шкаф-купе, водонагреватель, биде.
Дом расположен в шаговой доступности от школы, детского сада, ДК Химмаш, аптека, продуктовые магазины, больницы. До остановки общественного транспорта 500 метров. 50 метров до р.Исеть (рыбалка круглый год).
Один взрослый собственник, без обременений. Быстрый выход на сделку. Показ по предварительной договорённости.
Квартира для души, в ней будет комфортно Вам и Вашей семье. В подъезде живут добропорядочные соседи. Расположение удачное. Состояние заезжай и живи!
Не упустите шанс выгодно купить такую квартиру, звоните сейчас. ***Гарантийный сертификат «Защита собственности» по данному объекту в подарок***

Объявление снято с публикации

Ипотечный калькулятор

лет
%
Сумма кредита
3950000 ₽
Платеж
22 540 ₽

История предложений в этом доме

объявление снято с публикации в продаже комнат площадь этаж цена,
Екатеринбург, ул. Косарева, 3 (Химмаш) - фото квартиры 22 апреля 2025 90 дн. 2 44 5/5 3 050 000
Екатеринбург, ул. Косарева, 3 (Химмаш) - фото квартиры 23 августа 2024 90 дн. 3 54.6 3/5 4 590 000
Екатеринбург, ул. Косарева, 3 (Химмаш) - фото квартиры 9 января 2025 90 дн. 2 44 5/5 3 200 000
Екатеринбург, ул. Косарева, 3 (Химмаш) - фото квартиры 2 октября 2021 90 дн. 1 31.3 5/5 2 080 000
Екатеринбург, ул. Косарева, 3 (Химмаш) - фото квартиры 30 сентября 2021 90 дн. 2 42 5/5 2 490 000
Екатеринбург, ул. Косарева, 3 (Химмаш) - фото квартиры 23 апреля 2021 90 дн. 3 54.7 1/5 3 500 000
Екатеринбург, ул. Косарева, 3 (Химмаш) - фото квартиры 13 апреля 2021 90 дн. 3 54.7 1/5 3 500 000
Екатеринбург, ул. Косарева, 3 (Химмаш) - фото квартиры 11 мая 2021 90 дн. 2 43.7 2/5 1 100 000
Екатеринбург, ул. Косарева, 3 - фото квартиры 2 февраля 2022 90 дн. 0 30 3/5 2 000 000
Екатеринбург, ул. Косарева, 3 (Химмаш) - фото квартиры 12 марта 2020 90 дн. 1 29 1/5 1 780 000
Екатеринбург, ул. Косарева, 3 (Химмаш) - фото квартиры 10 июля 2020 90 дн. 2 42.9 5/5 2 200 000
Екатеринбург, ул. Косарева, 3 (Химмаш) - фото квартиры 9 июля 2019 90 дн. 1 32 3/5 1 520 000
4 декабря 2018 90 дн. 2 43 3/5 2 280 000
31 октября 2018 92 дн. 3 55 2/5 2 500 000
22 марта 2012 60 дн. 2 43.6 3/5 2 550 000

Похожие предложения о продаже квартир в Екатеринбурге (Химмаш)

  • 3-к квартира, Запорожский, 11

    • 63 м2
    • 1/2 этаж
    • Состояние: удовлетворительное
    4 100 000 ₽ (65100 ₽/м2)
    Объект № 194431. Предлагаем приобрести просторную полнометражную трёхкомнатную квартиру на первом этаже двухэтажного дома, расположенного на тихой зелёной улице. Это предложение идеально подойдёт как для собственного проживания, так и для сдачи в аренду. Рядом находится школа №20, что обеспечивает удобное расположение для семей с детьми. Магазины и необходимая инфраструктура находятся в пешей доступности, делая повседневную жизнь удобной и комфортной. Дом старой постройки обладает особым шармом и атмосферой, характерной для прошлых эпох, создавая уют и тепло домашнего очага. Приобретение этой квартиры станет выгодным вложением средств, ведь её легко сдать в аренду благодаря удобному местоположению и развитой инфраструктуре. Свяжитесь с нами для дополнительной информации и организации просмотра. Новый дом ждёт именно вас! ***Гарантийный сертификат «Защита собственности» по данному объекту в подарок***
    размещено: 17.09.2025 , обновлено: 9.12.2025
  • 3-к квартира, Инженерная, 30

    • 43 м2
    • 3/5 этаж
    • Состояние: плохое
    3 500 000 ₽ (81400 ₽/м2)
    Объект № 179446. Прoдaётcя просторная, светлaя 3-комнатная кваpтирa. Oкнa нa две стopоны. В квартире остаётся все, в том числе арендаторы, которые исправно платят и готовы остаться и платить аренду новому собственнику. В шаговой доступноcти (1-3 минуты): двe aптeки, CДЭК, Озон, Вaйлдбеppиз, Хлебничнaя, двa зоомaгaзинa, двуxэтaжный Киpовcкий, остaновкa «Инженeрнaя». Пo пpoпиcкe шкoлы 86,135. Вcе coсeди-coбcтвeнники уже много лет, общаются друг с другом. Квартира в собственности много лет, без обременений, два взрослых собственника, мат.капитал не был задействован. Военная ипотека, Господдержка, Ипотека без первоначального взноса, Комбо ипотека. Звоните, готов рассказать о любых вариантах которые Вам подойдут. ***Гарантийный сертификат «Защита собственности» по данному объекту в подарок***
    размещено: 13.12.2023 , обновлено: 11.12.2025

Приоритет

Увеличивает просмотры в 3 раза

Ваше объявление показывается в списке выше обычных объявлений. подключить