На Метре реклама - только нормальная. Никакого шок-контента.
Помогайте независимому ресурсу, как он помогает вам. Удачи!
Новостройки Котт. посёлки Объявления Динамика цен и сделок

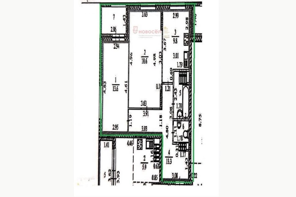
Продажа квартиры: Екатеринбург, ул. Сахарова, 75

  • опубликовано 16.06.2021 , обновлено 25.04.2025
  • 25
Кадастровый номер:66:41:031010:6861
Рынок:вторичный
Срок сдачи: 2019 года
Количество комнат:2
Общая площадь:60 м2
Жилая площадь:32 м2
Площадь кухни:10 м2
Этаж/Этажность дома:14 / 25
Санузел:раздельный
Отделка:евроремонт
Год постройки:2019
Цена:
5 280 000
Объявление снято с публикации
Коммунальные платежи:оплачиваются отдельно
Условия продажи:«чистая» продажа
Ипотека:возможна

Объект № 143725. Продается 2-квартира в квартале Близкий. Прекрасные видовые характеристики. Просторные комнаты и уютная кухня. Ремонт от застройщика. Развитая инфраструктура.
Один взрослый собственник. Обременение Сбербанк. ***Гарантийный сертификат «Защита собственности» по данному объекту в подарок***

Объявление снято с публикации

Ипотечный калькулятор

лет
%
Сумма кредита
5280000 ₽
Платеж
22 540 ₽

Актуальные предложения в этом доме

  • 3-к квартира, Сахарова, 75

    • 77 м2
    • 16/25 этаж
    • Состояние:
    11 200 000 ₽ (145500 ₽/м2)
    Объект № 197611. Вокруг дома расположены: администрация Академического района, Преображенский парк, суд и школа 79, детские сады, гипермаркет Лента, почта, ЦМУ. Окна квартиры выходят на две стороны света, это северо-восток и юго-восток, обзор из окон ничего не загораживает. В квартире сделана перепланировка, после чего образовались две просторные спальни и огромная кухня-гостиная, в которой много воздуха и света. Остается вся встроенная техника и мебель (кухонный гарнитур, обеденная зона , шкафы-купе, диван, мебель в детской). Обсудить ваши предложения всегда можно после просмотра картиры. ***Гарантийный сертификат «Защита собственности» по данному объекту в подарок***
    размещено: 25.02.2026

История предложений в этом доме

объявление снято с публикации в продаже комнат площадь этаж цена,
Екатеринбург, ул. Сахарова, 75 (Академический) - фото квартиры 22 сентября 2021 90 дн. 0 32.2 8/25 3 000 000

Похожие предложения о продаже квартир в Екатеринбурге (Академический)

  • 2-к квартира, Ландау, 39

    • 47 м2
    • 14/26 этаж
    • Состояние: хорошее
    6 500 000 ₽ (138300 ₽/м2)
    ???? Отличная новостройка с просторной функциональной планировкой, позволяющей воплотить любые дизайнерские идеи. ✅ Рядом расположена удобная автобусная остановка маршрута №87. Уже скоро появится новая трамвайная ветка, значительно облегчит передвижение по городу. Удобный доступ на ЕКАД с улицы Амундсена уже строится и будет готов к 2027 году позволит быстро добраться до любого района Екатеринбурга. ???? Все самое важное находится буквально в нескольких минутах ходьбы от дома — супермаркеты «Магнит», «Пятёрочка», магазин «Красное & Белое». Для детей поблизости работают школы (№133), детский сад (№150). ⚡️ Удивительный зелёный уголок прямо возле дома — Преображенский парк, идеальное место для активного отдыха всей семьёй. Здесь регулярно проходят различные мероприятия, игры и занятия спортом. ???? Останется мебель по предварительному соглашению с продавцом. Просторные комнаты и высокие потолки (2,7 м) обеспечат комфортное проживание даже большой семье. Идеальное предложение для тех, кто ценит качество жизни и стремится жить удобно, комфортно и радостно каждый день! Ждем вас на просмотр новой квартиры вашей мечты! ID объекта в нашей базе: 13897
    размещено: 17.02.2026 , обновлено: 24.02.2026
  • 2-к квартира, Академика Сахарова, 95/3

    • 48.6 м2
    • 13/25 этаж
    • Состояние: хорошее
    6 700 000 ₽ (137900 ₽/м2)
    В продаже просторная Евродвушка 48,6 кв. м. Кухня - гостиная 20 кв. м., жилая комната 16,1 кв. м. С/У совмещенный. Лоджия - 6,8 кв. м. Окна на северо-запад - поэтому летом в квартире комфортно. Новому собственнику остается вся мебель и техника. Все новое. Заезжай и живи. Кухонный гарнитур, посудомойка, холодильник, плита, микроволновка, обеденный стол, стулья, диван, тумба под телевизор, двуспальная кровать, прикроватные тумбочки, комод, стиральная машина, встроенные шкафы, прихожая с обувщицей и др. В квартире выполнены самые дорогостоящие ремонтные работы. Полностью выложена плитка в ванной комнате на стенах и полу. Пол с подогревом. В лоджии покрашены стены и на полу выложен ламинат. В шаговой доступности несколько детских садов, школа, магазины, аптеки, медицинские центры, супермаркет Лeнтa, пункты выдачи, детские центры, студии красоты и др. Рядом с домом остановки общественного транспорта трамвайная и автобусная. Один взрослый собственник. Ограничений/ обременений нет. Ипотека возможна.
    размещено: 23.12.2025 , обновлено: 22.02.2026
  • 2-к квартира, Краснолесья, 161

    • 60.8 м2
    • 6/10 этаж
    • Состояние: хорошее
    6 539 000 ₽ (107500 ₽/м2)
    Светлая, теплая, просторная 2-комнатная квартира в современном комплексе. Квартира расположена в 10-и этажной секции. В доме всего 3 подъезда, квартир не много. Отличная планировка: изолированные комнаты , просторная кухня с выходом на лоджию. Из окон вид во двор. Безопасность: круглосуточное видеонаблюдение дома и придомовой территории. Хороший вариант для семьи с детьми.Район с развитой инфраструктурой: в шаговой доступности магазины, торговый центр, детский сад, школа, поликлиника и остановки общественного транспорта.Квартиру покупали в 2013 г у застройщика. При покупке ипотека, средства материнского капитала не использовались. Квартира без долгов, детских долей и обременений. ID объекта в нашей базе: 12451
    размещено: 26.01.2026 , обновлено: 17.02.2026
  • 2-к квартира, Павла Шаманова, 6

    • 61.1 м2
    • 10/18 этаж
    • Состояние: удовлетворительное
    6 800 000 ₽ (111300 ₽/м2)
    Продается просторная 2-комнатная квартира в престижном районе Академический! Ищете идеальное место для жизни, где сможете воплотить все свои дизайнерские мечты? Тогда эта квартира – то, что вам нужно! Что вас ждет: Отличный район Академический: Один из самых востребованных и комфортных для жизни районов города. Здесь есть все необходимое: развитая инфраструктура, парки, школы, детские сады, магазины, удобная транспортная развязка. Большая и теплая квартира: Просторные комнаты, где хватит места для всей семьи. Квартира очень теплая, что особенно ценно в холодное время года. Ремонт под ваши желания: Да, квартира требует ремонта, но это не минус, а огромный плюс! Вы сможете создать интерьер своей мечты, не переплачивая за чужой ремонт, который вам, возможно, не понравится. Воплотите в жизнь все свои идеи и сделайте квартиру по-настоящему своей! Удобная планировка: Раздельные санузлы – это всегда комфортно. Просторная прихожая позволит удобно разместить гардеробную. Выход на балкон из гостиной – отличное решение для уютных вечеров и утреннего кофе. Юридическая чистота: Объект без обременений, один собственник. Это гарантирует быструю и безопасную сделку. Рассмотрим любые варианты оплаты: Ипотека: Поможем с оформлением ипотеки, проконсультируем по всем вопросам. Различные виды сертификатов: Материнский капитал, военная ипотека, жилищные сертификаты – мы готовы рассмотреть все варианты. Не упустите свой шанс стать обладателем этой замечательной квартиры в отличном районе! Звоните прямо сейчас, чтобы договориться о просмотре! ID объекта в нашей базе: 13418
    размещено: 26.01.2026 , обновлено: 17.02.2026
  • 2-к квартира, Академика Парина, 40/3

    • 45 м2
    • 3/25 этаж
    • Состояние: хорошее
    6 800 000 ₽ (151100 ₽/м2)
    Объект № 196784. Продам отличную двухкомнатную квартиру в доме 2020 года постройки, расположенном по адресу: улица Академика Парина, дом 40/3. Общая площадь 45,2 кв.м. Квартира на 3 этаже 25-этажного дома. Квартира имеет продуманную планировку, все помещения правильной формы! Ремонт от застройщика. Подъезд идеально чистый, в нем никогда не бывает посторонних, а проживающие в нем соседи - интеллигентны, доброжелательны и чистоплотны, без вредных привычек. Прекрасная транспортная развязка в нескольких минутах ходьбы автобусная остановка. Развитая инфраструктура микрорайона: в шаговой доступности магазины, детские центры, школы, досуговые центры, кафе и рестораны. Документы готовы, один взрослый собственник с момента постройки дома. Прекрасный старт для молодой семьи! Возможна ипотека. Приглашаю на просмотр, Вам понравится тут жить! ***Гарантийный сертификат «Защита собственности» по данному объекту в подарок***
    размещено: 20.01.2026 , обновлено: 20.02.2026

    2-к квартира, Академика Парина, 41/2

    • 43 м2
    • 4/15 этаж
    • Состояние: хорошее
    5 800 000 ₽ (134900 ₽/м2)
    Объект № 196281. Светлая, просторная и очень уютная квартира в отличном состоянии! Заезжай и живи! Отличная планировка - комнаты на разные стороны, есть возможность сделать кухню-гостиную и 2 спальни. Отличное расположение - рядом школы, дет.сады, магазины, 5 мин до трамвая. Ждем Вас на просмотр! ***Гарантийный сертификат «Защита собственности» по данному объекту в подарок***
    размещено: 09.12.2025 , обновлено: 16.02.2026

    2-к квартира, Краснолесья, 145

    • 62.4 м2
    • 8/22 этаж
    • Состояние: хорошее
    6 750 000 ₽ (108200 ₽/м2)
    Объект № 195843. Вашему вниманию предлагается уютная двушка в Академе. Удобное расположение дома, выезды из района и вся инфраструктура рядом. Квартира с ремонтом от застройщика, большой кухней. Чистая продажа, без обременений. Приглашаем на просмотр! ***Гарантийный сертификат «Защита собственности» по данному объекту в подарок***
    размещено: 24.11.2025 , обновлено: 24.02.2026

    2-к квартира, Ландау, 41

    • 44.7 м2
    • 5/18 этаж
    • Состояние: идеальное
    6 199 000 ₽ (138700 ₽/м2)
    Продается квартира в сданном доме в жилом комплексе "Спутник-1".Застройщик – РСГ АкадемическоеОтделка «под ключ».Общая площадь квартиры составляет 44,7 кв.м.Планировка квартиры функциональная и современного формата (евро3) - с просторной кухней-гостиной и двумя изолированными комнатами..Жилой комплекс "Спутник-1" отличается высоким уровнем комфорта и развитой инфраструктурой.В центре квартала открылась новая школа, поликлиника для взрослых. В пешей доступности Дворец Дзюдо и Академия тенниса.В непосредственной близости находятся гипермаркет «Лента», поликлиника и трамвайное кольцо, что делает район хорошо доступным.Среди основных преимуществ данного квартала стоит отметить променад для прогулок с выходом на набережную Преображенского парка, а также детские игровые комплексы. Для удобства жителей предусмотрен подземный паркинг и система видеонаблюдения, работающая круглосуточно. Спортивные энтузиасты смогут пользоваться кортами и площадками с тренажерами для уличного фитнеса, что делает квартал идеальным местом для активного образа жизни.Данное предложение станет отличным вариантом для тех, кто ценит качество, комфорт и удобное расположение.Все интересующие Вас вопросы вы можете задать по телефону, с удовольствием отвечу. ID объекта в нашей базе: 11702
    размещено: 03.10.2025 , обновлено: 8.02.2026

    2-к квартира, Ландау, 39

    • 48.2 м2
    • 10/15 этаж
    • Состояние: удовлетворительное
    6 300 000 ₽ (130700 ₽/м2)
    В продаже замечательная полноценная 2-комнатная видовая квартира с изолированными комнатами и кухней. Эта светлая квартира обладает невероятной энергетикой!Отделка предчистовая. Здесь можно дать волю всем своим дизайнерским способностям и воплотить их в жизнь!Проект от основателя и главного застройщика Академического района.Фасад дома имеет лаконичный дизайн. Просторный двор радует своей чистотой, цветами, местами для игр детей и зонами отдыха. Газон облагорожен газонной травкой.Входная группа оснащена колясочной. В подъезде 2 лифта - грузовой и пассажирский.Инфраструктура и безопасность:В пешей доступности находятся Преображенский парк и трамвайное кольцо. Рядом с домом открыты самая большая взрослая поликлиника города, новая школа. Детские сады и остановки общественного транспорта в зоне видимости.Наличие большого количества парковочных мест на дублере и на придомовой парковке. Через дорогу завершается строительство многоуровневого наземного паркинга.Видеонаблюдение 24 часа в сутки.На территории квартала планируется 3 детских сада и 2 школы, кладовые, велосипедные дорожки, зеленая аллея и сквер, скейт-площадка, workout зоны в каждом дворе и детские игровые комплексы. На первых этажах будут располагаться торговые галереи.Звоните сегодня, будьте первыми! Завтра Вам могут ответить "Продано!". ID объекта в нашей базе: 11161
    размещено: 06.09.2025 , обновлено: 22.02.2026

    2-к квартира, Ландау, 41

    • 45.2 м2
    • 6/15 этаж
    • Состояние: идеальное
    6 399 990 ₽ (141600 ₽/м2)
    Совершенно новая квартира в гибридном формате евротрешки: кухня-гостиная с панорамным остеклением и 2 отдельные спальни. Все помещения правильной формы. В прихожей удобная ниша под систему хранения, большой с/у. Отличный средний этаж)) Окна на две стороны.Улучшенная отделка под ключ: обои под покраску, ламинат 33 класса, качественные окна ПВХ, в с/у керамическая плитка, тумба с раковиной, установлена вся сантехника, санфаянс, хорошие межкомнатные двери и металлическая сейф-дверь, натяжные потолки с закрепами под карнизы..Дом сдан, заселен. Квартира готова к показам))Квартира расположена в современном жилом квартале Спутник-1 в оригинальной космо-стилистике: прогулочные аллеи, игровые комплексы, воркаут-зоны выполнены в ярком "звездном" амплуа. Запроектированы 2 большие школы, 3 детсада, рядом трамвайное кольцо и знаковое место отдыха жителей Академического Преображенский парк с оборудованной набережной))Чистая продажа. Ипотека возможна. Документы проверены)Приглашаем на просмотры по предварительной договоренности. Более подробная информация по указанному телефону. Звоните (на чаты не отвечаем, благодарим за понимание)#спутник1#студияакадемический#новаяквартира#академический ID объекта в нашей базе: 6506
    размещено: 29.07.2025 , обновлено: 14.01.2026

    2-к квартира, Ландау, 36

    5 899 000 ₽ (147500 ₽/м2)
    Объект № 192773. ЖК Олимпика. Дом сдан в 2024 году. Комфорт класс. Евро3: т.е отдельные 2 комнаты и кухня-гостиная. Очень уютная и светлая квартира. С соседями сбоку граничим только одной стенкой. Торцевая сторона, восток-юг. Чистовая отделка под ключ. ***Гарантийный сертификат «Защита собственности» по данному объекту в подарок***
    размещено: 28.06.2025 , обновлено: 17.02.2026

    2-к квартира, Краснолесья, 125

    • 66.4 м2
    • 11/11 этаж
    • Состояние: хорошее
    6 500 000 ₽ (97900 ₽/м2)
    Продается просторная, теплая , светлая двухкомнатная квартира вблизи ТРЦ Академический. Большая гостиная 25.5 м на 2 окна и спальня 15,5 м2, кухня 12,5 м2, в гостиной окно и лоджия. Окна выходят во двор и на торец дома. Мебель, техника входит в стоимость квартиры. Чистая продажа. Есть обременение в пользу физ.лица на 270 т.р. ID объекта в нашей базе: 3883
    размещено: 22.03.2025 , обновлено: 23.02.2026

Новостройки Екатеринбург, мкр-н. Академический

Приоритет

Увеличивает просмотры в 3 раза

Ваше объявление показывается в списке выше обычных объявлений. подключить