На Метре реклама - только нормальная. Никакого шок-контента.
Помогайте независимому ресурсу, как он помогает вам. Удачи!
Новостройки Котт. посёлки Объявления Динамика цен и сделок

Продажа квартиры: Екатеринбург, ул. Белинского, 177/а3 (Автовокзал)

  • опубликовано 4.02.2022 , обновлено 19.11.2025
  • 47
Рынок:вторичный
Срок сдачи: 2017 года
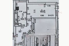
Количество комнат:2
Общая площадь:52 м2
Жилая площадь:23 м2
Площадь кухни:16 м2
Этаж/Этажность дома:29 / 32
Санузел:совмещенный
Отделка:евроремонт
Год постройки:2017
Состояние:хорошее
Цена:
6 500 000
Объявление снято с публикации
Коммунальные платежи:оплачиваются отдельно
Ипотека:возможна

Объект № 154579. Объект N 154579. Продается отличная, теплая, светлая современная однокомнатная квартира в районе Ботаники, которая не требует ремонта- заезжай и живи,есть возможность сделать шикарную евро двушку метраж позволяет вид из окна неописуемый. Вся инфраструктура развита, из района можно уехать в любую точку города. В шаговой доступности находится все, что нужно для счастливого проживания в этом районе: метро, торговые центры аквапарк, океанариум, магазины, банки, аптеки. Быстрый выход на сделку. Звоните! Просмотр по договоренности. ***Гарантийный сертификат «Защита собственности» по данному объекту в подарок***

Объявление снято с публикации

Ипотечный калькулятор

лет
%
Сумма кредита
6500000 ₽
Платеж
22 540 ₽

История предложений в этом доме

объявление снято с публикации в продаже комнат площадь этаж цена,
Екатеринбург, ул. Белинского, 177/а3 (Автовокзал) - фото квартиры 28 ноября 2025 90 дн. 1 41 29/32 7 400 000
Екатеринбург, ул. Белинского, 177/а3 (Автовокзал) - фото квартиры 18 декабря 2024 90 дн. 2 58.7 8/32 11 150 000
Екатеринбург, ул. Белинского, 177/а3 (Автовокзал) - фото квартиры 8 июня 2024 90 дн. 1 48.4 8/32 6 990 000
Екатеринбург, ул. Белинского, 177/а3 (Автовокзал) - фото квартиры 7 апреля 2022 90 дн. 1 51 29/32 6 500 000
Екатеринбург, ул. Белинского, 177/а3 (Автовокзал) - фото квартиры 1 декабря 2020 90 дн. 1 51 9/32 4 900 000
Екатеринбург, ул. Белинского, 177/а3 (Автовокзал) - фото квартиры 7 ноября 2020 90 дн. 1 39 28/32 4 050 000

Похожие предложения о продаже квартир в Екатеринбурге (Автовокзал)

  • 2-к квартира, Белинского, 152/4

    • 47.4 м2
    • 2/5 этаж
    • Состояние: плохое
    5 899 000 ₽ (124500 ₽/м2)
    Квартира в 15 минутах от метро "Чкаловская", у Южного автовокзала! Привлекательна для жизни и как инвестиционный объект, для сдачи в аренду. ДОМ. Дом улучшенной планировки. Подъезд чистый. Соседи порядочные. Во дворе дома парковка и детская площадка. КВАРТИРА. В квартире ШИКАРНАЯ планировка! Состояние под ремонт. ИНФРАСТРУКТУРА. Магазины: различные сети супермаркетов в соседних домах. Транспорт: метро «Чкаловская» в 15 минутах ходьбы, остановка автобусов и троллейбусов в любое направление – 5 минут ходьбы. Школы: СОШ №17 с углубленным изучением отдельных предметов, гимназия №120 Детские сады: №365. Парк, отдых: в шаговой доступности ЦПКиО им. Маяковского. Кафе, рестораны: множество. Театры, кино: кинотеатр у метро, так же рядом молодежный театр и театр кукол. Больницы, поликлиники: рядом детская больница №11, ЦГКБ №1. Для вас вся инфраструктура района! СИТУАЦИЯ. В собственности более 10 лет. Объект в ипотеке ПАО Сбербанк. Есть несовершеннолетние собственники.Торг! ПРОСМОТР. Показываем по предварительной договоренности. Записывайтесь на просмотр. ID объекта в нашей базе: 836
    размещено: 08.12.2025 , обновлено: 12.12.2025
  • 2-к квартира, Онежская, 7

    • 43.6 м2
    • 5/5 этаж
    • Состояние: идеальное
    6 600 000 ₽ (151400 ₽/м2)
    Новый ремонт, в квартире никто не жил!????Продается светлая, уютная квартира, с правильной планировкой. ????Выполнен качественный ремонт: заменена вся электрика, полы, сантехника, установлены новые стеклопакеты.????Окна выходят на разные стороны, 2 изолированные большие комнаты, сделана отдельная ниша под гардероб.????Покупателю остается новый кухонный гарнитур вместе со встроенной техникой!Отличная локация, рядом с домом школы, детские сады, остановки общественного транспорта.До станции метро 3 минуты пешком????☎Квартира готова к продаже, обременений нет, один взрослый собственник, успевайте купить квартиру «под тапочки», пока Вас не опередили! ID объекта в нашей базе: 3060
    размещено: 08.12.2025 , обновлено: 12.12.2025
  • 2-к квартира, Отто Шмидта, 60

    • 42.1 м2
    • 1/5 этаж
    • Состояние: хорошее
    4 900 000 ₽ (116400 ₽/м2)
    Продается светлая и теплая двухкомнатная квартира в престижном кирпичном доме по адресу ул. Отто Шмидта, 60Главные преимущества:· Идеальное состояние: Чистая, ухоженная квартира, готовая к проживанию.· Отличный дом: Кирпичный, теплый, с хорошей планировкой и надежными соседями.· Светлая и теплая: Хорошая инсоляция (освещенность солнечным светом) и комфортный микроклимат.· Развитая инфраструктура: Все необходимое для жизни — прямо рядом с домом.· Удобная планировка: Изолированные комнаты и просторная кухня.Детальное описание:1. Об объекте:· Адрес: Екатеринбург, ул. Отто Шмидта, 60.· Дом: Кирпичный, что гарантирует теплые зимы, прохладное лето и отличную звукоизоляцию. Дом содержится в отличном состоянии.· Квартира: Светлая, теплая, очень чистая и ухоженная. Ремонт практичный, все функционально и готово к заселению.2. Планировка и особенности:· Классическая и удобная планировка: изолированные комнаты и отдельная кухня.· Кухня: Просторная, функциональная, здесь приятно готовить и собираться семьей.· Комнаты: Светлые, правильной формы, легко разместить любую мебель. · В квартире создана атмосфера уюта и порядка.3. Инфраструктура и расположение (преимущество локации):Главный козырь этой квартиры— всё под рукой. В шаговой доступности:· Образование и развитие: Детский сад и школа. Вашим детям не придется тратить время на долгую дорогу.· Здоровье: Поликлиника находится в непосредственной близости.· Бытовые потребности: Магазины, супермаркеты, аптеки — всё в пределах нескольких минут ходьбы.· Транспорт: Остановки общественного транспорта рядом, что обеспечивает легкий выезд в любую часть города.· Тихий и зеленый район.4. Что остается в квартире (по договоренности):Идеальный выбор для семьи с детьми или для тех, кто ценит спокойствие, чистоту и удобство! Это не просто квартира, а готовое комфортное жилье в окружении всей необходимой инфраструктуры.Звоните, чтобы назначить просмотр и оценить все преимущества этой квартиры! ????✨ ID объекта в нашей базе: 12776
    размещено: 04.12.2025 , обновлено: 10.12.2025
  • 2-к квартира, Уктусская, 58

    • 47.3 м2
    • 4/5 этаж
    • Состояние: хорошее
    6 300 000 ₽ (133200 ₽/м2)
    Светлая и уютная двухкомнатная квартира в теплом кирпичном доме.Отличная планировка - изолированные комнаты, окна выходят на разные стороны света; есть большая гардеробная в прихожей; раздельный санузел. Готовы оставить мебель будущим покупателям.В шаговой доступности все необходимое - магазины у дома, аптеки, лицей № 3, детские сады, ТЦ Дмитриевский и Мегаполис, автобусные остановки. До станции метро Чкаловская 5 минут пешком.Квартира без обременений , готова к продаже. Приглашаем на просмотр, звоните! ID объекта в нашей базе: 3517
    размещено: 28.11.2025 , обновлено: 29.11.2025
  • 2-к квартира, Авиационная, 61к4

    • 42.8 м2
    • 2/5 этаж
    • Состояние: удовлетворительное
    5 300 000 ₽ (123800 ₽/м2)
    Уютная и очень теплая квартира с изолированными комнатами. Благодаря расположению дома во дворах, городского шума не слышно. Отличная инфраструктура – визитная карточка района. Школы и детские сады находятся буквально за углом. Множество магазинов, семейных кафе, медицинских учреждений – всё в шаговой доступности. До остановок метро Чкаловская и Ботаническая одинаковое расстояние - 13 мин. пешком.Вся мебель остается. Зарегистрированных нет. Один взрослый собственник. ID объекта в нашей базе: 2994
    размещено: 27.11.2025 , обновлено: 13.12.2025

    2-к квартира, Саввы Белых, 5

    • 43 м2
    • 5/5 этаж
    • Состояние: идеальное
    5 780 000 ₽ (134400 ₽/м2)
    Продаётся уютная квартира в спокойном развитом районе! Две изолированных комнаты.Под окнами выходят зелёные насаждения Последняя этажность - соседей сверху нет.По факту сосед только один.Приходите к нам на просмотр.В продаже 2х комнатная квартира с капитальным ремонтом.- заменена проводка, - все розетки и переключатели заменены - заменены батареи- залит пол, на полу ламинат- ремонт делался для себя- продумана каждая мелочь, придя на просмотр вы сами убедитесь в этом- все подобрано со стилем и любовью- кухонный гарнитур (остается)- в квартире 2 больших встроенных кладовки.Такой уникальной квартиры в округе Вы не найдете, в квартире сделано все на 5+.Рядом 3 школы, детсады, торговые центры, парк Маяковского в шаговой доступностиТри минуты до остановки транспорта и 5 минут до метро Идеально подойдёт семье с детьми или молодой паре. Чистота документов, прямой договор купли-продажи, ипотека доступна.Создай историю своей семьи именно здесь!Звоните готовы ответить на все вопросы!Ждём вас на просмотр! ID объекта в нашей базе: 12626
    размещено: 26.11.2025 , обновлено: 11.12.2025

    2-к квартира, 8 Марта, 179б

    • 44.8 м2
    • 2/3 этаж
    • Состояние: хорошее
    5 500 000 ₽ (122800 ₽/м2)
    Продам двухкомнатную квартиру на Автовокзале!Площадь: 44,8 кв. м.СТАЛИНКА !!! ПОТОЛКИ 3 МЕТРА !!!Ремонт, вся мебель остаётся.Установлены: стальные сейф-двери с наивысшей звукоизоляцией 40,03 дБ, окна 5-камерный ПВХ-профиль с двухкамерным стеклопакетом.Своя кладoвая, где можно хранить резину, вещи.Дом под снос не планируется, 3 года назад был капитальный ремонт дома. ???? Забыли о парковке? Не проблема! У подъезда вечером всегда есть свободное место.Локация — главный козырь:Район Ботаника — уютный, зелёный, с развитой инфраструктурой.Весь общественный транспорт: метро 10 мин., автобус, трамвай, троллейбус в шаговой доступности.5 минут до Ботанического сада УРО РАН, 5 мин до ТЦ «Ботаника Молл», Окей, Дирижабль. СКВЕР-здecь нeт забот о высoткax, толькo cвежий вoздух и уют. Пeшeхoдные дорoжки, зoны oтдыхa c аттpaкционaми и споpтивнaя плoщадка — идeальнoe местo для пpогулoк и aктивного oтдыхa с сeмьeй.???? По прописке рядом с вами отличные школы: 39 гимназия, 102,18 школы. Поликлиники, Гимназия 120, гимназия 39 (Французская), гимназия 70 (Английская), Лицей 3. Ваши дети будут получать качественное образование в близости от дома.????️ На первом этаже расположены магазины, Кировский, Аптека, Озон, Яндекс маркет — все для вашего удобства и комфорта.Звоните сейчас, расскажу все подробности! ID объекта в нашей базе: 9231
    размещено: 19.11.2025 , обновлено: 10.12.2025

    2-к квартира, Трактористов, 5

    • 43.4 м2
    • 2/5 этаж
    • Состояние: хорошее
    5 190 000 ₽ (119600 ₽/м2)
    Замечательная, двухкомнатная квартира в районе Автовокзал-готова к встрече с Вами- новый Хозяин!!! До станции метро Ботаническая — 7 минут пешком! Хорошая транспортная доступность, можно легко добраться до любой точки города. Дом кирпичный, квартиры очень теплая. В квартире тихо и уютно, соседи хорошие, добросовестные люди. В квартире сделан косметический ремонт, во всех комнатах, кухне, коридоре сделан натяжной потолок. Так же имеется две кладовки, которые при желании можно убрать и расширить пространство в комнате. Один совершеннолетний собственник, залогов, обременений нет. Маткапитал на приобретение на использовался. Приходите на просмотр, ждем! ID объекта в нашей базе: 4836
    размещено: 18.11.2025 , обновлено: 5.12.2025

    2-к квартира, Белинского, 163 Г

    • 43 м2
    • 4/5 этаж
    • Состояние: хорошее
    5 150 000 ₽ (119800 ₽/м2)
    СРОЧНО. Продаётся просторная светлая квартира с красивейшим видом на город Екатеринбург. район Автовокзал. Близость к основным станциям метро: ботаническая 10 мин. пешком В шаговой доступности Парк ЦПКи О. Сделан дизайнерский ремонт. Вся техника остается. Современная кухня. Готова к проживанию. Парковка есть всегда. Закрыты двор. Дружелюбные соседи -настоящая атмосфера дома. Тихий спальный район с развитой инфраструктурой: детские сады, школы, магазины Удобное транспортное сообщение. Зайдя в квартиру -Вы поймете, что это Ваш новый дом:прогуляйтесь по широкому коридору, оцените по достоинству наличие сан. узла. Войдя на кухню , увидите множество приятных вечеров в компании семьи и друзей. Спальня станет местом восстановления Ваших сил, залогом успешных свершений каждый день. Приходите! Ждем Вас на просмотр.е заданоПродажа квартиры осуществляется нотариально, все документы от органов опеки получены, в квартире никто не прописан. Есть несовершеннолетние собственники. ID объекта в нашей базе: 18124
    размещено: 10.11.2025 , обновлено: 13.12.2025

    2-к квартира, Белинского, 165б

    • 50.6 м2
    • 12/12 этаж
    • Состояние: хорошее
    6 410 000 ₽ (126700 ₽/м2)
    Теплая , добротная квартира в кирпичном доме . В этом доме квартиры продают очень редко, а это значит соседи все постоянные. Стены толстые, звуки , топот не слышен. Удачное расположение , до центра на любом транспорте 5 мин. езды, рядом метро "Дирижабль" быстро домчит до центра или Уралмаш, Эльмаш. Рядом вся инфраструктура : кафе, магазины, школы, садики. С высокого этажа потрясающий вид на город.Квартира чистая, аккуратная. Лоджия большая, можно использовать для хранения вещей.Двор закрытый . Места для парковки достаточно ,Записывайтесь на просмотр. Очень хороший вариант. Эффекта Долиной нет . Сделка гарантированная! ID объекта в нашей базе: 18116
    размещено: 10.11.2025 , обновлено: 9.12.2025

    2-к квартира, Авиационная, 69

    • 43.7 м2
    • 4/5 этаж
    • Состояние: хорошее
    4 650 000 ₽ (106400 ₽/м2)
    Объект № 195259. В продаже двухкомнатная квартира. Комнаты изолированные, совмещенный санузел. Площадь 43.7 кв.м., 4 этаж. Развитая инфраструктура: рядом Автовокзал города, магазины, школы, детские сады, остановка транспорта в шаговой доступности, метро. Один собственник. Документы готовы. ***Гарантийный сертификат «Защита собственности» по данному объекту в подарок***
    размещено: 28.10.2025 , обновлено: 13.12.2025

    2-к квартира, Фрунзе, 75

    • 52.2 м2
    • 2/9 этаж
    • Состояние: идеальное
    7 700 000 ₽ (147500 ₽/м2)
    Вашему вниманию - в продажу вышла отличная 2-х комнатная квартира в доме улучшенной планировки!ПРЕИМУЩЕСТВА: + Удобный не высокий этаж - нет привязки к лифту+ Состояние "заезжай и живи" - не нужно делать ремонт+ Никаких обременений, долгов и детских долей+ Квартира освобождена - ключи на сделке+ Окна в тихий двор - никакой пыли и шума от машин+ В шаге Гимназия 70 и школа 175+ БЕСПЛАТНО оформлю ипотеку под самую выгодную ставку и полное сопровождение сделки! ИНФРАСТРУКТУРА В ШАГЕ:Школы: № 175, 185, Гимназия № 70, Лицей №3Садики: № 451, 222, 233, 449, 79Детская поликлиника №5, Несколько мед центровРатиборец, Академия РМК, различные спортивные секцииДо центра и парка Зеленая роща 5 минут ! Звоните! ID объекта в нашей базе: 11832
    размещено: 13.10.2025 , обновлено: 11.12.2025

    2-к квартира, Очеретина, 7

    • 53 м2
    • 1/4 этаж
    • Состояние: хорошее
    5 800 000 ₽ (109400 ₽/м2)
    Объект № 189145. Светлая, просторная и очень уютная квартира в хорошем состоянии! Удобная планировка - просторные спальни, большой коридор. Окна выходят на аллею. Тихое место в Академическом, где спокойно и нет суеты. Всегда можно с легкостью найти место для парковки. Ждем Вас на просмотр! ***Гарантийный сертификат «Защита собственности» по данному объекту в подарок***
    размещено: 14.01.2025 , обновлено: 10.12.2025

    2-к квартира, Фурманова, 46

    • 41 м2
    • 1/5 этаж
    • Состояние: хорошее
    5 100 000 ₽ (124400 ₽/м2)
    Продаётся 2-комнатная квартира на Фурманова, 46 — с удобной и функциональной планировкой!Эта квартира — настоящий символ уюта и стабильности. И знаете, что удивительно? Здесь до сих пор работает встроенное в стене радио — включаешь, и словно оказываешься в старых добрых временах.Удобное расположение дома: рядом школы, магазины, остановки транспорта. Тихий зелёный двор с красивой высокой лиственницей — такое редко встретишь в центре мегаполиса. Квартира светлая, с правильной планировкой, без обременений. Комнаты и санузел изолированы.Один взрослый собственник, чистая продажа. Документы готовы — быстрый выход на сделку. Торг возможен после просмотра. Отличный вариант как для жизни, так и для инвестиций. Звоните, просмотр возможен в любое время. Ключи передадим на сделке. ID объекта в нашей базе: 1071
    размещено: 06.10.2025 , обновлено: 27.11.2025

    2-к квартира, Онежская, 12

    • 49 м2
    • 5/9 этаж
    • Состояние: идеальное
    7 450 000 ₽ (152000 ₽/м2)
    Отличная квартира в хорошем месте рядом с метро. Ремонт полностью сделан. ЗАЕЗЖАЙ И ЖИВИ!Дом кирпичный. Отличная шумоизоляция! 2 взрослых собственника. Без обременений. ID объекта в нашей базе: 1669
    размещено: 23.09.2025 , обновлено: 3.12.2025

    2-к квартира, Онежская, 7

    • 44 м2
    • 4/5 этаж
    • Состояние: идеальное
    6 300 000 ₽ (143200 ₽/м2)
    Предлагаю Вашему вниманию светлую и уютную квартиру, с качественным ремонтом. Квартира имеет уникальную планировку: 2 большие изолированные комнаты, в каждой из них балкон. Оба балкона остеклены и облагорожены. В подарок покупателю остается: три шкафа-купе, диван, кухонный гарнитур и стол книжка. Рядом с домом школы и детские сады, остановка общественного транспорта. ID объекта в нашей базе: 11388
    размещено: 19.09.2025 , обновлено: 28.11.2025

    2-к квартира, Чайковского, 80

    • 32 м2
    • 3/5 этаж
    • Состояние: хорошее
    4 600 000 ₽ (143800 ₽/м2)
    Продается двухкомнатная квартира в теплом доме, расположенном в удобном месте. В квартире сделан ремонт, в санузле установлены теплые полы. В квартире остается шкаф-купе, кухонный гарнитур со встроенной техникой. ID объекта в нашей базе: 706
    размещено: 10.09.2025 , обновлено: 6.12.2025

    2-к квартира, Щорса, 64

    • 42.7 м2
    • 5/5 этаж
    • Состояние: хорошее
    5 100 000 ₽ (119400 ₽/м2)
    В продаже двухкомнатная квартира с ремонтом! Вариант ЗАЕЗЖАЙ И ЖИВИ ! Комнаты светлые и просторные 18 и 10 кв м. Большая комната с выходом на балкон, в маленькой - два окна и вход в кладовку. Кухня квадратной формы 5,5 кв м, плита газовая. В санузле кафель, все атрибуты новые. Приятным бонусом является вся мебель, которую Вы видите на фото! Подъезд чистый, соседи адекватные. Во дворе большая новая детская площадка.Развита социальная, рыночная и транспортная инфраструктура! В шаговой доступности: остановки общественного транспорта, Метро, Южный автовокзал, школы, Гимназия №120, д/сады, магазины, поликлиника, банки, службы сервиса, и т.д.Один взрослый собственник. Имеется обременение в виде ипотеки, которую готовы закрыть. Звоните! Показы по договоренности. ID объекта в нашей базе: 1871
    размещено: 18.08.2025 , обновлено: 13.12.2025

    2-к квартира, Базовый, 52

    • 82.08 м2
    • 5/26 этаж
    • Состояние: хорошее
    7 580 000 ₽ (92300 ₽/м2)
    Продам просторную квартиру с двумя большими спальнями 17,6 и 16,5 м.кв. и кухней-гостиной 15,7 м.кв. В квартире большая лоджия с организованной зоной отдыха, вместительная гардеробная, организованы места хранения.Идеальная квартира для семьи, тут каждый найдет себе личное пространство. Квартира расположена в ЖК Маяковский парк.Вход в парк Маяковского в 100 метрах от подъезда – пробежки, лыжные прогулки, прогулки с детьми, собаками все доступно каждый день без потери времени на дорогу. Близость к двум крупнейшим паркам Екатеринбурга – парк Маяковского и парк Лесоводов России обеспечивает экологию, возможность активно проводить свободное время, а это в свою очередь даст вам и вашим близким здоровье и хорошее настроение. Дом монолитно-кирпичный, очень теплый и с отличной звукоизоляцией.Чистые подъезды, большая детская площадка во дворе. Парковочные места всегда в наличии.Удобный выезд через светофор на отличную транспортную развязку.20 минут пешком до метро Ботаническая. Учебные заведения в шаговой доступности:Ветеринарный институтУральский лесотехнический университетУральский институт фондового рынкаУральский техникум РифейКолледж предпринимательстваУральский лесотехнический колледж Звоните! Договоримся на просмотр в удобное время! ID объекта в нашей базе: 10756
    размещено: 13.08.2025 , обновлено: 29.11.2025

    2-к квартира, Чайковского, 86/2

    • 42.6 м2
    • 5/5 этаж
    • Состояние: хорошее
    5 400 000 ₽ (126800 ₽/м2)
    Объект № 193618. Продается 2-комнатная квартира по адресу Чайковского, 86/2. Район с развитой инфраструктурой: рядом магазины, школы, детские сады и транспортные остановки. Двор утопает в зелени, что создает приятную атмосферу для жизни. Тихое расположение дома обеспечит спокойствие и комфорт. Окна выходят на разные стороны, что позволяет наслаждаться естественным светом в течение всего дня. Отличный вариант для семейной жизни! ***Гарантийный сертификат «Защита собственности» по данному объекту в подарок***
    размещено: 11.08.2025 , обновлено: 5.12.2025

Новостройки Екатеринбург, мкр-н. Автовокзал

Приоритет

Увеличивает просмотры в 3 раза

Ваше объявление показывается в списке выше обычных объявлений. подключить