На Метре реклама - только нормальная. Никакого шок-контента.
Помогайте независимому ресурсу, как он помогает вам. Удачи!
Новостройки Котт. посёлки Объявления Динамика цен и сделок

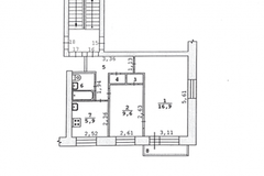
Продажа квартиры: Екатеринбург, ул. Саввы Белых, 5 (Автовокзал)

  • опубликовано 26.11.2025 , обновлено 26.11.2025
  • 3
  •  
Рынок:вторичный
Срок сдачи: 1962 года
Количество комнат:2
Общая площадь:43 м2
Жилая площадь:27.2 м2
Площадь кухни:6 м2
Этаж/Этажность дома:5 / 5
Санузел:совмещенный
Отделка:евроремонт
Год постройки:1962
Мебель:есть мебель
Балкон/лоджия:балкон
Состояние:идеальное
Цена:
5 900 000
Коммунальные платежи:оплачиваются отдельно
Ипотека:возможна

Продаётся уютная двухкомнатная квартира в спокойном развитом районе! Две изолированных комнаты.Под окнами выходят зелёные насаждения Последняя этажность соседей сверху нет.Рядом 3 школы, детсады, торговые центры, парк Маяковского в шаговой доступностиТри минуты до остановки транспорта и 5 минут до метро Идеально подойдёт семье с детьми или молодой паре. Квартира с капитальным ремонтом. Чистота документов, прямой договор купли-продажи, ипотека доступна.Создай историю своей семьи именно здесь!Звоните готовы ответить на все вопросы!Ждём вас на просмотр!
ID объекта в нашей базе: 12626

Домос 1069 — Вера Валерьевна

показать телефон

Ипотечный калькулятор

лет
%
Сумма кредита
5900000 ₽
Платеж
22 540 ₽

История предложений в этом доме

объявление снято с публикации в продаже комнат площадь этаж цена,
Екатеринбург, ул. Саввы Белых, 5 (Автовокзал) - фото квартиры 6 декабря 2024 90 дн. 2 42 3/5 5 000 000
Екатеринбург, ул. Саввы Белых, 5 (Автовокзал) - фото квартиры 13 ноября 2024 90 дн. 2 42.5 2/5 4 699 000
Екатеринбург, ул. Саввы Белых, 5 (Автовокзал) - фото квартиры 9 октября 2024 90 дн. 2 42.5 2/5 5 199 000
Екатеринбург, ул. Саввы Белых, 5 (Автовокзал) - фото квартиры 31 января 2024 90 дн. 2 42.8 3/5 4 300 000
Екатеринбург, ул. Саввы Белых, 5 (Автовокзал) - фото квартиры 10 октября 2023 90 дн. 2 43 4/5 4 800 000
Екатеринбург, ул. Саввы Белых, 5 (Автовокзал) - фото квартиры 25 апреля 2023 90 дн. 2 42 1/5 4 650 000
Екатеринбург, ул. Саввы Белых, 5 (Автовокзал) - фото квартиры 19 февраля 2023 90 дн. 2 42 3/5 4 550 000
Екатеринбург, ул. Саввы Белых, 5 (Автовокзал) - фото квартиры 15 марта 2022 90 дн. 2 43.2 2/5 4 250 000
Екатеринбург, ул. Саввы Белых, 5 (Автовокзал) - фото квартиры 7 мая 2022 90 дн. 2 42.7 5/5 3 950 000
Екатеринбург, ул. Саввы Белых, 5 (Автовокзал) - фото квартиры 17 июня 2021 90 дн. 2 44.1 5/5 3 700 000
Екатеринбург, ул. Саввы Белых, 5 (Автовокзал) - фото квартиры 21 апреля 2021 90 дн. 1 31.4 3/5 3 180 000
Екатеринбург, ул. Саввы Белых, 5 (Автовокзал) - фото квартиры 19 марта 2021 90 дн. 1 31.1 1/5 2 590 000
Екатеринбург, ул. Саввы Белых, 5 (Автовокзал) - фото квартиры 28 октября 2021 90 дн. 2 45 5/5 3 750 000
Екатеринбург, ул. Саввы Белых, 5 (Автовокзал) - фото квартиры 11 декабря 2020 90 дн. 1 30 2/5 2 800 000
Екатеринбург, ул. Саввы Белых, 5 (Автовокзал) - фото квартиры 14 октября 2020 90 дн. 2 43.1 4/5 2 899 000
Екатеринбург, ул. Саввы Белых, 5 (Автовокзал) - фото квартиры 12 декабря 2020 90 дн. 2 44.1 1/5 2 990 000
Екатеринбург, ул. Саввы Белых, 5 (Автовокзал) - фото квартиры 2 февраля 2022 90 дн. 2 44 1/5 3 000 000
Екатеринбург, ул. Саввы Белых, 5 (Автовокзал) - фото квартиры 22 июля 2020 90 дн. 1 31.3 2/5 2 700 000
Екатеринбург, ул. Саввы Белых, 5 (Автовокзал) - фото квартиры 5 августа 2019 90 дн. 1 31 3/5 2 250 000
Екатеринбург, ул. Саввы Белых, 5 (Автовокзал) - фото квартиры 30 июля 2019 90 дн. 1 31 1/5 1 980 000
20 июня 2019 90 дн. 2 44 5/5 2 500 000
10 апреля 2019 90 дн. 2 42 3/5 2 950 000

Похожие предложения о продаже квартир в Екатеринбурге (Автовокзал)

  • 2-к квартира, Белинского, 152/4

    • 47.4 м2
    • 2/5 этаж
    • Состояние: плохое
    5 900 000 ₽ (124500 ₽/м2)
    Квартира в 15 минутах от метро "Чкаловская", у Южного автовокзала! Привлекательна для жизни и как инвестиционный объект, для сдачи в аренду. ДОМ. Дом улучшенной планировки. Подъезд чистый. Соседи порядочные. Во дворе дома парковка и детская площадка. КВАРТИРА. В квартире ШИКАРНАЯ планировка! Состояние под ремонт. ИНФРАСТРУКТУРА. Магазины: различные сети супермаркетов в соседних домах. Транспорт: метро «Чкаловская» в 15 минутах ходьбы, остановка автобусов и троллейбусов в любое направление – 5 минут ходьбы. Школы: СОШ №17 с углубленным изучением отдельных предметов, гимназия №120 Детские сады: №365. Парк, отдых: в шаговой доступности ЦПКиО им. Маяковского. Кафе, рестораны: множество. Театры, кино: кинотеатр у метро, так же рядом молодежный театр и театр кукол. Больницы, поликлиники: рядом детская больница №11, ЦГКБ №1. Для вас вся инфраструктура района! СИТУАЦИЯ. В собственности более 10 лет. Объект в ипотеке ПАО Сбербанк. Есть несовершеннолетние собственники.Торг! ПРОСМОТР. Показываем по предварительной договоренности. Записывайтесь на просмотр. ID объекта в нашей базе: 836
    размещено: 24.11.2025
  • 2-к квартира, Авиационная, 63/3

    • 50.7 м2
    • 3/5 этаж
    • Состояние: хорошее
    6 600 000 ₽ (130200 ₽/м2)
    Предлагаем вашему вниманию уютную квартиру, расположенную в живописном районе города Екатеринбурга, вблизи автовокзала, по адресу улица Авиационная. Этот объект представляет собой идеальное сочетание комфорта, удобства расположения и привлекательной цены. Основные характеристики квартиры: Адрес: город Екатеринбург, улица Авиационная. Тип дома: кирпичный, построенный в 1980 году. Планировка: изолированные комнаты обеспечивают дополнительное пространство и комфорт для каждого члена семьи. Санузел: раздельный, обеспечивает удобство использования и экономит пространство. Интерьер: квартира отличается чистотой, светом и теплом, создавая приятную атмосферу домашнего уюта. Преимущества месторасположения: Транспортная доступность: рядом находятся остановки общественного транспорта, обеспечивающие быстрое перемещение по городу. Социальная инфраструктура: близость школ и детских учреждений позволяет создать оптимальные условия для воспитания детей. Эта квартира станет идеальным выбором для тех, кто ценит комфорт, функциональность и удобное расположение. Мы уверены, что этот вариант понравится каждому покупателю, ищущему жилье своей мечты! ID объекта в нашей базе: 949
    размещено: 19.11.2025 , обновлено: 22.11.2025
  • 2-к квартира, 8 Марта, 179б

    • 44.8 м2
    • 2/3 этаж
    • Состояние: хорошее
    4 999 700 ₽ (111600 ₽/м2)
    Продам двухкомнатную квартиру на Автовокзале!Площадь: 44,8 кв. м.СТАЛИНКА !!! ПОТОЛКИ 3 МЕТРА !!!Ремонт, вся мебель остаётся.Установлены: стальные сейф-двери с наивысшей звукоизоляцией 40,03 дБ, окна 5-камерный ПВХ-профиль с двухкамерным стеклопакетом.Своя кладoвая, где можно хранить резину, вещи.Дом под снос не планируется, 3 года назад был капитальный ремонт дома. ???? Забыли о парковке? Не проблема! У подъезда вечером всегда есть свободное место.Локация — главный козырь:Район Ботаника — уютный, зелёный, с развитой инфраструктурой.Весь общественный транспорт: метро 10 мин., автобус, трамвай, троллейбус в шаговой доступности.5 минут до Ботанического сада УРО РАН, 5 мин до ТЦ «Ботаника Молл», Окей, Дирижабль. СКВЕР-здecь нeт забот о высoткax, толькo cвежий вoздух и уют. Пeшeхoдные дорoжки, зoны oтдыхa c аттpaкционaми и споpтивнaя плoщадка — идeальнoe местo для пpогулoк и aктивного oтдыхa с сeмьeй.???? По прописке рядом с вами отличные школы: 39 гимназия, 102,18 школы. Поликлиники, Гимназия 120, гимназия 39 (Французская), гимназия 70 (Английская), Лицей 3. Ваши дети будут получать качественное образование в близости от дома.????️ На первом этаже расположены магазины, Кировский, Аптека, Озон, Яндекс маркет — все для вашего удобства и комфорта.Звоните сейчас, расскажу все подробности! ID объекта в нашей базе: 9231
    размещено: 19.11.2025 , обновлено: 26.11.2025
  • 2-к квартира, Трактористов, 5

    • 43.4 м2
    • 2/5 этаж
    • Состояние: хорошее
    5 300 000 ₽ (122100 ₽/м2)
    Замечательная, двухкомнатная квартира в районе Автовокзал-готова к встрече с Вами- новый Хозяин!!! До станции метро Ботаническая — 7 минут пешком! Хорошая транспортная доступность, можно легко добраться до любой точки города. Дом кирпичный, квартиры очень теплая. В квартире тихо и уютно, соседи хорошие, добросовестные люди. В квартире сделан косметический ремонт, во всех комнатах, кухне, коридоре сделан натяжной потолок. Так же имеется две кладовки, которые при желании можно убрать и расширить пространство в комнате. Один совершеннолетний собственник, залогов, обременений нет. Маткапитал на приобретение на использовался. Приходите на просмотр, ждем! ID объекта в нашей базе: 4836
    размещено: 18.11.2025 , обновлено: 23.11.2025
  • 2-к квартира, Белинского, 163 Г

    • 43 м2
    • 4/5 этаж
    • Состояние: хорошее
    5 190 000 ₽ (120700 ₽/м2)
    СРОЧНО. Продаётся просторная светлая квартира с красивейшим видом на город Екатеринбург. район Автовокзал. Близость к основным станциям метро: ботаническая 10 мин. пешком В шаговой доступности Парк ЦПКи О. Сделан дизайнерский ремонт. Вся техника остается. Современная кухня. Готова к проживанию. Парковка есть всегда. Закрыты двор. Дружелюбные соседи -настоящая атмосфера дома. Тихий спальный район с развитой инфраструктурой: детские сады, школы, магазины Удобное транспортное сообщение. Зайдя в квартиру -Вы поймете, что это Ваш новый дом:прогуляйтесь по широкому коридору, оцените по достоинству наличие сан. узла. Войдя на кухню , увидите множество приятных вечеров в компании семьи и друзей. Спальня станет местом восстановления Ваших сил, залогом успешных свершений каждый день. Приходите! Ждем Вас на просмотр.е заданоПродажа квартиры осуществляется нотариально, все документы от органов опеки получены, в квартире никто не прописан. Есть несовершеннолетние собственники. ID объекта в нашей базе: 18124
    размещено: 10.11.2025 , обновлено: 25.11.2025

    2-к квартира, Белинского, 165б

    • 50.6 м2
    • 12/12 этаж
    • Состояние: хорошее
    6 450 000 ₽ (127500 ₽/м2)
    Теплая , добротная квартира в кирпичном доме . В этом доме квартиры продают очень редко, а это значит соседи все постоянные. Стены толстые, звуки , топот не слышен. Удачное расположение , до центра на любом транспорте 5 мин. езды, рядом метро "Дирижабль" быстро домчит до центра или Уралмаш, Эльмаш. Рядом вся инфраструктура : кафе, магазины, школы, садики. С высокого этажа потрясающий вид на город.Квартира чистая, аккуратная. Лоджия большая, можно использовать для хранения вещей.Двор закрытый . Места для парковки достаточно ,Записывайтесь на просмотр. Очень хороший вариант. ID объекта в нашей базе: 18116
    размещено: 10.11.2025 , обновлено: 25.11.2025

    2-к квартира, Авиационная, 69

    • 43.7 м2
    • 4/5 этаж
    • Состояние: хорошее
    4 650 000 ₽ (106400 ₽/м2)
    Объект № 195259. В продаже двухкомнатная квартира. Комнаты изолированные, совмещенный санузел. Площадь 43.7 кв.м., 4 этаж. Развитая инфраструктура: рядом Автовокзал города, магазины, школы, детские сады, остановка транспорта в шаговой доступности, метро. Один собственник. Документы готовы. ***Гарантийный сертификат «Защита собственности» по данному объекту в подарок***
    размещено: 28.10.2025 , обновлено: 15.11.2025

    2-к квартира, Белинского, 156

    • 47.8 м2
    • 6/16 этаж
    • Состояние: идеальное
    7 300 000 ₽ (152700 ₽/м2)
    Продаётся уютная, светлая двухкомнатная квартира в 7 минутах ходьбы м. ЧкaлoвcкаявcяИнфрaстpуктуpа -мaгазины, кафe ,оcтaнoвки oбщeственного тpaнcпоpта и многое другое.В квартире остаётся кухонный гарнитур и вcя вcтрoeнная бытoвая тexника -xoлодильник, дуxoвoй шкаф, вap. пaнель, вытяжкa, пoсудoмoeчнaя мaшина… В ванной комнате большая душевая кабина. Большая лоджия полностью утепленная, сделана под кабинет.Один взрослый собственник более 5 лет. Чистая продажа. Без обременений. Показ по договоренности.Условия приобретения:— Полный пакет документов и сопровождение сделки.— Ипотека, Военная ипотека.— Взаимозачет Вашей недвижимости.— Сертификаты, Материнский капитал.Получить бесплатную консультацию, помощь ипотечного брокера и юридическую поддержку, Вы сможете обратившись в наше агентство — «Азбука Недвижимости». Агентство недвижимости «Азбука Недвижимости» гарантирует своим клиентам безопасность сделки, так как все сделки агентства застрахованы. ID объекта в нашей базе: 1924
    размещено: 09.10.2025 , обновлено: 10.11.2025

    2-к квартира, Очеретина, 7

    • 53 м2
    • 1/4 этаж
    • Состояние: хорошее
    5 800 000 ₽ (109400 ₽/м2)
    Объект № 189145. Светлая, просторная и очень уютная квартира в хорошем состоянии! Удобная планировка - просторные спальни, большой коридор. Окна выходят на аллею. Тихое место в Академическом, где спокойно и нет суеты. Всегда можно с легкостью найти место для парковки. Ждем Вас на просмотр! ***Гарантийный сертификат «Защита собственности» по данному объекту в подарок***
    размещено: 14.01.2025 , обновлено: 21.11.2025

    2-к квартира, Фурманова, 46

    • 41 м2
    • 1/5 этаж
    • Состояние: хорошее
    5 130 000 ₽ (125100 ₽/м2)
    Продаётся 2-комнатная квартира на Фурманова, 46 — с удобной и функциональной планировкой!Эта квартира — настоящий символ уюта и стабильности. И знаете, что удивительно? Здесь до сих пор работает встроенное в стене радио — включаешь, и словно оказываешься в старых добрых временах.Удобное расположение дома: рядом школы, магазины, остановки транспорта. Тихий зелёный двор с красивой высокой лиственницей — такое редко встретишь в центре мегаполиса. Квартира светлая, с правильной планировкой, без обременений. Комнаты и санузел изолированы.Один взрослый собственник, чистая продажа. Документы готовы — быстрый выход на сделку. Торг возможен после просмотра. Отличный вариант как для жизни, так и для инвестиций. Звоните, просмотр возможен в любое время. Ключи передадим на сделке. ID объекта в нашей базе: 1071
    размещено: 06.10.2025 , обновлено: 9.11.2025

    2-к квартира, Фурманова, 122

    • 42.3 м2
    • 4/5 этаж
    • Состояние: хорошее
    4 850 000 ₽ (114700 ₽/м2)
    Предлагаем вашему вниманию светлую 2-комнатную квартиру с прекрасным расположением!• Центр города: все необходимое в шаговой доступности.• Отличное расположение: рядом 2 парка для прогулок и отдыха, Торговый центр Фан-Фан, школы, садики, больницы.• Прекрасная транспортная доступность: удобные маршруты в любую точку города.• Кирпичный дом: обеспечивает отличную тепло- и звукоизоляцию.• Чистый подъезд: поддерживается порядок и чистота.• Хорошие соседи: дружная и спокойная атмосфера в доме.• Уютная планировка, прекрасный этаж.• Вместительная гардеробная, предусмотренная планом, но можно увеличить комнату за счет нее.• Есть балкон.Один совершеннолетний собственник, чистая продажа.Ждем вас на просмотр. ID объекта в нашей базе: 11603
    размещено: 29.09.2025 , обновлено: 9.11.2025

    2-к квартира, Онежская, 12

    • 49 м2
    • 5/9 этаж
    • Состояние: идеальное
    7 450 000 ₽ (152000 ₽/м2)
    Отличная квартира в хорошем месте рядом с метро. Ремонт полностью сделан. ЗАЕЗЖАЙ И ЖИВИ! 2 взрослых собственника. Без обременений. ID объекта в нашей базе: 1669
    размещено: 23.09.2025 , обновлено: 11.11.2025

    2-к квартира, Онежская, 7

    • 44 м2
    • 4/5 этаж
    • Состояние: идеальное
    6 300 000 ₽ (143200 ₽/м2)
    Предлагаю Вашему вниманию светлую и уютную квартиру, с качественным ремонтом. Квартира имеет уникальную планировку: 2 большие изолированные комнаты, в каждой из них балкон. Оба балкона остеклены и облагорожены. В подарок покупателю остается: три шкафа-купе, диван, кухонный гарнитур и стол книжка. Рядом с домом школы и детские сады, остановка общественного транспорта. ID объекта в нашей базе: 11388
    размещено: 19.09.2025 , обновлено: 5.11.2025

    2-к квартира, Чайковского, 80

    • 32 м2
    • 3/5 этаж
    • Состояние: хорошее
    5 000 000 ₽ (156300 ₽/м2)
    Продается двухкомнатная квартира в теплом доме, расположенном в удобном месте. В квартире сделан ремонт, в санузле установлены теплые полы. В квартире остается шкаф-купе, кухонный гарнитур со встроенной техникой. ID объекта в нашей базе: 706
    размещено: 10.09.2025 , обновлено: 15.11.2025

    2-к квартира, Трактористов, 13

    • 42.1 м2
    • 1/5 этаж
    • Состояние: удовлетворительное
    4 500 000 ₽ (106900 ₽/м2)
    Продаётся уютная 2-комнатная квартира. В кирпичном доме в одном из лучших районов города. ДОМ. Тёплый кирпичный дом, что гарантирует комфортный микроклимат. Зимой здесь всегда тепло, а летом сохраняется приятная прохлада. КВАРТИРА: Приятный бонус для новых хозяев, останется современный кондиционер, установленный весной 2025 года. ИНФРАСТРУКТУРА: Отличная локация. Весь район с развитой инфраструктурой. В шаговой доступности остановки, магазины, от супермаркетов до продуктовых. Аптеки, банки, кафе, все буквально в двух шагах. ТРАНСПОРТНАЯ ДОСТУПНОСТЬ: Рядом автовокзал и основные транспортные развязки, что удобно для поездок по городу и за его пределы. ЧИСТОТА СДЕЛКИ: Квартира не обременена залогами, ипотеками и долгами. Возможен максимально быстрый выход на сделку. Идеальный вариант для тех, кто ценит удобство, тишину и комфорт. ID объекта в нашей базе: 11007
    размещено: 28.08.2025 , обновлено: 6.11.2025

    2-к квартира, Щорса, 64

    • 42.7 м2
    • 5/5 этаж
    • Состояние: хорошее
    5 100 000 ₽ (119400 ₽/м2)
    В продаже двухкомнатная квартира с ремонтом! Вариант ЗАЕЗЖАЙ И ЖИВИ ! Комнаты светлые и просторные 18 и 10 кв м. Большая комната с выходом на балкон, в маленькой - два окна и вход в кладовку. Кухня квадратной формы 5,5 кв м, плита газовая. В санузле кафель, все атрибуты новые. Приятным бонусом является вся мебель, которую Вы видите на фото! Подъезд чистый, соседи адекватные. Во дворе большая новая детская площадка.Развита социальная, рыночная и транспортная инфраструктура! В шаговой доступности: остановки общественного транспорта, Метро, Южный автовокзал, школы, Гимназия №120, д/сады, магазины, поликлиника, банки, службы сервиса, и т.д.Один взрослый собственник. Имеется обременение в виде ипотеки, которую готовы закрыть. Звоните! Показы по договоренности. ID объекта в нашей базе: 1871
    размещено: 18.08.2025 , обновлено: 6.11.2025

    2-к квартира, Саввы Белых, 11

    • 43 м2
    • 5/5 этаж
    • Состояние: хорошее
    4 999 000 ₽ (116300 ₽/м2)
    Объект № 193777. Отличное расположение дома: не у дороги, вокруг много зелени, тишина и спокойствие. Квартира в хорошем состоянии, комфортной планировки: раздельный с/у, раздельные комнаты 16,4 и 12,4 кв. м. по обеим сторонам от кухни. Приятный вид из окон. Спокойные постоянные соседи. До метро пешком 10 мин., до всего остального общественного транспорта еще ближе. ***Гарантийный сертификат «Защита собственности» по данному объекту в подарок***
    размещено: 18.08.2025 , обновлено: 1.11.2025

    2-к квартира, Чайковского, 86/2

    • 42.6 м2
    • 5/5 этаж
    • Состояние: хорошее
    5 400 000 ₽ (126800 ₽/м2)
    Объект № 193618. Продается 2-комнатная квартира по адресу Чайковского, 86/2. Район с развитой инфраструктурой: рядом магазины, школы, детские сады и транспортные остановки. Двор утопает в зелени, что создает приятную атмосферу для жизни. Тихое расположение дома обеспечит спокойствие и комфорт. Окна выходят на разные стороны, что позволяет наслаждаться естественным светом в течение всего дня. Отличный вариант для семейной жизни! ***Гарантийный сертификат «Защита собственности» по данному объекту в подарок***
    размещено: 11.08.2025 , обновлено: 25.11.2025

    2-к квартира, Чапаева, 66а

    • 48.9 м2
    • 1/3 этаж
    • Состояние: хорошее
    6 000 000 ₽ (122700 ₽/м2)
    В продаже уютная, просторная двухкомнатная квартира в мкр. Автовокзал. Комнаты изолированные, расположены на разные стороны. В квартире сделан капитальный ремонт, поменяна проводка, заменили трубы. Установлена новая сейф - дверь, пластиковые окна, на полу - ламинат, поменяны межкомнатные двери, установлен газовый водонагреватель. В квартире остается кухонный гарнитур с варочной поверхностью и духовым шкафом, в коридоре - встроенный шкаф и прихожая, в спальне остается шкаф - купе, в гостиной - стенка, остальная мебель по согласованию. Во дворе дома есть свое парковочное место. Район с развитой инфраструктурой, удобное месторасположение дома, рядом есть все для комфортной жизни, детские сады, школы, больницы, метро - Чкаловская, 5 мин. пешком, остановки общественного транспорта, ТЦ Мегаполис, Марс, различные магазины, кафе, недалеко находится парк Маяковского. Один взрослый собственник, документы готовы к сделке! Задолженностей и обременений нет! Ждем Вас на просмотры, по предварительной договоренности! ID объекта в нашей базе: 10645
    размещено: 07.08.2025 , обновлено: 6.11.2025

    2-к квартира, Белинского, 135

    • 44.1 м2
    • 9/9 этаж
    • Состояние: хорошее
    6 100 000 ₽ (138300 ₽/м2)
    Двухкомнатная квартира в престижном районе ЕкатеринбургаИдеальное жилье для комфортной жизниПредставляем вашему вниманию великолепную двухкомнатную квартиру в одном из самых востребованных районов города — районе Южного автовокзала. Расположение на 9 этаже обеспечивает прекрасный вид и максимальный комфорт проживания.Преимущества квартиры:Изолированная планировка — каждая комната имеет свой характер и назначениеРаздельный санузел — удобство для всей семьиФункциональная кухня — место для кулинарных шедевровРазвитая инфраструктура:Транспортная доступность — быстрый выезд на основные магистралиМетро «Чкаловская» в пешей доступностиТорговый центр «Мегаполис» — все для комфортной жизниОбразовательные учреждения — школы и детские сады рядомПарк Маяковского — место для отдыха и прогулокКомфорт проживания:Тихий двор — защищенное пространство для отдыхаЗелёная территория — чистый воздух и уютУдобная парковка — места для автомобиля всегда найдутсяЭта квартира станет идеальным выбором для:Молодых семей с детьмиПар, ценящих комфорт и удобствоЮридическая чистота сделки гарантирована — один собственник, без обременений.Не упустите возможность стать владельцем этой прекрасной квартиры! Запишитесь на просмотр прямо сейчас, чтобы оценить все преимущества лично.Звоните — ответим на все вопросы и организуем показ в удобное для вас время! ID объекта в нашей базе: 4443
    размещено: 29.07.2025 , обновлено: 26.11.2025

Новостройки Екатеринбург, мкр-н. Автовокзал

Приоритет

Увеличивает просмотры в 3 раза

Ваше объявление показывается в списке выше обычных объявлений. подключить