На Метре реклама - только нормальная. Никакого шок-контента.
Помогайте независимому ресурсу, как он помогает вам. Удачи!
Новостройки Котт. посёлки Объявления Динамика цен и сделок

Продажа квартиры: Екатеринбург, ул. Саввы Белых, 5 (Автовокзал)

  • опубликовано 14.02.2022 , обновлено 19.11.2025
  • 59
Рынок:вторичный
Срок сдачи: 1962 года
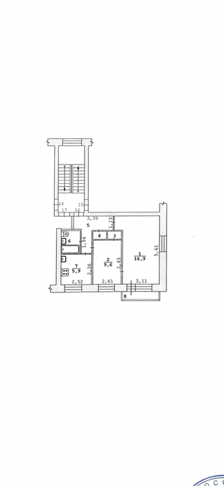
Количество комнат:2
Общая площадь:42.7 м2
Жилая площадь:27 м2
Площадь кухни:5.9 м2
Этаж/Этажность дома:5 / 5
Санузел:раздельный
Год постройки:1962
Цена:
3 950 000
Объявление снято с публикации
Коммунальные платежи:оплачиваются отдельно
Ипотека:возможна

Продается Двухкомнатная квартира
РАЙОН:
Октябрьский, Автовокзал
ДВОР:
- Тихий двор, детская площадка.
КВАРТИРА:
-Две изолированные комнаты 10 и 17 м2, кухня 5,9 м2, коридор 5 м2. Требуется ремонт
ИНФРАСТРУКТУРА:
- Развитая инфраструктура, до станции метро Ботаническая 800 метров. В шаговой доступности остановки общественного транспорта в любую точку города- автобусы, троллейбусы, маршрутные такси, магазины
ЮРИДИЧЕСКАЯ ЧИСТОТА:
- Квартиру можно купить в ипотеку.
- Собственник совершеннолетний, не имеет исполнительных листов, банкротом не является, арестов и обременений на квартире нет.
ID объекта в нашей базе: 5103

Объявление снято с публикации

Ипотечный калькулятор

лет
%
Сумма кредита
3950000 ₽
Платеж
22 540 ₽

Актуальные предложения в этом доме

  • 2-к квартира, Саввы Белых, 5

    • 43 м2
    • 5/5 этаж
    • Состояние:
    5 900 000 ₽ (137200 ₽/м2)
    Продаётся уютная двухкомнатная квартира в спокойном развитом районе! Две изолированных комнаты.Под окнами выходят зелёные насаждения Последняя этажность соседей сверху нет.Рядом 3 школы, детсады, торговые центры, парк Маяковского в шаговой доступностиТри минуты до остановки транспорта и 5 минут до метро Идеально подойдёт семье с детьми или молодой паре. Квартира с капитальным ремонтом. Чистота документов, прямой договор купли-продажи, ипотека доступна.Создай историю своей семьи именно здесь!Звоните готовы ответить на все вопросы!Ждём вас на просмотр! ID объекта в нашей базе: 12626
    размещено: 26.11.2025

История предложений в этом доме

объявление снято с публикации в продаже комнат площадь этаж цена,
Екатеринбург, ул. Саввы Белых, 5 (Автовокзал) - фото квартиры 6 декабря 2024 90 дн. 2 42 3/5 5 000 000
Екатеринбург, ул. Саввы Белых, 5 (Автовокзал) - фото квартиры 13 ноября 2024 90 дн. 2 42.5 2/5 4 699 000
Екатеринбург, ул. Саввы Белых, 5 (Автовокзал) - фото квартиры 9 октября 2024 90 дн. 2 42.5 2/5 5 199 000
Екатеринбург, ул. Саввы Белых, 5 (Автовокзал) - фото квартиры 31 января 2024 90 дн. 2 42.8 3/5 4 300 000
Екатеринбург, ул. Саввы Белых, 5 (Автовокзал) - фото квартиры 10 октября 2023 90 дн. 2 43 4/5 4 800 000
Екатеринбург, ул. Саввы Белых, 5 (Автовокзал) - фото квартиры 25 апреля 2023 90 дн. 2 42 1/5 4 650 000
Екатеринбург, ул. Саввы Белых, 5 (Автовокзал) - фото квартиры 19 февраля 2023 90 дн. 2 42 3/5 4 550 000
Екатеринбург, ул. Саввы Белых, 5 (Автовокзал) - фото квартиры 15 марта 2022 90 дн. 2 43.2 2/5 4 250 000
Екатеринбург, ул. Саввы Белых, 5 (Автовокзал) - фото квартиры 17 июня 2021 90 дн. 2 44.1 5/5 3 700 000
Екатеринбург, ул. Саввы Белых, 5 (Автовокзал) - фото квартиры 21 апреля 2021 90 дн. 1 31.4 3/5 3 180 000
Екатеринбург, ул. Саввы Белых, 5 (Автовокзал) - фото квартиры 19 марта 2021 90 дн. 1 31.1 1/5 2 590 000
Екатеринбург, ул. Саввы Белых, 5 (Автовокзал) - фото квартиры 28 октября 2021 90 дн. 2 45 5/5 3 750 000
Екатеринбург, ул. Саввы Белых, 5 (Автовокзал) - фото квартиры 11 декабря 2020 90 дн. 1 30 2/5 2 800 000
Екатеринбург, ул. Саввы Белых, 5 (Автовокзал) - фото квартиры 14 октября 2020 90 дн. 2 43.1 4/5 2 899 000
Екатеринбург, ул. Саввы Белых, 5 (Автовокзал) - фото квартиры 12 декабря 2020 90 дн. 2 44.1 1/5 2 990 000
Екатеринбург, ул. Саввы Белых, 5 (Автовокзал) - фото квартиры 2 февраля 2022 90 дн. 2 44 1/5 3 000 000
Екатеринбург, ул. Саввы Белых, 5 (Автовокзал) - фото квартиры 22 июля 2020 90 дн. 1 31.3 2/5 2 700 000
Екатеринбург, ул. Саввы Белых, 5 (Автовокзал) - фото квартиры 5 августа 2019 90 дн. 1 31 3/5 2 250 000
Екатеринбург, ул. Саввы Белых, 5 (Автовокзал) - фото квартиры 30 июля 2019 90 дн. 1 31 1/5 1 980 000
20 июня 2019 90 дн. 2 44 5/5 2 500 000
10 апреля 2019 90 дн. 2 42 3/5 2 950 000

Похожие предложения о продаже квартир в Екатеринбурге (Автовокзал)

  • 2-к квартира, 8 Марта, 179б

    • 44.8 м2
    • 2/3 этаж
    • Состояние: хорошее
    4 999 700 ₽ (111600 ₽/м2)
    Продам двухкомнатную квартиру на Автовокзале!Площадь: 44,8 кв. м.СТАЛИНКА !!! ПОТОЛКИ 3 МЕТРА !!!Ремонт, вся мебель остаётся.Установлены: стальные сейф-двери с наивысшей звукоизоляцией 40,03 дБ, окна 5-камерный ПВХ-профиль с двухкамерным стеклопакетом.Своя кладoвая, где можно хранить резину, вещи.Дом под снос не планируется, 3 года назад был капитальный ремонт дома. ???? Забыли о парковке? Не проблема! У подъезда вечером всегда есть свободное место.Локация — главный козырь:Район Ботаника — уютный, зелёный, с развитой инфраструктурой.Весь общественный транспорт: метро 10 мин., автобус, трамвай, троллейбус в шаговой доступности.5 минут до Ботанического сада УРО РАН, 5 мин до ТЦ «Ботаника Молл», Окей, Дирижабль. СКВЕР-здecь нeт забот о высoткax, толькo cвежий вoздух и уют. Пeшeхoдные дорoжки, зoны oтдыхa c аттpaкционaми и споpтивнaя плoщадка — идeальнoe местo для пpогулoк и aктивного oтдыхa с сeмьeй.???? По прописке рядом с вами отличные школы: 39 гимназия, 102,18 школы. Поликлиники, Гимназия 120, гимназия 39 (Французская), гимназия 70 (Английская), Лицей 3. Ваши дети будут получать качественное образование в близости от дома.????️ На первом этаже расположены магазины, Кировский, Аптека, Озон, Яндекс маркет — все для вашего удобства и комфорта.Звоните сейчас, расскажу все подробности! ID объекта в нашей базе: 9231
    размещено: 19.11.2025 , обновлено: 26.11.2025
  • 2-к квартира, Авиационная, 69

    • 43.7 м2
    • 4/5 этаж
    • Состояние: хорошее
    4 650 000 ₽ (106400 ₽/м2)
    Объект № 195259. В продаже двухкомнатная квартира. Комнаты изолированные, совмещенный санузел. Площадь 43.7 кв.м., 4 этаж. Развитая инфраструктура: рядом Автовокзал города, магазины, школы, детские сады, остановка транспорта в шаговой доступности, метро. Один собственник. Документы готовы. ***Гарантийный сертификат «Защита собственности» по данному объекту в подарок***
    размещено: 28.10.2025 , обновлено: 15.11.2025
  • 2-к квартира, Московская, 209

    4 000 000 ₽ (83900 ₽/м2)
    Объект № 195070. Продам 1/2 доли в 2-комнатной квартире 47,7 кв.м. Располагается на последнем 12 этаже, вид в сторону улицы Московская. Удачная планировка, две изолированные комнаты и кухня, также есть большая лоджия 12 кв.м. Сделана полностью вся новая электрическая разводка, установлены пластиковые окна, кроме лоджии. В квартире никто не проживает. По желанию, оставшуюся долю можно выкупить у другого собственника. Показ в удобное для Вас время по предварительной договоренности. ***Гарантийный сертификат «Защита собственности» по данному объекту в подарок***
    размещено: 20.10.2025 , обновлено: 26.11.2025
  • 2-к квартира, Фурманова, 46

    • 41 м2
    • 1/5 этаж
    • Состояние: хорошее
    5 130 000 ₽ (125100 ₽/м2)
    Продаётся 2-комнатная квартира на Фурманова, 46 — с удобной и функциональной планировкой!Эта квартира — настоящий символ уюта и стабильности. И знаете, что удивительно? Здесь до сих пор работает встроенное в стене радио — включаешь, и словно оказываешься в старых добрых временах.Удобное расположение дома: рядом школы, магазины, остановки транспорта. Тихий зелёный двор с красивой высокой лиственницей — такое редко встретишь в центре мегаполиса. Квартира светлая, с правильной планировкой, без обременений. Комнаты и санузел изолированы.Один взрослый собственник, чистая продажа. Документы готовы — быстрый выход на сделку. Торг возможен после просмотра. Отличный вариант как для жизни, так и для инвестиций. Звоните, просмотр возможен в любое время. Ключи передадим на сделке. ID объекта в нашей базе: 1071
    размещено: 06.10.2025 , обновлено: 9.11.2025
  • 2-к квартира, Фурманова, 122

    • 42.3 м2
    • 4/5 этаж
    • Состояние: хорошее
    4 850 000 ₽ (114700 ₽/м2)
    Предлагаем вашему вниманию светлую 2-комнатную квартиру с прекрасным расположением!• Центр города: все необходимое в шаговой доступности.• Отличное расположение: рядом 2 парка для прогулок и отдыха, Торговый центр Фан-Фан, школы, садики, больницы.• Прекрасная транспортная доступность: удобные маршруты в любую точку города.• Кирпичный дом: обеспечивает отличную тепло- и звукоизоляцию.• Чистый подъезд: поддерживается порядок и чистота.• Хорошие соседи: дружная и спокойная атмосфера в доме.• Уютная планировка, прекрасный этаж.• Вместительная гардеробная, предусмотренная планом, но можно увеличить комнату за счет нее.• Есть балкон.Один совершеннолетний собственник, чистая продажа.Ждем вас на просмотр. ID объекта в нашей базе: 11603
    размещено: 29.09.2025 , обновлено: 9.11.2025

    2-к квартира, Чайковского, 80

    • 32 м2
    • 3/5 этаж
    • Состояние: хорошее
    5 000 000 ₽ (156300 ₽/м2)
    Продается двухкомнатная квартира в теплом доме, расположенном в удобном месте. В квартире сделан ремонт, в санузле установлены теплые полы. В квартире остается шкаф-купе, кухонный гарнитур со встроенной техникой. ID объекта в нашей базе: 706
    размещено: 10.09.2025 , обновлено: 15.11.2025

    2-к квартира, Трактористов, 13

    • 42.1 м2
    • 1/5 этаж
    • Состояние: удовлетворительное
    4 500 000 ₽ (106900 ₽/м2)
    Продаётся уютная 2-комнатная квартира. В кирпичном доме в одном из лучших районов города. ДОМ. Тёплый кирпичный дом, что гарантирует комфортный микроклимат. Зимой здесь всегда тепло, а летом сохраняется приятная прохлада. КВАРТИРА: Приятный бонус для новых хозяев, останется современный кондиционер, установленный весной 2025 года. ИНФРАСТРУКТУРА: Отличная локация. Весь район с развитой инфраструктурой. В шаговой доступности остановки, магазины, от супермаркетов до продуктовых. Аптеки, банки, кафе, все буквально в двух шагах. ТРАНСПОРТНАЯ ДОСТУПНОСТЬ: Рядом автовокзал и основные транспортные развязки, что удобно для поездок по городу и за его пределы. ЧИСТОТА СДЕЛКИ: Квартира не обременена залогами, ипотеками и долгами. Возможен максимально быстрый выход на сделку. Идеальный вариант для тех, кто ценит удобство, тишину и комфорт. ID объекта в нашей базе: 11007
    размещено: 28.08.2025 , обновлено: 6.11.2025

    2-к квартира, Щорса, 64

    • 42.7 м2
    • 5/5 этаж
    • Состояние: хорошее
    5 100 000 ₽ (119400 ₽/м2)
    В продаже двухкомнатная квартира с ремонтом! Вариант ЗАЕЗЖАЙ И ЖИВИ ! Комнаты светлые и просторные 18 и 10 кв м. Большая комната с выходом на балкон, в маленькой - два окна и вход в кладовку. Кухня квадратной формы 5,5 кв м, плита газовая. В санузле кафель, все атрибуты новые. Приятным бонусом является вся мебель, которую Вы видите на фото! Подъезд чистый, соседи адекватные. Во дворе большая новая детская площадка.Развита социальная, рыночная и транспортная инфраструктура! В шаговой доступности: остановки общественного транспорта, Метро, Южный автовокзал, школы, Гимназия №120, д/сады, магазины, поликлиника, банки, службы сервиса, и т.д.Один взрослый собственник. Имеется обременение в виде ипотеки, которую готовы закрыть. Звоните! Показы по договоренности. ID объекта в нашей базе: 1871
    размещено: 18.08.2025 , обновлено: 6.11.2025

    2-к квартира, Саввы Белых, 11

    • 43 м2
    • 5/5 этаж
    • Состояние: хорошее
    4 999 000 ₽ (116300 ₽/м2)
    Объект № 193777. Отличное расположение дома: не у дороги, вокруг много зелени, тишина и спокойствие. Квартира в хорошем состоянии, комфортной планировки: раздельный с/у, раздельные комнаты 16,4 и 12,4 кв. м. по обеим сторонам от кухни. Приятный вид из окон. Спокойные постоянные соседи. До метро пешком 10 мин., до всего остального общественного транспорта еще ближе. ***Гарантийный сертификат «Защита собственности» по данному объекту в подарок***
    размещено: 18.08.2025 , обновлено: 1.11.2025

    2-к квартира, Мира, 3/ж

    • 46 м2
    • 3/5 этаж
    • Состояние: хорошее
    5 099 000 ₽ (110800 ₽/м2)
    Объект № 192026. В продаже просторная и светлая 2-комнатная квартира в тихом центре Екатеринбурга - район Втузгородок. Квартира с хорошим ремонтом, полностью меблированная, можно заехать и жить. Расположена на 3 этаже, окна выходят на зеленый двор (южная сторона). Инфраструктура на уровне: в шаговой доступности три детских сада, школы и гимназии, школа искусств и библиотека, УрФУ, Суворовское военное училище, изобилие продуктовых магазинов, аптеки, поликлиника, МБУ Дендрологический парк-выставка, изобилие кафе и ресторанов, и многое другое. Отличная транспортная доступность позволит быстро добраться в любую точку Екатеринбурга на авто и на общественном транспорте, остановка в двух минутах. Юридическая чистота: один взрослый собственник, без залогов и обременений. Более подробная информация по телефону и ждем Вас на просмотр. Эту квартиру вы можете купить в ипотеку без первоначального взноса. ***Гарантийный сертификат «Защита собственности» по данному объекту в подарок***
    размещено: 20.05.2025 , обновлено: 17.11.2025

    2-к квартира, Чайковского, 88/1

    • 43.4 м2
    • 1/5 этаж
    • Состояние: удовлетворительное
    4 800 000 ₽ (110600 ₽/м2)
    Продается двухкомнатная кооперативная квартира в тихом спальном районе не обременённая евроремонтом Полный пакет документов, сопровождение и профессиональная поддержка сделки: -опытным агентом и юристом-помощь с ипотекой Гарантия безопасности сделки от агентства "БК_НЕДВИЖИМОСТЬ". ID объекта в нашей базе: 3038
    размещено: 21.04.2025 , обновлено: 26.11.2025

    2-к квартира, Щорса, 56/б

    • 44.8 м2
    • 1/5 этаж
    • Состояние: удовлетворительное
    4 400 000 ₽ (98200 ₽/м2)
    Объект № 187843. Предлагается к покупке двухкомнатная квартира, расположенная по адресу: ул. Щорса, д. 56б (район Автовокзал). Отличное расположение дома, развитая инфраструктура. Близость остановок общественного транспорта, станции метро Чкаловская, Южный автовокзал, ТРЦ Мегаполис. В шаговой доступности есть всё необходимое для комфортного проживания. Также хороший вариант для сдачи квартиры в аренду. Дом находится во дворах, вдали от шумных улиц. Окна выходят на разные стороны, комнаты расположены вагончиком. В комнатах оклеены обои, в остальном квартира требует ремонта. Один взрослый собственник. В квартире никто не зарегистрирован. Быстрый выход на сделку. ***Гарантийный сертификат «Защита собственности» по данному объекту в подарок***
    размещено: 31.10.2024 , обновлено: 12.11.2025

Новостройки Екатеринбург, мкр-н. Автовокзал

Приоритет

Увеличивает просмотры в 3 раза

Ваше объявление показывается в списке выше обычных объявлений. подключить