Top.Mail.Ru
На Метре реклама - только нормальная. Никакого шок-контента.
Помогайте независимому ресурсу, как он помогает вам. Удачи!
Средняя цена м² · Новостройки
178 600 ₽/м²
↑ 6,88% за 12 мес.
Средняя цена м² · Вторичка
141 328 ₽/м²
↑ 11% за 12 мес.
Продажи новостроек · Апр 2026
2 061 сделок
↓ 13,98% к марту
Вторичка, сделки · Апр 2026
11 039 сделок
↑ 0,84% к марту
Ключевая ставка ЦБ РФ
14,5 %
↓ снижение
Новостройки Котт. посёлки Объявления Динамика цен и сделок

Продажа квартиры: г. Ревда, ул. Чехова, 45 (городской округ Ревда)

  • опубликовано 5.04.2022 , обновлено 19.04.2026
  • 19
Кадастровый номер:66:21:0101046:803
Рынок:вторичный
Количество комнат:2
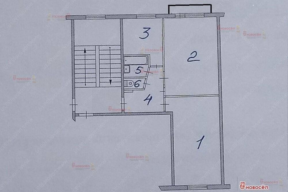
Общая площадь:46 м2
Жилая площадь:32 м2
Площадь кухни:6 м2
Этаж/Этажность дома:3 / 5
Санузел:раздельный
Отделка:евроремонт
Состояние:хорошее
Цена:
1 890 000
Объявление снято с публикации
Коммунальные платежи:оплачиваются отдельно
Ипотека:возможна

Объект № 157684. Продам 2-комнатную квартиру. Брежневка полнометражка, общей площадью 45,6 кв. м.

Дом кооперативного типа, расположен внутри двора, квартира в центре дома на третьем этаже.
В квартире установлены стеклопакеты, окна выходят во двор, а так же на детскую площадку. Балкон застеклен алюминиевыми рамами, входная железная дверь, заменены трубы, счетчики. Есть газовая колонка, что существенно сокращает расходы по коммунальным платежам, а так же обеспечивает наличие горячей воды круглогодично.

Сделан косметический ремонт, но требует обновления. Квартира очень теплая.
Удобное расположение дома, во дворе детский сад, вблизи школа.
При продаже остается новая газовая плита, при желании можем оставить холодильник и стиральную машину. ***Гарантийный сертификат «Защита собственности» по данному объекту в подарок***

Объявление снято с публикации

Ипотечный калькулятор

лет
%
Сумма кредита
1890000 ₽
Платеж
22 540 ₽

Актуальные предложения в этом доме

История предложений в этом доме

объявление снято с публикации в продаже комнат площадь этаж цена,
г. Ревда, ул. Чехова, 45 (городской округ Ревда) - фото квартиры 20 сентября 2025 90 дн. 1 25 1/5 1 600 000

Похожие предложения о продаже квартир в г. Ревда

  • 2-к квартира, Кирзавод, 12

    • 45 м2
    • 1/2 этаж
    • Состояние: хорошее
    2 400 000 ₽ (53300 ₽/м2)
    Продам двухкомнатную квартиру в центре Кирзавода. Всë в шаговой доступности- новая школа, детский сад с бассейном, спорт комплекс со стадионом, клуб- с кружками для детей, магазины, даже свой пляж. Автобусная остановка рядом. В квартире поменяны стеклопакеты, в одной комнате натяжной потолок, радиаторы отопления и ламинат. Самое главное документы готовы. Чистая продажа. ID объекта в нашей базе: 495
    размещено: 09.12.2024 , обновлено: 20.05.2026
  • 2-к квартира, Олега Кошевого, 9

    • 42.5 м2
    • 4/5 этаж
    • Состояние: удовлетворительное
    2 450 000 ₽ (57600 ₽/м2)
    Объект № 186093. Предлагается к продаже уютная 2 комнатная квартира в самом центре города — идеальное место для комфортной жизни! Район с развитой инфраструктурой. В шаговой доступности остановки общественного транспорта, торговые центры, детские сады и школы, поликлиника, кафе и рестораны, парки и зоны отдыха. Квартира светлая и тёплая, окна из ПВХ, выходят на противоположные стороны дома (обеспечивает хорошую вентиляцию и естественное освещение), застеклённый балкон, установлены все необходимые счётчики (вода, электричество), ровные стены и потолки, готова к косметическому ремонту по вашему вкусу. Чистый, ухоженный подъезд, доброжелательные соседи, исправные лифты (если есть), благоустроенная придомовая территория. Квартира без обременений, залогов и арестов, полная юридическая чистота сделки, все документы готовы к оформлению. Быстрый выход на сделку, возможен любой удобный для вас способ расчёта: наличный расчёт; ипотека (помощь в одобрении); материнский капитал; другие формы оплаты обсуждаем индивидуально. Звоните прямо сейчас, чтобы записаться на просмотр! ***Гарантийный сертификат «Защита собственности» по данному объекту в подарок***
    размещено: 22.08.2024 , обновлено: 18.05.2026

Приоритет

Увеличивает просмотры в 3 раза

Ваше объявление показывается в списке выше обычных объявлений. подключить