На Метре реклама - только нормальная. Никакого шок-контента.
Помогайте независимому ресурсу, как он помогает вам. Удачи!
Новостройки Котт. посёлки Объявления Динамика цен и сделок

Продажа квартиры: Екатеринбург, ул. Уральская, 6 (Пионерский)

  • опубликовано 4.08.2022 , обновлено 30.10.2025
  • 113
Кадастровый номер:66:01/01:00:1062:06:27
Рынок:вторичный
Срок сдачи: 1985 года
Количество комнат:2
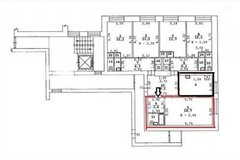
Общая площадь:27 м2
Жилая площадь:26 м2
Площадь кухни:0.00 м2
Этаж/Этажность дома:8 / 9
Санузел:раздельный
Отделка:евроремонт
Год постройки:1985
Состояние:хорошее
Цена:
3 200 000
Объявление снято с публикации
Коммунальные платежи:оплачиваются отдельно
Ипотека:возможна

Объект № 162557. Продается очень уютная, солнечная и чистая двухкомнатная квартира в малосемейном секционном общежитии (кирпичный дом). Просторное помещение состоит из двух изолированных больших комнат и кухни (площадь по документам составляет 27 кв.м., фактическая площадь 40 кв.м). В квартире раздельный санузел с душем и ванной. Все окна пластиковые, новые радиаторы отопления.
В секции также есть общая кухня, которая используется жильцами как помещение для хранения вещей и прихожая зона. Все соседи спокойные, порядочные и чистоплотные.
Расположение дома очень удобное и ликвидное во всех отношениях. В шаговой доступности остановки общественного транспорта (автобус, трамвай, маршрутное такси и метро), магазины, аптеки, школы и детские сады, ТРЦ Парк Хаус, Основинский парк, вся развитая инфраструктура Пионерского района. В подъезде соблюдается порядок.
Наша квартира – это отличное бюджетное решение и достойный вариант для молодой семьи с детьми или без. Звоните, записывайтесь на просмотр, покажем в удобное время. Реальному покупателю торг. ***Гарантийный сертификат «Защита собственности» по данному объекту в подарок***

Объявление снято с публикации

Ипотечный калькулятор

лет
%
Сумма кредита
3200000 ₽
Платеж
22 540 ₽

История предложений в этом доме

объявление снято с публикации в продаже комнат площадь этаж цена,
Екатеринбург, ул. Уральская, 6 (Пионерский) - фото квартиры 7 мая 2024 90 дн. 1 34 4/9 4 100 000
Екатеринбург, ул. Уральская, 6 (Пионерский) - фото квартиры 25 июня 2023 90 дн. 2 40 9/9 3 200 000
Екатеринбург, ул. Уральская, 6 (Пионерский) - фото квартиры 24 мая 2023 90 дн. 2 40 9/9 3 150 000
22 августа 2020 90 дн. 1 33 8/9 2 150 000
Екатеринбург, ул. Уральская, 6 (Пионерский) - фото квартиры 3 июня 2020 90 дн. 1 32 7/9 2 490 000
Екатеринбург, ул. Уральская, 6 (Пионерский) - фото квартиры 26 февраля 2020 90 дн. 2 41 8/9 3 290 000
Екатеринбург, ул. Уральская, 6 (Пионерский) - фото квартиры 11 февраля 2020 90 дн. 1 32.5 3/9 2 570 000
Екатеринбург, ул. Уральская, 6 (Пионерский) - фото квартиры 11 марта 2020 90 дн. 1 23 5/9 1 580 000
Екатеринбург, ул. Уральская, 6 (Пионерский) - фото квартиры 3 апреля 2020 90 дн. 1 32.5 3/9 2 650 000
Екатеринбург, ул. Уральская, 6 (Пионерский) - фото квартиры 15 декабря 2019 90 дн. 1 25 5/9 1 800 000
23 апреля 2019 90 дн. 2 40.3 6/9 2 770 000
27 августа 2017 122 дн. 2 39 9/9 2 140 000

Похожие предложения о продаже квартир в Екатеринбурге (Пионерский)

  • 2-к квартира, Советская, 47д

    • 40.1 м2
    • 1/3 этаж
    • Состояние: хорошее
    3 850 000 ₽ (96000 ₽/м2)
    Продается двухкомнатная квартира. Хорошее месторасположение, развитая инфраструктура, в шаговой доступности детские сады, школы, гимназия № 35, остановки общественного транспорта, магазины, аптеки. Квартире требуется косметический ремонт.Чистая продажа, ипотека возможна. ID объекта в нашей базе: 402
    размещено: 28.08.2025 , обновлено: 14.12.2025

Новостройки Екатеринбург, мкр-н. Пионерский

Приоритет

Увеличивает просмотры в 3 раза

Ваше объявление показывается в списке выше обычных объявлений. подключить