Top.Mail.Ru
На Метре реклама - только нормальная. Никакого шок-контента.
Помогайте независимому ресурсу, как он помогает вам. Удачи!
Средняя цена м² · Новостройки
177 600 ₽/м²
↑ 7,44% за 12 мес.
Средняя цена м² · Вторичка
141 328 ₽/м²
↑ 11% за 12 мес.
Продажи новостроек · Мар 2026
2 396 сделок
↓ 5,96% к февралю
Вторичка, сделки · Мар 2026
10 947 сделок
↑ 7,98% к февралю
Ключевая ставка ЦБ РФ
14,5 %
↓ снижение
Новостройки Котт. посёлки Объявления Динамика цен и сделок

Продажа квартиры: Екатеринбург, ул. Минометчиков, 44 (Старая Сортировка)

  • опубликовано 5.08.2022 , обновлено 10.04.2026
  • 38
Рынок:вторичный
Срок сдачи: 1969 года
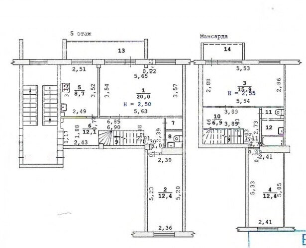
Количество комнат:4
Общая площадь:100 м2
Жилая площадь:61 м2
Площадь кухни:9 м2
Этаж/Этажность дома:5 / 6
Отделка:требует ремонта
Год постройки:1969
Балкон/лоджия:2 лоджии
Состояние:удовлетворительное
Цена:
5 900 000
Объявление снято с публикации
Коммунальные платежи:оплачиваются отдельно
Торг:торг
Ипотека:возможна

Предлагается к продаже квартира в доме, который в 1993 году прошел реконструкцию. Был надстроен шестой этаж и кирпичные лоджии. В кварте два уровня, но главная ее особенность в том, что площадь квартиры как жилая, так и общая использованы максимально, нет пустых площадей в виде коридоров и углов.

Комнаты большие, удобной формы, две из которых имеют по два окна. Квартира ждет ремонта по вашему вкусу и предпочтению. В ней нет несущих стен, есть балки перекрытий, наличие в большой комнате трех окон на одной стене дает возможность свободной планировки пространства.

В кварте два санузла на первом и втором этаже и две лоджии. Квартира подойдет большой семье, также работникам эстетики, так как внизу можно сделать студию, а вверху жилое пространство. При желании можно сделать хостел.

В этом году в подъезде запланирован ремонт и замена окон, о чем на лестничной площадке уже висит объявление. Квартира очень тёплая. Рядом вся инфраструктура, очень хорошая школа, детские сады, есть футбольный корт.

Зимой заливают каток и устанавливают ёлку. Чистая продажа , один собственник, квартира освобождена.
ID объекта в нашей базе: 2488

Объявление снято с публикации

Ипотечный калькулятор

лет
%
Сумма кредита
5900000 ₽
Платеж
22 540 ₽

Актуальные предложения в этом доме

  • 2-к квартира, Минометчиков, 44

    • 56.6 м2
    • 2/5 этаж
    • Состояние:
    6 500 000 ₽ (114800 ₽/м2)
    Продам отличную квартиру для семьи.Квартира расположена в спальном районе с развитой инфраструктурой.Рядом торговые центры, школы, детские сады, художественная и музыкальная школы.В квартире пластиковые окна, натяжные потолки.Поменяны трубы и стояки холодного и горячего водоснабжения.Счетчики установлены.В квартире остается кухонный гарнитур с барной стойкой, шкафы в прихожей, детская -ученическая стенка, шкаф -купе.В доме запланирован в этом году капитальный ремонт.Документы в полном порядке.Обременений нет.Рассмотрим ваши предложения. ID объекта в нашей базе: 5703
    размещено: 08.04.2026 , обновлено: 8.05.2026
  • 2-к квартира, Минометчиков, 44

    • 56.8 м2
    • 4/5 этаж
    • Состояние:
    4 799 000 ₽ (84500 ₽/м2)
    Продается солнечная 2-комнатная квартира в Железнодорожном районе (мкр. Старая Сортировка) – идеальное решение для семьи! ???? Площадь: 56,8 кв.м ???? Почему эта квартира – отличный выбор? ???? Удобная планировка: Две изолированные комнаты правильной формы – легко зонировать под спальню, детскую или рабочий кабинет. Просторный коридор со шкафами – место для хранения всего необходимого. Раздельный санузел – комфорт для всей семьи. Большая лоджия – идеальное место для отдыха, цветов или хранения. ????️ Мебель в подарок: Кухонный гарнитур с газовой плитой и шкаф уже ждут новых хозяев. Остальное обговорим – можем оставить или убрать по вашему желанию. Транспортная доступность (5-7 мин пешком): Остановки – маршруты автобусов 43, 57, 61., 014, 082, 083, 09, 021. Ближайшая станция метро "Железнодорожный вокзал" – 10 минут на транспорте. Выезд на МКАД и трассу М5 – удобно для автовладельцев. Магазины и бытовые услуги (3-10 мин пешком): Продуктовые супермаркеты: "Пятёрочка", "Магнит", "Верный". Аптеки: "Аптека-36.6", "Ригла". Салоны красоты, парикмахерские, ателье. Банки: Сбербанк, ВТБ, Альфа-Банк (банкоматы и отделения). ???? Образование и развитие для детей: Художественная школа №1 – 3 минуты пешком. Детская музыкальная школа №5 – 5 минут пешком. Детские сады и школы в радиусе 10-15 минут. ????️ Комфортный двор и зоны отдыха: Детская площадка с горками, качелями и песчаным сектором. Спортивная зона с турниками и скамейками. Зелёные насаждения – ухоженные газоны, деревья. Много парковочных мест – можно ставить машину прямо под окнами. ???? Выгодные условия покупки: Свободная продажа – без обременений и залогов. Возможность оформить ипотеку – удобные условия для покупателей. Один собственник – все документы в порядке. Материнский капитал не использовался – подходит для молодых семей. ID объекта в нашей базе: 1686
    размещено: 26.03.2026 , обновлено: 29.04.2026

История предложений в этом доме

объявление снято с публикации в продаже комнат площадь этаж цена,
Екатеринбург, ул. Минометчиков, 44 (Старая Сортировка) - фото квартиры 7 апреля 2026 90 дн. 2 56.6 2/6 6 500 000
Екатеринбург, ул. Минометчиков, 44 (Старая Сортировка) - фото квартиры 16 апреля 2025 90 дн. 4 100 5/6 6 890 000
Екатеринбург, ул. Минометчиков, 44 (Старая Сортировка) - фото квартиры 10 сентября 2025 90 дн. 2 57 2/5 4 600 000
Екатеринбург, ул. Минометчиков, 44 (Старая Сортировка) - фото квартиры 1 ноября 2024 90 дн. 2 57 2/5 4 999 999
Екатеринбург, ул. Минометчиков, 44 (Старая Сортировка) - фото квартиры 28 декабря 2024 90 дн. 4 100 5/6 6 789 000
Екатеринбург, ул. Минометчиков, 44 (Старая Сортировка) - фото квартиры 30 августа 2023 90 дн. 3 94.8 5/6 5 770 000
Екатеринбург, ул. Минометчиков, 44 (Старая Сортировка) - фото квартиры 30 августа 2023 90 дн. 4 94.8 5/6 5 770 000
Екатеринбург, ул. Минометчиков, 44 (Старая Сортировка) - фото квартиры 22 февраля 2023 90 дн. 2 43 3/5 4 120 000
15 сентября 2022 90 дн. 1 37 1/6 2 800 000
Екатеринбург, ул. Минометчиков, 44 (Старая Сортировка) - фото квартиры 12 февраля 2022 90 дн. 4 94 5/6 4 950 000
Екатеринбург, ул. Минометчиков, 44 (Старая Сортировка) - фото квартиры 17 февраля 2021 90 дн. 2 57.5 3/6 3 650 000
Екатеринбург, ул. Минометчиков, 44 (Старая Сортировка) - фото квартиры 16 июня 2020 90 дн. 2 58 3/6 3 450 000
Екатеринбург, ул. Минометчиков, 44 (Старая Сортировка) - фото квартиры 2 февраля 2022 90 дн. 3 57.7 4/5 3 600 000
Екатеринбург, ул. Минометчиков, 44 (Старая Сортировка) - фото квартиры 8 апреля 2021 90 дн. 4 80 5/6 4 300 000

Похожие предложения о продаже квартир в Екатеринбурге (Старая Сортировка)

  • 4-к квартира, Таежная, 7

    • 73.6 м2
    • 1/9 этаж
    • Состояние: хорошее
    6 200 000 ₽ (84200 ₽/м2)
    Продается 4-комнатная квартира, отличной планировки. Окна на 2 стороны. Дом стоит в дали от шумных дорог.Дом кирпичный, очень теплый. Оставим мебель.2 совершеннолетних собственника.Документы готовы для продажи. Хорошая транспортная развязка, школы, садики, магазины, все рядом.Звоните покажу в удобное время. ID объекта в нашей базе: 14801
    размещено: 31.03.2026 , обновлено: 9.05.2026
  • 4-к квартира, Расточная, 13

    • 79.2 м2
    • 7/10 этаж
    • Состояние: хорошее
    6 850 000 ₽ (86500 ₽/м2)
    Объект № 198146. Продается квартира. Этаж:7 из 10. Квартира чистая,уютная, отлично подходит для большой семьи. Все комнаты изолированные, что обеспечивает комфорт и приватность для каждого члена семьи. Остановка общественного транспорта в шаговой доступности, рядом школа№129, детские садики, стадион "Локомотив". Это отличный вариант для тех, кто ценит удобство, тишину и развитую инфраструктуру района. ***Гарантийный сертификат «Защита собственности» по данному объекту в подарок***
    размещено: 26.03.2026 , обновлено: 6.05.2026
  • 4-к квартира, Маневровая, 25А

    7 200 000 ₽ (77400 ₽/м2)
    Двухуровневая квартира. С каждого уровня есть выход в подъезд. Две кладовки, две лоджии. Дом расположен во дворах. Есть детская площадка. Рядом садики, школы, магазины, транспорт, спортивный комплекс Локомотив, в шаговой доступности парк, водоем, лыжная база, Железнодорожный техникум, учебный центр РЖД.
    размещено: 25.09.2023 , обновлено: 8.05.2026
  • 4-к квартира, Расточная, 13

    6 890 000 ₽ (87200 ₽/м2)
    Объект № 197926. Продается 4-х комнатная уютная квартира для большой семьи. Все комнаты изолированы. много мест для хранения, есть постирочная/гардиробная комната, большая остекленная лоджия. В квартире выполнен современный, качественный ремонт, в холле и туалете "теплый" пол. Кухонный гарнитур, шкафы-купе и частично мебель остаются покупателям. Рядом с домом лицей, детский сад, продуктовые магазины. В шаговой доступности детская поликлиника. Один взрослый собственник, квартира без долгов и обременений. Рассмотрим любые формы оплаты. Просмотр по договоренности. ***Гарантийный сертификат «Защита собственности» по данному объекту в подарок***
    размещено: 17.03.2026 , обновлено: 8.05.2026
  • 4-к квартира, Билимбаевская, 30

    • 61.2 м2
    • 1/5 этаж
    • Состояние: хорошее
    5 950 000 ₽ (97200 ₽/м2)
    Предлагается к продаже уютная просторная четырехкомнатная квартира, площадью 61.2 кв. м. Это прекрасное место для тех, кто ценит комфорт и спокойствие, без суеты центральных улиц. В квартире ровные потолки , сделан косметический ремонт в комнатах. Ванная и кухня капитальный ремонт, что создает атмосферу еще большего пространства. Квартира теплая, светлая, сухая. Кухня 6 кв. м, комнаты изолированные. В квартире остается и входит в стоимость имущество.Детская 1 :Шкаф, диван, обе полки, ковер.Большая комната:Стол круглый, 4 стула, кресло, диван, ковер.Спальная:Шкаф, кроватьДетская 2 :Диван, полка, шкафКухня: кухонный гарнитур, холодильник, варочная поверхность, вытяжка.Ванная: стиралка , шкаф. Люстры и шторы остаются во всей квартире. Сейф дверь с зеркалом повышенной шумоизоляции.Очень удобное местоположение с развитой инфраструктурой: в шаговой доступности - новая детская и взрослая поликлиника, ТЦ Яблоко, Монетка, Пятерочка, Магнит, аптеки, промышленные и продуктовые магазины, школы, детские сады, остановки общественного транспорта рядом с домом, и много других полезных сервисов. Приглашаем вас оценить все преимущества данной квартиры лично! Она ждет своих новых владельцев, готовых наполнить её теплом и счастьем. Один взрослый собственник,обременений нет. Просмотр по договоренности. ID объекта в нашей базе: 26336
    размещено: 26.02.2026 , обновлено: 2.05.2026

    4-к квартира, Минометчиков, 56

    • 76.1 м2
    • 1/5 этаж
    • Состояние: хорошее
    6 990 000 ₽ (91900 ₽/м2)
    Отличная квартира с ремонтом и мебелью!Продам просторную и тёплую 4-х комнатную квартиру на 1 этаже 5-этажного дома в динамично развивающемся районе Екатеринбурга!Преимущества:1. В квартире сделан отличный косметический ремонт: стеклопакеты, ламинат, натяжной потолок.2. Комнаты изолированные, правильной формы, просторная кухня.3. Санузел совмещённый в кафеле.4. Есть счетчики на воду и электричество.5. Дом панельный , но хорошая шумоизоляция.6. Подъезд чистый, регулярно производится уборка.7. Соседи спокойные и добропорядочные.8. Зелёный двор.9. Парковка наземная около дома.10. Инфраструктура района имеет всё для комфортного проживания: в пешей доступности школа, муниципальные и частные детские сады, поликлиника, магазины. Неподалеку сквер и верх-Исетский пруд с зонами отдыха.11. Рядом с домом находится автобусная и трамвайная остановки, можно быстро добраться до центра города. Квартира в состоянии заезжай и живи, остается кухонный гарнитур и встроенные шкафы.Один совершеннолетний собственник. Обременений и долгов нет.Ипотека возможна!АН Метражи гарантирует финансовую безопасность для наших клиентов! Приходите на просмотр, ждём вас! ID объекта в нашей базе: 2939
    размещено: 02.06.2025 , обновлено: 9.05.2026

Новостройки Екатеринбург, мкр-н. Старая Сортировка

Приоритет

Увеличивает просмотры в 3 раза

Ваше объявление показывается в списке выше обычных объявлений. подключить