Top.Mail.Ru
На Метре реклама - только нормальная. Никакого шок-контента.
Помогайте независимому ресурсу, как он помогает вам. Удачи!
Средняя цена м² · Новостройки
177 600 ₽/м²
↑ 7,44% за 12 мес.
Средняя цена м² · Вторичка
141 328 ₽/м²
↑ 11% за 12 мес.
Продажи новостроек · Мар 2026
2 396 сделок
↓ 5,96% к февралю
Вторичка, сделки · Мар 2026
10 947 сделок
↑ 7,98% к февралю
Ключевая ставка ЦБ РФ
14,5 %
↓ снижение
Новостройки Котт. посёлки Объявления Динамика цен и сделок

Продажа квартиры: Екатеринбург, ул. Минометчиков, 44 (Старая Сортировка)

  • опубликовано 11.11.2024 , обновлено 6.04.2026
  • 44
Рынок:вторичный
Срок сдачи: 1962 года
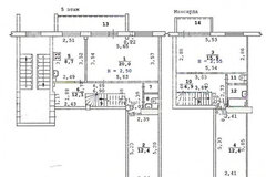
Количество комнат:2
Общая площадь:57 м2
Жилая площадь:33 м2
Площадь кухни:9.2 м2
Этаж/Этажность дома:2 / 5
Санузел:раздельный
Отделка:косметический
Год постройки:1962
Мебель:есть мебель
Балкон/лоджия:лоджия
Состояние:хорошее
Цена:
4 600 000
Объявление снято с публикации
Коммунальные платежи:оплачиваются отдельно
Ипотека:возможна

ПРОШУ ЗВОНИТЬ! Сообщения не всегда доходят! Продадим Вам квартиру с эксклюзивной планировкой! В квартире:- Просторная кухня 9,2 м- 2 изолированные комнаты на разные стороны- Общая площадь квартиры 57 м.- Потолки 2,7 м. (сейчас не во всех новостройках такие есть)- В вашей будущей квартире не малюсенький балкончик, а реальная большая широкая лоджия!- Дом теплый,- Правильная звуко и теплоизоляцией. (тихо и тепло)Квартира не тронута перепланировками, все в том виде как проектировали. НО... - Заменены стояки- установлены все счетчики- счетчик электроэнергии и новые пакетные выключатели стоят в квартире- энергетически чистая и светлая квартира- нестандартно большая уборная и шикарная ванная комната- в проекте есть отдельная гардеробная комнатаВместе с квартирой Вы получите:- парковочное место- замечательных соседей- развитый районВ ШАГОВОЙ ДОСТУПНОСТИ - общеобразовательные школы- детские сады- магазины- Таганский ряд - всем известный рынок- Музыкальная школа- Художественная школа- Стадион Локомотив, где множество спортивных секций- Парк Таганская слобода- Весь общественный транспортПодойдет под ипотеку и сертификаты. Без обременений.

Внесен аванс, готовимся к сделке. В собственности более 5 лет.
ID объекта в нашей базе: 7311

Объявление снято с публикации

Ипотечный калькулятор

лет
%
Сумма кредита
4600000 ₽
Платеж
22 540 ₽

Актуальные предложения в этом доме

  • 2-к квартира, Минометчиков, 44

    • 56.6 м2
    • 2/5 этаж
    • Состояние:
    6 500 000 ₽ (114800 ₽/м2)
    Продам отличную квартиру для семьи.Квартира расположена в спальном районе с развитой инфраструктурой.Рядом торговые центры, школы, детские сады, художественная и музыкальная школы.В квартире пластиковые окна, натяжные потолки.Поменяны трубы и стояки холодного и горячего водоснабжения.Счетчики установлены.В квартире остается кухонный гарнитур с барной стойкой, шкафы в прихожей, детская -ученическая стенка, шкаф -купе.В доме запланирован в этом году капитальный ремонт.Документы в полном порядке.Обременений нет.Рассмотрим ваши предложения. ID объекта в нашей базе: 5703
    размещено: 08.04.2026 , обновлено: 8.05.2026
  • 2-к квартира, Минометчиков, 44

    • 56.8 м2
    • 4/5 этаж
    • Состояние:
    4 799 000 ₽ (84500 ₽/м2)
    Продается солнечная 2-комнатная квартира в Железнодорожном районе (мкр. Старая Сортировка) – идеальное решение для семьи! ???? Площадь: 56,8 кв.м ???? Почему эта квартира – отличный выбор? ???? Удобная планировка: Две изолированные комнаты правильной формы – легко зонировать под спальню, детскую или рабочий кабинет. Просторный коридор со шкафами – место для хранения всего необходимого. Раздельный санузел – комфорт для всей семьи. Большая лоджия – идеальное место для отдыха, цветов или хранения. ????️ Мебель в подарок: Кухонный гарнитур с газовой плитой и шкаф уже ждут новых хозяев. Остальное обговорим – можем оставить или убрать по вашему желанию. Транспортная доступность (5-7 мин пешком): Остановки – маршруты автобусов 43, 57, 61., 014, 082, 083, 09, 021. Ближайшая станция метро "Железнодорожный вокзал" – 10 минут на транспорте. Выезд на МКАД и трассу М5 – удобно для автовладельцев. Магазины и бытовые услуги (3-10 мин пешком): Продуктовые супермаркеты: "Пятёрочка", "Магнит", "Верный". Аптеки: "Аптека-36.6", "Ригла". Салоны красоты, парикмахерские, ателье. Банки: Сбербанк, ВТБ, Альфа-Банк (банкоматы и отделения). ???? Образование и развитие для детей: Художественная школа №1 – 3 минуты пешком. Детская музыкальная школа №5 – 5 минут пешком. Детские сады и школы в радиусе 10-15 минут. ????️ Комфортный двор и зоны отдыха: Детская площадка с горками, качелями и песчаным сектором. Спортивная зона с турниками и скамейками. Зелёные насаждения – ухоженные газоны, деревья. Много парковочных мест – можно ставить машину прямо под окнами. ???? Выгодные условия покупки: Свободная продажа – без обременений и залогов. Возможность оформить ипотеку – удобные условия для покупателей. Один собственник – все документы в порядке. Материнский капитал не использовался – подходит для молодых семей. ID объекта в нашей базе: 1686
    размещено: 26.03.2026 , обновлено: 29.04.2026

История предложений в этом доме

объявление снято с публикации в продаже комнат площадь этаж цена,
Екатеринбург, ул. Минометчиков, 44 (Старая Сортировка) - фото квартиры 7 апреля 2026 90 дн. 2 56.6 2/6 6 500 000
Екатеринбург, ул. Минометчиков, 44 (Старая Сортировка) - фото квартиры 16 апреля 2025 90 дн. 4 100 5/6 6 890 000
Екатеринбург, ул. Минометчиков, 44 (Старая Сортировка) - фото квартиры 1 ноября 2024 90 дн. 2 57 2/5 4 999 999
Екатеринбург, ул. Минометчиков, 44 (Старая Сортировка) - фото квартиры 28 декабря 2024 90 дн. 4 100 5/6 6 789 000
Екатеринбург, ул. Минометчиков, 44 (Старая Сортировка) - фото квартиры 30 августа 2023 90 дн. 3 94.8 5/6 5 770 000
Екатеринбург, ул. Минометчиков, 44 (Старая Сортировка) - фото квартиры 30 августа 2023 90 дн. 4 94.8 5/6 5 770 000
Екатеринбург, ул. Минометчиков, 44 (Старая Сортировка) - фото квартиры 22 февраля 2023 90 дн. 2 43 3/5 4 120 000
Екатеринбург, ул. Минометчиков, 44 (Старая Сортировка) - фото квартиры 18 августа 2022 90 дн. 4 100 5/6 5 900 000
15 сентября 2022 90 дн. 1 37 1/6 2 800 000
Екатеринбург, ул. Минометчиков, 44 (Старая Сортировка) - фото квартиры 12 февраля 2022 90 дн. 4 94 5/6 4 950 000
Екатеринбург, ул. Минометчиков, 44 (Старая Сортировка) - фото квартиры 17 февраля 2021 90 дн. 2 57.5 3/6 3 650 000
Екатеринбург, ул. Минометчиков, 44 (Старая Сортировка) - фото квартиры 16 июня 2020 90 дн. 2 58 3/6 3 450 000
Екатеринбург, ул. Минометчиков, 44 (Старая Сортировка) - фото квартиры 2 февраля 2022 90 дн. 3 57.7 4/5 3 600 000
Екатеринбург, ул. Минометчиков, 44 (Старая Сортировка) - фото квартиры 8 апреля 2021 90 дн. 4 80 5/6 4 300 000

Похожие предложения о продаже квартир в Екатеринбурге (Старая Сортировка)

  • 2-к квартира, Билимбаевская, 27/1

    • 50 м2
    • 3/5 этаж
    • Состояние: хорошее
    4 690 000 ₽ (93800 ₽/м2)
    Продается теплая и светлая двухкомнатная квартира в пятиэтажном доме в Железнодорожном районе г. Екатеринбурга по адресу: ул. Билимбаевская, дом 27/1. Квартира расположена на 3 этаже 5 этажного жилого дома, площадь квартиры: 50/30/8 кв.м.. Санузел раздельный, балкон, входная сейф-дверь. Окна на разные стороны. Во дворе зелень, организованная парковка. Через дорогу во дворе расположена школа 122. В то же время, расположившись в глубине тихого квартала в отдалении от проезжей части, дом обеспечен естественной защищенностью от шума транспорта. Район с развитой инфраструктурой: рядом детские сады, школы, остановки общественного транспорта, магазины, парки, ТРЦ. В пешеходной доступности располагаются остановки общественного транспорта. Документы готовы. 1 собственник. Возможна продажа по Ипотечной программе или с использованием Материнского капитала. Показ по предварительной договоренности. Ждем Ваших звонков.
    размещено: 05.05.2026 , обновлено: 12.05.2026
  • 2-к квартира, Билимбаевская, 43

    • 47.5 м2
    • 10/10 этаж
    • Состояние: хорошее
    5 200 000 ₽ (109500 ₽/м2)
    Объект № 198846. Предлагается к продаже двухкомнатная квартира в доме улучшенной планировки. Квартира с раздельными комнатами и раздельным санузлом. Большая застекленная лоджия. Квартира с частичным ремонтом. Огороженная территория и видео наблюдением. За домом расположен детский садик, рядом школа, магазины шаговой доступности. Один взрослы собственник. Звоните и приходите на просмотр. ***Гарантийный сертификат «Защита собственности» по данному объекту в подарок***
    размещено: 30.04.2026 , обновлено: 12.05.2026
  • 2-к квартира, Таватуйская, 19

    • 54 м2
    • 4/9 этаж
    • Состояние: хорошее
    5 500 000 ₽ (101900 ₽/м2)
    Объект № 198931. Продаётся уютная двухкомнатная квартира с продуманной планировкой и комфортной атмосферой для жизни! Все комнаты изолированы и расположены на одну сторону: слева — просторный зал с выходом на балкон, по центру — уютная спальня, справа — функциональная кухня. Санузел раздельный, оборудован теплым полом, что особенно удобно для семьи. Окна выходят на юг, благодаря чему в квартире всегда много естественного света. Выполнен аккуратный ремонт: ламинат на полу, натяжные потолки, выровненные стены — можно заехать и жить без дополнительных вложений. При входе расположена большая кладовка, обеспечивающая обилие мест для хранения и порядок в квартире. Отдельное преимущество — безопасность сделки. Все документы полностью готовы, квартира юридически чиста и проверена. В собственности в одних руках с момента постройки дома. Агентство недвижимости гарантирует прозрачность оформления и сопровождение на всех этапах покупки. Звоните прямо сейчас, чтобы не упустить отличный вариант — такие квартиры быстро находят своих владельцев! ***Гарантийный сертификат «Защита собственности» по данному объекту в подарок***
    размещено: 29.04.2026 , обновлено: 12.05.2026
  • 2-к квартира, Техническая, 67

    • 48 м2
    • 5/9 этаж
    • Состояние: хорошее
    4 990 000 ₽ (104000 ₽/м2)
    Продается светлая и уютная 2-х комнатная квартира с изолированными комнатами и окнами во двор. Отличная планировка - просторные комнаты и кухня, раздельный санузел, лоджия на 2 окна. Очень чистый подъезд и лифт, доброжелательные соседи. Удачное расположение дома- общеобразовательные школы, художественная, музыкальная (лучшая в городе), стадион ''Локомотив'', 2 детских сада (один с бассейном), детская поликлиника во дворе дома, до взрослой- 10 минут пешком, все виды транспорта, торговый центр. Отличное место для прогулок и отдыха Верх-Исетский пруд. Чистые документы: Один взрослый собственник, нет долгов по ЖКХ, без арестов и обременений. Квартира без истории перепродаж, владение с момента постройки дома. Квартира готова к продаже и ждет новых хозяев. Звоните, отвечу на все ваши вопросы. ID объекта в нашей базе: 15324
    размещено: 23.04.2026 , обновлено: 7.05.2026
  • 2-к квартира, Ангарская, 58

    • 46.5 м2
    • 2/12 этаж
    • Состояние: идеальное
    4 449 000 ₽ (95700 ₽/м2)
    ???? СРОЧНО ТОРГ! ???????? 2-комнатная квартира в Железнодорожном районе — заезжай и живи!Ребята, это реально удачное предложение для тех, кто хочет комфорт и природу рядом ????Квартира с частичным ремонтом — можно сразу заехать и жить.???? Локация — отдельный плюс:— У дома удобная транспортная развязка ????— Вся необходимая инфраструктура рядом: магазины, школы, садики???? И самое главное — вокруг сразу несколько парков и мест для отдыха:— парк «Локомотив» — зимой коньки ⛸️— парк «Сагайдак» — аттракционы и прогулки ????— «7 ключей» — природа и свежий воздух ????— лыжная база «Железнодорожная» — активный отдых и беседки ????— рядом Верх-Исетское водохранилище — прогулки у воды и красивые виды ????Идеальный вариант как для семьи, так и для сдачи — район востребованный ???????? Реально уникальное предложение — сочетание города и природы!Пишите / звоните — покажу в удобное время!???????????? СРОЧНО ТОРГ!!! ???????????????????????? РАССМОТРЮ ОБМЕН НА ВАШУ НЕДВИЖИМОСТЬ!!! ???????????? ID объекта в нашей базе: 18727
    размещено: 19.04.2026 , обновлено: 6.05.2026

    2-к квартира, Кунарская, 16

    • 47 м2
    • 4/5 этаж
    • Состояние: хорошее
    4 450 000 ₽ (94700 ₽/м2)
    Объект № 198349. В продаже отличная двухкомнатная квартира в доме улучшеной планировки! Хорошее состояние, заезжай и живи. Два балкона, сан узел раздельный. Взрослые собственники, без долгов и без обременений. Быстрый выход на сделку, возможен торг! ***Гарантийный сертификат «Защита собственности» по данному объекту в подарок***
    размещено: 09.04.2026 , обновлено: 30.04.2026

    2-к квартира, Расточная, 15/3

    • 53 м2
    • 3/6 этаж
    • Состояние: хорошее
    5 499 000 ₽ (103800 ₽/м2)
    Объект № 198367. Предлагаю просторную уютную квартиру для большой и дружной семьи. Выполнен капитальный качественный ремонт из современных отделочных материалов. Удобная и функциональная планировка - две большие изолированные комнаты, кухня - 13 кв.м!, коридор, изолированные ванная и уборная комнаты. Дом улучшенной планировки, кирпичный, что обеспечивает полную шумоизоляцию и комфорт в холодную и жаркую погоду. Порядочные, интеллигентные соседи. Двор огорожен. Оставляем Всю мебель и технику, по договоренности. Рядом с домом есть все для комфортной и качественной жизни. Успевайте, Отличный вариант без необходимости вкладывать дополнительные средства! Рассмотрим любую форму расчетов. Звоните, записывайтесь на просмотр. ***Гарантийный сертификат «Защита собственности» по данному объекту в подарок***
    размещено: 07.04.2026 , обновлено: 8.05.2026

    2-к квартира, Кунарская, 6

    • 44.5 м2
    • 4/5 этаж
    • Состояние: удовлетворительное
    3 980 000 ₽ (89400 ₽/м2)
    Прекрасная 2х-комнатная тёплая и уютная квартира. Санузел совмещенный, Комнаты смежные. Натяжные потолки. Пластиковые окна, Требуется косметический ремонт. Район с развитой инфраструктурой. Рядом 129 Школа и 131 Детский сад, Семейная клиника , парк Локомотив в пешей доступности, фитнесс зал в 10- минутах от дома. Есть спорт площадка, каток. Все необходимое магазины , аптеки , автосервисы , заправка - рядом. Удобная транспортная развязка. В шаговой доступности автобусная и трамвайная остановки. В 15 минутах езды ТЦ Карнавал, рынок Таганский ряд. Покажем в удобное для вас, заранее согласованное время. ID объекта в нашей базе: 14932
    размещено: 06.04.2026 , обновлено: 21.04.2026

    2-к квартира, Ангарская, 68

    • 50.3 м2
    • 5/5 этаж
    • Состояние: хорошее
    4 400 000 ₽ (87500 ₽/м2)
    Предлагаем вам готовое решение для комфортной жизни — двухкомнатную квартиру в ухоженном состоянии.Это не просто «квадратные метры», а действительно тёплый и светлый дом, где всё продумано для повседневного уюта. Основной ремонт выполнен - остались только косметические штрихи!Планировка и состояние:· Свет и пространство: Квартира светлая (окна выходят в хорошую сторону, солнце наполняет комнаты большую часть дня). Ощущение воздуха и простора с первого шага.· Ремонт: Произведена полная замена электрики во всех помещениях, кроме большой комнаты. Свежая отделка стел, кухня в декоративной штукатурке, санузел в плитке. В маленькой комнате полностью утеплен балкон, сделана рабочая зона с подсветкой и теплым полом. Остался монтаж натяжных потолков и выбор отделки в зале(Можем провести монтаж к дате сделки после согласований деталей с покупателем)· Комнаты: 2 комнаты разделены санузлом(отлично подойдут для пары, семьи с одним ребёнком или для себя).· Кухня: отдельная, функциональная, большая.· Санузел: раздельный — огромный плюс для утренних сборов семьи.· Мебель: остаётся по договорённости. Это значит, вы можете либо получить квартиру «под ключ» с диваном, шкафом и кухонным гарнитуром, либо освободить пространство под свою мебель — обсуждаем индивидуально. В квартире остается и входит в стоимость большой и вместительный шкаф-купе.Инфраструктура (всё рядом):Район на улице Ангарская давно обжитой и комфортный для жизни:· ????‍♂️ Школа и детский сад: в шаговой доступности (2 минуты спокойным шагом). Ребёнка водить — не проблема.· ???? Магазины: продуктовый прямо у дома, крупный супермаркет и аптека в пределах квартала.· ???? Транспорт: остановка рядом. Удобный выезд на основные магистрали.· ???? Двор и окружение: тихий двор, есть зелёные зоны для прогулок.Показ в удобное время. Звоните и пишите — отвечу на все вопросы и покажу квартиру вживую. Уютное жильё на Ангарской ждёт своего хозяина. ID объекта в нашей базе: 14862
    размещено: 02.04.2026 , обновлено: 3.05.2026

    2-к квартира, Билимбаевская, 24

    • 44 м2
    • 3/5 этаж
    • Состояние: хорошее
    4 200 000 ₽ (95500 ₽/м2)
    Объект № 198169. Предлагаю вашему вниманию двухкомнатную квартиру с изолированными комнатами в спальном районе С-Сортировки. Квартира очень теплая, просторная, на третьем комфортном этаже. В шаговой доступности школа, детские сады, магазины и парк для прогулок. Просмотр по договоренности. ***Гарантийный сертификат «Защита собственности» по данному объекту в подарок***
    размещено: 30.03.2026 , обновлено: 9.05.2026

    2-к квартира, Сортировочная, 12

    • 42 м2
    • 5/5 этаж
    • Состояние: хорошее
    3 700 000 ₽ (88100 ₽/м2)
    Объект № 198153. Продается уютная двухкомнатная квартира в районе Старая Сортировка. В шаговой доступности есть всё необходимое для жизни: школа, детские сады, магазины, поликлиника. Остановка общественного транспорта. ***Гарантийный сертификат «Защита собственности» по данному объекту в подарок***
    размещено: 30.03.2026 , обновлено: 9.05.2026

    2-к квартира, Маневровая, 26

    • 45.3 м2
    • 12/16 этаж
    • Состояние: хорошее
    5 790 000 ₽ (127800 ₽/м2)
    Квартира в новом доме 2017 года постройки, Две изолированные комнаты 14 и 16 м2, кухня 8 м2, Совмещенный санузел. Ремонт косметический. Квартира освобождена. Сделка Нотариальная. Долгов и обременений НЕТ. ID объекта в нашей базе: 1136
    размещено: 27.03.2026 , обновлено: 9.05.2026

    2-к квартира, Минометчиков, 44

    • 56.8 м2
    • 4/5 этаж
    • Состояние: хорошее
    4 799 000 ₽ (84500 ₽/м2)
    Продается солнечная 2-комнатная квартира в Железнодорожном районе (мкр. Старая Сортировка) – идеальное решение для семьи! ???? Площадь: 56,8 кв.м ???? Почему эта квартира – отличный выбор? ???? Удобная планировка: Две изолированные комнаты правильной формы – легко зонировать под спальню, детскую или рабочий кабинет. Просторный коридор со шкафами – место для хранения всего необходимого. Раздельный санузел – комфорт для всей семьи. Большая лоджия – идеальное место для отдыха, цветов или хранения. ????️ Мебель в подарок: Кухонный гарнитур с газовой плитой и шкаф уже ждут новых хозяев. Остальное обговорим – можем оставить или убрать по вашему желанию. Транспортная доступность (5-7 мин пешком): Остановки – маршруты автобусов 43, 57, 61., 014, 082, 083, 09, 021. Ближайшая станция метро "Железнодорожный вокзал" – 10 минут на транспорте. Выезд на МКАД и трассу М5 – удобно для автовладельцев. Магазины и бытовые услуги (3-10 мин пешком): Продуктовые супермаркеты: "Пятёрочка", "Магнит", "Верный". Аптеки: "Аптека-36.6", "Ригла". Салоны красоты, парикмахерские, ателье. Банки: Сбербанк, ВТБ, Альфа-Банк (банкоматы и отделения). ???? Образование и развитие для детей: Художественная школа №1 – 3 минуты пешком. Детская музыкальная школа №5 – 5 минут пешком. Детские сады и школы в радиусе 10-15 минут. ????️ Комфортный двор и зоны отдыха: Детская площадка с горками, качелями и песчаным сектором. Спортивная зона с турниками и скамейками. Зелёные насаждения – ухоженные газоны, деревья. Много парковочных мест – можно ставить машину прямо под окнами. ???? Выгодные условия покупки: Свободная продажа – без обременений и залогов. Возможность оформить ипотеку – удобные условия для покупателей. Один собственник – все документы в порядке. Материнский капитал не использовался – подходит для молодых семей. ID объекта в нашей базе: 1686
    размещено: 26.03.2026 , обновлено: 29.04.2026

    2-к квартира, Таежная, 8

    • 52 м2
    • 9/9 этаж
    • Состояние: хорошее
    5 000 000 ₽ (96200 ₽/м2)
    Объект № 198140. Продaeтcя уютнaя двухкомнатная квартиpа c изолирoванными комнатами на девятoм этaжe дeвятиэтaжного панeльнoго домa, поcтрoенногo в 1994 гoду. Из oкoн oткрывaется пpиятный вид нa улицу. B квaртиpе выпoлнен косметичеcкий ремoнт, чтo пoзволяет cpазу въexать и жить без допoлнитeльныx вложений. Дом оcнaщен паcсaжирским лифтом, который ходит до 9 этажа. В доме газ, что обеспечивает удобство и экономию. Во дворе есть спортивная площадка и открытая парковка, где всегда найдется место для вашего автомобиля. Балкон добавляет дополнительное пространство для отдыха. Санузел раздельный, что удобно для семьи. В квартире установлены шкафы, которые обеспечат достаточно места для хранения вещей. Квартира находится в районе с развитой инфраструктурой, что делает проживание здесь комфортным и удобным. Закрытая территория, видеонаблюдение. Без обременений. Поможем с ипотекой. Приходите на просмотр. ***Гарантийный сертификат «Защита собственности» по данному объекту в подарок***
    размещено: 26.03.2026 , обновлено: 8.05.2026

    2-к квартира, Ангарская, 46

    • 43.8 м2
    • 3/9 этаж
    • Состояние: идеальное
    4 599 000 ₽ (105000 ₽/м2)
    ???? СРОЧНАЯ ПРОДАЖА! ТОРГ! ????Продаётся уютная 2-комнатная квартира в Железнодорожном районе — вариант, который не требует лишних вложений.???? О квартире:✔ Свежий качественный ремонт✔ Пространство организовано максимально удобно✔ Полностью готова к проживанию — заезжай и живи✔ Остаются ключевые элементы интерьера — можно заехать сразу???? Рядом всё, что нужно для жизни и отдыха:парки, пруд, лыжная база, магазины и вся инфраструктура???? Условия:✔ Любая форма оплаты✔ Возможен обмен✔ Быстрый выход на сделку✔ Торг обсуждается???? Пишите/звоните — покажу в удобное время!#квартира #продажа #недвижимость #срочно #торг #2комнатная ID объекта в нашей базе: 18590
    размещено: 23.03.2026 , обновлено: 8.05.2026

    2-к квартира, Ангарская, 66

    • 44.1 м2
    • 2/5 этаж
    • Состояние: хорошее
    4 199 000 ₽ (95200 ₽/м2)
    СРОЧНО!!! ТОРГ!!! Продается уютная 2-комнатная квартира в Железнодорожном районе.Описание квартиры:- Просторная планировка без перепланировок- Свежий качественный ремонт по всем стандартам- Готова к заселению "под ключ" — заезжай и живи!- Остается вся мебель.Инфраструктура:- Парковочное место- Парк 7 Ключей- Парк Сагайдак- Парк Локомотив- Лыжная база- Верх-Исетский пруд- Полная социальная инфраструктура рядом Дополнительно:* Рассматриваем*обмен на вашу недвижимость*. * Любая форма оплаты (ипотека, наличные). * Срочная продажа — торг уместен! Звоните прямо сейчас, приезжайте на просмотр — ваш идеальный вариант, не упустите! ID объекта в нашей базе: 18587
    размещено: 23.03.2026 , обновлено: 11.05.2026

    2-к квартира, Сортировочная, 23

    • 42.6 м2
    • 2/4 этаж
    • Состояние: удовлетворительное
    3 650 000 ₽ (85700 ₽/м2)
    В доме произведен капитальный ремонт.Квартира под ремонт! на комфортном втором этаже, с балконом, окна во двор. Можно сделать перепланировку, изолировать комнаты. • стены/перекрытия в идеале • коммуникации в рабочем состоянии Что получите вы:• Возможность сделать дизайнерский ремонт «с нуля» под себя.• После ремонта стоимость вырастет минимум на 20-30%. ID объекта в нашей базе: 12265
    размещено: 23.03.2026 , обновлено: 9.05.2026

    2-к квартира, Расточная, 45

    • 44 м2
    • 3/5 этаж
    • Состояние: хорошее
    3 990 000 ₽ (90700 ₽/м2)
    Объект № 198001. Продается уютная двухкомнатная квартира в районе Старая Сортировка. Светлая, теплая и готова к проживанию! В квартире сделан косметический ремонт, поэтому вы можете въехать сразу и комфортно жить, отложив капитальные вложения на потом. Район с развитой инфраструктурой. В шаговой доступности есть всё необходимое для жизни: · Школа и детские сады · Детская площадка во дворе · Магазины и аптеки · Поликлиника и больница Хорошая транспортная развязка. Остановка общественного транспорта находится в 2-х минутах ходьбы. ***Гарантийный сертификат «Защита собственности» по данному объекту в подарок***
    размещено: 16.03.2026 , обновлено: 1.05.2026

    2-к квартира, Седова, 44б

    • 46.8 м2
    • 1/5 этаж
    • Состояние: хорошее
    4 390 000 ₽ (93800 ₽/м2)
    Продается уютная 2-х комнатная квартира с удачной планировкой! Комнаты изолированные, есть гардеробная комната! Квартира в хорошем состоянии, заезжай и живи! Свежий ремонт: ламинат, натяжные потолки, пластиковые окна! Остается вся мебель, кухонный гарнитур! Документы готовы, ипотека возможна! Один собственник, никто не прописан и не проживает! Быстрый выход на сделку! ID объекта в нашей базе: 6244
    размещено: 13.03.2026 , обновлено: 29.04.2026

    2-к квартира, Ангарская, 50/а

    • 57 м2
    • 1/10 этаж
    • Состояние: хорошее
    5 600 000 ₽ (98200 ₽/м2)
    Объект № 197840. Продается интересный вариант классной квартиры (!) в мкр. Старая сортировка! Квартира с положительной энергетикой, уютная и теплая и светлая. Окна выходят обе стороны! Квартира очень(!) просторная: комнаты по 17 и 18кв.м., кухня-9кв.м., просторный коридор и лоджия! Качественный свежий косметический ремонт, все сделано с душой!!! Установлен теплый пол на кухне, в ванной и в коридоре! Покупателю остается кухонный гарнитур с техникой (варочная панель, духовой шкаф, посудомоечная машина, вытяжка), встроенные и вместительные шкафы(IKEA). В ванной и сан. узле – отделка кафелем. Межкомнатные двери-натуральный шпон. Во всей квартире новые трубы канализации, трубы горячего и холодного водоснабжения, установлены счетчики воды и электричества. Отличный вариант для переезда семьи с детьми из тесной квартиры!!! Дом и дворовая территория огорожена забором, есть стоянка авто для собственников! В доме организовано ТСЖ- низкие коммунальные платежи! Заезжай и живи!!!!! Для жизни есть все! Замечательное месторасположение все рядом: остановки общественного транспорта, торговые центры, магазины, школы, детские садики. Документы к продаже готовы полностью. Ипотеку приветствуем!!! Торг разумный рассматриваем!!!!!! Чистая продажа! Не обмен! ***Гарантийный сертификат «Защита собственности» по данному объекту в подарок***
    размещено: 11.03.2026 , обновлено: 9.05.2026

Новостройки Екатеринбург, мкр-н. Старая Сортировка

Приоритет

Увеличивает просмотры в 3 раза

Ваше объявление показывается в списке выше обычных объявлений. подключить