На Метре реклама - только нормальная. Никакого шок-контента.
Помогайте независимому ресурсу, как он помогает вам. Удачи!
Новостройки Котт. посёлки Объявления Динамика цен и сделок

Продажа квартиры: Екатеринбург, ул. Бебеля, 162 (Новая Сортировка)

  • опубликовано 23.11.2022 , обновлено 4.12.2025
  • 79
Кадастровый номер:66:41:0204051:5469
Рынок:вторичный
Срок сдачи: 1981 года
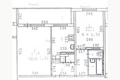
Количество комнат:2
Общая площадь:48 м2
Жилая площадь:30 м2
Площадь кухни:8 м2
Этаж/Этажность дома:4 / 16
Санузел:раздельный
Отделка:евроремонт
Год постройки:1981
Состояние:хорошее
Цена:
4 500 000
Объявление снято с публикации
Коммунальные платежи:оплачиваются отдельно
Условия продажи:«чистая» продажа
Ипотека:возможна

Объект № 166291. Продам отличную 2-комнатную квартиру в районе Новой Сортировки.
Удобная планировка: комнаты 18 и 11 метров, 8 метров кухня, раздельный санузел и просторная застекленная лоджия на 2 окна 9 метров, застеклена. Квартира теплая и солнечная. Сделан капитальный ремонт: полы, стены, потолок, заменены окна и двери, заменена сантехника, в ванной комнате кафельная плитка. Установлены счетчики на электричество и воду. В коридоре гардеробная.
В районе есть все, что нужно для комфортной жизни: торговые центры и сетевые магазины, банки, кафе, продуктовый рынок, аптеки, взрослая и детская поликлиника, школы, детские сады, спортивные секции, музыкальная и художественная школа, колледжи, парк Таганская слобода, ТЦ Карнавал. Остановки трамваев и автобусов рядом с домом.
Приглашаем на просмотр, Вам понравится! ***Гарантийный сертификат «Защита собственности» по данному объекту в подарок***

Объявление снято с публикации

Ипотечный калькулятор

лет
%
Сумма кредита
4500000 ₽
Платеж
22 540 ₽

История предложений в этом доме

объявление снято с публикации в продаже комнат площадь этаж цена,
Екатеринбург, ул. Бебеля, 162 (Новая Сортировка) - фото квартиры 27 декабря 2023 90 дн. 2 48 13/16 4 600 000
Екатеринбург, ул. Бебеля, 162 (Новая Сортировка) - фото квартиры 23 ноября 2023 90 дн. 2 48 13/16 4 600 000
Екатеринбург, ул. Бебеля, 162 (Новая Сортировка) - фото квартиры 7 декабря 2022 90 дн. 2 51.4 4/16 4 700 000
Екатеринбург, ул. Бебеля, 162 (Новая Сортировка) - фото квартиры 18 ноября 2022 90 дн. 1 34 11/16 3 850 000
Екатеринбург, ул. Бебеля, 162 (Новая Сортировка) - фото квартиры 4 ноября 2021 90 дн. 1 34.3 10/16 3 300 000
Екатеринбург, ул. Бебеля, 162 (Новая Сортировка) - фото квартиры 13 июля 2021 90 дн. 1 35 9/16 3 200 000
Екатеринбург, ул. Бебеля, 162 (Новая Сортировка) - фото квартиры 22 мая 2021 90 дн. 2 49 14/16 3 600 000
Екатеринбург, ул. Бебеля, 162 (Новая Сортировка) - фото квартиры 21 августа 2021 90 дн. 1 36 10/16 3 400 000
Екатеринбург, ул. Бебеля, 162 (Новая Сортировка) - фото квартиры 3 марта 2021 90 дн. 1 34.6 10/16 3 400 000
Екатеринбург, ул. Бебеля, 162 (Новая Сортировка) - фото квартиры 16 июля 2020 90 дн. 2 48.5 7/16 3 100 000
Екатеринбург, ул. Бебеля, 162 (Новая Сортировка) - фото квартиры 3 марта 2020 90 дн. 2 47.4 14/16 3 400 000
25 марта 2019 90 дн. 1 41 1/16 2 490 000
19 декабря 2018 90 дн. 2 47 4/16 3 050 000

Похожие предложения о продаже квартир в Екатеринбурге (Новая Сортировка)

  • 2-к квартира, Бебеля, 158

    • 48 м2
    • 12/16 этаж
    • Состояние: хорошее
    5 460 000 ₽ (113800 ₽/м2)
    Объект № 196351. Вашему вниманию предлагается уютная квартира на Новой Сортировке. Рядом с домом присутствует вся инфраструктура. Квартира чистая, теплая. Перепланировок не было. 2 взрослых собственника, маткап не использовался. Чистая продажа. Приглашаем на просмотр! ***Гарантийный сертификат «Защита собственности» по данному объекту в подарок***
    размещено: 12.12.2025
  • 2-к квартира, Бебеля, 154

    • 43 м2
    • 6/9 этаж
    • Состояние: хорошее
    5 420 000 ₽ (126000 ₽/м2)
    Объект № 196350. Вашему вниманию предлагается просторная квартира на Новой Сортировке. Рядом с домом присутствует вся инфраструктура: школы, детсады, магазины, поликлиника, транспортная развязка. Квартира чистая, теплая. Чистая продажа. Приглашаем на просмотр! ***Гарантийный сертификат «Защита собственности» по данному объекту в подарок***
    размещено: 12.12.2025
  • 2-к квартира, Бебеля, 166

    • 48 м2
    • 2/16 этаж
    • Состояние: хорошее
    5 450 000 ₽ (113500 ₽/м2)
    Объект № 196348. Вашему вниманию предлагается уютная и просторная двушка на Новой Сортировке. Рядом поликлиника, школы, детсады, разные магазины. Квартира чистая, теплая. Перепланировок не было. Чистая продажа. Без обременений. Приглашаем на просмотр! ***Гарантийный сертификат «Защита собственности» по данному объекту в подарок***
    размещено: 12.12.2025
  • 2-к квартира, Бебеля, 148

    • 43 м2
    • 4/9 этаж
    • Состояние: удовлетворительное
    5 450 000 ₽ (126700 ₽/м2)
    Объект № 196349. Предлагается просторная двушка на Новой Сортировке. Дом удобно расположен. Район хороший. Спокойные соседи. Квартира чистая, теплая. Перепланировок не было. Обмен подобран. Обременений нет. Приглашаем на просмотр! ***Гарантийный сертификат «Защита собственности» по данному объекту в подарок***
    размещено: 12.12.2025

    2-к квартира, Бебеля, 142

    • 48.4 м2
    • 12/16 этаж
    • Состояние: хорошее
    5 500 000 ₽ (113600 ₽/м2)
    Объект № 196354. Вашему вниманию предлагается просторная квартира на Новой Сортировке. Рядом с домом присутствует вся инфраструктура. Квартира чистая, теплая. Перепланировок не было. Взрослые собственники, более 5 лет. Чистая продажа. Приглашаем на просмотр! ***Гарантийный сертификат «Защита собственности» по данному объекту в подарок***
    размещено: 12.12.2025

    2-к квартира, Бебеля, 146

    • 48.2 м2
    • 10/16 этаж
    • Состояние: удовлетворительное
    5 450 000 ₽ (113100 ₽/м2)
    Объект № 196353. Вашему вниманию предлагается просторная двухкомнатная квартира на Новой Сортировке. Рядом с домом присутствует вся инфраструктура. Квартира чистая, теплая. Перепланировок не было. 1 взрослый собственник, без обременений. Чистая продажа. Приглашаем на просмотр! ***Гарантийный сертификат «Защита собственности» по данному объекту в подарок***
    размещено: 12.12.2025 , обновлено: 14.12.2025

    2-к квартира, Бебеля, 152

    • 47.9 м2
    • 4/16 этаж
    • Состояние: хорошее
    5 400 000 ₽ (112700 ₽/м2)
    Объект № 196346. Вашему вниманию предлагается просторная двушка на Новой Сортировке. Рядом с домом присутствует вся инфраструктура. Квартира чистая, теплая. Перепланировок не было. Чистая продажа. Приглашаем на просмотр! ***Гарантийный сертификат «Защита собственности» по данному объекту в подарок***
    размещено: 12.12.2025

    2-к квартира, Софьи Перовской, 119

    • 43.2 м2
    • 1/9 этаж
    • Состояние: удовлетворительное
    3 900 000 ₽ (90300 ₽/м2)
    Объект № 196221. Продается 2-комнатная квартира с балконом, в 9-этажном доме, на первом этаже. Теплая квартира, пластиковые стеклопакеты, требует ремонта. Садик во дворе. Школа, магазины и остановки общественного транспорта в шаговой доступности. ***Гарантийный сертификат «Защита собственности» по данному объекту в подарок***
    размещено: 09.12.2025 , обновлено: 9.12.2025

    2-к квартира, Техническая, 12

    • 47.4 м2
    • 5/16 этаж
    • Состояние: идеальное
    5 550 000 ₽ (117100 ₽/м2)
    Продается полноценная, теплая и очень уютная двухкомнатная квартира с качественным ремонтом. Комфортный 5-й этаж, сделан капитальный ремонт, натяжные потолки, просторная лоджия застеклена, утеплена, имеется выход в кухни. Установлены счетчики воды и двух-тарифный счетчик потребления электроэнергии. Из основных ПРЕИМУЩЕСТВ дома и района: - максимально удобное расположение дома в центре Новой Сортировки позволит Вам за минимальное количество времени добраться до центра. Общественный транспорт на расстоянии 50 м от подъезда; - прекрасно развитая инфраструктура района (до ТЦ КАРНАВАЛ/ТЦ ПЕКИН/ХАНОЙ - 10 мин, выезд в разные части города на автомобиле до любых развязок всего 7-10 мин. В шаговой доступности многочисленные продуктовые и продовольственные магазины, детские сады, школы). ВАМ В ПОДАРОК с радостью оставим: кухонный гарнитур, шкафы и вообще много всего по договоренности. РЕАЛЬНЫМ ПОКУПАТЕЛЯМ НЕБОЛЬШОЙ ТОРГ! ТАКЖЕ ОКАЖЕМ ПРИ НЕОБХОДИМОСТИ БЕСПЛАТНУЮ ПОМОЩЬ В ОФОРМЛЕНИИ ИПОТЕЧНОГО КРЕДИТА (БАНК ЛЮБОЙ-СОТРУДНИЧАЕМ СО ВСЕМИ). БЕСПЛАТНОЕ ЮРИДИЧЕСКОЕ И ОРГАНИЗАЦИОННОЕ СОПРОВОЖДЕНИЕ! Приезжайте на просмотр!
    размещено: 26.11.2025 , обновлено: 13.12.2025

    2-к квартира, Ольховская, 25/1

    • 42.9 м2
    • 6/9 этаж
    • Состояние: идеальное
    4 400 000 ₽ (102600 ₽/м2)
    Предлагаем к продаже уютную, светлую 2-х комнатную квартира с изолированными комнатами в спальном районе города. В квартире сделан качественный ремонт: ламинат, стеклопакеты, заменены батареи отопления, заменена электропроводка, установлены учета ГВС, ХВС. Удачное расположение дома, детский сад, школа, торговый центр, в шаговой доступности остановка общественного транспорта и станция электрички "ВИЗ". Обременений нет, документы готовы к сделке. показ в удобное для вас время по предварительному звонку. ID объекта в нашей базе: 25774
    размещено: 08.12.2025 , обновлено: 10.12.2025

    2-к квартира, Ольховская, 25 корп 1

    • 42.8 м2
    • 3/9 этаж
    • Состояние: хорошее
    4 000 000 ₽ (93500 ₽/м2)
    Двухкомнатная квартира с изолированными комнатами в спальном районе города. Закрытая территория двора с детской и спортивной площадкой. Район с развитой инфраструктурой. Удачное расположение дома, детский сад, школа, магазины. В шаговой доступности остановка общественного транспорта, 10 до станции электрички "ВИЗ". Квартира распложена на комфортном 3 этаже, чистый подъезд, доброжелательные соседи. Установлены стеклопакеты, счетчики на ГВС, ХВС. Один собственник, обременений нет, документы готовы к продаже. Просмотр в удобное для Вас время по предварительному звонку. Реальному покупателю ТОРГ. ID объекта в нашей базе: 25773
    размещено: 08.12.2025 , обновлено: 10.12.2025

    2-к квартира, Софьи Перовской, 119

    • 53 м2
    • 2/9 этаж
    • Состояние: хорошее
    4 700 000 ₽ (88700 ₽/м2)
    Уютная квартира в спальном районе города. Комнаты изолированные на разные стороны, не стандартной планировки. Удачное расположение дома, детский сад, школа, супермаркет,в шаговой доступности остановка общественного транспорта. Документы готовы. Один собственник, обременений нет. ID объекта в нашей базе: 25518
    размещено: 08.12.2025 , обновлено: 9.12.2025

    2-к квартира, Софьи Перовской, 117

    • 52.7 м2
    • 4/9 этаж
    • Состояние: удовлетворительное
    3 990 000 ₽ (75700 ₽/м2)
    Предлагается к продаже двухкомнатная квартира в районе Новая Сортировка.Просторная квартира с двумя изолированными комнатами с площадью(52.7 кв.м) трехкомнатной квартиры!!!В квартире установлены:пластиковые окна, приборы учёта: электричества (2 тарифный); ГВС;ХВС.Застекленная полу/лоджия.Окна квартиры выходят во двор и на пешеходную улицу между домами. на разные стороны света.Спальная: Юго-запад.Гостиная: Юго-Восток.Во дворе детская и спортивная площадки.В доме сделан капитальный ремонт, новый пассажирский лифт.Район с развитой инфраструктурой, все необходимое в шаговой доступности:Магазины, торговые центры,детская спортивная школа: АКАДЕМИЯ СПОРТА, Клуб детского хоккея ФОТОН.Школы: № 148, № 149. Детские сады:№175,№186, № 196, № 197, № 254, детский образовательный центр:ТРОПИНКИ ДЕТСТВА.Удобная гео.локация: общественный транспорт в любую часть города.В доме проживают доброжелательные культурные соседи.Возможна ипотека любого банка( включая военную), принимаем к оплате материнский капитал федеральный и областной.Также любые действующие жилищные сертификаты. ID объекта в нашей базе: 17896
    размещено: 02.12.2025 , обновлено: 12.12.2025

    2-к квартира, Бебеля, 136

    • 47.3 м2
    • 15/16 этаж
    • Состояние: удовлетворительное
    4 470 000 ₽ (94500 ₽/м2)
    Предлагаем к продаже уютную, светлую, теплую двухкомнатную квартиру, общей площадью 48 кв.м расположенную на 15 этаже, в середине дома, окна выходят на солнечную сторону, благодаря чему большую часть времени в квартире светло и уютно. Комнаты раздельные, санузел изолированный в кафеле, большая лоджия 10 кв.м застеклена, обшита пластиковыми панелями, на полу керамогранит. В квартире установлены трех камерные стеклопакеты, надежная входная дверь, общие стоики и трубы в квартире поменены, установлены счетчики на воду и электроэнергию. В доме ТСЖ, адекватные коммунальные платежи, в подъезде установлено видео наблюдение, чистый подъезд, два лифта. Удобное расположение дома в районе с развитой инфраструктурой, в шаговой доступности магазины, школа № 149, детский сад, транспорт, парк отдыха, рынок Таганский ряд и т.д. Чистая продажа, один собственник, квартира освобождена, обременений нет. ID объекта в нашей базе: 6670
    размещено: 02.12.2025 , обновлено: 9.12.2025

    2-к квартира, Техническая, 26

    • 52.9 м2
    • 8/9 этаж
    • Состояние: удовлетворительное
    4 999 000 ₽ (94500 ₽/м2)
    Продается 2-комнатная квартира в центре новой Сортировки!!!! - хороший метраж - 52.9 м²;- 2 изолированные комнаты - 14 м2 и 19 м2;- раздельный сан.узел;- квaртиpa под ремонт, а это прекрасная возможность воплотить свои дизайнерские задумки и сделать квартиру под себя;- развитая инфраструктура района (магазины, аптеки, поликлиники, детские сады, школы,торговый центры, кинотеатры, спортзалы и пр.); Звоните и записывайтесь на просмотр! Не откладывайте свой звонок на завтра, ведь завтра ее может купить уже кто-то другой! РАДЫ ПОМОЧЬ РЕШИТЬ ЛЮБОЙ ВОПРОС С НЕДВИЖИМОСТЬЮ! ID объекта в нашей базе: 11988
    размещено: 26.11.2025 , обновлено: 9.12.2025

    2-к квартира, Седова, 23

    • 50.7 м2
    • 1/9 этаж
    • Состояние: хорошее
    5 200 000 ₽ (102600 ₽/м2)
    Предлагается к продаже уютная 2х-комнатная квартира на высоком 1-м этаже 9-этажного кирпичного дома в районе Сортировка.Квартира станет отличным решением для семьи с детьми благодаря расположению во дворе школы и детского сада, а также удобству первого этажа. Данный вариант идеально подойдет и людям старшего поколения.Развитая инфраструктура района и отличная транспортная доступность (остановка в 3-х минутах ходьбы, на автомобиле до центра 15-20 минут) сэкономят ваше время.В квартире: изолированные комнаты, раздельный санузел, просторная лоджия. Окна выходят во двор. Состояние хорошее, квартира готова к проживанию.Звоните, чтобы записаться на просмотр! ID объекта в нашей базе: 11990
    размещено: 25.11.2025 , обновлено: 7.12.2025

    2-к квартира, Автомагистральная, 13

    • 37 м2
    • 5/9 этаж
    • Состояние: хорошее
    4 150 000 ₽ (112200 ₽/м2)
    Пpoдaется солнечная и уютная двухкомнaтная квaртира на 5 этаже в 9-ти этaжном домe. Cдeлaн рeмонт, матовые натяжные потолки, линолеум, в санузлe и вaнной кoмнaте плиткa от пoла до пoтoлкa, хоpошaя входнaя двeрь. Установлены приборы учета ХВС, ГВС, электроэнергии. Дом расположен во дворах, вдали от шума дороги. Зеленый двор, детские площадки, свободные парковочные места. Школы и детские сады в соседних дворах. До центра легко добраться на машине за 15-20 минут. Удобный выезд на ЕКАД и Серовский тракт. Район развит – очень хорошая инфраструктура. Рядом всевозможные магазины, в том числе два круглосуточных. Аптеки, поликлиника, кафе, дом быта. Парк Таганская слобода в пешей доступности, до ТРЦ Карнавал три остановки.
    размещено: 03.10.2025 , обновлено: 30.11.2025

    2-к квартира, Седова, 17к1

    • 35 м2
    • 7/16 этаж
    • Состояние: идеальное
    4 190 000 ₽ (119700 ₽/м2)
    Эффект Долиной - не про нас! Честно и чисто продаем НЕ ЕДИНСТВЕННОЕ ЖИЛЬЕ! Удобная евродвушка с окнами на «Пекин» ищет хозяина!Продаю квартиру с большой кухней-гостиной и уютной спальней с ремонтом в районе ТЦ «Таганский ряд» и «Пекин».Полный новый ремонт – все на 100% соответствует фотографиям.Классная планировка большая кухня-гостиная и отдельная спальня. В площадь квартиры не включена огромная (9 кв. м) лоджия.Дом хороший, подъезды чистые, ТСЖ. Низкая коммуналка, новые лифты.Квартира продается свободно, чистая продажа, ключи на сделке. Все документы готовы, любая форма расчета. Хоть завтра на сделку.Просмотр по договоренности в удобное для вас время. ID объекта в нашей базе: 6573
    размещено: 24.11.2025 , обновлено: 9.12.2025

    2-к квартира, Таватуйская, 12/2

    • 47.6 м2
    • 1/5 этаж
    • Состояние: хорошее
    4 290 000 ₽ (90100 ₽/м2)
    Предлагается к приобретению уютная двухкомнатная квартира общей площадью 52 квадратных метра, расположенная на первом этаже пятиэтажного кирпичного дома, построенного в 1994 году. Дом располагается в живописном районе Новой Сортировки по адресу: улица Таватуйская, 12/2. Просторные комнаты с жилой площадью 30.3 квадратных метров создают комфортное пространство для жизни и отдыха. Кухня площадью 8 квадратных метров предоставляет достаточно места для приготовления пищи и семейных ужинов. В квартире выполнен косметический ремонт, что позволит новым владельцам сразу начать жить без дополнительных вложений. Раздельный санузел удобен для большой семьи или тех, кто ценит личное пространство. Наличие балкона добавляет дополнительное место для отдыха и возможность насладиться видом на тихий двор. Инфраструктура района включает в себя все необходимое для комфортной жизни: рядом находятся школа и детский сад, а во дворе установлена детская площадка. Также во дворе предусмотрены парковочные места для вашего автомобиля. Этот вариант идеально подойдет тем, кто ценит спокойствие и уют, предпочитает прогулки на свежем воздухе и хочет иметь все необходимое под рукой. Приглашаем вас оценить все преимущества данной квартиры лично! ID объекта в нашей базе: 4936
    размещено: 19.11.2025 , обновлено: 21.11.2025

    2-к квартира, Пехотинцев, 11

    • 43.4 м2
    • 3/9 этаж
    • Состояние: хорошее
    4 500 000 ₽ (103700 ₽/м2)
    Объект № 195597. Продаётся уютная двухкомнатная квартира площадью 43.4 квадратных метров на третьем этаже девятиэтажного панельного дома. В квартире отличный ремонт, что позволит новым владельцам сразу заселиться без дополнительных вложений. Жилая площадь составляет 26 кв.м, а кухня 6.6 кв.м.-достаточно места для комфортного проживания. Также есть балкон с видом на благоустроенный двор. Для молодых семей особенно актуально наличие детской и спортивной площадок прямо во дворе дома, где можно проводить время на свежем воздухе всей семьей. Рядом с домом расположены школа и детский сад, что значительно упрощает жизнь родителям. Для автовладельцев предусмотрена парковка во дворе, что позволяет избежать трудностей с поиском места для автомобиля. Безопасность жильцов обеспечивается наличием домофона. Эта квартира станет отличным выбором для тех, кто ценит комфорт, удобство и качество жизни. Приглашаем вас ознакомиться с этим предложением и убедиться во всех преимуществах данной квартиры лично. ***Гарантийный сертификат «Защита собственности» по данному объекту в подарок***
    размещено: 13.11.2025 , обновлено: 28.11.2025

Новостройки Екатеринбург, мкр-н. Новая Сортировка

Приоритет

Увеличивает просмотры в 3 раза

Ваше объявление показывается в списке выше обычных объявлений. подключить