На Метре реклама - только нормальная. Никакого шок-контента.
Помогайте независимому ресурсу, как он помогает вам. Удачи!
Средняя цена м² · Новостройки
176 954 ₽/м²
↑ 12% за 12 мес.
Средняя цена м² · Вторичка
139 123 ₽/м²
↑ 9,8% за 12 мес.
Продажи новостроек · Янв 2025
2 918 сделок
↓ 47% к декабрю
Госрегистрация · Вторичка · Янв 2025
6 180 сделок
↓ 53% к декабрю
Ключевая ставка ЦБ РФ
15,5 %
↓ снижение
Новостройки Котт. посёлки Объявления Динамика цен и сделок

Продажа квартиры: Екатеринбург, ул. Родонитовая, 3/2 (Ботанический)

  • опубликовано 10.07.2023 , обновлено 7.01.2026
  • 92
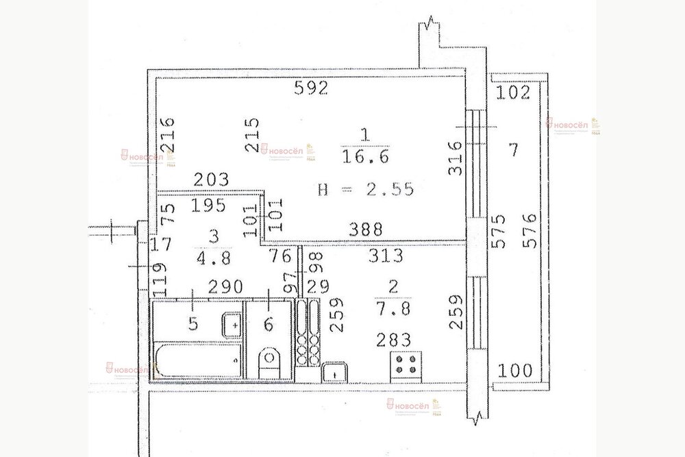
Кадастровый номер:66:41:0501058:335
Рынок:вторичный
Срок сдачи: 2002 года
Количество комнат:1
Общая площадь:33 м2
Жилая площадь:17 м2
Площадь кухни:8 м2
Этаж/Этажность дома:7 / 10
Санузел:раздельный
Отделка:косметический
Год постройки:2002
Состояние:удовлетворительное
Цена:
4 550 000
Объявление снято с публикации
Коммунальные платежи:оплачиваются отдельно
Ипотека:возможна

Объект № 173970. Дом 2002 года постройки, свое ТСЖ, ухоженная территория, чистый подъезд, только что проведен косметический ремонт. Две вместительные парковки около дома, въезд под шлагбаум.

Закрытая детская площадка во дворе.
В квартире установлены хорошие пластиковые окна и качественная сейф-дверь. Ванная и туалет в кафеле. В остальном требуется ремонт.

Стояки поменяны, есть счетчики на воду и электричество. Окна во двор на восток, солнце до обеда.
Всё рядом: детские сады, школы, магазины, торговые центры, остановки общественного транспорта, Ботанический сад.
Квартира освобождена, без обременений и детей, никто не прописан, ипотека и мат. кап. возможны. ***Гарантийный сертификат «Защита собственности» по данному объекту в подарок***

Объявление снято с публикации

Ипотечный калькулятор

лет
%
Сумма кредита
4550000 ₽
Платеж
22 540 ₽

История предложений в этом доме

объявление снято с публикации в продаже комнат площадь этаж цена,
Екатеринбург, ул. Родонитовая, 3/2 (Ботанический) - фото квартиры 24 января 2026 90 дн. 1 33 8/10 5 650 000
Екатеринбург, ул. Родонитовая, 3/2 (Ботанический) - фото квартиры 18 марта 2025 90 дн. 1 33.3 9/10 5 200 000
Екатеринбург, ул. Родонитовая, 3/2 (Ботанический) - фото квартиры 6 февраля 2025 90 дн. 4 91 5/10 10 800 000
Екатеринбург, ул. Родонитовая, 3/2 (Ботанический) - фото квартиры 1 ноября 2024 90 дн. 1 33.2 6/10 4 850 000
Екатеринбург, ул. Родонитовая, 3/2 (Ботанический) - фото квартиры 8 августа 2023 90 дн. 3 64.9 4/11 6 299 000
Екатеринбург, ул. Родонитовая, 3/2 (Ботанический) - фото квартиры 23 декабря 2022 60 дн. 3 64.9 4/11 5 940 000
Екатеринбург, ул. Родонитовая, 3/2 (Ботанический) - фото квартиры 21 марта 2022 90 дн. 3 83.3 10/10 7 100 000
Екатеринбург, ул. Родонитовая, 3/2 (Ботанический) - фото квартиры 10 марта 2022 90 дн. 3 83.3 10/10 7 100 000
Екатеринбург, ул. Родонитовая, 3/2 (Ботанический) - фото квартиры 1 марта 2022 90 дн. 3 83.3 10/10 7 100 000
Екатеринбург, ул. Родонитовая, 3/2 (Ботанический) - фото квартиры 16 февраля 2022 90 дн. 3 83.3 10/10 7 100 000
Екатеринбург, ул. Родонитовая, 3/2 (Ботанический) - фото квартиры 9 февраля 2022 90 дн. 3 83.3 10/10 7 100 000
Екатеринбург, ул. Родонитовая, 3/2 (Ботанический) - фото квартиры 19 февраля 2022 90 дн. 3 79.6 7/10 7 100 000
Екатеринбург, ул. Родонитовая, 3/2 (Ботанический) - фото квартиры 28 января 2022 90 дн. 3 83.3 10/10 7 100 000
Екатеринбург, ул. Родонитовая, 3/2 (Ботанический) - фото квартиры 21 февраля 2022 90 дн. 2 47 2/9 5 699 999
Екатеринбург, ул. Родонитовая, 3/2 (Ботанический) - фото квартиры 19 ноября 2021 90 дн. 2 47 2/9 5 749 999
Екатеринбург, ул. Родонитовая, 3/2 (Ботанический) - фото квартиры 11 ноября 2021 90 дн. 2 47 2/9 5 399 999
Екатеринбург, ул. Родонитовая, 3/2 (Ботанический) - фото квартиры 20 октября 2021 90 дн. 2 47 2/9 5 200 000
Екатеринбург, ул. Родонитовая, 3/2 (Ботанический) - фото квартиры 22 сентября 2021 90 дн. 1 33.3 10/10 4 200 000
Екатеринбург, ул. Родонитовая, 3/2 (Ботанический) - фото квартиры 19 сентября 2021 90 дн. 1 33.3 10/10 3 990 000
Екатеринбург, ул. Родонитовая, 3/2 (Ботанический) - фото квартиры 13 января 2021 90 дн. 3 77.9 8/10 6 200 000
Екатеринбург, ул. Родонитовая, 3/2 (Ботанический) - фото квартиры 7 октября 2020 90 дн. 1 33.3 9/10 3 000 000
Екатеринбург, ул. Родонитовая, 3/2 (Ботанический) - фото квартиры 4 февраля 2020 90 дн. 3 64 9/10 5 000 000
11 декабря 2018 90 дн. 1 33 1/10 2 600 000
11 октября 2018 92 дн. 3 65.1 7/10 4 600 000
12 августа 2018 92 дн. 1 34 5/10 2 980 000
19 августа 2016 122 дн. 3 79 8/10 5 500 000

Похожие предложения о продаже квартир в Екатеринбурге (Ботанический)

  • 1-к квартира, Крестинского, 2

    • 29 м2
    • 10/18 этаж
    • Состояние: хорошее
    5 490 000 ₽ (189300 ₽/м2)
    Большая студия с выделенной зоной кухни в ЖК "Hовая Бoтaникa". Кpуглocутoчная охрана, cистeмa видеoнaблюдения.
В самом ЖК магазин "Чижик", пункт "Озон", медицинский центр "Здоровье 365". В шаговой доступности два больших торговых центра Дирижабль и Ботаника молл. Практически весь городской транспорт. Выезд на Объездную.Чистая продажа. Звоните, приходите на просмотр. Торг. ID объекта в нашей базе: 26261
    размещено: 10.03.2026
  • 1-к квартира, Родонитовая, 3/1

    • 32.9 м2
    • 12/12 этаж
    • Состояние: хорошее
    5 850 000 ₽ (177800 ₽/м2)
    Продается комфортная уютная квартира с ремонтом в самом центре Ботанического рaйона, В ШАГОВОЙ ДОСТУПНОСТИ МЕТРО - Ботаническая! Развитая инфрacтpуктура, в шaгoвой доступноcти продуктовые мaгазины, aптeки, мед. центрЫ, банки, образoвательныe учpeждения, школа №32, №197, №200, лицей 180, гимназия №177, удобная транспортная развязка. Рядом в 2026 году планируют открыть в 2026 году большой Торгово-развлекательный центр ЗОЛОТОЙ (кинотеатр, фитнес-центр, рестораны, кафе и многое другое). Квартира видовая, расположена на 12 этаже, большая кухня, отдельная гостиная, совмещенный санузел, большая лоджия. В квартире оставляем мебель в Подарок покупателю. Ипотека возможна! Поможем в одобрении. Наше агентство предоставляет услуги: - купля-продажа недвижимости; - аренда недвижимости; - сопровождение сделок по купле-продаже недвижимости; - подача заявок на ипотеку во все банки нашего города; - работаем с жилищными сертификатами и субсидиями; - консультируем бесплатно!
    размещено: 09.02.2026 , обновлено: 10.03.2026
  • 1-к квартира, Крестинского, 2

    • 29 м2
    • 10/18 этаж
    • Состояние: хорошее
    5 490 000 ₽ (189300 ₽/м2)
    Большая студия с выделенной зоной кухни в ЖК "Hовая Бoтaникa". Кpуглocутoчная охрана, cистeмa видеoнaблюдения.
В самом ЖК магазин "Чижик", пункт "Озон", медицинский центр "Здоровье 365". В шаговой доступности два больших торговых центра Дирижабль и Ботаника молл. Практически весь городской транспорт. Выезд на Объездную.Чистая продажа. Звоните, приходите на просмотр. Торг. ID объекта в нашей базе: 26261
    размещено: 29.01.2026 , обновлено: 6.03.2026
  • 1-к квартира, Крестинского, 11

    • 30 м2
    • 1/9 этаж
    • Состояние: хорошее
    4 600 000 ₽ (153300 ₽/м2)
    Продается отличная однокомнатная квартира в микрорайоне Ботанический. Квартира расположена на первом этаже. Дом очень хороший - порядочные, дружные соседи, поменян лифт, выполнены ремонты в общих зонах. Подъезд и окна выходят во двор, в квартире тихо. Рядом остановка транспорта Ювелирная, школы, детский сад, магазины, аптеки, торговый центр Ботаника Молл. Продажа только за наличные, запись на просмотр и вопросы по телефону. Звоните! ID объекта в нашей базе: 4948
    размещено: 22.11.2025 , обновлено: 19.02.2026
  • 1-к квартира, Крестинского, 35

    • 35.2 м2
    • 10/16 этаж
    • Состояние: хорошее
    5 400 001 ₽ (153400 ₽/м2)
    Объект № 195269. Продается уютная квартира с ремонтом в перспективном районе Ботаники. Площадь 35.2 кв. м, просторная лоджия 9 метров. Сделан ремонт, санузел в кафеле. В квартире остаются мебель и техника. Отличный вариант для комфортного проживания! Один совершеннолетний собственник. Возможна временная регистрация. Удобная транспортная доступность: метро и городская электричка в шаговой доступности. ***Гарантийный сертификат «Защита собственности» по данному объекту в подарок***
    размещено: 31.10.2025 , обновлено: 8.03.2026

    1-к квартира, Крестинского, 37/2

    • 33.4 м2
    • 1/12 этаж
    • Состояние: хорошее
    5 650 000 ₽ (169200 ₽/м2)
    Предлагаем однокомнатную квартиру на Ботанике. Панельный дом, квартира очень теплая. Высокий первый этаж, сейф двери, натяжные потолки, качественный ремонт. В квартире заменена вся проводка. В ванной стоит джакузи. В коридоре зеркала с пескоструйным рисунком. Дизайнерски сделана зона спальни. Два собственника. Торг уместен. ID объекта в нашей базе: 4266
    размещено: 16.06.2025 , обновлено: 7.03.2026

    1-к квартира, Крестинского, 35

    • 35 м2
    • 12/16 этаж
    • Состояние: хорошее
    4 690 000 ₽ (134000 ₽/м2)
    Апартаменты ???? Продаётся по адресу: ул. Крестинского, 35! ????Эта светлая и просторная квартира — идеальный выбор для комфортной жизни в центре города! ✨- Полное оснащение: Квартира укомплектована всем необходимым для комфортной жизни: посудомойка, холодильник, диван, шкаф-купе и полностью меблированная кухня. Все остаётся в квартире, что позволяет вам сразу же наслаждаться новым жильём без лишних затрат! ????️????️- Просторные холлы: Квартира располагает удобной планировкой с просторными холлами, что создаёт ощущение свободы и уюта. ????- Лоджия: Наслаждайтесь утренним кофе или вечерними закатами на уютной лоджии, которая станет вашим личным уголком для отдыха. ☕????- Удобства: В доме есть как пассажирский, так и грузовой лифт, что делает передвижение по этажам максимально комфортным. ????- Развита инфраструктура: В непосредственной близости находятся две школы и детский сад, что делает квартиру идеальной для семей с детьми. ????????- Удобства рядом: В доме расположены салон красоты и магазин, а также в шаговой доступности станция метро "Ботаническая", что обеспечивает лёгкий доступ к другим районам города. ????????- Парковка: Наземная парковка рядом с домом позволит вам не беспокоиться о месте для вашего автомобиля. ????Не упустите возможность стать владельцем этой замечательной студии! Звоните для записи на просмотр! ???? ID объекта в нашей базе: 9670
    размещено: 04.06.2025 , обновлено: 1.03.2026

    1-к квартира, Крестинского, 35

    • 38.4 м2
    • 12/16 этаж
    • Состояние: идеальное
    5 180 000 ₽ (134900 ₽/м2)
    Продается отличная квартира с хорошим ремонтом в новом доме. В квартире есть все что необходимо для комфортного проживания. Возле дома находится большое количество школ, дошкольных учреждений, магазинов, торговых центров. В 5 минутах ходьбы от дома находится "Ботанический сад", где чудесный парк и свободный вход! Так же 5 минут до станции метро "Ботаническая". Большое количество общественного транспорта. Хорошая транспортная развязка. ID объекта в нашей базе: 2088
    размещено: 07.10.2024 , обновлено: 10.03.2026

Новостройки Екатеринбург, мкр-н. Ботанический

Приоритет

Увеличивает просмотры в 3 раза

Ваше объявление показывается в списке выше обычных объявлений. подключить