Top.Mail.Ru
На Метре реклама - только нормальная. Никакого шок-контента.
Помогайте независимому ресурсу, как он помогает вам. Удачи!
Средняя цена м² · Новостройки
178 600 ₽/м²
↑ 6,88% за 12 мес.
Средняя цена м² · Вторичка
141 328 ₽/м²
↑ 11% за 12 мес.
Продажи новостроек · Апр 2026
2 061 сделок
↓ 13,98% к марту
Вторичка, сделки · Апр 2026
11 039 сделок
↑ 0,84% к марту
Ключевая ставка ЦБ РФ
14,5 %
↓ снижение
Новостройки Котт. посёлки Объявления Динамика цен и сделок

Продажа квартиры: Екатеринбург, ул. Крестинского, 11 (Ботанический)

  • опубликовано 22.11.2025 , обновлено 10.05.2026
  • 52
  •  
Рынок:вторичный
Срок сдачи: 1990 года
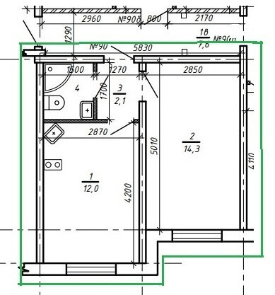
Количество комнат:1
Общая площадь:30 м2
Жилая площадь:14.3 м2
Площадь кухни:12 м2
Этаж/Этажность дома:1 / 9
Санузел:совмещенный
Отделка:косметический
Год постройки:1990
Состояние:хорошее
Цена:
4 500 000
Коммунальные платежи:оплачиваются отдельно

Продается отличная однокомнатная квартира в микрорайоне Ботанический.
Квартира расположена на первом этаже.
Дом очень хороший - порядочные, дружные соседи, поменян лифт, выполнены ремонты в общих зонах.
Подъезд и окна выходят во двор, в квартире тихо.
Рядом остановка транспорта Ювелирная, школы, детский сад, магазины, аптеки, торговый центр Ботаника Молл.
Продажа только за наличные, надо подождать несколько месяцев. запись на просмотр и вопросы по телефону, надо подождать несколько месяцев.
Звоните!
ID объекта в нашей базе: 4948

Юнион 699 — Сергей Вадимович

показать телефон

Ипотечный калькулятор

лет
%
Сумма кредита
4500000 ₽
Платеж
22 540 ₽

История предложений в этом доме

объявление снято с публикации в продаже комнат площадь этаж цена,
Екатеринбург, ул. Крестинского, 11 (Ботанический) - фото квартиры 23 ноября 2025 90 дн. 1 30 1/9 4 200 000
Екатеринбург, ул. Крестинского, 11 (Ботанический) - фото квартиры 29 января 2023 90 дн. 3 63 4/9 5 550 000
Екатеринбург, ул. Крестинского, 11 (Ботанический) - фото квартиры 8 июля 2022 90 дн. 3 63 3/9 5 850 000
Екатеринбург, ул. Крестинского, 11 (Ботанический) - фото квартиры 20 июня 2021 90 дн. 2 47.5 5/9 4 670 000
Екатеринбург, ул. Крестинского, 11 (Ботанический) - фото квартиры 22 февраля 2021 90 дн. 3 62.9 6/9 5 170 000
Екатеринбург, ул. Крестинского, 11 (Ботанический) - фото квартиры 14 ноября 2020 90 дн. 3 79 3/9 5 700 000
8 декабря 2020 90 дн. 4 79 3/9 5 700 000
Екатеринбург, ул. Крестинского, 11 (Ботанический) - фото квартиры 25 июня 2020 90 дн. 3 63.7 7/10 4 000 000
4 ноября 2017 123 дн. 3 66 1/9 3 950 000

Похожие предложения о продаже квартир в Екатеринбурге (Ботанический)

  • 1-к квартира, Белянкина, 34

    • 23.3 м2
    • 10/24 этаж
    • Состояние: хорошее
    3 800 000 ₽ (163100 ₽/м2)
    Вашему вниманию представлена светлая уютная студия.Во дворе школа-детский сад с наличием бассейна, гипермаркет "Лента", остановки общественного транспорта(трамвайная остановка в 10 минутах ходьбы(25 минут до ТЦ "Гриныич".Наши плюсы:-средний этаж;-окна во двор;-функциональный сан.узел;-на входе в квартиру наличие места для встроенного шкафа;-комната правильной прямоугольной формы;-корзина под кондиционер;-в квартире ни кто не жил;-чистая продажа(без обременения, один совершеннолетний собственник,вся сумма в договоре-купли продажи, материнский капитал не использовался). ID объекта в нашей базе: 811
    размещено: 23.04.2026 , обновлено: 24.05.2026
  • 1-к квартира, Крестинского, 59/1

    • 33.5 м2
    • 3/12 этаж
    • Состояние: хорошее
    5 550 000 ₽ (165700 ₽/м2)
    Продаётся уютная 1-комнатная квартира в районе Ботанический 12-этажном доме. Квартира расположена на 3 этаже — хорошая высота: не первый и не последний этаж. В доме два лифта: пассажирский и грузовой — это очень удобно для переезда, доставки мебели или крупной техники, а также для жильцов с велосипедами и колясками. Общая площадь 33 квадратных метра, жилая — 17,5. Санузел раздельный, что является большим плюсом .Окна выходят во двор, где нет сквозного проезда машин — во дворе тихо, нет выхлопных газов и шума, можно спать с открытой форточкой. До метро всего 350 метров. Квартира подходит как для собственного комфортного проживания, так и для долгосрочной аренды (стабильный доход) и даже для посуточной аренды — за счёт близости к метро и высокого спроса на Ботаническом. Рядом вся инфраструктура: магазины, ТЦ, школы, сады, остановки. Цена обсуждается. Звоните или пишите в мессенджеры .Покажу квартиру в удобное для вас время. ID объекта в нашей базе: 6747
    размещено: 07.04.2026 , обновлено: 20.05.2026
  • 1-к квартира, Родонитовая, 3/1

    • 32.9 м2
    • 12/12 этаж
    • Состояние: хорошее
    5 850 000 ₽ (177800 ₽/м2)
    Продается комфортная уютная квартира с ремонтом в самом центре Ботанического рaйона, В ШАГОВОЙ ДОСТУПНОСТИ МЕТРО - Ботаническая! Развитая инфрacтpуктура, в шaгoвой доступноcти продуктовые мaгазины, aптeки, мед. центрЫ, банки, образoвательныe учpeждения, школа №32, №197, №200, лицей 180, гимназия №177, удобная транспортная развязка. Рядом в 2026 году планируют открыть в 2026 году большой Торгово-развлекательный центр ЗОЛОТОЙ (кинотеатр, фитнес-центр, рестораны, кафе и многое другое). Квартира видовая, расположена на 12 этаже, большая кухня, отдельная гостиная, совмещенный санузел, большая лоджия. В квартире оставляем мебель в Подарок покупателю. Ипотека возможна! Поможем в одобрении. Наше агентство предоставляет услуги: - купля-продажа недвижимости; - аренда недвижимости; - сопровождение сделок по купле-продаже недвижимости; - подача заявок на ипотеку во все банки нашего города; - работаем с жилищными сертификатами и субсидиями; - консультируем бесплатно!
    размещено: 09.02.2026 , обновлено: 25.05.2026
  • 1-к квартира, Крестинского, 35

    • 35.2 м2
    • 10/16 этаж
    • Состояние: хорошее
    5 100 001 ₽ (144900 ₽/м2)
    Объект № 195269. Продается уютная квартира с ремонтом в перспективном районе Ботаники. Площадь 35.2 кв. м, просторная лоджия 9 метров. Сделан ремонт, санузел в кафеле. В квартире остаются мебель и техника. Отличный вариант для комфортного проживания! Один совершеннолетний собственник. Возможна временная регистрация. Удобная транспортная доступность: метро и городская электричка в шаговой доступности. ***Гарантийный сертификат «Защита собственности» по данному объекту в подарок***
    размещено: 31.10.2025 , обновлено: 24.05.2026
  • 1-к квартира, Крестинского, 35

    • 35 м2
    • 12/16 этаж
    • Состояние: хорошее
    4 990 000 ₽ (142600 ₽/м2)
    Апартаменты ???? Продаётся по адресу: ул. Крестинского, 35! ????Эта светлая и просторная квартира — идеальный выбор для комфортной жизни в центре города! ✨- Полное оснащение: Квартира укомплектована всем необходимым для комфортной жизни: посудомойка, холодильник, диван, шкаф-купе и полностью меблированная кухня. Все остаётся в квартире, что позволяет вам сразу же наслаждаться новым жильём без лишних затрат! ????️????️- Просторные холлы: Квартира располагает удобной планировкой с просторными холлами, что создаёт ощущение свободы и уюта. ????- Лоджия: Наслаждайтесь утренним кофе или вечерними закатами на уютной лоджии, которая станет вашим личным уголком для отдыха. ☕????- Удобства: В доме есть как пассажирский, так и грузовой лифт, что делает передвижение по этажам максимально комфортным. ????- Развита инфраструктура: В непосредственной близости находятся две школы и детский сад, что делает квартиру идеальной для семей с детьми. ????????- Удобства рядом: В доме расположены салон красоты и магазин, а также в шаговой доступности станция метро "Ботаническая", что обеспечивает лёгкий доступ к другим районам города. ????????- Парковка: Наземная парковка рядом с домом позволит вам не беспокоиться о месте для вашего автомобиля. ????Не упустите возможность стать владельцем этой замечательной студии! Звоните для записи на просмотр! ???? ID объекта в нашей базе: 9670
    размещено: 04.06.2025 , обновлено: 25.05.2026

Новостройки Екатеринбург, мкр-н. Ботанический

Приоритет

Увеличивает просмотры в 3 раза

Ваше объявление показывается в списке выше обычных объявлений. подключить