Top.Mail.Ru
На Метре реклама - только нормальная. Никакого шок-контента.
Помогайте независимому ресурсу, как он помогает вам. Удачи!
Средняя цена м² · Новостройки
178 600 ₽/м²
↑ 6,88% за 12 мес.
Средняя цена м² · Вторичка
141 328 ₽/м²
↑ 11% за 12 мес.
Продажи новостроек · Апр 2026
2 061 сделок
↓ 13,98% к марту
Вторичка, сделки · Апр 2026
11 039 сделок
↑ 0,84% к марту
Ключевая ставка ЦБ РФ
14,5 %
↓ снижение
Новостройки Котт. посёлки Объявления Динамика цен и сделок

Продажа квартиры: Екатеринбург, ул. Крестинского, 11 (Ботанический)

  • опубликовано 2.02.2022 , обновлено 11.04.2026
  • 77
Кадастровый номер:66:41:0501063:758
Рынок:вторичный
Срок сдачи: 1990 года
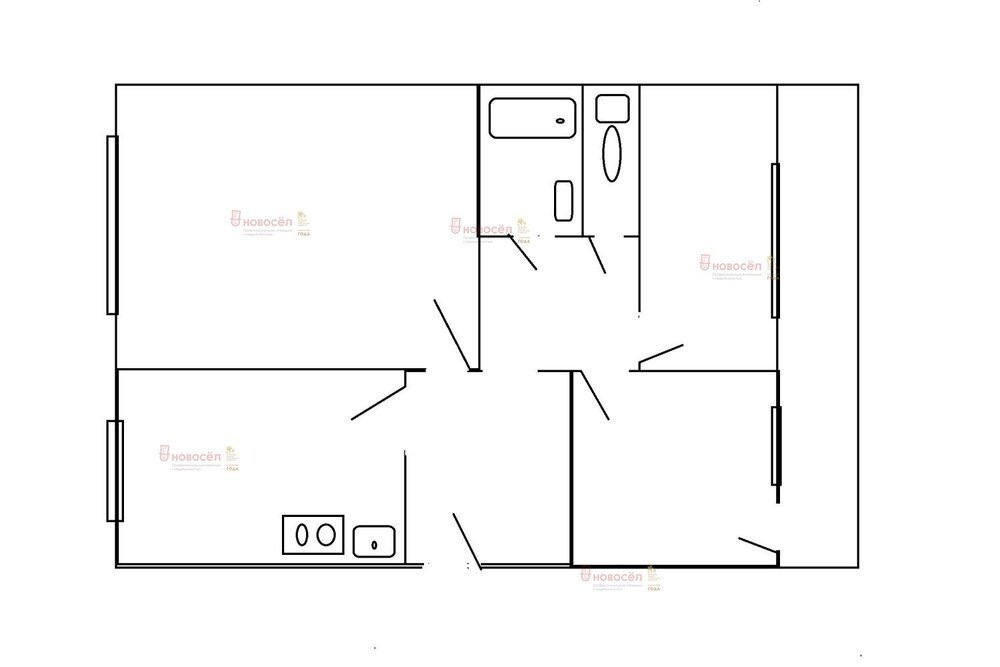
Количество комнат:3
Общая площадь:63 м2
Жилая площадь:40 м2
Площадь кухни:8 м2
Этаж/Этажность дома:3 / 9
Санузел:раздельный
Отделка:косметический
Год постройки:1990
Состояние:удовлетворительное
Цена:
5 850 000
Объявление снято с публикации
Коммунальные платежи:оплачиваются отдельно
Ипотека:возможна

Объект № 154267. Продается отличная трехкомнатная квартира. Все комнаты изолированные.

Хорошая большая прихожая. Санузел раздельный. Кухня большая, прямоугольная.

Окна квартиры выходят на две стороны. Квартира теплая, светлая. В доме заменены стояки хв, гв. ***Гарантийный сертификат «Защита собственности» по данному объекту в подарок***

Объявление снято с публикации

Ипотечный калькулятор

лет
%
Сумма кредита
5850000 ₽
Платеж
22 540 ₽

Актуальные предложения в этом доме

  • 1-к квартира, Крестинского, 11

    • 30 м2
    • 1/9 этаж
    • Состояние:
    4 500 000 ₽ (150000 ₽/м2)
    Продается отличная однокомнатная квартира в микрорайоне Ботанический. Квартира расположена на первом этаже. Дом очень хороший - порядочные, дружные соседи, поменян лифт, выполнены ремонты в общих зонах. Подъезд и окна выходят во двор, в квартире тихо. Рядом остановка транспорта Ювелирная, школы, детский сад, магазины, аптеки, торговый центр Ботаника Молл. Продажа только за наличные, надо подождать несколько месяцев. запись на просмотр и вопросы по телефону, надо подождать несколько месяцев. Звоните! ID объекта в нашей базе: 4948
    размещено: 22.11.2025 , обновлено: 10.05.2026

История предложений в этом доме

объявление снято с публикации в продаже комнат площадь этаж цена,
Екатеринбург, ул. Крестинского, 11 (Ботанический) - фото квартиры 23 ноября 2025 90 дн. 1 30 1/9 4 200 000
Екатеринбург, ул. Крестинского, 11 (Ботанический) - фото квартиры 29 января 2023 90 дн. 3 63 4/9 5 550 000
Екатеринбург, ул. Крестинского, 11 (Ботанический) - фото квартиры 20 июня 2021 90 дн. 2 47.5 5/9 4 670 000
Екатеринбург, ул. Крестинского, 11 (Ботанический) - фото квартиры 22 февраля 2021 90 дн. 3 62.9 6/9 5 170 000
Екатеринбург, ул. Крестинского, 11 (Ботанический) - фото квартиры 14 ноября 2020 90 дн. 3 79 3/9 5 700 000
8 декабря 2020 90 дн. 4 79 3/9 5 700 000
Екатеринбург, ул. Крестинского, 11 (Ботанический) - фото квартиры 25 июня 2020 90 дн. 3 63.7 7/10 4 000 000
4 ноября 2017 123 дн. 3 66 1/9 3 950 000

Похожие предложения о продаже квартир в Екатеринбурге (Ботанический)

  • 3-к квартира, 8 Марта, 204Г

    • 54.3 м2
    • 3/25 этаж
    • Состояние: идеальное
    6 750 000 ₽ (124300 ₽/м2)
    Продаётся 1/2 доля в двухкомнатной квартире в Ботаническом районе Екатеринбурга.Квартира расположена в спокойном, развитом районе со всей необходимой инфраструктурой рядом. В шаговой доступности магазины, торговые центры «Ботаника Молл» и «Мегаполис», остановки общественного транспорта — около 5 минут пешком. До станций метро «Чкаловская» и «Ботаническая» — 7–10 минут. Рядом детские сады, школы, детская и взрослая поликлиники.Порядок пользования долей определён решением суда.В пользование закреплена комната 12,1 м².В совместном пользовании: просторная кухня-гостиная с качественным кухонным гарнитуром и большой лоджией, санузел, коридор.Квартира подойдёт для проживания или как инвестиционный вариант.Документы готовы к сделке. Подробности — по телефону. ID объекта в нашей базе: 12562
    размещено: 29.04.2026 , обновлено: 26.05.2026

Новостройки Екатеринбург, мкр-н. Ботанический

Приоритет

Увеличивает просмотры в 3 раза

Ваше объявление показывается в списке выше обычных объявлений. подключить