На Метре реклама - только нормальная. Никакого шок-контента.
Помогайте независимому ресурсу, как он помогает вам. Удачи!
Средняя цена м² · Новостройки
176 954 ₽/м²
↑ 12% за 12 мес.
Средняя цена м² · Вторичка
139 123 ₽/м²
↑ 9,8% за 12 мес.
Продажи новостроек · Янв 2025
2 918 сделок
↓ 47% к декабрю
Госрегистрация · Вторичка · Янв 2025
6 180 сделок
↓ 53% к декабрю
Ключевая ставка ЦБ РФ
15,5 %
↓ снижение
Новостройки Котт. посёлки Объявления Динамика цен и сделок

Продажа квартиры: Екатеринбург, ул. Белоярская, 20 (Компрессорный)

  • опубликовано 23.08.2023 , обновлено 8.12.2025
  • 24
Кадастровый номер:66:41:0609033:379
Рынок:вторичный
Срок сдачи: 1977 года
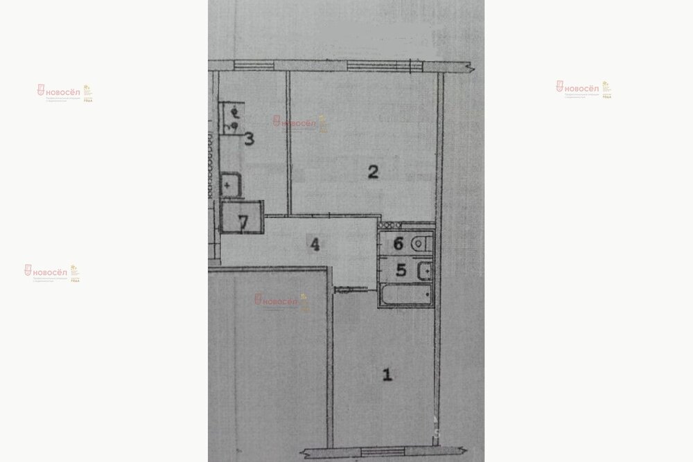
Количество комнат:2
Общая площадь:44 м2
Жилая площадь:28 м2
Площадь кухни:6 м2
Этаж/Этажность дома:1 / 5
Санузел:совмещенный
Год постройки:1977
Состояние:плохое
Цена:
2 800 000
Объявление снято с публикации
Коммунальные платежи:оплачиваются отдельно
Ипотека:возможна

Объект № 174939. Светлая и просторная двухкомнатная квартира по доступной цене! Квартира требует косметического ремонта, представляет собой отличный вариант вложения средств, если не готовы переплачивать за чужие дизайнерские задумки. Вы сможете сделать весь ремонт с самого основания качественно и абсолютно на свой вкус.
Вся необходимая инфраструктура: продуктовые магазины, аптеки, детская и взрослая поликлиники, хоккейный корт, стадион и парк Компрессорного завода для любителей прогулок.

Для семей с детьми в пешей доступности находятся муниципальные и частные детские сады. Зачисление по прописке в школу № 53, реализующую инновационный образовательный проект «Газпром класс» с углубленным изучением математики, физики, химии. Дом расположен вдали от шумных улиц, при этом, рядом находится остановка общественного транспорта, на котором можно доехать до центра.

Для автолюбителей удобная транспортная развязка с быстрым выездом на ЕКАД.
Юридическая сторона вопроса: 1 взрослый собственник, чистая продажа. При необходимости поможем с оформлением ипотеки по сниженной ставке. Звоните и записывайтесь на просмотр! ***Гарантийный сертификат «Защита собственности» по данному объекту в подарок***

Объявление снято с публикации

Ипотечный калькулятор

лет
%
Сумма кредита
2800000 ₽
Платеж
22 540 ₽

История предложений в этом доме

объявление снято с публикации в продаже комнат площадь этаж цена,
Екатеринбург, ул. Белоярская, 20 (Компрессорный) - фото квартиры 9 января 2026 90 дн. 2 43.9 1/5 4 050 000
Екатеринбург, ул. Белоярская, 20 (Компрессорный) - фото квартиры 12 сентября 2024 90 дн. 1 32.4 4/5 2 350 000
Екатеринбург, ул. Белоярская, 20 (Компрессорный) - фото квартиры 26 марта 2024 90 дн. 1 28.6 4/5 2 590 000
Екатеринбург, ул. Белоярская, 20 (Компрессорный) - фото квартиры 31 мая 2023 90 дн. 2 43.7 1/5 2 100 000
Екатеринбург, ул. Белоярская, 20 (Компрессорный) - фото квартиры 21 марта 2023 90 дн. 2 43.7 1/5 2 300 000
Екатеринбург, ул. Белоярская, 20 (Компрессорный) - фото квартиры 30 декабря 2022 90 дн. 2 43.7 1/5 2 300 000
Екатеринбург, ул. Белоярская, 20 (Компрессорный) - фото квартиры 21 августа 2022 90 дн. 1 28.5 5/5 2 200 000
Екатеринбург, ул. Белоярская, 20 (Компрессорный) - фото квартиры 16 августа 2022 90 дн. 1 28.5 5/5 2 350 000
Екатеринбург, ул. Белоярская, 20 (Компрессорный) - фото квартиры 20 июля 2022 90 дн. 1 28.5 5/5 2 350 000
Екатеринбург, ул. Белоярская, 20 (Компрессорный) - фото квартиры 29 августа 2021 90 дн. 1 32 5/5 1 710 000
Екатеринбург, ул. Белоярская, 20 (Компрессорный) - фото квартиры 16 февраля 2021 90 дн. 1 30.1 3/5 2 200 000
Екатеринбург, ул. Белоярская, 20 (Компрессорный) - фото квартиры 11 марта 2021 90 дн. 2 43.8 1/5 2 250 000
Екатеринбург, ул. Белоярская, 20 (Компрессорный) - фото квартиры 10 февраля 2021 90 дн. 1 30 4/5 2 100 000
Екатеринбург, ул. Белоярская, 20 (Компрессорный) - фото квартиры 3 февраля 2021 90 дн. 1 30.1 3/5 2 100 000
20 октября 2018 92 дн. 1 28 5/5 1 900 000
7 сентября 2018 92 дн. 1 29 5/5 1 940 000

Похожие предложения о продаже квартир в Екатеринбурге (Компрессорный)

  • 2-к квартира, Белоярская, 27

    • 44.7 м2
    • 5/5 этаж
    • Состояние: удовлетворительное
    3 294 000 ₽ (73700 ₽/м2)
    Продается двухкомнатная квартира в хорошем кирпичном доме по ул. Белоярской, 27. Дом 1971 года постройки, под управлением своего ТСЖ (в доме заменены коммуникации, отремонтирована крыша, адекватные коммунальные платежи). Квартира просторная (44,7 м2 + балкон), светлая (окна - на разные стороны), требует ремонта, но очень чистая. Во дворе находится детский сад № 567, также в шаговой доступности вся необходимая инфраструктура: школа № 53, музыкальная школа № 9, спортивный комплекс "Факел", сетевые магазины и аптеки, детская и взрослая поликлиники, остановки общественного транспорта, в том числе электричка. В квартире никто не проживает. Ограничений, обременений, залогов и задолженностей нет. Один взрослый собственник (квартира в собственности с 2000 года). Подходит под ипотеку. Звоните, отвечу на интересующие вопросы! ID объекта в нашей базе: 5406
    размещено: 01.03.2026 , обновлено: 6.03.2026
  • 2-к квартира, Белоярская, 19

    • 40.5 м2
    • 5/5 этаж
    • Состояние: плохое
    3 300 000 ₽ (81500 ₽/м2)
    Объект № 197615. Уютная и просторная двухкомнатная квартира в надежном кирпичном доме, который по праву считается одним из самых теплых в районе — здесь сохраняется комфортная температура даже в холодное время года, а стены из кирпича обеспечивают отличную звукоизоляцию. В доме организовано свое ТСЖ, благодаря чему все вопросы по содержанию и ремонту решаются оперативно и прозрачно, а сами жильцы поддерживают идеальный порядок как в подъезде, так и на придомовой территории. Огромный плюс этого дома — хорошие соседи, дружные и приветливые люди, с которыми сложился крепкий и безопасный микроклимат во всем подъезде. Ну и конечно же, не может не радовать хорошая инфраструктура вокруг: в шаговой доступности находятся магазины, детские сады, школы и остановки общественного транспорта, что делает жизнь здесь максимально комфортной для семьи любого возраста. ***Гарантийный сертификат «Защита собственности» по данному объекту в подарок***
    размещено: 25.02.2026 , обновлено: 7.03.2026
  • 2-к квартира, Белоярская, 22

    • 43.9 м2
    • 1/5 этаж
    • Состояние: плохое
    3 399 000 ₽ (77400 ₽/м2)
    Освобождена, ключи в день полной оплаты! Изолированные комнаты (15.4 и 10 кв.м.); окна на две стороны, с/у раздельный, ванна в кафеле. Чистый, ухоженный подъезд. В шаговой доступности: школы, д/сады, поликлиники, сетевые магазины, остановки транспорта в 2 минутах от дома, ледовая арена, множество детских секций, и многое другое. Помощь в одобрении ипотеки! Приглашаем на просмотры в удобное для Вас время. Звоните! ID объекта в нашей базе: 9373
    размещено: 14.12.2025 , обновлено: 25.02.2026
  • 2-к квартира, Белоярская, 10

    • 47.7 м2
    • 1/2 этаж
    • Состояние: удовлетворительное
    3 590 000 ₽ (75300 ₽/м2)
    Чистая продажа, ключи в день полной оплаты! Один взрослый собственник! Кирпичный теплый дом, отличная звукоизоляция. Изолированные просторные комнаты (20 и 18 кв.м.); с/у в кафеле; окна пластик на 2 стороны; потолки 3,2 м! Чистый, ухоженный подъезд. Зеленый двор с детской площадкой. В шаговой доступности: школы, д/сады, поликлиники, сетевые магазины, остановки транспорта в 2 минутах от дома, ледовая арена, множество детских секций, и многое другое. В ПОДАРОК ПОКУПАТЕЛЮ: все, что на фото! Помощь в одобрении ипотеки!Приглашаем на просмотры в удобное для Вас время. Звоните! ID объекта в нашей базе: 9130
    размещено: 03.11.2025 , обновлено: 1.03.2026

Новостройки Екатеринбург, мкр-н. Компрессорный

Приоритет

Увеличивает просмотры в 3 раза

Ваше объявление показывается в списке выше обычных объявлений. подключить