На Метре реклама - только нормальная. Никакого шок-контента.
Помогайте независимому ресурсу, как он помогает вам. Удачи!
Средняя цена м² · Новостройки
176 954 ₽/м²
↑ 12% за 12 мес.
Средняя цена м² · Вторичка
139 123 ₽/м²
↑ 9,8% за 12 мес.
Продажи новостроек · Янв 2025
2 918 сделок
↓ 47% к декабрю
Госрегистрация · Вторичка · Янв 2025
6 180 сделок
↓ 53% к декабрю
Ключевая ставка ЦБ РФ
15,5 %
↓ снижение
Новостройки Котт. посёлки Объявления Динамика цен и сделок

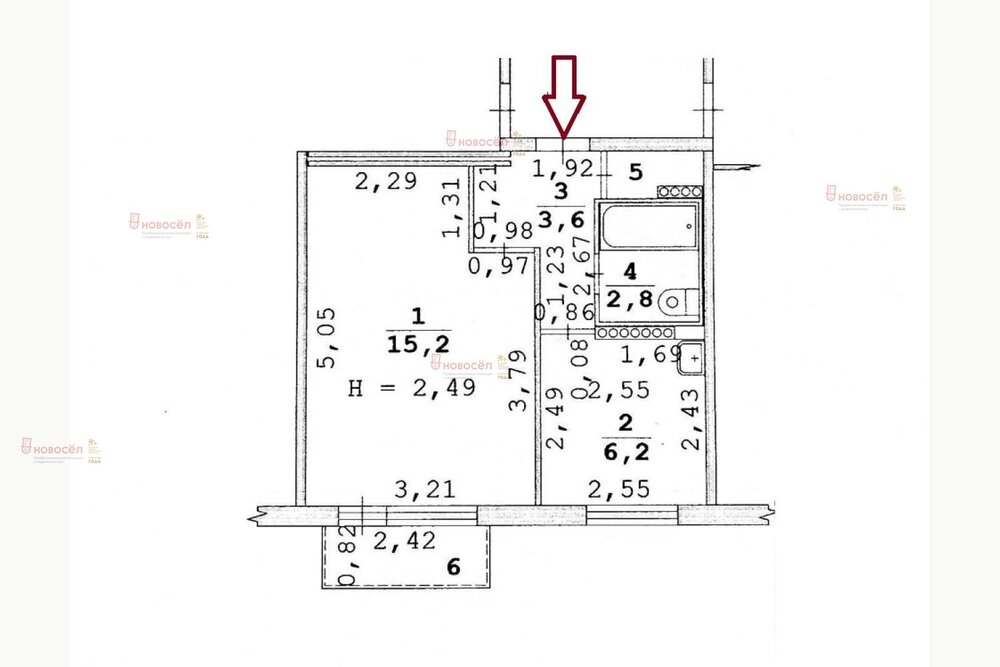
Продажа квартиры: Екатеринбург, ул. Белоярская, 20 (Компрессорный)

  • опубликовано 27.02.2024 , обновлено 1.03.2026
  • 50
Кадастровый номер:66:41:0609033:417
Рынок:вторичный
Срок сдачи: 1977 года
Количество комнат:1
Общая площадь:28.6 м2
Жилая площадь:15.2 м2
Площадь кухни:6.2 м2
Этаж/Этажность дома:4 / 5
Санузел:совмещенный
Отделка:евроремонт
Год постройки:1977
Состояние:хорошее
Цена:
2 590 000
Объявление снято с публикации
Коммунальные платежи:оплачиваются отдельно
Ипотека:возможна

Объект № 181343. За объект внесен аванс.
Светлая квартира в теплом доме. Квартира в хорошем состоянии: пластиковые стеклопакеты, санузел в кафеле, замена труб и стояков, балкон застеклен и обшит деревом.

Удобная комната с нишей. Кухня просторная квадратная. Есть вместительная кладовка.
Удобное расположение - рядом остановки транспорта, магазины Пятерочка и Кировский, спортивный комплекс Факел, садики, школа.

Просторный двор с детской площадкой, есть места для парковки. В доме ТСЖ, чистейший подъезд с цветами, домофон, благополучные соседи.
Один взрослый собственник, чистая продажа, ипотека возможна. ***Гарантийный сертификат «Защита собственности» по данному объекту в подарок***

Объявление снято с публикации

Ипотечный калькулятор

лет
%
Сумма кредита
2590000 ₽
Платеж
22 540 ₽

История предложений в этом доме

объявление снято с публикации в продаже комнат площадь этаж цена,
Екатеринбург, ул. Белоярская, 20 (Компрессорный) - фото квартиры 9 января 2026 90 дн. 2 43.9 1/5 4 050 000
Екатеринбург, ул. Белоярская, 20 (Компрессорный) - фото квартиры 12 сентября 2024 90 дн. 1 32.4 4/5 2 350 000
Екатеринбург, ул. Белоярская, 20 (Компрессорный) - фото квартиры 6 сентября 2023 90 дн. 2 44 1/5 2 800 000
Екатеринбург, ул. Белоярская, 20 (Компрессорный) - фото квартиры 31 мая 2023 90 дн. 2 43.7 1/5 2 100 000
Екатеринбург, ул. Белоярская, 20 (Компрессорный) - фото квартиры 21 марта 2023 90 дн. 2 43.7 1/5 2 300 000
Екатеринбург, ул. Белоярская, 20 (Компрессорный) - фото квартиры 30 декабря 2022 90 дн. 2 43.7 1/5 2 300 000
Екатеринбург, ул. Белоярская, 20 (Компрессорный) - фото квартиры 21 августа 2022 90 дн. 1 28.5 5/5 2 200 000
Екатеринбург, ул. Белоярская, 20 (Компрессорный) - фото квартиры 16 августа 2022 90 дн. 1 28.5 5/5 2 350 000
Екатеринбург, ул. Белоярская, 20 (Компрессорный) - фото квартиры 20 июля 2022 90 дн. 1 28.5 5/5 2 350 000
Екатеринбург, ул. Белоярская, 20 (Компрессорный) - фото квартиры 29 августа 2021 90 дн. 1 32 5/5 1 710 000
Екатеринбург, ул. Белоярская, 20 (Компрессорный) - фото квартиры 16 февраля 2021 90 дн. 1 30.1 3/5 2 200 000
Екатеринбург, ул. Белоярская, 20 (Компрессорный) - фото квартиры 11 марта 2021 90 дн. 2 43.8 1/5 2 250 000
Екатеринбург, ул. Белоярская, 20 (Компрессорный) - фото квартиры 10 февраля 2021 90 дн. 1 30 4/5 2 100 000
Екатеринбург, ул. Белоярская, 20 (Компрессорный) - фото квартиры 3 февраля 2021 90 дн. 1 30.1 3/5 2 100 000
20 октября 2018 92 дн. 1 28 5/5 1 900 000
7 сентября 2018 92 дн. 1 29 5/5 1 940 000

Похожие предложения о продаже квартир в Екатеринбурге (Компрессорный)

  • 1-к квартира, Белоярская, 19

    • 29.9 м2
    • 5/5 этаж
    • Состояние: хорошее
    2 950 000 ₽ (98700 ₽/м2)
    Продается светлая, тёплая, ухоженная однокомнатная квартира в самом центре микрорайона Компрессорный. В квартире установлены оконные стеклопакеты с отличной фурнитурой, входная новая металлическая сейф-дверь с зеркалом в прихожей зане. Ремонт выполнен косметический, можно проживать без вложений. Соседи спокойные, приветливые, двор тихий. Ипотечных хвостов, обременений, арестов, залогов не имеется, 2 взрослых собственника, без участия мат.капитала - быстрый выход на сделку. Удачное месторасположение дома. Рядом вся инфраструктура: школы, д/сады, сетевые магазины, ледовая арена «Факел», стадион, банк, остановки транспорта, поликлиники, кафе, пункты выдачи и многое другое! Помощь в одобрении ипотеки, полное сопровождение сделки! Юридическая гарантия. Приглашаем на просмотры в удобное для Вас время. Звоните, ответим на все вопросы! ID объекта в нашей базе: 18517
    размещено: 05.03.2026 , обновлено: 10.03.2026
  • 1-к квартира, Латвийская, 56/3

    • 20.6 м2
    • 9/25 этаж
    • Состояние: хорошее
    2 850 000 ₽ (138300 ₽/м2)
    Продается квартира - студия, район Компрессорный, тихий удаленный район от центра города , дом сдан в 2020, ключи получены, ни кто никогда не жил, состояние хорошее, от застройщика, ключи на сделке, обременения и ареста НЕТ, долгов по коммуналке тоже нет. Два совершеннолетние собственники, маткапитал не использовался, быстрый выход насделку, ключи на сделке. Помогу оформить ипотеку, можно без первоначального взноса, просмотр по договоренности, в любое время ID объекта в нашей базе: 13602
    размещено: 04.02.2026 , обновлено: 6.03.2026
  • 1-к квартира, Латвийская, 58/5

    • 22.5 м2
    • 1/25 этаж
    • Состояние: идеальное
    2 650 000 ₽ (117800 ₽/м2)
    Продается студия на 1 этаже со свежим ремонтом от застройщика в современном ЖК "Хрустальные ключи". Дом 2025 г. Отличный вариант для проживания и сдачи в аренду, также возможно для размещения парикмахерской, салона красоты, офиса. Арендаторы находятся очень быстро. Низкие коммунальные платежи, т.к. дом имеет свою газовую котельную. Рядом развитая инфраструктура района, все необходимое есть рядом. Чистая продажа, обременений нет, 1 взрослый собственник, никто не прописан. Быстрый выход на сделку. Ждем на просмотр. ID объекта в нашей базе: 26282
    размещено: 04.02.2026 , обновлено: 7.03.2026
  • 1-к квартира, Латвийская, 58

    • 22.5 м2
    • 1/25 этаж
    • Состояние: хорошее
    2 500 000 ₽ (111100 ₽/м2)
    Небольшая квартира-студия с качественным ремонтом от застройщика и с приятной ценой расположена в одном из домов жилого комплекса "Хрустальные ключи". Отличный вариант в качестве первого жилья. Одним из плюсов данного комплекса является наличие собственной газовой котельной, а это - сниженные коммунальные платежи, отсутствие отключения горячего водоснабжения. Социальная инфраструктура района хорошо развита, достаточное количество предприятий торговли, медицинские, спортивные, культурно-развлекательные объекты, детские сады и школы. Удаленность от центра города около 13 км, с транспортной доступностью все нормально, конечная остановка автобусов в шаговой доступности, при наличии личного транспорта - быстрый выезд на Кольцовский тракт и ЕКАД. Документы для продажи готовы. Возможна покупка объекта с привлечением ипотечных средств. Рассмотрим варианты обмена на большую площадь, можно в другом районе. Обсудим ваши предложения о цене. ID объекта в нашей базе: 3853
    размещено: 21.10.2025 , обновлено: 3.03.2026
  • 1-к квартира, Хвойная, 76

    • 18.2 м2
    • 3/5 этаж
    • Состояние: идеальное
    2 150 000 ₽ (118100 ₽/м2)
    Продается квартира, полностью с ремонтом!Расположение:Компрессорный м-н, Октябрьский районКвартира:- квартира с ремонтом,- окна заменили- готовы оставить частично мебель и технику .Дом:- придомовая парковкаВ подъезде:- доступ только через дверь с домофоном,Во дворе:- двор с детскими площадками,Инфраструктура:-рядом школы, детский сады,-множество магазинов,-центр 30мин,-рядом парк,Прочее:-Один собственник,-Без обременений,-Готовы к диалогу. ID объекта в нашей базе: 4714
    размещено: 07.10.2025 , обновлено: 10.03.2026

    1-к квартира, Латвийская, 58

    • 25.3 м2
    • 15/25 этаж
    • Состояние: хорошее
    2 935 000 ₽ (116000 ₽/м2)
    Продаётся однокомнатная квартира-студия с просторной планировкой, и видовыми характеристиками из окон.О квартире:Просторная комната с кухонной зоной, зонирование можно предусмотреть по своему вкусу.Прихожая, позволяющая удобно хранить мебель и вещи, в которую можно вместить большой шкаф без ущерба к проходному пространству.Санузел оснащен душевой кабиной и нишей для хранения различной утвари.Квартира полностью готова к проживанию и воплощению ваших дизайнерских идей, обои под покраску, ламинат и двери установлены в нейтральном гармонирующем оттенке. Всё находится в отличном состоянии, мебель для новых покупателей частично оставляем. О дворе и инфраструктуре:Во дворе оборудованы разнообразные игровые зоны для детей всех возрастов, которые ограничены доступом автомобилей - безопасность детей гарантирована, беговые и велодорожки, прогулочные тротуары и всё для отдыха предоставлено для жителей ЖК.Развитая инфраструктура: в шаговой доступности остановки общественного транспорта, сетевые магазины, аптеки, парикмахерская и множество других видов услуг.Идеальный вариант для тех, кто ищет своё уютное гнёздышко или первое собственное жильё! Инвестиционно локация тоже привлекательна, всегда есть желающие на аренду. Звоните, чтобы узнать подробности и договориться о просмотре! Ваша новая квартира ждет вас! ID объекта в нашей базе: 17795
    размещено: 14.08.2025 , обновлено: 28.02.2026

    1-к квартира, Латвийская, 58/3

    • 22.4 м2
    • 19/25 этаж
    • Состояние: идеальное
    2 800 000 ₽ (125000 ₽/м2)
    Продается студия с новой мебелью и техникой в современном ЖК "Хрустальные ключи". Дом 2023 г. Остается все что есть на фото. Отличный вариант для проживания и сдачи в аренду. Арендаторы находятся очень быстро. Низкие коммунальные платежи, т.к. дом имеет свою газовую котельную. Рядом развитая инфраструктура района, все необходимое есть рядом. Чистая продажа, обременение Сбербанк, 1 взрослый собственник, никто не прописан. Быстрый выход на сделку. Ждем на просмотр. ID объекта в нашей базе: 25204
    размещено: 26.10.2024 , обновлено: 2.03.2026

Новостройки Екатеринбург, мкр-н. Компрессорный

Приоритет

Увеличивает просмотры в 3 раза

Ваше объявление показывается в списке выше обычных объявлений. подключить