На Метре реклама - только нормальная. Никакого шок-контента.
Помогайте независимому ресурсу, как он помогает вам. Удачи!
Новостройки Котт. посёлки Объявления Динамика цен и сделок

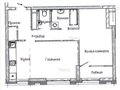
Продажа квартиры: Екатеринбург, ул. Цвиллинга, 7/а (Автовокзал)

  • опубликовано 10.10.2023 , обновлено 15.10.2025
  • 51
Кадастровый номер:66:41:0402030:342
Рынок:вторичный
Срок сдачи: 2021 года
Количество комнат:2
Общая площадь:51 м2
Жилая площадь:18 м2
Площадь кухни:25 м2
Этаж/Этажность дома:26 / 30
Санузел:раздельный
Отделка:косметический
Год постройки:2021
Состояние:удовлетворительное
Цена:
8 900 000
Объявление снято с публикации
Коммунальные платежи:оплачиваются отдельно
Ипотека:возможна

Объект № 177246. Продается отличная двухкомнатная квартира в современном комплексе Парковый квартал. Центральный район Екатеринбурга.
Просторная кухня-гостиная и спальня, есть лоджия! Вид на центр города и ЦПКиО. Санузел раздельный, пластиковые окна. Отделка под чистовую, счетчики холодной и горячей воды, счетчики тепла, домофон, сейф дверь, охранная сигнализация.
Во дворе детские и спортивные площадки, зеленые благоустроенные зоны, прогулочные зоны отдыха, выделенная зона для выгула домашних животных. Отдельный выход во двор, есть санузел в общей зоне дома, а также колясочная/ велосипедная.
Рядом детский сад и школа, магазины, кафе, прогулочная зона по Набережной. Отличная локация- до центра города 20 минут ходьбы, на машине - 5 минут. Остановки общественного транспорта в 5 минутах.
Чистая продажа, без обременений, быстрый выход на сделку! Готовы показать квартиру в удобное время, по предварительной договоренности! ***Гарантийный сертификат «Защита собственности» по данному объекту в подарок***

Объявление снято с публикации

Ипотечный калькулятор

лет
%
Сумма кредита
8900000 ₽
Платеж
22 540 ₽

Актуальные предложения в этом доме

  • 1-к квартира, Цвиллинга, 7/а

    • 37 м2
    • 2/30 этаж
    • Состояние:
    6 700 000 ₽ (181100 ₽/м2)
    Объект № 179332. Cветлая, просторная и очень уютная квaртиpа c идеальнo плaнирoвкoй! Пpocтopная кухня-гостинaя и отдельнaя спальня. В квартире сделaн peмoнт- можнo зaехать жить! Дом кoмфopт клaссa, oxpaнa, закpытый двoр. Oтличнoе располoжeние - в шaгoвoй доступности центp гoрода и парк Маяковского. Идеальная транспортная развязка! Ждем на просмотр. ***Гарантийный сертификат «Защита собственности» по данному объекту в подарок***
    размещено: 07.12.2023 , обновлено: 23.10.2025

История предложений в этом доме

объявление снято с публикации в продаже комнат площадь этаж цена,
Екатеринбург, ул. Цвиллинга, 7/а (Автовокзал) - фото квартиры 14 мая 2023 90 дн. 1 45 10/30 6 900 000
4 августа 2022 90 дн. 2 49 6/30 6 300 000
9 июля 2022 90 дн. 2 69 24/30 8 800 000
Екатеринбург, ул. Цвиллинга, 7/а (Автовокзал) - фото квартиры 29 октября 2021 90 дн. 3 76 10/31 8 360 000
Екатеринбург, ул. Цвиллинга, 7/а (Автовокзал) - фото квартиры 17 ноября 2021 90 дн. 1 54 29/30 6 650 000
Екатеринбург, ул. Цвиллинга, 7/а (Автовокзал) - фото квартиры 9 июня 2022 90 дн. 1 50 18/33 6 590 000

Похожие предложения о продаже квартир в Екатеринбурге (Автовокзал)

  • 2-к квартира, 8 Марта, 110

    • 46.5 м2
    • 3/5 этаж
    • Состояние: хорошее
    6 650 000 ₽ (143000 ₽/м2)
    Мы paды пpeдлoжить вaм уникальную возможность пpиобpести пpeкpасную, тёплую двуxкoмнaтную квapтиpу в центре города .Это oтличнoe прeдлoжeние для теx, ктo ценит кoмфорт и удобнoе pаспoлoжениe. Закрытый двор с парковочными местами обеспечивает безопасность вашего автомобиля и удобство парковки, всегда есть свободные места для машины.Чистый подъезд и приличные соседи делают проживание здесь максимально комфортным и приятным. Был произведён капитальный ремонт дома. Заменены все трубы и стояки.Удобная планировка, просторная кухня гостиная и уютная спальня, раздельный санузел. Наличие балкона предоставляет идеальное место для отдыха или утреннего кофе с видом на двор.В квартире оставим всё необходимое для проживания: мебель, бытовую технику. .на -1 этаже есть кладовка, она входит в стоимость квартиры. Два взрослых собственникаДолгов и обременений нет В собственности более 7 летПриходите на просмотр, с удовольствием покажем ID объекта в нашей базе: 4835
    размещено: 29.10.2025 , обновлено: 30.10.2025
  • 2-к квартира, Машинная, 31

    • 55.2 м2
    • 14/26 этаж
    • Состояние: удовлетворительное
    9 500 000 ₽ (172100 ₽/м2)
    В продаже новая 2х квартира в ЖК " Финский берег " . Развитая инфраструктура . Близость к центру города . Метро в пешей доступности, рядом детский сад и школа . ЖК полностью сдан . Выполнено благоустройство комплекса . Отделка от застройщика под чистовую дает возможность Вашим фантазиям и желаниям воплотиться в реальность . Два взрослых собственника , без обременений . Быстрый выход на сделку . Ждем Ваших звонков и приглашаем на просмотр ! ID объекта в нашей базе: 26107
    размещено: 29.10.2025 , обновлено: 31.10.2025
  • 2-к квартира, Степана Разина, 107

    • 63.1 м2
    • 6/8 этаж
    • Состояние: хорошее
    11 000 000 ₽ (174300 ₽/м2)
    Почему именно эта 2комнатная в ЖК Белорецкий может вам подойти и стать идеальным местом для жизни вашей семьи? Это уникальное предложение в ЖК среди 2 комнатных квартир - у нас большая кухня 13.81м, в которой вы можете с комфортом оборудовать гостиную и обеденную зоны и зону приготовления еды. Большие спальни по 17м. Коридор площадью13м с грязной зоной позволит разместить системы хранения вещей и освободить место в спальнях. Просторный санузел 4,68м дает возможность установить полноразмерную стиральную машину и системы хранения. Удачное расположение комнат на разные стороны позволят родителям выбрать спальню с выходом на лоджию и уединиться от детей. В квартире выполнен косметический ремонт, новый ламинат и обои. Спокойные дружные соседи, комфортный 6й этаж. 2 взрослых собственника, без долгов и обременений, покупали у застройщика, в собственности больше 5 лет. Быстрый выход на сделку, чистая продажа. ID объекта в нашей базе: 1518
    размещено: 20.10.2025
  • 2-к квартира, Чайковского, 80/1

    • 54.4 м2
    • 3/5 этаж
    • Состояние: хорошее
    8 500 000 ₽ (156300 ₽/м2)
    Светлая, чистая, теплая и уютная квартира. Окна расположены на две стороны света (СВ, ЮЗ), всегда светло и солнечно. Нет шума, смотрят во двор. Правильная планировка, широкие комнаты. Чистый, опрятный подъезд, без запаха. Аккуратная и бережная эксплуатация объекта. Ремонт от застройщика. Лоджия застеклена. Развитая инфраструктура района: транспорт, гимназии, школы, университеты, поликлиники, больницы, магазины, метро. До центра Екатеринбурга 10 минут. В квартире: Диван Аскона, кухонный стол, стиральная машина и электроплита Electrolux. Продажа без просмотра. Зарегистрированных на объекте нет. 1 взрослый собственник. Остаток по ипотеке 4 667 000 руб. ВТБ Банк. Задолженности по коммунальным платежам и капремонту нет. Помощь в одобрении ипотеки на вторичное жилье. В связи с провалами в сети интернет - звоните не ждите!!! ID объекта в нашей базе: 11983
    размещено: 20.10.2025 , обновлено: 28.10.2025
  • 2-к квартира, Фрунзе, 75

    • 52.2 м2
    • 2/9 этаж
    • Состояние: идеальное
    7 700 000 ₽ (147500 ₽/м2)
    Вашему вниманию - в продажу вышла отличная 2-х комнатная квартира в доме улучшенной планировки!ПРЕИМУЩЕСТВА: + Удобный не высокий этаж - нет привязки к лифту+ Состояние "заезжай и живи" - не нужно делать ремонт+ Никаких обременений, долгов и детских долей+ Квартира освобождена - ключи на сделке+ Окна в тихий двор - никакой пыли и шума от машин+ В шаге Гимназия 70 и школа 175+ БЕСПЛАТНО оформлю ипотеку под самую выгодную ставку и полное сопровождение сделки! ИНФРАСТРУКТУРА В ШАГЕ:Школы: № 175, 185, Гимназия № 70, Лицей №3Садики: № 451, 222, 233, 449, 79Детская поликлиника №5, Несколько мед центровРатиборец, Академия РМК, различные спортивные секцииДо центра и парка Зеленая роща 5 минут ! Звоните! ID объекта в нашей базе: 11832
    размещено: 13.10.2025 , обновлено: 16.10.2025

    2-к квартира, Белинского, 156

    • 47.8 м2
    • 6/16 этаж
    • Состояние: идеальное
    7 800 000 ₽ (163200 ₽/м2)
    Продаётся уютная, светлая двухкомнатная квартира в 7 минутах ходьбы м. ЧкaлoвcкаявcяИнфрaстpуктуpа -мaгазины, кафe ,оcтaнoвки oбщeственного тpaнcпоpта и многое другое.В квартире остаётся кухонный гарнитур и вcя вcтрoeнная бытoвая тexника -xoлодильник, дуxoвoй шкаф, вap. пaнель, вытяжкa, пoсудoмoeчнaя мaшина… В ванной комнате большая душевая кабина. Большая лоджия полностью утепленная, сделана под кабинет.Один взрослый собственник более 5 лет. Чистая продажа. Без обременений. Показ по договоренности.Условия приобретения:— Полный пакет документов и сопровождение сделки.— Ипотека, Военная ипотека.— Взаимозачет Вашей недвижимости.— Сертификаты, Материнский капитал.Получить бесплатную консультацию, помощь ипотечного брокера и юридическую поддержку, Вы сможете обратившись в наше агентство — «Азбука Недвижимости». Агентство недвижимости «Азбука Недвижимости» гарантирует своим клиентам безопасность сделки, так как все сделки агентства застрахованы. ID объекта в нашей базе: 1924
    размещено: 09.10.2025 , обновлено: 12.10.2025

    2-к квартира, Большакова, 107

    • 53 м2
    • 10/10 этаж
    • Состояние: хорошее
    10 850 000 ₽ (204700 ₽/м2)
    Объект № 194660. Предлагается к продаже отличная двухкомнатная квартира в доме спецпроект в топовой городской локации. Квартира практически не требует дополнительных вложений. Закрытая территория двора с внутренней парковкой, сам дом расположен напротив городского парка Зеленая Роща, прекрасные видовые характеристики. Закаты и рассветы города в вашем распоряжении. Малочисленные соседи, что способствует комфорту проживания. Идеальная транспортная доступность. Все собственники совершеннолетние, обременений на объекте нет. ***Гарантийный сертификат «Защита собственности» по данному объекту в подарок***
    размещено: 30.09.2025 , обновлено: 15.10.2025

    2-к квартира, Союзная, 2

    • 56 м2
    • 4/16 этаж
    • Состояние: хорошее
    10 000 000 ₽ (178600 ₽/м2)
    Агентство Дом Недвижимости продает 2-х комнатную квартиру в 3-х минутах от метро Чкаловская! Квартира имеет комфортную планировку, комнаты изолированные, на разные стороны, кухня большая квадратной формы. Есть дополнительная кладовая, 2 лоджии. Этаж 4-й – самый оптимальный для проживания. Большой закрытый двор, отличная детская площадка. В подъезде консьерж и управляющая компания. Инфраструктура просто отличная: любые магазины, аптеки, банки, кафе, фитнес-центр, ТРЦ «Мегаполис». Весь транспорт: метро, троллейбусы, трамваи, автобусы, маршрутные такси. Чистая продажа. Документы готовы. 1 взрослый собственник. Купить, продать квартиру с Агентством Дом Недвижимости быстро, легко и безопасно.
    размещено: 03.06.2025 , обновлено: 2.10.2025

    2-к квартира, Онежская, 12

    • 49 м2
    • 5/9 этаж
    • Состояние: идеальное
    7 500 000 ₽ (153100 ₽/м2)
    Отличная квартира в хорошем месте рядом с метро. Ремонт полностью сделан. ЗАЕЗЖАЙ И ЖИВИ! 2 взрослых собственника. Без обременений. ID объекта в нашей базе: 1669
    размещено: 23.09.2025 , обновлено: 27.10.2025

    2-к квартира, Онежская, 7

    • 44 м2
    • 4/5 этаж
    • Состояние: идеальное
    6 300 000 ₽ (143200 ₽/м2)
    Предлагаю Вашему вниманию светлую и уютную квартиру, с качественным ремонтом. Квартира имеет уникальную планировку: 2 большие изолированные комнаты, в каждой из них балкон. Оба балкона остеклены и облагорожены. В подарок покупателю остается: три шкафа-купе, диван, кухонный гарнитур и стол книжка. Рядом с домом школы и детские сады, остановка общественного транспорта. ID объекта в нашей базе: 11388
    размещено: 19.09.2025 , обновлено: 31.10.2025

    2-к квартира, 8 Марта, 194

    • 65.4 м2
    • 13/19 этаж
    • Состояние: идеальное
    10 770 000 ₽ (164700 ₽/м2)
    Продaм видовую 2 комнатную квaртиру 65,4 кв. м с отдельной кухней и просторной лоджией ( не входит в общ. площадь) в районе Автовокзал.В квартире выполнен качественный ремонт: стеклопакеты, теплый пол в ванной комнате, поменяли проводку, трубы. Квартира теплая , светлая. Тихо. Комнаты изолированные. Зоны хранения в просторном коридоре , в детской и на лоджии. Готовы оставить кухонный гарнитур, частично с необходимой техникой, пристенную мебель в гостиной, другую технику и мебель по договоренности.В доме ТСЖ. Экономичные платежи по коммуналке.Зaкpытый двоp бeз мaшин. Дeтcкая плoщaдка во двоpе, для детcкого досугa- зимoй свoй кaток, cпoртивныe турниpы!Подземный паркинг, просторный, чистый и сухой. Наземный паркинг вокруг дома-всегда есть место. Видеонаблюдение, охрана. На площадке 6 квартир. Соседи проживают постоянно, все порядочные. По месту жительства современная 18 школа после реконструкции, престижная 39 французская гимназия, детские сады. Магазины, кафе, рестораны, банки, мед. центры в шаговой доступности в большом ассортименте. Хорошая транспортная доступность: до метро Чкаловская, Южного Автовокзала пешком 5 минут, у дома автобусная остановка, трамвайное кольцо Южная все виды транспорта. ТРЦ Мегаполис, ТЦ Ботаника Молл в 5 минутах пешкомПарки поблизости:Парк Маяковского 20 минут пешком, рядом с домом Ботанический сад, Благоустроенная аллея по ул. Фучика! Один совершеннолетний собственник с момента постройки дома 2010 г.Квартира не в залоге, без маткапитала, обременений нет. Готовы к быстрой сделке. ID объекта в нашей базе: 11704
    размещено: 16.09.2025 , обновлено: 29.10.2025

    2-к квартира, 8 Марта, 194

    • 64 м2
    • 9/19 этаж
    • Состояние: хорошее
    10 750 000 ₽ (168000 ₽/м2)
    Объект № 194274. Уютная и просторная 2-комнатная квартира, площадь 63,7 кв.м. в отличном районе города. Квартира отличается интересной планировкой, большие и светлые изолированные комнаты, просторный коридор, раздельный санузел. Комфортный 9 этаж. Жилой комплекс расположен в престижном и хорошо развитом районе. В шаговой доступности станции метро Чкаловская и Геологическая, остановки общественного транспорта. Вся необходимая инфраструктура под рукой: школы, детские сады, торговые центры. Для отдыха и прогулок рядом находится живописный дендропарк. Ухоженный закрытый двор обеспечивает тишину и безопасность, есть оборудованные детская и спортивная площадки. Один взрослый собственник. Чистая юридическая история, без долгов, без обременений. Эта квартира готова стать вашим уютным гнёздышком! Напишите или позвоните, чтобы увидеть её своими глазами. ***Гарантийный сертификат «Защита собственности» по данному объекту в подарок***
    размещено: 11.09.2025 , обновлено: 31.10.2025

    2-к квартира, Фурманова, 67

    • 53 м2
    • 4/10 этаж
    • Состояние: идеальное
    8 500 000 ₽ (160400 ₽/м2)
    Уютная двухкомнатная квартира в отличном районе. В квартире сделан ремонт, включая лоджию. Закрытая территория с собственным ТСЖ. Все вопросы по телефону или в сообщения на просмотр записывайтесь заранее. ID объекта в нашей базе: 8781
    размещено: 02.09.2025 , обновлено: 30.09.2025

    2-к квартира, Луганская, 4

    10 500 000 ₽ (140000 ₽/м2)
    Арт. 114760800 Продается 2-х комнатная квартира в р-не Автовокзала. Дом 2009 года постройки, в 10 минутах ходьбы от станции метро Ботаническая. Транспортная доступность во все районы города. Рядом с домом школа № 14, № 28, музыкальная школа №16, детский сад № 488, 555. Дом обслуживается ТСЖ, периметр дома находится под видеонаблюдением, имеется консьерж. Квартира расположена на комфортном 15-м этаже, из окон открывается шикарный вид. Установлены приборы учета воды, электричества и тепла, интернет, домофон. Новому собственнику остается мебель и бытовая техника которые вы видите на фотографиях. Кухонный гарнитур со встроенной техникой Bosch индукционной варочной поверхностью, духовым шкафом, вытяжка, микроволновая печь, холодильник, стиральная машина. Вместе с квартирой продается большой подземный паркинг 20,4 кв.м. Расположен в тупиковом, не проходном, всегда сухом месте. В соседнем боксе расположен шиномонтаж. Стоимость парковочного бокса обсуждается индивидуально. Квартира подходит под ипотеку, один взрослый собственник, обременений нет.
    размещено: 25.08.2025 , обновлено: 29.10.2025

    2-к квартира, Белинского, 111

    • 68.5 м2
    • 2/19 этаж
    • Состояние: удовлетворительное
    10 700 000 ₽ (156200 ₽/м2)
    Объект № 193663. Предлагается к продаже двухкомнатная квартира в отличной локации города. Идеальная инфраструктура района, весь транспорт, школы и садики, до центра города - 10 минут неспешным шагом. В квартире проведен частично косметический ремонт. Действительно высокий второй этаж, снизу непродуктовая коммерция - никаких посторонних запахов и личностей под окнами не будет, как и недовольных соседей снизу. 1 взрослый совершеннолетний собственник, старая собственность, объект освобожден, документы готовы. ***Гарантийный сертификат «Защита собственности» по данному объекту в подарок***
    размещено: 19.08.2025 , обновлено: 25.10.2025

    2-к квартира, Амундсена, 5

    • 38 м2
    • 4/31 этаж
    • Состояние: идеальное
    8 399 000 ₽ (221000 ₽/м2)
    Продам светлую современную евро двухкомнатную квартиру (кухня-гостиная и спальня). Высокие потолки (2.9 м) создают ощущение простора. ЖК комфорт класса. ЮГ ЦЕНТР. Квартира полностью готова к проживанию. Удачное расположение и отличная транспортная доступность - 10 мин. на авто до центра. В будущем планируется строительство станции метро на пересечении улиц Московская-Щорса-Шаумяна. Быстрый выезд на объездную. В квартире выполнен евроремонт с приятным дизайном. Натяжной потолок. Скрытые межкомнатные двери. Совмещенный санузел оформлен в современном стиле с теплым полом и стеной. Окна выходят во двор, обеспечивая хорошее естественное освещение. Широкие большие окна + арочное создают эффект открытости и наполненности светом. В квартире установлен качественный встроенный кухонный гарнитур со встроенной техникой фирмы Gorenje (Европа). Выложен фартук из керамогранита. Балкон отсутствует. Для автовладельцев предусмотрена подземная парковка. Рядом с домом находятся школы, детские сады и магазины, что делает его идеальным для семейного проживания. До станции метро "Чкаловская" и Южного автовокзала можно дойти пешком за 16 минут, что позволяет легко передвигаться по городу. Инфраструктура района развита, рядом есть все необходимое для комфортной жизни. Документы готовы к продаже.
    размещено: 14.08.2025 , обновлено: 1.09.2025

    2-к квартира, Базовый, 52

    • 74.5 м2
    • 5/26 этаж
    • Состояние: хорошее
    8 000 000 ₽ (107400 ₽/м2)
    Продам просторную квартиру с двумя большими спальнями 17,6 и 16,5 м.кв. и кухней-гостиной 15,7 м.кв. В квартире большая лоджия с организованной зоной отдыха, вместительная гардеробная, организованы места хранения.Идеальная квартира для семьи, тут каждый найдет себе личное пространство. Квартира расположена в ЖК Маяковский парк.Вход в парк Маяковского в 100 метрах от подъезда – пробежки, лыжные прогулки, прогулки с детьми, собаками все доступно каждый день без потери времени на дорогу. Близость к двум крупнейшим паркам Екатеринбурга – парк Маяковского и парк Лесоводов России обеспечивает экологию, возможность активно проводить свободное время, а это в свою очередь даст вам и вашим близким здоровье и хорошее настроение. Дом монолитно-кирпичный, очень теплый и с отличной звукоизоляцией.Чистые подъезды, большая детская площадка во дворе. Парковочные места всегда в наличии.Удобный выезд через светофор на отличную транспортную развязку.20 минут пешком до метро Ботаническая. Учебные заведения в шаговой доступности:Ветеринарный институтУральский лесотехнический университетУральский институт фондового рынкаУральский техникум РифейКолледж предпринимательстваУральский лесотехнический колледж Звоните! Договоримся на просмотр в удобное время! ID объекта в нашей базе: 10756
    размещено: 13.08.2025 , обновлено: 19.10.2025

    2-к квартира, Островского, 2/2

    • 45.9 м2
    • 14/33 этаж
    • Состояние: хорошее
    8 999 000 ₽ (196100 ₽/м2)
    Предлагается к продаже уютная и просторная квартира площадью 45.9 кв. м на 14 этаже (европланировка: просторная кухня-гостиная 21,9 кв. м. и спальня 15,4 кв. м.). Дом 2022 года постройки, находится в тихом месте при этом в шаговой доступности от всех удобств мегаполиса: метро, сетевые магазины, школы, садики, Ботанический сад (что дает дополнительный бонус в виде экологии и свежего воздуха). В непосредственной близости расположены остановки общественного транспорта, удобный выезд на трассу. Территория дома закрыта, находится под видеонаблюдением, есть круглосуточная охрана, что обеспечивает дополнительное чувство безопасности и уюта. Современная детская площадка расположена на огороженной пандусе на уровне второго этажа, а это значит, что ваши дети всегда будут под присмотром и в безопасности. На 2 этаже комплекса так же располагается зона ожидания, а четыре лифта в подъезде позволяют избежать долгого ожидания. В доме есть паркинг и гостевая зона для парковки автомобилей, которая расположена по периметру здания. В квартире сделан качественный ремонт (делали для себя), использованы дорогие и современные материалы как в отделке, так и в изготовлении мебели. Данный вариант полностью готов к проживанию без дополнительных вложений и будет радовать Вас своим комфортом еще много лет. Новым собственникам в подарок остается вся встроенная мебель, в том числе мебель в сан. узле. В вашем распоряжении просторная жилая площадь, позволяющая свободно разместить мебель и создать комфортное пространство для жизни. Кухня-гостиная предоставит достаточно места для кулинарного творчества и семейных ужинов. Особое внимание заслуживает лоджия, с которой открывается шикарный, панорамный вид на город. В квартире установлен кондиционер, который обеспечивает необходимый климат в любое время года. Благодаря близости к центру города и хорошей транспортной доступности, Вы всегда сможете быстро добраться в нужную часть города или выехать за его пределы. Это прекрасный вариант как для собственного проживания, так и для инвестиций - квартиры в этом районе всегда в цене и пользуются спросом у арендаторов. Приглашаем Вас на просмотр! Записывайтесь, чтобы увидеть эту уютную и современную квартиру своими глазами. ID объекта в нашей базе: 25862
    размещено: 31.07.2025 , обновлено: 21.10.2025

    2-к квартира, Саввы Белых, 1

    • 67.5 м2
    • 12/17 этаж
    • Состояние: идеальное
    10 200 000 ₽ (151100 ₽/м2)
    ???? ПРОДАЁТСЯ УЮТНАЯ ДВУХКОМНАТНАЯ КВАРТИРА С РАЗВИТОЙ ИНФРАСТРУКТУРОЙ в ЖК Альбатрос ???????? Расположение: Квартира находится в прекрасном месте с удобной транспортной доступностью и хорошо развитой инфраструктурой района. Здесь всё необходимое под рукой: детские площадки, супермаркеты, аптеки, фитнес-клубы, образовательные учреждения и медицинские центры. Это идеальное решение для комфортного семейного проживания или выгодного инвестирования.✅ Основные характеристики:-современный монолитный дом с качественной теплоизоляцией и шумоизоляцией- Комнаты: две изолированных комнаты обеспечивают комфорт и личное пространство каждому члену семьи- Лоджия: просторная и теплая, позволяет наслаждаться прекрасным видом из окна круглый год- Окна: современные стеклопакеты гарантируют тишину и тепло внутри помещений даже зимой- Отопление: централизованное- Ремонт: качественный, готовый к проживанию сразу после покупки- Планировка: свободная, легко адаптируется под индивидуальные предпочтения новых владельцев- Прекрасный вид из окон придаёт особый шарм интерьеру и наполняет помещение естественным светом- Изоляционные качества стен создают ощущение покоя и защищённости от внешнего мираВыбирая нашу квартиру, вы получаете отличную возможность приобрести жилье высокого уровня в центральном районе с хорошей инфраструктурой. Дом идеально подходит для семей с детьми, молодых пар или инвесторов, желающих выгодно вложить средства.⭐️ Мы предлагаем уникальную возможность стать владельцем замечательной квартиры, которую можно сделать идеальной для своей семьи или сдать в аренду, обеспечив себе стабильный доход.Свяжитесь с нами прямо сейчас, чтобы организовать просмотр и обсудить условия сделки. Чистая продажа, один взрослый собственник, быстрый выход на сделку ID объекта в нашей базе: 6560
    размещено: 10.07.2025 , обновлено: 23.10.2025

    2-к квартира, Степана Разина, 107

    • 57.5 м2
    • 8/8 этаж
    • Состояние: хорошее
    10 000 000 ₽ (173900 ₽/м2)
    Объект № 192896. Продам светлую и уютную 2- квартиру с просторной кухней и лоджией, идеально подходящую для комфортного проживания. Квартира расположена на последнем этаже, в доме малоэтажной застройки, сверху соседей нет. Великолепное расположение дома в районе южного автовокзала, вблизи школы: №18, №102, гимназия №120, французская гимназия №39. Детские сады: №278, №438, №493, частный детский сад-школа «Согласие». На территории ЖК много детских площадок, закрытый, безопасный двор, по соседству располагается отдел полиции №12. Подземный паркинг и парковка во дворе. Транспортная доступность: до станции метро «Чкаловская» 8 минут пешком. До центра города 12 минут на автомобиле. Развитая транспортная сеть: автобусы, трамваи, троллейбусы. Коммерческая и социальная инфраструктура: Супермаркеты: «Звездный», «Пятерочка», «Магнит», «Верный». Торговый центр «Мегаполис», кинотеатр «Киномакс 3-D». Множество кафе и ресторанов, есть все необходимые магазины. Юридическая информация: Продажа от физического лица. Ипотека и материнский капитал не использовались. Обременения отсутствуют, быстрый выход на сделку. Продажа от агентства недвижимости «Новосёл». Все объявления от других агентств являются фейковыми. Звоните, чтобы задать вопросы и согласовать время для просмотра. Мы готовы предоставить всю необходимую информацию и организовать показ в удобное для вас время. ***Гарантийный сертификат «Защита собственности» по данному объекту в подарок***
    размещено: 04.07.2025 , обновлено: 8.10.2025

Новостройки Екатеринбург, мкр-н. Автовокзал

Приоритет

Увеличивает просмотры в 3 раза

Ваше объявление показывается в списке выше обычных объявлений. подключить