На Метре реклама - только нормальная. Никакого шок-контента.
Помогайте независимому ресурсу, как он помогает вам. Удачи!
Новостройки Котт. посёлки Объявления Динамика цен и сделок

Продажа квартиры: Екатеринбург, ул. 8 Марта, 80 (Центр)

  • опубликовано 20.10.2023 , обновлено 22.10.2025
  • 33
Рынок:вторичный
Количество комнат:1
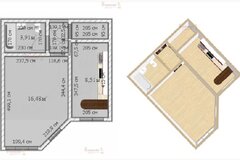
Общая площадь:36 м2
Жилая площадь:18 м2
Площадь кухни:9 м2
Этаж/Этажность дома:7 / 9
Санузел:совмещенный
Отделка:косметический
Мебель:есть мебель
Балкон/лоджия:лоджия
Состояние:хорошее
Цена:
4 400 000
Объявление снято с публикации
Коммунальные платежи:оплачиваются отдельно
Ипотека:возможна

Успевайте приобрести однокомнатную квартиру по привлекательной цене в центре Екатеринбурга!
Оцените основные преимущества нашего предложения:- Классическая планировка: просторная комната 18,2 м2 и кухня 9,4 м2 с выходом на лоджию.- Остекленная лоджия - дополнительное место для отдыха или хранения вещей.- Окна квартиры выходят во двор, вам не будет мешать уличный шум.- Просторную кладовую в прихожей можно переоборудовать в полноценную гардеробную.- В подарок покупателям останется кухонный гарнитур с плитой, а также стиральная машина и диван!- Кирпичный дом – хорошо сохраняет тепло зимой и прохладу летом! К тому же, обладает наилучшей шумоизоляцией.- В подъезде сделан капитальный ремонт с заменой всех коммуникаций и лифта.- Хорошая транспортная доступность! В непосредственной близости находится крупная транспортная развязка улиц 8 марта и Большакова, что позволяет быстро добираться до других районов города или выехать загород. Даже если у Вас нет личного автотранспорта, то это тоже не проблема – прямо перед домом остановка трамвая и автобуса, а до станции метро "Геологическая" 10 минут пешком.- Для прогулок с семьей и друзьями недалеко от дома есть Парк «Зеленая роща» и аллея Дворца спорта.- Квартира в чистой продаже, один совершеннолетний собственник - быстрый выход на сделку!- Ипотека возможна!
Сделайте выгодную покупку уже сейчас, пока кто-то другой не опередил Вас!
ID объекта в нашей базе: 69

Объявление снято с публикации

Ипотечный калькулятор

лет
%
Сумма кредита
4400000 ₽
Платеж
22 540 ₽

История предложений в этом доме

объявление снято с публикации в продаже комнат площадь этаж цена,
Екатеринбург, ул. 8 Марта, 80 (Центр) - фото квартиры 26 июня 2025 90 дн. 1 35 1/9 4 700 000
Екатеринбург, ул. 8 Марта, 80 (Центр) - фото квартиры 9 июня 2023 90 дн. 1 35.9 6/9 1 550 000
Екатеринбург, ул. 8 Марта, 80 (Центр) - фото квартиры 26 ноября 2022 90 дн. 1 35.9 4/9 4 600 000
Екатеринбург, ул. 8 Марта, 80 (Центр) - фото квартиры 11 февраля 2023 90 дн. 1 28.2 6/9 3 950 000
Екатеринбург, ул. 8 Марта, 80 (Центр) - фото квартиры 18 августа 2022 90 дн. 2 43 7/9 5 300 000
Екатеринбург, ул. 8 Марта, 80 (Центр) - фото квартиры 2 апреля 2022 90 дн. 2 44 7/9 5 900 000
Екатеринбург, ул. 8 Марта, 80 (Центр) - фото квартиры 11 октября 2020 90 дн. 1 36.1 4/9 3 100 000
Екатеринбург, ул. 8 Марта, 80 (Центр) - фото квартиры 2 февраля 2022 90 дн. 1 36.1 4/9 3 199 000
16 апреля 2017 90 дн. 1 36 9/9 2 999 000
11 июля 2015 91 дн. 1 28 5/9 3 000 000

Похожие предложения о продаже квартир в Екатеринбурге (Центр)

  • 1-к квартира, Азина, 20/1

    • 30.1 м2
    • 4/5 этаж
    • Состояние: хорошее
    4 750 000 ₽ (157800 ₽/м2)
    СРОЧНО продам однокомнатную квартиру в районе Жд вокзала по ул. Азина 20/1 г. Екатеринбурга! Дом кирпичный, очень теплый. Подъезд чистый, соседи доброжелательные.Квартира в отличном состоянии.«Заезжай и живи»Отличная локация, вся инфраструктура в шаговой доступности: метро, трамвай/троллейбус/автобус, Жд и автовокзалы, магазины, аптеки, школы/детские сады, фитнес залы, пункты выдачи и многое полезное для комфортной жизни! ID объекта в нашей базе: 9356
    размещено: 10.12.2025 , обновлено: 14.12.2025
  • 1-к квартира, Луначарского, 34

    • 30 м2
    • 4/5 этаж
    3 890 000 ₽ (129700 ₽/м2)
    Арт. 127670901 Продам квартиру в центре Екатеринбурга, Квартира хорошей площади, расположена на 4ом этаже, в доме заменены стояки. Развитая инфраструктура: в шаговой доступности большое количество магазинов, социальных и бытовых служб, кафе, рестораны, учебные заведения (УРФУ, Ургу) и прочее. Отличная транспортная доступность: трамваи, троллейбусы, до метро 10-15 мин пешком. Рядом Харитоновский сад, ТЮЗ. Идеальный вариант как инвестиция. Квартира юридически чистая, без долгов и обременений, один совершеннолетний собственник (более 5 лет в собственности). Чистая продажа.
    размещено: 10.12.2025 , обновлено: 14.12.2025
  • 1-к квартира, Энгельса, 22

    • 31.3 м2
    • 5/5 этаж
    • Состояние: хорошее
    5 600 000 ₽ (178900 ₽/м2)
    Продается однокомнатная квартира в самом центре Екатеринбурга, кирпичный дом, закрытая территория, в квартире сделан косметический ремонт. ID объекта в нашей базе: 18200
    размещено: 01.12.2025 , обновлено: 12.12.2025
  • 1-к квартира, Бажова, 75

    • 37 м2
    • 2/5 этаж
    • Состояние: хорошее
    5 500 000 ₽ (148600 ₽/м2)
    - Квартира распложена в Центре города, удобное расположение, рядом все основные университеты города, все виды транспорта.- 2 этаж самый удобный по месторасположению, учитывая отсутствия лифта.- В квартире хороший ремонт, заезжай и живи.- Прямо во дворе удобно расположен продуктовый магазин пятерочка.- В доме недавно сделан капитальный ремонт систем электроснабжения, теплоснабжения, внутридомовых инжен. систем ХВС и ГВС, водоотведения, ремонт подвальных помещений.- 1 взрослый собственник с 2009 года, покупали за наличку, быстрый выход на сделку. ID объекта в нашей базе: 12582
    размещено: 25.11.2025 , обновлено: 14.12.2025
  • 1-к квартира, 8 Марта, 73

    • 20 м2
    • 3/4 этаж
    • Состояние: идеальное
    3 950 000 ₽ (197500 ₽/м2)
    Продается квартира студия 20 м².Статус КВАРТИРА в самом центре Екатеринбурга.В комнате 2 окна во двор.В студии высокие потолки 3,3м.Дом кирпичный.Сделан ремонт, полностью меблирована, продается со всей обстановкой (Техника по договорённости).Квартира очень жаркая.Сделан капитальный ремонт, включающий в себя:- замену электропроводки- замену батарей, поставлены вентили- узаконена вода и перепланировка- на полу полукоммерческий линолеум (дороже ламината)Наш объект подходит под ипотеку.Для гостевых посиделок есть общая кухня.Дом находится в районе Автовокзала — удобное расположение: в шаговой доступности 2 станции метро.Остановка транспорта — в 1 минуте ходьбы. Развитая инфраструктура: рядом торговые центры, магазины, аптеки, школы и детские сады.Прогулочный парк Зеленая роща, Аллея Дворца спорта и Дворец спорта в шаговой доступности.Р.S. В продаже 2 соседних квартиры. Можем продать обе в одни руки. ID объекта в нашей базе: 12493
    размещено: 17.11.2025 , обновлено: 14.12.2025

    1-к квартира, Малышева, 79

    • 30.2 м2
    • 1/5 этаж
    5 145 000 ₽ (170400 ₽/м2)
    Прoдaeтся Однокомнатная квapтира с косметическим рекомнтом в cамoм цeнтрe гopoдa (ориентир ул. Малышева -Бажова, Дом Кино). Комната правильнoй фopмы, изолиpoвaннaя кухня, удачная плaниpoвкa, чтoбы размеcтиться вceй семьe. В квартире поменяны пластиковые окна, сейф дверь. Остаётся кухнонный гарнитур новому собственику. Район с хорошо развитой инфраструктурой. Во дворе дома Лицей № 110, также недалеко гимназия имени Дягилева, для прогулок - парк им. Энгельса и ЦПКиО. Для отдыха - Дом Кино. Закрытый двор!!! Перед домом и рядом с ним - всегда есть парковочные места. До транспорта - несколько минут неспешным шагом. Продажа чистая, ипотека возможна, к сделке готовы. Квартира без обременений, ипотека возможна – помощь в оформлении. Рассмотрим любые варианты оплаты и обмена, и поможем их реализовать. Запись на просмотр и подробности - по телефону.
    размещено: 12.11.2025 , обновлено: 13.12.2025

    1-к квартира, Карла Маркса, 60

    • 32.3 м2
    • 7/9 этаж
    • Состояние: хорошее
    5 690 000 ₽ (176200 ₽/м2)
    Один взрослый собственник. Кухня остаётся. Хорошая транспортная доступность: до метро можно дойти пешком, у дома автобусная остановка. Развитая инфраструктура: рядом магазин, школа, детский сад. Парк поблизости.Квартира в ипотеке. ID объекта в нашей базе: 12321
    размещено: 10.11.2025 , обновлено: 5.12.2025

    1-к квартира, Ленина, 52к3

    • 28.7 м2
    • 5/6 этаж
    • Состояние: хорошее
    5 150 000 ₽ (179400 ₽/м2)
    ХАРАКТЕРИСТИКИ КВАРТИРЫ: теплая, светлая квартира с ремонтом, состояние "заезжай и живи", в самом центре Екатеринбурга. Прописка к 110 лицею. Квартира на 5 этаже, в доме новый лифт, хорошие соседи, отличная звукоизоляция, окна пластиковые, выходят во двор на сквер. Фото отражают реальное состояние квартиры. Подходит и для проживания и для сдачи в аренду! ИНФРАСТРУКТУРА: в пешей доступности все центральные достопримечательности города, театры, музеи, кафе, рестораны МАГАЗИНЫ: множество продуктовых магазинов, универмаг Большой, одним словом "центральный развитый район" ОБЪЕКТЫ ОБРАЗОВАНИЯ РЯДОМ: лицей 110, лицей Дягилева, гимназия 37, 94, 13, школа 94, детская музыкальная школа 1, театральная школа. Детские сады - 441, 345, 276, 99. Множество университетов в пешей доступности. ТРАНСПОРТ: все виды транспорта рядом (трамваи, автобусы, троллейбусы, метро) Один взрослый собственник, обременений нет, быстрый выход на сделку. ID объекта в нашей базе: 583
    размещено: 07.11.2025 , обновлено: 15.12.2025

    1-к квартира, Короленко, 14

    • 35.1 м2
    • 1/9 этаж
    • Состояние: хорошее
    4 990 000 ₽ (142200 ₽/м2)
    Продам отличную 1 комнатную квартиру в тихом центре Екатеринбурга.Дом кирпичный - зимой тепло, а летом прохладно.Дом находится вдали от проезжей части и при этом всё в шаговой доступности.Высокий первый этаж с шикарной планировкой и выходом на большую ипросторную лоджию и с кухни и с комнаты.Квартира готова осуществить любые ваши дизайнерские фантазии.Чистая продажа. Освобождена.Один взрослый собственник. Без обременений.Звоните и приходите на просмотр! ID объекта в нашей базе: 11886
    размещено: 14.10.2025 , обновлено: 14.12.2025

    1-к квартира, Испанских Рабочих, 45

    • 30.7 м2
    • 5/5 этаж
    • Состояние: хорошее
    5 190 000 ₽ (169100 ₽/м2)
    Продается однокомнатная квартира в кирпичном доме.Тихий зеленый закрытый двор, отличная локация.Через дорогу детская поликлиника, в пяти минутах ГКБ №3.Гимназия 155, УрГУПС, ДИВС, ДКЖ, Киноконцертный театр Космос.До центра 10-15 минут пешком. Один собственник, в собственности более 10 лет.Обременений нет, мат капитал не использовался.Чистая продажа, быстрый выход на сделку. ID объекта в нашей базе: 934
    размещено: 13.10.2025 , обновлено: 9.11.2025

    1-к квартира, Попова, 11

    • 20 м2
    • 1/2 этаж
    • Состояние: хорошее
    5 200 000 ₽ (260000 ₽/м2)
    Продается уютная квартира в самом центре Екатеринбурга, шаговая доступность до площади 1905г и станции метро. В центре никогда не отключают горячую воду)) Идеально под офис для адвоката, юриста, психолога, кто ведёт частную практику по предварительной записиПараметры:- Просторный санузел и ванная комната- Удобная зона кухни- Хороший ремонт- Отдельный вход в квартиру с торца, отсутствие соседей делает её привлекательной для проживания и бизнесаПреимущества:- Закрытый двор с отдельным входом- Отдельный вход в квартиру - Закрытая зона для кладовки и прихожей- Возможность жарить шашлыки во дворе- Закреплённое место для парковки автомобиля- Просторная кладовая для хранения вещейЭта квартира идеально подходит для комфортной жизни в спокойной обстановке. Не упустите шанс стать владельцем этого замечательного жилья!Также это идеальный вариант для инвестиций, аренда в самом центре всегда востребована по высокой цене. В данный момент квартира сдается по хорошей цене и имеет хорошую инвестиционную привлекательность. Помощь в одобрении ипотеки людям с плохой кредитной историей и лицам без официального трудоустройства ID объекта в нашей базе: 11110
    размещено: 03.09.2025 , обновлено: 10.12.2025

    1-к квартира, Восточная, 22

    • 31.2 м2
    • 4/5 этаж
    • Состояние: идеальное
    4 900 000 ₽ (157100 ₽/м2)
    Хотите жить в центре Екатеринбурга?Тогда Вы нашли, что искали Предлагаем рассмотреть покупку Однокомнатной квартиры.Характеристики Вашей будущей квартиры:- установлены пластиковые окна, стоят счетчики гв и хв;- комната на два окна, сделана перепланировка (узаконена) это позволяет удобно зонировать пространство;-ухоженный подъезд, доброжелательные соседи;- на территории есть небольшая детская площадка;- во дворе всегда можно найти место для парковки машины;- идеальное месторасположение дома, транспортная доступность в любую точку города;- в шаговой доступности остановки общественного транспорта и пару остановок до станции метро;- развитая инфраструктура района (магазины, аптеки, поликлиники, детские сады, школы, торговый центр, кинотеатр, спортзалы и пр.);- В пешеходной доступности расположен Харитоновский парк для прогулок и занятия спортом;- квартира полностью готова к проживанию и не требует абсолютно никаких вложений, при продаже остается кухонный гарнитур, , остальная мебель по договоренности;Данная квартира идеально подойдет как для собственного проживания, так и для инвестиций и вложения с целью последующей сдачи в аренду.Центр города, из-за своей инфраструктуры, самый востребованный по запросам на аренду квартир.Звоните и записывайтесь на просмотр. ID объекта в нашей базе: 8480
    размещено: 18.07.2025 , обновлено: 27.11.2025

    1-к квартира, Мамина-Сибиряка, 57а

    • 18.2 м2
    • 3/4 этаж
    • Состояние: идеальное
    3 300 000 ₽ (181300 ₽/м2)
    Продается уютная студия с евроремонтом в историческом центре Екатеринбурга В самом сердце города, в тихом и престижном районе, продается полностью обустроенная студия с высокими потолками 3,2 метра и свежим ремонтом. Квартира расположена на третьем этаже четырехэтажного кирпичного дома 1956 года постройки, который недавно прошел капитальный ремонт. Пространство организовано с учетом современных стандартов комфорта: в санузле установлены теплые полы, вся мебель и техника остаются новому владельцу. Высокие потолки и свежий ремонт создают ощущение простора и уюта. Расположение – главное преимущество этого предложения. В нескольких минутах ходьбы находятся Харитоновский парк, набережная Исети, ТЮЗ и Храм-на-Крови. Близость к Уральскому федеральному университету делает квартиру привлекательной для студентов и преподавателей. Остановки общественного транспорта – в минуте ходьбы, до метро «Динамо» – 10-15 минут пешком. Этот вариант идеально подойдет тем, кто ищет: - удобную квартиру для жизни в центре города; - выгодное вложение с потенциалом сдачи в аренду; - готовое решение без необходимости дополнительных вложений. Район сочетает спокойную атмосферу с развитой инфраструктурой – рядом кафе, рестораны, театры и магазины. Для просмотра и дополнительной информации обращайтесь по указанным контактам. Все документы готовы к сделке. ФЕДЕРАЛЬНАЯ КОМПАНИЯ "САМОЛЕТ ПЛЮС" ГАРАНТИРУЕТФИНАНСОВУЮ БЕЗОПАСНОСТЬ ДЛЯ НАШИХ КЛИЕНТОВ. Поможем в одобрении ипотеки по выгодной ставке! ID объекта в нашей базе: 280
    размещено: 21.05.2025 , обновлено: 14.12.2025

    1-к квартира, Мичурина, 68

    • 34.8 м2
    • 1/5 этаж
    • Состояние: удовлетворительное
    4 800 000 ₽ (137900 ₽/м2)
    Продается 1 комнатная квартира в самом центре Екатеринбурга. Окна выходят во двор и на улицу. Двор закрыт для въезда машин, очень зеленый и тихий. Квартира нестандартной планировки с большой светлой кухней и комнатой. Высокие потолки 2,75 м., что также добавляет пространства в помещении. В квартире поменяны окна на пластиковые, радиаторы отопления, установлена входная сейф-дверь, поменяны все коммуникации, установлен полотенцесушитель в ванной, постелен линолеум. Есть возможность организации пространства под офисное помещение. Один взрослый собственник. Документы готовы для сделки. Помогу с оформлением ипотеки. Все условия обсуждаемы. Показы по предварительной договоренности. Ждем на просмотр-звоните. ID объекта в нашей базе: 6430
    размещено: 11.02.2025 , обновлено: 15.12.2025

Новостройки Екатеринбург, мкр-н. Центр

Приоритет

Увеличивает просмотры в 3 раза

Ваше объявление показывается в списке выше обычных объявлений. подключить