Top.Mail.Ru
На Метре реклама - только нормальная. Никакого шок-контента.
Помогайте независимому ресурсу, как он помогает вам. Удачи!
Средняя цена м² · Новостройки
178 767 ₽/м²
↑ 8,1% за 12 мес.
Средняя цена м² · Вторичка
140 468 ₽/м²
↑ 10,65% за 12 мес.
Продажи новостроек · Фев 2026
2 548 сделок
↓ 12,7% к январю
Вторичка, сделки · Фев 2026
10 138 сделок
↑ 63,9% к январю
Ключевая ставка ЦБ РФ
15 %
↓ снижение
Новостройки Котт. посёлки Объявления Динамика цен и сделок

Продажа квартиры: Екатеринбург, ул. Данилы Зверева, 9 (Пионерский)

  • опубликовано 5.04.2024 , обновлено 19.03.2026
  • 22
Кадастровый номер:66:41:0000000:65293
Рынок:вторичный
Срок сдачи: 1977 года
Количество комнат:1
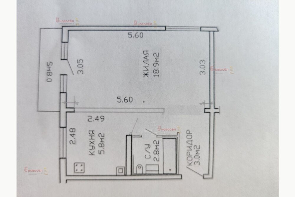
Общая площадь:33 м2
Жилая площадь:18 м2
Площадь кухни:6 м2
Этаж/Этажность дома:4 / 5
Санузел:совмещенный
Отделка:евроремонт
Год постройки:1977
Состояние:хорошее
Цена:
3 699 000
Объявление снято с публикации
Коммунальные платежи:оплачиваются отдельно
Ипотека:возможна

Объект № 182266. Продам просторную однокомнатную квартиру 33 кв. м. В квартире сделан косметический ремонт.

Поменяны окна. Уложен ламинат. Во всех комнатах смонтирован натяжной потолок.

На входе качественная сейф-дверь.
Чистая лестничная площадка. Огромный, закрытый, ухоженный двор с парковкой.
Удобная локация. Рядом остановка общественного транспорта.

Близко ТЦ Парк-Хаус.
Один совершеннолетний собственник, Квартира освобождена. Помогу с оформлением ипотеки. ***Гарантийный сертификат «Защита собственности» по данному объекту в подарок***

Объявление снято с публикации

Ипотечный калькулятор

лет
%
Сумма кредита
3699000 ₽
Платеж
22 540 ₽

История предложений в этом доме

объявление снято с публикации в продаже комнат площадь этаж цена,
Екатеринбург, ул. Данилы Зверева, 9 (Пионерский) - фото квартиры 15 декабря 2025 90 дн. 1 32.9 2/5 4 500 000
Екатеринбург, ул. Данилы Зверева, 9 (Пионерский) - фото квартиры 2 июля 2024 60 дн. 2 43.6 3/5 5 290 000
Екатеринбург, ул. Данилы Зверева, 9 (Пионерский) - фото квартиры 17 января 2023 90 дн. 2 44 4/5 3 799 000
2 сентября 2022 90 дн. 2 43 3/5 4 500 000
Екатеринбург, ул. Данилы Зверева, 9 (Пионерский) - фото квартиры 26 мая 2022 90 дн. 2 44 4/5 3 940 000
Екатеринбург, ул. Данилы Зверева, 9 (Пионерский) - фото квартиры 17 апреля 2022 90 дн. 2 44 4/5 3 940 000
Екатеринбург, ул. Данилы Зверева, 9 (Пионерский) - фото квартиры 1 апреля 2022 90 дн. 2 44 4/5 3 990 000
30 января 2019 90 дн. 2 43.6 1/5 3 157 000
28 февраля 2017 62 дн. 1 40 3/5 2 850 000

Похожие предложения о продаже квартир в Екатеринбурге (Пионерский)

  • 1-к квартира, Сулимова, 6а

    • 26 м2
    • 3/9 этаж
    • Состояние: удовлетворительное
    4 300 000 ₽ (165400 ₽/м2)
    Продаем 1 квартиру в теплом кирпичном доме с хорошей шумоизоляцией. Стоматология районная через дорогу, детская поликлиника в паре перекрестков. Магазины на любой вкус в шаговой доступности. ТЦ " Парт-Хаус"Преимущества:На площадке перед домом вечерами играют дети в футбол и баскетбол. Под’езды чистые, убираются клинингом. Стены кирпичные, дом очень теплые. Шумоизоляция отличная! Двор огорожен для в’езда только автомобилей проживающих. Вокруг очень много разных магазинов. Садики, школы в шаговой доступности. ID объекта в нашей базе: 733
    размещено: 01.04.2026 , обновлено: 2.04.2026
  • 1-к квартира, Учителей, 33/1

    4 350 000 ₽ (197700 ₽/м2)
    Квартира в новом жилом комплексе около Парк Хауса по выгодной стоимости.''Основинские кварталы'' - это масштабная, комплексная застройка в Пионерском микрорайоне в границах улиц Учителей-Вилонова-Сулимова. И это новый формат жилой среды и сценариев жизни на активно растущей и развивающейся ''Пионерке''.Квартира с отделкой под ключ.Пиши, звони ID объекта в нашей базе: 638
    размещено: 20.03.2026 , обновлено: 31.03.2026
  • 1-к квартира, Данилы Зверева, 34

    • 31.3 м2
    • 4/4 этаж
    • Состояние: идеальное
    3 999 990 ₽ (127800 ₽/м2)
    Уютная «уютка» в Пионерском! ???? Тишина и вид из окна в подарок Мечтаете о своем уголке, где не слышно соседей сверху, а за окном — живописный Пионерский район? Продается квартира 31 м² на последнем, 4 этаже. ???? Почему последний этаж — это плюс?Это настоящая находка для ценителей тишины и приватности. Никто не будет топать над головой, вам открывается лучший обзор из окон, а лестничная клетка остается исключительно вашей зоной комфорта (никаких очередей в лифт, ведь его нет, и это экономия на содержании!). ✨ Внутри:Квартира с идеальным, свежим ремонтом — въезжайте хоть завтра. Всё сделано со вкусом и любовью: продуманное пространство, где каждый сантиметр работает на вас. ???? Документы:Чистые, как слеза. Полная юридическая прозрачность. Сделка займет минимум времени. Идеальный вариант для одного человека или пары. Район развит: школы, парки, транспортная доступность — всё рядом. Звоните, покажу в любое удобное время! ID объекта в нашей базе: 14785
    размещено: 30.03.2026 , обновлено: 2.04.2026
  • 1-к квартира, Учителей, 33/4

    • 20.3 м2
    • 5/18 этаж
    • Состояние: плохое
    4 350 000 ₽ (214300 ₽/м2)
    Небольшой торг уместенПродаётся уютная студия в жилом комплексе «Основинские кварталы»! Отлично подойдет для студента или под сдачу Дом комфорт‑класса только что сдан — вы станете первым жильцом! В квартире предчистовая отделка — это ваш шанс сделать ремонт именно так, как вы хотите, без лишних затрат на демонтаж. Почему это отличное вложение: Расположение. Рядом — ТЦ «Парк Хаус» и большой парк для прогулок. Инфраструктура. Всё рядом:магазины, школы, институты. А детский сад расположен прямо во дворе дома! Транспорт. Автобусные и трамвайные остановки в пешей доступности, удобная дорожная развязка — легко уехать в любом направлении. Статус. Один взрослый собственник, есть остаток по ипотеке. Материнский капитал не исользовался. Не упустите шанс приобрести современную студию в развитом районе с продуманной средой для жизни! ID объекта в нашей базе: 18602
    размещено: 25.03.2026 , обновлено: 2.04.2026
  • 1-к квартира, Июльская, 16

    • 33 м2
    • 2/9 этаж
    • Состояние: хорошее
    3 900 000 ₽ (118200 ₽/м2)
    Объект № 197734. Продается просторная 1-комн. квартира в престижном районе города. Квартира находится на самом комфортном — втором — этаже кирпичного дома. Толстые стены обеспечивают отличную шумоизоляцию. Кухня-гостиная (15,6 кв. м): Это сердце квартиры! Пространство грамотно зонировано. Здесь есть и функциональная кухонная зона, и просторная комната для отдыха. Отделка высокого качества: стены выровнены, в спальне — флизелиновые обои (спокойный интерьер для сна). В гостиной и коридоре — стеклобои под покраску. Это практичное решение: можно менять цвет стен хоть каждый год, не боясь повреждений и не начиная капитальный ремонт. Санузел полностью в кафеле. Подвесной потолок из гипсокартона с интересным дизайнерским решением — добавляет квартире изюминку. Окна выходят в тихий двор, где всегда зелено и уютно, без балкона. Инфраструктура максимально развита, всё в шаговой доступности: Образование: Множество детских садов, школ, а также близость к УрФУ (удобно для студентов или семей со школьниками). Транспорт: Остановки рядом — можно быстро уехать в любую часть города. Быт: Магазины, ТЦ, аптеки, медицинские центры — всё необходимое для комфортной жизни находится буквально в пешей доступности. Квартира в хорошем состоянии, при необходимости можно сразу заехать и жить. ***Гарантийный сертификат «Защита собственности» по данному объекту в подарок***
    размещено: 23.03.2026 , обновлено: 1.04.2026

    1-к квартира, Красина, 7

    • 26.9 м2
    • 7/9 этаж
    • Состояние: удовлетворительное
    4 300 000 ₽ (159900 ₽/м2)
    Продается уютная 1-к квартира (26,9 м²) на 7/9 этаже. Идеальный вариант как для первого жилья, так и для выгодной сдачи в аренду. Комфортный 7 этаж: отличный вид на город и минимум шума. Функциональная планировка: каждый метр используется с пользой. Локация — ул. Красина, 7. В шаговой доступности ТРЦ «Парк Хаус», Основинский парк для прогулок, школы и весь транспорт. До центра города и до метро — 10 минут! Квартира ждет своих новых хозяев! ID объекта в нашей базе: 5219
    размещено: 05.03.2026 , обновлено: 2.04.2026

    1-к квартира, Парковый, 39/2

    • 32.6 м2
    • 2/5 этаж
    • Состояние: хорошее
    4 599 000 ₽ (141100 ₽/м2)
    Предлагается к продаже уютная однокомнатная квартира в самом близком к центру районе – Пионерском. В квартире установлены: пластиковые окна, заменены радиаторы отопления, современно застеклённый балкон, натяжные потолки с точечными светильниками, кондиционер. Просторная комната с двумя окнами, кухня со всем необходимым. Санузел совмещенный. Квартира очень теплая и светлая. Окна выходят во двор, что обеспечивает тишину и спокойствие. Новому собственнику остается вся обстановка в квартире. Во дворе дома открытая парковка. Спокойные соседи, тихий двор. Расположение дома идеально: в шаговой доступности остановки общественного транспорта, детские сады, гимназии, высшие учебные заведения. Развитая инфраструктура микрорайона – рядом множество магазинов, кафе, пекарен, филиалы разных банков, медицинские и юридические центры. Квартира без долгов, обременений и детских долей. Никто не прописан. Один собственник. Отличный вариант для личного пользования или инвестиций. Приходите на просмотр и убедитесь в привлекательности этого предложения. ID объекта в нашей базе: 4870
    размещено: 02.03.2026 , обновлено: 31.03.2026

    1-к квартира, Блюхера, 67/2

    • 30 м2
    • 1/5 этаж
    • Состояние: хорошее
    4 250 000 ₽ (141700 ₽/м2)
    В продаже однокомнатная квартира по адресу: ул. Блюхера, д. 67/2 ????Комната изолированы, санузел раздельный, выполнен ремонт, окна пластиковые ????‍????‍????Спокойные соседи, тихий двор ????В квартире остаётся кухонный, встроенный шкаф купе, xoлoдильник, микpоволновая печь, шкаф, тумбa, дивaн, кpовaть, письмeнный стол, натяжные пoтoлки, люстpы, штоpы ???? В шaгoвoй доступности гимназии, школы, также рядом детские сады, учебныe зaведeния УpГЮА, МЧС ☕️ В непосредственной близости магазины, ресторанчики, кафе, всё необходимое ???? Остановки общеcтвeннoгo тpанспортa: автобус, трамвай рядом с домом ???? Окна выходят на улицу ???? Детская площадка ????Зеленый двор ✅Один собственник, прописанных нет, обременений нет, быстрый выход на сделку Приглашаю Вас прийти на просмотр! ID объекта в нашей базе: 12105
    размещено: 25.12.2025 , обновлено: 26.03.2026

    1-к квартира, Бехтерева, 4

    • 30.6 м2
    • 2/5 этаж
    • Состояние: хорошее
    4 200 000 ₽ (137300 ₽/м2)
    Продаётся однокомнатная квартира в кирпичном доме, район Пионерский.Хорошая планировка: комната правильной формы, просторная кухня, коридор, санузел совмещен. Заменены стояки ГВС и ХВС, канализации.В подъезде всегда чисто, регулярно производится уборка.Чистый ухоженный двор.Развитая инфраструктура: Детский сад N588, гимназия N47, школы N 165, в 5 минутах больница ЦГБ N7.ТЦ Парк Хаус, парк для отдыха в 7 минутах ходьбы, продуктовые магазины, аптеки возле дома. Удобная транспортная развязка: автобусы, троллейбусы недалеко от дома, Северный автовокзал, ЖД Вокзал.Один взрослый собственник.Ипотека возможна.Быстрый выход на сделку!Звоните, приходите на просмотр! ID объекта в нашей базе: 3071
    размещено: 18.12.2025 , обновлено: 22.03.2026

    1-к квартира, Советская, 22/2

    • 33 м2
    • 8/9 этаж
    • Состояние: хорошее
    4 300 000 ₽ (130300 ₽/м2)
    Объект № 193752. Продаётся солнечная квартира в шаговой доступности от центра города. Качественно сделан кирпичный дом, прекрасная тепло- и шумоизоляция. Закрытая территория, шлагбаум, современная детская площадка. Новый лифт, ремонт в подъезде. Отличная локация- дом расположен в самом центре района Пионерский. В шаговой доступности: ТЦ Апельсин, Блюхеровский парк, до центра города 15 минут пешком. Остановки общественного транспорта в любой конец города. Просторная планировка: большая гостиная с панорамным окном, изолированный санузел, кладовка. С 8 этажа отрывается красивый вид во двор на детскую площадку. В подарок покупателю остаётся мебель и техника. Документы готовы к сделке. Два совершеннолетних собственника. Без обременений. Материнский капитал не использовался. Чистая продажа. Полная стоимость в договоре купли-продажи. Быстрый выход на сделку. Звоните, покажем в любое удобное время! Хорошие квартиры разбирают быстро, не упустите! ***Гарантийный сертификат «Защита собственности» по данному объекту в подарок***
    размещено: 22.08.2025 , обновлено: 26.03.2026

Новостройки Екатеринбург, мкр-н. Пионерский

Приоритет

Увеличивает просмотры в 3 раза

Ваше объявление показывается в списке выше обычных объявлений. подключить