На Метре реклама - только нормальная. Никакого шок-контента.
Помогайте независимому ресурсу, как он помогает вам. Удачи!
Средняя цена м² · Новостройки
176 954 ₽/м²
↑ 12% за 12 мес.
Средняя цена м² · Вторичка
138 051 ₽/м²
↑ 4% за 12 мес.
Продажи новостроек · Янв 2025
2 918 сделок
↓ 47% к декабрю
Госрегистрация · Вторичка · Янв 2025
6 180 сделок
↓ 53% к декабрю
Ключевая ставка ЦБ РФ
15,5 %
↓ снижение
Новостройки Котт. посёлки Объявления Динамика цен и сделок

Продажа квартиры: Екатеринбург, ул. Калинина, 59, ЖК "Мир Труд Май" (Дом №4 секция Б) (Уралмаш)

  • опубликовано 31.07.2024 , обновлено 2.02.2026
  • 8
  •  
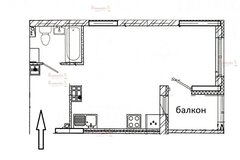
Рынок:строящееся жилье
Количество комнат:2
Общая площадь:63.76 м2
Жилая площадь:25.94 м2
Площадь кухни:25.94 м2
Этаж/Этажность дома:22 / 27
Отделка:Предчистовая
Цена:
9 755 280

Правобережный 621 — Правобережный

показать телефон

Ипотечный калькулятор

лет
%
Сумма кредита
9755280 ₽
Платеж
22 540 ₽

Актуальные предложения в ЖК Мир Труд Май

  • 3-к квартира, Калинина, 55

    • 81.47 м2
    • 9/9 этаж
    • Состояние:
    10 835 510 ₽ (133000 ₽/м2)
    Продам просторную квартиру для дружной семьи в новом жилом комплексе мкр. Уралмаш ... ... ... ❗️Несомненные преимущества:... ... ... ???? -возможна льготная ипотека (семейная/IT) или 13.9% - для всех;???? -дом уже сдан, ключи в день сделки;????-невысокая секция, всего 9 жилых этажей;????-планировка - распашонка (самый удачный вариант!)???? -полноформатные окна (больше света в помещениях) ???? -на этаже всего по 6 квартир, только семейные варианты (студий нет) ???? -предчистовая отделка (все грязные работы выполнены; поверхности выровнены, коммуникации/электрика разведены), дома дал усадку, поэтому можете сразу приступить к отделочным работам; ???? -есть подземный паркинг в каждом доме ЖК (можно приобрести в рассрочку на 2 года) ???? -полностью благоустроенный микрорайон и действительно классная локация: школы и дет/садики - рядом с домом; магазины, аптеки, кафе - в самом ЖК; поликлиника, банки, остановки общественного транспорта - «под рукой»; Парк Победы с прогулочными тропами, беседками/мангалами и хвойным лесом - в непосредственной близости!... ... ... Звоните прямо сейчас! Ваше «семейное гнёздышко» ждет Вас ID объекта в нашей базе: 26267
    размещено: 29.01.2026 , обновлено: 19.02.2026
  • 3-к квартира, Калинина, 55

    • 85.17 м2
    • 9/9 этаж
    • Состояние:
    11 327 610 ₽ (133000 ₽/м2)
    В продаже просторная квартира для дружной семьи в новом жилом комплексе в самом сердце Уралмаша! ... ... ... ❗️Несомненные преимущества:... ... ... ???? -возможна льготная ипотека (семейная/IT) со сниженной ставкой или 13.9% - для всех;???? -дом уже сдан, ключи в день сделки; ????-невысокая секция, всего 9 жилых этажей; ???? -полноформатные окна (больше света в помещениях); ???? -на этаже всего по 6 квартир, только семейные варианты (студий нет) ???? -предчистовая отделка (все грязные работы выполнены; поверхности выровнены, коммуникации/электрика разведены), дома дал усадку, поэтому можете сразу приступить к отделочным работам; ???? -есть подземный паркинг в каждом доме ЖК (можно приобрести в рассрочку на 2 года) ???? -полностью благоустроенный микрорайон и действительно классная локация: школы и дет/садики - рядом с домом; магазины, аптеки, кафе - в самом ЖК; поликлиника, банки, остановки общественного транспорта - «под рукой»; Парк Победы с прогулочными тропами, беседками/мангалами и хвойным лесом - в непосредственной близости!... ... ... Звоните прямо сейчас и успевайте приобрести ваше «семейное гнёздышко» ID объекта в нашей базе: 26265
    размещено: 29.01.2026 , обновлено: 5.03.2026

История предложений в этом доме

объявление снято с публикации в продаже комнат площадь этаж цена,
Екатеринбург, ул. Калинина, 59 (Уралмаш) - фото квартиры 10 февраля 2026 90 дн. 0 29 5/17 4 800 000
Екатеринбург, ул. Калинина, 59 (Уралмаш) - фото квартиры 23 июня 2025 90 дн. 1 37 3/27 5 300 000
Екатеринбург, ул. Калинина, 59 (Уралмаш) - фото квартиры 24 января 2025 90 дн. 2 57.8 5/10 9 500 000
19 ноября 2025 90 дн. 4 91.59 27/27 12 456 240
16 октября 2025 90 дн. 2 59.36 27/27 9 022 720
16 октября 2025 90 дн. 2 63.81 27/27 8 942 333
28 ноября 2025 90 дн. 4 91.62 26/27 12 551 940
16 октября 2025 90 дн. 2 63.76 24/27 8 940 172
16 октября 2025 90 дн. 2 59.36 24/27 9 260 160
15 ноября 2025 90 дн. 2 54.25 23/27 9 385 250
16 октября 2025 90 дн. 2 63.76 23/27 9 245 200
16 октября 2025 90 дн. 2 59.85 23/27 8 678 250
13 ноября 2025 90 дн. 2 59.36 23/27 9 200 800
25 октября 2025 90 дн. 1 37.5 23/27 6 525 000
16 октября 2025 90 дн. 2 54.25 22/27 8 463 000
15 января 2026 90 дн. 2 59.85 22/27 9 576 000
13 ноября 2025 90 дн. 2 59.36 22/27 9 141 440
16 октября 2025 90 дн. 1 37.5 22/27 6 525 000
16 октября 2025 90 дн. 2 59.85 21/27 8 498 700
15 ноября 2025 90 дн. 2 63.76 21/27 9 564 000
17 декабря 2025 90 дн. 1 37.5 21/27 7 312 500
1 ноября 2025 90 дн. 2 59.36 20/27 8 666 560
25 октября 2025 90 дн. 2 63.76 20/27 9 181 440
16 октября 2025 90 дн. 1 37.5 20/27 6 337 500
9 ноября 2025 90 дн. 1 37.57 19/27 6 574 750
1 декабря 2025 90 дн. 2 59.85 19/27 8 977 500
16 октября 2025 90 дн. 2 63.76 19/27 8 670 455
16 октября 2025 90 дн. 1 37.5 19/27 6 450 000
16 октября 2025 90 дн. 1 37.43 18/27 6 512 820
19 ноября 2025 90 дн. 2 53.72 18/27 9 132 400

Новостройки Екатеринбург, мкр-н. Уралмаш

Приоритет

Увеличивает просмотры в 3 раза

Ваше объявление показывается в списке выше обычных объявлений. подключить