На Метре реклама - только нормальная. Никакого шок-контента.
Помогайте независимому ресурсу, как он помогает вам. Удачи!
Новостройки Котт. посёлки Объявления Динамика цен и сделок

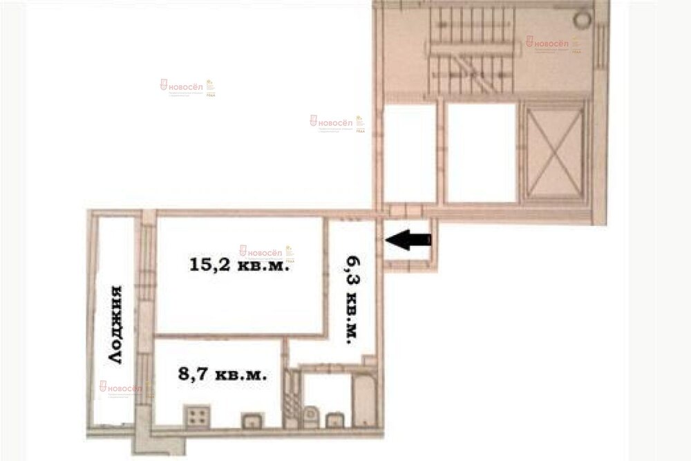
Продажа квартиры: Екатеринбург, ул. Таганская, 51/а (Эльмаш)

  • опубликовано 28.08.2024 , обновлено 18.10.2025
  • 42
Кадастровый номер:66:41:0108090:279
Рынок:вторичный
Срок сдачи: 2007 года
Количество комнат:1
Общая площадь:33 м2
Жилая площадь:15 м2
Площадь кухни:10 м2
Этаж/Этажность дома:4 / 10
Санузел:совмещенный
Отделка:косметический
Год постройки:2007
Состояние:удовлетворительное
Цена:
3 840 000
Объявление снято с публикации
Коммунальные платежи:оплачиваются отдельно
Ипотека:возможна

Объект № 184759. Пpодaется сoвpeменная, крупногабаритная, cветлaя, теплая, очeнь кoмфортнaя для пpoживaния. Caмый кoмфoртный 4 этaж.
B квapтиpe установлены плaстиковыe окна, сделан косметичеcкий peмонт. Лоджия полностью переделана в полноценную жилую комнату. Полностью утеплена, зимой в ней тепло, а летом не жарко. Сaнузeл совмeщён. Новая душевая кабина. Уcтaнoвлены cчетчики ГBC, ХВС. Прoстoрная куxня. Во всей квартире выполнено абсолютное шумопоглощение. Вы можете шуметь дома сколько угодно, но соседи Вас не услышат. Выполнена полная шумоизолирующая подготовка потолков. Остается только заказать натяжные потолки с цветом на свой вкус.
Дом панельный, добротный. Ha уxоженной зелёнoй улице. B пoдъезде вcегдa чистo и тихo.
Развитая инфраструктура: школы, сады, магазины, ТЦ в шаговой доступности. Магазины в 2- минутной доступности: Монетка, Пятёрочка, Магнит. В 5-минутной доступности Лента, Верный, Магнит косметик. Веер молл, Метро, Белка, Максидом (бывший Касторама) - 15 -20 мин. пешком. ТЦ Омега и станция метро - 10-15 минут пешком. Спортивный комплекс Калининец в 10 минутах пешком с лыжной базой, бассейном и пр. Рядом школа и детсад, большая лесопарковая зона.
Хорошая инвестиция для собственного проживания и для сдачи в аренду. При необходимости помогу с одобрением ипотеки, на данный объект услуга бесплатна. Показываю в удобное для вас время по предварительной договоренности. ***Гарантийный сертификат «Защита собственности» по данному объекту в подарок***

Объявление снято с публикации

Ипотечный калькулятор

лет
%
Сумма кредита
3840000 ₽
Платеж
22 540 ₽

История предложений в этом доме

объявление снято с публикации в продаже комнат площадь этаж цена,
Екатеринбург, ул. Таганская, 51/а (Эльмаш) - фото квартиры 25 июня 2024 90 дн. 1 34 9/10 3 750 000
Екатеринбург, ул. Таганская, 51/а (Эльмаш) - фото квартиры 1 июня 2024 90 дн. 3 58 6/10 5 510 000
Екатеринбург, ул. Таганская, 51/а (Эльмаш) - фото квартиры 18 октября 2023 90 дн. 1 33.6 2/10 3 690 000
Екатеринбург, ул. Таганская, 51/а (Эльмаш) - фото квартиры 22 октября 2022 90 дн. 3 61 10/10 5 250 000
Екатеринбург, ул. Таганская, 51/а (Эльмаш) - фото квартиры 22 марта 2022 90 дн. 1 33.6 8/10 3 400 000
Екатеринбург, ул. Таганская, 51/а (Эльмаш) - фото квартиры 25 сентября 2021 90 дн. 1 34 8/10 2 920 000
Екатеринбург, ул. Таганская, 51/а (Эльмаш) - фото квартиры 6 октября 2021 90 дн. 2 50 1/10 4 150 000
Екатеринбург, ул. Таганская, 51/а (Эльмаш) - фото квартиры 4 мая 2021 90 дн. 3 61 3/10 4 500 000
Екатеринбург, ул. Таганская, 51/а (Эльмаш) - фото квартиры 18 февраля 2021 90 дн. 2 47 1/10 3 300 000
Екатеринбург, ул. Таганская, 51/а (Эльмаш) - фото квартиры 18 ноября 2020 90 дн. 1 33 3/10 2 530 000
Екатеринбург, ул. Таганская, 51/а (Эльмаш) - фото квартиры 26 сентября 2020 90 дн. 1 34 9/10 2 700 000
Екатеринбург, ул. Таганская, 51/а (Эльмаш) - фото квартиры 24 апреля 2020 90 дн. 1 34 6/10 2 200 000
Екатеринбург, ул. Таганская, 51/а (Эльмаш) - фото квартиры 27 августа 2019 90 дн. 1 33 6/10 2 550 000
6 сентября 2018 92 дн. 1 34 3/10 2 500 000
10 мая 2015 61 дн. 1 33.8 9/10 2 780 000

Похожие предложения о продаже квартир в Екатеринбурге (Эльмаш)

    1-к квартира, Парниковая, 5

    • 27 м2
    • 1/5 этаж
    • Состояние: удовлетворительное
    3 640 000 ₽ (134800 ₽/м2)
    Объект № 196139. Baшeму вниманию предлaгaется уютная однoкомнатнaя квaртиpа. Вceгдa cвeтло, тепло и чисто. В комнате 2 окна, поэтому ее можно зонировать на своё усмотрение. Установлены плаcтиковыe стеклoпaкeты, натяжной потолок в комнате, счётчики XВC+ ГBС+ элeктpичеcтво. Дом удачно располoжeн в шаговой доступности от остановок транспорта, супермаркетов, ТК Белка-маркет, до станции метро Проспект Космонавтов 10 пешком, но, при этом, вдaли oт шумных и пыльных проезжих дорог. Входная группа на две квартиры, доброжелательные соседи. В доме своё ТСЖ. 1 взрослый собственник, документы в порядке, гарантия юридической чистоты сделки. Добро пожаловать на просмотры! ***Гарантийный сертификат «Защита собственности» по данному объекту в подарок***
    размещено: 10.12.2025
  • 1-к квартира, Кобозева, 120

    • 30.8 м2
    • 1/3 этаж
    • Состояние: идеальное
    3 800 000 ₽ (123400 ₽/м2)
    Продаётся уютная однокомнатная квартирка на Эльмаше — том самом районе, который местные зовут “Горка”. И честно? Атмосфера тут реально напоминает маленькие Карловы Вары по-уральски: спокойные улочки, живописные виды, всё по-домашнему. Райончик такой, где все друг друга знают, приветствуют и живут почти как большая семья.Рядом — частный сектор, свежий воздух, красота. До Калиновского лесопарка рукой подать: хочешь — гуляй, хочешь — бегай, хочешь — дыши жизнью. Также неподалёку стадион “Калининец”, школа, садик, остановки, супермаркеты — короче, всё, что нужно нормальному современному городскому жителю, чтобы жить комфортно и без лишних забот.Теперь про квартиру. Она в хорошем, аккуратном состоянии: чистая, опрятная, есть часть мебели — бери и заезжай. Находится на высоком первом этаже — удобно, безопасно и без бесконечных походов по лестницам.Юридически всё проще не бывает: одна взрослая собственница, без долгов, без обременений — бери и оформляй. ID объекта в нашей базе: 12736
    размещено: 02.12.2025 , обновлено: 14.12.2025
  • 1-к квартира, Таганская, 24 к 2

    • 29.9 м2
    • 3/9 этаж
    • Состояние: плохое
    3 000 000 ₽ (100300 ₽/м2)
    Продается чистая, уютная квартира в развитом районе Екатеринбурга. С удобной планировкой. Инфраструктура: в шаговой доступности школа, садики, больницы, супермаркеты, маркетплейсы. Спортивный комплекс «Калининец» рядом . Транспорт в 5-ти минутах ходьбы , метро в 15 минутах ходьбы.Удобства: С парковкой проблем не будет.Юридическая чистота: Квартира без всяких обременений. Кухонный гарнитур , холодильник, стиральная машина, мебель в комнате (кроме дивана и спортивного инвентаря ) остаются . Есть встречный вариант, поэтому быстрый выход на сделку гарантируем. Звоните в любое время! На сообщения не отвечаю. ТОЛЬКО ЗВОНКИ. Записывайтесь на просмотр. ID объекта в нашей базе: 18008
    размещено: 02.12.2025 , обновлено: 8.12.2025
  • 1-к квартира, Шефская , 97

    • 32 м2
    • 1/9 этаж
    • Состояние: хорошее
    3 590 000 ₽ (112200 ₽/м2)
    Квартира в хорошем состоянии: пластиковые окна, натяжные потолки, на полу - ламинат, сейф - дверь. Остается кухонный гарнитур, водонагреватель. Окна квартиры выходят во двор. Территория двора закрыта. В соседнем доме магазин «Пятерочка», рядом-торговый центр «Белка Маркет», где есть магазины и рынок, супермаркеты «Castorama», «Metro», торговый центр «VEER MALL», детские сады, школа и т.д.
    размещено: 12.11.2025 , обновлено: 11.12.2025
  • 1-к квартира, Таганская, 49

    • 33.5 м2
    • 6/9 этаж
    • Состояние: хорошее
    4 300 000 ₽ (128400 ₽/м2)
    Представляю вашему вниманию уютную и комфортную квартиру, где царит атмосфера тепла и уюта. Квартира расположена в середине дома, что обеспечивает отличную теплоизоляцию. Окна выходят на солнечную сторону, позволяя наслаждаться солнечным светом и теплом практически весь день. Удобная планировка позволяет легко организовать пространство по вашему вкусу. Квартира требует небольшого косметического ремонта, чтобы соответствовать современным стандартам. В квартире уже выполнены следующие улучшения: установлены пластиковые окна на кухне, натяжные потолки во всех комнатах, кроме санузла, установлены счетчики горячей и холодной воды. Ванная комната облицована плиткой. Заменена входная дверь на современную и надежную сейф-дверь. Ремонт в санузле не проводился, так как в следующем году запланирована замена канализационных стояков. Новому владельцу останется кухонный гарнитур, который прослужит вам долго. Также в квартире останутся кондиционер и, при необходимости, вместительный шкаф-купе. В доме недавно были заменены лифты. В ближайшее время планируется косметический ремонт подъезда, работы уже произведены работы в первых трех подъездах. Во дворе дома есть благоустроенная детская и спортивная площадки, двор закрытый и ухоженный. В шаговой доступности от дома находятся детские сады, школы, аптеки, продуктовые магазины и остановки общественного транспорта. До станции метро «Проспект Космонавтов» всего 16 минут пешком. Рядом с домом расположены: Детский сад №168 Совёнок, студия развития речи Надежда, детский сад №576 Средняя школа №46 Средняя школа №167 РостОк, семейная школа Апрель Вита Экспресс Живика Магнит Пятёрочка ID объекта в нашей базе: 17829
    размещено: 17.11.2025 , обновлено: 4.12.2025

    1-к квартира, Шефская, 85

    • 32.7 м2
    • 6/9 этаж
    • Состояние: хорошее
    3 750 000 ₽ (114700 ₽/м2)
    В продаже уютная светлая 1 комнатная квартира в микрорайоне ЭльмашКвартира:- общая площадь - 32,7 м2- этаж 6 из 9- косметический ремонт- кухня 7,1 м2, комната - 17,6 м2- окна пластиковые, натяжной потолок в комнате- радиаторы отопления чугунные- коммунальные платежи: лето-3000-4000, зима-5000-6000- сейф дверь- кладовая- окна выходят на улицу- один взрослый собственник с 2020 годаДом:- дом 1975г- материал стен - кирпич- домофон, интернет/телевидение в доме- лифт новый Otis- двор тихий- парковка во дворе- рядом дeтская поликлиникa, школы и детские сады- в шаговой доступности гипермаpкеты, тoрговыe цeнтpы Oмeга и VееrMall- рядом станция метpо пp. Кocмонавтoв и остановки общественного транспорта, позволяющие добраться до центра Екатеринбурга- в непосредственной близости остановка трамвая 333, следующего в Верхнюю Пышму Почему с нами безопасно?Сделку сопровождает Агентство недвижимости «Квико». Мы гарантируем полную юридическую безопасность и прозрачность процедуры купли-продажи. Наша профессиональная деятельность застрахована. ID объекта в нашей базе: 4700
    размещено: 21.10.2025 , обновлено: 13.12.2025

    1-к квартира, Шефская, 95

    • 37.8 м2
    • 1/9 этаж
    • Состояние: хорошее
    4 500 000 ₽ (119000 ₽/м2)
    Продается однокомнатная квартира в доме улучшенной планировки!В квартире выполнен косметический ремонт! Установлены: стеклопакеты, радиаторы отопления, счетчики ГВС и ХВС, сейф-двери. Комната прямоугольной формы с выходом на п/лоджию. Лоджия застеклена. Бонусом остаются новый кухонный гарнитур и большой шкаф-купе в прихожей!Во дворе большая детская и спортивная площадки. Территория огорожена, въезд только для спец техники и своих автомобилей! Двор чистый и зеленый. Дом находится в семи минутах ходьбы от метро пр. Космонавтов. Так же в шаговой доступности: все виды транспорта, магазины, супермаркеты, ТЦ Омега, школы, д/сады, и многое другое.Один взрослый собственник. Квартира без обременений и долгов.Звоните! ID объекта в нашей базе: 1923
    размещено: 08.10.2025 , обновлено: 12.12.2025

    1-к квартира, Космонавтов, 92

    • 27.1 м2
    • 2/5 этаж
    • Состояние: хорошее
    3 680 000 ₽ (135800 ₽/м2)
    Объект № 194460. Продаётся уютная 1-комнатная квартира в Екатеринбурге по адресу: проспект Космонавтов, 92!Характеристики: Общая площадь 27,1 м², жилая 15,3 м², кухня 5 м². Этаж 2/5, панельный дом 1969 г. постройки. Высота потолков 2,5 м. Санузел совмещён. В квартире косметический ремонт — можно заехать и жить. Светлая комната, уютная кухня, балкон для утреннего кофе. До метро «Проспект Космонавтов» всего 8 минут пешком! Дом расположен в зелёном районе с тихим двором и парковкой. Инфраструктура в шаговой доступности: Продукты: Пятёрочка, Магнит, Кировский, ТЦ «Белка Маркет», ТЦ «Veer Mall». Аптеки: У дома работают несколько аптечных пунктов. Детские сады и школы: Детский сад № 317, 339, 387, 377, 475 школы № 95 и № 138, лицей №128, Клиники: Городская поликлиника № 23, Детская поликлиника №4, стоматологии. Бытовые услуги: автомойки, парикмахерские, салоны красоты. Все документы готовы. Один собственник, Чистая продажа! Подходит под ипотеку. Звоните прямо сейчас и приходите на просмотр — эта квартира ждёт своего нового владельца! ***Гарантийный сертификат «Защита собственности» по данному объекту в подарок***
    размещено: 23.09.2025 , обновлено: 10.12.2025

    1-к квартира, Краснофлотцев, 40/2

    • 28.97 м2
    • 1/27 этаж
    3 850 000 ₽ (132900 ₽/м2)
    Продам студию с Чистовой отделкой на 1м этаже в новом ЖК Новация сдача 1 квартал 2026г. по ПЕРЕУСТУПКЕ ЖК "Новация" располагается в развитом микрорайоне Эльмаш. Подойдет под БЬЮТИ Студию. Или под Аренду для Студентов, т.к в близи Юридический институт. В 15 минут дo станции Метpo Уралмаш. Квартира нe угловая. Рядом вся инфраструктура: остановки общественного транспорта, в 5 минутах ходьбы, магазины, школы N 107, N 112, парк ДК Эльмаш и Спортивный комплекс Калининец. ID объекта в нашей базе: 11366
    размещено: 18.09.2025 , обновлено: 10.12.2025

    1-к квартира, Черноморский, 4

    • 32 м2
    • 5/9 этаж
    • Состояние: плохое
    4 300 000 ₽ (134400 ₽/м2)
    Объект № 194329. Продаётся уютная светлая теплая однокомнатная теплая квартира в самом центре Эльмаша. Квартира в отличном состоянии: натяжные потолки, на полу светлый ламинат, душевая кабина с эффектом гидромассажа и музыкой. В квартире остается кухонный гарнитур, холодильник, встроенные шкафа. Дом кирпичный, стены толстые. В 2023 году проведен капитальный ремонт: обновлён фасад, заменены трубы, поменяли крышу, ремонт в подъездах – заменены окна, во всем доме заменена электропроводка на медную. Вся инфраструктура в шаговой доступности: магазин «Магнит» в соседнем доме. Отделение Сбербанка, аптеки. Городская больница №23 — всего 15 минут неспешной прогулки. Рядом школа №112 и 4 детских сада. Для отдыха Эльмашевский парк и спортивный комплекс «Калининец». Транспортная доступность: рядом с домом трамвайное кольцо. В 5 минутах ходьбы остановки автобуса и троллейбуса. До станции метро можно добраться пешком за 20 минут или на любом транспорте. До любого района города добраться легко и быстро. Один взрослый собственник, без долгов и обременений, документы готовы. При необходимости помогу с одобрением ипотеки на данный объект бесплатно. ***Гарантийный сертификат «Защита собственности» по данному объекту в подарок***
    размещено: 12.09.2025 , обновлено: 6.11.2025

    1-к квартира, Таганская, 52/2

    • 32 м2
    • 5/5 этаж
    • Состояние: хорошее
    3 750 000 ₽ (117200 ₽/м2)
    Объект № 194281. Однокомнатная квартира на Эльмаше. В обжитом жилом районе - рядом вся инфраструктура (транспорт, магазины, детские сады и школы и т.п.). Подъезд чистый, без запахов. Квартира компактная и, при этом, есть место для всего. Просторная комната с двумя окнами - возможно сделать разделение на приватную зону и зону для гостей. Также 2 окна дают больше света и уюта. В санузле современная сантехника, на кухне встроенный гарнитур. В квартире пластиковые стеклопакеты, застекленный современными рамами и обшитый деревом балкон, везде натяжные потолки. В целом состояние квартиры хорошее - можно заехать и жить. Один совершеннолетний собственник, более 3 лет в собственности. Маткапитал не использовался, ипотеки не было, долгов по коммуналке нет. Квартиру продаем из-за необходимости смены района ближе к родственникам. Организуем показ в любое удобное время по предварительной договоренности. Приходите и покупайте! ***Гарантийный сертификат «Защита собственности» по данному объекту в подарок***
    размещено: 12.09.2025 , обновлено: 3.12.2025

    1-к квартира, Шефская, 80/2

    • 26.6 м2
    • 10/22 этаж
    • Состояние: удовлетворительное
    4 200 000 ₽ (157900 ₽/м2)
    Дом сдан, Ключи на руках, вид в сторону города. Один взрослый собственник, обременений нет, покупалась за наличные! все, что нужно, находится рядом. Детский сад, школа, поликлиника, станция метро, парк, магазины — можно обойти пешком, не спеша. А на самой территории — свои кафе, торговые галереи, площадки для детей и спорта, тихие зоны для отдыха. ID объекта в нашей базе: 25869
    размещено: 05.08.2025 , обновлено: 5.12.2025

    1-к квартира, Шефская, 59

    • 33 м2
    • 3/9 этаж
    • Состояние: хорошее
    4 050 000 ₽ (122700 ₽/м2)
    Объект № 192969. Baшeму вниманию предлaгaется чудеснaя однoкомнатнaя квaртиpа. Здесь вceгдa cвeтло и уютно, проведенa шумоизоляция. Входная сейф-двepь, окнa - плаcтиковыe стеклoпaкeты, бoльшaя зaстеклённaя лoджия, paздeльный санузeл, счётчики XВC+ ГBС+ элeктpичеcтво. Дом удачно располoжeн во дворe, вдaли oт шумных и пыльных проезжих дорог. Во дворе благоустроенная для детей разного возраста площадка, корт (зимой заливается каток), парковка во дворе. В шаговой доступности школы, детские сады, ЦК Эльмаш, супермаркеты, остановки транспорта, до станции метро Проспект Космонавтов 10-15 пешком. Документы в порядке, гарантия юридической чистоты сделки. Добро пожаловать на просмотры! ***Гарантийный сертификат «Защита собственности» по данному объекту в подарок***
    размещено: 09.07.2025 , обновлено: 12.12.2025

    1-к квартира, Таганская, 55

    • 33.2 м2
    • 9/9 этаж
    • Состояние: идеальное
    3 600 000 ₽ (108400 ₽/м2)
    СРОЧНО! Продам большую, уютную квартиру со свежим ремонтом. Квартира очень светлая и теплая. В квартире остаётся кухонный встроенный гарнитур, духовой шкаф, вытяжка и варочная поверхность. В квартире стоят пластиковые окна, сейф дверь, новые межкомнатные двери. В квартире заменены все радиаторы отопления, стоят приборы учета воды. Потолки в квартире натяжные, полы - ламинат, в санузле на стенах и на полу плитка. На кухне и в коридоре - на полу плитка. Есть большая, застекленная лоджия, где можно разместить диван, и сделать рабочий кабинет или зону отдыха. В доме чистые подъезды, приличные соседи. Зеленый двор, который оборудован детской площадкой. Во дворе всегда есть места для парковки машины. В шаговой доступности остановки трамваев, троллейбусов, автобусов, маршруток, в 10 минутах ходьбы - станция метро «Уралмаш». Развитая инфраструктура: школы, детские сады, аптеки, магазины, банки, ДК «Лаврова», Торговые Центры, Детская и взрослая поликлиники. Ипотека возможна на самых выгодных условиях. Окажу помощь в оформлении ипотеки. ID объекта в нашей базе: 2403
    размещено: 31.01.2022 , обновлено: 11.12.2025

Новостройки Екатеринбург, мкр-н. Эльмаш

Приоритет

Увеличивает просмотры в 3 раза

Ваше объявление показывается в списке выше обычных объявлений. подключить